Property
Account |
| Property ID: | 10016 | Abbreviated Legal Description: | S1 T30 R1W TAX 24 |
| Parcel # / Geo ID: | 001012010 | Agent Code: | |
| Type: | Real | | |
| Tax Area: | 0110 - C-50F1E1H2 | Land Use Code | 91 |
| Open Space: | N | DFL | N |
| Historic Property: | N | Remodel Property: | N |
| Multi-Family Redevelopment: | N | | |
| Township: | 30N | Section: | 1 |
| Range: | 1W |
Location |
| Address: | | Mapsco: | 151/009 |
| Neighborhood: | S1T30R1W TAX#S,LINCOLN BCH,PTOT BLK 142,PORTER SP | Map ID: | |
| Neighborhood CD: | 6380 |
Owner |
| Name: | NORMAN & CARIN TONINA FAMILY TRUST | Owner ID: | 83451 |
| Mailing Address: | NORMAN TONINA JR CARIN TONINA 334 LAWRENCE ST PORT TOWNSEND, WA 98368 | % Ownership: | 100.0000000000% |
| | | Exemptions: | |
Pay Tax Due
There is currently No Amount Due on this property.
Taxes and Assessment Details
Property Tax Information as of
03/11/2026
Click on "Statement Details" to expand or collapse a tax statement.
* Please enter a valid date ** Please enter a valid date *
Statement Details |
| | TOTAL: | $0.00 | $0.00 | $0.00 | $0.00 | $0.00 | $0.00 |
|
| | $0.00 | $0.00 | $0.00 | $0.00 | $0.00 | $0.00 |
Values
| (+) Improvement Homesite Value: | + | $0 | |
| (+) Improvement Non-Homesite Value: | + | $0 | |
| (+) Land Homesite Value: | + | $0 | |
| (+) Land Non-Homesite Value: | + | $175,175 | |
| (+) Curr Use (HS): | + | $0 | $0 |
| (+) Curr Use (NHS): | + | $0 | $0 |
| | | -------------------------- | |
| (=) Market Value: | = | $175,175 | |
| (–) Productivity Loss: | – | $0 | |
| | | -------------------------- | |
| (=) Subtotal: | = | $175,175 | |
| (+) Senior Appraised Value: | + | $0 | |
| (+) Non-Senior Appraised Value: | + | $175,175 | |
| | | -------------------------- | |
| (=) Total Appraised Value: | = | $175,175 | |
| (–) Senior Exemption Loss: | – | $0 | |
| (–) Exemption Loss: | – | $0 | |
| | | -------------------------- | |
| (=) Taxable Value: | = | $175,175 | |
Taxing Jurisdiction
| Owner: | NORMAN & CARIN TONINA FAMILY TRUST | | |
| % Ownership: | 100.0000000000% | | |
| Total Value: | $175,175 | | |
| Tax Area: | 0110 - C-50F1E1H2 |
| CE | COUNTY CURRENT EXPENSE | 0.9034619479 | $175,175 | $175,175 | $158.26 | | |
| CNTYDD | DEVELOPMENTAL DISABILITIES | 0.0052121823 | $175,175 | $175,175 | $0.91 | | |
| CNTYVET | VETERANS RELIEF | 0.0052777810 | $175,175 | $175,175 | $0.92 | | |
| MENTAL | MENTAL HEALTH | 0.0052121823 | $175,175 | $175,175 | $0.91 | | |
| PTGEN | CITY OF PT GENERAL | 0.8551967795 | $175,175 | $175,175 | $149.81 | | |
| PTLLL | CITY OF PT - LIBRARY LID LIFT | 0.4010114288 | $175,175 | $175,175 | $70.25 | | |
| PTMVBOND | CITY OF PT MV BOND | 0.0484717981 | $175,175 | $175,175 | $8.49 | | |
| HOSP2CASH | HOSP DIST #2 GENERAL | 0.0536075306 | $175,175 | $175,175 | $9.39 | | |
| SCH50BOND | SCHOOL DIST #50 BOND 2016 | 0.5377451389 | $175,175 | $175,175 | $94.20 | | |
| SCH50CP | SCHOOL DIST #50 CAP PROJ | 0.4573475088 | $175,175 | $175,175 | $80.12 | | |
| SCH50MO | SCHOOL DIST #50 EP & O | 0.8262822886 | $175,175 | $175,175 | $144.74 | | |
| CONSERVE | CONSERVATION FUTURES | 0.0275621078 | $175,175 | $175,175 | $4.83 | | |
| EMS1 | FIRE DIST #1 EMS | 0.4679948282 | $175,175 | $175,175 | $81.98 | | |
| FD1 | FIRE DIST #1 GENERAL | 1.2171942929 | $175,175 | $175,175 | $213.22 | | |
| PORTPT | PORT OF PT GENERAL | 0.1134941229 | $175,175 | $175,175 | $19.88 | | |
| PORTPTIDD | PORT OF PT IDD 2019 | 0.2577346692 | $175,175 | $175,175 | $45.15 | | |
| PUD1 | PUD #1 GENERAL | 0.0597888892 | $175,175 | $175,175 | $10.47 | | |
| STATE | STATE SCHOOL PART 1 | 1.4940692947 | $175,175 | $175,175 | $261.72 | | |
| STATE2 | STATE SCHOOL PART 2 | 0.8050170049 | $175,175 | $175,175 | $141.02 | | |
| | Total Tax Rate: | 8.5416817766 | | | | | |
| | | | | Taxes w/Current Exemptions: | $1,496.27 | | |
| | | | | Taxes w/o Exemptions: | $1,496.27 | | |
Improvement / Building
Sketch
| No sketches available for this property. |
Property Image
Land
| 1 | 6380-1145F | High Bank and Bluff Frtg with Unblockable Views | 0.0000 | 0.00 | 0.00 | 0.00 | 0.00 | $100,100 | $0 |
| 2 | 6380-1145F | High Bank and Bluff Frtg with Unblockable Views | 0.0000 | 0.00 | 0.00 | 0.00 | 0.00 | $75,075 | $0 |
Roll Value History
| 2026 | N/A | N/A | N/A | N/A | N/A |
| 2025 | $0 | $175,175 | $0 | $175,175 | $175,175 |
| 2024 | $0 | $174,165 | $0 | $174,165 | $174,165 |
| 2023 | $0 | $158,331 | $0 | $158,331 | $158,331 |
| 2022 | $0 | $158,331 | $0 | $158,331 | $158,331 |
Deed and Sales History
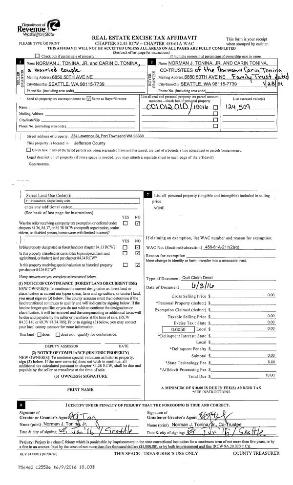
| 1 | 06/03/2016 | QCD | Quit Claim Deed | NORMAN J TONINA JR | NORMAN & CARIN TONINA FAMILY TRUST | | | | 125586 | |
| 2 | 12/06/2000 | SWD | Statutory Warranty Deed | WALKER, PETER/LESLIE | TONINA JR, NORMAN/CARIN | 0 | 0 | $695,000.00 | 91193 | 0 |
|   | |
| 3 | 06/02/2000 | SWD | Statutory Warranty Deed | BRANNAN, JAMES/RAPP, KATH | WALKER, PETER R/LESLIE R | 0 | 0 | $675,000.00 | 89882 | 0 |
|   | |
| 4 | 12/24/1997 | SWD | Statutory Warranty Deed | BURKHART, HEDI | BRANNAN, JAMES E | 0 | 0 | $480,000.00 | 83598 | 0 |
|   | |
| 5 | 12/24/1997 | SWD | Statutory Warranty Deed | BURKART, HEDI | BRANNAN, JAMES E & KATHLEEN RA | 0 | 0 | $0.00 | 83833 | 0 |
Payout Agreement
| No payout information available.. |