Property
Account |
| Property ID: | 10093 | Abbreviated Legal Description: | S2 T30 R1W TAX 12 |
| Parcel # / Geo ID: | 001024012 | Agent Code: | |
| Type: | Real | | |
| Tax Area: | 0110 - C-50F1E1H2 | Land Use Code | 11 |
| Open Space: | N | DFL | N |
| Historic Property: | N | Remodel Property: | N |
| Multi-Family Redevelopment: | N | | |
| Township: | 30N | Section: | 2 |
| Range: | 1W |
Location |
| Address: | 1023 TYLER ST PORT TOWNSEND, WA 98368 | Mapsco: | 152/011 |
| Neighborhood: | BARTLETT,DENNYS,NOLTONS,LEARNEDS 1ST, POWER,WINSLOW & TX #'S | Map ID: | |
| Neighborhood CD: | 6360 |
Owner |
| Name: | BOB A FRIEDMAN | Owner ID: | 112191 |
| Mailing Address: | PO BOX 152 PORT TOWNSEND, WA 98368-0152 | % Ownership: | 100.0000000000% |
| | | Exemptions: | |
Pay Tax Due
Select the appropriate checkbox next to the year to be paid. Multiple years may be selected.
*Convenience Fee not included
Taxes and Assessment Details
Property Tax Information as of
03/11/2026
Click on "Statement Details" to expand or collapse a tax statement.
* Please enter a valid date ** Please enter a valid date *
Statement Details |
| 2026 | 84 | STATE - STATE LEVY (SCHOOL) | $692.91 | $692.89 | $0.00 | $0.00 | $0.00 | $1385.80 |
| 2026 | 84 | COUNTY - COUNTY LEVIES (CE, DD, VET, MH) | $277.02 | $277.01 | $0.00 | $0.00 | $0.00 | $554.03 |
| 2026 | 84 | CONSERVE - CONSERVATION FUTURES | $8.31 | $8.30 | $0.00 | $0.00 | $0.00 | $16.61 |
| 2026 | 84 | CITYPT - CITY OF PT | $393.21 | $393.20 | $0.00 | $0.00 | $0.00 | $786.41 |
| 2026 | 84 | PORTPT - PORT DISTRICT | $111.89 | $111.87 | $0.00 | $0.00 | $0.00 | $223.76 |
| 2026 | 84 | PUD1 - PUD #1 | $18.02 | $18.02 | $0.00 | $0.00 | $0.00 | $36.04 |
| 2026 | 84 | HD2 - HOSP DIST #2 | $16.16 | $16.15 | $0.00 | $0.00 | $0.00 | $32.31 |
| 2026 | 84 | SD50 - SCHOOL DIST #50 | $548.94 | $548.91 | $0.00 | $0.00 | $0.00 | $1097.85 |
| 2026 | 84 | FD1 - FIRE DISTRICT #1 | $366.84 | $366.84 | $0.00 | $0.00 | $0.00 | $733.68 |
| 2026 | 84 | EMS1 - FIRE DIST #1 EMS | $141.05 | $141.04 | $0.00 | $0.00 | $0.00 | $282.09 |
| 2026 | 84 | JCCD - JC Conservation District | $2.55 | $2.55 | $0.00 | $0.00 | $0.00 | $5.10 |
| 2026 | 84 | NWA - Noxious Weed Assessment | $2.98 | $2.97 | $0.00 | $0.00 | $0.00 | $5.95 |
| 2026 | 84 | TOTAL: | $2579.88 | $2579.75 | $0.00 | $0.00 | $0.00 | $5159.63 |
|
| 2026 | 84 | $2579.88 | $2579.75 | $0.00 | $0.00 | $0.00 | $5159.63 |
Statement Details |
| 2025 | 84 | STATE - STATE LEVY (SCHOOL) | $504.33 | $504.33 | $0.00 | $0.00 | $1008.66 | $0.00 |
| 2025 | 84 | COUNTY - COUNTY LEVIES (CE, DD, VET, MH) | $198.33 | $198.31 | $0.00 | $0.00 | $396.64 | $0.00 |
| 2025 | 84 | CONSERVE - CONSERVATION FUTURES | $5.95 | $5.94 | $0.00 | $0.00 | $11.89 | $0.00 |
| 2025 | 84 | CITYPT - CITY OF PT | $286.02 | $285.99 | $0.00 | $0.00 | $572.01 | $0.00 |
| 2025 | 84 | PORTPT - PORT DISTRICT | $80.93 | $80.93 | $0.00 | $0.00 | $161.86 | $0.00 |
| 2025 | 84 | PUD1 - PUD #1 | $12.98 | $12.97 | $0.00 | $0.00 | $25.95 | $0.00 |
| 2025 | 84 | HD2 - HOSP DIST #2 | $11.57 | $11.57 | $0.00 | $0.00 | $23.14 | $0.00 |
| 2025 | 84 | SD50 - SCHOOL DIST #50 | $368.60 | $368.57 | $0.00 | $0.00 | $737.17 | $0.00 |
| 2025 | 84 | FD1 - FIRE DISTRICT #1 | $261.71 | $261.71 | $0.00 | $0.00 | $523.42 | $0.00 |
| 2025 | 84 | EMS1 - FIRE DIST #1 EMS | $100.66 | $100.66 | $0.00 | $0.00 | $201.32 | $0.00 |
| 2025 | 84 | JCCD - JC Conservation District | $2.55 | $2.55 | $0.00 | $0.00 | $5.10 | $0.00 |
| 2025 | 84 | NWA - Noxious Weed Assessment | $2.15 | $2.15 | $0.00 | $0.00 | $4.30 | $0.00 |
| 2025 | 84 | TOTAL: | $1835.78 | $1835.68 | $0.00 | $0.00 | $3671.46 | $0.00 |
|
| 2025 | 84 | $1835.78 | $1835.68 | $0.00 | $0.00 | $3671.46 | $0.00 |
Statement Details |
| 2024 | 84 | STATE - STATE LEVY (SCHOOL) | $458.59 | $458.58 | $0.00 | $0.00 | $917.17 | $0.00 |
| 2024 | 84 | COUNTY - COUNTY LEVIES (CE, DD, VET, MH) | $196.24 | $196.23 | $0.00 | $0.00 | $392.47 | $0.00 |
| 2024 | 84 | CONSERVE - CONSERVATION FUTURES | $5.89 | $5.88 | $0.00 | $0.00 | $11.77 | $0.00 |
| 2024 | 84 | CITYPT - CITY OF PT | $280.39 | $280.39 | $0.00 | $0.00 | $560.78 | $0.00 |
| 2024 | 84 | PORTPT - PORT DISTRICT | $81.06 | $81.05 | $0.00 | $0.00 | $162.11 | $0.00 |
| 2024 | 84 | PUD1 - PUD #1 | $12.89 | $12.89 | $0.00 | $0.00 | $25.78 | $0.00 |
| 2024 | 84 | HD2 - HOSP DIST #2 | $11.45 | $11.45 | $0.00 | $0.00 | $22.90 | $0.00 |
| 2024 | 84 | SD50 - SCHOOL DIST #50 | $371.03 | $371.01 | $0.00 | $0.00 | $742.04 | $0.00 |
| 2024 | 84 | FD1 - FIRE DISTRICT #1 | $259.47 | $259.46 | $0.00 | $0.00 | $518.93 | $0.00 |
| 2024 | 84 | EMS1 - FIRE DIST #1 EMS | $99.11 | $99.10 | $0.00 | $0.00 | $198.21 | $0.00 |
| 2024 | 84 | JCCD - JC Conservation District | $2.55 | $2.55 | $0.00 | $0.00 | $5.10 | $0.00 |
| 2024 | 84 | NWA - Noxious Weed Assessment | $2.15 | $2.15 | $0.00 | $0.00 | $4.30 | $0.00 |
| 2024 | 84 | TOTAL: | $1780.82 | $1780.74 | $0.00 | $0.00 | $3561.56 | $0.00 |
|
| 2024 | 84 | $1780.82 | $1780.74 | $0.00 | $0.00 | $3561.56 | $0.00 |
Statement Details |
| 2023 | 84 | STATE - STATE LEVY (SCHOOL) | $460.74 | $460.74 | $0.00 | $0.00 | $921.48 | $0.00 |
| 2023 | 84 | COUNTY - COUNTY LEVIES (CE, DD, VET, MH) | $201.06 | $201.04 | $0.00 | $0.00 | $402.10 | $0.00 |
| 2023 | 84 | CONSERVE - CONSERVATION FUTURES | $6.03 | $6.03 | $0.00 | $0.00 | $12.06 | $0.00 |
| 2023 | 84 | CITYPT - CITY OF PT | $284.17 | $284.14 | $0.00 | $0.00 | $568.31 | $0.00 |
| 2023 | 84 | PORTPT - PORT DISTRICT | $84.70 | $84.69 | $0.00 | $0.00 | $169.39 | $0.00 |
| 2023 | 84 | PUD1 - PUD #1 | $13.33 | $13.32 | $0.00 | $0.00 | $26.65 | $0.00 |
| 2023 | 84 | HD2 - HOSP DIST #2 | $11.74 | $11.73 | $0.00 | $0.00 | $23.47 | $0.00 |
| 2023 | 84 | SD50 - SCHOOL DIST #50 | $365.61 | $365.60 | $0.00 | $0.00 | $731.21 | $0.00 |
| 2023 | 84 | FD1 - FIRE DISTRICT #1 | $165.63 | $165.63 | $0.00 | $0.00 | $331.26 | $0.00 |
| 2023 | 84 | EMS1 - FIRE DIST #1 EMS | $70.46 | $70.45 | $0.00 | $0.00 | $140.91 | $0.00 |
| 2023 | 84 | JCCD - JC Conservation District | $2.55 | $2.55 | $0.00 | $0.00 | $5.10 | $0.00 |
| 2023 | 84 | NWA - Noxious Weed Assessment | $2.15 | $2.15 | $0.00 | $0.00 | $4.30 | $0.00 |
| 2023 | 84 | TOTAL: | $1668.17 | $1668.07 | $0.00 | $0.00 | $3336.24 | $0.00 |
|
| 2023 | 84 | $1668.17 | $1668.07 | $0.00 | $0.00 | $3336.24 | $0.00 |
Values
| (+) Improvement Homesite Value: | + | $0 | |
| (+) Improvement Non-Homesite Value: | + | $352,262 | |
| (+) Land Homesite Value: | + | $0 | |
| (+) Land Non-Homesite Value: | + | $250,500 | |
| (+) Curr Use (HS): | + | $0 | $0 |
| (+) Curr Use (NHS): | + | $0 | $0 |
| | | -------------------------- | |
| (=) Market Value: | = | $602,762 | |
| (–) Productivity Loss: | – | $0 | |
| | | -------------------------- | |
| (=) Subtotal: | = | $602,762 | |
| (+) Senior Appraised Value: | + | $0 | |
| (+) Non-Senior Appraised Value: | + | $602,762 | |
| | | -------------------------- | |
| (=) Total Appraised Value: | = | $602,762 | |
| (–) Senior Exemption Loss: | – | $0 | |
| (–) Exemption Loss: | – | $0 | |
| | | -------------------------- | |
| (=) Taxable Value: | = | $602,762 | |
Taxing Jurisdiction
| Owner: | BOB A FRIEDMAN | | |
| % Ownership: | 100.0000000000% | | |
| Total Value: | $602,762 | | |
| Tax Area: | 0110 - C-50F1E1H2 |
| CE | COUNTY CURRENT EXPENSE | 0.9034619479 | $602,762 | $602,762 | $544.57 | | |
| CNTYDD | DEVELOPMENTAL DISABILITIES | 0.0052121823 | $602,762 | $602,762 | $3.14 | | |
| CNTYVET | VETERANS RELIEF | 0.0052777810 | $602,762 | $602,762 | $3.18 | | |
| MENTAL | MENTAL HEALTH | 0.0052121823 | $602,762 | $602,762 | $3.14 | | |
| PTGEN | CITY OF PT GENERAL | 0.8551967795 | $602,762 | $602,762 | $515.48 | | |
| PTLLL | CITY OF PT - LIBRARY LID LIFT | 0.4010114288 | $602,762 | $602,762 | $241.71 | | |
| PTMVBOND | CITY OF PT MV BOND | 0.0484717981 | $602,762 | $602,762 | $29.22 | | |
| HOSP2CASH | HOSP DIST #2 GENERAL | 0.0536075306 | $602,762 | $602,762 | $32.31 | | |
| SCH50BOND | SCHOOL DIST #50 BOND 2016 | 0.5377451389 | $602,762 | $602,762 | $324.13 | | |
| SCH50CP | SCHOOL DIST #50 CAP PROJ | 0.4573475088 | $602,762 | $602,762 | $275.67 | | |
| SCH50MO | SCHOOL DIST #50 EP & O | 0.8262822886 | $602,762 | $602,762 | $498.05 | | |
| CONSERVE | CONSERVATION FUTURES | 0.0275621078 | $602,762 | $602,762 | $16.61 | | |
| EMS1 | FIRE DIST #1 EMS | 0.4679948282 | $602,762 | $602,762 | $282.09 | | |
| FD1 | FIRE DIST #1 GENERAL | 1.2171942929 | $602,762 | $602,762 | $733.68 | | |
| PORTPT | PORT OF PT GENERAL | 0.1134941229 | $602,762 | $602,762 | $68.41 | | |
| PORTPTIDD | PORT OF PT IDD 2019 | 0.2577346692 | $602,762 | $602,762 | $155.35 | | |
| PUD1 | PUD #1 GENERAL | 0.0597888892 | $602,762 | $602,762 | $36.04 | | |
| STATE | STATE SCHOOL PART 1 | 1.4940692947 | $602,762 | $602,762 | $900.57 | | |
| STATE2 | STATE SCHOOL PART 2 | 0.8050170049 | $602,762 | $602,762 | $485.23 | | |
| | Total Tax Rate: | 8.5416817766 | | | | | |
| | | | | Taxes w/Current Exemptions: | $5,148.58 | | |
| | | | | Taxes w/o Exemptions: | $5,148.58 | | |
Improvement / Building
| Improvement #1: | Residential Bldg | State Code: | 11 | 1211.0 sqft | Value: | $352,262 |
| Bathrooms (#): | 2 (FULL) | Bedrooms (#): | 2 | | Exterior Wall: | SI/ST | Floor Construction: | FRAME | | Foundation: | CONBL | Heating/Cooling: | F/A | | Inside Verify: | YES-FIX | Roof Cover: | COMP |
|
| | Type | Description | Class CD | Sub Class CD | Year Built | Area |
| | MA | Main Area | 4+ | 1S | 1910 | 1211.0 |
| | HWPOR | House Wood Porch | 4 | * | 1910 | 28.0 |
| | HDECK | House Deck | 4 | * | 1910 | 225.0 |
| | GDET | Detached Garage | 4 | 1S | 1910 | 528.0 |
| | CONCD | Concrete Drive | 2 | * | 1910 | 200.0 |
Sketch
Property Image
Land
| 1 | 6360-1165L | | 0.0000 | 0.00 | 0.00 | 0.00 | 1.00 | $240,000 | $0 |
| 2 | 6360-1165L | | 0.0000 | 0.00 | 0.00 | 0.00 | 1.00 | $10,500 | $0 |
Roll Value History
| 2026 | N/A | N/A | N/A | N/A | N/A |
| 2025 | $352,262 | $250,500 | $0 | $602,762 | $602,762 |
| 2024 | $201,696 | $218,925 | $0 | $420,621 | $420,621 |
| 2023 | $192,927 | $203,500 | $0 | $396,427 | $396,427 |
| 2022 | $192,927 | $198,500 | $0 | $391,427 | $391,427 |
Deed and Sales History
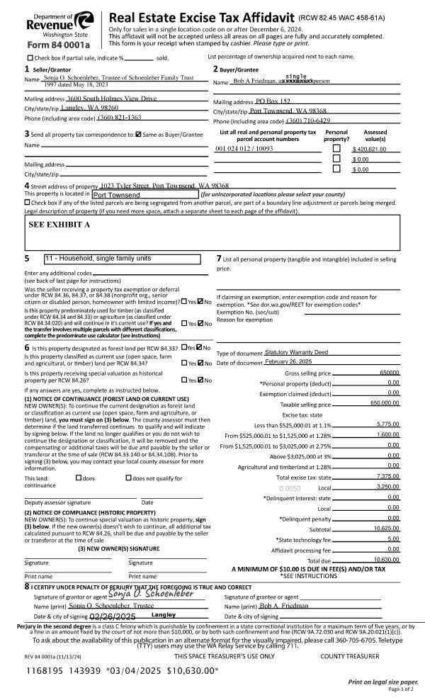
| 1 | 02/26/2025 | SWD | Statutory Warranty Deed | SCHOENLEBER FAMILY TRUST | BOB A FRIEDMAN | | | $650,000.00 | 143939 | |
| 2 | 12/13/1997 | MISC | MISC | SCHOENLEBER, CLINTON R/SO | SCHOENLEBER FAMILY TRUST | 0 | 0 | $0.00 | 83429 | 0 |
| 3 | 07/01/1997 | SWD | Statutory Warranty Deed | CRECCA, JOSEPH D | SCHOENLEBER, CLINTON R/SONJA O | 0 | 0 | $108,000.00 | 82243 | 0 |
| 4 | 12/06/1995 | SWD | Statutory Warranty Deed | EGGERT, LUCILLE E | CRECCA, JOSEPH D | 0 | 0 | $104,000.00 | 78466 | 0 |
Payout Agreement
| No payout information available.. |