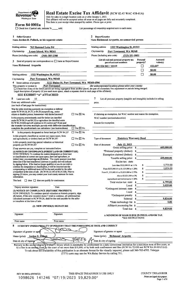
Property
Account |
| Property ID: | 10119 | Abbreviated Legal Description: | S2 T30 R1W TAX 75(E1/2) LS PTN TAX 179 ENLGD BY TAX 175 SUBJ/EASE V579/P268 |
| Parcel # / Geo ID: | 001024041 | Agent Code: | |
| Type: | Real | | |
| Tax Area: | 0110 - C-50F1E1H2 | Land Use Code | 11 |
| Open Space: | N | DFL | N |
| Historic Property: | N | Remodel Property: | N |
| Multi-Family Redevelopment: | N | | |
| Township: | 30N | Section: | 2 |
| Range: | 1W |
Location |
| Address: | 1222 BLAINE ST PORT TOWNSEND, WA 98368 | Mapsco: | 153/030 |
| Neighborhood: | BARTLETT,DENNYS,NOLTONS,LEARNEDS 1ST, POWER,WINSLOW & TX #'S | Map ID: | |
| Neighborhood CD: | 6360 |
Owner |
| Name: | RICHMOND ARQUETTE | Owner ID: | 109277 |
| Mailing Address: | 1222 BLAINE ST PORT TOWNSEND, WA 98368 | % Ownership: | 100.0000000000% |
| | | Exemptions: | |
Pay Tax Due
Select the appropriate checkbox next to the year to be paid. Multiple years may be selected.
*Convenience Fee not included
Taxes and Assessment Details
Property Tax Information as of
03/12/2026
Click on "Statement Details" to expand or collapse a tax statement.
* Please enter a valid date ** Please enter a valid date *
Statement Details |
| 2026 | 110 | STATE - STATE LEVY (SCHOOL) | $649.33 | $649.31 | $0.00 | $0.00 | $0.00 | $1298.64 |
| 2026 | 110 | COUNTY - COUNTY LEVIES (CE, DD, VET, MH) | $259.59 | $259.59 | $0.00 | $0.00 | $0.00 | $519.18 |
| 2026 | 110 | CONSERVE - CONSERVATION FUTURES | $7.79 | $7.78 | $0.00 | $0.00 | $0.00 | $15.57 |
| 2026 | 110 | CITYPT - CITY OF PT | $368.48 | $368.47 | $0.00 | $0.00 | $0.00 | $736.95 |
| 2026 | 110 | PORTPT - PORT DISTRICT | $104.85 | $104.84 | $0.00 | $0.00 | $0.00 | $209.69 |
| 2026 | 110 | PUD1 - PUD #1 | $16.89 | $16.88 | $0.00 | $0.00 | $0.00 | $33.77 |
| 2026 | 110 | HD2 - HOSP DIST #2 | $15.14 | $15.14 | $0.00 | $0.00 | $0.00 | $30.28 |
| 2026 | 110 | SD50 - SCHOOL DIST #50 | $514.42 | $514.39 | $0.00 | $0.00 | $0.00 | $1028.81 |
| 2026 | 110 | FD1 - FIRE DISTRICT #1 | $343.77 | $343.76 | $0.00 | $0.00 | $0.00 | $687.53 |
| 2026 | 110 | EMS1 - FIRE DIST #1 EMS | $132.18 | $132.17 | $0.00 | $0.00 | $0.00 | $264.35 |
| 2026 | 110 | JCCD - JC Conservation District | $2.55 | $2.55 | $0.00 | $0.00 | $0.00 | $5.10 |
| 2026 | 110 | NWA - Noxious Weed Assessment | $2.98 | $2.97 | $0.00 | $0.00 | $0.00 | $5.95 |
| 2026 | 110 | TOTAL: | $2417.97 | $2417.85 | $0.00 | $0.00 | $0.00 | $4835.82 |
|
| 2026 | 110 | $2417.97 | $2417.85 | $0.00 | $0.00 | $0.00 | $4835.82 |
Statement Details |
| 2025 | 110 | STATE - STATE LEVY (SCHOOL) | $621.39 | $621.38 | $0.00 | $0.00 | $1242.77 | $0.00 |
| 2025 | 110 | COUNTY - COUNTY LEVIES (CE, DD, VET, MH) | $244.35 | $244.35 | $0.00 | $0.00 | $488.70 | $0.00 |
| 2025 | 110 | CONSERVE - CONSERVATION FUTURES | $7.33 | $7.32 | $0.00 | $0.00 | $14.65 | $0.00 |
| 2025 | 110 | CITYPT - CITY OF PT | $352.39 | $352.39 | $0.00 | $0.00 | $704.78 | $0.00 |
| 2025 | 110 | PORTPT - PORT DISTRICT | $99.71 | $99.71 | $0.00 | $0.00 | $199.42 | $0.00 |
| 2025 | 110 | PUD1 - PUD #1 | $15.99 | $15.99 | $0.00 | $0.00 | $31.98 | $0.00 |
| 2025 | 110 | HD2 - HOSP DIST #2 | $14.26 | $14.25 | $0.00 | $0.00 | $28.51 | $0.00 |
| 2025 | 110 | SD50 - SCHOOL DIST #50 | $454.14 | $454.12 | $0.00 | $0.00 | $908.26 | $0.00 |
| 2025 | 110 | FD1 - FIRE DISTRICT #1 | $322.46 | $322.45 | $0.00 | $0.00 | $644.91 | $0.00 |
| 2025 | 110 | EMS1 - FIRE DIST #1 EMS | $124.03 | $124.02 | $0.00 | $0.00 | $248.05 | $0.00 |
| 2025 | 110 | JCCD - JC Conservation District | $2.55 | $2.55 | $0.00 | $0.00 | $5.10 | $0.00 |
| 2025 | 110 | NWA - Noxious Weed Assessment | $2.15 | $2.15 | $0.00 | $0.00 | $4.30 | $0.00 |
| 2025 | 110 | TOTAL: | $2260.75 | $2260.68 | $0.00 | $0.00 | $4521.43 | $0.00 |
|
| 2025 | 110 | $2260.75 | $2260.68 | $0.00 | $0.00 | $4521.43 | $0.00 |
Statement Details |
| 2024 | 110 | STATE - STATE LEVY (SCHOOL) | $494.70 | $494.70 | $0.00 | $0.00 | $989.40 | $0.00 |
| 2024 | 110 | COUNTY - COUNTY LEVIES (CE, DD, VET, MH) | $211.70 | $211.67 | $0.00 | $0.00 | $423.37 | $0.00 |
| 2024 | 110 | CONSERVE - CONSERVATION FUTURES | $6.35 | $6.35 | $0.00 | $0.00 | $12.70 | $0.00 |
| 2024 | 110 | CITYPT - CITY OF PT | $302.48 | $302.46 | $0.00 | $0.00 | $604.94 | $0.00 |
| 2024 | 110 | PORTPT - PORT DISTRICT | $87.44 | $87.44 | $0.00 | $0.00 | $174.88 | $0.00 |
| 2024 | 110 | PUD1 - PUD #1 | $13.91 | $13.90 | $0.00 | $0.00 | $27.81 | $0.00 |
| 2024 | 110 | HD2 - HOSP DIST #2 | $12.35 | $12.35 | $0.00 | $0.00 | $24.70 | $0.00 |
| 2024 | 110 | SD50 - SCHOOL DIST #50 | $400.24 | $400.23 | $0.00 | $0.00 | $800.47 | $0.00 |
| 2024 | 110 | FD1 - FIRE DISTRICT #1 | $279.90 | $279.90 | $0.00 | $0.00 | $559.80 | $0.00 |
| 2024 | 110 | EMS1 - FIRE DIST #1 EMS | $106.91 | $106.91 | $0.00 | $0.00 | $213.82 | $0.00 |
| 2024 | 110 | JCCD - JC Conservation District | $2.55 | $2.55 | $0.00 | $0.00 | $5.10 | $0.00 |
| 2024 | 110 | NWA - Noxious Weed Assessment | $2.15 | $2.15 | $0.00 | $0.00 | $4.30 | $0.00 |
| 2024 | 110 | TOTAL: | $1920.68 | $1920.61 | $0.00 | $0.00 | $3841.29 | $0.00 |
|
| 2024 | 110 | $1920.68 | $1920.61 | $0.00 | $0.00 | $3841.29 | $0.00 |
Statement Details |
| 2023 | 110 | STATE - STATE LEVY (SCHOOL) | $497.50 | $497.48 | $0.00 | $0.00 | $994.98 | $0.00 |
| 2023 | 110 | COUNTY - COUNTY LEVIES (CE, DD, VET, MH) | $217.09 | $217.08 | $0.00 | $0.00 | $434.17 | $0.00 |
| 2023 | 110 | CONSERVE - CONSERVATION FUTURES | $6.51 | $6.51 | $0.00 | $0.00 | $13.02 | $0.00 |
| 2023 | 110 | CITYPT - CITY OF PT | $306.83 | $306.81 | $0.00 | $0.00 | $613.64 | $0.00 |
| 2023 | 110 | PORTPT - PORT DISTRICT | $91.46 | $91.44 | $0.00 | $0.00 | $182.90 | $0.00 |
| 2023 | 110 | PUD1 - PUD #1 | $14.39 | $14.39 | $0.00 | $0.00 | $28.78 | $0.00 |
| 2023 | 110 | HD2 - HOSP DIST #2 | $12.68 | $12.66 | $0.00 | $0.00 | $25.34 | $0.00 |
| 2023 | 110 | SD50 - SCHOOL DIST #50 | $394.78 | $394.76 | $0.00 | $0.00 | $789.54 | $0.00 |
| 2023 | 110 | FD1 - FIRE DISTRICT #1 | $178.84 | $178.84 | $0.00 | $0.00 | $357.68 | $0.00 |
| 2023 | 110 | EMS1 - FIRE DIST #1 EMS | $76.08 | $76.07 | $0.00 | $0.00 | $152.15 | $0.00 |
| 2023 | 110 | JCCD - JC Conservation District | $2.55 | $2.55 | $0.00 | $0.00 | $5.10 | $0.00 |
| 2023 | 110 | NWA - Noxious Weed Assessment | $2.15 | $2.15 | $0.00 | $0.00 | $4.30 | $0.00 |
| 2023 | 110 | TOTAL: | $1800.86 | $1800.74 | $0.00 | $0.00 | $3601.60 | $0.00 |
|
| 2023 | 110 | $1800.86 | $1800.74 | $0.00 | $0.00 | $3601.60 | $0.00 |
Values
| (+) Improvement Homesite Value: | + | $0 | |
| (+) Improvement Non-Homesite Value: | + | $345,850 | |
| (+) Land Homesite Value: | + | $0 | |
| (+) Land Non-Homesite Value: | + | $219,000 | |
| (+) Curr Use (HS): | + | $0 | $0 |
| (+) Curr Use (NHS): | + | $0 | $0 |
| | | -------------------------- | |
| (=) Market Value: | = | $564,850 | |
| (–) Productivity Loss: | – | $0 | |
| | | -------------------------- | |
| (=) Subtotal: | = | $564,850 | |
| (+) Senior Appraised Value: | + | $0 | |
| (+) Non-Senior Appraised Value: | + | $564,850 | |
| | | -------------------------- | |
| (=) Total Appraised Value: | = | $564,850 | |
| (–) Senior Exemption Loss: | – | $0 | |
| (–) Exemption Loss: | – | $0 | |
| | | -------------------------- | |
| (=) Taxable Value: | = | $564,850 | |
Taxing Jurisdiction
| Owner: | RICHMOND ARQUETTE | | |
| % Ownership: | 100.0000000000% | | |
| Total Value: | $564,850 | | |
| Tax Area: | 0110 - C-50F1E1H2 |
| CE | COUNTY CURRENT EXPENSE | 0.9034619479 | $564,850 | $564,850 | $510.32 | | |
| CNTYDD | DEVELOPMENTAL DISABILITIES | 0.0052121823 | $564,850 | $564,850 | $2.94 | | |
| CNTYVET | VETERANS RELIEF | 0.0052777810 | $564,850 | $564,850 | $2.98 | | |
| MENTAL | MENTAL HEALTH | 0.0052121823 | $564,850 | $564,850 | $2.94 | | |
| PTGEN | CITY OF PT GENERAL | 0.8551967795 | $564,850 | $564,850 | $483.06 | | |
| PTLLL | CITY OF PT - LIBRARY LID LIFT | 0.4010114288 | $564,850 | $564,850 | $226.51 | | |
| PTMVBOND | CITY OF PT MV BOND | 0.0484717981 | $564,850 | $564,850 | $27.38 | | |
| HOSP2CASH | HOSP DIST #2 GENERAL | 0.0536075306 | $564,850 | $564,850 | $30.28 | | |
| SCH50BOND | SCHOOL DIST #50 BOND 2016 | 0.5377451389 | $564,850 | $564,850 | $303.75 | | |
| SCH50CP | SCHOOL DIST #50 CAP PROJ | 0.4573475088 | $564,850 | $564,850 | $258.33 | | |
| SCH50MO | SCHOOL DIST #50 EP & O | 0.8262822886 | $564,850 | $564,850 | $466.73 | | |
| CONSERVE | CONSERVATION FUTURES | 0.0275621078 | $564,850 | $564,850 | $15.57 | | |
| EMS1 | FIRE DIST #1 EMS | 0.4679948282 | $564,850 | $564,850 | $264.35 | | |
| FD1 | FIRE DIST #1 GENERAL | 1.2171942929 | $564,850 | $564,850 | $687.53 | | |
| PORTPT | PORT OF PT GENERAL | 0.1134941229 | $564,850 | $564,850 | $64.11 | | |
| PORTPTIDD | PORT OF PT IDD 2019 | 0.2577346692 | $564,850 | $564,850 | $145.58 | | |
| PUD1 | PUD #1 GENERAL | 0.0597888892 | $564,850 | $564,850 | $33.77 | | |
| STATE | STATE SCHOOL PART 1 | 1.4940692947 | $564,850 | $564,850 | $843.93 | | |
| STATE2 | STATE SCHOOL PART 2 | 0.8050170049 | $564,850 | $564,850 | $454.71 | | |
| | Total Tax Rate: | 8.5416817766 | | | | | |
| | | | | Taxes w/Current Exemptions: | $4,824.77 | | |
| | | | | Taxes w/o Exemptions: | $4,824.77 | | |
Improvement / Building
| Improvement #1: | Residential Bldg | State Code: | 11 | 975.0 sqft | Value: | $345,850 |
| Bathrooms (#): | 1 (FULL) | Bedrooms (#): | 2 | | Exterior Wall: | SI/ST | Fireplace: | WD ST-GOOD | | Floor Construction: | FRAME | Foundation: | PO&BL | | Heating/Cooling: | ELBB | Roof Cover: | COMP |
|
| | Type | Description | Class CD | Sub Class CD | Year Built | Area |
| | MA | Main Area | 5 | 1S | 1920 | 975.0 |
| | HWPOR | House Wood Porch | 5 | * | 1920 | 32.0 |
| | HDECK | House Deck | 5 | * | 1920 | 232.0 |
| | GDET | Detached Garage | 1 | * | 1920 | 384.0 |
| | BSMTU | House basement unfinished | 2 | * | 1920 | 300.0 |
| | HATTIC | House Attic | 4 | * | 1920 | 180.0 |
| | SHED | Shed (Table Not Dep) | 1 | * | 1920 | 36.0 |
Sketch
| No sketches available for this property. |
Property Image
Land
| 1 | 6360-1165L | | 0.0000 | 0.00 | 0.00 | 0.00 | 1.00 | $219,000 | $0 |
Roll Value History
| 2026 | N/A | N/A | N/A | N/A | N/A |
| 2025 | $345,850 | $219,000 | $0 | $564,850 | $564,850 |
| 2024 | $297,747 | $220,500 | $0 | $518,247 | $518,247 |
| 2023 | $222,647 | $205,000 | $0 | $427,647 | $427,647 |
| 2022 | $222,647 | $200,000 | $0 | $422,647 | $422,647 |
Deed and Sales History
| 1 | 07/12/2023 | SWD | Statutory Warranty Deed | JORDAN D POLLACK | RICHMOND ARQUETTE | | | $605,000.00 | 141246 | |
| 2 | 03/21/2001 | SWD | Statutory Warranty Deed | URNER LIPPINCOTT, DOUGLAS | POLLACK, JORDAN D | 0 | 0 | $130,000.00 | 91876 | 0 |
| 3 | 11/27/2000 | QCD | Quit Claim Deed | URNER, ELIZABETH VAUGHN | URNER, DOUGLAS LIPPINCOTT | 0 | 0 | $0.00 | 91058 | 0 |
| 4 | 07/08/1998 | SWD | Statutory Warranty Deed | POLLACK, JORDAN D | URNER, DOUGLAS L/ELIZABETH V | 0 | 0 | $110,000.00 | 85151 | 0 |
| 5 | 08/11/1995 | QCD | Quit Claim Deed | MADDEN, JAMES M/CYNTHIA D | POLLACK, JORDAN D | 0 | 0 | $0.00 | 77600 | 0 |
| 6 | 04/12/1993 | QCD | Quit Claim Deed | MADDEN/FORCE/KOONS | MADDEN/FORCE/KOONS | 0 | 0 | $0.00 | 71137 | 0 |
| 7 | 03/17/1993 | SWD | Statutory Warranty Deed | MADDEN, JAMES M/CYNTHIA D | POLLACK, JORDAN D | 0 | 0 | $74,500.00 | 70790 | 0 |
Payout Agreement
| No payout information available.. |