| 1 | 10/02/2017 | QCD | Quit Claim Deed | | | | | | 128687 | |
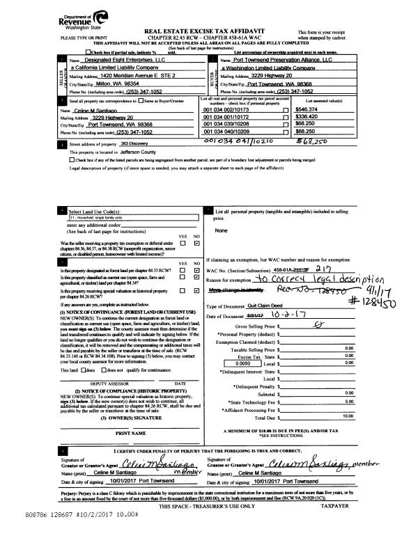
| 2 | 08/31/2017 | QCD | Quit Claim Deed | DESIGNATED EIGHT ENTERPRISES LLC | PORT TOWNSEND PRESERVATION ALLIANCE LLC | | | | 128450 | |
| 3 | 07/07/2017 | SWD | Statutory Warranty Deed | KATHRYN E MADONO | DESIGNATED EIGHT ENTERPRISES LLC | | | $1,600,000.00 | 128157 | |
|   | |
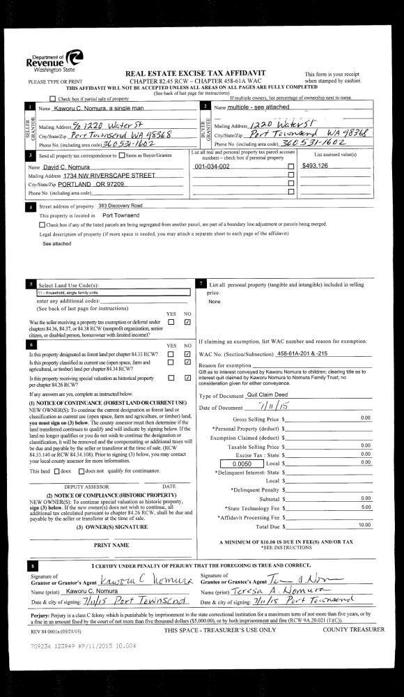
| 4 | 07/11/2015 | QCD | Quit Claim Deed | | | | | | 123949 | |
| 5 | 01/26/2012 | WD | Warranty Deed | NOMURA, LOUIS MIYELO TAKE | NOMURA, KAWORU CARL | 0 | 0 | $0.00 | 117071 | 0 |
| 6 | 12/31/2003 | QCD | Quit Claim Deed | NOMURA, KAWORU CARL | NOMURA, TERESA/JOHN/DAVID/VEDA | 0 | 0 | $0.00 | 99182 | 0 |
| 7 | 12/17/2002 | QCD | Quit Claim Deed | NOMURA, JOHN M, WEN-SHAME | CITY OF PORT TOWNSEND | 0 | 0 | $0.00 | 96271 | 0 |
| 8 | 12/17/2002 | QCD | Quit Claim Deed | NOMURA, DAVID C/VEDA L | CITY OF PORT TOWNSEND | 0 | 0 | $0.00 | 96275 | 0 |
| 9 | 12/16/2002 | QCD | Quit Claim Deed | MADONO, KATHRYN E/MASAKI | CITY OF PORT TOWNSEND | 0 | 0 | $0.00 | 96274 | 0 |
| 10 | 12/13/2002 | QCD | Quit Claim Deed | KAWORU CARL NOMURA, PR OF | CITY OF PORT TOWNSEND | 0 | 0 | $0.00 | 96270 | 0 |
| 11 | 12/13/2002 | QCD | Quit Claim Deed | NOMURA, TERESA A, BOWEN, | CITY OF PORT TOWNSEND | 0 | 0 | $0.00 | 96272 | 0 |
| 12 | 12/13/2002 | QCD | Quit Claim Deed | NOMURA, TERESA A, TRUSTEE | CITY OF PORT TOWNSEND | 0 | 0 | $0.00 | 96273 | 0 |
| 13 | 12/13/2002 | QCD | Quit Claim Deed | NOMURA, JOHN M, WEN-SHANE | CITY OF PORT TOWNSEDN | 0 | 0 | $0.00 | 96276 | 0 |
| 14 | 12/13/2002 | SWD | Statutory Warranty Deed | NOMURA, KAWORU CARL/TERES | CITY OF PORT TOWNSEND | 0 | 0 | $0.00 | 96277 | 0 |
| 15 | 12/27/2001 | QCD | Quit Claim Deed | NOMURA, KIAWORU CARL | NOMURA, TERESA A ET AL, MADONO | 0 | 0 | $0.00 | 93747 | 0 |
| 16 | 12/13/2000 | QCD | Quit Claim Deed | NOMURA, KAWORU CARL | NOMURA ET AL, TERESA | 0 | 0 | $0.00 | 91328 | 0 |
| 17 | 05/22/1998 | WD | Warranty Deed | NOMURA, LOUISE MIYELO T/E | NOMURA FAMILY TRUST | 0 | 0 | $0.00 | 84473 | 0 |