Property
Account |
| Property ID: | 10176 | Abbreviated Legal Description: | S3 T30 R1W TAX 92 BND TGTH THRU LLA#102791 TGTHR/SEWER EASE #507432 |
| Parcel # / Geo ID: | 001034005 | Agent Code: | |
| Type: | Real | | |
| Tax Area: | 0110 - C-50F1E1H2 | Land Use Code | 11 |
| Open Space: | N | DFL | N |
| Historic Property: | N | Remodel Property: | N |
| Multi-Family Redevelopment: | N | | |
| Township: | 30N | Section: | 3 |
| Range: | 1W |
Location |
| Address: | 411 DISCOVERY RD PORT TOWNSEND, WA 98368 | Mapsco: | 155/054 |
| Neighborhood: | COLUMBIA//HUSSEY/WEYMOUNT-DYER/WOODLAND LP-ACREAGE; CEMETERY | Map ID: | |
| Neighborhood CD: | 6120 |
Owner |
| Name: | BRIAN ROGERS & SHERRY MODROW | Owner ID: | 95593 |
| Mailing Address: | 411 DISCOVERY RD PORT TOWNSEND, WA 98368 | % Ownership: | 100.0000000000% |
| | | Exemptions: | |
Pay Tax Due
Select the appropriate checkbox next to the year to be paid. Multiple years may be selected.
*Convenience Fee not included
Taxes and Assessment Details
Property Tax Information as of
03/10/2026
Click on "Statement Details" to expand or collapse a tax statement.
* Please enter a valid date ** Please enter a valid date *
Statement Details |
| 2026 | 164 | STATE - STATE LEVY (SCHOOL) | $721.24 | $721.24 | $0.00 | $0.00 | $0.00 | $1442.48 |
| 2026 | 164 | COUNTY - COUNTY LEVIES (CE, DD, VET, MH) | $288.36 | $288.33 | $0.00 | $0.00 | $0.00 | $576.69 |
| 2026 | 164 | CONSERVE - CONSERVATION FUTURES | $8.65 | $8.64 | $0.00 | $0.00 | $0.00 | $17.29 |
| 2026 | 164 | CITYPT - CITY OF PT | $409.29 | $409.28 | $0.00 | $0.00 | $0.00 | $818.57 |
| 2026 | 164 | PORTPT - PORT DISTRICT | $116.47 | $116.45 | $0.00 | $0.00 | $0.00 | $232.92 |
| 2026 | 164 | PUD1 - PUD #1 | $18.76 | $18.75 | $0.00 | $0.00 | $0.00 | $37.51 |
| 2026 | 164 | HD2 - HOSP DIST #2 | $16.82 | $16.81 | $0.00 | $0.00 | $0.00 | $33.63 |
| 2026 | 164 | SD50 - SCHOOL DIST #50 | $571.39 | $571.37 | $0.00 | $0.00 | $0.00 | $1142.76 |
| 2026 | 164 | FD1 - FIRE DISTRICT #1 | $381.84 | $381.84 | $0.00 | $0.00 | $0.00 | $763.68 |
| 2026 | 164 | EMS1 - FIRE DIST #1 EMS | $146.82 | $146.81 | $0.00 | $0.00 | $0.00 | $293.63 |
| 2026 | 164 | JCCD - JC Conservation District | $2.55 | $2.55 | $0.00 | $0.00 | $0.00 | $5.10 |
| 2026 | 164 | NWA - Noxious Weed Assessment | $2.98 | $2.97 | $0.00 | $0.00 | $0.00 | $5.95 |
| 2026 | 164 | TOTAL: | $2685.17 | $2685.04 | $0.00 | $0.00 | $0.00 | $5370.21 |
|
| 2026 | 164 | $2685.17 | $2685.04 | $0.00 | $0.00 | $0.00 | $5370.21 |
Statement Details |
| 2025 | 164 | STATE - STATE LEVY (SCHOOL) | $751.65 | $751.64 | $0.00 | $0.00 | $1503.29 | $0.00 |
| 2025 | 164 | COUNTY - COUNTY LEVIES (CE, DD, VET, MH) | $295.58 | $295.57 | $0.00 | $0.00 | $591.15 | $0.00 |
| 2025 | 164 | CONSERVE - CONSERVATION FUTURES | $8.87 | $8.86 | $0.00 | $0.00 | $17.73 | $0.00 |
| 2025 | 164 | CITYPT - CITY OF PT | $426.26 | $426.25 | $0.00 | $0.00 | $852.51 | $0.00 |
| 2025 | 164 | PORTPT - PORT DISTRICT | $120.62 | $120.60 | $0.00 | $0.00 | $241.22 | $0.00 |
| 2025 | 164 | PUD1 - PUD #1 | $19.34 | $19.34 | $0.00 | $0.00 | $38.68 | $0.00 |
| 2025 | 164 | HD2 - HOSP DIST #2 | $17.25 | $17.24 | $0.00 | $0.00 | $34.49 | $0.00 |
| 2025 | 164 | SD50 - SCHOOL DIST #50 | $549.33 | $549.32 | $0.00 | $0.00 | $1098.65 | $0.00 |
| 2025 | 164 | FD1 - FIRE DISTRICT #1 | $390.05 | $390.05 | $0.00 | $0.00 | $780.10 | $0.00 |
| 2025 | 164 | EMS1 - FIRE DIST #1 EMS | $150.03 | $150.02 | $0.00 | $0.00 | $300.05 | $0.00 |
| 2025 | 164 | JCCD - JC Conservation District | $2.55 | $2.55 | $0.00 | $0.00 | $5.10 | $0.00 |
| 2025 | 164 | NWA - Noxious Weed Assessment | $2.15 | $2.15 | $0.00 | $0.00 | $4.30 | $0.00 |
| 2025 | 164 | TOTAL: | $2733.68 | $2733.59 | $0.00 | $0.00 | $5467.27 | $0.00 |
|
| 2025 | 164 | $2733.68 | $2733.59 | $0.00 | $0.00 | $5467.27 | $0.00 |
Statement Details |
| 2024 | 164 | STATE - STATE LEVY (SCHOOL) | $719.11 | $719.11 | $0.00 | $0.00 | $1438.22 | $0.00 |
| 2024 | 164 | COUNTY - COUNTY LEVIES (CE, DD, VET, MH) | $307.72 | $307.70 | $0.00 | $0.00 | $615.42 | $0.00 |
| 2024 | 164 | CONSERVE - CONSERVATION FUTURES | $9.23 | $9.22 | $0.00 | $0.00 | $18.45 | $0.00 |
| 2024 | 164 | CITYPT - CITY OF PT | $439.68 | $439.68 | $0.00 | $0.00 | $879.36 | $0.00 |
| 2024 | 164 | PORTPT - PORT DISTRICT | $127.11 | $127.09 | $0.00 | $0.00 | $254.20 | $0.00 |
| 2024 | 164 | PUD1 - PUD #1 | $20.21 | $20.21 | $0.00 | $0.00 | $40.42 | $0.00 |
| 2024 | 164 | HD2 - HOSP DIST #2 | $17.96 | $17.95 | $0.00 | $0.00 | $35.91 | $0.00 |
| 2024 | 164 | SD50 - SCHOOL DIST #50 | $581.80 | $581.78 | $0.00 | $0.00 | $1163.58 | $0.00 |
| 2024 | 164 | FD1 - FIRE DISTRICT #1 | $406.87 | $406.87 | $0.00 | $0.00 | $813.74 | $0.00 |
| 2024 | 164 | EMS1 - FIRE DIST #1 EMS | $155.41 | $155.41 | $0.00 | $0.00 | $310.82 | $0.00 |
| 2024 | 164 | JCCD - JC Conservation District | $2.55 | $2.55 | $0.00 | $0.00 | $5.10 | $0.00 |
| 2024 | 164 | NWA - Noxious Weed Assessment | $2.15 | $2.15 | $0.00 | $0.00 | $4.30 | $0.00 |
| 2024 | 164 | TOTAL: | $2789.80 | $2789.72 | $0.00 | $0.00 | $5579.52 | $0.00 |
|
| 2024 | 164 | $2789.80 | $2789.72 | $0.00 | $0.00 | $5579.52 | $0.00 |
Statement Details |
| 2023 | 164 | STATE - STATE LEVY (SCHOOL) | $671.92 | $671.91 | $0.00 | $0.00 | $1343.83 | $0.00 |
| 2023 | 164 | COUNTY - COUNTY LEVIES (CE, DD, VET, MH) | $293.22 | $293.19 | $0.00 | $0.00 | $586.41 | $0.00 |
| 2023 | 164 | CONSERVE - CONSERVATION FUTURES | $8.79 | $8.79 | $0.00 | $0.00 | $17.58 | $0.00 |
| 2023 | 164 | CITYPT - CITY OF PT | $414.40 | $414.39 | $0.00 | $0.00 | $828.79 | $0.00 |
| 2023 | 164 | PORTPT - PORT DISTRICT | $123.52 | $123.51 | $0.00 | $0.00 | $247.03 | $0.00 |
| 2023 | 164 | PUD1 - PUD #1 | $19.44 | $19.43 | $0.00 | $0.00 | $38.87 | $0.00 |
| 2023 | 164 | HD2 - HOSP DIST #2 | $17.11 | $17.11 | $0.00 | $0.00 | $34.22 | $0.00 |
| 2023 | 164 | SD50 - SCHOOL DIST #50 | $533.19 | $533.17 | $0.00 | $0.00 | $1066.36 | $0.00 |
| 2023 | 164 | FD1 - FIRE DISTRICT #1 | $241.54 | $241.54 | $0.00 | $0.00 | $483.08 | $0.00 |
| 2023 | 164 | EMS1 - FIRE DIST #1 EMS | $102.75 | $102.74 | $0.00 | $0.00 | $205.49 | $0.00 |
| 2023 | 164 | JCCD - JC Conservation District | $2.55 | $2.55 | $0.00 | $0.00 | $5.10 | $0.00 |
| 2023 | 164 | NWA - Noxious Weed Assessment | $2.15 | $2.15 | $0.00 | $0.00 | $4.30 | $0.00 |
| 2023 | 164 | TOTAL: | $2430.58 | $2430.48 | $0.00 | $0.00 | $4861.06 | $0.00 |
|
| 2023 | 164 | $2430.58 | $2430.48 | $0.00 | $0.00 | $4861.06 | $0.00 |
Values
| (+) Improvement Homesite Value: | + | $66,338 | |
| (+) Improvement Non-Homesite Value: | + | $386,075 | |
| (+) Land Homesite Value: | + | $0 | |
| (+) Land Non-Homesite Value: | + | $175,000 | |
| (+) Curr Use (HS): | + | $0 | $0 |
| (+) Curr Use (NHS): | + | $0 | $0 |
| | | -------------------------- | |
| (=) Market Value: | = | $627,413 | |
| (–) Productivity Loss: | – | $0 | |
| | | -------------------------- | |
| (=) Subtotal: | = | $627,413 | |
| (+) Senior Appraised Value: | + | $0 | |
| (+) Non-Senior Appraised Value: | + | $627,413 | |
| | | -------------------------- | |
| (=) Total Appraised Value: | = | $627,413 | |
| (–) Senior Exemption Loss: | – | $0 | |
| (–) Exemption Loss: | – | $0 | |
| | | -------------------------- | |
| (=) Taxable Value: | = | $627,413 | |
Taxing Jurisdiction
| Owner: | BRIAN ROGERS & SHERRY MODROW | | |
| % Ownership: | 100.0000000000% | | |
| Total Value: | $627,413 | | |
| Tax Area: | 0110 - C-50F1E1H2 |
| CE | COUNTY CURRENT EXPENSE | 0.9034619479 | $627,413 | $627,413 | $566.84 | | |
| CNTYDD | DEVELOPMENTAL DISABILITIES | 0.0052121823 | $627,413 | $627,413 | $3.27 | | |
| CNTYVET | VETERANS RELIEF | 0.0052777810 | $627,413 | $627,413 | $3.31 | | |
| MENTAL | MENTAL HEALTH | 0.0052121823 | $627,413 | $627,413 | $3.27 | | |
| PTGEN | CITY OF PT GENERAL | 0.8551967795 | $627,413 | $627,413 | $536.56 | | |
| PTLLL | CITY OF PT - LIBRARY LID LIFT | 0.4010114288 | $627,413 | $627,413 | $251.60 | | |
| PTMVBOND | CITY OF PT MV BOND | 0.0484717981 | $627,413 | $627,413 | $30.41 | | |
| HOSP2CASH | HOSP DIST #2 GENERAL | 0.0536075306 | $627,413 | $627,413 | $33.63 | | |
| SCH50BOND | SCHOOL DIST #50 BOND 2016 | 0.5377451389 | $627,413 | $627,413 | $337.39 | | |
| SCH50CP | SCHOOL DIST #50 CAP PROJ | 0.4573475088 | $627,413 | $627,413 | $286.95 | | |
| SCH50MO | SCHOOL DIST #50 EP & O | 0.8262822886 | $627,413 | $627,413 | $518.42 | | |
| CONSERVE | CONSERVATION FUTURES | 0.0275621078 | $627,413 | $627,413 | $17.29 | | |
| EMS1 | FIRE DIST #1 EMS | 0.4679948282 | $627,413 | $627,413 | $293.63 | | |
| FD1 | FIRE DIST #1 GENERAL | 1.2171942929 | $627,413 | $627,413 | $763.68 | | |
| PORTPT | PORT OF PT GENERAL | 0.1134941229 | $627,413 | $627,413 | $71.21 | | |
| PORTPTIDD | PORT OF PT IDD 2019 | 0.2577346692 | $627,413 | $627,413 | $161.71 | | |
| PUD1 | PUD #1 GENERAL | 0.0597888892 | $627,413 | $627,413 | $37.51 | | |
| STATE | STATE SCHOOL PART 1 | 1.4940692947 | $627,413 | $627,413 | $937.40 | | |
| STATE2 | STATE SCHOOL PART 2 | 0.8050170049 | $627,413 | $627,413 | $505.08 | | |
| | Total Tax Rate: | 8.5416817766 | | | | | |
| | | | | Taxes w/Current Exemptions: | $5,359.16 | | |
| | | | | Taxes w/o Exemptions: | $5,359.16 | | |
Improvement / Building
| Improvement #1: | Residential Bldg | State Code: | 11 | 1566.0 sqft | Value: | $386,075 |
| Bathrooms (#): | 1 (HALF) | Bathrooms (#): | 1 (FULL) | | Bedrooms (#): | 3 | Exterior Wall: | SI/ST | | Floor Construction: | FRAME | Foundation: | PO&BL | | Heating/Cooling: | F/A | Roof Cover: | COMP |
|
| | Type | Description | Class CD | Sub Class CD | Year Built | Area |
| | MA | Main Area | 4- | 1S | 1910 | 1566.0 |
| | HENCL | House Enclosure | 3 | * | 1910 | 290.0 |
| | HCPOR | House Concrete Porch | 3 | * | 1910 | 52.0 |
| | ADDN | Addition (Table Not Dep) | 4 | * | 1910 | 544.0 |
| | HATTIC | House Attic | 3 | * | 1910 | 75.0 |
| | SOLAR | Solar Panel | 3 | * | 1910 | 0.0 |
| Improvement #2: | Residential Bldg | State Code: | 11 | 0.0 sqft | Value: | $66,338 |
Sketch
Property Image
Land
| 1 | 6120-1375S | | 0.0000 | 0.00 | 0.00 | 0.00 | 1.00 | $175,000 | $0 |
Roll Value History
| 2026 | N/A | N/A | N/A | N/A | N/A |
| 2025 | $452,413 | $175,000 | $0 | $627,413 | $627,413 |
| 2024 | $453,637 | $173,250 | $0 | $626,887 | $626,887 |
| 2023 | $453,637 | $168,000 | $0 | $621,637 | $621,637 |
| 2022 | $415,834 | $155,000 | $0 | $570,834 | $570,834 |
Deed and Sales History
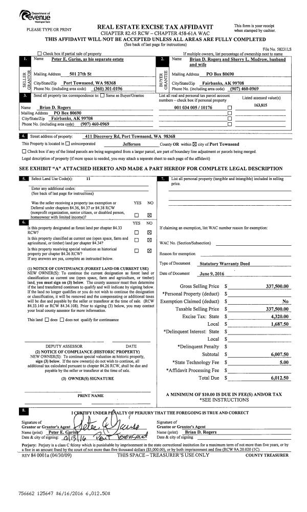
| 1 | 06/09/2016 | SWD | Statutory Warranty Deed | PETER E GARISS | BRIAN ROGERS & SHERRY MODROW | | | $337,500.00 | 125647 | |
| 2 | 12/02/2008 | SWD | Statutory Warranty Deed | GARISS, WILLARD J JR | GARISS, PETER E | 0 | 0 | $200,000.00 | 112247 | 0 |
| 3 | 12/01/2008 | QCD | Quit Claim Deed | GARRIS, PETER TRUSTEE | GARRIS, WILLARD J JR | 0 | 0 | $0.00 | 112285 | 0 |
| 4 | 10/31/2008 | QCD | Quit Claim Deed | GARISS, WILLARD J /LORRAI | GARISS, JR, WILLARD J | 0 | 0 | $0.00 | 112145 | 0 |
| 5 | 11/08/1994 | QCD | Quit Claim Deed | GARISS, WILLARD & LORRAIN | GARISS, WILLARD & LORRAINE/TR | 0 | 0 | $0.00 | 75548 | 0 |
Payout Agreement
| No payout information available.. |