Property
Account |
| Property ID: | 10199 | Abbreviated Legal Description: | S3 T30 R1W TAX 55 |
| Parcel # / Geo ID: | 001034029 | Agent Code: | |
| Type: | Real | | |
| Tax Area: | 0110 - C-50F1E1H2 | Land Use Code | 11 |
| Open Space: | N | DFL | N |
| Historic Property: | N | Remodel Property: | N |
| Multi-Family Redevelopment: | N | | |
| Township: | 30N | Section: | 3 |
| Range: | 1W |
Location |
| Address: | 2911 HAINES ST PORT TOWNSEND, WA 98368 | Mapsco: | 155/047 |
| Neighborhood: | LITTLEFIELD,MOORES,PT ECO,ROSEWIND,TIBBALS 2ND,WAYSONS+SP AC | Map ID: | |
| Neighborhood CD: | 6090 |
Owner |
| Name: | GERARD FERNANDEZ | Owner ID: | 111281 |
| Mailing Address: | 2911 HAINES ST PORT TOWNSEND, WA 98368-6126 | % Ownership: | 100.0000000000% |
| | | Exemptions: | |
Pay Tax Due
Select the appropriate checkbox next to the year to be paid. Multiple years may be selected.
*Convenience Fee not included
Taxes and Assessment Details
Property Tax Information as of
03/11/2026
Click on "Statement Details" to expand or collapse a tax statement.
* Please enter a valid date ** Please enter a valid date *
Statement Details |
| 2026 | 185 | STATE - STATE LEVY (SCHOOL) | $795.35 | $795.35 | $0.00 | $0.00 | $0.00 | $1590.70 |
| 2026 | 185 | COUNTY - COUNTY LEVIES (CE, DD, VET, MH) | $318.00 | $317.96 | $0.00 | $0.00 | $0.00 | $635.96 |
| 2026 | 185 | CONSERVE - CONSERVATION FUTURES | $9.54 | $9.53 | $0.00 | $0.00 | $0.00 | $19.07 |
| 2026 | 185 | CITYPT - CITY OF PT | $451.35 | $451.34 | $0.00 | $0.00 | $0.00 | $902.69 |
| 2026 | 185 | PORTPT - PORT DISTRICT | $128.42 | $128.42 | $0.00 | $0.00 | $0.00 | $256.84 |
| 2026 | 185 | PUD1 - PUD #1 | $20.69 | $20.68 | $0.00 | $0.00 | $0.00 | $41.37 |
| 2026 | 185 | HD2 - HOSP DIST #2 | $18.55 | $18.54 | $0.00 | $0.00 | $0.00 | $37.09 |
| 2026 | 185 | SD50 - SCHOOL DIST #50 | $630.10 | $630.08 | $0.00 | $0.00 | $0.00 | $1260.18 |
| 2026 | 185 | FD1 - FIRE DISTRICT #1 | $421.08 | $421.08 | $0.00 | $0.00 | $0.00 | $842.16 |
| 2026 | 185 | EMS1 - FIRE DIST #1 EMS | $161.90 | $161.90 | $0.00 | $0.00 | $0.00 | $323.80 |
| 2026 | 185 | JCCD - JC Conservation District | $2.55 | $2.55 | $0.00 | $0.00 | $0.00 | $5.10 |
| 2026 | 185 | NWA - Noxious Weed Assessment | $2.98 | $2.97 | $0.00 | $0.00 | $0.00 | $5.95 |
| 2026 | 185 | TOTAL: | $2960.51 | $2960.40 | $0.00 | $0.00 | $0.00 | $5920.91 |
|
| 2026 | 185 | $2960.51 | $2960.40 | $0.00 | $0.00 | $0.00 | $5920.91 |
Statement Details |
| 2025 | 185 | STATE - STATE LEVY (SCHOOL) | $780.55 | $780.55 | $0.00 | $0.00 | $1561.10 | $0.00 |
| 2025 | 185 | COUNTY - COUNTY LEVIES (CE, DD, VET, MH) | $306.96 | $306.93 | $0.00 | $0.00 | $613.89 | $0.00 |
| 2025 | 185 | CONSERVE - CONSERVATION FUTURES | $9.21 | $9.20 | $0.00 | $0.00 | $18.41 | $0.00 |
| 2025 | 185 | CITYPT - CITY OF PT | $442.66 | $442.65 | $0.00 | $0.00 | $885.31 | $0.00 |
| 2025 | 185 | PORTPT - PORT DISTRICT | $125.25 | $125.25 | $0.00 | $0.00 | $250.50 | $0.00 |
| 2025 | 185 | PUD1 - PUD #1 | $20.09 | $20.08 | $0.00 | $0.00 | $40.17 | $0.00 |
| 2025 | 185 | HD2 - HOSP DIST #2 | $17.91 | $17.91 | $0.00 | $0.00 | $35.82 | $0.00 |
| 2025 | 185 | SD50 - SCHOOL DIST #50 | $570.46 | $570.45 | $0.00 | $0.00 | $1140.91 | $0.00 |
| 2025 | 185 | FD1 - FIRE DISTRICT #1 | $405.05 | $405.05 | $0.00 | $0.00 | $810.10 | $0.00 |
| 2025 | 185 | EMS1 - FIRE DIST #1 EMS | $155.80 | $155.79 | $0.00 | $0.00 | $311.59 | $0.00 |
| 2025 | 185 | JCCD - JC Conservation District | $2.55 | $2.55 | $0.00 | $0.00 | $5.10 | $0.00 |
| 2025 | 185 | NWA - Noxious Weed Assessment | $2.15 | $2.15 | $0.00 | $0.00 | $4.30 | $0.00 |
| 2025 | 185 | TOTAL: | $2838.64 | $2838.56 | $0.00 | $0.00 | $5677.20 | $0.00 |
|
| 2025 | 185 | $2838.64 | $2838.56 | $0.00 | $0.00 | $5677.20 | $0.00 |
Statement Details |
| 2024 | 185 | STATE - STATE LEVY (SCHOOL) | $691.21 | $691.19 | $0.00 | $0.00 | $1382.40 | $0.00 |
| 2024 | 185 | COUNTY - COUNTY LEVIES (CE, DD, VET, MH) | $295.77 | $295.77 | $0.00 | $0.00 | $591.54 | $0.00 |
| 2024 | 185 | CONSERVE - CONSERVATION FUTURES | $8.87 | $8.87 | $0.00 | $0.00 | $17.74 | $0.00 |
| 2024 | 185 | CITYPT - CITY OF PT | $422.62 | $422.61 | $0.00 | $0.00 | $845.23 | $0.00 |
| 2024 | 185 | PORTPT - PORT DISTRICT | $122.17 | $122.16 | $0.00 | $0.00 | $244.33 | $0.00 |
| 2024 | 185 | PUD1 - PUD #1 | $19.43 | $19.42 | $0.00 | $0.00 | $38.85 | $0.00 |
| 2024 | 185 | HD2 - HOSP DIST #2 | $17.26 | $17.25 | $0.00 | $0.00 | $34.51 | $0.00 |
| 2024 | 185 | SD50 - SCHOOL DIST #50 | $559.22 | $559.21 | $0.00 | $0.00 | $1118.43 | $0.00 |
| 2024 | 185 | FD1 - FIRE DISTRICT #1 | $391.08 | $391.08 | $0.00 | $0.00 | $782.16 | $0.00 |
| 2024 | 185 | EMS1 - FIRE DIST #1 EMS | $149.38 | $149.38 | $0.00 | $0.00 | $298.76 | $0.00 |
| 2024 | 185 | JCCD - JC Conservation District | $2.55 | $2.55 | $0.00 | $0.00 | $5.10 | $0.00 |
| 2024 | 185 | NWA - Noxious Weed Assessment | $2.15 | $2.15 | $0.00 | $0.00 | $4.30 | $0.00 |
| 2024 | 185 | TOTAL: | $2681.71 | $2681.64 | $0.00 | $0.00 | $5363.35 | $0.00 |
|
| 2024 | 185 | $2681.71 | $2681.64 | $0.00 | $0.00 | $5363.35 | $0.00 |
Statement Details |
| 2023 | 185 | STATE - STATE LEVY (SCHOOL) | $697.44 | $697.43 | $0.00 | $0.00 | $1394.87 | $0.00 |
| 2023 | 185 | COUNTY - COUNTY LEVIES (CE, DD, VET, MH) | $304.34 | $304.34 | $0.00 | $0.00 | $608.68 | $0.00 |
| 2023 | 185 | CONSERVE - CONSERVATION FUTURES | $9.13 | $9.12 | $0.00 | $0.00 | $18.25 | $0.00 |
| 2023 | 185 | CITYPT - CITY OF PT | $430.14 | $430.12 | $0.00 | $0.00 | $860.26 | $0.00 |
| 2023 | 185 | PORTPT - PORT DISTRICT | $128.21 | $128.20 | $0.00 | $0.00 | $256.41 | $0.00 |
| 2023 | 185 | PUD1 - PUD #1 | $20.18 | $20.17 | $0.00 | $0.00 | $40.35 | $0.00 |
| 2023 | 185 | HD2 - HOSP DIST #2 | $17.77 | $17.75 | $0.00 | $0.00 | $35.52 | $0.00 |
| 2023 | 185 | SD50 - SCHOOL DIST #50 | $553.43 | $553.42 | $0.00 | $0.00 | $1106.85 | $0.00 |
| 2023 | 185 | FD1 - FIRE DISTRICT #1 | $250.72 | $250.71 | $0.00 | $0.00 | $501.43 | $0.00 |
| 2023 | 185 | EMS1 - FIRE DIST #1 EMS | $106.65 | $106.65 | $0.00 | $0.00 | $213.30 | $0.00 |
| 2023 | 185 | JCCD - JC Conservation District | $2.55 | $2.55 | $0.00 | $0.00 | $5.10 | $0.00 |
| 2023 | 185 | NWA - Noxious Weed Assessment | $2.15 | $2.15 | $0.00 | $0.00 | $4.30 | $0.00 |
| 2023 | 185 | TOTAL: | $2522.71 | $2522.61 | $0.00 | $0.00 | $5045.32 | $0.00 |
|
| 2023 | 185 | $2522.71 | $2522.61 | $0.00 | $0.00 | $5045.32 | $0.00 |
Values
| (+) Improvement Homesite Value: | + | $0 | |
| (+) Improvement Non-Homesite Value: | + | $529,883 | |
| (+) Land Homesite Value: | + | $0 | |
| (+) Land Non-Homesite Value: | + | $162,000 | |
| (+) Curr Use (HS): | + | $0 | $0 |
| (+) Curr Use (NHS): | + | $0 | $0 |
| | | -------------------------- | |
| (=) Market Value: | = | $691,883 | |
| (–) Productivity Loss: | – | $0 | |
| | | -------------------------- | |
| (=) Subtotal: | = | $691,883 | |
| (+) Senior Appraised Value: | + | $0 | |
| (+) Non-Senior Appraised Value: | + | $691,883 | |
| | | -------------------------- | |
| (=) Total Appraised Value: | = | $691,883 | |
| (–) Senior Exemption Loss: | – | $0 | |
| (–) Exemption Loss: | – | $0 | |
| | | -------------------------- | |
| (=) Taxable Value: | = | $691,883 | |
Taxing Jurisdiction
| Owner: | GERARD FERNANDEZ | | |
| % Ownership: | 100.0000000000% | | |
| Total Value: | $691,883 | | |
| Tax Area: | 0110 - C-50F1E1H2 |
| CE | COUNTY CURRENT EXPENSE | 0.9034619479 | $691,883 | $691,883 | $625.09 | | |
| CNTYDD | DEVELOPMENTAL DISABILITIES | 0.0052121823 | $691,883 | $691,883 | $3.61 | | |
| CNTYVET | VETERANS RELIEF | 0.0052777810 | $691,883 | $691,883 | $3.65 | | |
| MENTAL | MENTAL HEALTH | 0.0052121823 | $691,883 | $691,883 | $3.61 | | |
| PTGEN | CITY OF PT GENERAL | 0.8551967795 | $691,883 | $691,883 | $591.70 | | |
| PTLLL | CITY OF PT - LIBRARY LID LIFT | 0.4010114288 | $691,883 | $691,883 | $277.45 | | |
| PTMVBOND | CITY OF PT MV BOND | 0.0484717981 | $691,883 | $691,883 | $33.54 | | |
| HOSP2CASH | HOSP DIST #2 GENERAL | 0.0536075306 | $691,883 | $691,883 | $37.09 | | |
| SCH50BOND | SCHOOL DIST #50 BOND 2016 | 0.5377451389 | $691,883 | $691,883 | $372.06 | | |
| SCH50CP | SCHOOL DIST #50 CAP PROJ | 0.4573475088 | $691,883 | $691,883 | $316.43 | | |
| SCH50MO | SCHOOL DIST #50 EP & O | 0.8262822886 | $691,883 | $691,883 | $571.69 | | |
| CONSERVE | CONSERVATION FUTURES | 0.0275621078 | $691,883 | $691,883 | $19.07 | | |
| EMS1 | FIRE DIST #1 EMS | 0.4679948282 | $691,883 | $691,883 | $323.80 | | |
| FD1 | FIRE DIST #1 GENERAL | 1.2171942929 | $691,883 | $691,883 | $842.16 | | |
| PORTPT | PORT OF PT GENERAL | 0.1134941229 | $691,883 | $691,883 | $78.52 | | |
| PORTPTIDD | PORT OF PT IDD 2019 | 0.2577346692 | $691,883 | $691,883 | $178.32 | | |
| PUD1 | PUD #1 GENERAL | 0.0597888892 | $691,883 | $691,883 | $41.37 | | |
| STATE | STATE SCHOOL PART 1 | 1.4940692947 | $691,883 | $691,883 | $1,033.72 | | |
| STATE2 | STATE SCHOOL PART 2 | 0.8050170049 | $691,883 | $691,883 | $556.98 | | |
| | Total Tax Rate: | 8.5416817766 | | | | | |
| | | | | Taxes w/Current Exemptions: | $5,909.86 | | |
| | | | | Taxes w/o Exemptions: | $5,909.86 | | |
Improvement / Building
| Improvement #1: | Residential Bldg | State Code: | 11 | 1305.0 sqft | Value: | $529,883 |
| Bathrooms (#): | 2 (FULL) | Bedrooms (#): | 2 | | Exterior Wall: | SI/ST | Foundation: | CONPR | | Heating/Cooling: | ELBB | Roof Cover: | METAL |
|
| | Type | Description | Class CD | Sub Class CD | Year Built | Area |
| | MA | Main Area | 4 | 1S | 2016 | 1305.0 |
| | BSMTF | House basement finished | 4 | 1S | 2016 | 1305.0 |
| | HDECK | House Deck | 4 | * | 2016 | 343.0 |
| | ASPHD | Asphalt Drive | 4 | * | 2018 | 2350.0 |
Sketch
Property Image
Land
| 1 | 6090-1176L | | 0.0000 | 0.00 | 0.00 | 0.00 | 1.00 | $162,000 | $0 |
Roll Value History
| 2026 | N/A | N/A | N/A | N/A | N/A |
| 2025 | $529,883 | $162,000 | $0 | $691,883 | $691,883 |
| 2024 | $489,557 | $161,438 | $0 | $650,995 | $650,995 |
| 2023 | $448,760 | $148,750 | $0 | $597,510 | $597,510 |
| 2022 | $448,760 | $143,750 | $0 | $592,510 | $592,510 |
Deed and Sales History
| 1 | 08/12/2024 | SWD | Statutory Warranty Deed | RUTH PHELAN | GERARD FERNANDEZ | | | $738,000.00 | 143050 | |
| 2 | 07/19/2024 | QCD | Quit Claim Deed | FRANCIS D NATALI | RUTH PHELAN | | | | 142925 | |
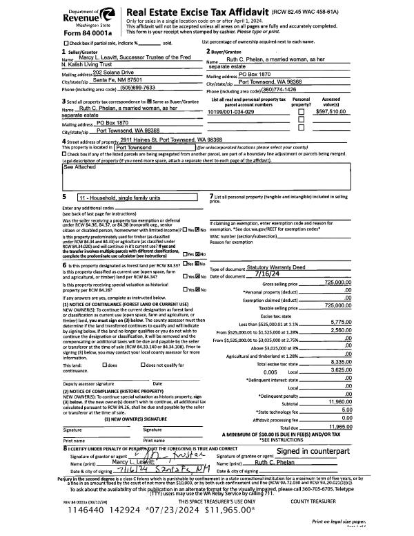
| 3 | 07/16/2024 | SWD | Statutory Warranty Deed | FRED N KALISH LIVING TRUST | RUTH PHELAN | | | $725,000.00 | 142924 | |
| 4 | 02/02/2024 | SWD | Statutory Warranty Deed | PHILIP & SANDRA EHERENMAN | FRED N KALISH LIVING TRUST | | | $700,000.00 | 142191 | |
| 5 | 05/13/2015 | SWD | Statutory Warranty Deed | RICHARD M PRESTON | PHILIP & SANDRA EHERENMAN | | | $70,000.00 | 123214 | |
| 6 | 08/18/2004 | TRED | Trustee Deed | PRESTON, RICHARD M | PRESTON, RICHARD M/ANN H TRUST | 0 | 0 | $0.00 | 102445 | 0 |
| 7 | 12/06/2002 | QCD | Quit Claim Deed | PRESTON, KATHRYN | PRESTON, RICHARD M | 0 | 0 | $0.00 | 96124 | 0 |
| 8 | 12/04/2002 | SWD | Statutory Warranty Deed | LITTLE, SHIRLEY M | PRESTON, RICHARD M | 0 | 0 | $161,000.00 | 96123 | 0 |
|   | |
| 9 | 05/10/1995 | QCD | Quit Claim Deed | MINISH, JOSEPH | MINISH, JOSEPH/TRUST | 0 | 0 | $0.00 | 76967 | 0 |
| 10 | 01/27/1995 | QCD | Quit Claim Deed | MINISH, JOSEPH | MINISH, JOSEPH/TRUST | 0 | 0 | $0.00 | 76134 | 0 |
Payout Agreement
| No payout information available.. |