| 1 | 10/02/2017 | QCD | Quit Claim Deed | | | | | | 128687 | |
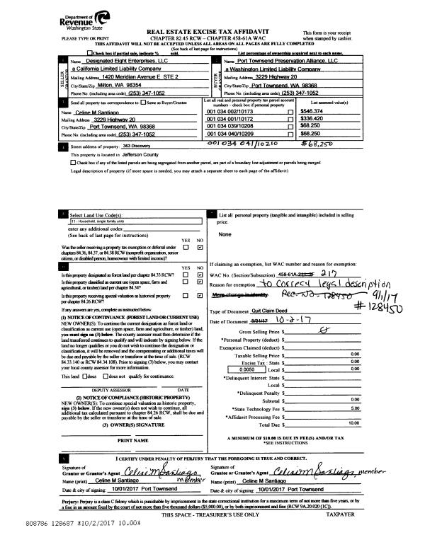
| 2 | 08/31/2017 | QCD | Quit Claim Deed | DESIGNATED EIGHT ENTERPRISES LLC | PORT TOWNSEND PRESERVATION ALLIANCE LLC | | | | 128450 | |
| 3 | 07/07/2017 | SWD | Statutory Warranty Deed | KATHRYN E MADONO | DESIGNATED EIGHT ENTERPRISES LLC | | | $1,600,000.00 | 128157 | |
|   | |
| 4 | 07/11/2015 | QCD | Quit Claim Deed | | | | | | 123601 | |
| 5 | 12/31/2003 | QCD | Quit Claim Deed | NOMURA, KAWORU CARL | NOMURA, TERESA/JOHN/DAVID/VEDA | 0 | 0 | $0.00 | 99182 | 0 |
| 6 | 12/27/2001 | QCD | Quit Claim Deed | NOMURA, KIAWORU CARL | NOMURA, TERESA A ET AL, MADONO | 0 | 0 | $0.00 | 93747 | 0 |
| 7 | 12/13/2000 | QCD | Quit Claim Deed | NOMURA, KAWORU CARL | NOMURA ET AL, TERESA | 0 | 0 | $0.00 | 91328 | 0 |
| 8 | 05/22/1998 | WD | Warranty Deed | NOMURA, LOUISE MIYELO T/E | NOMURA FAMILY TRUST | 0 | 0 | $0.00 | 84472 | 0 |