Property
Account |
| Property ID: | 10356 | Abbreviated Legal Description: | S5 T30N R1W SW NE NW SW (LYING N OF HASTINGS AVE & W OF EAST MIDDLEPOINT RD) LESS CO RD R/W |
| Parcel # / Geo ID: | 001053009 | Agent Code: | |
| Type: | Real | | |
| Tax Area: | 0111 - 1-50F1E1H2L1 | Land Use Code | 91 |
| Open Space: | N | DFL | N |
| Historic Property: | N | Remodel Property: | N |
| Multi-Family Redevelopment: | N | | |
| Township: | 30N | Section: | 5 |
| Range: | 1W |
Location |
| Address: | 23 E MIDDLEPOINT RD PORT TOWNSEND, WA 98368 | Mapsco: | 081/013 |
| Neighborhood: | S 4, 5 & 6 T30 R1W | Map ID: | |
| Neighborhood CD: | 5310 |
Owner |
| Name: | KAIZEN CASA LLC | Owner ID: | 113960 |
| Mailing Address: | 23 E MIDDLEPOINT RD PORT TOWNSEND, WA 98368-9636 | % Ownership: | 100.0000000000% |
| | | Exemptions: | |
Pay Tax Due
Select the appropriate checkbox next to the year to be paid. Multiple years may be selected.
*Convenience Fee not included
Taxes and Assessment Details
Property Tax Information as of
03/12/2026
Click on "Statement Details" to expand or collapse a tax statement.
* Please enter a valid date ** Please enter a valid date *
Statement Details |
| 2026 | 339 | STATE - STATE LEVY (SCHOOL) | $80.43 | $80.42 | $0.00 | $0.00 | $0.00 | $160.85 |
| 2026 | 339 | COUNTY - COUNTY LEVIES (CE, DD, VET, MH) | $32.16 | $32.14 | $0.00 | $0.00 | $0.00 | $64.30 |
| 2026 | 339 | CONSERVE - CONSERVATION FUTURES | $0.97 | $0.96 | $0.00 | $0.00 | $0.00 | $1.93 |
| 2026 | 339 | COROADS - COUNTY ROADS (ROADS, DIV TO CE) | $25.94 | $25.94 | $0.00 | $0.00 | $0.00 | $51.88 |
| 2026 | 339 | PORTPT - PORT DISTRICT | $12.99 | $12.98 | $0.00 | $0.00 | $0.00 | $25.97 |
| 2026 | 339 | PUD1 - PUD #1 | $2.09 | $2.09 | $0.00 | $0.00 | $0.00 | $4.18 |
| 2026 | 339 | LIB1 - LIBRARY DIST #1 | $10.04 | $10.03 | $0.00 | $0.00 | $0.00 | $20.07 |
| 2026 | 339 | HD2 - HOSP DIST #2 | $1.88 | $1.87 | $0.00 | $0.00 | $0.00 | $3.75 |
| 2026 | 339 | SD50 - SCHOOL DIST #50 | $63.72 | $63.71 | $0.00 | $0.00 | $0.00 | $127.43 |
| 2026 | 339 | FD1 - FIRE DISTRICT #1 | $42.58 | $42.58 | $0.00 | $0.00 | $0.00 | $85.16 |
| 2026 | 339 | EMS1 - FIRE DIST #1 EMS | $16.37 | $16.37 | $0.00 | $0.00 | $0.00 | $32.74 |
| 2026 | 339 | FP - DNR Forest Fire Protection Assmt | $8.50 | $8.50 | $0.00 | $0.00 | $0.00 | $17.00 |
| 2026 | 339 | FPLCA - DNR Landowner Contingency Assmt | $3.00 | $3.00 | $0.00 | $0.00 | $0.00 | $6.00 |
| 2026 | 339 | JCCD - JC Conservation District | $2.57 | $2.57 | $0.00 | $0.00 | $0.00 | $5.14 |
| 2026 | 339 | NWA - Noxious Weed Assessment | $3.20 | $3.20 | $0.00 | $0.00 | $0.00 | $6.40 |
| 2026 | 339 | OSS - On Site Septic | $23.10 | $23.10 | $0.00 | $0.00 | $0.00 | $46.20 |
| 2026 | 339 | WAT - Clean Water District | $13.00 | $13.00 | $0.00 | $0.00 | $0.00 | $26.00 |
| 2026 | 339 | FP ADMIN - FP ADMIN | $0.50 | $0.00 | $0.00 | $0.00 | $0.00 | $0.50 |
| 2026 | 339 | TOTAL: | $343.04 | $342.46 | $0.00 | $0.00 | $0.00 | $685.50 |
|
| 2026 | 339 | $343.04 | $342.46 | $0.00 | $0.00 | $0.00 | $685.50 |
Statement Details |
| 2025 | 339 | STATE - STATE LEVY (SCHOOL) | $80.25 | $80.24 | $0.00 | $0.00 | $160.49 | $0.00 |
| 2025 | 339 | COUNTY - COUNTY LEVIES (CE, DD, VET, MH) | $31.56 | $31.55 | $0.00 | $0.00 | $63.11 | $0.00 |
| 2025 | 339 | CONSERVE - CONSERVATION FUTURES | $0.95 | $0.94 | $0.00 | $0.00 | $1.89 | $0.00 |
| 2025 | 339 | COROADS - COUNTY ROADS (ROADS, DIV TO CE) | $25.28 | $25.28 | $0.00 | $0.00 | $50.56 | $0.00 |
| 2025 | 339 | PORTPT - PORT DISTRICT | $12.88 | $12.87 | $0.00 | $0.00 | $25.75 | $0.00 |
| 2025 | 339 | PUD1 - PUD #1 | $2.07 | $2.06 | $0.00 | $0.00 | $4.13 | $0.00 |
| 2025 | 339 | LIB1 - LIBRARY DIST #1 | $9.78 | $9.78 | $0.00 | $0.00 | $19.56 | $0.00 |
| 2025 | 339 | HD2 - HOSP DIST #2 | $1.84 | $1.84 | $0.00 | $0.00 | $3.68 | $0.00 |
| 2025 | 339 | SD50 - SCHOOL DIST #50 | $58.65 | $58.64 | $0.00 | $0.00 | $117.29 | $0.00 |
| 2025 | 339 | FD1 - FIRE DISTRICT #1 | $41.64 | $41.64 | $0.00 | $0.00 | $83.28 | $0.00 |
| 2025 | 339 | EMS1 - FIRE DIST #1 EMS | $16.02 | $16.01 | $0.00 | $0.00 | $32.03 | $0.00 |
| 2025 | 339 | FP - DNR Forest Fire Protection Assmt | $8.50 | $8.50 | $0.00 | $0.00 | $17.00 | $0.00 |
| 2025 | 339 | FPLCA - DNR Landowner Contingency Assmt | $3.00 | $3.00 | $0.00 | $0.00 | $6.00 | $0.00 |
| 2025 | 339 | JCCD - JC Conservation District | $2.57 | $2.57 | $0.00 | $0.00 | $5.14 | $0.00 |
| 2025 | 339 | NWA - Noxious Weed Assessment | $2.30 | $2.30 | $0.00 | $0.00 | $4.60 | $0.00 |
| 2025 | 339 | WAT - Clean Water District | $13.00 | $13.00 | $0.00 | $0.00 | $26.00 | $0.00 |
| 2025 | 339 | FP ADMIN - FP ADMIN | $0.50 | $0.00 | $0.00 | $0.00 | $0.50 | $0.00 |
| 2025 | 339 | TOTAL: | $310.79 | $310.22 | $0.00 | $0.00 | $621.01 | $0.00 |
|
| 2025 | 339 | $310.79 | $310.22 | $0.00 | $0.00 | $621.01 | $0.00 |
Statement Details |
| 2024 | 339 | STATE - STATE LEVY (SCHOOL) | $140.75 | $0.00 | $0.00 | $0.00 | $140.75 | $0.00 |
| 2024 | 339 | COUNTY - COUNTY LEVIES (CE, DD, VET, MH) | $60.23 | $0.00 | $0.00 | $0.00 | $60.23 | $0.00 |
| 2024 | 339 | CONSERVE - CONSERVATION FUTURES | $1.81 | $0.00 | $0.00 | $0.00 | $1.81 | $0.00 |
| 2024 | 339 | COROADS - COUNTY ROADS (ROADS, DIV TO CE) | $48.47 | $0.00 | $0.00 | $0.00 | $48.47 | $0.00 |
| 2024 | 339 | PORTPT - PORT DISTRICT | $24.88 | $0.00 | $0.00 | $0.00 | $24.88 | $0.00 |
| 2024 | 339 | PUD1 - PUD #1 | $3.96 | $0.00 | $0.00 | $0.00 | $3.96 | $0.00 |
| 2024 | 339 | LIB1 - LIBRARY DIST #1 | $18.75 | $0.00 | $0.00 | $0.00 | $18.75 | $0.00 |
| 2024 | 339 | HD2 - HOSP DIST #2 | $3.51 | $0.00 | $0.00 | $0.00 | $3.51 | $0.00 |
| 2024 | 339 | SD50 - SCHOOL DIST #50 | $113.88 | $0.00 | $0.00 | $0.00 | $113.88 | $0.00 |
| 2024 | 339 | FD1 - FIRE DISTRICT #1 | $79.64 | $0.00 | $0.00 | $0.00 | $79.64 | $0.00 |
| 2024 | 339 | EMS1 - FIRE DIST #1 EMS | $30.42 | $0.00 | $0.00 | $0.00 | $30.42 | $0.00 |
| 2024 | 339 | FP - DNR Forest Fire Protection Assmt | $17.00 | $0.00 | $0.00 | $0.00 | $17.00 | $0.00 |
| 2024 | 339 | FPLCA - DNR Landowner Contingency Assmt | $6.00 | $0.00 | $0.00 | $0.00 | $6.00 | $0.00 |
| 2024 | 339 | JCCD - JC Conservation District | $5.14 | $0.00 | $0.00 | $0.00 | $5.14 | $0.00 |
| 2024 | 339 | NWA - Noxious Weed Assessment | $4.60 | $0.00 | $0.00 | $0.00 | $4.60 | $0.00 |
| 2024 | 339 | WAT - Clean Water District | $25.00 | $0.00 | $0.00 | $0.00 | $25.00 | $0.00 |
| 2024 | 339 | FP ADMIN - FP ADMIN | $0.50 | $0.00 | $0.00 | $0.00 | $0.50 | $0.00 |
| 2024 | 339 | NSF - RETURNED CHECK | $30.00 | $0.00 | $0.00 | $0.00 | $30.00 | $0.00 |
| 2024 | 339 | TOTAL: | $614.54 | $0.00 | $0.00 | $0.00 | $614.54 | $0.00 |
|
| 2024 | 339 | $614.54 | $0.00 | $0.00 | $0.00 | $614.54 | $0.00 |
Statement Details |
| 2023 | 339 | STATE - STATE LEVY (SCHOOL) | $69.93 | $69.91 | $0.00 | $0.00 | $139.84 | $0.00 |
| 2023 | 339 | COUNTY - COUNTY LEVIES (CE, DD, VET, MH) | $30.53 | $30.50 | $0.00 | $0.00 | $61.03 | $0.00 |
| 2023 | 339 | CONSERVE - CONSERVATION FUTURES | $0.92 | $0.91 | $0.00 | $0.00 | $1.83 | $0.00 |
| 2023 | 339 | COROADS - COUNTY ROADS (ROADS, DIV TO CE) | $24.69 | $24.68 | $0.00 | $0.00 | $49.37 | $0.00 |
| 2023 | 339 | PORTPT - PORT DISTRICT | $12.86 | $12.84 | $0.00 | $0.00 | $25.70 | $0.00 |
| 2023 | 339 | PUD1 - PUD #1 | $2.02 | $2.02 | $0.00 | $0.00 | $4.04 | $0.00 |
| 2023 | 339 | LIB1 - LIBRARY DIST #1 | $9.55 | $9.55 | $0.00 | $0.00 | $19.10 | $0.00 |
| 2023 | 339 | HD2 - HOSP DIST #2 | $1.78 | $1.78 | $0.00 | $0.00 | $3.56 | $0.00 |
| 2023 | 339 | SD50 - SCHOOL DIST #50 | $55.49 | $55.47 | $0.00 | $0.00 | $110.96 | $0.00 |
| 2023 | 339 | FD1 - FIRE DISTRICT #1 | $25.14 | $25.13 | $0.00 | $0.00 | $50.27 | $0.00 |
| 2023 | 339 | EMS1 - FIRE DIST #1 EMS | $10.69 | $10.69 | $0.00 | $0.00 | $21.38 | $0.00 |
| 2023 | 339 | FP - DNR Forest Fire Protection Assmt | $8.50 | $8.50 | $0.00 | $0.00 | $17.00 | $0.00 |
| 2023 | 339 | FPLCA - DNR Landowner Contingency Assmt | $3.00 | $3.00 | $0.00 | $0.00 | $6.00 | $0.00 |
| 2023 | 339 | JCCD - JC Conservation District | $2.57 | $2.57 | $0.00 | $0.00 | $5.14 | $0.00 |
| 2023 | 339 | NWA - Noxious Weed Assessment | $2.30 | $2.30 | $0.00 | $0.00 | $4.60 | $0.00 |
| 2023 | 339 | WAT - Clean Water District | $12.00 | $12.00 | $0.00 | $0.00 | $24.00 | $0.00 |
| 2023 | 339 | FP ADMIN - FP ADMIN | $0.50 | $0.00 | $0.00 | $0.00 | $0.50 | $0.00 |
| 2023 | 339 | TOTAL: | $272.47 | $271.85 | $0.00 | $0.00 | $544.32 | $0.00 |
|
| 2023 | 339 | $272.47 | $271.85 | $0.00 | $0.00 | $544.32 | $0.00 |
Values
| (+) Improvement Homesite Value: | + | $0 | |
| (+) Improvement Non-Homesite Value: | + | $0 | |
| (+) Land Homesite Value: | + | $0 | |
| (+) Land Non-Homesite Value: | + | $69,966 | |
| (+) Curr Use (HS): | + | $0 | $0 |
| (+) Curr Use (NHS): | + | $0 | $0 |
| | | -------------------------- | |
| (=) Market Value: | = | $69,966 | |
| (–) Productivity Loss: | – | $0 | |
| | | -------------------------- | |
| (=) Subtotal: | = | $69,966 | |
| (+) Senior Appraised Value: | + | $0 | |
| (+) Non-Senior Appraised Value: | + | $69,966 | |
| | | -------------------------- | |
| (=) Total Appraised Value: | = | $69,966 | |
| (–) Senior Exemption Loss: | – | $0 | |
| (–) Exemption Loss: | – | $0 | |
| | | -------------------------- | |
| (=) Taxable Value: | = | $69,966 | |
Taxing Jurisdiction
| Owner: | KAIZEN CASA LLC | | |
| % Ownership: | 100.0000000000% | | |
| Total Value: | $69,966 | | |
| Tax Area: | 0111 - 1-50F1E1H2L1 |
| CE | COUNTY CURRENT EXPENSE | 0.9034619479 | $69,966 | $69,966 | $63.21 | | |
| CNTYDD | DEVELOPMENTAL DISABILITIES | 0.0052121823 | $69,966 | $69,966 | $0.36 | | |
| CNTYVET | VETERANS RELIEF | 0.0052777810 | $69,966 | $69,966 | $0.37 | | |
| MENTAL | MENTAL HEALTH | 0.0052121823 | $69,966 | $69,966 | $0.36 | | |
| ROADS | COUNTY ROADS | 0.7415066410 | $69,966 | $69,966 | $51.88 | | |
| ROADSCU | COUNTY ROADS TO CUR EXP | 0.0000000000 | $69,966 | $69,966 | $0.00 | | |
| HOSP2CASH | HOSP DIST #2 GENERAL | 0.0536075306 | $69,966 | $69,966 | $3.75 | | |
| SCH50BOND | SCHOOL DIST #50 BOND 2016 | 0.5377451389 | $69,966 | $69,966 | $37.62 | | |
| SCH50CP | SCHOOL DIST #50 CAP PROJ | 0.4573475088 | $69,966 | $69,966 | $32.00 | | |
| SCH50MO | SCHOOL DIST #50 EP & O | 0.8262822886 | $69,966 | $69,966 | $57.81 | | |
| CONSERVE | CONSERVATION FUTURES | 0.0275621078 | $69,966 | $69,966 | $1.93 | | |
| EMS1 | FIRE DIST #1 EMS | 0.4679948282 | $69,966 | $69,966 | $32.74 | | |
| FD1 | FIRE DIST #1 GENERAL | 1.2171942929 | $69,966 | $69,966 | $85.16 | | |
| LIB1 | LIBRARY DIST #1 GENERAL | 0.2868827388 | $69,966 | $69,966 | $20.07 | | |
| PORTPT | PORT OF PT GENERAL | 0.1134941229 | $69,966 | $69,966 | $7.94 | | |
| PORTPTIDD | PORT OF PT IDD 2019 | 0.2577346692 | $69,966 | $69,966 | $18.03 | | |
| PUD1 | PUD #1 GENERAL | 0.0597888892 | $69,966 | $69,966 | $4.18 | | |
| STATE | STATE SCHOOL PART 1 | 1.4940692947 | $69,966 | $69,966 | $104.53 | | |
| STATE2 | STATE SCHOOL PART 2 | 0.8050170049 | $69,966 | $69,966 | $56.32 | | |
| | Total Tax Rate: | 8.2653911500 | | | | | |
| | | | | Taxes w/Current Exemptions: | $578.26 | | |
| | | | | Taxes w/o Exemptions: | $578.26 | | |
Improvement / Building
Sketch
| No sketches available for this property. |
Property Image
Land
| 1 | 5310-1385S | | 1.0000 | 43560.00 | 0.00 | 0.00 | 1.00 | $51,750 | $0 |
| 2 | 5310-1571A | | 0.7200 | 31363.20 | 0.00 | 0.00 | 0.00 | $18,216 | $0 |
Roll Value History
| 2026 | N/A | N/A | N/A | N/A | N/A |
| 2025 | $0 | $69,966 | $0 | $69,966 | $69,966 |
| 2024 | $0 | $66,924 | $0 | $66,924 | $66,924 |
| 2023 | $0 | $60,840 | $0 | $60,840 | $60,840 |
| 2022 | $0 | $59,400 | $0 | $59,400 | $59,400 |
Deed and Sales History
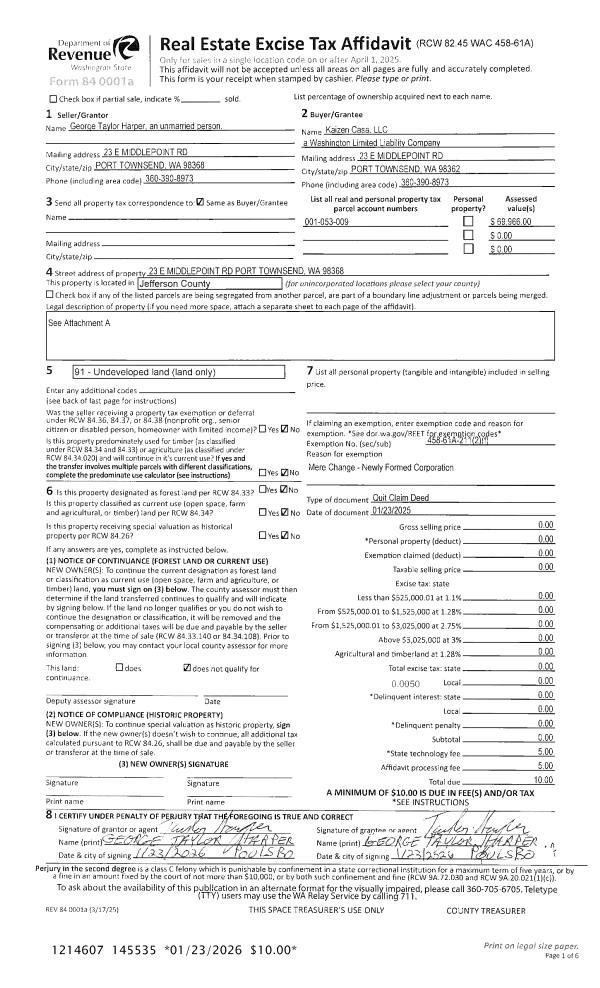
| 1 | 01/23/2025 | QCD | Quit Claim Deed | GEORGE T HARPER | KAIZEN CASA LLC | | | | 145535 | |
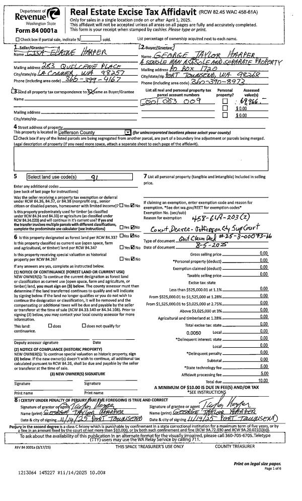
| 2 | 08/05/2025 | QCD | Quit Claim Deed | TAYLOR & LISA HARPER | GEORGE T HARPER | | | | 145227 | |
| 3 | 11/20/2020 | QCD | Quit Claim Deed | | | | | | 135635 | |
| 4 | 11/20/2020 | SWD | Statutory Warranty Deed | DEAN C FARRER | TAYLOR & LISA HARPER | | | $50,000.00 | 135634 | |
Payout Agreement
| No payout information available.. |