Property
Account |
| Property ID: | 10462 | Abbreviated Legal Description: | SCHROEDER & MCGEE SHORT PLAT LOT 1 |
| Parcel # / Geo ID: | 001064028 | Agent Code: | |
| Type: | Real | | |
| Tax Area: | 0111 - 1-50F1E1H2L1 | Land Use Code | 19 |
| Open Space: | N | DFL | N |
| Historic Property: | N | Remodel Property: | N |
| Multi-Family Redevelopment: | N | | |
| Township: | 30N | Section: | 6 |
| Range: | 1W |
Location |
| Address: | 520 ARABIAN LN PORT TOWNSEND, WA 98368 | Mapsco: | 137/010 |
| Neighborhood: | S 4, 5 & 6 T30 R1W | Map ID: | |
| Neighborhood CD: | 5310 |
Owner |
| Name: | WILLIAM R BARBER | Owner ID: | 113610 |
| Mailing Address: | VERONICA SANCHEZ JTWROS 520 ARABIAN LN PORT TOWNSEND, WA 98368-9614 | % Ownership: | 100.0000000000% |
| | | Exemptions: | |
Pay Tax Due
Select the appropriate checkbox next to the year to be paid. Multiple years may be selected.
*Convenience Fee not included
Taxes and Assessment Details
Property Tax Information as of
03/12/2026
Click on "Statement Details" to expand or collapse a tax statement.
* Please enter a valid date ** Please enter a valid date *
Statement Details |
| 2026 | 441 | STATE - STATE LEVY (SCHOOL) | $268.08 | $268.06 | $0.00 | $0.00 | $0.00 | $536.14 |
| 2026 | 441 | COUNTY - COUNTY LEVIES (CE, DD, VET, MH) | $107.19 | $107.17 | $0.00 | $0.00 | $0.00 | $214.36 |
| 2026 | 441 | CONSERVE - CONSERVATION FUTURES | $3.22 | $3.21 | $0.00 | $0.00 | $0.00 | $6.43 |
| 2026 | 441 | COROADS - COUNTY ROADS (ROADS, DIV TO CE) | $86.46 | $86.46 | $0.00 | $0.00 | $0.00 | $172.92 |
| 2026 | 441 | PORTPT - PORT DISTRICT | $43.29 | $43.28 | $0.00 | $0.00 | $0.00 | $86.57 |
| 2026 | 441 | PUD1 - PUD #1 | $6.97 | $6.97 | $0.00 | $0.00 | $0.00 | $13.94 |
| 2026 | 441 | LIB1 - LIBRARY DIST #1 | $33.45 | $33.45 | $0.00 | $0.00 | $0.00 | $66.90 |
| 2026 | 441 | HD2 - HOSP DIST #2 | $6.25 | $6.25 | $0.00 | $0.00 | $0.00 | $12.50 |
| 2026 | 441 | SD50 - SCHOOL DIST #50 | $212.38 | $212.36 | $0.00 | $0.00 | $0.00 | $424.74 |
| 2026 | 441 | FD1 - FIRE DISTRICT #1 | $141.93 | $141.92 | $0.00 | $0.00 | $0.00 | $283.85 |
| 2026 | 441 | EMS1 - FIRE DIST #1 EMS | $54.57 | $54.57 | $0.00 | $0.00 | $0.00 | $109.14 |
| 2026 | 441 | FP - DNR Forest Fire Protection Assmt | $8.50 | $8.50 | $0.00 | $0.00 | $0.00 | $17.00 |
| 2026 | 441 | FPLCA - DNR Landowner Contingency Assmt | $3.00 | $3.00 | $0.00 | $0.00 | $0.00 | $6.00 |
| 2026 | 441 | JCCD - JC Conservation District | $2.75 | $2.75 | $0.00 | $0.00 | $0.00 | $5.50 |
| 2026 | 441 | NWA - Noxious Weed Assessment | $3.88 | $3.87 | $0.00 | $0.00 | $0.00 | $7.75 |
| 2026 | 441 | OSS - On Site Septic | $23.10 | $23.10 | $0.00 | $0.00 | $0.00 | $46.20 |
| 2026 | 441 | WAT - Clean Water District | $13.00 | $13.00 | $0.00 | $0.00 | $0.00 | $26.00 |
| 2026 | 441 | FP ADMIN - FP ADMIN | $0.50 | $0.00 | $0.00 | $0.00 | $0.00 | $0.50 |
| 2026 | 441 | TOTAL: | $1018.52 | $1017.92 | $0.00 | $0.00 | $0.00 | $2036.44 |
|
| 2026 | 441 | $1018.52 | $1017.92 | $0.00 | $0.00 | $0.00 | $2036.44 |
Statement Details |
| 2025 | 442 | STATE - STATE LEVY (SCHOOL) | $267.46 | $267.45 | $0.00 | $0.00 | $534.91 | $0.00 |
| 2025 | 442 | COUNTY - COUNTY LEVIES (CE, DD, VET, MH) | $105.20 | $105.16 | $0.00 | $0.00 | $210.36 | $0.00 |
| 2025 | 442 | CONSERVE - CONSERVATION FUTURES | $3.16 | $3.15 | $0.00 | $0.00 | $6.31 | $0.00 |
| 2025 | 442 | COROADS - COUNTY ROADS (ROADS, DIV TO CE) | $84.27 | $84.25 | $0.00 | $0.00 | $168.52 | $0.00 |
| 2025 | 442 | PORTPT - PORT DISTRICT | $42.92 | $42.91 | $0.00 | $0.00 | $85.83 | $0.00 |
| 2025 | 442 | PUD1 - PUD #1 | $6.88 | $6.88 | $0.00 | $0.00 | $13.76 | $0.00 |
| 2025 | 442 | LIB1 - LIBRARY DIST #1 | $32.60 | $32.60 | $0.00 | $0.00 | $65.20 | $0.00 |
| 2025 | 442 | HD2 - HOSP DIST #2 | $6.14 | $6.13 | $0.00 | $0.00 | $12.27 | $0.00 |
| 2025 | 442 | SD50 - SCHOOL DIST #50 | $195.48 | $195.45 | $0.00 | $0.00 | $390.93 | $0.00 |
| 2025 | 442 | FD1 - FIRE DISTRICT #1 | $138.79 | $138.79 | $0.00 | $0.00 | $277.58 | $0.00 |
| 2025 | 442 | EMS1 - FIRE DIST #1 EMS | $53.39 | $53.38 | $0.00 | $0.00 | $106.77 | $0.00 |
| 2025 | 442 | FP - DNR Forest Fire Protection Assmt | $8.50 | $8.50 | $0.00 | $0.00 | $17.00 | $0.00 |
| 2025 | 442 | FPLCA - DNR Landowner Contingency Assmt | $3.00 | $3.00 | $0.00 | $0.00 | $6.00 | $0.00 |
| 2025 | 442 | JCCD - JC Conservation District | $2.75 | $2.75 | $0.00 | $0.00 | $5.50 | $0.00 |
| 2025 | 442 | NWA - Noxious Weed Assessment | $2.75 | $2.75 | $0.00 | $0.00 | $5.50 | $0.00 |
| 2025 | 442 | OSS - On Site Septic | $21.50 | $21.50 | $0.00 | $0.00 | $43.00 | $0.00 |
| 2025 | 442 | WAT - Clean Water District | $13.00 | $13.00 | $0.00 | $0.00 | $26.00 | $0.00 |
| 2025 | 442 | FP ADMIN - FP ADMIN | $0.50 | $0.00 | $0.00 | $0.00 | $0.50 | $0.00 |
| 2025 | 442 | TOTAL: | $988.29 | $987.65 | $0.00 | $0.00 | $1975.94 | $0.00 |
|
| 2025 | 442 | $988.29 | $987.65 | $0.00 | $0.00 | $1975.94 | $0.00 |
Statement Details |
| 2024 | 442 | STATE - STATE LEVY (SCHOOL) | $228.94 | $228.93 | $0.00 | $0.00 | $457.87 | $0.00 |
| 2024 | 442 | COUNTY - COUNTY LEVIES (CE, DD, VET, MH) | $97.98 | $97.96 | $0.00 | $0.00 | $195.94 | $0.00 |
| 2024 | 442 | CONSERVE - CONSERVATION FUTURES | $2.94 | $2.94 | $0.00 | $0.00 | $5.88 | $0.00 |
| 2024 | 442 | COROADS - COUNTY ROADS (ROADS, DIV TO CE) | $78.83 | $78.82 | $0.00 | $0.00 | $157.65 | $0.00 |
| 2024 | 442 | PORTPT - PORT DISTRICT | $40.47 | $40.45 | $0.00 | $0.00 | $80.92 | $0.00 |
| 2024 | 442 | PUD1 - PUD #1 | $6.44 | $6.43 | $0.00 | $0.00 | $12.87 | $0.00 |
| 2024 | 442 | LIB1 - LIBRARY DIST #1 | $30.50 | $30.50 | $0.00 | $0.00 | $61.00 | $0.00 |
| 2024 | 442 | HD2 - HOSP DIST #2 | $5.72 | $5.71 | $0.00 | $0.00 | $11.43 | $0.00 |
| 2024 | 442 | SD50 - SCHOOL DIST #50 | $185.22 | $185.22 | $0.00 | $0.00 | $370.44 | $0.00 |
| 2024 | 442 | FD1 - FIRE DISTRICT #1 | $129.53 | $129.53 | $0.00 | $0.00 | $259.06 | $0.00 |
| 2024 | 442 | EMS1 - FIRE DIST #1 EMS | $49.48 | $49.47 | $0.00 | $0.00 | $98.95 | $0.00 |
| 2024 | 442 | FP - DNR Forest Fire Protection Assmt | $8.50 | $8.50 | $0.00 | $0.00 | $17.00 | $0.00 |
| 2024 | 442 | FPLCA - DNR Landowner Contingency Assmt | $3.00 | $3.00 | $0.00 | $0.00 | $6.00 | $0.00 |
| 2024 | 442 | JCCD - JC Conservation District | $2.75 | $2.75 | $0.00 | $0.00 | $5.50 | $0.00 |
| 2024 | 442 | NWA - Noxious Weed Assessment | $2.75 | $2.75 | $0.00 | $0.00 | $5.50 | $0.00 |
| 2024 | 442 | OSS - On Site Septic | $21.00 | $21.00 | $0.00 | $0.00 | $42.00 | $0.00 |
| 2024 | 442 | WAT - Clean Water District | $12.50 | $12.50 | $0.00 | $0.00 | $25.00 | $0.00 |
| 2024 | 442 | FP ADMIN - FP ADMIN | $0.50 | $0.00 | $0.00 | $0.00 | $0.50 | $0.00 |
| 2024 | 442 | TOTAL: | $907.05 | $906.46 | $0.00 | $0.00 | $1813.51 | $0.00 |
|
| 2024 | 442 | $907.05 | $906.46 | $0.00 | $0.00 | $1813.51 | $0.00 |
Statement Details |
| 2023 | 442 | STATE - STATE LEVY (SCHOOL) | $217.40 | $217.38 | $0.00 | $0.00 | $434.78 | $0.00 |
| 2023 | 442 | COUNTY - COUNTY LEVIES (CE, DD, VET, MH) | $94.87 | $94.86 | $0.00 | $0.00 | $189.73 | $0.00 |
| 2023 | 442 | CONSERVE - CONSERVATION FUTURES | $2.85 | $2.84 | $0.00 | $0.00 | $5.69 | $0.00 |
| 2023 | 442 | COROADS - COUNTY ROADS (ROADS, DIV TO CE) | $76.76 | $76.74 | $0.00 | $0.00 | $153.50 | $0.00 |
| 2023 | 442 | PORTPT - PORT DISTRICT | $39.97 | $39.96 | $0.00 | $0.00 | $79.93 | $0.00 |
| 2023 | 442 | PUD1 - PUD #1 | $6.29 | $6.29 | $0.00 | $0.00 | $12.58 | $0.00 |
| 2023 | 442 | LIB1 - LIBRARY DIST #1 | $29.70 | $29.69 | $0.00 | $0.00 | $59.39 | $0.00 |
| 2023 | 442 | HD2 - HOSP DIST #2 | $5.54 | $5.53 | $0.00 | $0.00 | $11.07 | $0.00 |
| 2023 | 442 | SD50 - SCHOOL DIST #50 | $172.52 | $172.49 | $0.00 | $0.00 | $345.01 | $0.00 |
| 2023 | 442 | FD1 - FIRE DISTRICT #1 | $78.15 | $78.15 | $0.00 | $0.00 | $156.30 | $0.00 |
| 2023 | 442 | EMS1 - FIRE DIST #1 EMS | $33.25 | $33.24 | $0.00 | $0.00 | $66.49 | $0.00 |
| 2023 | 442 | FP - DNR Forest Fire Protection Assmt | $8.50 | $8.50 | $0.00 | $0.00 | $17.00 | $0.00 |
| 2023 | 442 | FPLCA - DNR Landowner Contingency Assmt | $3.00 | $3.00 | $0.00 | $0.00 | $6.00 | $0.00 |
| 2023 | 442 | JCCD - JC Conservation District | $2.75 | $2.75 | $0.00 | $0.00 | $5.50 | $0.00 |
| 2023 | 442 | NWA - Noxious Weed Assessment | $2.75 | $2.75 | $0.00 | $0.00 | $5.50 | $0.00 |
| 2023 | 442 | OSS - On Site Septic | $20.50 | $20.50 | $0.00 | $0.00 | $41.00 | $0.00 |
| 2023 | 442 | WAT - Clean Water District | $12.00 | $12.00 | $0.00 | $0.00 | $24.00 | $0.00 |
| 2023 | 442 | FP ADMIN - FP ADMIN | $0.50 | $0.00 | $0.00 | $0.00 | $0.50 | $0.00 |
| 2023 | 442 | TOTAL: | $807.30 | $806.67 | $0.00 | $0.00 | $1613.97 | $0.00 |
|
| 2023 | 442 | $807.30 | $806.67 | $0.00 | $0.00 | $1613.97 | $0.00 |
Values
| (+) Improvement Homesite Value: | + | $2,623 | |
| (+) Improvement Non-Homesite Value: | + | $0 | |
| (+) Land Homesite Value: | + | $0 | |
| (+) Land Non-Homesite Value: | + | $230,575 | |
| (+) Curr Use (HS): | + | $0 | $0 |
| (+) Curr Use (NHS): | + | $0 | $0 |
| | | -------------------------- | |
| (=) Market Value: | = | $233,198 | |
| (–) Productivity Loss: | – | $0 | |
| | | -------------------------- | |
| (=) Subtotal: | = | $233,198 | |
| (+) Senior Appraised Value: | + | $0 | |
| (+) Non-Senior Appraised Value: | + | $233,198 | |
| | | -------------------------- | |
| (=) Total Appraised Value: | = | $233,198 | |
| (–) Senior Exemption Loss: | – | $0 | |
| (–) Exemption Loss: | – | $0 | |
| | | -------------------------- | |
| (=) Taxable Value: | = | $233,198 | |
Taxing Jurisdiction
| Owner: | WILLIAM R BARBER | | |
| % Ownership: | 100.0000000000% | | |
| Total Value: | $233,198 | | |
| Tax Area: | 0111 - 1-50F1E1H2L1 |
| CE | COUNTY CURRENT EXPENSE | 0.9034619479 | $233,198 | $233,198 | $210.69 | | |
| CNTYDD | DEVELOPMENTAL DISABILITIES | 0.0052121823 | $233,198 | $233,198 | $1.22 | | |
| CNTYVET | VETERANS RELIEF | 0.0052777810 | $233,198 | $233,198 | $1.23 | | |
| MENTAL | MENTAL HEALTH | 0.0052121823 | $233,198 | $233,198 | $1.22 | | |
| ROADS | COUNTY ROADS | 0.7415066410 | $233,198 | $233,198 | $172.92 | | |
| ROADSCU | COUNTY ROADS TO CUR EXP | 0.0000000000 | $233,198 | $233,198 | $0.00 | | |
| HOSP2CASH | HOSP DIST #2 GENERAL | 0.0536075306 | $233,198 | $233,198 | $12.50 | | |
| SCH50BOND | SCHOOL DIST #50 BOND 2016 | 0.5377451389 | $233,198 | $233,198 | $125.40 | | |
| SCH50CP | SCHOOL DIST #50 CAP PROJ | 0.4573475088 | $233,198 | $233,198 | $106.65 | | |
| SCH50MO | SCHOOL DIST #50 EP & O | 0.8262822886 | $233,198 | $233,198 | $192.69 | | |
| CONSERVE | CONSERVATION FUTURES | 0.0275621078 | $233,198 | $233,198 | $6.43 | | |
| EMS1 | FIRE DIST #1 EMS | 0.4679948282 | $233,198 | $233,198 | $109.14 | | |
| FD1 | FIRE DIST #1 GENERAL | 1.2171942929 | $233,198 | $233,198 | $283.85 | | |
| LIB1 | LIBRARY DIST #1 GENERAL | 0.2868827388 | $233,198 | $233,198 | $66.90 | | |
| PORTPT | PORT OF PT GENERAL | 0.1134941229 | $233,198 | $233,198 | $26.47 | | |
| PORTPTIDD | PORT OF PT IDD 2019 | 0.2577346692 | $233,198 | $233,198 | $60.10 | | |
| PUD1 | PUD #1 GENERAL | 0.0597888892 | $233,198 | $233,198 | $13.94 | | |
| STATE | STATE SCHOOL PART 1 | 1.4940692947 | $233,198 | $233,198 | $348.41 | | |
| STATE2 | STATE SCHOOL PART 2 | 0.8050170049 | $233,198 | $233,198 | $187.73 | | |
| | Total Tax Rate: | 8.2653911500 | | | | | |
| | | | | Taxes w/Current Exemptions: | $1,927.49 | | |
| | | | | Taxes w/o Exemptions: | $1,927.49 | | |
Improvement / Building
| Improvement #1: | Site Improvements | State Code: | 19 | 0.0 sqft | Value: | $2,623 |
Sketch
Property Image
Land
| 1 | 5310-1571A | | 4.0000 | 174240.00 | 0.00 | 0.00 | 0.00 | $101,200 | $0 |
| 2 | 5310-1371S | | 1.0000 | 43560.00 | 0.00 | 0.00 | 1.00 | $129,375 | $0 |
Roll Value History
| 2026 | N/A | N/A | N/A | N/A | N/A |
| 2025 | $2,623 | $230,575 | $0 | $233,198 | $233,198 |
| 2024 | $2,514 | $220,550 | $0 | $223,064 | $223,064 |
| 2023 | $2,405 | $195,500 | $0 | $197,905 | $197,905 |
| 2022 | $2,186 | $182,500 | $0 | $184,686 | $184,686 |
Deed and Sales History
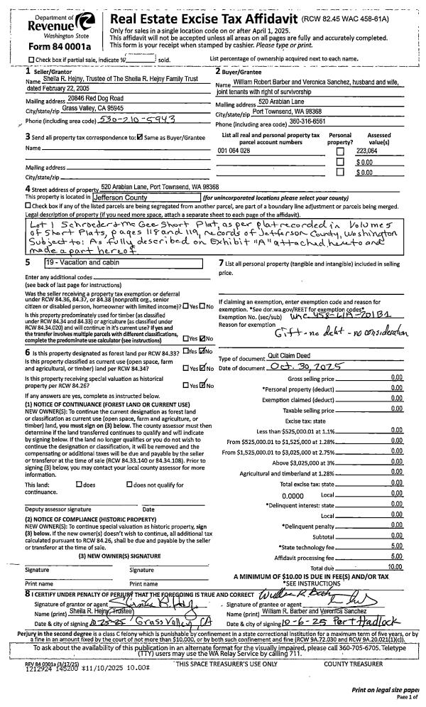
| 1 | 10/30/2025 | QCD | Quit Claim Deed | SHEILA HEJNY FAMILY TRUST | WILLIAM R BARBER | | | | 145200 | |
| 2 | 10/14/2014 | SWD | Statutory Warranty Deed | DAVID H SCHROEDER | SHEILA HEJNY FAMILY TRUST | | | $92,000.00 | 122182 | |
Payout Agreement
| No payout information available.. |