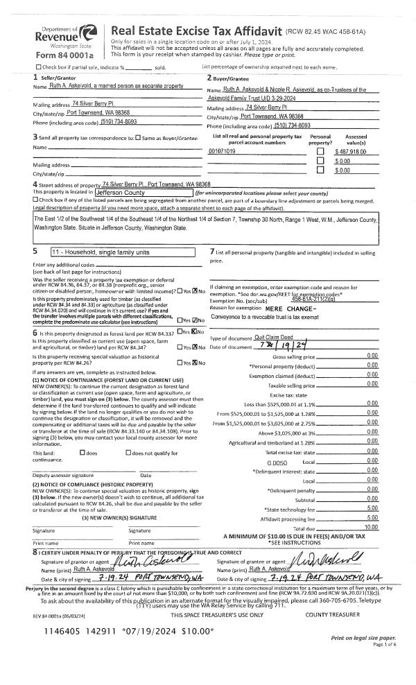
Property
Account |
| Property ID: | 10480 | Abbreviated Legal Description: | S7 T30N R1W E1/2 SW SE NE |
| Parcel # / Geo ID: | 001071019 | Agent Code: | |
| Type: | Real | | |
| Tax Area: | 0111 - 1-50F1E1H2L1 | Land Use Code | 11 |
| Open Space: | N | DFL | N |
| Historic Property: | N | Remodel Property: | N |
| Multi-Family Redevelopment: | N | | |
| Township: | 30N | Section: | 7 |
| Range: | 1W |
Location |
| Address: | 74 SILVER BERRY PL PORT TOWNSEND, WA 98368 | Mapsco: | 084/025 |
| Neighborhood: | S7 T30 R1W, ROSEBURG ADD | Map ID: | |
| Neighborhood CD: | 5325 |
Owner |
| Name: | ASKEVOLD FAMILY TRUST | Owner ID: | 110599 |
| Mailing Address: | RUTH A & NICOLE R ASKEVOLD TRUSTEES 74 SILVER BERRY PL PORT TOWNSEND, WA 98368-7302 | % Ownership: | 100.0000000000% |
| | | Exemptions: | |
Pay Tax Due
Select the appropriate checkbox next to the year to be paid. Multiple years may be selected.
*Convenience Fee not included
Taxes and Assessment Details
Property Tax Information as of
03/11/2026
Click on "Statement Details" to expand or collapse a tax statement.
* Please enter a valid date ** Please enter a valid date *
Statement Details |
| 2026 | 459 | STATE - STATE LEVY (SCHOOL) | $881.06 | $881.06 | $0.00 | $0.00 | $0.00 | $1762.12 |
| 2026 | 459 | COUNTY - COUNTY LEVIES (CE, DD, VET, MH) | $352.26 | $352.22 | $0.00 | $0.00 | $0.00 | $704.48 |
| 2026 | 459 | CONSERVE - CONSERVATION FUTURES | $10.56 | $10.56 | $0.00 | $0.00 | $0.00 | $21.12 |
| 2026 | 459 | COROADS - COUNTY ROADS (ROADS, DIV TO CE) | $284.16 | $284.16 | $0.00 | $0.00 | $0.00 | $568.32 |
| 2026 | 459 | PORTPT - PORT DISTRICT | $142.27 | $142.26 | $0.00 | $0.00 | $0.00 | $284.53 |
| 2026 | 459 | PUD1 - PUD #1 | $22.91 | $22.91 | $0.00 | $0.00 | $0.00 | $45.82 |
| 2026 | 459 | LIB1 - LIBRARY DIST #1 | $109.94 | $109.94 | $0.00 | $0.00 | $0.00 | $219.88 |
| 2026 | 459 | HD2 - HOSP DIST #2 | $20.55 | $20.54 | $0.00 | $0.00 | $0.00 | $41.09 |
| 2026 | 459 | SD50 - SCHOOL DIST #50 | $698.00 | $697.98 | $0.00 | $0.00 | $0.00 | $1395.98 |
| 2026 | 459 | FD1 - FIRE DISTRICT #1 | $466.46 | $466.45 | $0.00 | $0.00 | $0.00 | $932.91 |
| 2026 | 459 | EMS1 - FIRE DIST #1 EMS | $179.35 | $179.34 | $0.00 | $0.00 | $0.00 | $358.69 |
| 2026 | 459 | FP - DNR Forest Fire Protection Assmt | $8.50 | $8.50 | $0.00 | $0.00 | $0.00 | $17.00 |
| 2026 | 459 | FPLCA - DNR Landowner Contingency Assmt | $3.00 | $3.00 | $0.00 | $0.00 | $0.00 | $6.00 |
| 2026 | 459 | JCCD - JC Conservation District | $2.80 | $2.80 | $0.00 | $0.00 | $0.00 | $5.60 |
| 2026 | 459 | NWA - Noxious Weed Assessment | $4.10 | $4.10 | $0.00 | $0.00 | $0.00 | $8.20 |
| 2026 | 459 | OSS - On Site Septic | $23.10 | $23.10 | $0.00 | $0.00 | $0.00 | $46.20 |
| 2026 | 459 | WAT - Clean Water District | $13.00 | $13.00 | $0.00 | $0.00 | $0.00 | $26.00 |
| 2026 | 459 | FP ADMIN - FP ADMIN | $0.50 | $0.00 | $0.00 | $0.00 | $0.00 | $0.50 |
| 2026 | 459 | TOTAL: | $3222.52 | $3221.92 | $0.00 | $0.00 | $0.00 | $6444.44 |
|
| 2026 | 459 | $3222.52 | $3221.92 | $0.00 | $0.00 | $0.00 | $6444.44 |
Statement Details |
| 2025 | 460 | STATE - STATE LEVY (SCHOOL) | $918.98 | $918.97 | $0.00 | $0.00 | $1837.95 | $0.00 |
| 2025 | 460 | COUNTY - COUNTY LEVIES (CE, DD, VET, MH) | $361.39 | $361.37 | $0.00 | $0.00 | $722.76 | $0.00 |
| 2025 | 460 | CONSERVE - CONSERVATION FUTURES | $10.84 | $10.83 | $0.00 | $0.00 | $21.67 | $0.00 |
| 2025 | 460 | COROADS - COUNTY ROADS (ROADS, DIV TO CE) | $289.53 | $289.51 | $0.00 | $0.00 | $579.04 | $0.00 |
| 2025 | 460 | PORTPT - PORT DISTRICT | $147.47 | $147.46 | $0.00 | $0.00 | $294.93 | $0.00 |
| 2025 | 460 | PUD1 - PUD #1 | $23.65 | $23.64 | $0.00 | $0.00 | $47.29 | $0.00 |
| 2025 | 460 | LIB1 - LIBRARY DIST #1 | $112.02 | $112.01 | $0.00 | $0.00 | $224.03 | $0.00 |
| 2025 | 460 | HD2 - HOSP DIST #2 | $21.09 | $21.08 | $0.00 | $0.00 | $42.17 | $0.00 |
| 2025 | 460 | SD50 - SCHOOL DIST #50 | $671.62 | $671.61 | $0.00 | $0.00 | $1343.23 | $0.00 |
| 2025 | 460 | FD1 - FIRE DISTRICT #1 | $476.88 | $476.88 | $0.00 | $0.00 | $953.76 | $0.00 |
| 2025 | 460 | EMS1 - FIRE DIST #1 EMS | $183.42 | $183.42 | $0.00 | $0.00 | $366.84 | $0.00 |
| 2025 | 460 | FP - DNR Forest Fire Protection Assmt | $8.50 | $8.50 | $0.00 | $0.00 | $17.00 | $0.00 |
| 2025 | 460 | FPLCA - DNR Landowner Contingency Assmt | $3.00 | $3.00 | $0.00 | $0.00 | $6.00 | $0.00 |
| 2025 | 460 | JCCD - JC Conservation District | $2.80 | $2.80 | $0.00 | $0.00 | $5.60 | $0.00 |
| 2025 | 460 | NWA - Noxious Weed Assessment | $2.90 | $2.90 | $0.00 | $0.00 | $5.80 | $0.00 |
| 2025 | 460 | OSS - On Site Septic | $21.50 | $21.50 | $0.00 | $0.00 | $43.00 | $0.00 |
| 2025 | 460 | WAT - Clean Water District | $13.00 | $13.00 | $0.00 | $0.00 | $26.00 | $0.00 |
| 2025 | 460 | FP ADMIN - FP ADMIN | $0.50 | $0.00 | $0.00 | $0.00 | $0.50 | $0.00 |
| 2025 | 460 | TOTAL: | $3269.09 | $3268.48 | $0.00 | $0.00 | $6537.57 | $0.00 |
|
| 2025 | 460 | $3269.09 | $3268.48 | $0.00 | $0.00 | $6537.57 | $0.00 |
Statement Details |
| 2024 | 460 | STATE - STATE LEVY (SCHOOL) | $564.43 | $564.42 | $0.00 | $0.00 | $1128.85 | $0.00 |
| 2024 | 460 | COUNTY - COUNTY LEVIES (CE, DD, VET, MH) | $241.54 | $241.51 | $0.00 | $0.00 | $483.05 | $0.00 |
| 2024 | 460 | CONSERVE - CONSERVATION FUTURES | $7.24 | $7.24 | $0.00 | $0.00 | $14.48 | $0.00 |
| 2024 | 460 | COROADS - COUNTY ROADS (ROADS, DIV TO CE) | $194.35 | $194.34 | $0.00 | $0.00 | $388.69 | $0.00 |
| 2024 | 460 | PORTPT - PORT DISTRICT | $99.76 | $99.75 | $0.00 | $0.00 | $199.51 | $0.00 |
| 2024 | 460 | PUD1 - PUD #1 | $15.87 | $15.86 | $0.00 | $0.00 | $31.73 | $0.00 |
| 2024 | 460 | LIB1 - LIBRARY DIST #1 | $75.19 | $75.19 | $0.00 | $0.00 | $150.38 | $0.00 |
| 2024 | 460 | HD2 - HOSP DIST #2 | $14.09 | $14.09 | $0.00 | $0.00 | $28.18 | $0.00 |
| 2024 | 460 | SD50 - SCHOOL DIST #50 | $456.65 | $456.64 | $0.00 | $0.00 | $913.29 | $0.00 |
| 2024 | 460 | FD1 - FIRE DISTRICT #1 | $319.35 | $319.35 | $0.00 | $0.00 | $638.70 | $0.00 |
| 2024 | 460 | EMS1 - FIRE DIST #1 EMS | $121.98 | $121.98 | $0.00 | $0.00 | $243.96 | $0.00 |
| 2024 | 460 | FP - DNR Forest Fire Protection Assmt | $8.50 | $8.50 | $0.00 | $0.00 | $17.00 | $0.00 |
| 2024 | 460 | FPLCA - DNR Landowner Contingency Assmt | $3.00 | $3.00 | $0.00 | $0.00 | $6.00 | $0.00 |
| 2024 | 460 | JCCD - JC Conservation District | $2.80 | $2.80 | $0.00 | $0.00 | $5.60 | $0.00 |
| 2024 | 460 | NWA - Noxious Weed Assessment | $2.90 | $2.90 | $0.00 | $0.00 | $5.80 | $0.00 |
| 2024 | 460 | OSS - On Site Septic | $21.00 | $21.00 | $0.00 | $0.00 | $42.00 | $0.00 |
| 2024 | 460 | WAT - Clean Water District | $12.50 | $12.50 | $0.00 | $0.00 | $25.00 | $0.00 |
| 2024 | 460 | FP ADMIN - FP ADMIN | $0.50 | $0.00 | $0.00 | $0.00 | $0.50 | $0.00 |
| 2024 | 460 | TOTAL: | $2161.65 | $2161.07 | $0.00 | $0.00 | $4322.72 | $0.00 |
|
| 2024 | 460 | $2161.65 | $2161.07 | $0.00 | $0.00 | $4322.72 | $0.00 |
Statement Details |
| 2023 | 460 | STATE - STATE LEVY (SCHOOL) | $527.71 | $527.71 | $0.00 | $0.00 | $1055.42 | $0.00 |
| 2023 | 460 | COUNTY - COUNTY LEVIES (CE, DD, VET, MH) | $230.29 | $230.25 | $0.00 | $0.00 | $460.54 | $0.00 |
| 2023 | 460 | CONSERVE - CONSERVATION FUTURES | $6.91 | $6.90 | $0.00 | $0.00 | $13.81 | $0.00 |
| 2023 | 460 | COROADS - COUNTY ROADS (ROADS, DIV TO CE) | $186.31 | $186.31 | $0.00 | $0.00 | $372.62 | $0.00 |
| 2023 | 460 | PORTPT - PORT DISTRICT | $97.01 | $97.00 | $0.00 | $0.00 | $194.01 | $0.00 |
| 2023 | 460 | PUD1 - PUD #1 | $15.27 | $15.26 | $0.00 | $0.00 | $30.53 | $0.00 |
| 2023 | 460 | LIB1 - LIBRARY DIST #1 | $72.08 | $72.08 | $0.00 | $0.00 | $144.16 | $0.00 |
| 2023 | 460 | HD2 - HOSP DIST #2 | $13.44 | $13.43 | $0.00 | $0.00 | $26.87 | $0.00 |
| 2023 | 460 | SD50 - SCHOOL DIST #50 | $418.76 | $418.73 | $0.00 | $0.00 | $837.49 | $0.00 |
| 2023 | 460 | FD1 - FIRE DISTRICT #1 | $189.70 | $189.70 | $0.00 | $0.00 | $379.40 | $0.00 |
| 2023 | 460 | EMS1 - FIRE DIST #1 EMS | $80.70 | $80.69 | $0.00 | $0.00 | $161.39 | $0.00 |
| 2023 | 460 | FP - DNR Forest Fire Protection Assmt | $8.50 | $8.50 | $0.00 | $0.00 | $17.00 | $0.00 |
| 2023 | 460 | FPLCA - DNR Landowner Contingency Assmt | $3.00 | $3.00 | $0.00 | $0.00 | $6.00 | $0.00 |
| 2023 | 460 | JCCD - JC Conservation District | $2.80 | $2.80 | $0.00 | $0.00 | $5.60 | $0.00 |
| 2023 | 460 | NWA - Noxious Weed Assessment | $2.90 | $2.90 | $0.00 | $0.00 | $5.80 | $0.00 |
| 2023 | 460 | OSS - On Site Septic | $20.50 | $20.50 | $0.00 | $0.00 | $41.00 | $0.00 |
| 2023 | 460 | WAT - Clean Water District | $12.00 | $12.00 | $0.00 | $0.00 | $24.00 | $0.00 |
| 2023 | 460 | FP ADMIN - FP ADMIN | $0.50 | $0.00 | $0.00 | $0.00 | $0.50 | $0.00 |
| 2023 | 460 | TOTAL: | $1888.38 | $1887.76 | $0.00 | $0.00 | $3776.14 | $0.00 |
|
| 2023 | 460 | $1888.38 | $1887.76 | $0.00 | $0.00 | $3776.14 | $0.00 |
Values
| (+) Improvement Homesite Value: | + | $0 | |
| (+) Improvement Non-Homesite Value: | + | $539,252 | |
| (+) Land Homesite Value: | + | $0 | |
| (+) Land Non-Homesite Value: | + | $227,191 | |
| (+) Curr Use (HS): | + | $0 | $0 |
| (+) Curr Use (NHS): | + | $0 | $0 |
| | | -------------------------- | |
| (=) Market Value: | = | $766,443 | |
| (–) Productivity Loss: | – | $0 | |
| | | -------------------------- | |
| (=) Subtotal: | = | $766,443 | |
| (+) Senior Appraised Value: | + | $0 | |
| (+) Non-Senior Appraised Value: | + | $766,443 | |
| | | -------------------------- | |
| (=) Total Appraised Value: | = | $766,443 | |
| (–) Senior Exemption Loss: | – | $0 | |
| (–) Exemption Loss: | – | $0 | |
| | | -------------------------- | |
| (=) Taxable Value: | = | $766,443 | |
Taxing Jurisdiction
| Owner: | ASKEVOLD FAMILY TRUST | | |
| % Ownership: | 100.0000000000% | | |
| Total Value: | $766,443 | | |
| Tax Area: | 0111 - 1-50F1E1H2L1 |
| CE | COUNTY CURRENT EXPENSE | 0.9034619479 | $766,443 | $766,443 | $692.45 | | |
| CNTYDD | DEVELOPMENTAL DISABILITIES | 0.0052121823 | $766,443 | $766,443 | $3.99 | | |
| CNTYVET | VETERANS RELIEF | 0.0052777810 | $766,443 | $766,443 | $4.05 | | |
| MENTAL | MENTAL HEALTH | 0.0052121823 | $766,443 | $766,443 | $3.99 | | |
| ROADS | COUNTY ROADS | 0.7415066410 | $766,443 | $766,443 | $568.32 | | |
| ROADSCU | COUNTY ROADS TO CUR EXP | 0.0000000000 | $766,443 | $766,443 | $0.00 | | |
| HOSP2CASH | HOSP DIST #2 GENERAL | 0.0536075306 | $766,443 | $766,443 | $41.09 | | |
| SCH50BOND | SCHOOL DIST #50 BOND 2016 | 0.5377451389 | $766,443 | $766,443 | $412.15 | | |
| SCH50CP | SCHOOL DIST #50 CAP PROJ | 0.4573475088 | $766,443 | $766,443 | $350.53 | | |
| SCH50MO | SCHOOL DIST #50 EP & O | 0.8262822886 | $766,443 | $766,443 | $633.30 | | |
| CONSERVE | CONSERVATION FUTURES | 0.0275621078 | $766,443 | $766,443 | $21.12 | | |
| EMS1 | FIRE DIST #1 EMS | 0.4679948282 | $766,443 | $766,443 | $358.69 | | |
| FD1 | FIRE DIST #1 GENERAL | 1.2171942929 | $766,443 | $766,443 | $932.91 | | |
| LIB1 | LIBRARY DIST #1 GENERAL | 0.2868827388 | $766,443 | $766,443 | $219.88 | | |
| PORTPT | PORT OF PT GENERAL | 0.1134941229 | $766,443 | $766,443 | $86.99 | | |
| PORTPTIDD | PORT OF PT IDD 2019 | 0.2577346692 | $766,443 | $766,443 | $197.54 | | |
| PUD1 | PUD #1 GENERAL | 0.0597888892 | $766,443 | $766,443 | $45.82 | | |
| STATE | STATE SCHOOL PART 1 | 1.4940692947 | $766,443 | $766,443 | $1,145.12 | | |
| STATE2 | STATE SCHOOL PART 2 | 0.8050170049 | $766,443 | $766,443 | $617.00 | | |
| | Total Tax Rate: | 8.2653911500 | | | | | |
| | | | | Taxes w/Current Exemptions: | $6,334.94 | | |
| | | | | Taxes w/o Exemptions: | $6,334.94 | | |
Improvement / Building
| Improvement #1: | Residential Bldg | State Code: | 11 | 1420.0 sqft | Value: | $539,252 |
| Bathrooms (#): | 1 (FULL) | Bedrooms (#): | 2 | | Exterior Wall: | SI/ST | Fireplace: | WD ST-GOOD | | Floor Construction: | FRAME | Foundation: | CONPR | | Heating/Cooling: | OTHER | Roof Cover: | METAL |
|
| | Type | Description | Class CD | Sub Class CD | Year Built | Area |
| | MA | Main Area | 5+ | 2S | 2006 | 840.0 |
| | MA2 | Second Floor Main Area | 5 | 2S | 2006 | 580.0 |
| | HCPOR | House Concrete Porch | 4 | * | 2006 | 30.0 |
| | GDET | Detached Garage | 4 | 2S | 2006 | 784.0 |
| | SOLAR | Solar Panel | 3 | * | 2014 | 0.0 |
| | SHED | Shed (Table Not Dep) | 3 | * | 2006 | 48.0 |
| | PATIO | House Patio | 4 | * | 2017 | 290.0 |
| | SHED | Shed (Table Not Dep) | 4 | * | 2006 | 0.0 |
Sketch
Property Image
Land
| 1 | 1571A | | 4.0300 | 175546.80 | 0.00 | 0.00 | 0.00 | $86,666 | $0 |
| 2 | 5325-1371S | | 1.0000 | 43560.00 | 0.00 | 0.00 | 1.00 | $140,525 | $0 |
Roll Value History
| 2026 | N/A | N/A | N/A | N/A | N/A |
| 2025 | $539,252 | $227,191 | $0 | $766,443 | $766,443 |
| 2024 | $539,252 | $227,191 | $0 | $766,443 | $766,443 |
| 2023 | $324,062 | $163,856 | $0 | $487,918 | $487,918 |
| 2022 | $294,602 | $153,718 | $0 | $448,320 | $448,320 |
Deed and Sales History
| 1 | 07/19/2024 | QCD | Quit Claim Deed | RUTH A ASKEVOLD | ASKEVOLD FAMILY TRUST | | | | 142911 | |
| 2 | 05/21/2024 | QCD | Quit Claim Deed | NICOLE R ASKEVOLD | RUTH A ASKEVOLD | | | | 142645 | |
| 3 | 05/22/2024 | SWD | Statutory Warranty Deed | DAHR JAMAIL | RUTH A ASKEVOLD | | | $800,000.00 | 142644 | |
| 4 | 03/02/2016 | QCD | Quit Claim Deed | | | | | | 125190 | |
| 5 | 10/21/2013 | SWD | Statutory Warranty Deed | ANTHONY O FRANCIS | DAHR JAMAIL & ERIKA BLUMENFELD | | | $305,000.00 | 120198 | |
| 6 | 01/09/2004 | SWD | Statutory Warranty Deed | DOWNIE, DOUGLAS/KATHY STO | FRANCIS, ANTHONY/AXTMAN, | 0 | 0 | $81,000.00 | 99316 | 0 |
| 7 | 08/08/2002 | SWD | Statutory Warranty Deed | ERIC D STEFFEN | DOUGLAS ROBERT DOWNIE, KATHY S | 0 | 0 | $60,000.00 | 95321 | 0 |
| 8 | 09/01/1997 | SWD | Statutory Warranty Deed | DODD, JIM/DEBRA | STEFFEN, ERIC D | 0 | 0 | $41,750.00 | 82675 | 0 |
Payout Agreement
| No payout information available.. |