| 1 | 06/07/2019 | QCD | Quit Claim Deed | WASHINGTON HEALTH REAL ESTATE HOLDINGS LLC | | | | | 132494 | |
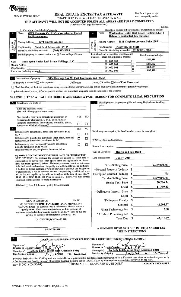
| 2 | 06/07/2019 | BSD | Bargain and Sale Deed | GWR PROPERTY CO LLC | WASHINGTON HEALTH REAL ESTATE HOLDINGS LLC | | | $2,359,886.00 | 132493 | |
|   | |
| 3 | 12/21/2016 | BSD | Bargain and Sale Deed | | | | | | 126934 | |
| 4 | 12/21/2016 | BSD | Bargain and Sale Deed | | | | | | 126933 | |
| 5 | 12/21/2016 | BSD | Bargain and Sale Deed | LANDS END PROPERTIES LLC | GWR PROPERTY CO LLC | | | $2,050,000.00 | 126874 | |
|   | |
| 6 | 01/28/2003 | QCD | Quit Claim Deed | GRAY WOLF RANCH INCORPORA | GWR PROPERTIES LLC | 0 | 0 | $0.00 | 96478 | 0 |
| 7 | 05/04/1999 | SWD | Statutory Warranty Deed | ENGELHARD, STEVEN J | GRAY WOLF RANCH INC | 0 | 0 | $145,000.00 | 86843 | 0 |