Property
Account |
| Property ID: | 10655 | Abbreviated Legal Description: | MARLOW SHORT PLAT LOT 3 |
| Parcel # / Geo ID: | 001093023 | Agent Code: | |
| Type: | Real | | |
| Tax Area: | 0111 - 1-50F1E1H2L1 | Land Use Code | 11 |
| Open Space: | N | DFL | N |
| Historic Property: | N | Remodel Property: | N |
| Multi-Family Redevelopment: | N | | |
| Township: | 30N | Section: | 9 |
| Range: | 1W |
Location |
| Address: | 103 LUPINE ST PORT TOWNSEND, WA 98368 | Mapsco: | 133/023 |
| Neighborhood: | S8 & 9 T30 R1W, BRIGGS, SYNDICATE, HOMESTEAD, KOZELISKY | Map ID: | |
| Neighborhood CD: | 5330 |
Owner |
| Name: | IAN & STEPHANIE HALL | Owner ID: | 111811 |
| Mailing Address: | 103 LUPINE ST PORT TOWNSEND, WA 98368-9233 | % Ownership: | 100.0000000000% |
| | | Exemptions: | |
Pay Tax Due
Select the appropriate checkbox next to the year to be paid. Multiple years may be selected.
*Convenience Fee not included
Taxes and Assessment Details
Property Tax Information as of
03/10/2026
Click on "Statement Details" to expand or collapse a tax statement.
* Please enter a valid date ** Please enter a valid date *
Statement Details |
| 2026 | 626 | STATE - STATE LEVY (SCHOOL) | $354.25 | $354.25 | $0.00 | $0.00 | $0.00 | $708.50 |
| 2026 | 626 | COUNTY - COUNTY LEVIES (CE, DD, VET, MH) | $141.65 | $141.61 | $0.00 | $0.00 | $0.00 | $283.26 |
| 2026 | 626 | CONSERVE - CONSERVATION FUTURES | $4.25 | $4.24 | $0.00 | $0.00 | $0.00 | $8.49 |
| 2026 | 626 | COROADS - COUNTY ROADS (ROADS, DIV TO CE) | $114.26 | $114.25 | $0.00 | $0.00 | $0.00 | $228.51 |
| 2026 | 626 | PORTPT - PORT DISTRICT | $57.20 | $57.19 | $0.00 | $0.00 | $0.00 | $114.39 |
| 2026 | 626 | PUD1 - PUD #1 | $9.21 | $9.21 | $0.00 | $0.00 | $0.00 | $18.42 |
| 2026 | 626 | LIB1 - LIBRARY DIST #1 | $44.21 | $44.20 | $0.00 | $0.00 | $0.00 | $88.41 |
| 2026 | 626 | HD2 - HOSP DIST #2 | $8.26 | $8.26 | $0.00 | $0.00 | $0.00 | $16.52 |
| 2026 | 626 | SD50 - SCHOOL DIST #50 | $280.65 | $280.63 | $0.00 | $0.00 | $0.00 | $561.28 |
| 2026 | 626 | FD1 - FIRE DISTRICT #1 | $187.55 | $187.55 | $0.00 | $0.00 | $0.00 | $375.10 |
| 2026 | 626 | EMS1 - FIRE DIST #1 EMS | $72.11 | $72.11 | $0.00 | $0.00 | $0.00 | $144.22 |
| 2026 | 626 | FP - DNR Forest Fire Protection Assmt | $8.50 | $8.50 | $0.00 | $0.00 | $0.00 | $17.00 |
| 2026 | 626 | FPLCA - DNR Landowner Contingency Assmt | $3.00 | $3.00 | $0.00 | $0.00 | $0.00 | $6.00 |
| 2026 | 626 | JCCD - JC Conservation District | $2.65 | $2.65 | $0.00 | $0.00 | $0.00 | $5.30 |
| 2026 | 626 | NWA - Noxious Weed Assessment | $3.43 | $3.42 | $0.00 | $0.00 | $0.00 | $6.85 |
| 2026 | 626 | OSS - On Site Septic | $23.10 | $23.10 | $0.00 | $0.00 | $0.00 | $46.20 |
| 2026 | 626 | WAT - Clean Water District | $13.00 | $13.00 | $0.00 | $0.00 | $0.00 | $26.00 |
| 2026 | 626 | FP ADMIN - FP ADMIN | $0.50 | $0.00 | $0.00 | $0.00 | $0.00 | $0.50 |
| 2026 | 626 | TOTAL: | $1327.78 | $1327.17 | $0.00 | $0.00 | $0.00 | $2654.95 |
|
| 2026 | 626 | $1327.78 | $1327.17 | $0.00 | $0.00 | $0.00 | $2654.95 |
Statement Details |
| 2025 | 630 | STATE - STATE LEVY (SCHOOL) | $369.50 | $369.49 | $0.00 | $0.00 | $738.99 | $0.00 |
| 2025 | 630 | COUNTY - COUNTY LEVIES (CE, DD, VET, MH) | $145.30 | $145.29 | $0.00 | $0.00 | $290.59 | $0.00 |
| 2025 | 630 | CONSERVE - CONSERVATION FUTURES | $4.36 | $4.35 | $0.00 | $0.00 | $8.71 | $0.00 |
| 2025 | 630 | COROADS - COUNTY ROADS (ROADS, DIV TO CE) | $116.41 | $116.41 | $0.00 | $0.00 | $232.82 | $0.00 |
| 2025 | 630 | PORTPT - PORT DISTRICT | $59.29 | $59.29 | $0.00 | $0.00 | $118.58 | $0.00 |
| 2025 | 630 | PUD1 - PUD #1 | $9.51 | $9.51 | $0.00 | $0.00 | $19.02 | $0.00 |
| 2025 | 630 | LIB1 - LIBRARY DIST #1 | $45.04 | $45.04 | $0.00 | $0.00 | $90.08 | $0.00 |
| 2025 | 630 | HD2 - HOSP DIST #2 | $8.48 | $8.47 | $0.00 | $0.00 | $16.95 | $0.00 |
| 2025 | 630 | SD50 - SCHOOL DIST #50 | $270.04 | $270.03 | $0.00 | $0.00 | $540.07 | $0.00 |
| 2025 | 630 | FD1 - FIRE DISTRICT #1 | $191.74 | $191.74 | $0.00 | $0.00 | $383.48 | $0.00 |
| 2025 | 630 | EMS1 - FIRE DIST #1 EMS | $73.75 | $73.75 | $0.00 | $0.00 | $147.50 | $0.00 |
| 2025 | 630 | FP - DNR Forest Fire Protection Assmt | $8.50 | $8.50 | $0.00 | $0.00 | $17.00 | $0.00 |
| 2025 | 630 | FPLCA - DNR Landowner Contingency Assmt | $3.00 | $3.00 | $0.00 | $0.00 | $6.00 | $0.00 |
| 2025 | 630 | JCCD - JC Conservation District | $2.65 | $2.65 | $0.00 | $0.00 | $5.30 | $0.00 |
| 2025 | 630 | NWA - Noxious Weed Assessment | $2.45 | $2.45 | $0.00 | $0.00 | $4.90 | $0.00 |
| 2025 | 630 | OSS - On Site Septic | $21.50 | $21.50 | $0.00 | $0.00 | $43.00 | $0.00 |
| 2025 | 630 | WAT - Clean Water District | $13.00 | $13.00 | $0.00 | $0.00 | $26.00 | $0.00 |
| 2025 | 630 | FP ADMIN - FP ADMIN | $0.50 | $0.00 | $0.00 | $0.00 | $0.50 | $0.00 |
| 2025 | 630 | TOTAL: | $1345.02 | $1344.47 | $0.00 | $0.00 | $2689.49 | $0.00 |
|
| 2025 | 630 | $1345.02 | $1344.47 | $0.00 | $0.00 | $2689.49 | $0.00 |
Statement Details |
| 2024 | 631 | STATE - STATE LEVY (SCHOOL) | $317.83 | $317.81 | $0.00 | $0.00 | $635.64 | $0.00 |
| 2024 | 631 | COUNTY - COUNTY LEVIES (CE, DD, VET, MH) | $136.01 | $136.00 | $0.00 | $0.00 | $272.01 | $0.00 |
| 2024 | 631 | CONSERVE - CONSERVATION FUTURES | $4.08 | $4.08 | $0.00 | $0.00 | $8.16 | $0.00 |
| 2024 | 631 | COROADS - COUNTY ROADS (ROADS, DIV TO CE) | $109.44 | $109.43 | $0.00 | $0.00 | $218.87 | $0.00 |
| 2024 | 631 | PORTPT - PORT DISTRICT | $56.17 | $56.17 | $0.00 | $0.00 | $112.34 | $0.00 |
| 2024 | 631 | PUD1 - PUD #1 | $8.94 | $8.93 | $0.00 | $0.00 | $17.87 | $0.00 |
| 2024 | 631 | LIB1 - LIBRARY DIST #1 | $42.34 | $42.34 | $0.00 | $0.00 | $84.68 | $0.00 |
| 2024 | 631 | HD2 - HOSP DIST #2 | $7.94 | $7.93 | $0.00 | $0.00 | $15.87 | $0.00 |
| 2024 | 631 | SD50 - SCHOOL DIST #50 | $257.14 | $257.12 | $0.00 | $0.00 | $514.26 | $0.00 |
| 2024 | 631 | FD1 - FIRE DISTRICT #1 | $179.82 | $179.82 | $0.00 | $0.00 | $359.64 | $0.00 |
| 2024 | 631 | EMS1 - FIRE DIST #1 EMS | $68.69 | $68.68 | $0.00 | $0.00 | $137.37 | $0.00 |
| 2024 | 631 | FP - DNR Forest Fire Protection Assmt | $8.50 | $8.50 | $0.00 | $0.00 | $17.00 | $0.00 |
| 2024 | 631 | FPLCA - DNR Landowner Contingency Assmt | $3.00 | $3.00 | $0.00 | $0.00 | $6.00 | $0.00 |
| 2024 | 631 | JCCD - JC Conservation District | $2.65 | $2.65 | $0.00 | $0.00 | $5.30 | $0.00 |
| 2024 | 631 | NWA - Noxious Weed Assessment | $2.45 | $2.45 | $0.00 | $0.00 | $4.90 | $0.00 |
| 2024 | 631 | OSS - On Site Septic | $21.00 | $21.00 | $0.00 | $0.00 | $42.00 | $0.00 |
| 2024 | 631 | WAT - Clean Water District | $12.50 | $12.50 | $0.00 | $0.00 | $25.00 | $0.00 |
| 2024 | 631 | FP ADMIN - FP ADMIN | $0.50 | $0.00 | $0.00 | $0.00 | $0.50 | $0.00 |
| 2024 | 631 | TOTAL: | $1239.00 | $1238.41 | $0.00 | $0.00 | $2477.41 | $0.00 |
|
| 2024 | 631 | $1239.00 | $1238.41 | $0.00 | $0.00 | $2477.41 | $0.00 |
Statement Details |
| 2023 | 631 | STATE - STATE LEVY (SCHOOL) | $292.97 | $292.96 | $0.00 | $0.00 | $585.93 | $0.00 |
| 2023 | 631 | COUNTY - COUNTY LEVIES (CE, DD, VET, MH) | $127.86 | $127.82 | $0.00 | $0.00 | $255.68 | $0.00 |
| 2023 | 631 | CONSERVE - CONSERVATION FUTURES | $3.84 | $3.83 | $0.00 | $0.00 | $7.67 | $0.00 |
| 2023 | 631 | COROADS - COUNTY ROADS (ROADS, DIV TO CE) | $103.44 | $103.42 | $0.00 | $0.00 | $206.86 | $0.00 |
| 2023 | 631 | PORTPT - PORT DISTRICT | $53.86 | $53.85 | $0.00 | $0.00 | $107.71 | $0.00 |
| 2023 | 631 | PUD1 - PUD #1 | $8.48 | $8.47 | $0.00 | $0.00 | $16.95 | $0.00 |
| 2023 | 631 | LIB1 - LIBRARY DIST #1 | $40.02 | $40.01 | $0.00 | $0.00 | $80.03 | $0.00 |
| 2023 | 631 | HD2 - HOSP DIST #2 | $7.47 | $7.45 | $0.00 | $0.00 | $14.92 | $0.00 |
| 2023 | 631 | SD50 - SCHOOL DIST #50 | $232.47 | $232.47 | $0.00 | $0.00 | $464.94 | $0.00 |
| 2023 | 631 | FD1 - FIRE DISTRICT #1 | $105.32 | $105.31 | $0.00 | $0.00 | $210.63 | $0.00 |
| 2023 | 631 | EMS1 - FIRE DIST #1 EMS | $44.80 | $44.80 | $0.00 | $0.00 | $89.60 | $0.00 |
| 2023 | 631 | FP - DNR Forest Fire Protection Assmt | $8.50 | $8.50 | $0.00 | $0.00 | $17.00 | $0.00 |
| 2023 | 631 | FPLCA - DNR Landowner Contingency Assmt | $3.00 | $3.00 | $0.00 | $0.00 | $6.00 | $0.00 |
| 2023 | 631 | JCCD - JC Conservation District | $2.65 | $2.65 | $0.00 | $0.00 | $5.30 | $0.00 |
| 2023 | 631 | NWA - Noxious Weed Assessment | $2.45 | $2.45 | $0.00 | $0.00 | $4.90 | $0.00 |
| 2023 | 631 | OSS - On Site Septic | $20.50 | $20.50 | $0.00 | $0.00 | $41.00 | $0.00 |
| 2023 | 631 | WAT - Clean Water District | $12.00 | $12.00 | $0.00 | $0.00 | $24.00 | $0.00 |
| 2023 | 631 | FP ADMIN - FP ADMIN | $0.50 | $0.00 | $0.00 | $0.00 | $0.50 | $0.00 |
| 2023 | 631 | TOTAL: | $1070.13 | $1069.49 | $0.00 | $0.00 | $2139.62 | $0.00 |
|
| 2023 | 631 | $1070.13 | $1069.49 | $0.00 | $0.00 | $2139.62 | $0.00 |
Values
| (+) Improvement Homesite Value: | + | $0 | |
| (+) Improvement Non-Homesite Value: | + | $142,303 | |
| (+) Land Homesite Value: | + | $0 | |
| (+) Land Non-Homesite Value: | + | $165,861 | |
| (+) Curr Use (HS): | + | $0 | $0 |
| (+) Curr Use (NHS): | + | $0 | $0 |
| | | -------------------------- | |
| (=) Market Value: | = | $308,164 | |
| (–) Productivity Loss: | – | $0 | |
| | | -------------------------- | |
| (=) Subtotal: | = | $308,164 | |
| (+) Senior Appraised Value: | + | $0 | |
| (+) Non-Senior Appraised Value: | + | $308,164 | |
| | | -------------------------- | |
| (=) Total Appraised Value: | = | $308,164 | |
| (–) Senior Exemption Loss: | – | $0 | |
| (–) Exemption Loss: | – | $0 | |
| | | -------------------------- | |
| (=) Taxable Value: | = | $308,164 | |
Taxing Jurisdiction
| Owner: | IAN & STEPHANIE HALL | | |
| % Ownership: | 100.0000000000% | | |
| Total Value: | $308,164 | | |
| Tax Area: | 0111 - 1-50F1E1H2L1 |
| CE | COUNTY CURRENT EXPENSE | 0.9034619479 | $308,164 | $308,164 | $278.41 | | |
| CNTYDD | DEVELOPMENTAL DISABILITIES | 0.0052121823 | $308,164 | $308,164 | $1.61 | | |
| CNTYVET | VETERANS RELIEF | 0.0052777810 | $308,164 | $308,164 | $1.63 | | |
| MENTAL | MENTAL HEALTH | 0.0052121823 | $308,164 | $308,164 | $1.61 | | |
| ROADS | COUNTY ROADS | 0.7415066410 | $308,164 | $308,164 | $228.51 | | |
| ROADSCU | COUNTY ROADS TO CUR EXP | 0.0000000000 | $308,164 | $308,164 | $0.00 | | |
| HOSP2CASH | HOSP DIST #2 GENERAL | 0.0536075306 | $308,164 | $308,164 | $16.52 | | |
| SCH50BOND | SCHOOL DIST #50 BOND 2016 | 0.5377451389 | $308,164 | $308,164 | $165.71 | | |
| SCH50CP | SCHOOL DIST #50 CAP PROJ | 0.4573475088 | $308,164 | $308,164 | $140.94 | | |
| SCH50MO | SCHOOL DIST #50 EP & O | 0.8262822886 | $308,164 | $308,164 | $254.63 | | |
| CONSERVE | CONSERVATION FUTURES | 0.0275621078 | $308,164 | $308,164 | $8.49 | | |
| EMS1 | FIRE DIST #1 EMS | 0.4679948282 | $308,164 | $308,164 | $144.22 | | |
| FD1 | FIRE DIST #1 GENERAL | 1.2171942929 | $308,164 | $308,164 | $375.10 | | |
| LIB1 | LIBRARY DIST #1 GENERAL | 0.2868827388 | $308,164 | $308,164 | $88.41 | | |
| PORTPT | PORT OF PT GENERAL | 0.1134941229 | $308,164 | $308,164 | $34.97 | | |
| PORTPTIDD | PORT OF PT IDD 2019 | 0.2577346692 | $308,164 | $308,164 | $79.42 | | |
| PUD1 | PUD #1 GENERAL | 0.0597888892 | $308,164 | $308,164 | $18.42 | | |
| STATE | STATE SCHOOL PART 1 | 1.4940692947 | $308,164 | $308,164 | $460.42 | | |
| STATE2 | STATE SCHOOL PART 2 | 0.8050170049 | $308,164 | $308,164 | $248.08 | | |
| | Total Tax Rate: | 8.2653911500 | | | | | |
| | | | | Taxes w/Current Exemptions: | $2,547.10 | | |
| | | | | Taxes w/o Exemptions: | $2,547.10 | | |
Improvement / Building
| Improvement #1: | Residential Bldg | State Code: | 11 | 720.0 sqft | Value: | $142,303 |
| Bathrooms (#): | 1 (FULL) | Bedrooms (#): | 1 | | Exterior Wall: | METAL | Floor Construction: | FRAME | | Foundation: | PO&BL | Heating/Cooling: | OTHER | | Roof Cover: | METAL |   |   |
|
| | Type | Description | Class CD | Sub Class CD | Year Built | Area |
| | MA | Main Area | 2 | 15SF | 1996 | 720.0 |
| | HCPOR | House Concrete Porch | 2 | * | 1996 | 120.0 |
| | CONCD | Concrete Drive | 2 | * | 1996 | 336.0 |
| | BSMTU | House basement unfinished | 2 | * | 1996 | 1080.0 |
| | HDECK | House Deck | 3 | * | 1996 | 88.0 |
Sketch
Property Image
Land
| 1 | 1574A | | 1.6300 | 71002.80 | 0.00 | 0.00 | 0.00 | $22,861 | $0 |
| 2 | 5330-1373S | | 1.0000 | 43560.00 | 0.00 | 0.00 | 1.00 | $143,000 | $0 |
Roll Value History
| 2026 | N/A | N/A | N/A | N/A | N/A |
| 2025 | $142,303 | $165,861 | $0 | $308,164 | $308,164 |
| 2024 | $142,303 | $165,861 | $0 | $308,164 | $308,164 |
| 2023 | $122,953 | $151,788 | $0 | $274,741 | $274,741 |
| 2022 | $111,775 | $137,115 | $0 | $248,890 | $248,890 |
Deed and Sales History
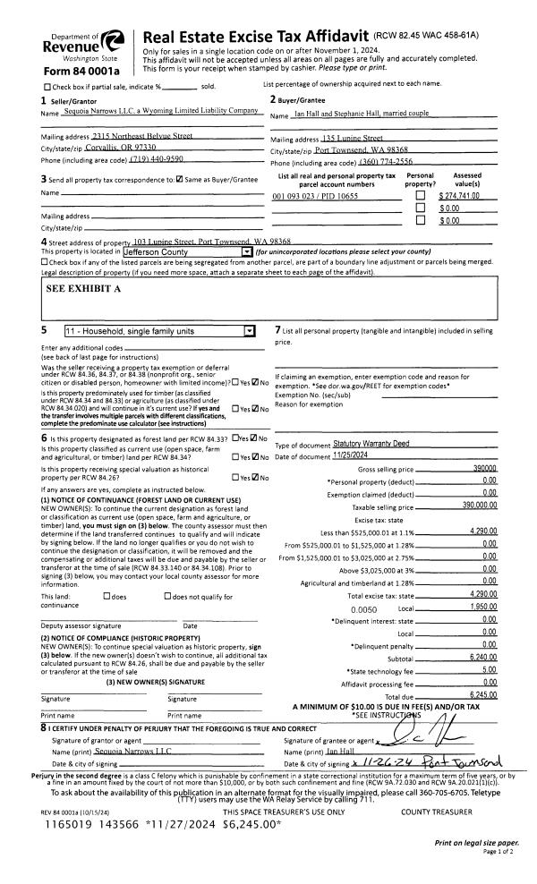
| 1 | 11/25/2024 | SWD | Statutory Warranty Deed | SEQUOIA NARROWS LLC | IAN & STEPHANIE HALL | | | $390,000.00 | 143566 | |
| 2 | 10/08/2019 | BSD | Bargain and Sale Deed | ARN MC KENNA | SEQUOIA NARROWS LLC | | | | 133261 | |
| 3 | 09/24/2001 | SWD | Statutory Warranty Deed | JOHNSON, STEVEN M, HENLEY | MCKENNA, ARN/LYNDA A | 0 | 0 | $89,000.00 | 93133 | 0 |
| 4 | 07/13/1995 | SWD | Statutory Warranty Deed | MARLOW, WILLIAM S | JOHNSON, S M/HENLEY, M J | 0 | 0 | $35,000.00 | 77322 | 0 |
Payout Agreement
| No payout information available.. |