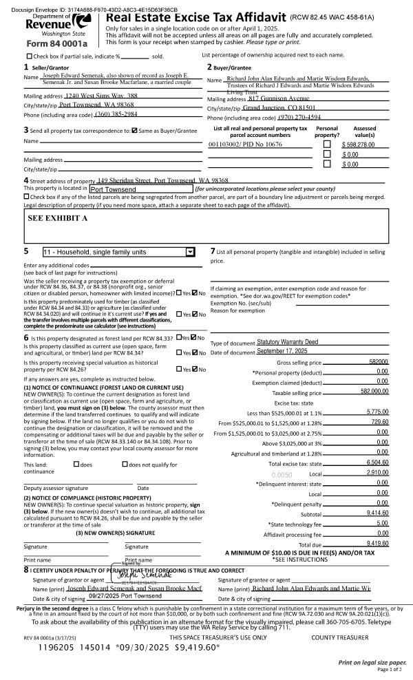
Property
Account |
| Property ID: | 10676 | Abbreviated Legal Description: | S10 T30 R1W TAX 2 |
| Parcel # / Geo ID: | 001103002 | Agent Code: | |
| Type: | Real | | |
| Tax Area: | 0110 - C-50F1E1H2 | Land Use Code | 11 |
| Open Space: | N | DFL | N |
| Historic Property: | N | Remodel Property: | N |
| Multi-Family Redevelopment: | N | | |
| Township: | 30N | Section: | 10 |
| Range: | 1W |
Location |
| Address: | 149 SHERIDAN ST PORT TOWNSEND, WA 98368 | Mapsco: | 158/001 |
| Neighborhood: | EISENBEIS, OC HASTINGS & SUPP, PINKS LESS VICTORIAN VILLAGE | Map ID: | |
| Neighborhood CD: | 6210 |
Owner |
| Name: | RICHARD J & MARTIE W EDWARDS LIVING TRUST | Owner ID: | 113433 |
| Mailing Address: | RICHARD J A & MARTIE W EDWARDS TTEES 817 GUNNISON AVE GRAND JUNCTION, CO 81501-3209 | % Ownership: | 100.0000000000% |
| | | Exemptions: | |
Pay Tax Due
Select the appropriate checkbox next to the year to be paid. Multiple years may be selected.
*Convenience Fee not included
Taxes and Assessment Details
Property Tax Information as of
03/10/2026
Click on "Statement Details" to expand or collapse a tax statement.
* Please enter a valid date ** Please enter a valid date *
Statement Details |
| 2026 | 645 | STATE - STATE LEVY (SCHOOL) | $746.66 | $746.66 | $0.00 | $0.00 | $0.00 | $1493.32 |
| 2026 | 645 | COUNTY - COUNTY LEVIES (CE, DD, VET, MH) | $298.54 | $298.50 | $0.00 | $0.00 | $0.00 | $597.04 |
| 2026 | 645 | CONSERVE - CONSERVATION FUTURES | $8.95 | $8.95 | $0.00 | $0.00 | $0.00 | $17.90 |
| 2026 | 645 | CITYPT - CITY OF PT | $423.72 | $423.71 | $0.00 | $0.00 | $0.00 | $847.43 |
| 2026 | 645 | PORTPT - PORT DISTRICT | $120.57 | $120.56 | $0.00 | $0.00 | $0.00 | $241.13 |
| 2026 | 645 | PUD1 - PUD #1 | $19.42 | $19.41 | $0.00 | $0.00 | $0.00 | $38.83 |
| 2026 | 645 | HD2 - HOSP DIST #2 | $17.41 | $17.41 | $0.00 | $0.00 | $0.00 | $34.82 |
| 2026 | 645 | SD50 - SCHOOL DIST #50 | $591.52 | $591.52 | $0.00 | $0.00 | $0.00 | $1183.04 |
| 2026 | 645 | FD1 - FIRE DISTRICT #1 | $395.31 | $395.30 | $0.00 | $0.00 | $0.00 | $790.61 |
| 2026 | 645 | EMS1 - FIRE DIST #1 EMS | $151.99 | $151.99 | $0.00 | $0.00 | $0.00 | $303.98 |
| 2026 | 645 | JCCD - JC Conservation District | $2.55 | $2.55 | $0.00 | $0.00 | $0.00 | $5.10 |
| 2026 | 645 | NWA - Noxious Weed Assessment | $2.98 | $2.97 | $0.00 | $0.00 | $0.00 | $5.95 |
| 2026 | 645 | TOTAL: | $2779.62 | $2779.53 | $0.00 | $0.00 | $0.00 | $5559.15 |
|
| 2026 | 645 | $2779.62 | $2779.53 | $0.00 | $0.00 | $0.00 | $5559.15 |
Statement Details |
| 2025 | 649 | STATE - STATE LEVY (SCHOOL) | $717.35 | $717.34 | $0.00 | $0.00 | $1434.69 | $0.00 |
| 2025 | 649 | COUNTY - COUNTY LEVIES (CE, DD, VET, MH) | $282.10 | $282.07 | $0.00 | $0.00 | $564.17 | $0.00 |
| 2025 | 649 | CONSERVE - CONSERVATION FUTURES | $8.46 | $8.46 | $0.00 | $0.00 | $16.92 | $0.00 |
| 2025 | 649 | CITYPT - CITY OF PT | $406.82 | $406.79 | $0.00 | $0.00 | $813.61 | $0.00 |
| 2025 | 649 | PORTPT - PORT DISTRICT | $115.11 | $115.11 | $0.00 | $0.00 | $230.22 | $0.00 |
| 2025 | 649 | PUD1 - PUD #1 | $18.46 | $18.46 | $0.00 | $0.00 | $36.92 | $0.00 |
| 2025 | 649 | HD2 - HOSP DIST #2 | $16.46 | $16.46 | $0.00 | $0.00 | $32.92 | $0.00 |
| 2025 | 649 | SD50 - SCHOOL DIST #50 | $524.27 | $524.25 | $0.00 | $0.00 | $1048.52 | $0.00 |
| 2025 | 649 | FD1 - FIRE DISTRICT #1 | $372.25 | $372.25 | $0.00 | $0.00 | $744.50 | $0.00 |
| 2025 | 649 | EMS1 - FIRE DIST #1 EMS | $143.18 | $143.17 | $0.00 | $0.00 | $286.35 | $0.00 |
| 2025 | 649 | JCCD - JC Conservation District | $2.55 | $2.55 | $0.00 | $0.00 | $5.10 | $0.00 |
| 2025 | 649 | NWA - Noxious Weed Assessment | $2.15 | $2.15 | $0.00 | $0.00 | $4.30 | $0.00 |
| 2025 | 649 | TOTAL: | $2609.16 | $2609.06 | $0.00 | $0.00 | $5218.22 | $0.00 |
|
| 2025 | 649 | $2609.16 | $2609.06 | $0.00 | $0.00 | $5218.22 | $0.00 |
Statement Details |
| 2024 | 650 | STATE - STATE LEVY (SCHOOL) | $655.01 | $655.00 | $0.00 | $0.00 | $1310.01 | $0.00 |
| 2024 | 650 | COUNTY - COUNTY LEVIES (CE, DD, VET, MH) | $280.28 | $280.27 | $0.00 | $0.00 | $560.55 | $0.00 |
| 2024 | 650 | CONSERVE - CONSERVATION FUTURES | $8.41 | $8.40 | $0.00 | $0.00 | $16.81 | $0.00 |
| 2024 | 650 | CITYPT - CITY OF PT | $400.50 | $400.47 | $0.00 | $0.00 | $800.97 | $0.00 |
| 2024 | 650 | PORTPT - PORT DISTRICT | $115.77 | $115.77 | $0.00 | $0.00 | $231.54 | $0.00 |
| 2024 | 650 | PUD1 - PUD #1 | $18.41 | $18.41 | $0.00 | $0.00 | $36.82 | $0.00 |
| 2024 | 650 | HD2 - HOSP DIST #2 | $16.36 | $16.35 | $0.00 | $0.00 | $32.71 | $0.00 |
| 2024 | 650 | SD50 - SCHOOL DIST #50 | $529.94 | $529.92 | $0.00 | $0.00 | $1059.86 | $0.00 |
| 2024 | 650 | FD1 - FIRE DISTRICT #1 | $370.60 | $370.60 | $0.00 | $0.00 | $741.20 | $0.00 |
| 2024 | 650 | EMS1 - FIRE DIST #1 EMS | $141.56 | $141.55 | $0.00 | $0.00 | $283.11 | $0.00 |
| 2024 | 650 | JCCD - JC Conservation District | $2.55 | $2.55 | $0.00 | $0.00 | $5.10 | $0.00 |
| 2024 | 650 | NWA - Noxious Weed Assessment | $2.15 | $2.15 | $0.00 | $0.00 | $4.30 | $0.00 |
| 2024 | 650 | TOTAL: | $2541.54 | $2541.44 | $0.00 | $0.00 | $5082.98 | $0.00 |
|
| 2024 | 650 | $2541.54 | $2541.44 | $0.00 | $0.00 | $5082.98 | $0.00 |
Statement Details |
| 2023 | 650 | STATE - STATE LEVY (SCHOOL) | $660.61 | $660.60 | $0.00 | $0.00 | $1321.21 | $0.00 |
| 2023 | 650 | COUNTY - COUNTY LEVIES (CE, DD, VET, MH) | $288.28 | $288.24 | $0.00 | $0.00 | $576.52 | $0.00 |
| 2023 | 650 | CONSERVE - CONSERVATION FUTURES | $8.65 | $8.64 | $0.00 | $0.00 | $17.29 | $0.00 |
| 2023 | 650 | CITYPT - CITY OF PT | $407.42 | $407.41 | $0.00 | $0.00 | $814.83 | $0.00 |
| 2023 | 650 | PORTPT - PORT DISTRICT | $121.44 | $121.43 | $0.00 | $0.00 | $242.87 | $0.00 |
| 2023 | 650 | PUD1 - PUD #1 | $19.11 | $19.11 | $0.00 | $0.00 | $38.22 | $0.00 |
| 2023 | 650 | HD2 - HOSP DIST #2 | $16.83 | $16.82 | $0.00 | $0.00 | $33.65 | $0.00 |
| 2023 | 650 | SD50 - SCHOOL DIST #50 | $524.21 | $524.19 | $0.00 | $0.00 | $1048.40 | $0.00 |
| 2023 | 650 | FD1 - FIRE DISTRICT #1 | $237.48 | $237.47 | $0.00 | $0.00 | $474.95 | $0.00 |
| 2023 | 650 | EMS1 - FIRE DIST #1 EMS | $101.02 | $101.01 | $0.00 | $0.00 | $202.03 | $0.00 |
| 2023 | 650 | JCCD - JC Conservation District | $2.55 | $2.55 | $0.00 | $0.00 | $5.10 | $0.00 |
| 2023 | 650 | NWA - Noxious Weed Assessment | $2.15 | $2.15 | $0.00 | $0.00 | $4.30 | $0.00 |
| 2023 | 650 | TOTAL: | $2389.75 | $2389.62 | $0.00 | $0.00 | $4779.37 | $0.00 |
|
| 2023 | 650 | $2389.75 | $2389.62 | $0.00 | $0.00 | $4779.37 | $0.00 |
Values
| (+) Improvement Homesite Value: | + | $0 | |
| (+) Improvement Non-Homesite Value: | + | $379,531 | |
| (+) Land Homesite Value: | + | $0 | |
| (+) Land Non-Homesite Value: | + | $270,000 | |
| (+) Curr Use (HS): | + | $0 | $0 |
| (+) Curr Use (NHS): | + | $0 | $0 |
| | | -------------------------- | |
| (=) Market Value: | = | $649,531 | |
| (–) Productivity Loss: | – | $0 | |
| | | -------------------------- | |
| (=) Subtotal: | = | $649,531 | |
| (+) Senior Appraised Value: | + | $0 | |
| (+) Non-Senior Appraised Value: | + | $649,531 | |
| | | -------------------------- | |
| (=) Total Appraised Value: | = | $649,531 | |
| (–) Senior Exemption Loss: | – | $0 | |
| (–) Exemption Loss: | – | $0 | |
| | | -------------------------- | |
| (=) Taxable Value: | = | $649,531 | |
Taxing Jurisdiction
| Owner: | RICHARD J & MARTIE W EDWARDS LIVING TRUST | | |
| % Ownership: | 100.0000000000% | | |
| Total Value: | $649,531 | | |
| Tax Area: | 0110 - C-50F1E1H2 |
| CE | COUNTY CURRENT EXPENSE | 0.9034619479 | $649,531 | $649,531 | $586.83 | | |
| CNTYDD | DEVELOPMENTAL DISABILITIES | 0.0052121823 | $649,531 | $649,531 | $3.39 | | |
| CNTYVET | VETERANS RELIEF | 0.0052777810 | $649,531 | $649,531 | $3.43 | | |
| MENTAL | MENTAL HEALTH | 0.0052121823 | $649,531 | $649,531 | $3.39 | | |
| PTGEN | CITY OF PT GENERAL | 0.8551967795 | $649,531 | $649,531 | $555.48 | | |
| PTLLL | CITY OF PT - LIBRARY LID LIFT | 0.4010114288 | $649,531 | $649,531 | $260.47 | | |
| PTMVBOND | CITY OF PT MV BOND | 0.0484717981 | $649,531 | $649,531 | $31.48 | | |
| HOSP2CASH | HOSP DIST #2 GENERAL | 0.0536075306 | $649,531 | $649,531 | $34.82 | | |
| SCH50BOND | SCHOOL DIST #50 BOND 2016 | 0.5377451389 | $649,531 | $649,531 | $349.28 | | |
| SCH50CP | SCHOOL DIST #50 CAP PROJ | 0.4573475088 | $649,531 | $649,531 | $297.06 | | |
| SCH50MO | SCHOOL DIST #50 EP & O | 0.8262822886 | $649,531 | $649,531 | $536.70 | | |
| CONSERVE | CONSERVATION FUTURES | 0.0275621078 | $649,531 | $649,531 | $17.90 | | |
| EMS1 | FIRE DIST #1 EMS | 0.4679948282 | $649,531 | $649,531 | $303.98 | | |
| FD1 | FIRE DIST #1 GENERAL | 1.2171942929 | $649,531 | $649,531 | $790.61 | | |
| PORTPT | PORT OF PT GENERAL | 0.1134941229 | $649,531 | $649,531 | $73.72 | | |
| PORTPTIDD | PORT OF PT IDD 2019 | 0.2577346692 | $649,531 | $649,531 | $167.41 | | |
| PUD1 | PUD #1 GENERAL | 0.0597888892 | $649,531 | $649,531 | $38.83 | | |
| STATE | STATE SCHOOL PART 1 | 1.4940692947 | $649,531 | $649,531 | $970.44 | | |
| STATE2 | STATE SCHOOL PART 2 | 0.8050170049 | $649,531 | $649,531 | $522.88 | | |
| | Total Tax Rate: | 8.5416817766 | | | | | |
| | | | | Taxes w/Current Exemptions: | $5,548.10 | | |
| | | | | Taxes w/o Exemptions: | $5,548.10 | | |
Improvement / Building
| Improvement #1: | Residential Bldg | State Code: | 11 | 2513.5 sqft | Value: | $379,531 |
| Bathrooms (#): | 2 (FULL) | Bedrooms (#): | 3 | | Exterior Wall: | SI/ST | Fireplace: | SIN 2-AVG | | Fireplace: | WD ST-AVG | Floor Construction: | FRAME | | Foundation: | CONPR | Heating/Cooling: | F/A | | Roof Cover: | SHAKE |   |   |
|
| | Type | Description | Class CD | Sub Class CD | Year Built | Area |
| | MA | Main Area | 3+ | 2S | 1910 | 1347.0 |
| | MA2 | Second Floor Main Area | 3+ | 2S | 1910 | 1166.5 |
| | HCPOR | House Concrete Porch | 3 | 2S | 1910 | 90.0 |
| | HDECK | House Deck | 3 | 2S | 1910 | 520.0 |
| | CARPTF | Carport W/Floor | 4 | 2S | 1910 | 288.0 |
| | BSMTU | House basement unfinished | 1 | 2S | 1910 | 280.0 |
| | HWPOR | House Wood Porch | 3 | 2S | 1910 | 50.0 |
| | HBAL | House Balcony | 3 | 2S | 1910 | 96.0 |
Sketch
Property Image
Land
| 1 | 6210-1165L | | 0.0000 | 0.00 | 0.00 | 0.00 | 1.00 | $190,000 | $0 |
| 2 | 6210-1165L | | 0.0000 | 0.00 | 0.00 | 0.00 | 1.00 | $80,000 | $0 |
Roll Value History
| 2026 | N/A | N/A | N/A | N/A | N/A |
| 2025 | $379,531 | $270,000 | $0 | $649,531 | $649,531 |
| 2024 | $346,278 | $252,000 | $0 | $598,278 | $598,278 |
| 2023 | $331,222 | $235,000 | $0 | $566,222 | $566,222 |
| 2022 | $331,222 | $230,000 | $0 | $561,222 | $561,222 |
Deed and Sales History
| 1 | 09/17/2025 | SWD | Statutory Warranty Deed | JOSEPH E SEMENAK JR | RICHARD J & MARTIE W EDWARDS LIVING TRUST | | | $582,000.00 | 145014 | |
| 2 | 03/10/2025 | QCD | Quit Claim Deed | JOSEPH E SEMENAK JR | JOSEPH E SEMENAK JR | | | | 143961 | |
| 3 | 09/08/2004 | WD | Warranty Deed | MAJHAN, THOMAS J/ESTATE | SEMENAK JR, JOSEPH EDWARD | 0 | 0 | $247,500.00 | 101373 | 0 |
Payout Agreement
| No payout information available.. |