Property
Account |
| Property ID: | 10697 | Abbreviated Legal Description: | NORWOOD SHORT PLAT LOT 6 |
| Parcel # / Geo ID: | 001104025 | Agent Code: | |
| Type: | Real | | |
| Tax Area: | 0110 - C-50F1E1H2 | Land Use Code | 11 |
| Open Space: | N | DFL | N |
| Historic Property: | N | Remodel Property: | N |
| Multi-Family Redevelopment: | N | | |
| Township: | 30N | Section: | 10 |
| Range: | 1W |
Location |
| Address: | 320 WILSON ST PORT TOWNSEND, WA 98368 | Mapsco: | 163/066 |
| Neighborhood: | GALLEON VIEW ESTATES, ISLAND VISTA, and TAX #14 15/30/1W | Map ID: | |
| Neighborhood CD: | 6230 |
Owner |
| Name: | DANIEL F BARRY | Owner ID: | 111562 |
| Mailing Address: | RACHAEL E CONTORER 320 WILSON ST PORT TOWNSEND, WA 98368-3043 | % Ownership: | 100.0000000000% |
| | | Exemptions: | |
Pay Tax Due
Select the appropriate checkbox next to the year to be paid. Multiple years may be selected.
*Convenience Fee not included
Taxes and Assessment Details
Property Tax Information as of
03/10/2026
Click on "Statement Details" to expand or collapse a tax statement.
* Please enter a valid date ** Please enter a valid date *
Statement Details |
| 2026 | 665 | STATE - STATE LEVY (SCHOOL) | $1549.32 | $1549.32 | $0.00 | $0.00 | $0.00 | $3098.64 |
| 2026 | 665 | COUNTY - COUNTY LEVIES (CE, DD, VET, MH) | $619.41 | $619.40 | $0.00 | $0.00 | $0.00 | $1238.81 |
| 2026 | 665 | CONSERVE - CONSERVATION FUTURES | $18.58 | $18.57 | $0.00 | $0.00 | $0.00 | $37.15 |
| 2026 | 665 | CITYPT - CITY OF PT | $879.22 | $879.19 | $0.00 | $0.00 | $0.00 | $1758.41 |
| 2026 | 665 | PORTPT - PORT DISTRICT | $250.17 | $250.16 | $0.00 | $0.00 | $0.00 | $500.33 |
| 2026 | 665 | PUD1 - PUD #1 | $40.29 | $40.29 | $0.00 | $0.00 | $0.00 | $80.58 |
| 2026 | 665 | HD2 - HOSP DIST #2 | $36.13 | $36.12 | $0.00 | $0.00 | $0.00 | $72.25 |
| 2026 | 665 | SD50 - SCHOOL DIST #50 | $1227.40 | $1227.40 | $0.00 | $0.00 | $0.00 | $2454.80 |
| 2026 | 665 | FD1 - FIRE DISTRICT #1 | $820.25 | $820.25 | $0.00 | $0.00 | $0.00 | $1640.50 |
| 2026 | 665 | EMS1 - FIRE DIST #1 EMS | $315.38 | $315.37 | $0.00 | $0.00 | $0.00 | $630.75 |
| 2026 | 665 | JCCD - JC Conservation District | $2.55 | $2.55 | $0.00 | $0.00 | $0.00 | $5.10 |
| 2026 | 665 | NWA - Noxious Weed Assessment | $2.98 | $2.97 | $0.00 | $0.00 | $0.00 | $5.95 |
| 2026 | 665 | TOTAL: | $5761.68 | $5761.59 | $0.00 | $0.00 | $0.00 | $11523.27 |
|
| 2026 | 665 | $5761.68 | $5761.59 | $0.00 | $0.00 | $0.00 | $11523.27 |
Statement Details |
| 2025 | 669 | STATE - STATE LEVY (SCHOOL) | $1181.18 | $1181.17 | $0.00 | $0.00 | $2362.35 | $0.00 |
| 2025 | 669 | COUNTY - COUNTY LEVIES (CE, DD, VET, MH) | $464.50 | $464.49 | $0.00 | $0.00 | $928.99 | $0.00 |
| 2025 | 669 | CONSERVE - CONSERVATION FUTURES | $13.93 | $13.93 | $0.00 | $0.00 | $27.86 | $0.00 |
| 2025 | 669 | CITYPT - CITY OF PT | $669.86 | $669.83 | $0.00 | $0.00 | $1339.69 | $0.00 |
| 2025 | 669 | PORTPT - PORT DISTRICT | $189.55 | $189.53 | $0.00 | $0.00 | $379.08 | $0.00 |
| 2025 | 669 | PUD1 - PUD #1 | $30.40 | $30.39 | $0.00 | $0.00 | $60.79 | $0.00 |
| 2025 | 669 | HD2 - HOSP DIST #2 | $27.10 | $27.10 | $0.00 | $0.00 | $54.20 | $0.00 |
| 2025 | 669 | SD50 - SCHOOL DIST #50 | $863.25 | $863.23 | $0.00 | $0.00 | $1726.48 | $0.00 |
| 2025 | 669 | FD1 - FIRE DISTRICT #1 | $612.95 | $612.94 | $0.00 | $0.00 | $1225.89 | $0.00 |
| 2025 | 669 | EMS1 - FIRE DIST #1 EMS | $235.76 | $235.75 | $0.00 | $0.00 | $471.51 | $0.00 |
| 2025 | 669 | JCCD - JC Conservation District | $2.55 | $2.55 | $0.00 | $0.00 | $5.10 | $0.00 |
| 2025 | 669 | NWA - Noxious Weed Assessment | $2.15 | $2.15 | $0.00 | $0.00 | $4.30 | $0.00 |
| 2025 | 669 | TOTAL: | $4293.18 | $4293.06 | $0.00 | $0.00 | $8586.24 | $0.00 |
|
| 2025 | 669 | $4293.18 | $4293.06 | $0.00 | $0.00 | $8586.24 | $0.00 |
Statement Details |
| 2024 | 670 | STATE - STATE LEVY (SCHOOL) | $991.51 | $991.50 | $0.00 | $0.00 | $1983.01 | $0.00 |
| 2024 | 670 | COUNTY - COUNTY LEVIES (CE, DD, VET, MH) | $424.29 | $424.25 | $0.00 | $0.00 | $848.54 | $0.00 |
| 2024 | 670 | CONSERVE - CONSERVATION FUTURES | $12.72 | $12.72 | $0.00 | $0.00 | $25.44 | $0.00 |
| 2024 | 670 | CITYPT - CITY OF PT | $606.23 | $606.22 | $0.00 | $0.00 | $1212.45 | $0.00 |
| 2024 | 670 | PORTPT - PORT DISTRICT | $175.25 | $175.23 | $0.00 | $0.00 | $350.48 | $0.00 |
| 2024 | 670 | PUD1 - PUD #1 | $27.87 | $27.87 | $0.00 | $0.00 | $55.74 | $0.00 |
| 2024 | 670 | HD2 - HOSP DIST #2 | $24.76 | $24.75 | $0.00 | $0.00 | $49.51 | $0.00 |
| 2024 | 670 | SD50 - SCHOOL DIST #50 | $802.18 | $802.16 | $0.00 | $0.00 | $1604.34 | $0.00 |
| 2024 | 670 | FD1 - FIRE DISTRICT #1 | $560.99 | $560.99 | $0.00 | $0.00 | $1121.98 | $0.00 |
| 2024 | 670 | EMS1 - FIRE DIST #1 EMS | $214.28 | $214.27 | $0.00 | $0.00 | $428.55 | $0.00 |
| 2024 | 670 | JCCD - JC Conservation District | $2.55 | $2.55 | $0.00 | $0.00 | $5.10 | $0.00 |
| 2024 | 670 | NWA - Noxious Weed Assessment | $2.15 | $2.15 | $0.00 | $0.00 | $4.30 | $0.00 |
| 2024 | 670 | TOTAL: | $3844.78 | $3844.66 | $0.00 | $0.00 | $7689.44 | $0.00 |
|
| 2024 | 670 | $3844.78 | $3844.66 | $0.00 | $0.00 | $7689.44 | $0.00 |
Statement Details |
| 2023 | 670 | STATE - STATE LEVY (SCHOOL) | $1003.00 | $1003.00 | $0.00 | $0.00 | $2006.00 | $0.00 |
| 2023 | 670 | COUNTY - COUNTY LEVIES (CE, DD, VET, MH) | $437.70 | $437.66 | $0.00 | $0.00 | $875.36 | $0.00 |
| 2023 | 670 | CONSERVE - CONSERVATION FUTURES | $13.13 | $13.12 | $0.00 | $0.00 | $26.25 | $0.00 |
| 2023 | 670 | CITYPT - CITY OF PT | $618.59 | $618.58 | $0.00 | $0.00 | $1237.17 | $0.00 |
| 2023 | 670 | PORTPT - PORT DISTRICT | $184.37 | $184.37 | $0.00 | $0.00 | $368.74 | $0.00 |
| 2023 | 670 | PUD1 - PUD #1 | $29.01 | $29.01 | $0.00 | $0.00 | $58.02 | $0.00 |
| 2023 | 670 | HD2 - HOSP DIST #2 | $25.55 | $25.53 | $0.00 | $0.00 | $51.08 | $0.00 |
| 2023 | 670 | SD50 - SCHOOL DIST #50 | $795.91 | $795.89 | $0.00 | $0.00 | $1591.80 | $0.00 |
| 2023 | 670 | FD1 - FIRE DISTRICT #1 | $360.56 | $360.56 | $0.00 | $0.00 | $721.12 | $0.00 |
| 2023 | 670 | EMS1 - FIRE DIST #1 EMS | $153.38 | $153.37 | $0.00 | $0.00 | $306.75 | $0.00 |
| 2023 | 670 | JCCD - JC Conservation District | $2.55 | $2.55 | $0.00 | $0.00 | $5.10 | $0.00 |
| 2023 | 670 | NWA - Noxious Weed Assessment | $2.15 | $2.15 | $0.00 | $0.00 | $4.30 | $0.00 |
| 2023 | 670 | TOTAL: | $3625.90 | $3625.79 | $0.00 | $0.00 | $7251.69 | $0.00 |
|
| 2023 | 670 | $3625.90 | $3625.79 | $0.00 | $0.00 | $7251.69 | $0.00 |
Values
| (+) Improvement Homesite Value: | + | $0 | |
| (+) Improvement Non-Homesite Value: | + | $807,770 | |
| (+) Land Homesite Value: | + | $0 | |
| (+) Land Non-Homesite Value: | + | $540,000 | |
| (+) Curr Use (HS): | + | $0 | $0 |
| (+) Curr Use (NHS): | + | $0 | $0 |
| | | -------------------------- | |
| (=) Market Value: | = | $1,347,770 | |
| (–) Productivity Loss: | – | $0 | |
| | | -------------------------- | |
| (=) Subtotal: | = | $1,347,770 | |
| (+) Senior Appraised Value: | + | $0 | |
| (+) Non-Senior Appraised Value: | + | $1,347,770 | |
| | | -------------------------- | |
| (=) Total Appraised Value: | = | $1,347,770 | |
| (–) Senior Exemption Loss: | – | $0 | |
| (–) Exemption Loss: | – | $0 | |
| | | -------------------------- | |
| (=) Taxable Value: | = | $1,347,770 | |
Taxing Jurisdiction
| Owner: | DANIEL F BARRY | | |
| % Ownership: | 100.0000000000% | | |
| Total Value: | $1,347,770 | | |
| Tax Area: | 0110 - C-50F1E1H2 |
| CE | COUNTY CURRENT EXPENSE | 0.9034619479 | $1,347,770 | $1,347,770 | $1,217.66 | | |
| CNTYDD | DEVELOPMENTAL DISABILITIES | 0.0052121823 | $1,347,770 | $1,347,770 | $7.02 | | |
| CNTYVET | VETERANS RELIEF | 0.0052777810 | $1,347,770 | $1,347,770 | $7.11 | | |
| MENTAL | MENTAL HEALTH | 0.0052121823 | $1,347,770 | $1,347,770 | $7.02 | | |
| PTGEN | CITY OF PT GENERAL | 0.8551967795 | $1,347,770 | $1,347,770 | $1,152.61 | | |
| PTLLL | CITY OF PT - LIBRARY LID LIFT | 0.4010114288 | $1,347,770 | $1,347,770 | $540.47 | | |
| PTMVBOND | CITY OF PT MV BOND | 0.0484717981 | $1,347,770 | $1,347,770 | $65.33 | | |
| HOSP2CASH | HOSP DIST #2 GENERAL | 0.0536075306 | $1,347,770 | $1,347,770 | $72.25 | | |
| SCH50BOND | SCHOOL DIST #50 BOND 2016 | 0.5377451389 | $1,347,770 | $1,347,770 | $724.76 | | |
| SCH50CP | SCHOOL DIST #50 CAP PROJ | 0.4573475088 | $1,347,770 | $1,347,770 | $616.40 | | |
| SCH50MO | SCHOOL DIST #50 EP & O | 0.8262822886 | $1,347,770 | $1,347,770 | $1,113.64 | | |
| CONSERVE | CONSERVATION FUTURES | 0.0275621078 | $1,347,770 | $1,347,770 | $37.15 | | |
| EMS1 | FIRE DIST #1 EMS | 0.4679948282 | $1,347,770 | $1,347,770 | $630.75 | | |
| FD1 | FIRE DIST #1 GENERAL | 1.2171942929 | $1,347,770 | $1,347,770 | $1,640.50 | | |
| PORTPT | PORT OF PT GENERAL | 0.1134941229 | $1,347,770 | $1,347,770 | $152.96 | | |
| PORTPTIDD | PORT OF PT IDD 2019 | 0.2577346692 | $1,347,770 | $1,347,770 | $347.37 | | |
| PUD1 | PUD #1 GENERAL | 0.0597888892 | $1,347,770 | $1,347,770 | $80.58 | | |
| STATE | STATE SCHOOL PART 1 | 1.4940692947 | $1,347,770 | $1,347,770 | $2,013.66 | | |
| STATE2 | STATE SCHOOL PART 2 | 0.8050170049 | $1,347,770 | $1,347,770 | $1,084.98 | | |
| | Total Tax Rate: | 8.5416817766 | | | | | |
| | | | | Taxes w/Current Exemptions: | $11,512.22 | | |
| | | | | Taxes w/o Exemptions: | $11,512.22 | | |
Improvement / Building
| Improvement #1: | Residential Bldg | State Code: | 11 | 1688.0 sqft | Value: | $807,770 |
| Bathrooms (#): | 3 (FULL) | Bedrooms (#): | 3 | | Exterior Wall: | SI/ST | Floor Construction: | FRAME | | Foundation: | CONPR | Heating/Cooling: | HPUMP | | Inside Verify: | YES-FIX | Roof Cover: | TILE |
|
| | Type | Description | Class CD | Sub Class CD | Year Built | Area |
| | MA | Main Area | 5+ | 1S | 1990 | 1688.0 |
| | PATIO | House Patio | 5 | 1S | 1990 | 480.0 |
| | HCPOR | House Concrete Porch | 5 | 1S | 1990 | 20.0 |
| | HDECK | House Deck | 5 | 1S | 1990 | 408.0 |
| | GATT | House Attached Garage | 5 | 1S | 1990 | 576.0 |
| | BSMTF | House basement finished | 5 | 1S | 1990 | 1320.0 |
Sketch
| No sketches available for this property. |
Property Image
Land
| 1 | 6230-1235S | | 0.0000 | 0.00 | 0.00 | 0.00 | 1.00 | $540,000 | $0 |
Roll Value History
| 2026 | N/A | N/A | N/A | N/A | N/A |
| 2025 | $807,770 | $540,000 | $0 | $1,347,770 | $1,347,770 |
| 2024 | $560,123 | $425,000 | $0 | $985,123 | $985,123 |
| 2023 | $437,109 | $420,000 | $0 | $857,109 | $857,109 |
| 2022 | $437,109 | $415,000 | $0 | $852,109 | $852,109 |
Deed and Sales History
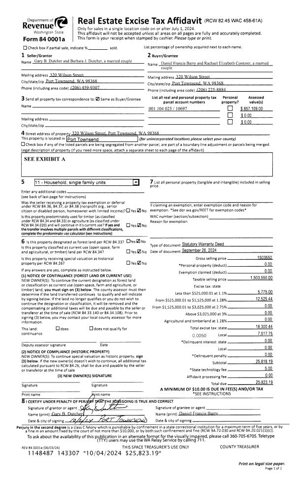
| 1 | 09/26/2024 | SWD | Statutory Warranty Deed | GARY B & BARBARA J DUTCHER | DANIEL F BARRY | | | $1,503,550.00 | 143307 | |
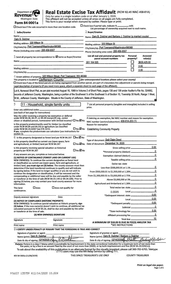
| 2 | 12/14/2020 | QCD | Quit Claim Deed | GARY B DUTCHER | GARY B & BARBARA J DUTCHER | | | | 135759 | |
| 3 | 02/26/2014 | SWD | Statutory Warranty Deed | MARY T NORWOOD LIVING TRUST | GARY B DUTCHER | | | $450,000.00 | 120844 | |
| 4 | 02/03/2014 | QCD | Quit Claim Deed | MARY NORWOOD | MARY T NORWOOD LIVING TRUST | | | | 120674 | |
| 5 | 03/14/2013 | DTH CERT | Death Certificate | FRANK NORWOOD | | | | | 0 | |
Payout Agreement
| No payout information available.. |