Property
Account |
| Property ID: | 10732 | Abbreviated Legal Description: | S15 T30 R1W TAX 14 |
| Parcel # / Geo ID: | 001152007 | Agent Code: | |
| Type: | Real | | |
| Tax Area: | 0110 - C-50F1E1H2 | Land Use Code | 11 |
| Open Space: | N | DFL | N |
| Historic Property: | N | Remodel Property: | N |
| Multi-Family Redevelopment: | N | | |
| Township: | 30N | Section: | 15 |
| Range: | 1W |
Location |
| Address: | 1147 1ST ST PORT TOWNSEND, WA 98368 | Mapsco: | 158/030 |
| Neighborhood: | GALLEON VIEW ESTATES, ISLAND VISTA, and TAX #14 15/30/1W | Map ID: | |
| Neighborhood CD: | 6230 |
Owner |
| Name: | THEODORE W BELGARD | Owner ID: | 104146 |
| Mailing Address: | 16129 MOTOR PL APT 2 LYNNWOOD, WA 98087-6501 | % Ownership: | 100.0000000000% |
| | | Exemptions: | |
Pay Tax Due
Select the appropriate checkbox next to the year to be paid. Multiple years may be selected.
*Convenience Fee not included
Taxes and Assessment Details
Property Tax Information as of
03/09/2026
Click on "Statement Details" to expand or collapse a tax statement.
* Please enter a valid date ** Please enter a valid date *
Statement Details |
| 2026 | 694 | STATE - STATE LEVY (SCHOOL) | $965.91 | $965.90 | $0.00 | $0.00 | $0.00 | $1931.81 |
| 2026 | 694 | COUNTY - COUNTY LEVIES (CE, DD, VET, MH) | $386.17 | $386.16 | $0.00 | $0.00 | $0.00 | $772.33 |
| 2026 | 694 | CONSERVE - CONSERVATION FUTURES | $11.58 | $11.58 | $0.00 | $0.00 | $0.00 | $23.16 |
| 2026 | 694 | CITYPT - CITY OF PT | $548.14 | $548.12 | $0.00 | $0.00 | $0.00 | $1096.26 |
| 2026 | 694 | PORTPT - PORT DISTRICT | $155.96 | $155.96 | $0.00 | $0.00 | $0.00 | $311.92 |
| 2026 | 694 | PUD1 - PUD #1 | $25.12 | $25.12 | $0.00 | $0.00 | $0.00 | $50.24 |
| 2026 | 694 | HD2 - HOSP DIST #2 | $22.52 | $22.52 | $0.00 | $0.00 | $0.00 | $45.04 |
| 2026 | 694 | SD50 - SCHOOL DIST #50 | $765.22 | $765.20 | $0.00 | $0.00 | $0.00 | $1530.42 |
| 2026 | 694 | FD1 - FIRE DISTRICT #1 | $511.38 | $511.37 | $0.00 | $0.00 | $0.00 | $1022.75 |
| 2026 | 694 | EMS1 - FIRE DIST #1 EMS | $196.62 | $196.61 | $0.00 | $0.00 | $0.00 | $393.23 |
| 2026 | 694 | JCCD - JC Conservation District | $2.55 | $2.55 | $0.00 | $0.00 | $0.00 | $5.10 |
| 2026 | 694 | NWA - Noxious Weed Assessment | $2.98 | $2.97 | $0.00 | $0.00 | $0.00 | $5.95 |
| 2026 | 694 | TOTAL: | $3594.15 | $3594.06 | $0.00 | $0.00 | $0.00 | $7188.21 |
|
| 2026 | 694 | $3594.15 | $3594.06 | $0.00 | $0.00 | $0.00 | $7188.21 |
Statement Details |
| 2025 | 698 | STATE - STATE LEVY (SCHOOL) | $995.32 | $995.31 | $0.00 | $0.00 | $1990.63 | $0.00 |
| 2025 | 698 | COUNTY - COUNTY LEVIES (CE, DD, VET, MH) | $391.41 | $391.39 | $0.00 | $0.00 | $782.80 | $0.00 |
| 2025 | 698 | CONSERVE - CONSERVATION FUTURES | $11.74 | $11.73 | $0.00 | $0.00 | $23.47 | $0.00 |
| 2025 | 698 | CITYPT - CITY OF PT | $564.46 | $564.43 | $0.00 | $0.00 | $1128.89 | $0.00 |
| 2025 | 698 | PORTPT - PORT DISTRICT | $159.72 | $159.71 | $0.00 | $0.00 | $319.43 | $0.00 |
| 2025 | 698 | PUD1 - PUD #1 | $25.61 | $25.61 | $0.00 | $0.00 | $51.22 | $0.00 |
| 2025 | 698 | HD2 - HOSP DIST #2 | $22.84 | $22.83 | $0.00 | $0.00 | $45.67 | $0.00 |
| 2025 | 698 | SD50 - SCHOOL DIST #50 | $727.42 | $727.40 | $0.00 | $0.00 | $1454.82 | $0.00 |
| 2025 | 698 | FD1 - FIRE DISTRICT #1 | $516.50 | $516.49 | $0.00 | $0.00 | $1032.99 | $0.00 |
| 2025 | 698 | EMS1 - FIRE DIST #1 EMS | $198.66 | $198.66 | $0.00 | $0.00 | $397.32 | $0.00 |
| 2025 | 698 | JCCD - JC Conservation District | $2.55 | $2.55 | $0.00 | $0.00 | $5.10 | $0.00 |
| 2025 | 698 | NWA - Noxious Weed Assessment | $2.15 | $2.15 | $0.00 | $0.00 | $4.30 | $0.00 |
| 2025 | 698 | TOTAL: | $3618.38 | $3618.26 | $0.00 | $0.00 | $7236.64 | $0.00 |
|
| 2025 | 698 | $3618.38 | $3618.26 | $0.00 | $0.00 | $7236.64 | $0.00 |
Statement Details |
| 2024 | 699 | STATE - STATE LEVY (SCHOOL) | $954.49 | $954.49 | $0.00 | $0.00 | $1908.98 | $0.00 |
| 2024 | 699 | COUNTY - COUNTY LEVIES (CE, DD, VET, MH) | $408.45 | $408.42 | $0.00 | $0.00 | $816.87 | $0.00 |
| 2024 | 699 | CONSERVE - CONSERVATION FUTURES | $12.25 | $12.24 | $0.00 | $0.00 | $24.49 | $0.00 |
| 2024 | 699 | CITYPT - CITY OF PT | $583.60 | $583.58 | $0.00 | $0.00 | $1167.18 | $0.00 |
| 2024 | 699 | PORTPT - PORT DISTRICT | $168.70 | $168.70 | $0.00 | $0.00 | $337.40 | $0.00 |
| 2024 | 699 | PUD1 - PUD #1 | $26.83 | $26.83 | $0.00 | $0.00 | $53.66 | $0.00 |
| 2024 | 699 | HD2 - HOSP DIST #2 | $23.83 | $23.83 | $0.00 | $0.00 | $47.66 | $0.00 |
| 2024 | 699 | SD50 - SCHOOL DIST #50 | $772.23 | $772.22 | $0.00 | $0.00 | $1544.45 | $0.00 |
| 2024 | 699 | FD1 - FIRE DISTRICT #1 | $540.05 | $540.04 | $0.00 | $0.00 | $1080.09 | $0.00 |
| 2024 | 699 | EMS1 - FIRE DIST #1 EMS | $206.28 | $206.28 | $0.00 | $0.00 | $412.56 | $0.00 |
| 2024 | 699 | JCCD - JC Conservation District | $2.55 | $2.55 | $0.00 | $0.00 | $5.10 | $0.00 |
| 2024 | 699 | NWA - Noxious Weed Assessment | $2.15 | $2.15 | $0.00 | $0.00 | $4.30 | $0.00 |
| 2024 | 699 | TOTAL: | $3701.41 | $3701.33 | $0.00 | $0.00 | $7402.74 | $0.00 |
|
| 2024 | 699 | $3701.41 | $3701.33 | $0.00 | $0.00 | $7402.74 | $0.00 |
Statement Details |
| 2023 | 699 | STATE - STATE LEVY (SCHOOL) | $965.35 | $965.33 | $0.00 | $0.00 | $1930.68 | $0.00 |
| 2023 | 699 | COUNTY - COUNTY LEVIES (CE, DD, VET, MH) | $421.24 | $421.24 | $0.00 | $0.00 | $842.48 | $0.00 |
| 2023 | 699 | CONSERVE - CONSERVATION FUTURES | $12.63 | $12.63 | $0.00 | $0.00 | $25.26 | $0.00 |
| 2023 | 699 | CITYPT - CITY OF PT | $595.37 | $595.35 | $0.00 | $0.00 | $1190.72 | $0.00 |
| 2023 | 699 | PORTPT - PORT DISTRICT | $177.46 | $177.45 | $0.00 | $0.00 | $354.91 | $0.00 |
| 2023 | 699 | PUD1 - PUD #1 | $27.93 | $27.92 | $0.00 | $0.00 | $55.85 | $0.00 |
| 2023 | 699 | HD2 - HOSP DIST #2 | $24.58 | $24.58 | $0.00 | $0.00 | $49.16 | $0.00 |
| 2023 | 699 | SD50 - SCHOOL DIST #50 | $766.02 | $766.01 | $0.00 | $0.00 | $1532.03 | $0.00 |
| 2023 | 699 | FD1 - FIRE DISTRICT #1 | $347.02 | $347.02 | $0.00 | $0.00 | $694.04 | $0.00 |
| 2023 | 699 | EMS1 - FIRE DIST #1 EMS | $147.62 | $147.61 | $0.00 | $0.00 | $295.23 | $0.00 |
| 2023 | 699 | JCCD - JC Conservation District | $2.55 | $2.55 | $0.00 | $0.00 | $5.10 | $0.00 |
| 2023 | 699 | NWA - Noxious Weed Assessment | $2.15 | $2.15 | $0.00 | $0.00 | $4.30 | $0.00 |
| 2023 | 699 | TOTAL: | $3489.92 | $3489.84 | $0.00 | $0.00 | $6979.76 | $0.00 |
|
| 2023 | 699 | $3489.92 | $3489.84 | $0.00 | $0.00 | $6979.76 | $0.00 |
Values
| (+) Improvement Homesite Value: | + | $0 | |
| (+) Improvement Non-Homesite Value: | + | $468,252 | |
| (+) Land Homesite Value: | + | $0 | |
| (+) Land Non-Homesite Value: | + | $372,000 | |
| (+) Curr Use (HS): | + | $0 | $0 |
| (+) Curr Use (NHS): | + | $0 | $0 |
| | | -------------------------- | |
| (=) Market Value: | = | $840,252 | |
| (–) Productivity Loss: | – | $0 | |
| | | -------------------------- | |
| (=) Subtotal: | = | $840,252 | |
| (+) Senior Appraised Value: | + | $0 | |
| (+) Non-Senior Appraised Value: | + | $840,252 | |
| | | -------------------------- | |
| (=) Total Appraised Value: | = | $840,252 | |
| (–) Senior Exemption Loss: | – | $0 | |
| (–) Exemption Loss: | – | $0 | |
| | | -------------------------- | |
| (=) Taxable Value: | = | $840,252 | |
Taxing Jurisdiction
| Owner: | THEODORE W BELGARD | | |
| % Ownership: | 100.0000000000% | | |
| Total Value: | $840,252 | | |
| Tax Area: | 0110 - C-50F1E1H2 |
| CE | COUNTY CURRENT EXPENSE | 0.9034619479 | $840,252 | $840,252 | $759.14 | | |
| CNTYDD | DEVELOPMENTAL DISABILITIES | 0.0052121823 | $840,252 | $840,252 | $4.38 | | |
| CNTYVET | VETERANS RELIEF | 0.0052777810 | $840,252 | $840,252 | $4.43 | | |
| MENTAL | MENTAL HEALTH | 0.0052121823 | $840,252 | $840,252 | $4.38 | | |
| PTGEN | CITY OF PT GENERAL | 0.8551967795 | $840,252 | $840,252 | $718.58 | | |
| PTLLL | CITY OF PT - LIBRARY LID LIFT | 0.4010114288 | $840,252 | $840,252 | $336.95 | | |
| PTMVBOND | CITY OF PT MV BOND | 0.0484717981 | $840,252 | $840,252 | $40.73 | | |
| HOSP2CASH | HOSP DIST #2 GENERAL | 0.0536075306 | $840,252 | $840,252 | $45.04 | | |
| SCH50BOND | SCHOOL DIST #50 BOND 2016 | 0.5377451389 | $840,252 | $840,252 | $451.84 | | |
| SCH50CP | SCHOOL DIST #50 CAP PROJ | 0.4573475088 | $840,252 | $840,252 | $384.29 | | |
| SCH50MO | SCHOOL DIST #50 EP & O | 0.8262822886 | $840,252 | $840,252 | $694.29 | | |
| CONSERVE | CONSERVATION FUTURES | 0.0275621078 | $840,252 | $840,252 | $23.16 | | |
| EMS1 | FIRE DIST #1 EMS | 0.4679948282 | $840,252 | $840,252 | $393.23 | | |
| FD1 | FIRE DIST #1 GENERAL | 1.2171942929 | $840,252 | $840,252 | $1,022.75 | | |
| PORTPT | PORT OF PT GENERAL | 0.1134941229 | $840,252 | $840,252 | $95.36 | | |
| PORTPTIDD | PORT OF PT IDD 2019 | 0.2577346692 | $840,252 | $840,252 | $216.56 | | |
| PUD1 | PUD #1 GENERAL | 0.0597888892 | $840,252 | $840,252 | $50.24 | | |
| STATE | STATE SCHOOL PART 1 | 1.4940692947 | $840,252 | $840,252 | $1,255.39 | | |
| STATE2 | STATE SCHOOL PART 2 | 0.8050170049 | $840,252 | $840,252 | $676.42 | | |
| | Total Tax Rate: | 8.5416817766 | | | | | |
| | | | | Taxes w/Current Exemptions: | $7,177.16 | | |
| | | | | Taxes w/o Exemptions: | $7,177.16 | | |
Improvement / Building
| Improvement #1: | Residential Bldg | State Code: | 11 | 2364.0 sqft | Value: | $468,252 |
| Bathrooms (#): | 2 (FULL) | Bedrooms (#): | 2 | | Exterior Wall: | SI/ST | Floor Construction: | FRAME | | Foundation: | CONPR | Heating/Cooling: | F/A | | Roof Cover: | TILE |   |   |
|
| | Type | Description | Class CD | Sub Class CD | Year Built | Area |
| | MA | Main Area | 4+ | 1S | 1991 | 2364.0 |
| | HWPOR | House Wood Porch | 4 | 1S | 1991 | 90.0 |
| | HDECK | House Deck | 4 | 1S | 1991 | 140.0 |
| | GBLTIN | Builtin Garage | 4 | 1S | 1991 | 524.0 |
Sketch
| No sketches available for this property. |
Property Image
Land
| 1 | 6230-1535F | | 0.0000 | 0.00 | 0.00 | 0.00 | 0.00 | $372,000 | $0 |
Roll Value History
| 2026 | N/A | N/A | N/A | N/A | N/A |
| 2025 | $468,252 | $372,000 | $0 | $840,252 | $840,252 |
| 2024 | $458,112 | $372,000 | $0 | $830,112 | $830,112 |
| 2023 | $458,112 | $367,000 | $0 | $825,112 | $825,112 |
| 2022 | $458,112 | $362,000 | $0 | $820,112 | $820,112 |
Deed and Sales History
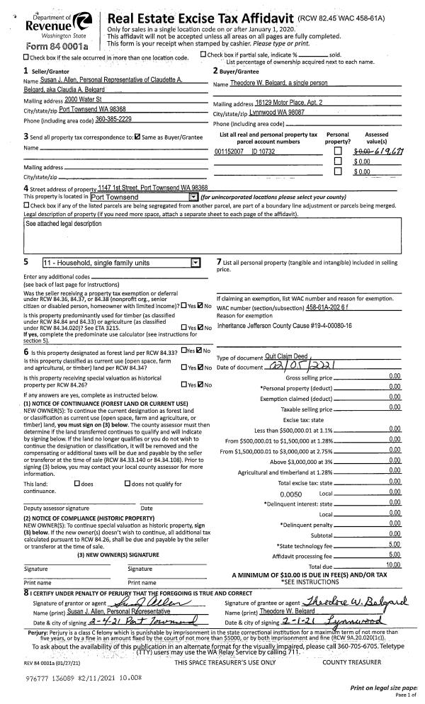
| 1 | 02/05/2021 | QCD | Quit Claim Deed | CLAUDIA A BELGARD | THEODORE W BELGARD | | | | 136089 | |
| 2 | 06/04/1999 | QCD | Quit Claim Deed | BELGARD, THEODORE F | BELGARD, CLAUDIA A | 0 | 0 | $0.00 | 87369 | 0 |
Payout Agreement
| No payout information available.. |