Property
Account |
| Property ID: | 10738 | Abbreviated Legal Description: | S16 T30 R1W TAX 5 (LESS 90' W OF PIPELINE) |
| Parcel # / Geo ID: | 001161001 | Agent Code: | |
| Type: | Real | | |
| Tax Area: | 0111 - 1-50F1E1H2L1 | Land Use Code | 91 |
| Open Space: | N | DFL | N |
| Historic Property: | N | Remodel Property: | N |
| Multi-Family Redevelopment: | N | | |
| Township: | 30N | Section: | 16 |
| Range: | 1W |
Location |
| Address: | | Mapsco: | 088/015 |
| Neighborhood: | S15 & 16 T30 R1W, GLEN COVE, GISE | Map ID: | |
| Neighborhood CD: | 5345 |
Owner |
| Name: | JEFFERSON COUNTY | Owner ID: | 18998 |
| Mailing Address: | PO BOX 1220 PORT TOWNSEND, WA 98368-0920 | % Ownership: | 100.0000000000% |
| | | Exemptions: | EX |
Pay Tax Due
There is currently No Amount Due on this property.
Taxes and Assessment Details
Property Tax Information as of
03/13/2026
Click on "Statement Details" to expand or collapse a tax statement.
* Please enter a valid date ** Please enter a valid date *
Statement Details |
| | TOTAL: | $0.00 | $0.00 | $0.00 | $0.00 | $0.00 | $0.00 |
|
| | $0.00 | $0.00 | $0.00 | $0.00 | $0.00 | $0.00 |
Values
| (+) Improvement Homesite Value: | + | $0 | |
| (+) Improvement Non-Homesite Value: | + | $0 | |
| (+) Land Homesite Value: | + | $0 | |
| (+) Land Non-Homesite Value: | + | $24,712 | |
| (+) Curr Use (HS): | + | $0 | $0 |
| (+) Curr Use (NHS): | + | $0 | $0 |
| | | -------------------------- | |
| (=) Market Value: | = | $24,712 | |
| (–) Productivity Loss: | – | $0 | |
| | | -------------------------- | |
| (=) Subtotal: | = | $24,712 | |
| (+) Senior Appraised Value: | + | $0 | |
| (+) Non-Senior Appraised Value: | + | $24,712 | |
| | | -------------------------- | |
| (=) Total Appraised Value: | = | $24,712 | |
| (–) Senior Exemption Loss: | – | $0 | |
| (–) Exemption Loss: | – | $24,712 | |
| | | -------------------------- | |
| (=) Taxable Value: | = | $0 | |
Taxing Jurisdiction
| Owner: | JEFFERSON COUNTY | | |
| % Ownership: | 100.0000000000% | | |
| Total Value: | $24,712 | | |
| Tax Area: | 0111 - 1-50F1E1H2L1 |
| CE | COUNTY CURRENT EXPENSE | 0.9034619479 | $24,712 | $0 | $0.00 | | |
| CNTYDD | DEVELOPMENTAL DISABILITIES | 0.0052121823 | $24,712 | $0 | $0.00 | | |
| CNTYVET | VETERANS RELIEF | 0.0052777810 | $24,712 | $0 | $0.00 | | |
| MENTAL | MENTAL HEALTH | 0.0052121823 | $24,712 | $0 | $0.00 | | |
| ROADS | COUNTY ROADS | 0.7415066410 | $24,712 | $0 | $0.00 | | |
| ROADSCU | COUNTY ROADS TO CUR EXP | 0.0000000000 | $24,712 | $0 | $0.00 | | |
| HOSP2CASH | HOSP DIST #2 GENERAL | 0.0536075306 | $24,712 | $0 | $0.00 | | |
| SCH50BOND | SCHOOL DIST #50 BOND 2016 | 0.5377451389 | $24,712 | $0 | $0.00 | | |
| SCH50CP | SCHOOL DIST #50 CAP PROJ | 0.4573475088 | $24,712 | $0 | $0.00 | | |
| SCH50MO | SCHOOL DIST #50 EP & O | 0.8262822886 | $24,712 | $0 | $0.00 | | |
| CONSERVE | CONSERVATION FUTURES | 0.0275621078 | $24,712 | $0 | $0.00 | | |
| EMS1 | FIRE DIST #1 EMS | 0.4679948282 | $24,712 | $0 | $0.00 | | |
| FD1 | FIRE DIST #1 GENERAL | 1.2171942929 | $24,712 | $0 | $0.00 | | |
| LIB1 | LIBRARY DIST #1 GENERAL | 0.2868827388 | $24,712 | $0 | $0.00 | | |
| PORTPT | PORT OF PT GENERAL | 0.1134941229 | $24,712 | $0 | $0.00 | | |
| PORTPTIDD | PORT OF PT IDD 2019 | 0.2577346692 | $24,712 | $0 | $0.00 | | |
| PUD1 | PUD #1 GENERAL | 0.0597888892 | $24,712 | $0 | $0.00 | | |
| STATE | STATE SCHOOL PART 1 | 1.4940692947 | $24,712 | $0 | $0.00 | | |
| STATE2 | STATE SCHOOL PART 2 | 0.8050170049 | $24,712 | $0 | $0.00 | | |
| | Total Tax Rate: | 8.2653911500 | | | | | |
| | | | | Taxes w/Current Exemptions: | $0.00 | | |
| | | | | Taxes w/o Exemptions: | $204.25 | | |
Improvement / Building
Sketch
| No sketches available for this property. |
Property Image
Land
| 1 | 5345-1373S | Terr/No View Sites Good Topo 1+/- Acre | 1.0000 | 43560.00 | 0.00 | 0.00 | 1.00 | $20,900 | $0 |
| 2 | 1575A | Terr/Mtn/No View <6 Acres | 0.3300 | 14374.80 | 0.00 | 0.00 | 0.00 | $3,812 | $0 |
Roll Value History
| 2026 | N/A | N/A | N/A | N/A | N/A |
| 2025 | $0 | $24,712 | $0 | $24,712 | $0 |
| 2024 | $0 | $24,712 | $0 | $24,712 | $0 |
| 2023 | $0 | $23,415 | $0 | $23,415 | $0 |
| 2022 | $0 | $22,053 | $0 | $22,053 | $0 |
Deed and Sales History
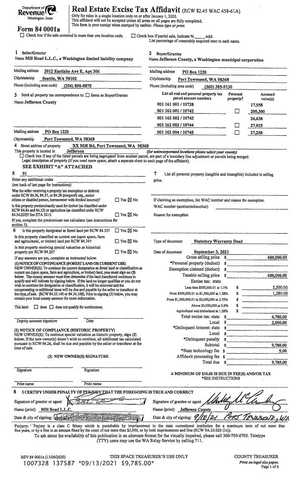
| 1 | 09/03/2021 | SWD | Statutory Warranty Deed | MILL ROAD LLC | JEFFERSON COUNTY | | | $600,000.00 | 137587 | |
|   | |
| 2 | 10/25/1996 | SWD | Statutory Warranty Deed | SANGER, MARY A | MILL ROAD | 0 | 0 | $0.00 | 80683 | 0 |
Payout Agreement
| No payout information available.. |