Property
Account |
| Property ID: | 10742 | Abbreviated Legal Description: | S16 T30 R1W TAX 1(LESS TAX 42,43,48 & 49) TAX RR1 SUBJ/EASE CASWELL-BROWN VILLAGE (OlyCAP Lease) |
| Parcel # / Geo ID: | 001162001 | Agent Code: | ID:107523 |
| Type: | Real | | |
| Tax Area: | 0111 - 1-50F1E1H2L1 | Land Use Code | 13 |
| Open Space: | N | DFL | N |
| Historic Property: | N | Remodel Property: | N |
| Multi-Family Redevelopment: | N | | |
| Township: | 30N | Section: | 16 |
| Range: | 1W |
Location |
| Address: | 142 MILL RD PORT TOWNSEND, WA 98368 | Mapsco: | 088/010 |
| Neighborhood: | S15 & 16 T30 R1W, GLEN COVE, GISE | Map ID: | |
| Neighborhood CD: | 5345 |
Owner |
| Name: | JEFFERSON COUNTY | Owner ID: | 18998 |
| Mailing Address: | PO BOX 1220 PORT TOWNSEND, WA 98368-0920 | % Ownership: | 100.0000000000% |
| | | Exemptions: | EX |
Pay Tax Due
There is currently No Amount Due on this property.
Taxes and Assessment Details
Property Tax Information as of
03/12/2026
Click on "Statement Details" to expand or collapse a tax statement.
* Please enter a valid date ** Please enter a valid date *
Statement Details |
| 2026 | 703 | STATE - STATE LEVY (SCHOOL) | $0.00 | $0.00 | $0.00 | $0.00 | $0.00 | $0.00 |
| 2026 | 703 | COUNTY - COUNTY LEVIES (CE, DD, VET, MH) | $0.00 | $0.00 | $0.00 | $0.00 | $0.00 | $0.00 |
| 2026 | 703 | CONSERVE - CONSERVATION FUTURES | $0.00 | $0.00 | $0.00 | $0.00 | $0.00 | $0.00 |
| 2026 | 703 | COROADS - COUNTY ROADS (ROADS, DIV TO CE) | $0.00 | $0.00 | $0.00 | $0.00 | $0.00 | $0.00 |
| 2026 | 703 | PORTPT - PORT DISTRICT | $0.00 | $0.00 | $0.00 | $0.00 | $0.00 | $0.00 |
| 2026 | 703 | PUD1 - PUD #1 | $0.00 | $0.00 | $0.00 | $0.00 | $0.00 | $0.00 |
| 2026 | 703 | LIB1 - LIBRARY DIST #1 | $0.00 | $0.00 | $0.00 | $0.00 | $0.00 | $0.00 |
| 2026 | 703 | HD2 - HOSP DIST #2 | $0.00 | $0.00 | $0.00 | $0.00 | $0.00 | $0.00 |
| 2026 | 703 | SD50 - SCHOOL DIST #50 | $0.00 | $0.00 | $0.00 | $0.00 | $0.00 | $0.00 |
| 2026 | 703 | FD1 - FIRE DISTRICT #1 | $0.00 | $0.00 | $0.00 | $0.00 | $0.00 | $0.00 |
| 2026 | 703 | EMS1 - FIRE DIST #1 EMS | $0.00 | $0.00 | $0.00 | $0.00 | $0.00 | $0.00 |
| 2026 | 703 | FPLCA - DNR Landowner Contingency Assmt | $3.00 | $3.00 | $0.00 | $0.00 | $6.00 | $0.00 |
| 2026 | 703 | OSS - On Site Septic | $23.10 | $23.10 | $0.00 | $0.00 | $46.20 | $0.00 |
| 2026 | 703 | TOTAL: | $26.10 | $26.10 | $0.00 | $0.00 | $52.20 | $0.00 |
|
| 2026 | 703 | $26.10 | $26.10 | $0.00 | $0.00 | $52.20 | $0.00 |
Statement Details |
| 2025 | 707 | STATE - STATE LEVY (SCHOOL) | $0.00 | $0.00 | $0.00 | $0.00 | $0.00 | $0.00 |
| 2025 | 707 | COUNTY - COUNTY LEVIES (CE, DD, VET, MH) | $0.00 | $0.00 | $0.00 | $0.00 | $0.00 | $0.00 |
| 2025 | 707 | CONSERVE - CONSERVATION FUTURES | $0.00 | $0.00 | $0.00 | $0.00 | $0.00 | $0.00 |
| 2025 | 707 | COROADS - COUNTY ROADS (ROADS, DIV TO CE) | $0.00 | $0.00 | $0.00 | $0.00 | $0.00 | $0.00 |
| 2025 | 707 | PORTPT - PORT DISTRICT | $0.00 | $0.00 | $0.00 | $0.00 | $0.00 | $0.00 |
| 2025 | 707 | PUD1 - PUD #1 | $0.00 | $0.00 | $0.00 | $0.00 | $0.00 | $0.00 |
| 2025 | 707 | LIB1 - LIBRARY DIST #1 | $0.00 | $0.00 | $0.00 | $0.00 | $0.00 | $0.00 |
| 2025 | 707 | HD2 - HOSP DIST #2 | $0.00 | $0.00 | $0.00 | $0.00 | $0.00 | $0.00 |
| 2025 | 707 | SD50 - SCHOOL DIST #50 | $0.00 | $0.00 | $0.00 | $0.00 | $0.00 | $0.00 |
| 2025 | 707 | FD1 - FIRE DISTRICT #1 | $0.00 | $0.00 | $0.00 | $0.00 | $0.00 | $0.00 |
| 2025 | 707 | EMS1 - FIRE DIST #1 EMS | $0.00 | $0.00 | $0.00 | $0.00 | $0.00 | $0.00 |
| 2025 | 707 | FPLCA - DNR Landowner Contingency Assmt | $6.00 | $0.00 | $0.00 | $0.00 | $6.00 | $0.00 |
| 2025 | 707 | OSS - On Site Septic | $43.00 | $0.00 | $0.00 | $0.00 | $43.00 | $0.00 |
| 2025 | 707 | TOTAL: | $49.00 | $0.00 | $0.00 | $0.00 | $49.00 | $0.00 |
|
| 2025 | 707 | $49.00 | $0.00 | $0.00 | $0.00 | $49.00 | $0.00 |
Statement Details |
| 2024 | 709 | STATE - STATE LEVY (SCHOOL) | $0.00 | $0.00 | $0.00 | $0.00 | $0.00 | $0.00 |
| 2024 | 709 | COUNTY - COUNTY LEVIES (CE, DD, VET, MH) | $0.00 | $0.00 | $0.00 | $0.00 | $0.00 | $0.00 |
| 2024 | 709 | CONSERVE - CONSERVATION FUTURES | $0.00 | $0.00 | $0.00 | $0.00 | $0.00 | $0.00 |
| 2024 | 709 | COROADS - COUNTY ROADS (ROADS, DIV TO CE) | $0.00 | $0.00 | $0.00 | $0.00 | $0.00 | $0.00 |
| 2024 | 709 | PORTPT - PORT DISTRICT | $0.00 | $0.00 | $0.00 | $0.00 | $0.00 | $0.00 |
| 2024 | 709 | PUD1 - PUD #1 | $0.00 | $0.00 | $0.00 | $0.00 | $0.00 | $0.00 |
| 2024 | 709 | LIB1 - LIBRARY DIST #1 | $0.00 | $0.00 | $0.00 | $0.00 | $0.00 | $0.00 |
| 2024 | 709 | HD2 - HOSP DIST #2 | $0.00 | $0.00 | $0.00 | $0.00 | $0.00 | $0.00 |
| 2024 | 709 | SD50 - SCHOOL DIST #50 | $0.00 | $0.00 | $0.00 | $0.00 | $0.00 | $0.00 |
| 2024 | 709 | FD1 - FIRE DISTRICT #1 | $0.00 | $0.00 | $0.00 | $0.00 | $0.00 | $0.00 |
| 2024 | 709 | EMS1 - FIRE DIST #1 EMS | $0.00 | $0.00 | $0.00 | $0.00 | $0.00 | $0.00 |
| 2024 | 709 | FPLCA - DNR Landowner Contingency Assmt | $6.00 | $0.00 | $0.00 | $0.00 | $6.00 | $0.00 |
| 2024 | 709 | NWA - Noxious Weed Assessment | $8.50 | $0.00 | $0.00 | $0.00 | $8.50 | $0.00 |
| 2024 | 709 | TOTAL: | $14.50 | $0.00 | $0.00 | $0.00 | $14.50 | $0.00 |
|
| 2024 | 709 | $14.50 | $0.00 | $0.00 | $0.00 | $14.50 | $0.00 |
Statement Details |
| 2023 | 709 | STATE - STATE LEVY (SCHOOL) | $0.00 | $0.00 | $0.00 | $0.00 | $0.00 | $0.00 |
| 2023 | 709 | COUNTY - COUNTY LEVIES (CE, DD, VET, MH) | $0.00 | $0.00 | $0.00 | $0.00 | $0.00 | $0.00 |
| 2023 | 709 | CONSERVE - CONSERVATION FUTURES | $0.00 | $0.00 | $0.00 | $0.00 | $0.00 | $0.00 |
| 2023 | 709 | COROADS - COUNTY ROADS (ROADS, DIV TO CE) | $0.00 | $0.00 | $0.00 | $0.00 | $0.00 | $0.00 |
| 2023 | 709 | PORTPT - PORT DISTRICT | $0.00 | $0.00 | $0.00 | $0.00 | $0.00 | $0.00 |
| 2023 | 709 | PUD1 - PUD #1 | $0.00 | $0.00 | $0.00 | $0.00 | $0.00 | $0.00 |
| 2023 | 709 | LIB1 - LIBRARY DIST #1 | $0.00 | $0.00 | $0.00 | $0.00 | $0.00 | $0.00 |
| 2023 | 709 | HD2 - HOSP DIST #2 | $0.00 | $0.00 | $0.00 | $0.00 | $0.00 | $0.00 |
| 2023 | 709 | SD50 - SCHOOL DIST #50 | $0.00 | $0.00 | $0.00 | $0.00 | $0.00 | $0.00 |
| 2023 | 709 | FD1 - FIRE DISTRICT #1 | $0.00 | $0.00 | $0.00 | $0.00 | $0.00 | $0.00 |
| 2023 | 709 | EMS1 - FIRE DIST #1 EMS | $0.00 | $0.00 | $0.00 | $0.00 | $0.00 | $0.00 |
| 2023 | 709 | FPLCA - DNR Landowner Contingency Assmt | $6.00 | $0.00 | $0.00 | $0.00 | $6.00 | $0.00 |
| 2023 | 709 | NWA - Noxious Weed Assessment | $8.50 | $0.00 | $0.00 | $0.00 | $8.50 | $0.00 |
| 2023 | 709 | TOTAL: | $14.50 | $0.00 | $0.00 | $0.00 | $14.50 | $0.00 |
|
| 2023 | 709 | $14.50 | $0.00 | $0.00 | $0.00 | $14.50 | $0.00 |
Values
| (+) Improvement Homesite Value: | + | $0 | |
| (+) Improvement Non-Homesite Value: | + | $0 | |
| (+) Land Homesite Value: | + | $0 | |
| (+) Land Non-Homesite Value: | + | $421,856 | |
| (+) Curr Use (HS): | + | $0 | $0 |
| (+) Curr Use (NHS): | + | $0 | $0 |
| | | -------------------------- | |
| (=) Market Value: | = | $421,856 | |
| (–) Productivity Loss: | – | $0 | |
| | | -------------------------- | |
| (=) Subtotal: | = | $421,856 | |
| (+) Senior Appraised Value: | + | $0 | |
| (+) Non-Senior Appraised Value: | + | $421,856 | |
| | | -------------------------- | |
| (=) Total Appraised Value: | = | $421,856 | |
| (–) Senior Exemption Loss: | – | $0 | |
| (–) Exemption Loss: | – | $421,856 | |
| | | -------------------------- | |
| (=) Taxable Value: | = | $0 | |
Taxing Jurisdiction
| Owner: | JEFFERSON COUNTY | | |
| % Ownership: | 100.0000000000% | | |
| Total Value: | $421,856 | | |
| Tax Area: | 0111 - 1-50F1E1H2L1 |
| CE | COUNTY CURRENT EXPENSE | 0.9034619479 | $421,856 | $0 | $0.00 | | |
| CNTYDD | DEVELOPMENTAL DISABILITIES | 0.0052121823 | $421,856 | $0 | $0.00 | | |
| CNTYVET | VETERANS RELIEF | 0.0052777810 | $421,856 | $0 | $0.00 | | |
| MENTAL | MENTAL HEALTH | 0.0052121823 | $421,856 | $0 | $0.00 | | |
| ROADS | COUNTY ROADS | 0.7415066410 | $421,856 | $0 | $0.00 | | |
| ROADSCU | COUNTY ROADS TO CUR EXP | 0.0000000000 | $421,856 | $0 | $0.00 | | |
| HOSP2CASH | HOSP DIST #2 GENERAL | 0.0536075306 | $421,856 | $0 | $0.00 | | |
| SCH50BOND | SCHOOL DIST #50 BOND 2016 | 0.5377451389 | $421,856 | $0 | $0.00 | | |
| SCH50CP | SCHOOL DIST #50 CAP PROJ | 0.4573475088 | $421,856 | $0 | $0.00 | | |
| SCH50MO | SCHOOL DIST #50 EP & O | 0.8262822886 | $421,856 | $0 | $0.00 | | |
| CONSERVE | CONSERVATION FUTURES | 0.0275621078 | $421,856 | $0 | $0.00 | | |
| EMS1 | FIRE DIST #1 EMS | 0.4679948282 | $421,856 | $0 | $0.00 | | |
| FD1 | FIRE DIST #1 GENERAL | 1.2171942929 | $421,856 | $0 | $0.00 | | |
| LIB1 | LIBRARY DIST #1 GENERAL | 0.2868827388 | $421,856 | $0 | $0.00 | | |
| PORTPT | PORT OF PT GENERAL | 0.1134941229 | $421,856 | $0 | $0.00 | | |
| PORTPTIDD | PORT OF PT IDD 2019 | 0.2577346692 | $421,856 | $0 | $0.00 | | |
| PUD1 | PUD #1 GENERAL | 0.0597888892 | $421,856 | $0 | $0.00 | | |
| STATE | STATE SCHOOL PART 1 | 1.4940692947 | $421,856 | $0 | $0.00 | | |
| STATE2 | STATE SCHOOL PART 2 | 0.8050170049 | $421,856 | $0 | $0.00 | | |
| | Total Tax Rate: | 8.2653911500 | | | | | |
| | | | | Taxes w/Current Exemptions: | $0.00 | | |
| | | | | Taxes w/o Exemptions: | $3,486.80 | | |
Improvement / Building
Sketch
| No sketches available for this property. |
Property Image
Land
| 1 | 5345-1371S | | 1.0000 | 43560.00 | 0.00 | 0.00 | 1.00 | $181,500 | $0 |
| 2 | 1771A | | 20.8100 | 906483.60 | 0.00 | 0.00 | 0.00 | $240,356 | $0 |
Roll Value History
| 2026 | N/A | N/A | N/A | N/A | N/A |
| 2025 | $0 | $421,856 | $0 | $421,856 | $0 |
| 2024 | $0 | $421,856 | $0 | $421,856 | $0 |
| 2023 | $0 | $386,505 | $0 | $386,505 | $0 |
| 2022 | $0 | $342,290 | $0 | $342,290 | $0 |
Deed and Sales History
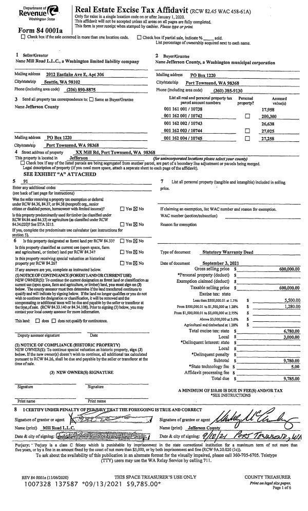
| 1 | 09/03/2021 | SWD | Statutory Warranty Deed | MILL ROAD LLC | JEFFERSON COUNTY | | | $600,000.00 | 137587 | |
|   | |
| 2 | 02/06/1995 | SWD | Statutory Warranty Deed | WORKMAN, MARIE | MILL ROAD | 0 | 0 | $400,000.00 | 76231 | 0 |
Payout Agreement
| No payout information available.. |