Property
Account |
| Property ID: | 10801 | Abbreviated Legal Description: | S17 T30 R1W TAX 48 WITH EASE |
| Parcel # / Geo ID: | 001171024 | Agent Code: | |
| Type: | Real | | |
| Tax Area: | 0111 - 1-50F1E1H2L1 | Land Use Code | 91 |
| Open Space: | N | DFL | N |
| Historic Property: | N | Remodel Property: | N |
| Multi-Family Redevelopment: | N | | |
| Township: | 30N | Section: | 17 |
| Range: | 1W |
Location |
| Address: | | Mapsco: | 090/019 |
| Neighborhood: | S16&17 T30 R1W SALEM,EVERGRN,IRVING&SUNNYSIDE PKS,PIONEER AC | Map ID: | |
| Neighborhood CD: | 5340 |
Owner |
| Name: | DANELLE J & JOHN A III GREER | Owner ID: | 16953 |
| Mailing Address: | 74 SILVER BERRY PL PORT TOWNSEND, WA 98368-7302 | % Ownership: | 100.0000000000% |
| | | Exemptions: | |
Pay Tax Due
Select the appropriate checkbox next to the year to be paid. Multiple years may be selected.
*Convenience Fee not included
Taxes and Assessment Details
Property Tax Information as of
03/11/2026
Click on "Statement Details" to expand or collapse a tax statement.
* Please enter a valid date ** Please enter a valid date *
Statement Details |
| 2026 | 761 | STATE - STATE LEVY (SCHOOL) | $143.14 | $143.12 | $0.00 | $0.00 | $0.00 | $286.26 |
| 2026 | 761 | COUNTY - COUNTY LEVIES (CE, DD, VET, MH) | $57.24 | $57.21 | $0.00 | $0.00 | $0.00 | $114.45 |
| 2026 | 761 | CONSERVE - CONSERVATION FUTURES | $1.72 | $1.71 | $0.00 | $0.00 | $0.00 | $3.43 |
| 2026 | 761 | COROADS - COUNTY ROADS (ROADS, DIV TO CE) | $46.17 | $46.16 | $0.00 | $0.00 | $0.00 | $92.33 |
| 2026 | 761 | PORTPT - PORT DISTRICT | $23.12 | $23.10 | $0.00 | $0.00 | $0.00 | $46.22 |
| 2026 | 761 | PUD1 - PUD #1 | $3.72 | $3.72 | $0.00 | $0.00 | $0.00 | $7.44 |
| 2026 | 761 | LIB1 - LIBRARY DIST #1 | $17.86 | $17.86 | $0.00 | $0.00 | $0.00 | $35.72 |
| 2026 | 761 | HD2 - HOSP DIST #2 | $3.34 | $3.33 | $0.00 | $0.00 | $0.00 | $6.67 |
| 2026 | 761 | SD50 - SCHOOL DIST #50 | $113.39 | $113.39 | $0.00 | $0.00 | $0.00 | $226.78 |
| 2026 | 761 | FD1 - FIRE DISTRICT #1 | $75.78 | $75.77 | $0.00 | $0.00 | $0.00 | $151.55 |
| 2026 | 761 | EMS1 - FIRE DIST #1 EMS | $29.14 | $29.13 | $0.00 | $0.00 | $0.00 | $58.27 |
| 2026 | 761 | FP - DNR Forest Fire Protection Assmt | $8.50 | $8.50 | $0.00 | $0.00 | $0.00 | $17.00 |
| 2026 | 761 | FPLCA - DNR Landowner Contingency Assmt | $3.00 | $3.00 | $0.00 | $0.00 | $0.00 | $6.00 |
| 2026 | 761 | JCCD - JC Conservation District | $2.73 | $2.73 | $0.00 | $0.00 | $0.00 | $5.46 |
| 2026 | 761 | NWA - Noxious Weed Assessment | $4.10 | $4.10 | $0.00 | $0.00 | $0.00 | $8.20 |
| 2026 | 761 | WAT - Clean Water District | $13.00 | $13.00 | $0.00 | $0.00 | $0.00 | $26.00 |
| 2026 | 761 | FP ADMIN - FP ADMIN | $0.50 | $0.00 | $0.00 | $0.00 | $0.00 | $0.50 |
| 2026 | 761 | TOTAL: | $546.45 | $545.83 | $0.00 | $0.00 | $0.00 | $1092.28 |
|
| 2026 | 761 | $546.45 | $545.83 | $0.00 | $0.00 | $0.00 | $1092.28 |
Statement Details |
| 2025 | 765 | STATE - STATE LEVY (SCHOOL) | $89.94 | $89.94 | $0.00 | $0.00 | $179.88 | $0.00 |
| 2025 | 765 | COUNTY - COUNTY LEVIES (CE, DD, VET, MH) | $35.38 | $35.36 | $0.00 | $0.00 | $70.74 | $0.00 |
| 2025 | 765 | CONSERVE - CONSERVATION FUTURES | $1.06 | $1.06 | $0.00 | $0.00 | $2.12 | $0.00 |
| 2025 | 765 | COROADS - COUNTY ROADS (ROADS, DIV TO CE) | $28.34 | $28.33 | $0.00 | $0.00 | $56.67 | $0.00 |
| 2025 | 765 | PORTPT - PORT DISTRICT | $14.44 | $14.42 | $0.00 | $0.00 | $28.86 | $0.00 |
| 2025 | 765 | PUD1 - PUD #1 | $2.32 | $2.31 | $0.00 | $0.00 | $4.63 | $0.00 |
| 2025 | 765 | LIB1 - LIBRARY DIST #1 | $10.97 | $10.96 | $0.00 | $0.00 | $21.93 | $0.00 |
| 2025 | 765 | HD2 - HOSP DIST #2 | $2.07 | $2.06 | $0.00 | $0.00 | $4.13 | $0.00 |
| 2025 | 765 | SD50 - SCHOOL DIST #50 | $65.74 | $65.72 | $0.00 | $0.00 | $131.46 | $0.00 |
| 2025 | 765 | FD1 - FIRE DISTRICT #1 | $46.67 | $46.67 | $0.00 | $0.00 | $93.34 | $0.00 |
| 2025 | 765 | EMS1 - FIRE DIST #1 EMS | $17.95 | $17.95 | $0.00 | $0.00 | $35.90 | $0.00 |
| 2025 | 765 | FP - DNR Forest Fire Protection Assmt | $8.50 | $8.50 | $0.00 | $0.00 | $17.00 | $0.00 |
| 2025 | 765 | FPLCA - DNR Landowner Contingency Assmt | $3.00 | $3.00 | $0.00 | $0.00 | $6.00 | $0.00 |
| 2025 | 765 | JCCD - JC Conservation District | $2.73 | $2.73 | $0.00 | $0.00 | $5.46 | $0.00 |
| 2025 | 765 | NWA - Noxious Weed Assessment | $2.90 | $2.90 | $0.00 | $0.00 | $5.80 | $0.00 |
| 2025 | 765 | WAT - Clean Water District | $13.00 | $13.00 | $0.00 | $0.00 | $26.00 | $0.00 |
| 2025 | 765 | FP ADMIN - FP ADMIN | $0.50 | $0.00 | $0.00 | $0.00 | $0.50 | $0.00 |
| 2025 | 765 | TOTAL: | $345.51 | $344.91 | $0.00 | $0.00 | $690.42 | $0.00 |
|
| 2025 | 765 | $345.51 | $344.91 | $0.00 | $0.00 | $690.42 | $0.00 |
Statement Details |
| 2024 | 767 | STATE - STATE LEVY (SCHOOL) | $81.17 | $81.17 | $0.00 | $0.00 | $162.34 | $0.00 |
| 2024 | 767 | COUNTY - COUNTY LEVIES (CE, DD, VET, MH) | $34.75 | $34.72 | $0.00 | $0.00 | $69.47 | $0.00 |
| 2024 | 767 | CONSERVE - CONSERVATION FUTURES | $1.04 | $1.04 | $0.00 | $0.00 | $2.08 | $0.00 |
| 2024 | 767 | COROADS - COUNTY ROADS (ROADS, DIV TO CE) | $27.95 | $27.95 | $0.00 | $0.00 | $55.90 | $0.00 |
| 2024 | 767 | PORTPT - PORT DISTRICT | $14.35 | $14.35 | $0.00 | $0.00 | $28.70 | $0.00 |
| 2024 | 767 | PUD1 - PUD #1 | $2.28 | $2.28 | $0.00 | $0.00 | $4.56 | $0.00 |
| 2024 | 767 | LIB1 - LIBRARY DIST #1 | $10.82 | $10.81 | $0.00 | $0.00 | $21.63 | $0.00 |
| 2024 | 767 | HD2 - HOSP DIST #2 | $2.03 | $2.02 | $0.00 | $0.00 | $4.05 | $0.00 |
| 2024 | 767 | SD50 - SCHOOL DIST #50 | $65.68 | $65.67 | $0.00 | $0.00 | $131.35 | $0.00 |
| 2024 | 767 | FD1 - FIRE DISTRICT #1 | $45.93 | $45.92 | $0.00 | $0.00 | $91.85 | $0.00 |
| 2024 | 767 | EMS1 - FIRE DIST #1 EMS | $17.54 | $17.54 | $0.00 | $0.00 | $35.08 | $0.00 |
| 2024 | 767 | FP - DNR Forest Fire Protection Assmt | $8.50 | $8.50 | $0.00 | $0.00 | $17.00 | $0.00 |
| 2024 | 767 | FPLCA - DNR Landowner Contingency Assmt | $3.00 | $3.00 | $0.00 | $0.00 | $6.00 | $0.00 |
| 2024 | 767 | JCCD - JC Conservation District | $2.73 | $2.73 | $0.00 | $0.00 | $5.46 | $0.00 |
| 2024 | 767 | NWA - Noxious Weed Assessment | $2.90 | $2.90 | $0.00 | $0.00 | $5.80 | $0.00 |
| 2024 | 767 | WAT - Clean Water District | $12.50 | $12.50 | $0.00 | $0.00 | $25.00 | $0.00 |
| 2024 | 767 | FP ADMIN - FP ADMIN | $0.50 | $0.00 | $0.00 | $0.00 | $0.50 | $0.00 |
| 2024 | 767 | TOTAL: | $333.67 | $333.10 | $0.00 | $0.00 | $666.77 | $0.00 |
|
| 2024 | 767 | $333.67 | $333.10 | $0.00 | $0.00 | $666.77 | $0.00 |
Statement Details |
| 2023 | 767 | STATE - STATE LEVY (SCHOOL) | $75.46 | $75.44 | $0.00 | $0.00 | $150.90 | $0.00 |
| 2023 | 767 | COUNTY - COUNTY LEVIES (CE, DD, VET, MH) | $32.93 | $32.91 | $0.00 | $0.00 | $65.84 | $0.00 |
| 2023 | 767 | CONSERVE - CONSERVATION FUTURES | $0.99 | $0.98 | $0.00 | $0.00 | $1.97 | $0.00 |
| 2023 | 767 | COROADS - COUNTY ROADS (ROADS, DIV TO CE) | $26.64 | $26.63 | $0.00 | $0.00 | $53.27 | $0.00 |
| 2023 | 767 | PORTPT - PORT DISTRICT | $13.88 | $13.86 | $0.00 | $0.00 | $27.74 | $0.00 |
| 2023 | 767 | PUD1 - PUD #1 | $2.18 | $2.18 | $0.00 | $0.00 | $4.36 | $0.00 |
| 2023 | 767 | LIB1 - LIBRARY DIST #1 | $10.31 | $10.30 | $0.00 | $0.00 | $20.61 | $0.00 |
| 2023 | 767 | HD2 - HOSP DIST #2 | $1.92 | $1.92 | $0.00 | $0.00 | $3.84 | $0.00 |
| 2023 | 767 | SD50 - SCHOOL DIST #50 | $59.88 | $59.86 | $0.00 | $0.00 | $119.74 | $0.00 |
| 2023 | 767 | FD1 - FIRE DISTRICT #1 | $27.13 | $27.12 | $0.00 | $0.00 | $54.25 | $0.00 |
| 2023 | 767 | EMS1 - FIRE DIST #1 EMS | $11.54 | $11.54 | $0.00 | $0.00 | $23.08 | $0.00 |
| 2023 | 767 | FP - DNR Forest Fire Protection Assmt | $8.50 | $8.50 | $0.00 | $0.00 | $17.00 | $0.00 |
| 2023 | 767 | FPLCA - DNR Landowner Contingency Assmt | $3.00 | $3.00 | $0.00 | $0.00 | $6.00 | $0.00 |
| 2023 | 767 | JCCD - JC Conservation District | $2.73 | $2.73 | $0.00 | $0.00 | $5.46 | $0.00 |
| 2023 | 767 | NWA - Noxious Weed Assessment | $2.90 | $2.90 | $0.00 | $0.00 | $5.80 | $0.00 |
| 2023 | 767 | WAT - Clean Water District | $12.00 | $12.00 | $0.00 | $0.00 | $24.00 | $0.00 |
| 2023 | 767 | FP ADMIN - FP ADMIN | $0.50 | $0.00 | $0.00 | $0.00 | $0.50 | $0.00 |
| 2023 | 767 | TOTAL: | $292.49 | $291.87 | $0.00 | $0.00 | $584.36 | $0.00 |
|
| 2023 | 767 | $292.49 | $291.87 | $0.00 | $0.00 | $584.36 | $0.00 |
Values
| (+) Improvement Homesite Value: | + | $0 | |
| (+) Improvement Non-Homesite Value: | + | $0 | |
| (+) Land Homesite Value: | + | $0 | |
| (+) Land Non-Homesite Value: | + | $124,511 | |
| (+) Curr Use (HS): | + | $0 | $0 |
| (+) Curr Use (NHS): | + | $0 | $0 |
| | | -------------------------- | |
| (=) Market Value: | = | $124,511 | |
| (–) Productivity Loss: | – | $0 | |
| | | -------------------------- | |
| (=) Subtotal: | = | $124,511 | |
| (+) Senior Appraised Value: | + | $0 | |
| (+) Non-Senior Appraised Value: | + | $124,511 | |
| | | -------------------------- | |
| (=) Total Appraised Value: | = | $124,511 | |
| (–) Senior Exemption Loss: | – | $0 | |
| (–) Exemption Loss: | – | $0 | |
| | | -------------------------- | |
| (=) Taxable Value: | = | $124,511 | |
Taxing Jurisdiction
| Owner: | DANELLE J & JOHN A III GREER | | |
| % Ownership: | 100.0000000000% | | |
| Total Value: | $124,511 | | |
| Tax Area: | 0111 - 1-50F1E1H2L1 |
| CE | COUNTY CURRENT EXPENSE | 0.9034619479 | $124,511 | $124,511 | $112.49 | | |
| CNTYDD | DEVELOPMENTAL DISABILITIES | 0.0052121823 | $124,511 | $124,511 | $0.65 | | |
| CNTYVET | VETERANS RELIEF | 0.0052777810 | $124,511 | $124,511 | $0.66 | | |
| MENTAL | MENTAL HEALTH | 0.0052121823 | $124,511 | $124,511 | $0.65 | | |
| ROADS | COUNTY ROADS | 0.7415066410 | $124,511 | $124,511 | $92.33 | | |
| ROADSCU | COUNTY ROADS TO CUR EXP | 0.0000000000 | $124,511 | $124,511 | $0.00 | | |
| HOSP2CASH | HOSP DIST #2 GENERAL | 0.0536075306 | $124,511 | $124,511 | $6.67 | | |
| SCH50BOND | SCHOOL DIST #50 BOND 2016 | 0.5377451389 | $124,511 | $124,511 | $66.96 | | |
| SCH50CP | SCHOOL DIST #50 CAP PROJ | 0.4573475088 | $124,511 | $124,511 | $56.94 | | |
| SCH50MO | SCHOOL DIST #50 EP & O | 0.8262822886 | $124,511 | $124,511 | $102.88 | | |
| CONSERVE | CONSERVATION FUTURES | 0.0275621078 | $124,511 | $124,511 | $3.43 | | |
| EMS1 | FIRE DIST #1 EMS | 0.4679948282 | $124,511 | $124,511 | $58.27 | | |
| FD1 | FIRE DIST #1 GENERAL | 1.2171942929 | $124,511 | $124,511 | $151.55 | | |
| LIB1 | LIBRARY DIST #1 GENERAL | 0.2868827388 | $124,511 | $124,511 | $35.72 | | |
| PORTPT | PORT OF PT GENERAL | 0.1134941229 | $124,511 | $124,511 | $14.13 | | |
| PORTPTIDD | PORT OF PT IDD 2019 | 0.2577346692 | $124,511 | $124,511 | $32.09 | | |
| PUD1 | PUD #1 GENERAL | 0.0597888892 | $124,511 | $124,511 | $7.44 | | |
| STATE | STATE SCHOOL PART 1 | 1.4940692947 | $124,511 | $124,511 | $186.03 | | |
| STATE2 | STATE SCHOOL PART 2 | 0.8050170049 | $124,511 | $124,511 | $100.23 | | |
| | Total Tax Rate: | 8.2653911500 | | | | | |
| | | | | Taxes w/Current Exemptions: | $1,029.12 | | |
| | | | | Taxes w/o Exemptions: | $1,029.12 | | |
Improvement / Building
Sketch
| No sketches available for this property. |
Property Image
Land
| 1 | 5340-1373S | | 1.0000 | 43560.00 | 0.00 | 0.00 | 1.00 | $99,000 | $0 |
| 2 | 1574A | | 4.2800 | 186436.80 | 0.00 | 0.00 | 0.00 | $25,511 | $0 |
Roll Value History
| 2026 | N/A | N/A | N/A | N/A | N/A |
| 2025 | $0 | $124,511 | $0 | $124,511 | $124,511 |
| 2024 | $0 | $75,011 | $0 | $75,011 | $75,011 |
| 2023 | $0 | $70,169 | $0 | $70,169 | $70,169 |
| 2022 | $0 | $64,100 | $0 | $64,100 | $64,100 |
Deed and Sales History
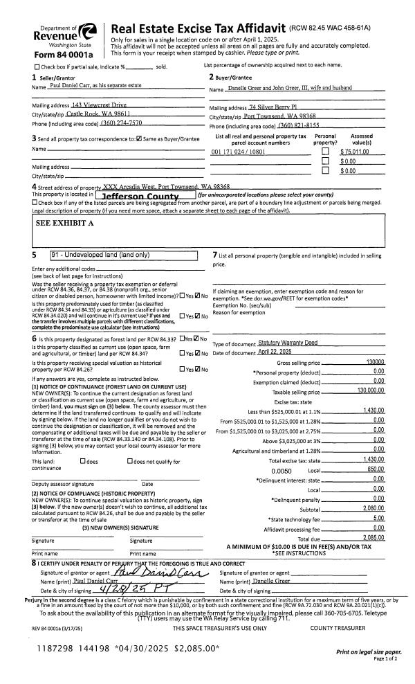
| 1 | 04/22/2025 | SWD | Statutory Warranty Deed | PAUL D CARR | DANELLE J & JOHN A III GREER | | | $130,000.00 | 144198 | |
Payout Agreement
| No payout information available.. |