Property
Account |
| Property ID: | 10993 | Abbreviated Legal Description: | DISCOVERY BAY RIDGE DIV V PARCEL 8 SUBJ TO CC&R OF RECORD V660P426 |
| Parcel # / Geo ID: | 001195128 | Agent Code: | |
| Type: | Real | | |
| Tax Area: | 0111 - 1-50F1E1H2L1 | Land Use Code | 11 |
| Open Space: | N | DFL | N |
| Historic Property: | N | Remodel Property: | N |
| Multi-Family Redevelopment: | N | | |
| Township: | 30N | Section: | 19 |
| Range: | 1W |
Location |
| Address: | 1001 DISCOVERY RIDGE RD PORT TOWNSEND, WA 98368 | Mapsco: | 143/008 |
| Neighborhood: | S19,30&31T30NR1W,S25T30R2W,ARBUTUS,BAYVIEW CHEVY,DISCO RIDGE | Map ID: | |
| Neighborhood CD: | 5360 |
Owner |
| Name: | STEVEN G & DEBRA CHEEHY | Owner ID: | 111644 |
| Mailing Address: | 1001 DISCOVERY RDGE RD PORT TOWNSEND, WA 98368-8801 | % Ownership: | 100.0000000000% |
| | | Exemptions: | |
Pay Tax Due
Select the appropriate checkbox next to the year to be paid. Multiple years may be selected.
*Convenience Fee not included
Taxes and Assessment Details
Property Tax Information as of
03/10/2026
Click on "Statement Details" to expand or collapse a tax statement.
* Please enter a valid date ** Please enter a valid date *
Statement Details |
| 2026 | 951 | STATE - STATE LEVY (SCHOOL) | $1002.44 | $1002.43 | $0.00 | $0.00 | $0.00 | $2004.87 |
| 2026 | 951 | COUNTY - COUNTY LEVIES (CE, DD, VET, MH) | $400.79 | $400.76 | $0.00 | $0.00 | $0.00 | $801.55 |
| 2026 | 951 | CONSERVE - CONSERVATION FUTURES | $12.02 | $12.01 | $0.00 | $0.00 | $0.00 | $24.03 |
| 2026 | 951 | COROADS - COUNTY ROADS (ROADS, DIV TO CE) | $323.31 | $323.31 | $0.00 | $0.00 | $0.00 | $646.62 |
| 2026 | 951 | PORTPT - PORT DISTRICT | $161.87 | $161.85 | $0.00 | $0.00 | $0.00 | $323.72 |
| 2026 | 951 | PUD1 - PUD #1 | $26.07 | $26.07 | $0.00 | $0.00 | $0.00 | $52.14 |
| 2026 | 951 | LIB1 - LIBRARY DIST #1 | $125.09 | $125.08 | $0.00 | $0.00 | $0.00 | $250.17 |
| 2026 | 951 | HD2 - HOSP DIST #2 | $23.38 | $23.37 | $0.00 | $0.00 | $0.00 | $46.75 |
| 2026 | 951 | SD50 - SCHOOL DIST #50 | $794.15 | $794.14 | $0.00 | $0.00 | $0.00 | $1588.29 |
| 2026 | 951 | FD1 - FIRE DISTRICT #1 | $530.72 | $530.71 | $0.00 | $0.00 | $0.00 | $1061.43 |
| 2026 | 951 | EMS1 - FIRE DIST #1 EMS | $204.06 | $204.05 | $0.00 | $0.00 | $0.00 | $408.11 |
| 2026 | 951 | FP - DNR Forest Fire Protection Assmt | $8.50 | $8.50 | $0.00 | $0.00 | $0.00 | $17.00 |
| 2026 | 951 | FPLCA - DNR Landowner Contingency Assmt | $3.00 | $3.00 | $0.00 | $0.00 | $0.00 | $6.00 |
| 2026 | 951 | JCCD - JC Conservation District | $2.80 | $2.80 | $0.00 | $0.00 | $0.00 | $5.60 |
| 2026 | 951 | NWA - Noxious Weed Assessment | $4.10 | $4.10 | $0.00 | $0.00 | $0.00 | $8.20 |
| 2026 | 951 | OSS - On Site Septic | $23.10 | $23.10 | $0.00 | $0.00 | $0.00 | $46.20 |
| 2026 | 951 | WAT - Clean Water District | $13.00 | $13.00 | $0.00 | $0.00 | $0.00 | $26.00 |
| 2026 | 951 | FP ADMIN - FP ADMIN | $0.50 | $0.00 | $0.00 | $0.00 | $0.00 | $0.50 |
| 2026 | 951 | TOTAL: | $3658.90 | $3658.28 | $0.00 | $0.00 | $0.00 | $7317.18 |
|
| 2026 | 951 | $3658.90 | $3658.28 | $0.00 | $0.00 | $0.00 | $7317.18 |
Statement Details |
| 2025 | 955 | STATE - STATE LEVY (SCHOOL) | $1132.04 | $1132.04 | $0.00 | $0.00 | $2264.08 | $0.00 |
| 2025 | 955 | COUNTY - COUNTY LEVIES (CE, DD, VET, MH) | $445.17 | $445.17 | $0.00 | $0.00 | $890.34 | $0.00 |
| 2025 | 955 | CONSERVE - CONSERVATION FUTURES | $13.35 | $13.35 | $0.00 | $0.00 | $26.70 | $0.00 |
| 2025 | 955 | COROADS - COUNTY ROADS (ROADS, DIV TO CE) | $356.66 | $356.64 | $0.00 | $0.00 | $713.30 | $0.00 |
| 2025 | 955 | PORTPT - PORT DISTRICT | $181.66 | $181.64 | $0.00 | $0.00 | $363.30 | $0.00 |
| 2025 | 955 | PUD1 - PUD #1 | $29.13 | $29.13 | $0.00 | $0.00 | $58.26 | $0.00 |
| 2025 | 955 | LIB1 - LIBRARY DIST #1 | $137.99 | $137.98 | $0.00 | $0.00 | $275.97 | $0.00 |
| 2025 | 955 | HD2 - HOSP DIST #2 | $25.97 | $25.97 | $0.00 | $0.00 | $51.94 | $0.00 |
| 2025 | 955 | SD50 - SCHOOL DIST #50 | $827.34 | $827.32 | $0.00 | $0.00 | $1654.66 | $0.00 |
| 2025 | 955 | FD1 - FIRE DISTRICT #1 | $587.45 | $587.44 | $0.00 | $0.00 | $1174.89 | $0.00 |
| 2025 | 955 | EMS1 - FIRE DIST #1 EMS | $225.95 | $225.95 | $0.00 | $0.00 | $451.90 | $0.00 |
| 2025 | 955 | FP - DNR Forest Fire Protection Assmt | $8.50 | $8.50 | $0.00 | $0.00 | $17.00 | $0.00 |
| 2025 | 955 | FPLCA - DNR Landowner Contingency Assmt | $3.00 | $3.00 | $0.00 | $0.00 | $6.00 | $0.00 |
| 2025 | 955 | JCCD - JC Conservation District | $2.80 | $2.80 | $0.00 | $0.00 | $5.60 | $0.00 |
| 2025 | 955 | NWA - Noxious Weed Assessment | $2.90 | $2.90 | $0.00 | $0.00 | $5.80 | $0.00 |
| 2025 | 955 | OSS - On Site Septic | $21.50 | $21.50 | $0.00 | $0.00 | $43.00 | $0.00 |
| 2025 | 955 | WAT - Clean Water District | $13.00 | $13.00 | $0.00 | $0.00 | $26.00 | $0.00 |
| 2025 | 955 | FP ADMIN - FP ADMIN | $0.50 | $0.00 | $0.00 | $0.00 | $0.50 | $0.00 |
| 2025 | 955 | TOTAL: | $4014.91 | $4014.33 | $0.00 | $0.00 | $8029.24 | $0.00 |
|
| 2025 | 955 | $4014.91 | $4014.33 | $0.00 | $0.00 | $8029.24 | $0.00 |
Statement Details |
| 2024 | 957 | STATE - STATE LEVY (SCHOOL) | $954.91 | $954.89 | $0.00 | $0.00 | $1909.80 | $0.00 |
| 2024 | 957 | COUNTY - COUNTY LEVIES (CE, DD, VET, MH) | $408.62 | $408.59 | $0.00 | $0.00 | $817.21 | $0.00 |
| 2024 | 957 | CONSERVE - CONSERVATION FUTURES | $12.26 | $12.25 | $0.00 | $0.00 | $24.51 | $0.00 |
| 2024 | 957 | COROADS - COUNTY ROADS (ROADS, DIV TO CE) | $328.81 | $328.79 | $0.00 | $0.00 | $657.60 | $0.00 |
| 2024 | 957 | PORTPT - PORT DISTRICT | $168.78 | $168.77 | $0.00 | $0.00 | $337.55 | $0.00 |
| 2024 | 957 | PUD1 - PUD #1 | $26.84 | $26.84 | $0.00 | $0.00 | $53.68 | $0.00 |
| 2024 | 957 | LIB1 - LIBRARY DIST #1 | $127.21 | $127.21 | $0.00 | $0.00 | $254.42 | $0.00 |
| 2024 | 957 | HD2 - HOSP DIST #2 | $23.84 | $23.84 | $0.00 | $0.00 | $47.68 | $0.00 |
| 2024 | 957 | SD50 - SCHOOL DIST #50 | $772.57 | $772.55 | $0.00 | $0.00 | $1545.12 | $0.00 |
| 2024 | 957 | FD1 - FIRE DISTRICT #1 | $540.28 | $540.28 | $0.00 | $0.00 | $1080.56 | $0.00 |
| 2024 | 957 | EMS1 - FIRE DIST #1 EMS | $206.37 | $206.37 | $0.00 | $0.00 | $412.74 | $0.00 |
| 2024 | 957 | FPLCA - DNR Landowner Contingency Assmt | $3.00 | $3.00 | $0.00 | $0.00 | $6.00 | $0.00 |
| 2024 | 957 | JCCD - JC Conservation District | $2.80 | $2.80 | $0.00 | $0.00 | $5.60 | $0.00 |
| 2024 | 957 | NWA - Noxious Weed Assessment | $2.90 | $2.90 | $0.00 | $0.00 | $5.80 | $0.00 |
| 2024 | 957 | OSS - On Site Septic | $21.00 | $21.00 | $0.00 | $0.00 | $42.00 | $0.00 |
| 2024 | 957 | WAT - Clean Water District | $12.50 | $12.50 | $0.00 | $0.00 | $25.00 | $0.00 |
| 2024 | 957 | TOTAL: | $3612.69 | $3612.58 | $0.00 | $0.00 | $7225.27 | $0.00 |
|
| 2024 | 957 | $3612.69 | $3612.58 | $0.00 | $0.00 | $7225.27 | $0.00 |
Statement Details |
| 2023 | 957 | STATE - STATE LEVY (SCHOOL) | $883.25 | $883.24 | $0.00 | $0.00 | $1766.49 | $0.00 |
| 2023 | 957 | COUNTY - COUNTY LEVIES (CE, DD, VET, MH) | $385.43 | $385.42 | $0.00 | $0.00 | $770.85 | $0.00 |
| 2023 | 957 | CONSERVE - CONSERVATION FUTURES | $11.56 | $11.55 | $0.00 | $0.00 | $23.11 | $0.00 |
| 2023 | 957 | COROADS - COUNTY ROADS (ROADS, DIV TO CE) | $311.83 | $311.83 | $0.00 | $0.00 | $623.66 | $0.00 |
| 2023 | 957 | PORTPT - PORT DISTRICT | $162.36 | $162.36 | $0.00 | $0.00 | $324.72 | $0.00 |
| 2023 | 957 | PUD1 - PUD #1 | $25.55 | $25.55 | $0.00 | $0.00 | $51.10 | $0.00 |
| 2023 | 957 | LIB1 - LIBRARY DIST #1 | $120.65 | $120.64 | $0.00 | $0.00 | $241.29 | $0.00 |
| 2023 | 957 | HD2 - HOSP DIST #2 | $22.50 | $22.48 | $0.00 | $0.00 | $44.98 | $0.00 |
| 2023 | 957 | SD50 - SCHOOL DIST #50 | $700.88 | $700.86 | $0.00 | $0.00 | $1401.74 | $0.00 |
| 2023 | 957 | FD1 - FIRE DISTRICT #1 | $317.51 | $317.51 | $0.00 | $0.00 | $635.02 | $0.00 |
| 2023 | 957 | EMS1 - FIRE DIST #1 EMS | $135.07 | $135.06 | $0.00 | $0.00 | $270.13 | $0.00 |
| 2023 | 957 | FPLCA - DNR Landowner Contingency Assmt | $3.00 | $3.00 | $0.00 | $0.00 | $6.00 | $0.00 |
| 2023 | 957 | JCCD - JC Conservation District | $2.80 | $2.80 | $0.00 | $0.00 | $5.60 | $0.00 |
| 2023 | 957 | NWA - Noxious Weed Assessment | $2.90 | $2.90 | $0.00 | $0.00 | $5.80 | $0.00 |
| 2023 | 957 | OSS - On Site Septic | $20.50 | $20.50 | $0.00 | $0.00 | $41.00 | $0.00 |
| 2023 | 957 | WAT - Clean Water District | $12.00 | $12.00 | $0.00 | $0.00 | $24.00 | $0.00 |
| 2023 | 957 | TOTAL: | $3117.79 | $3117.70 | $0.00 | $0.00 | $6235.49 | $0.00 |
|
| 2023 | 957 | $3117.79 | $3117.70 | $0.00 | $0.00 | $6235.49 | $0.00 |
Values
| (+) Improvement Homesite Value: | + | $0 | |
| (+) Improvement Non-Homesite Value: | + | $696,730 | |
| (+) Land Homesite Value: | + | $0 | |
| (+) Land Non-Homesite Value: | + | $175,299 | |
| (+) Curr Use (HS): | + | $0 | $0 |
| (+) Curr Use (NHS): | + | $0 | $0 |
| | | -------------------------- | |
| (=) Market Value: | = | $872,029 | |
| (–) Productivity Loss: | – | $0 | |
| | | -------------------------- | |
| (=) Subtotal: | = | $872,029 | |
| (+) Senior Appraised Value: | + | $0 | |
| (+) Non-Senior Appraised Value: | + | $872,029 | |
| | | -------------------------- | |
| (=) Total Appraised Value: | = | $872,029 | |
| (–) Senior Exemption Loss: | – | $0 | |
| (–) Exemption Loss: | – | $0 | |
| | | -------------------------- | |
| (=) Taxable Value: | = | $872,029 | |
Taxing Jurisdiction
| Owner: | STEVEN G & DEBRA CHEEHY | | |
| % Ownership: | 100.0000000000% | | |
| Total Value: | $872,029 | | |
| Tax Area: | 0111 - 1-50F1E1H2L1 |
| CE | COUNTY CURRENT EXPENSE | 0.9034619479 | $872,029 | $872,029 | $787.85 | | |
| CNTYDD | DEVELOPMENTAL DISABILITIES | 0.0052121823 | $872,029 | $872,029 | $4.55 | | |
| CNTYVET | VETERANS RELIEF | 0.0052777810 | $872,029 | $872,029 | $4.60 | | |
| MENTAL | MENTAL HEALTH | 0.0052121823 | $872,029 | $872,029 | $4.55 | | |
| ROADS | COUNTY ROADS | 0.7415066410 | $872,029 | $872,029 | $646.62 | | |
| ROADSCU | COUNTY ROADS TO CUR EXP | 0.0000000000 | $872,029 | $872,029 | $0.00 | | |
| HOSP2CASH | HOSP DIST #2 GENERAL | 0.0536075306 | $872,029 | $872,029 | $46.75 | | |
| SCH50BOND | SCHOOL DIST #50 BOND 2016 | 0.5377451389 | $872,029 | $872,029 | $468.93 | | |
| SCH50CP | SCHOOL DIST #50 CAP PROJ | 0.4573475088 | $872,029 | $872,029 | $398.82 | | |
| SCH50MO | SCHOOL DIST #50 EP & O | 0.8262822886 | $872,029 | $872,029 | $720.54 | | |
| CONSERVE | CONSERVATION FUTURES | 0.0275621078 | $872,029 | $872,029 | $24.03 | | |
| EMS1 | FIRE DIST #1 EMS | 0.4679948282 | $872,029 | $872,029 | $408.11 | | |
| FD1 | FIRE DIST #1 GENERAL | 1.2171942929 | $872,029 | $872,029 | $1,061.43 | | |
| LIB1 | LIBRARY DIST #1 GENERAL | 0.2868827388 | $872,029 | $872,029 | $250.17 | | |
| PORTPT | PORT OF PT GENERAL | 0.1134941229 | $872,029 | $872,029 | $98.97 | | |
| PORTPTIDD | PORT OF PT IDD 2019 | 0.2577346692 | $872,029 | $872,029 | $224.75 | | |
| PUD1 | PUD #1 GENERAL | 0.0597888892 | $872,029 | $872,029 | $52.14 | | |
| STATE | STATE SCHOOL PART 1 | 1.4940692947 | $872,029 | $872,029 | $1,302.87 | | |
| STATE2 | STATE SCHOOL PART 2 | 0.8050170049 | $872,029 | $872,029 | $702.00 | | |
| | Total Tax Rate: | 8.2653911500 | | | | | |
| | | | | Taxes w/Current Exemptions: | $7,207.68 | | |
| | | | | Taxes w/o Exemptions: | $7,207.68 | | |
Improvement / Building
| Improvement #1: | Residential Bldg | State Code: | 11 | 3298.0 sqft | Value: | $651,176 |
| Bathrooms (#): | 3 (FULL) | Bathrooms (#): | 1 (HALF) | | Bedrooms (#): | 4 | Exterior Wall: | SI/ST | | Fireplace: | WD ST-GOOD | Floor Construction: | FRAME | | Foundation: | CONPR | Heating/Cooling: | F/A | | Roof Cover: | COMP |   |   |
|
| | Type | Description | Class CD | Sub Class CD | Year Built | Area |
| | MA | Main Area | 4 | 2S | 2002 | 1563.0 |
| | MA2 | Second Floor Main Area | 4 | 2S | 2002 | 1735.0 |
| | HWPOR | House Wood Porch | 4 | 2S | 2002 | 352.0 |
| | HDECK | House Deck | 4 | 2S | 2002 | 786.0 |
| | GBLTIN | Builtin Garage | 3 | 2S | 2002 | 768.0 |
| | ASPHD | Asphalt Drive | 4 | 2S | 2002 | 2500.0 |
| | GDET | Detached Garage | 4 | 2S | 2002 | 220.0 |
| | GDET | Detached Garage | 4 | 2S | 2002 | 696.0 |
| Improvement #2: | Residential Bldg | State Code: | 11 | 144.0 sqft | Value: | $45,554 |
| Bedrooms (#): | 1 | Exterior Wall: | SI/ST | | Floor Construction: | FRAME | Foundation: | PO&BL | | Heating/Cooling: | ELBB | Roof Cover: | COMP |
|
| | Type | Description | Class CD | Sub Class CD | Year Built | Area |
| | MA | Main Area | 4- | 1S | 2004 | 144.0 |
| | HWPOR | House Wood Porch | 4 | 1S | 2004 | 72.0 |
Sketch
| No sketches available for this property. |
Property Image
Land
| 1 | 5360-1355S | | 1.0000 | 43560.00 | 0.00 | 0.00 | 1.00 | $143,000 | $0 |
| 2 | 1579A | | 4.5000 | 196020.00 | 0.00 | 0.00 | 0.00 | $32,299 | $0 |
Roll Value History
| 2026 | N/A | N/A | N/A | N/A | N/A |
| 2025 | $696,730 | $175,299 | $0 | $872,029 | $872,029 |
| 2024 | $768,842 | $175,299 | $0 | $944,141 | $944,141 |
| 2023 | $664,452 | $161,018 | $0 | $825,470 | $825,470 |
| 2022 | $604,047 | $146,325 | $0 | $750,372 | $750,372 |
Deed and Sales History
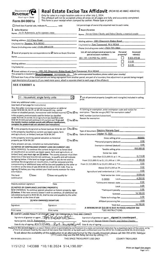
| 1 | 10/15/2024 | SWD | Statutory Warranty Deed | ARI D RUBENSTEIN | STEVEN G & DEBRA CHEEHY | | | $850,000.00 | 143388 | |
| 2 | 11/21/2017 | QCD | Quit Claim Deed | | | | | | 129452 | |
| 3 | 12/30/2015 | SWD | Statutory Warranty Deed | HENRY F MEISSNER | SARAH M RUBENSTEIN | | | $487,000.00 | 124719 | |
| 4 | 02/25/2009 | QCD | Quit Claim Deed | BUERKLE, MELANIE LAKE/MEI | BUERKLE TRUST/MEISSNER TRUST | 0 | 0 | $0.00 | 112563 | 0 |
| 5 | 02/09/2006 | SWD | Statutory Warranty Deed | VANDEWEGHE, ROBERTUS & JA | MEISSNER, HENRY & MELANIE | 0 | 0 | $537,500.00 | 106048 | 0 |
| 6 | 10/16/2001 | SWD | Statutory Warranty Deed | DISCOVERY RIDGE LLC, A WA | VANDEWEGHE, JACOBA/ROBERTUS | 0 | 0 | $60,000.00 | 93332 | 0 |
Payout Agreement
| No payout information available.. |