Property
Account |
| Property ID: | 10994 | Abbreviated Legal Description: | DISCOVERY BAY RIDGE DIV V PARCEL 9 SUBJ TO CC&R OF RECORD V660P426 |
| Parcel # / Geo ID: | 001195129 | Agent Code: | |
| Type: | Real | | |
| Tax Area: | 0111 - 1-50F1E1H2L1 | Land Use Code | 91 |
| Open Space: | N | DFL | N |
| Historic Property: | N | Remodel Property: | N |
| Multi-Family Redevelopment: | N | | |
| Township: | 30N | Section: | 19 |
| Range: | 1W |
Location |
| Address: | 0 DISCOVERY RIDGE RD PORT TOWNSEND, WA 98368 | Mapsco: | 143/009 |
| Neighborhood: | S19,30&31T30NR1W,S25T30R2W,ARBUTUS,BAYVIEW CHEVY,DISCO RIDGE | Map ID: | |
| Neighborhood CD: | 5360 |
Owner |
| Name: | ARI D RUBENSTEIN | Owner ID: | 75857 |
| Mailing Address: | 112 CRAIG RD SEQUIM, WA 98382-8719 | % Ownership: | 100.0000000000% |
| | | Exemptions: | |
Pay Tax Due
Select the appropriate checkbox next to the year to be paid. Multiple years may be selected.
*Convenience Fee not included
Taxes and Assessment Details
Property Tax Information as of
03/11/2026
Click on "Statement Details" to expand or collapse a tax statement.
* Please enter a valid date ** Please enter a valid date *
Statement Details |
| 2026 | 952 | STATE - STATE LEVY (SCHOOL) | $164.96 | $164.95 | $0.00 | $0.00 | $0.00 | $329.91 |
| 2026 | 952 | COUNTY - COUNTY LEVIES (CE, DD, VET, MH) | $65.96 | $65.94 | $0.00 | $0.00 | $0.00 | $131.90 |
| 2026 | 952 | CONSERVE - CONSERVATION FUTURES | $1.98 | $1.98 | $0.00 | $0.00 | $0.00 | $3.96 |
| 2026 | 952 | COROADS - COUNTY ROADS (ROADS, DIV TO CE) | $53.20 | $53.20 | $0.00 | $0.00 | $0.00 | $106.40 |
| 2026 | 952 | PORTPT - PORT DISTRICT | $26.64 | $26.63 | $0.00 | $0.00 | $0.00 | $53.27 |
| 2026 | 952 | PUD1 - PUD #1 | $4.29 | $4.29 | $0.00 | $0.00 | $0.00 | $8.58 |
| 2026 | 952 | LIB1 - LIBRARY DIST #1 | $20.59 | $20.58 | $0.00 | $0.00 | $0.00 | $41.17 |
| 2026 | 952 | HD2 - HOSP DIST #2 | $3.85 | $3.84 | $0.00 | $0.00 | $0.00 | $7.69 |
| 2026 | 952 | SD50 - SCHOOL DIST #50 | $130.69 | $130.67 | $0.00 | $0.00 | $0.00 | $261.36 |
| 2026 | 952 | FD1 - FIRE DISTRICT #1 | $87.33 | $87.33 | $0.00 | $0.00 | $0.00 | $174.66 |
| 2026 | 952 | EMS1 - FIRE DIST #1 EMS | $33.58 | $33.57 | $0.00 | $0.00 | $0.00 | $67.15 |
| 2026 | 952 | FP - DNR Forest Fire Protection Assmt | $8.50 | $8.50 | $0.00 | $0.00 | $0.00 | $17.00 |
| 2026 | 952 | FPLCA - DNR Landowner Contingency Assmt | $3.00 | $3.00 | $0.00 | $0.00 | $0.00 | $6.00 |
| 2026 | 952 | JCCD - JC Conservation District | $2.73 | $2.73 | $0.00 | $0.00 | $0.00 | $5.46 |
| 2026 | 952 | NWA - Noxious Weed Assessment | $4.10 | $4.10 | $0.00 | $0.00 | $0.00 | $8.20 |
| 2026 | 952 | WAT - Clean Water District | $13.00 | $13.00 | $0.00 | $0.00 | $0.00 | $26.00 |
| 2026 | 952 | FP ADMIN - FP ADMIN | $0.50 | $0.00 | $0.00 | $0.00 | $0.00 | $0.50 |
| 2026 | 952 | TOTAL: | $624.90 | $624.31 | $0.00 | $0.00 | $0.00 | $1249.21 |
|
| 2026 | 952 | $624.90 | $624.31 | $0.00 | $0.00 | $0.00 | $1249.21 |
Statement Details |
| 2025 | 956 | STATE - STATE LEVY (SCHOOL) | $172.05 | $172.05 | $37.85 | $37.85 | $0.00 | $419.80 |
| 2025 | 956 | COUNTY - COUNTY LEVIES (CE, DD, VET, MH) | $67.68 | $67.65 | $14.87 | $14.88 | $0.00 | $165.08 |
| 2025 | 956 | CONSERVE - CONSERVATION FUTURES | $2.03 | $2.03 | $0.44 | $0.45 | $0.00 | $4.95 |
| 2025 | 956 | COROADS - COUNTY ROADS (ROADS, DIV TO CE) | $54.21 | $54.20 | $11.92 | $11.92 | $0.00 | $132.25 |
| 2025 | 956 | PORTPT - PORT DISTRICT | $27.62 | $27.60 | $6.08 | $6.08 | $0.00 | $67.38 |
| 2025 | 956 | PUD1 - PUD #1 | $4.43 | $4.42 | $0.98 | $0.97 | $0.00 | $10.80 |
| 2025 | 956 | LIB1 - LIBRARY DIST #1 | $20.97 | $20.97 | $4.62 | $4.61 | $0.00 | $51.17 |
| 2025 | 956 | HD2 - HOSP DIST #2 | $3.95 | $3.94 | $0.87 | $0.87 | $0.00 | $9.63 |
| 2025 | 956 | SD50 - SCHOOL DIST #50 | $125.75 | $125.73 | $27.67 | $27.66 | $0.00 | $306.81 |
| 2025 | 956 | FD1 - FIRE DISTRICT #1 | $89.29 | $89.28 | $19.65 | $19.64 | $0.00 | $217.86 |
| 2025 | 956 | EMS1 - FIRE DIST #1 EMS | $34.34 | $34.34 | $7.55 | $7.55 | $0.00 | $83.78 |
| 2025 | 956 | FP - DNR Forest Fire Protection Assmt | $8.50 | $8.50 | $1.87 | $1.87 | $0.00 | $20.74 |
| 2025 | 956 | FPLCA - DNR Landowner Contingency Assmt | $3.00 | $3.00 | $0.66 | $0.66 | $0.00 | $7.32 |
| 2025 | 956 | JCCD - JC Conservation District | $2.73 | $2.73 | $0.60 | $0.60 | $0.00 | $6.66 |
| 2025 | 956 | NWA - Noxious Weed Assessment | $2.90 | $2.90 | $0.63 | $0.64 | $0.00 | $7.07 |
| 2025 | 956 | WAT - Clean Water District | $13.00 | $13.00 | $2.86 | $2.86 | $0.00 | $31.72 |
| 2025 | 956 | FP ADMIN - FP ADMIN | $0.50 | $0.00 | $0.00 | $0.00 | $0.00 | $0.50 |
| 2025 | 956 | TOTAL: | $632.95 | $632.34 | $139.12 | $139.11 | $0.00 | $1543.52 |
|
| 2025 | 956 | $632.95 | $632.34 | $139.12 | $139.11 | $0.00 | $1543.52 |
Statement Details |
| 2024 | 958 | STATE - STATE LEVY (SCHOOL) | $157.18 | $157.17 | $0.00 | $0.00 | $314.35 | $0.00 |
| 2024 | 958 | COUNTY - COUNTY LEVIES (CE, DD, VET, MH) | $67.26 | $67.25 | $0.00 | $0.00 | $134.51 | $0.00 |
| 2024 | 958 | CONSERVE - CONSERVATION FUTURES | $2.02 | $2.01 | $0.00 | $0.00 | $4.03 | $0.00 |
| 2024 | 958 | COROADS - COUNTY ROADS (ROADS, DIV TO CE) | $54.12 | $54.12 | $0.00 | $0.00 | $108.24 | $0.00 |
| 2024 | 958 | PORTPT - PORT DISTRICT | $27.79 | $27.77 | $0.00 | $0.00 | $55.56 | $0.00 |
| 2024 | 958 | PUD1 - PUD #1 | $4.42 | $4.42 | $0.00 | $0.00 | $8.84 | $0.00 |
| 2024 | 958 | LIB1 - LIBRARY DIST #1 | $20.94 | $20.94 | $0.00 | $0.00 | $41.88 | $0.00 |
| 2024 | 958 | HD2 - HOSP DIST #2 | $3.93 | $3.92 | $0.00 | $0.00 | $7.85 | $0.00 |
| 2024 | 958 | SD50 - SCHOOL DIST #50 | $127.17 | $127.15 | $0.00 | $0.00 | $254.32 | $0.00 |
| 2024 | 958 | FD1 - FIRE DISTRICT #1 | $88.93 | $88.93 | $0.00 | $0.00 | $177.86 | $0.00 |
| 2024 | 958 | EMS1 - FIRE DIST #1 EMS | $33.97 | $33.97 | $0.00 | $0.00 | $67.94 | $0.00 |
| 2024 | 958 | FP - DNR Forest Fire Protection Assmt | $8.50 | $8.50 | $0.00 | $0.00 | $17.00 | $0.00 |
| 2024 | 958 | FPLCA - DNR Landowner Contingency Assmt | $3.00 | $3.00 | $0.00 | $0.00 | $6.00 | $0.00 |
| 2024 | 958 | JCCD - JC Conservation District | $2.73 | $2.73 | $0.00 | $0.00 | $5.46 | $0.00 |
| 2024 | 958 | NWA - Noxious Weed Assessment | $2.90 | $2.90 | $0.00 | $0.00 | $5.80 | $0.00 |
| 2024 | 958 | WAT - Clean Water District | $12.50 | $12.50 | $0.00 | $0.00 | $25.00 | $0.00 |
| 2024 | 958 | FP ADMIN - FP ADMIN | $0.50 | $0.00 | $0.00 | $0.00 | $0.50 | $0.00 |
| 2024 | 958 | TOTAL: | $617.86 | $617.28 | $0.00 | $0.00 | $1235.14 | $0.00 |
|
| 2024 | 958 | $617.86 | $617.28 | $0.00 | $0.00 | $1235.14 | $0.00 |
Statement Details |
| 2023 | 958 | STATE - STATE LEVY (SCHOOL) | $149.85 | $149.84 | $0.00 | $0.00 | $299.69 | $0.00 |
| 2023 | 958 | COUNTY - COUNTY LEVIES (CE, DD, VET, MH) | $65.39 | $65.38 | $0.00 | $0.00 | $130.77 | $0.00 |
| 2023 | 958 | CONSERVE - CONSERVATION FUTURES | $1.96 | $1.96 | $0.00 | $0.00 | $3.92 | $0.00 |
| 2023 | 958 | COROADS - COUNTY ROADS (ROADS, DIV TO CE) | $52.91 | $52.89 | $0.00 | $0.00 | $105.80 | $0.00 |
| 2023 | 958 | PORTPT - PORT DISTRICT | $27.55 | $27.54 | $0.00 | $0.00 | $55.09 | $0.00 |
| 2023 | 958 | PUD1 - PUD #1 | $4.34 | $4.33 | $0.00 | $0.00 | $8.67 | $0.00 |
| 2023 | 958 | LIB1 - LIBRARY DIST #1 | $20.47 | $20.46 | $0.00 | $0.00 | $40.93 | $0.00 |
| 2023 | 958 | HD2 - HOSP DIST #2 | $3.82 | $3.81 | $0.00 | $0.00 | $7.63 | $0.00 |
| 2023 | 958 | SD50 - SCHOOL DIST #50 | $118.91 | $118.90 | $0.00 | $0.00 | $237.81 | $0.00 |
| 2023 | 958 | FD1 - FIRE DISTRICT #1 | $53.87 | $53.86 | $0.00 | $0.00 | $107.73 | $0.00 |
| 2023 | 958 | EMS1 - FIRE DIST #1 EMS | $22.92 | $22.91 | $0.00 | $0.00 | $45.83 | $0.00 |
| 2023 | 958 | FP - DNR Forest Fire Protection Assmt | $8.50 | $8.50 | $0.00 | $0.00 | $17.00 | $0.00 |
| 2023 | 958 | FPLCA - DNR Landowner Contingency Assmt | $3.00 | $3.00 | $0.00 | $0.00 | $6.00 | $0.00 |
| 2023 | 958 | JCCD - JC Conservation District | $2.73 | $2.73 | $0.00 | $0.00 | $5.46 | $0.00 |
| 2023 | 958 | NWA - Noxious Weed Assessment | $2.90 | $2.90 | $0.00 | $0.00 | $5.80 | $0.00 |
| 2023 | 958 | WAT - Clean Water District | $12.00 | $12.00 | $0.00 | $0.00 | $24.00 | $0.00 |
| 2023 | 958 | FP ADMIN - FP ADMIN | $0.50 | $0.00 | $0.00 | $0.00 | $0.50 | $0.00 |
| 2023 | 958 | TOTAL: | $551.62 | $551.01 | $0.00 | $0.00 | $1102.63 | $0.00 |
|
| 2023 | 958 | $551.62 | $551.01 | $0.00 | $0.00 | $1102.63 | $0.00 |
Values
| (+) Improvement Homesite Value: | + | $0 | |
| (+) Improvement Non-Homesite Value: | + | $0 | |
| (+) Land Homesite Value: | + | $0 | |
| (+) Land Non-Homesite Value: | + | $143,495 | |
| (+) Curr Use (HS): | + | $0 | $0 |
| (+) Curr Use (NHS): | + | $0 | $0 |
| | | -------------------------- | |
| (=) Market Value: | = | $143,495 | |
| (–) Productivity Loss: | – | $0 | |
| | | -------------------------- | |
| (=) Subtotal: | = | $143,495 | |
| (+) Senior Appraised Value: | + | $0 | |
| (+) Non-Senior Appraised Value: | + | $143,495 | |
| | | -------------------------- | |
| (=) Total Appraised Value: | = | $143,495 | |
| (–) Senior Exemption Loss: | – | $0 | |
| (–) Exemption Loss: | – | $0 | |
| | | -------------------------- | |
| (=) Taxable Value: | = | $143,495 | |
Taxing Jurisdiction
| Owner: | ARI D RUBENSTEIN | | |
| % Ownership: | 100.0000000000% | | |
| Total Value: | N/A | | |
| Tax Area: | 0111 - 1-50F1E1H2L1 |
| CE | COUNTY CURRENT EXPENSE | N/A | N/A | N/A | N/A | | |
| CNTYDD | DEVELOPMENTAL DISABILITIES | N/A | N/A | N/A | N/A | | |
| CNTYVET | VETERANS RELIEF | N/A | N/A | N/A | N/A | | |
| MENTAL | MENTAL HEALTH | N/A | N/A | N/A | N/A | | |
| ROADS | COUNTY ROADS | N/A | N/A | N/A | N/A | | |
| HOSP2CASH | HOSP DIST #2 GENERAL | N/A | N/A | N/A | N/A | | |
| SCH50BOND | SCHOOL DIST #50 BOND 2016 | N/A | N/A | N/A | N/A | | |
| SCH50CP | SCHOOL DIST #50 CAP PROJ | N/A | N/A | N/A | N/A | | |
| SCH50MO | SCHOOL DIST #50 EP & O | N/A | N/A | N/A | N/A | | |
| CONSERVE | CONSERVATION FUTURES | N/A | N/A | N/A | N/A | | |
| EMS1 | FIRE DIST #1 EMS | N/A | N/A | N/A | N/A | | |
| FD1 | FIRE DIST #1 GENERAL | N/A | N/A | N/A | N/A | | |
| LIB1 | LIBRARY DIST #1 GENERAL | N/A | N/A | N/A | N/A | | |
| PORTPT | PORT OF PT GENERAL | N/A | N/A | N/A | N/A | | |
| PORTPTIDD | PORT OF PT IDD 2019 | N/A | N/A | N/A | N/A | | |
| PUD1 | PUD #1 GENERAL | N/A | N/A | N/A | N/A | | |
| STATE | STATE SCHOOL PART 1 | N/A | N/A | N/A | N/A | | |
| STATE2 | STATE SCHOOL PART 2 | N/A | N/A | N/A | N/A | | |
| | Total Tax Rate: | N/A | | | | | |
| | | | | Taxes w/Current Exemptions: | N/A | | |
| | | | | Taxes w/o Exemptions: | N/A | | |
Improvement / Building
Sketch
| No sketches available for this property. |
Property Image
Land
| 1 | 5360-1355S | | 1.0000 | 43560.00 | 0.00 | 0.00 | 1.00 | $110,000 | $0 |
| 2 | 1579A | | 4.2000 | 182952.00 | 0.00 | 0.00 | 0.00 | $33,495 | $0 |
Roll Value History
| 2026 | N/A | N/A | N/A | N/A | N/A |
| 2025 | $0 | $143,495 | $0 | $143,495 | $143,495 |
| 2024 | $0 | $143,495 | $0 | $143,495 | $143,495 |
| 2023 | $0 | $135,870 | $0 | $135,870 | $135,870 |
| 2022 | $0 | $127,300 | $0 | $127,300 | $127,300 |
Deed and Sales History
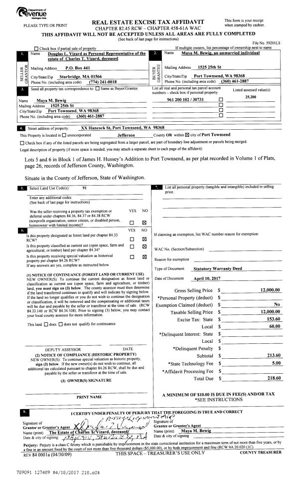
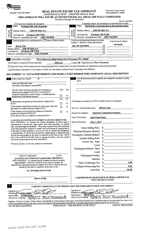
| 1 | 05/21/2019 | SWD | Statutory Warranty Deed | DAVID PELL | ARI D RUBENSTEIN | | | $110,000.00 | 132422 | |
| 2 | 05/01/2017 | QCD | Quit Claim Deed | | | | | | 127632 | |
| 3 | 05/08/2017 | SWD | Statutory Warranty Deed | CHRIS CLUM | DAVID PELL | | | $95,000.00 | 127631 | |
| 4 | 12/28/2004 | SWD | Statutory Warranty Deed | VANDEWEGHE, ROBERTUS/JACO | CLUM, CHRIS/KRISTINE | 0 | 0 | $65,000.00 | 102394 | 0 |
| 5 | 02/07/2002 | SWD | Statutory Warranty Deed | DISCOVERY RIDGE LLC | VANDEWEGHE, ROBERTUS/JACOBA | 0 | 0 | $118,000.00 | 93995 | 0 |
|   | |
Payout Agreement
| No payout information available.. |