Property
Account |
| Property ID: | 11158 | Abbreviated Legal Description: | MADRONE RIDGE SHORT PLAT LOT 3 SUBJ/OPEN SPACE, WITH & SUBJ/EASE |
| Parcel # / Geo ID: | 001273008 | Agent Code: | |
| Type: | Real | | |
| Tax Area: | 0111 - 1-50F1E1H2L1 | Land Use Code | 11 |
| Open Space: | N | DFL | N |
| Historic Property: | N | Remodel Property: | N |
| Multi-Family Redevelopment: | N | | |
| Township: | 30N | Section: | 27 |
| Range: | 1W |
Location |
| Address: | 702 WOODLAND DR PORT TOWNSEND, WA 98368 | Mapsco: | 133/010 |
| Neighborhood: | WOODLAND HILLS, WALTHEWS ACRE, MISC LONG PLATS, MEYER SUBDIV | Map ID: | |
| Neighborhood CD: | 5387 |
Owner |
| Name: | GARY G & ANN A KIRBY | Owner ID: | 112813 |
| Mailing Address: | 20 SEAVIEW CT #1 PORT TOWNSEND, WA 98368-9508 | % Ownership: | 100.0000000000% |
| | | Exemptions: | |
Pay Tax Due
Select the appropriate checkbox next to the year to be paid. Multiple years may be selected.
*Convenience Fee not included
Taxes and Assessment Details
Property Tax Information as of
03/11/2026
Click on "Statement Details" to expand or collapse a tax statement.
* Please enter a valid date ** Please enter a valid date *
Statement Details |
| 2026 | 1110 | STATE - STATE LEVY (SCHOOL) | $1028.35 | $1028.34 | $0.00 | $0.00 | $0.00 | $2056.69 |
| 2026 | 1110 | COUNTY - COUNTY LEVIES (CE, DD, VET, MH) | $411.13 | $411.12 | $0.00 | $0.00 | $0.00 | $822.25 |
| 2026 | 1110 | CONSERVE - CONSERVATION FUTURES | $12.33 | $12.33 | $0.00 | $0.00 | $0.00 | $24.66 |
| 2026 | 1110 | COROADS - COUNTY ROADS (ROADS, DIV TO CE) | $331.67 | $331.66 | $0.00 | $0.00 | $0.00 | $663.33 |
| 2026 | 1110 | PORTPT - PORT DISTRICT | $166.05 | $166.04 | $0.00 | $0.00 | $0.00 | $332.09 |
| 2026 | 1110 | PUD1 - PUD #1 | $26.75 | $26.74 | $0.00 | $0.00 | $0.00 | $53.49 |
| 2026 | 1110 | LIB1 - LIBRARY DIST #1 | $128.32 | $128.32 | $0.00 | $0.00 | $0.00 | $256.64 |
| 2026 | 1110 | HD2 - HOSP DIST #2 | $23.98 | $23.98 | $0.00 | $0.00 | $0.00 | $47.96 |
| 2026 | 1110 | SD50 - SCHOOL DIST #50 | $814.69 | $814.66 | $0.00 | $0.00 | $0.00 | $1629.35 |
| 2026 | 1110 | FD1 - FIRE DISTRICT #1 | $544.44 | $544.43 | $0.00 | $0.00 | $0.00 | $1088.87 |
| 2026 | 1110 | EMS1 - FIRE DIST #1 EMS | $209.33 | $209.32 | $0.00 | $0.00 | $0.00 | $418.65 |
| 2026 | 1110 | FP - DNR Forest Fire Protection Assmt | $8.50 | $8.50 | $0.00 | $0.00 | $0.00 | $17.00 |
| 2026 | 1110 | FPLCA - DNR Landowner Contingency Assmt | $3.00 | $3.00 | $0.00 | $0.00 | $0.00 | $6.00 |
| 2026 | 1110 | JCCD - JC Conservation District | $2.60 | $2.60 | $0.00 | $0.00 | $0.00 | $5.20 |
| 2026 | 1110 | NWA - Noxious Weed Assessment | $3.20 | $3.20 | $0.00 | $0.00 | $0.00 | $6.40 |
| 2026 | 1110 | OSS - On Site Septic | $23.10 | $23.10 | $0.00 | $0.00 | $0.00 | $46.20 |
| 2026 | 1110 | WAT - Clean Water District | $13.00 | $13.00 | $0.00 | $0.00 | $0.00 | $26.00 |
| 2026 | 1110 | FP ADMIN - FP ADMIN | $0.50 | $0.00 | $0.00 | $0.00 | $0.00 | $0.50 |
| 2026 | 1110 | TOTAL: | $3750.94 | $3750.34 | $0.00 | $0.00 | $0.00 | $7501.28 |
|
| 2026 | 1110 | $3750.94 | $3750.34 | $0.00 | $0.00 | $0.00 | $7501.28 |
Statement Details |
| 2025 | 1115 | STATE - STATE LEVY (SCHOOL) | $1036.21 | $1036.19 | $0.00 | $0.00 | $2072.40 | $0.00 |
| 2025 | 1115 | COUNTY - COUNTY LEVIES (CE, DD, VET, MH) | $407.49 | $407.46 | $0.00 | $0.00 | $814.95 | $0.00 |
| 2025 | 1115 | CONSERVE - CONSERVATION FUTURES | $12.22 | $12.22 | $0.00 | $0.00 | $24.44 | $0.00 |
| 2025 | 1115 | COROADS - COUNTY ROADS (ROADS, DIV TO CE) | $326.46 | $326.45 | $0.00 | $0.00 | $652.91 | $0.00 |
| 2025 | 1115 | PORTPT - PORT DISTRICT | $166.28 | $166.27 | $0.00 | $0.00 | $332.55 | $0.00 |
| 2025 | 1115 | PUD1 - PUD #1 | $26.67 | $26.66 | $0.00 | $0.00 | $53.33 | $0.00 |
| 2025 | 1115 | LIB1 - LIBRARY DIST #1 | $126.30 | $126.30 | $0.00 | $0.00 | $252.60 | $0.00 |
| 2025 | 1115 | HD2 - HOSP DIST #2 | $23.78 | $23.77 | $0.00 | $0.00 | $47.55 | $0.00 |
| 2025 | 1115 | SD50 - SCHOOL DIST #50 | $757.30 | $757.28 | $0.00 | $0.00 | $1514.58 | $0.00 |
| 2025 | 1115 | FD1 - FIRE DISTRICT #1 | $537.71 | $537.71 | $0.00 | $0.00 | $1075.42 | $0.00 |
| 2025 | 1115 | EMS1 - FIRE DIST #1 EMS | $206.82 | $206.82 | $0.00 | $0.00 | $413.64 | $0.00 |
| 2025 | 1115 | FP - DNR Forest Fire Protection Assmt | $8.50 | $8.50 | $0.00 | $0.00 | $17.00 | $0.00 |
| 2025 | 1115 | FPLCA - DNR Landowner Contingency Assmt | $3.00 | $3.00 | $0.00 | $0.00 | $6.00 | $0.00 |
| 2025 | 1115 | JCCD - JC Conservation District | $2.60 | $2.60 | $0.00 | $0.00 | $5.20 | $0.00 |
| 2025 | 1115 | NWA - Noxious Weed Assessment | $2.30 | $2.30 | $0.00 | $0.00 | $4.60 | $0.00 |
| 2025 | 1115 | OSS - On Site Septic | $21.50 | $21.50 | $0.00 | $0.00 | $43.00 | $0.00 |
| 2025 | 1115 | WAT - Clean Water District | $13.00 | $13.00 | $0.00 | $0.00 | $26.00 | $0.00 |
| 2025 | 1115 | FP ADMIN - FP ADMIN | $0.50 | $0.00 | $0.00 | $0.00 | $0.50 | $0.00 |
| 2025 | 1115 | TOTAL: | $3678.64 | $3678.03 | $0.00 | $0.00 | $7356.67 | $0.00 |
|
| 2025 | 1115 | $3678.64 | $3678.03 | $0.00 | $0.00 | $7356.67 | $0.00 |
Statement Details |
| 2024 | 1117 | STATE - STATE LEVY (SCHOOL) | $978.43 | $978.43 | $0.00 | $0.00 | $1956.86 | $0.00 |
| 2024 | 1117 | COUNTY - COUNTY LEVIES (CE, DD, VET, MH) | $418.70 | $418.67 | $0.00 | $0.00 | $837.37 | $0.00 |
| 2024 | 1117 | CONSERVE - CONSERVATION FUTURES | $12.56 | $12.55 | $0.00 | $0.00 | $25.11 | $0.00 |
| 2024 | 1117 | COROADS - COUNTY ROADS (ROADS, DIV TO CE) | $336.90 | $336.89 | $0.00 | $0.00 | $673.79 | $0.00 |
| 2024 | 1117 | PORTPT - PORT DISTRICT | $172.94 | $172.92 | $0.00 | $0.00 | $345.86 | $0.00 |
| 2024 | 1117 | PUD1 - PUD #1 | $27.50 | $27.50 | $0.00 | $0.00 | $55.00 | $0.00 |
| 2024 | 1117 | LIB1 - LIBRARY DIST #1 | $130.35 | $130.34 | $0.00 | $0.00 | $260.69 | $0.00 |
| 2024 | 1117 | HD2 - HOSP DIST #2 | $24.43 | $24.43 | $0.00 | $0.00 | $48.86 | $0.00 |
| 2024 | 1117 | SD50 - SCHOOL DIST #50 | $791.60 | $791.60 | $0.00 | $0.00 | $1583.20 | $0.00 |
| 2024 | 1117 | FD1 - FIRE DISTRICT #1 | $553.60 | $553.59 | $0.00 | $0.00 | $1107.19 | $0.00 |
| 2024 | 1117 | EMS1 - FIRE DIST #1 EMS | $211.45 | $211.45 | $0.00 | $0.00 | $422.90 | $0.00 |
| 2024 | 1117 | FP - DNR Forest Fire Protection Assmt | $8.50 | $8.50 | $0.00 | $0.00 | $17.00 | $0.00 |
| 2024 | 1117 | FPLCA - DNR Landowner Contingency Assmt | $3.00 | $3.00 | $0.00 | $0.00 | $6.00 | $0.00 |
| 2024 | 1117 | JCCD - JC Conservation District | $2.60 | $2.60 | $0.00 | $0.00 | $5.20 | $0.00 |
| 2024 | 1117 | NWA - Noxious Weed Assessment | $2.30 | $2.30 | $0.00 | $0.00 | $4.60 | $0.00 |
| 2024 | 1117 | OSS - On Site Septic | $21.00 | $21.00 | $0.00 | $0.00 | $42.00 | $0.00 |
| 2024 | 1117 | WAT - Clean Water District | $12.50 | $12.50 | $0.00 | $0.00 | $25.00 | $0.00 |
| 2024 | 1117 | FP ADMIN - FP ADMIN | $0.50 | $0.00 | $0.00 | $0.00 | $0.50 | $0.00 |
| 2024 | 1117 | TOTAL: | $3708.86 | $3708.27 | $0.00 | $0.00 | $7417.13 | $0.00 |
|
| 2024 | 1117 | $3708.86 | $3708.27 | $0.00 | $0.00 | $7417.13 | $0.00 |
Statement Details |
| 2023 | 1117 | STATE - STATE LEVY (SCHOOL) | $907.24 | $907.22 | $0.00 | $0.00 | $1814.46 | $0.00 |
| 2023 | 1117 | COUNTY - COUNTY LEVIES (CE, DD, VET, MH) | $395.90 | $395.86 | $0.00 | $0.00 | $791.76 | $0.00 |
| 2023 | 1117 | CONSERVE - CONSERVATION FUTURES | $11.87 | $11.87 | $0.00 | $0.00 | $23.74 | $0.00 |
| 2023 | 1117 | COROADS - COUNTY ROADS (ROADS, DIV TO CE) | $320.30 | $320.30 | $0.00 | $0.00 | $640.60 | $0.00 |
| 2023 | 1117 | PORTPT - PORT DISTRICT | $166.77 | $166.76 | $0.00 | $0.00 | $333.53 | $0.00 |
| 2023 | 1117 | PUD1 - PUD #1 | $26.24 | $26.24 | $0.00 | $0.00 | $52.48 | $0.00 |
| 2023 | 1117 | LIB1 - LIBRARY DIST #1 | $123.92 | $123.92 | $0.00 | $0.00 | $247.84 | $0.00 |
| 2023 | 1117 | HD2 - HOSP DIST #2 | $23.10 | $23.10 | $0.00 | $0.00 | $46.20 | $0.00 |
| 2023 | 1117 | SD50 - SCHOOL DIST #50 | $719.91 | $719.89 | $0.00 | $0.00 | $1439.80 | $0.00 |
| 2023 | 1117 | FD1 - FIRE DISTRICT #1 | $326.13 | $326.13 | $0.00 | $0.00 | $652.26 | $0.00 |
| 2023 | 1117 | EMS1 - FIRE DIST #1 EMS | $138.73 | $138.73 | $0.00 | $0.00 | $277.46 | $0.00 |
| 2023 | 1117 | FP - DNR Forest Fire Protection Assmt | $8.50 | $8.50 | $0.00 | $0.00 | $17.00 | $0.00 |
| 2023 | 1117 | FPLCA - DNR Landowner Contingency Assmt | $3.00 | $3.00 | $0.00 | $0.00 | $6.00 | $0.00 |
| 2023 | 1117 | JCCD - JC Conservation District | $2.60 | $2.60 | $0.00 | $0.00 | $5.20 | $0.00 |
| 2023 | 1117 | NWA - Noxious Weed Assessment | $2.30 | $2.30 | $0.00 | $0.00 | $4.60 | $0.00 |
| 2023 | 1117 | OSS - On Site Septic | $20.50 | $20.50 | $0.00 | $0.00 | $41.00 | $0.00 |
| 2023 | 1117 | WAT - Clean Water District | $12.00 | $12.00 | $0.00 | $0.00 | $24.00 | $0.00 |
| 2023 | 1117 | FP ADMIN - FP ADMIN | $0.50 | $0.00 | $0.00 | $0.00 | $0.50 | $0.00 |
| 2023 | 1117 | TOTAL: | $3209.51 | $3208.92 | $0.00 | $0.00 | $6418.43 | $0.00 |
|
| 2023 | 1117 | $3209.51 | $3208.92 | $0.00 | $0.00 | $6418.43 | $0.00 |
Values
| (+) Improvement Homesite Value: | + | $0 | |
| (+) Improvement Non-Homesite Value: | + | $698,319 | |
| (+) Land Homesite Value: | + | $0 | |
| (+) Land Non-Homesite Value: | + | $196,251 | |
| (+) Curr Use (HS): | + | $0 | $0 |
| (+) Curr Use (NHS): | + | $0 | $0 |
| | | -------------------------- | |
| (=) Market Value: | = | $894,570 | |
| (–) Productivity Loss: | – | $0 | |
| | | -------------------------- | |
| (=) Subtotal: | = | $894,570 | |
| (+) Senior Appraised Value: | + | $0 | |
| (+) Non-Senior Appraised Value: | + | $894,570 | |
| | | -------------------------- | |
| (=) Total Appraised Value: | = | $894,570 | |
| (–) Senior Exemption Loss: | – | $0 | |
| (–) Exemption Loss: | – | $0 | |
| | | -------------------------- | |
| (=) Taxable Value: | = | $894,570 | |
Taxing Jurisdiction
| Owner: | GARY G & ANN A KIRBY | | |
| % Ownership: | 100.0000000000% | | |
| Total Value: | $894,570 | | |
| Tax Area: | 0111 - 1-50F1E1H2L1 |
| CE | COUNTY CURRENT EXPENSE | 0.9034619479 | $894,570 | $894,570 | $808.21 | | |
| CNTYDD | DEVELOPMENTAL DISABILITIES | 0.0052121823 | $894,570 | $894,570 | $4.66 | | |
| CNTYVET | VETERANS RELIEF | 0.0052777810 | $894,570 | $894,570 | $4.72 | | |
| MENTAL | MENTAL HEALTH | 0.0052121823 | $894,570 | $894,570 | $4.66 | | |
| ROADS | COUNTY ROADS | 0.7415066410 | $894,570 | $894,570 | $663.33 | | |
| ROADSCU | COUNTY ROADS TO CUR EXP | 0.0000000000 | $894,570 | $894,570 | $0.00 | | |
| HOSP2CASH | HOSP DIST #2 GENERAL | 0.0536075306 | $894,570 | $894,570 | $47.96 | | |
| SCH50BOND | SCHOOL DIST #50 BOND 2016 | 0.5377451389 | $894,570 | $894,570 | $481.05 | | |
| SCH50CP | SCHOOL DIST #50 CAP PROJ | 0.4573475088 | $894,570 | $894,570 | $409.13 | | |
| SCH50MO | SCHOOL DIST #50 EP & O | 0.8262822886 | $894,570 | $894,570 | $739.17 | | |
| CONSERVE | CONSERVATION FUTURES | 0.0275621078 | $894,570 | $894,570 | $24.66 | | |
| EMS1 | FIRE DIST #1 EMS | 0.4679948282 | $894,570 | $894,570 | $418.65 | | |
| FD1 | FIRE DIST #1 GENERAL | 1.2171942929 | $894,570 | $894,570 | $1,088.87 | | |
| LIB1 | LIBRARY DIST #1 GENERAL | 0.2868827388 | $894,570 | $894,570 | $256.64 | | |
| PORTPT | PORT OF PT GENERAL | 0.1134941229 | $894,570 | $894,570 | $101.53 | | |
| PORTPTIDD | PORT OF PT IDD 2019 | 0.2577346692 | $894,570 | $894,570 | $230.56 | | |
| PUD1 | PUD #1 GENERAL | 0.0597888892 | $894,570 | $894,570 | $53.49 | | |
| STATE | STATE SCHOOL PART 1 | 1.4940692947 | $894,570 | $894,570 | $1,336.55 | | |
| STATE2 | STATE SCHOOL PART 2 | 0.8050170049 | $894,570 | $894,570 | $720.14 | | |
| | Total Tax Rate: | 8.2653911500 | | | | | |
| | | | | Taxes w/Current Exemptions: | $7,393.98 | | |
| | | | | Taxes w/o Exemptions: | $7,393.98 | | |
Improvement / Building
| Improvement #1: | Residential Bldg | State Code: | 11 | 2456.0 sqft | Value: | $698,319 |
| Bathrooms (#): | 2 (FULL) | Bathrooms (#): | 1 (HALF) | | Bedrooms (#): | 3 | Exterior Wall: | SI/ST | | Fireplace: | SIN 1-GOOD | Floor Construction: | FRAME | | Foundation: | CONPR | Heating/Cooling: | HPUMP | | Roof Cover: | COMP |   |   |
|
| | Type | Description | Class CD | Sub Class CD | Year Built | Area |
| | MA | Main Area | 5 | 2S | 1996 | 1252.0 |
| | MA2 | Second Floor Main Area | 5 | 2S | 1996 | 1204.0 |
| | PATIO | House Patio | 5 | 2S | 1996 | 288.0 |
| | HWPOR | House Wood Porch | 5 | 2S | 1996 | 112.0 |
| | HDECK | House Deck | 5 | 2S | 1996 | 124.0 |
| | GATT | House Attached Garage | 5 | 2S | 1996 | 440.0 |
| | GDET | Detached Garage | 3 | 2S | 1996 | 320.0 |
Sketch
| No sketches available for this property. |
Property Image
Land
| 1 | 5387-1371S | | 1.0000 | 43560.00 | 0.00 | 0.00 | 1.00 | $179,300 | $0 |
| 2 | 1571A | | 0.6700 | 29185.20 | 0.00 | 0.00 | 0.00 | $16,951 | $0 |
Roll Value History
| 2026 | N/A | N/A | N/A | N/A | N/A |
| 2025 | $698,319 | $196,251 | $0 | $894,570 | $894,570 |
| 2024 | $667,957 | $196,251 | $0 | $864,208 | $864,208 |
| 2023 | $657,081 | $188,727 | $0 | $845,808 | $845,808 |
| 2022 | $597,346 | $173,400 | $0 | $770,746 | $770,746 |
Deed and Sales History
| 1 | 06/11/2025 | SWD | Statutory Warranty Deed | ERON & SHASTA BERG | GARY G & ANN A KIRBY | | | $1,000,000.00 | 144459 | |
| 2 | 01/28/2022 | SWD | Statutory Warranty Deed | PUTNEY RODGERS TRUST | ERON & SHASTA BERG | | | $850,000.00 | 138478 | |
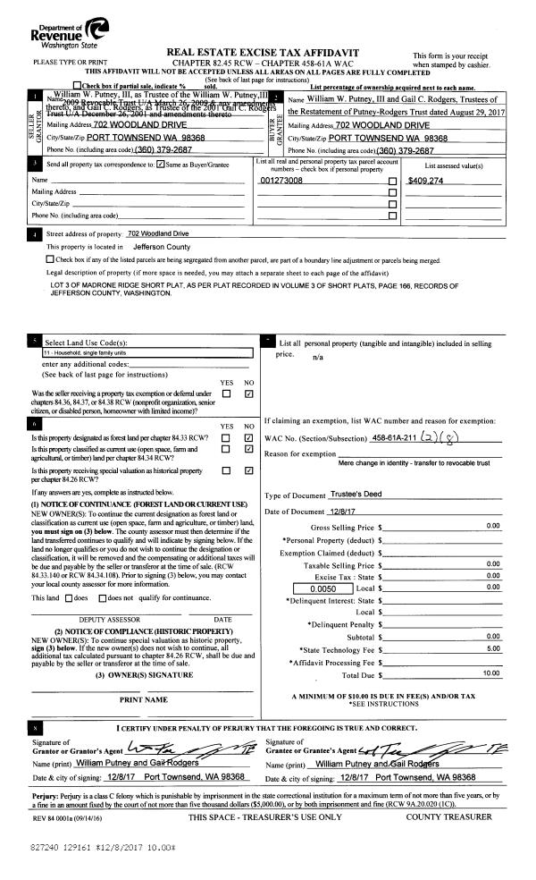
| 3 | 12/08/2017 | TRED | Trustee Deed | WILLIAM PUTNEY 09 REV TRUST | PUTNEY RODGERS TRUST | | | | 129161 | |
| 4 | 01/05/2015 | SWD | Statutory Warranty Deed | | | | | | 122501 | |
| 5 | 03/31/2009 | SWD | Statutory Warranty Deed | PUTNEY, WILLIAM/RODGERS, | RODGERS, GAIL TRUSTEE/PUTNEY, | | | $0.00 | 112701 | 0 |
| 6 | 12/03/2007 | MISC | MISC | NATIONAL RESIDENTIAL NOMI | PUTNEY III, WILLIAM/GAIL | 0 | 0 | $530,000.00 | 110540 | 0 |
| 7 | 12/02/2006 | SWD | Statutory Warranty Deed | WEIDERT, JAMES J/MONICA D | NATIONAL RESIDENTIAL NOMINEE S | 0 | 0 | $530,000.00 | 110539 | 0 |
| 8 | 05/18/2005 | SWD | Statutory Warranty Deed | WALLIN, JEANNE RANDALL | WEIDERT, JAMES/MONICA D | | | $415,000.00 | 103591 | 0 |
| 9 | 01/26/2004 | REC | Real Estate Contract | WALLIN, CRAIG | WALLIN, JEANNE R | 0 | 0 | $0.00 | 99345 | 0 |
Payout Agreement
| No payout information available.. |