Property
Account |
| Property ID: | 11165 | Abbreviated Legal Description: | WOODLAND HILLS NO 1 LOT 9 V10/P198-201 |
| Parcel # / Geo ID: | 001275008 | Agent Code: | |
| Type: | Real | | |
| Tax Area: | 0111 - 1-50F1E1H2L1 | Land Use Code | 11 |
| Open Space: | N | DFL | N |
| Historic Property: | N | Remodel Property: | N |
| Multi-Family Redevelopment: | N | | |
| Township: | 30N | Section: | 27 |
| Range: | 1W |
Location |
| Address: | 284 WOODLAND DR PORT TOWNSEND, WA 98368 | Mapsco: | 146/035 |
| Neighborhood: | WOODLAND HILLS, WALTHEWS ACRE, MISC LONG PLATS, MEYER SUBDIV | Map ID: | |
| Neighborhood CD: | 5387 |
Owner |
| Name: | MAGUIRE DONOVAN TRUST | Owner ID: | 103965 |
| Mailing Address: | COLLEEN M DONOVAN BATSON TRUSTEE DANIEL J MAGUIRE TRUSTEE 284 WOODLAND DR PORT TOWNSEND, WA 98368-9559 | % Ownership: | 100.0000000000% |
| | | Exemptions: | |
Pay Tax Due
Select the appropriate checkbox next to the year to be paid. Multiple years may be selected.
*Convenience Fee not included
Taxes and Assessment Details
Property Tax Information as of
03/10/2026
Click on "Statement Details" to expand or collapse a tax statement.
* Please enter a valid date ** Please enter a valid date *
Statement Details |
| 2026 | 1117 | STATE - STATE LEVY (SCHOOL) | $845.08 | $845.08 | $0.00 | $0.00 | $0.00 | $1690.16 |
| 2026 | 1117 | COUNTY - COUNTY LEVIES (CE, DD, VET, MH) | $337.87 | $337.84 | $0.00 | $0.00 | $0.00 | $675.71 |
| 2026 | 1117 | CONSERVE - CONSERVATION FUTURES | $10.13 | $10.13 | $0.00 | $0.00 | $0.00 | $20.26 |
| 2026 | 1117 | COROADS - COUNTY ROADS (ROADS, DIV TO CE) | $272.56 | $272.55 | $0.00 | $0.00 | $0.00 | $545.11 |
| 2026 | 1117 | PORTPT - PORT DISTRICT | $136.46 | $136.44 | $0.00 | $0.00 | $0.00 | $272.90 |
| 2026 | 1117 | PUD1 - PUD #1 | $21.98 | $21.97 | $0.00 | $0.00 | $0.00 | $43.95 |
| 2026 | 1117 | LIB1 - LIBRARY DIST #1 | $105.45 | $105.45 | $0.00 | $0.00 | $0.00 | $210.90 |
| 2026 | 1117 | HD2 - HOSP DIST #2 | $19.71 | $19.70 | $0.00 | $0.00 | $0.00 | $39.41 |
| 2026 | 1117 | SD50 - SCHOOL DIST #50 | $669.49 | $669.49 | $0.00 | $0.00 | $0.00 | $1338.98 |
| 2026 | 1117 | FD1 - FIRE DISTRICT #1 | $447.41 | $447.40 | $0.00 | $0.00 | $0.00 | $894.81 |
| 2026 | 1117 | EMS1 - FIRE DIST #1 EMS | $172.02 | $172.02 | $0.00 | $0.00 | $0.00 | $344.04 |
| 2026 | 1117 | FP - DNR Forest Fire Protection Assmt | $8.50 | $8.50 | $0.00 | $0.00 | $0.00 | $17.00 |
| 2026 | 1117 | FPLCA - DNR Landowner Contingency Assmt | $3.00 | $3.00 | $0.00 | $0.00 | $0.00 | $6.00 |
| 2026 | 1117 | JCCD - JC Conservation District | $2.70 | $2.70 | $0.00 | $0.00 | $0.00 | $5.40 |
| 2026 | 1117 | NWA - Noxious Weed Assessment | $3.65 | $3.65 | $0.00 | $0.00 | $0.00 | $7.30 |
| 2026 | 1117 | OSS - On Site Septic | $23.10 | $23.10 | $0.00 | $0.00 | $0.00 | $46.20 |
| 2026 | 1117 | WAT - Clean Water District | $13.00 | $13.00 | $0.00 | $0.00 | $0.00 | $26.00 |
| 2026 | 1117 | FP ADMIN - FP ADMIN | $0.50 | $0.00 | $0.00 | $0.00 | $0.00 | $0.50 |
| 2026 | 1117 | TOTAL: | $3092.61 | $3092.02 | $0.00 | $0.00 | $0.00 | $6184.63 |
|
| 2026 | 1117 | $3092.61 | $3092.02 | $0.00 | $0.00 | $0.00 | $6184.63 |
Statement Details |
| 2025 | 1122 | STATE - STATE LEVY (SCHOOL) | $854.92 | $854.91 | $0.00 | $0.00 | $1709.83 | $0.00 |
| 2025 | 1122 | COUNTY - COUNTY LEVIES (CE, DD, VET, MH) | $336.19 | $336.18 | $0.00 | $0.00 | $672.37 | $0.00 |
| 2025 | 1122 | CONSERVE - CONSERVATION FUTURES | $10.08 | $10.08 | $0.00 | $0.00 | $20.16 | $0.00 |
| 2025 | 1122 | COROADS - COUNTY ROADS (ROADS, DIV TO CE) | $269.34 | $269.34 | $0.00 | $0.00 | $538.68 | $0.00 |
| 2025 | 1122 | PORTPT - PORT DISTRICT | $137.19 | $137.18 | $0.00 | $0.00 | $274.37 | $0.00 |
| 2025 | 1122 | PUD1 - PUD #1 | $22.00 | $22.00 | $0.00 | $0.00 | $44.00 | $0.00 |
| 2025 | 1122 | LIB1 - LIBRARY DIST #1 | $104.21 | $104.20 | $0.00 | $0.00 | $208.41 | $0.00 |
| 2025 | 1122 | HD2 - HOSP DIST #2 | $19.62 | $19.61 | $0.00 | $0.00 | $39.23 | $0.00 |
| 2025 | 1122 | SD50 - SCHOOL DIST #50 | $624.81 | $624.80 | $0.00 | $0.00 | $1249.61 | $0.00 |
| 2025 | 1122 | FD1 - FIRE DISTRICT #1 | $443.64 | $443.64 | $0.00 | $0.00 | $887.28 | $0.00 |
| 2025 | 1122 | EMS1 - FIRE DIST #1 EMS | $170.64 | $170.63 | $0.00 | $0.00 | $341.27 | $0.00 |
| 2025 | 1122 | FP - DNR Forest Fire Protection Assmt | $8.50 | $8.50 | $0.00 | $0.00 | $17.00 | $0.00 |
| 2025 | 1122 | FPLCA - DNR Landowner Contingency Assmt | $3.00 | $3.00 | $0.00 | $0.00 | $6.00 | $0.00 |
| 2025 | 1122 | JCCD - JC Conservation District | $2.70 | $2.70 | $0.00 | $0.00 | $5.40 | $0.00 |
| 2025 | 1122 | NWA - Noxious Weed Assessment | $2.60 | $2.60 | $0.00 | $0.00 | $5.20 | $0.00 |
| 2025 | 1122 | OSS - On Site Septic | $21.50 | $21.50 | $0.00 | $0.00 | $43.00 | $0.00 |
| 2025 | 1122 | WAT - Clean Water District | $13.00 | $13.00 | $0.00 | $0.00 | $26.00 | $0.00 |
| 2025 | 1122 | FP ADMIN - FP ADMIN | $0.50 | $0.00 | $0.00 | $0.00 | $0.50 | $0.00 |
| 2025 | 1122 | TOTAL: | $3044.44 | $3043.87 | $0.00 | $0.00 | $6088.31 | $0.00 |
|
| 2025 | 1122 | $3044.44 | $3043.87 | $0.00 | $0.00 | $6088.31 | $0.00 |
Statement Details |
| 2024 | 1124 | STATE - STATE LEVY (SCHOOL) | $765.43 | $765.42 | $0.00 | $0.00 | $1530.85 | $0.00 |
| 2024 | 1124 | COUNTY - COUNTY LEVIES (CE, DD, VET, MH) | $327.54 | $327.53 | $0.00 | $0.00 | $655.07 | $0.00 |
| 2024 | 1124 | CONSERVE - CONSERVATION FUTURES | $9.82 | $9.82 | $0.00 | $0.00 | $19.64 | $0.00 |
| 2024 | 1124 | COROADS - COUNTY ROADS (ROADS, DIV TO CE) | $263.56 | $263.55 | $0.00 | $0.00 | $527.11 | $0.00 |
| 2024 | 1124 | PORTPT - PORT DISTRICT | $135.28 | $135.28 | $0.00 | $0.00 | $270.56 | $0.00 |
| 2024 | 1124 | PUD1 - PUD #1 | $21.52 | $21.51 | $0.00 | $0.00 | $43.03 | $0.00 |
| 2024 | 1124 | LIB1 - LIBRARY DIST #1 | $101.97 | $101.96 | $0.00 | $0.00 | $203.93 | $0.00 |
| 2024 | 1124 | HD2 - HOSP DIST #2 | $19.11 | $19.11 | $0.00 | $0.00 | $38.22 | $0.00 |
| 2024 | 1124 | SD50 - SCHOOL DIST #50 | $619.27 | $619.26 | $0.00 | $0.00 | $1238.53 | $0.00 |
| 2024 | 1124 | FD1 - FIRE DISTRICT #1 | $433.08 | $433.07 | $0.00 | $0.00 | $866.15 | $0.00 |
| 2024 | 1124 | EMS1 - FIRE DIST #1 EMS | $165.42 | $165.42 | $0.00 | $0.00 | $330.84 | $0.00 |
| 2024 | 1124 | FP - DNR Forest Fire Protection Assmt | $8.50 | $8.50 | $0.00 | $0.00 | $17.00 | $0.00 |
| 2024 | 1124 | FPLCA - DNR Landowner Contingency Assmt | $3.00 | $3.00 | $0.00 | $0.00 | $6.00 | $0.00 |
| 2024 | 1124 | JCCD - JC Conservation District | $2.70 | $2.70 | $0.00 | $0.00 | $5.40 | $0.00 |
| 2024 | 1124 | NWA - Noxious Weed Assessment | $2.60 | $2.60 | $0.00 | $0.00 | $5.20 | $0.00 |
| 2024 | 1124 | OSS - On Site Septic | $21.00 | $21.00 | $0.00 | $0.00 | $42.00 | $0.00 |
| 2024 | 1124 | WAT - Clean Water District | $12.50 | $12.50 | $0.00 | $0.00 | $25.00 | $0.00 |
| 2024 | 1124 | FP ADMIN - FP ADMIN | $0.50 | $0.00 | $0.00 | $0.00 | $0.50 | $0.00 |
| 2024 | 1124 | TOTAL: | $2912.80 | $2912.23 | $0.00 | $0.00 | $5825.03 | $0.00 |
|
| 2024 | 1124 | $2912.80 | $2912.23 | $0.00 | $0.00 | $5825.03 | $0.00 |
Statement Details |
| 2023 | 1124 | STATE - STATE LEVY (SCHOOL) | $707.84 | $707.84 | $0.00 | $0.00 | $1415.68 | $0.00 |
| 2023 | 1124 | COUNTY - COUNTY LEVIES (CE, DD, VET, MH) | $308.90 | $308.86 | $0.00 | $0.00 | $617.76 | $0.00 |
| 2023 | 1124 | CONSERVE - CONSERVATION FUTURES | $9.26 | $9.26 | $0.00 | $0.00 | $18.52 | $0.00 |
| 2023 | 1124 | COROADS - COUNTY ROADS (ROADS, DIV TO CE) | $249.91 | $249.90 | $0.00 | $0.00 | $499.81 | $0.00 |
| 2023 | 1124 | PORTPT - PORT DISTRICT | $130.12 | $130.12 | $0.00 | $0.00 | $260.24 | $0.00 |
| 2023 | 1124 | PUD1 - PUD #1 | $20.48 | $20.47 | $0.00 | $0.00 | $40.95 | $0.00 |
| 2023 | 1124 | LIB1 - LIBRARY DIST #1 | $96.69 | $96.68 | $0.00 | $0.00 | $193.37 | $0.00 |
| 2023 | 1124 | HD2 - HOSP DIST #2 | $18.03 | $18.02 | $0.00 | $0.00 | $36.05 | $0.00 |
| 2023 | 1124 | SD50 - SCHOOL DIST #50 | $561.69 | $561.68 | $0.00 | $0.00 | $1123.37 | $0.00 |
| 2023 | 1124 | FD1 - FIRE DISTRICT #1 | $254.46 | $254.45 | $0.00 | $0.00 | $508.91 | $0.00 |
| 2023 | 1124 | EMS1 - FIRE DIST #1 EMS | $108.24 | $108.24 | $0.00 | $0.00 | $216.48 | $0.00 |
| 2023 | 1124 | FP - DNR Forest Fire Protection Assmt | $8.50 | $8.50 | $0.00 | $0.00 | $17.00 | $0.00 |
| 2023 | 1124 | FPLCA - DNR Landowner Contingency Assmt | $3.00 | $3.00 | $0.00 | $0.00 | $6.00 | $0.00 |
| 2023 | 1124 | JCCD - JC Conservation District | $2.70 | $2.70 | $0.00 | $0.00 | $5.40 | $0.00 |
| 2023 | 1124 | NWA - Noxious Weed Assessment | $2.60 | $2.60 | $0.00 | $0.00 | $5.20 | $0.00 |
| 2023 | 1124 | OSS - On Site Septic | $20.50 | $20.50 | $0.00 | $0.00 | $41.00 | $0.00 |
| 2023 | 1124 | WAT - Clean Water District | $12.00 | $12.00 | $0.00 | $0.00 | $24.00 | $0.00 |
| 2023 | 1124 | FP ADMIN - FP ADMIN | $0.50 | $0.00 | $0.00 | $0.00 | $0.50 | $0.00 |
| 2023 | 1124 | TOTAL: | $2515.42 | $2514.82 | $0.00 | $0.00 | $5030.24 | $0.00 |
|
| 2023 | 1124 | $2515.42 | $2514.82 | $0.00 | $0.00 | $5030.24 | $0.00 |
Values
| (+) Improvement Homesite Value: | + | $0 | |
| (+) Improvement Non-Homesite Value: | + | $508,874 | |
| (+) Land Homesite Value: | + | $0 | |
| (+) Land Non-Homesite Value: | + | $226,270 | |
| (+) Curr Use (HS): | + | $0 | $0 |
| (+) Curr Use (NHS): | + | $0 | $0 |
| | | -------------------------- | |
| (=) Market Value: | = | $735,144 | |
| (–) Productivity Loss: | – | $0 | |
| | | -------------------------- | |
| (=) Subtotal: | = | $735,144 | |
| (+) Senior Appraised Value: | + | $0 | |
| (+) Non-Senior Appraised Value: | + | $735,144 | |
| | | -------------------------- | |
| (=) Total Appraised Value: | = | $735,144 | |
| (–) Senior Exemption Loss: | – | $0 | |
| (–) Exemption Loss: | – | $0 | |
| | | -------------------------- | |
| (=) Taxable Value: | = | $735,144 | |
Taxing Jurisdiction
| Owner: | MAGUIRE DONOVAN TRUST | | |
| % Ownership: | 100.0000000000% | | |
| Total Value: | $735,144 | | |
| Tax Area: | 0111 - 1-50F1E1H2L1 |
| CE | COUNTY CURRENT EXPENSE | 0.9034619479 | $735,144 | $735,144 | $664.17 | | |
| CNTYDD | DEVELOPMENTAL DISABILITIES | 0.0052121823 | $735,144 | $735,144 | $3.83 | | |
| CNTYVET | VETERANS RELIEF | 0.0052777810 | $735,144 | $735,144 | $3.88 | | |
| MENTAL | MENTAL HEALTH | 0.0052121823 | $735,144 | $735,144 | $3.83 | | |
| ROADS | COUNTY ROADS | 0.7415066410 | $735,144 | $735,144 | $545.11 | | |
| ROADSCU | COUNTY ROADS TO CUR EXP | 0.0000000000 | $735,144 | $735,144 | $0.00 | | |
| HOSP2CASH | HOSP DIST #2 GENERAL | 0.0536075306 | $735,144 | $735,144 | $39.41 | | |
| SCH50BOND | SCHOOL DIST #50 BOND 2016 | 0.5377451389 | $735,144 | $735,144 | $395.32 | | |
| SCH50CP | SCHOOL DIST #50 CAP PROJ | 0.4573475088 | $735,144 | $735,144 | $336.22 | | |
| SCH50MO | SCHOOL DIST #50 EP & O | 0.8262822886 | $735,144 | $735,144 | $607.44 | | |
| CONSERVE | CONSERVATION FUTURES | 0.0275621078 | $735,144 | $735,144 | $20.26 | | |
| EMS1 | FIRE DIST #1 EMS | 0.4679948282 | $735,144 | $735,144 | $344.04 | | |
| FD1 | FIRE DIST #1 GENERAL | 1.2171942929 | $735,144 | $735,144 | $894.81 | | |
| LIB1 | LIBRARY DIST #1 GENERAL | 0.2868827388 | $735,144 | $735,144 | $210.90 | | |
| PORTPT | PORT OF PT GENERAL | 0.1134941229 | $735,144 | $735,144 | $83.43 | | |
| PORTPTIDD | PORT OF PT IDD 2019 | 0.2577346692 | $735,144 | $735,144 | $189.47 | | |
| PUD1 | PUD #1 GENERAL | 0.0597888892 | $735,144 | $735,144 | $43.95 | | |
| STATE | STATE SCHOOL PART 1 | 1.4940692947 | $735,144 | $735,144 | $1,098.36 | | |
| STATE2 | STATE SCHOOL PART 2 | 0.8050170049 | $735,144 | $735,144 | $591.80 | | |
| | Total Tax Rate: | 8.2653911500 | | | | | |
| | | | | Taxes w/Current Exemptions: | $6,076.23 | | |
| | | | | Taxes w/o Exemptions: | $6,076.23 | | |
Improvement / Building
| Improvement #1: | Residential Bldg | State Code: | 11 | 1786.0 sqft | Value: | $508,874 |
| Bathrooms (#): | 2 (FULL) | Bedrooms (#): | 2 | | Exterior Wall: | SI/ST | Fireplace: | WD ST-AVG | | Floor Construction: | FRAME | Foundation: | CONPR | | Heating/Cooling: | HTWTR | Inside Verify: | YES-FIX | | Roof Cover: | METAL |   |   |
|
| | Type | Description | Class CD | Sub Class CD | Year Built | Area |
| | MA | Main Area | 4- | 1S | 1993 | 1786.0 |
| | PATIO | House Patio | 4 | 1S | 1993 | 204.0 |
| | HWPOR | House Wood Porch | 4 | 1S | 1993 | 121.0 |
| | SHED | Shed (Table Not Dep) | 3 | 1S | 1993 | 0.0 |
| | BSMTF | House basement finished | 4 | 1S | 1993 | 1250.2 |
| | BSMTU | House basement unfinished | 4 | 1S | 1993 | 535.8 |
Sketch
| No sketches available for this property. |
Property Image
Land
| 1 | 5387-1371S | | 1.0000 | 43560.00 | 0.00 | 0.00 | 1.00 | $187,000 | $0 |
| 2 | 1574A | | 2.8000 | 121968.00 | 0.00 | 0.00 | 0.00 | $39,270 | $0 |
Roll Value History
| 2026 | N/A | N/A | N/A | N/A | N/A |
| 2025 | $508,874 | $226,270 | $0 | $735,144 | $735,144 |
| 2024 | $486,749 | $226,270 | $0 | $713,019 | $713,019 |
| 2023 | $453,145 | $208,530 | $0 | $661,675 | $661,675 |
| 2022 | $411,950 | $189,400 | $0 | $601,350 | $601,350 |
Deed and Sales History
| 1 | 02/11/2021 | QCD | Quit Claim Deed | COLLEEN DONOVAN BATSON & DANIEL MAGUIRE JTWROS | MAGUIRE DONOVAN TRUST | | | | 136424 | |
| 2 | 02/11/2021 | QCD | Quit Claim Deed | MAGUIRE DONOVAN TRUST | COLLEEN DONOVAN BATSON & DANIEL MAGUIRE JTWROS | | | | 136423 | |
| 3 | 01/04/2021 | QCD | Quit Claim Deed | COLLEEN DONOVAN BATSON & DANIEL MAGUIRE JTWROS | MAGUIRE DONOVAN TRUST | | | | 135883 | |
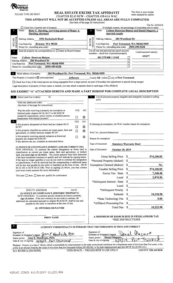
| 4 | 10/30/2019 | SWD | Statutory Warranty Deed | BETTY C HARDING | COLLEEN DONOVAN BATSON & DANIEL MAGUIRE JTWROS | | | $574,100.00 | 133431 | |
| 5 | 10/30/2019 | LOP | Lack of Probate | ROGER A HARDING | BETTY C HARDING | | | | 133432 | |
| 6 | 06/07/2019 | QCD | Quit Claim Deed | HARDING FAMILY TRUST | ROGER A HARDING | | | | 132655 | |
| 7 | 03/13/2013 | QCD | Quit Claim Deed | | | | | | 118918 | |
Payout Agreement
| No payout information available.. |