Property
Account |
| Property ID: | 11178 | Abbreviated Legal Description: | WOODLAND HILLS NO 1 LOT 34 |
| Parcel # / Geo ID: | 001275026 | Agent Code: | |
| Type: | Real | | |
| Tax Area: | 0111 - 1-50F1E1H2L1 | Land Use Code | 11 |
| Open Space: | N | DFL | N |
| Historic Property: | N | Remodel Property: | N |
| Multi-Family Redevelopment: | N | | |
| Township: | 30N | Section: | 27 |
| Range: | 1W |
Location |
| Address: | 132 MARILYN CT PORT TOWNSEND, WA 98368 | Mapsco: | 146/051 |
| Neighborhood: | WOODLAND HILLS, WALTHEWS ACRE, MISC LONG PLATS, MEYER SUBDIV | Map ID: | |
| Neighborhood CD: | 5387 |
Owner |
| Name: | DAVID K & MARCELLE E NAKAGAWARA | Owner ID: | 102996 |
| Mailing Address: | 132 MARILYN CT PORT TOWNSEND, WA 98368-9539 | % Ownership: | 100.0000000000% |
| | | Exemptions: | |
Pay Tax Due
Select the appropriate checkbox next to the year to be paid. Multiple years may be selected.
*Convenience Fee not included
Taxes and Assessment Details
Property Tax Information as of
03/11/2026
Click on "Statement Details" to expand or collapse a tax statement.
* Please enter a valid date ** Please enter a valid date *
Statement Details |
| 2026 | 1130 | STATE - STATE LEVY (SCHOOL) | $893.73 | $893.71 | $0.00 | $0.00 | $0.00 | $1787.44 |
| 2026 | 1130 | COUNTY - COUNTY LEVIES (CE, DD, VET, MH) | $357.31 | $357.29 | $0.00 | $0.00 | $0.00 | $714.60 |
| 2026 | 1130 | CONSERVE - CONSERVATION FUTURES | $10.72 | $10.71 | $0.00 | $0.00 | $0.00 | $21.43 |
| 2026 | 1130 | COROADS - COUNTY ROADS (ROADS, DIV TO CE) | $288.25 | $288.24 | $0.00 | $0.00 | $0.00 | $576.49 |
| 2026 | 1130 | PORTPT - PORT DISTRICT | $144.31 | $144.31 | $0.00 | $0.00 | $0.00 | $288.62 |
| 2026 | 1130 | PUD1 - PUD #1 | $23.24 | $23.24 | $0.00 | $0.00 | $0.00 | $46.48 |
| 2026 | 1130 | LIB1 - LIBRARY DIST #1 | $111.52 | $111.52 | $0.00 | $0.00 | $0.00 | $223.04 |
| 2026 | 1130 | HD2 - HOSP DIST #2 | $20.84 | $20.84 | $0.00 | $0.00 | $0.00 | $41.68 |
| 2026 | 1130 | SD50 - SCHOOL DIST #50 | $708.03 | $708.01 | $0.00 | $0.00 | $0.00 | $1416.04 |
| 2026 | 1130 | FD1 - FIRE DISTRICT #1 | $473.16 | $473.16 | $0.00 | $0.00 | $0.00 | $946.32 |
| 2026 | 1130 | EMS1 - FIRE DIST #1 EMS | $181.93 | $181.92 | $0.00 | $0.00 | $0.00 | $363.85 |
| 2026 | 1130 | FP - DNR Forest Fire Protection Assmt | $8.50 | $8.50 | $0.00 | $0.00 | $0.00 | $17.00 |
| 2026 | 1130 | FPLCA - DNR Landowner Contingency Assmt | $3.00 | $3.00 | $0.00 | $0.00 | $0.00 | $6.00 |
| 2026 | 1130 | JCCD - JC Conservation District | $2.75 | $2.75 | $0.00 | $0.00 | $0.00 | $5.50 |
| 2026 | 1130 | NWA - Noxious Weed Assessment | $3.88 | $3.87 | $0.00 | $0.00 | $0.00 | $7.75 |
| 2026 | 1130 | OSS - On Site Septic | $23.10 | $23.10 | $0.00 | $0.00 | $0.00 | $46.20 |
| 2026 | 1130 | WAT - Clean Water District | $13.00 | $13.00 | $0.00 | $0.00 | $0.00 | $26.00 |
| 2026 | 1130 | FP ADMIN - FP ADMIN | $0.50 | $0.00 | $0.00 | $0.00 | $0.00 | $0.50 |
| 2026 | 1130 | TOTAL: | $3267.77 | $3267.17 | $0.00 | $0.00 | $0.00 | $6534.94 |
|
| 2026 | 1130 | $3267.77 | $3267.17 | $0.00 | $0.00 | $0.00 | $6534.94 |
Statement Details |
| 2025 | 1135 | STATE - STATE LEVY (SCHOOL) | $908.12 | $908.10 | $0.00 | $0.00 | $1816.22 | $0.00 |
| 2025 | 1135 | COUNTY - COUNTY LEVIES (CE, DD, VET, MH) | $357.11 | $357.10 | $0.00 | $0.00 | $714.21 | $0.00 |
| 2025 | 1135 | CONSERVE - CONSERVATION FUTURES | $10.71 | $10.71 | $0.00 | $0.00 | $21.42 | $0.00 |
| 2025 | 1135 | COROADS - COUNTY ROADS (ROADS, DIV TO CE) | $286.10 | $286.10 | $0.00 | $0.00 | $572.20 | $0.00 |
| 2025 | 1135 | PORTPT - PORT DISTRICT | $145.73 | $145.71 | $0.00 | $0.00 | $291.44 | $0.00 |
| 2025 | 1135 | PUD1 - PUD #1 | $23.37 | $23.36 | $0.00 | $0.00 | $46.73 | $0.00 |
| 2025 | 1135 | LIB1 - LIBRARY DIST #1 | $110.69 | $110.69 | $0.00 | $0.00 | $221.38 | $0.00 |
| 2025 | 1135 | HD2 - HOSP DIST #2 | $20.84 | $20.83 | $0.00 | $0.00 | $41.67 | $0.00 |
| 2025 | 1135 | SD50 - SCHOOL DIST #50 | $663.68 | $663.67 | $0.00 | $0.00 | $1327.35 | $0.00 |
| 2025 | 1135 | FD1 - FIRE DISTRICT #1 | $471.25 | $471.24 | $0.00 | $0.00 | $942.49 | $0.00 |
| 2025 | 1135 | EMS1 - FIRE DIST #1 EMS | $181.26 | $181.25 | $0.00 | $0.00 | $362.51 | $0.00 |
| 2025 | 1135 | FP - DNR Forest Fire Protection Assmt | $8.50 | $8.50 | $0.00 | $0.00 | $17.00 | $0.00 |
| 2025 | 1135 | FPLCA - DNR Landowner Contingency Assmt | $3.00 | $3.00 | $0.00 | $0.00 | $6.00 | $0.00 |
| 2025 | 1135 | JCCD - JC Conservation District | $2.75 | $2.75 | $0.00 | $0.00 | $5.50 | $0.00 |
| 2025 | 1135 | NWA - Noxious Weed Assessment | $2.75 | $2.75 | $0.00 | $0.00 | $5.50 | $0.00 |
| 2025 | 1135 | OSS - On Site Septic | $21.50 | $21.50 | $0.00 | $0.00 | $43.00 | $0.00 |
| 2025 | 1135 | WAT - Clean Water District | $13.00 | $13.00 | $0.00 | $0.00 | $26.00 | $0.00 |
| 2025 | 1135 | FP ADMIN - FP ADMIN | $0.50 | $0.00 | $0.00 | $0.00 | $0.50 | $0.00 |
| 2025 | 1135 | TOTAL: | $3230.86 | $3230.26 | $0.00 | $0.00 | $6461.12 | $0.00 |
|
| 2025 | 1135 | $3230.86 | $3230.26 | $0.00 | $0.00 | $6461.12 | $0.00 |
Statement Details |
| 2024 | 1137 | STATE - STATE LEVY (SCHOOL) | $829.08 | $829.07 | $0.00 | $0.00 | $1658.15 | $0.00 |
| 2024 | 1137 | COUNTY - COUNTY LEVIES (CE, DD, VET, MH) | $354.79 | $354.76 | $0.00 | $0.00 | $709.55 | $0.00 |
| 2024 | 1137 | CONSERVE - CONSERVATION FUTURES | $10.64 | $10.64 | $0.00 | $0.00 | $21.28 | $0.00 |
| 2024 | 1137 | COROADS - COUNTY ROADS (ROADS, DIV TO CE) | $285.47 | $285.47 | $0.00 | $0.00 | $570.94 | $0.00 |
| 2024 | 1137 | PORTPT - PORT DISTRICT | $146.54 | $146.53 | $0.00 | $0.00 | $293.07 | $0.00 |
| 2024 | 1137 | PUD1 - PUD #1 | $23.31 | $23.30 | $0.00 | $0.00 | $46.61 | $0.00 |
| 2024 | 1137 | LIB1 - LIBRARY DIST #1 | $110.45 | $110.44 | $0.00 | $0.00 | $220.89 | $0.00 |
| 2024 | 1137 | HD2 - HOSP DIST #2 | $20.70 | $20.70 | $0.00 | $0.00 | $41.40 | $0.00 |
| 2024 | 1137 | SD50 - SCHOOL DIST #50 | $670.77 | $670.75 | $0.00 | $0.00 | $1341.52 | $0.00 |
| 2024 | 1137 | FD1 - FIRE DISTRICT #1 | $469.09 | $469.09 | $0.00 | $0.00 | $938.18 | $0.00 |
| 2024 | 1137 | EMS1 - FIRE DIST #1 EMS | $179.18 | $179.17 | $0.00 | $0.00 | $358.35 | $0.00 |
| 2024 | 1137 | FP - DNR Forest Fire Protection Assmt | $8.50 | $8.50 | $0.00 | $0.00 | $17.00 | $0.00 |
| 2024 | 1137 | FPLCA - DNR Landowner Contingency Assmt | $3.00 | $3.00 | $0.00 | $0.00 | $6.00 | $0.00 |
| 2024 | 1137 | JCCD - JC Conservation District | $2.75 | $2.75 | $0.00 | $0.00 | $5.50 | $0.00 |
| 2024 | 1137 | NWA - Noxious Weed Assessment | $2.75 | $2.75 | $0.00 | $0.00 | $5.50 | $0.00 |
| 2024 | 1137 | OSS - On Site Septic | $21.00 | $21.00 | $0.00 | $0.00 | $42.00 | $0.00 |
| 2024 | 1137 | WAT - Clean Water District | $12.50 | $12.50 | $0.00 | $0.00 | $25.00 | $0.00 |
| 2024 | 1137 | FP ADMIN - FP ADMIN | $0.50 | $0.00 | $0.00 | $0.00 | $0.50 | $0.00 |
| 2024 | 1137 | TOTAL: | $3151.02 | $3150.42 | $0.00 | $0.00 | $6301.44 | $0.00 |
|
| 2024 | 1137 | $3151.02 | $3150.42 | $0.00 | $0.00 | $6301.44 | $0.00 |
Statement Details |
| 2023 | 1137 | STATE - STATE LEVY (SCHOOL) | $766.49 | $766.49 | $0.00 | $0.00 | $1532.98 | $0.00 |
| 2023 | 1137 | COUNTY - COUNTY LEVIES (CE, DD, VET, MH) | $334.48 | $334.47 | $0.00 | $0.00 | $668.95 | $0.00 |
| 2023 | 1137 | CONSERVE - CONSERVATION FUTURES | $10.03 | $10.03 | $0.00 | $0.00 | $20.06 | $0.00 |
| 2023 | 1137 | COROADS - COUNTY ROADS (ROADS, DIV TO CE) | $270.62 | $270.61 | $0.00 | $0.00 | $541.23 | $0.00 |
| 2023 | 1137 | PORTPT - PORT DISTRICT | $140.90 | $140.90 | $0.00 | $0.00 | $281.80 | $0.00 |
| 2023 | 1137 | PUD1 - PUD #1 | $22.17 | $22.17 | $0.00 | $0.00 | $44.34 | $0.00 |
| 2023 | 1137 | LIB1 - LIBRARY DIST #1 | $104.70 | $104.69 | $0.00 | $0.00 | $209.39 | $0.00 |
| 2023 | 1137 | HD2 - HOSP DIST #2 | $19.53 | $19.51 | $0.00 | $0.00 | $39.04 | $0.00 |
| 2023 | 1137 | SD50 - SCHOOL DIST #50 | $608.23 | $608.22 | $0.00 | $0.00 | $1216.45 | $0.00 |
| 2023 | 1137 | FD1 - FIRE DISTRICT #1 | $275.54 | $275.54 | $0.00 | $0.00 | $551.08 | $0.00 |
| 2023 | 1137 | EMS1 - FIRE DIST #1 EMS | $117.21 | $117.21 | $0.00 | $0.00 | $234.42 | $0.00 |
| 2023 | 1137 | FP - DNR Forest Fire Protection Assmt | $8.50 | $8.50 | $0.00 | $0.00 | $17.00 | $0.00 |
| 2023 | 1137 | FPLCA - DNR Landowner Contingency Assmt | $3.00 | $3.00 | $0.00 | $0.00 | $6.00 | $0.00 |
| 2023 | 1137 | JCCD - JC Conservation District | $2.75 | $2.75 | $0.00 | $0.00 | $5.50 | $0.00 |
| 2023 | 1137 | NWA - Noxious Weed Assessment | $2.75 | $2.75 | $0.00 | $0.00 | $5.50 | $0.00 |
| 2023 | 1137 | OSS - On Site Septic | $20.50 | $20.50 | $0.00 | $0.00 | $41.00 | $0.00 |
| 2023 | 1137 | WAT - Clean Water District | $12.00 | $12.00 | $0.00 | $0.00 | $24.00 | $0.00 |
| 2023 | 1137 | FP ADMIN - FP ADMIN | $0.50 | $0.00 | $0.00 | $0.00 | $0.50 | $0.00 |
| 2023 | 1137 | TOTAL: | $2719.90 | $2719.34 | $0.00 | $0.00 | $5439.24 | $0.00 |
|
| 2023 | 1137 | $2719.90 | $2719.34 | $0.00 | $0.00 | $5439.24 | $0.00 |
Values
| (+) Improvement Homesite Value: | + | $0 | |
| (+) Improvement Non-Homesite Value: | + | $461,757 | |
| (+) Land Homesite Value: | + | $0 | |
| (+) Land Non-Homesite Value: | + | $315,700 | |
| (+) Curr Use (HS): | + | $0 | $0 |
| (+) Curr Use (NHS): | + | $0 | $0 |
| | | -------------------------- | |
| (=) Market Value: | = | $777,457 | |
| (–) Productivity Loss: | – | $0 | |
| | | -------------------------- | |
| (=) Subtotal: | = | $777,457 | |
| (+) Senior Appraised Value: | + | $0 | |
| (+) Non-Senior Appraised Value: | + | $777,457 | |
| | | -------------------------- | |
| (=) Total Appraised Value: | = | $777,457 | |
| (–) Senior Exemption Loss: | – | $0 | |
| (–) Exemption Loss: | – | $0 | |
| | | -------------------------- | |
| (=) Taxable Value: | = | $777,457 | |
Taxing Jurisdiction
| Owner: | DAVID K & MARCELLE E NAKAGAWARA | | |
| % Ownership: | 100.0000000000% | | |
| Total Value: | $777,457 | | |
| Tax Area: | 0111 - 1-50F1E1H2L1 |
| CE | COUNTY CURRENT EXPENSE | 0.9034619479 | $777,457 | $777,457 | $702.40 | | |
| CNTYDD | DEVELOPMENTAL DISABILITIES | 0.0052121823 | $777,457 | $777,457 | $4.05 | | |
| CNTYVET | VETERANS RELIEF | 0.0052777810 | $777,457 | $777,457 | $4.10 | | |
| MENTAL | MENTAL HEALTH | 0.0052121823 | $777,457 | $777,457 | $4.05 | | |
| ROADS | COUNTY ROADS | 0.7415066410 | $777,457 | $777,457 | $576.49 | | |
| ROADSCU | COUNTY ROADS TO CUR EXP | 0.0000000000 | $777,457 | $777,457 | $0.00 | | |
| HOSP2CASH | HOSP DIST #2 GENERAL | 0.0536075306 | $777,457 | $777,457 | $41.68 | | |
| SCH50BOND | SCHOOL DIST #50 BOND 2016 | 0.5377451389 | $777,457 | $777,457 | $418.07 | | |
| SCH50CP | SCHOOL DIST #50 CAP PROJ | 0.4573475088 | $777,457 | $777,457 | $355.57 | | |
| SCH50MO | SCHOOL DIST #50 EP & O | 0.8262822886 | $777,457 | $777,457 | $642.40 | | |
| CONSERVE | CONSERVATION FUTURES | 0.0275621078 | $777,457 | $777,457 | $21.43 | | |
| EMS1 | FIRE DIST #1 EMS | 0.4679948282 | $777,457 | $777,457 | $363.85 | | |
| FD1 | FIRE DIST #1 GENERAL | 1.2171942929 | $777,457 | $777,457 | $946.32 | | |
| LIB1 | LIBRARY DIST #1 GENERAL | 0.2868827388 | $777,457 | $777,457 | $223.04 | | |
| PORTPT | PORT OF PT GENERAL | 0.1134941229 | $777,457 | $777,457 | $88.24 | | |
| PORTPTIDD | PORT OF PT IDD 2019 | 0.2577346692 | $777,457 | $777,457 | $200.38 | | |
| PUD1 | PUD #1 GENERAL | 0.0597888892 | $777,457 | $777,457 | $46.48 | | |
| STATE | STATE SCHOOL PART 1 | 1.4940692947 | $777,457 | $777,457 | $1,161.57 | | |
| STATE2 | STATE SCHOOL PART 2 | 0.8050170049 | $777,457 | $777,457 | $625.87 | | |
| | Total Tax Rate: | 8.2653911500 | | | | | |
| | | | | Taxes w/Current Exemptions: | $6,425.99 | | |
| | | | | Taxes w/o Exemptions: | $6,425.99 | | |
Improvement / Building
| Improvement #1: | Residential Bldg | State Code: | 11 | 1368.0 sqft | Value: | $461,757 |
| Bathrooms (#): | 1 (FULL) | Bedrooms (#): | 1 | | Exterior Wall: | SI/ST | Fireplace: | SIN 1-AVG | | Floor Construction: | FRAME | Foundation: | CONPR | | Heating/Cooling: | F/A | Inside Verify: | YES-FIX | | Roof Cover: | COMP |   |   |
|
| | Type | Description | Class CD | Sub Class CD | Year Built | Area |
| | MA | Main Area | 5 | 1S | 1998 | 1242.0 |
| | MA2 | Second Floor Main Area | 5 | 1S | 1998 | 126.0 |
| | HWPOR | House Wood Porch | 5 | 1S | 1998 | 608.0 |
| | GDET | Detached Garage | 5 | 1S | 1998 | 600.0 |
| | SHED | Shed (Table Not Dep) | 4 | 1S | 1998 | 0.0 |
Sketch
| No sketches available for this property. |
Property Image
Land
| 1 | 1571A | | 4.0000 | 174240.00 | 0.00 | 0.00 | 0.00 | $101,200 | $0 |
| 2 | 5387-1345S | | 1.0000 | 43560.00 | 0.00 | 0.00 | 1.00 | $214,500 | $0 |
Roll Value History
| 2026 | N/A | N/A | N/A | N/A | N/A |
| 2025 | $461,757 | $315,700 | $0 | $777,457 | $777,457 |
| 2024 | $441,681 | $315,700 | $0 | $757,381 | $757,381 |
| 2023 | $424,796 | $291,900 | $0 | $716,696 | $716,696 |
| 2022 | $386,178 | $265,000 | $0 | $651,178 | $651,178 |
Deed and Sales History
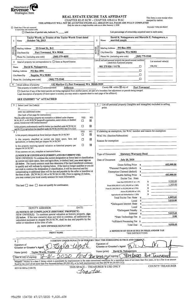
| 1 | 07/20/2020 | SWD | Statutory Warranty Deed | TAYLOR WORTH TRUST | DAVID K & MARCELLE E NAKAGAWARA | | | $602,000.00 | 134730 | |
| 2 | 10/07/2013 | QCD | Quit Claim Deed | TAYLOR WORTH | TAYLOR WORTH TRUST | | | | 120089 | |
| 3 | 11/18/1997 | SWD | Statutory Warranty Deed | NISBET, RONALD T/FELICITY | WORTH, TAYLOR | 0 | 0 | $102,000.00 | 83291 | 0 |
| 4 | 02/25/1992 | SWD | Statutory Warranty Deed | GANE, MAHLON/CORTELL, JAN | NISBET, RONDALD T/VERITY N | 0 | 0 | $90,000.00 | 67851 | 0 |
Payout Agreement
| No payout information available.. |