Property
Account |
| Property ID: | 11203 | Abbreviated Legal Description: | S28 T30 R1W N1/2 SE NW(PTN W CO RD) LS PTN TAX 14 |
| Parcel # / Geo ID: | 001282019 | Agent Code: | |
| Type: | Real | | |
| Tax Area: | 0111 - 1-50F1E1H2L1 | Land Use Code | 11 |
| Open Space: | N | DFL | N |
| Historic Property: | N | Remodel Property: | N |
| Multi-Family Redevelopment: | N | | |
| Township: | 30N | Section: | 28 |
| Range: | 1W |
Location |
| Address: | 430 THEATRE RD PORT TOWNSEND, WA 98368 | Mapsco: | 096/026 |
| Neighborhood: | S 27 & 28 T 30 R1W | Map ID: | |
| Neighborhood CD: | 5385 |
Owner |
| Name: | DAVID P NAUGLE | Owner ID: | 112416 |
| Mailing Address: | CRYSTAL F RENNER 274 OTTO ST STE P PORT TOWNSEND, WA 98368-9719 | % Ownership: | 100.0000000000% |
| | | Exemptions: | |
Pay Tax Due
Select the appropriate checkbox next to the year to be paid. Multiple years may be selected.
*Convenience Fee not included
Taxes and Assessment Details
Property Tax Information as of
03/10/2026
Click on "Statement Details" to expand or collapse a tax statement.
* Please enter a valid date ** Please enter a valid date *
Statement Details |
| 2026 | 1155 | STATE - STATE LEVY (SCHOOL) | $587.40 | $587.39 | $0.00 | $0.00 | $0.00 | $1174.79 |
| 2026 | 1155 | COUNTY - COUNTY LEVIES (CE, DD, VET, MH) | $234.84 | $234.83 | $0.00 | $0.00 | $0.00 | $469.67 |
| 2026 | 1155 | CONSERVE - CONSERVATION FUTURES | $7.04 | $7.04 | $0.00 | $0.00 | $0.00 | $14.08 |
| 2026 | 1155 | COROADS - COUNTY ROADS (ROADS, DIV TO CE) | $189.45 | $189.45 | $0.00 | $0.00 | $0.00 | $378.90 |
| 2026 | 1155 | PORTPT - PORT DISTRICT | $94.85 | $94.84 | $0.00 | $0.00 | $0.00 | $189.69 |
| 2026 | 1155 | PUD1 - PUD #1 | $15.28 | $15.27 | $0.00 | $0.00 | $0.00 | $30.55 |
| 2026 | 1155 | LIB1 - LIBRARY DIST #1 | $73.30 | $73.29 | $0.00 | $0.00 | $0.00 | $146.59 |
| 2026 | 1155 | HD2 - HOSP DIST #2 | $13.70 | $13.69 | $0.00 | $0.00 | $0.00 | $27.39 |
| 2026 | 1155 | SD50 - SCHOOL DIST #50 | $465.35 | $465.35 | $0.00 | $0.00 | $0.00 | $930.70 |
| 2026 | 1155 | FD1 - FIRE DISTRICT #1 | $310.98 | $310.98 | $0.00 | $0.00 | $0.00 | $621.96 |
| 2026 | 1155 | EMS1 - FIRE DIST #1 EMS | $119.57 | $119.57 | $0.00 | $0.00 | $0.00 | $239.14 |
| 2026 | 1155 | FP - DNR Forest Fire Protection Assmt | $8.50 | $8.50 | $0.00 | $0.00 | $0.00 | $17.00 |
| 2026 | 1155 | FPLCA - DNR Landowner Contingency Assmt | $3.00 | $3.00 | $0.00 | $0.00 | $0.00 | $6.00 |
| 2026 | 1155 | JCCD - JC Conservation District | $2.75 | $2.75 | $0.00 | $0.00 | $0.00 | $5.50 |
| 2026 | 1155 | NWA - Noxious Weed Assessment | $3.88 | $3.87 | $0.00 | $0.00 | $0.00 | $7.75 |
| 2026 | 1155 | OSS - On Site Septic | $23.10 | $23.10 | $0.00 | $0.00 | $0.00 | $46.20 |
| 2026 | 1155 | WAT - Clean Water District | $13.00 | $13.00 | $0.00 | $0.00 | $0.00 | $26.00 |
| 2026 | 1155 | FP ADMIN - FP ADMIN | $0.50 | $0.00 | $0.00 | $0.00 | $0.00 | $0.50 |
| 2026 | 1155 | TOTAL: | $2166.49 | $2165.92 | $0.00 | $0.00 | $0.00 | $4332.41 |
|
| 2026 | 1155 | $2166.49 | $2165.92 | $0.00 | $0.00 | $0.00 | $4332.41 |
Statement Details |
| 2025 | 1160 | STATE - STATE LEVY (SCHOOL) | $382.69 | $382.68 | $0.00 | $0.00 | $765.37 | $0.00 |
| 2025 | 1160 | COUNTY - COUNTY LEVIES (CE, DD, VET, MH) | $150.48 | $150.48 | $0.00 | $0.00 | $300.96 | $0.00 |
| 2025 | 1160 | CONSERVE - CONSERVATION FUTURES | $4.52 | $4.51 | $0.00 | $0.00 | $9.03 | $0.00 |
| 2025 | 1160 | COROADS - COUNTY ROADS (ROADS, DIV TO CE) | $120.57 | $120.56 | $0.00 | $0.00 | $241.13 | $0.00 |
| 2025 | 1160 | PORTPT - PORT DISTRICT | $61.41 | $61.40 | $0.00 | $0.00 | $122.81 | $0.00 |
| 2025 | 1160 | PUD1 - PUD #1 | $9.85 | $9.84 | $0.00 | $0.00 | $19.69 | $0.00 |
| 2025 | 1160 | LIB1 - LIBRARY DIST #1 | $46.65 | $46.64 | $0.00 | $0.00 | $93.29 | $0.00 |
| 2025 | 1160 | HD2 - HOSP DIST #2 | $8.78 | $8.78 | $0.00 | $0.00 | $17.56 | $0.00 |
| 2025 | 1160 | SD50 - SCHOOL DIST #50 | $279.69 | $279.66 | $0.00 | $0.00 | $559.35 | $0.00 |
| 2025 | 1160 | FD1 - FIRE DISTRICT #1 | $198.59 | $198.58 | $0.00 | $0.00 | $397.17 | $0.00 |
| 2025 | 1160 | EMS1 - FIRE DIST #1 EMS | $76.38 | $76.38 | $0.00 | $0.00 | $152.76 | $0.00 |
| 2025 | 1160 | FP - DNR Forest Fire Protection Assmt | $8.50 | $8.50 | $0.00 | $0.00 | $17.00 | $0.00 |
| 2025 | 1160 | FPLCA - DNR Landowner Contingency Assmt | $3.00 | $3.00 | $0.00 | $0.00 | $6.00 | $0.00 |
| 2025 | 1160 | JCCD - JC Conservation District | $2.75 | $2.75 | $0.00 | $0.00 | $5.50 | $0.00 |
| 2025 | 1160 | NWA - Noxious Weed Assessment | $2.75 | $2.75 | $0.00 | $0.00 | $5.50 | $0.00 |
| 2025 | 1160 | OSS - On Site Septic | $21.50 | $21.50 | $0.00 | $0.00 | $43.00 | $0.00 |
| 2025 | 1160 | WAT - Clean Water District | $13.00 | $13.00 | $0.00 | $0.00 | $26.00 | $0.00 |
| 2025 | 1160 | FP ADMIN - FP ADMIN | $0.50 | $0.00 | $0.00 | $0.00 | $0.50 | $0.00 |
| 2025 | 1160 | TOTAL: | $1391.61 | $1391.01 | $0.00 | $0.00 | $2782.62 | $0.00 |
|
| 2025 | 1160 | $1391.61 | $1391.01 | $0.00 | $0.00 | $2782.62 | $0.00 |
Statement Details |
| 2024 | 1162 | STATE - STATE LEVY (SCHOOL) | $362.05 | $362.04 | $0.00 | $0.00 | $724.09 | $0.00 |
| 2024 | 1162 | COUNTY - COUNTY LEVIES (CE, DD, VET, MH) | $154.94 | $154.90 | $0.00 | $0.00 | $309.84 | $0.00 |
| 2024 | 1162 | CONSERVE - CONSERVATION FUTURES | $4.65 | $4.64 | $0.00 | $0.00 | $9.29 | $0.00 |
| 2024 | 1162 | COROADS - COUNTY ROADS (ROADS, DIV TO CE) | $124.66 | $124.66 | $0.00 | $0.00 | $249.32 | $0.00 |
| 2024 | 1162 | PORTPT - PORT DISTRICT | $63.99 | $63.99 | $0.00 | $0.00 | $127.98 | $0.00 |
| 2024 | 1162 | PUD1 - PUD #1 | $10.18 | $10.17 | $0.00 | $0.00 | $20.35 | $0.00 |
| 2024 | 1162 | LIB1 - LIBRARY DIST #1 | $48.23 | $48.23 | $0.00 | $0.00 | $96.46 | $0.00 |
| 2024 | 1162 | HD2 - HOSP DIST #2 | $9.04 | $9.04 | $0.00 | $0.00 | $18.08 | $0.00 |
| 2024 | 1162 | SD50 - SCHOOL DIST #50 | $292.92 | $292.90 | $0.00 | $0.00 | $585.82 | $0.00 |
| 2024 | 1162 | FD1 - FIRE DISTRICT #1 | $204.85 | $204.84 | $0.00 | $0.00 | $409.69 | $0.00 |
| 2024 | 1162 | EMS1 - FIRE DIST #1 EMS | $78.25 | $78.24 | $0.00 | $0.00 | $156.49 | $0.00 |
| 2024 | 1162 | FP - DNR Forest Fire Protection Assmt | $8.50 | $8.50 | $0.00 | $0.00 | $17.00 | $0.00 |
| 2024 | 1162 | FPLCA - DNR Landowner Contingency Assmt | $3.00 | $3.00 | $0.00 | $0.00 | $6.00 | $0.00 |
| 2024 | 1162 | JCCD - JC Conservation District | $2.75 | $2.75 | $0.00 | $0.00 | $5.50 | $0.00 |
| 2024 | 1162 | NWA - Noxious Weed Assessment | $2.75 | $2.75 | $0.00 | $0.00 | $5.50 | $0.00 |
| 2024 | 1162 | OSS - On Site Septic | $21.00 | $21.00 | $0.00 | $0.00 | $42.00 | $0.00 |
| 2024 | 1162 | WAT - Clean Water District | $12.50 | $12.50 | $0.00 | $0.00 | $25.00 | $0.00 |
| 2024 | 1162 | FP ADMIN - FP ADMIN | $0.50 | $0.00 | $0.00 | $0.00 | $0.50 | $0.00 |
| 2024 | 1162 | TOTAL: | $1404.76 | $1404.15 | $0.00 | $0.00 | $2808.91 | $0.00 |
|
| 2024 | 1162 | $1404.76 | $1404.15 | $0.00 | $0.00 | $2808.91 | $0.00 |
Statement Details |
| 2023 | 1162 | STATE - STATE LEVY (SCHOOL) | $341.47 | $341.46 | $0.00 | $0.00 | $682.93 | $0.00 |
| 2023 | 1162 | COUNTY - COUNTY LEVIES (CE, DD, VET, MH) | $149.02 | $148.98 | $0.00 | $0.00 | $298.00 | $0.00 |
| 2023 | 1162 | CONSERVE - CONSERVATION FUTURES | $4.47 | $4.47 | $0.00 | $0.00 | $8.94 | $0.00 |
| 2023 | 1162 | COROADS - COUNTY ROADS (ROADS, DIV TO CE) | $120.56 | $120.55 | $0.00 | $0.00 | $241.11 | $0.00 |
| 2023 | 1162 | PORTPT - PORT DISTRICT | $62.77 | $62.77 | $0.00 | $0.00 | $125.54 | $0.00 |
| 2023 | 1162 | PUD1 - PUD #1 | $9.88 | $9.87 | $0.00 | $0.00 | $19.75 | $0.00 |
| 2023 | 1162 | LIB1 - LIBRARY DIST #1 | $46.64 | $46.64 | $0.00 | $0.00 | $93.28 | $0.00 |
| 2023 | 1162 | HD2 - HOSP DIST #2 | $8.70 | $8.69 | $0.00 | $0.00 | $17.39 | $0.00 |
| 2023 | 1162 | SD50 - SCHOOL DIST #50 | $270.97 | $270.95 | $0.00 | $0.00 | $541.92 | $0.00 |
| 2023 | 1162 | FD1 - FIRE DISTRICT #1 | $122.75 | $122.75 | $0.00 | $0.00 | $245.50 | $0.00 |
| 2023 | 1162 | EMS1 - FIRE DIST #1 EMS | $52.22 | $52.21 | $0.00 | $0.00 | $104.43 | $0.00 |
| 2023 | 1162 | FP - DNR Forest Fire Protection Assmt | $8.50 | $8.50 | $0.00 | $0.00 | $17.00 | $0.00 |
| 2023 | 1162 | FPLCA - DNR Landowner Contingency Assmt | $3.00 | $3.00 | $0.00 | $0.00 | $6.00 | $0.00 |
| 2023 | 1162 | JCCD - JC Conservation District | $2.75 | $2.75 | $0.00 | $0.00 | $5.50 | $0.00 |
| 2023 | 1162 | NWA - Noxious Weed Assessment | $2.75 | $2.75 | $0.00 | $0.00 | $5.50 | $0.00 |
| 2023 | 1162 | OSS - On Site Septic | $20.50 | $20.50 | $0.00 | $0.00 | $41.00 | $0.00 |
| 2023 | 1162 | WAT - Clean Water District | $12.00 | $12.00 | $0.00 | $0.00 | $24.00 | $0.00 |
| 2023 | 1162 | FP ADMIN - FP ADMIN | $0.50 | $0.00 | $0.00 | $0.00 | $0.50 | $0.00 |
| 2023 | 1162 | TOTAL: | $1239.45 | $1238.84 | $0.00 | $0.00 | $2478.29 | $0.00 |
|
| 2023 | 1162 | $1239.45 | $1238.84 | $0.00 | $0.00 | $2478.29 | $0.00 |
Values
| (+) Improvement Homesite Value: | + | $342,671 | |
| (+) Improvement Non-Homesite Value: | + | $0 | |
| (+) Land Homesite Value: | + | $168,311 | |
| (+) Land Non-Homesite Value: | + | $0 | |
| (+) Curr Use (HS): | + | $0 | $0 |
| (+) Curr Use (NHS): | + | $0 | $0 |
| | | -------------------------- | |
| (=) Market Value: | = | $510,982 | |
| (–) Productivity Loss: | – | $0 | |
| | | -------------------------- | |
| (=) Subtotal: | = | $510,982 | |
| (+) Senior Appraised Value: | + | $0 | |
| (+) Non-Senior Appraised Value: | + | $510,982 | |
| | | -------------------------- | |
| (=) Total Appraised Value: | = | $510,982 | |
| (–) Senior Exemption Loss: | – | $0 | |
| (–) Exemption Loss: | – | $0 | |
| | | -------------------------- | |
| (=) Taxable Value: | = | $510,982 | |
Taxing Jurisdiction
| Owner: | DAVID P NAUGLE | | |
| % Ownership: | 100.0000000000% | | |
| Total Value: | $510,982 | | |
| Tax Area: | 0111 - 1-50F1E1H2L1 |
| CE | COUNTY CURRENT EXPENSE | 0.9034619479 | $510,982 | $510,982 | $461.65 | | |
| CNTYDD | DEVELOPMENTAL DISABILITIES | 0.0052121823 | $510,982 | $510,982 | $2.66 | | |
| CNTYVET | VETERANS RELIEF | 0.0052777810 | $510,982 | $510,982 | $2.70 | | |
| MENTAL | MENTAL HEALTH | 0.0052121823 | $510,982 | $510,982 | $2.66 | | |
| ROADS | COUNTY ROADS | 0.7415066410 | $510,982 | $510,982 | $378.90 | | |
| ROADSCU | COUNTY ROADS TO CUR EXP | 0.0000000000 | $510,982 | $510,982 | $0.00 | | |
| HOSP2CASH | HOSP DIST #2 GENERAL | 0.0536075306 | $510,982 | $510,982 | $27.39 | | |
| SCH50BOND | SCHOOL DIST #50 BOND 2016 | 0.5377451389 | $510,982 | $510,982 | $274.78 | | |
| SCH50CP | SCHOOL DIST #50 CAP PROJ | 0.4573475088 | $510,982 | $510,982 | $233.70 | | |
| SCH50MO | SCHOOL DIST #50 EP & O | 0.8262822886 | $510,982 | $510,982 | $422.22 | | |
| CONSERVE | CONSERVATION FUTURES | 0.0275621078 | $510,982 | $510,982 | $14.08 | | |
| EMS1 | FIRE DIST #1 EMS | 0.4679948282 | $510,982 | $510,982 | $239.14 | | |
| FD1 | FIRE DIST #1 GENERAL | 1.2171942929 | $510,982 | $510,982 | $621.96 | | |
| LIB1 | LIBRARY DIST #1 GENERAL | 0.2868827388 | $510,982 | $510,982 | $146.59 | | |
| PORTPT | PORT OF PT GENERAL | 0.1134941229 | $510,982 | $510,982 | $57.99 | | |
| PORTPTIDD | PORT OF PT IDD 2019 | 0.2577346692 | $510,982 | $510,982 | $131.70 | | |
| PUD1 | PUD #1 GENERAL | 0.0597888892 | $510,982 | $510,982 | $30.55 | | |
| STATE | STATE SCHOOL PART 1 | 1.4940692947 | $510,982 | $510,982 | $763.44 | | |
| STATE2 | STATE SCHOOL PART 2 | 0.8050170049 | $510,982 | $510,982 | $411.35 | | |
| | Total Tax Rate: | 8.2653911500 | | | | | |
| | | | | Taxes w/Current Exemptions: | $4,223.46 | | |
| | | | | Taxes w/o Exemptions: | $4,223.46 | | |
Improvement / Building
| Improvement #1: | Residential Bldg | State Code: | 11 | 1884.0 sqft | Value: | $342,671 |
| Bathrooms (#): | 1 (FULL) | Bedrooms (#): | 2 | | Exterior Wall: | PL/T1 | Fireplace: | WD ST-GOOD | | Floor Construction: | FRAME | Foundation: | PO&BL | | Heating/Cooling: | ELBB | Roof Cover: | COMP |
|
| | Type | Description | Class CD | Sub Class CD | Year Built | Area |
| | MA | Main Area | 4- | 1S | 1964 | 1884.0 |
| | GATT | House Attached Garage | 4 | 1S | 1964 | 504.0 |
| | OTHER | Other | * | * | 1964 | 0.0 |
Sketch
Property Image
Land
| 1 | 5385-1375S | | 1.0000 | 43560.00 | 0.00 | 0.00 | 1.00 | $126,500 | $0 |
| 2 | 1575A | | 3.6200 | 157687.20 | 0.00 | 0.00 | 0.00 | $41,811 | $0 |
Roll Value History
| 2026 | N/A | N/A | N/A | N/A | N/A |
| 2025 | $342,671 | $168,311 | $0 | $510,982 | $510,982 |
| 2024 | $158,503 | $160,661 | $0 | $319,164 | $319,164 |
| 2023 | $166,770 | $146,200 | $0 | $312,970 | $312,970 |
| 2022 | $151,609 | $138,485 | $0 | $290,094 | $290,094 |
Deed and Sales History
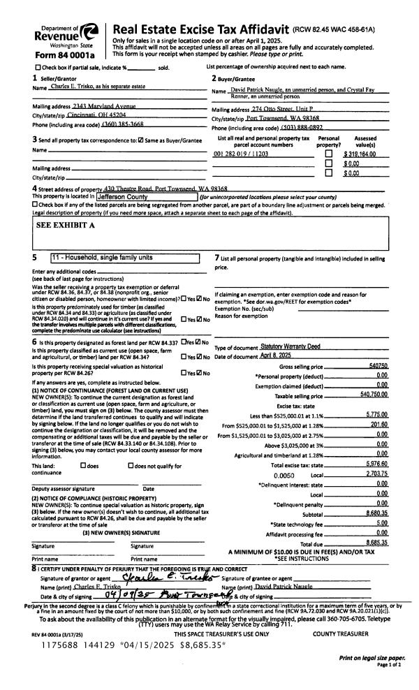
| 1 | 04/08/2025 | SWD | Statutory Warranty Deed | CHARLES E TRISKO | DAVID P NAUGLE | | | $540,750.00 | 144129 | |
| 2 | 04/22/2003 | SWD | Statutory Warranty Deed | LA COSSE, LINDA R | TRISKO, CHARLES E/SUSAN D | 0 | 0 | $169,900.00 | 97161 | 0 |
| 3 | 10/05/1999 | EASE | Assignment of Easement | LACOSSE, LINDA R | US WEST COMMUNICATIONS | 0 | 0 | $100.00 | 88309 | 0 |
Payout Agreement
| No payout information available.. |