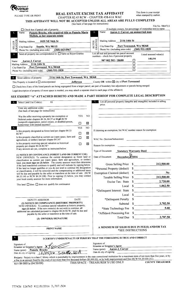
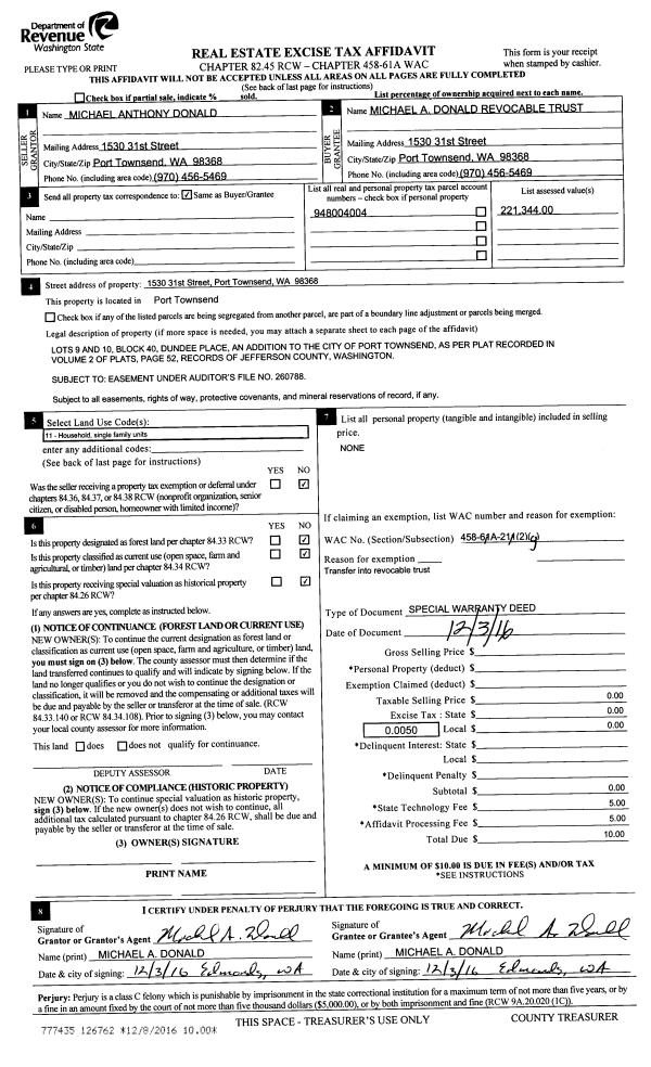
Property
Account |
| Property ID: | 11210 | Abbreviated Legal Description: | S28 T30N R1W TAX 23 |
| Parcel # / Geo ID: | 001282026 | Agent Code: | |
| Type: | Real | | |
| Tax Area: | 0111 - 1-50F1E1H2L1 | Land Use Code | 11 |
| Open Space: | N | DFL | N |
| Historic Property: | N | Remodel Property: | N |
| Multi-Family Redevelopment: | N | | |
| Township: | 30N | Section: | 28 |
| Range: | 1W |
Location |
| Address: | 101 BOURBON LN PORT TOWNSEND, WA 98368 | Mapsco: | 097/019 |
| Neighborhood: | S 27 & 28 T 30 R1W | Map ID: | |
| Neighborhood CD: | 5385 |
Owner |
| Name: | JEFFERY H NESSET | Owner ID: | 23431 |
| Mailing Address: | OLGA E NESSET 101 BOURBON LN PORT TOWNSEND, WA 98368-9735 | % Ownership: | 100.0000000000% |
| | | Exemptions: | SNR/DSBL |
Pay Tax Due
Select the appropriate checkbox next to the year to be paid. Multiple years may be selected.
*Convenience Fee not included
Taxes and Assessment Details
Property Tax Information as of
03/10/2026
Click on "Statement Details" to expand or collapse a tax statement.
* Please enter a valid date ** Please enter a valid date *
Statement Details |
| 2026 | 1162 | STATE - STATE LEVY (SCHOOL) | $476.53 | $476.52 | $0.00 | $0.00 | $0.00 | $953.05 |
| 2026 | 1162 | COUNTY - COUNTY LEVIES (CE, DD, VET, MH) | $293.17 | $293.15 | $0.00 | $0.00 | $0.00 | $586.32 |
| 2026 | 1162 | CONSERVE - CONSERVATION FUTURES | $8.79 | $8.79 | $0.00 | $0.00 | $0.00 | $17.58 |
| 2026 | 1162 | COROADS - COUNTY ROADS (ROADS, DIV TO CE) | $236.50 | $236.50 | $0.00 | $0.00 | $0.00 | $473.00 |
| 2026 | 1162 | PORTPT - PORT DISTRICT | $118.41 | $118.40 | $0.00 | $0.00 | $0.00 | $236.81 |
| 2026 | 1162 | PUD1 - PUD #1 | $19.07 | $19.07 | $0.00 | $0.00 | $0.00 | $38.14 |
| 2026 | 1162 | LIB1 - LIBRARY DIST #1 | $91.50 | $91.50 | $0.00 | $0.00 | $0.00 | $183.00 |
| 2026 | 1162 | HD2 - HOSP DIST #2 | $17.10 | $17.10 | $0.00 | $0.00 | $0.00 | $34.20 |
| 2026 | 1162 | SD50 - SCHOOL DIST #50 | $0.00 | $0.00 | $0.00 | $0.00 | $0.00 | $0.00 |
| 2026 | 1162 | FD1 - FIRE DISTRICT #1 | $388.22 | $388.22 | $0.00 | $0.00 | $0.00 | $776.44 |
| 2026 | 1162 | EMS1 - FIRE DIST #1 EMS | $149.27 | $149.26 | $0.00 | $0.00 | $0.00 | $298.53 |
| 2026 | 1162 | FP - DNR Forest Fire Protection Assmt | $8.50 | $8.50 | $0.00 | $0.00 | $0.00 | $17.00 |
| 2026 | 1162 | FPLCA - DNR Landowner Contingency Assmt | $3.00 | $3.00 | $0.00 | $0.00 | $0.00 | $6.00 |
| 2026 | 1162 | OSS - On Site Septic | $23.10 | $23.10 | $0.00 | $0.00 | $0.00 | $46.20 |
| 2026 | 1162 | FP ADMIN - FP ADMIN | $0.50 | $0.00 | $0.00 | $0.00 | $0.00 | $0.50 |
| 2026 | 1162 | TOTAL: | $1833.66 | $1833.11 | $0.00 | $0.00 | $0.00 | $3666.77 |
|
| 2026 | 1162 | $1833.66 | $1833.11 | $0.00 | $0.00 | $0.00 | $3666.77 |
Statement Details |
| 2025 | 1167 | STATE - STATE LEVY (SCHOOL) | $994.43 | $0.00 | $0.00 | $0.00 | $994.43 | $0.00 |
| 2025 | 1167 | COUNTY - COUNTY LEVIES (CE, DD, VET, MH) | $601.53 | $0.00 | $0.00 | $0.00 | $601.53 | $0.00 |
| 2025 | 1167 | CONSERVE - CONSERVATION FUTURES | $18.04 | $0.00 | $0.00 | $0.00 | $18.04 | $0.00 |
| 2025 | 1167 | COROADS - COUNTY ROADS (ROADS, DIV TO CE) | $481.93 | $0.00 | $0.00 | $0.00 | $481.93 | $0.00 |
| 2025 | 1167 | PORTPT - PORT DISTRICT | $245.47 | $0.00 | $0.00 | $0.00 | $245.47 | $0.00 |
| 2025 | 1167 | PUD1 - PUD #1 | $39.36 | $0.00 | $0.00 | $0.00 | $39.36 | $0.00 |
| 2025 | 1167 | LIB1 - LIBRARY DIST #1 | $186.45 | $0.00 | $0.00 | $0.00 | $186.45 | $0.00 |
| 2025 | 1167 | HD2 - HOSP DIST #2 | $35.10 | $0.00 | $0.00 | $0.00 | $35.10 | $0.00 |
| 2025 | 1167 | SD50 - SCHOOL DIST #50 | $0.00 | $0.00 | $0.00 | $0.00 | $0.00 | $0.00 |
| 2025 | 1167 | FD1 - FIRE DISTRICT #1 | $793.79 | $0.00 | $0.00 | $0.00 | $793.79 | $0.00 |
| 2025 | 1167 | EMS1 - FIRE DIST #1 EMS | $305.31 | $0.00 | $0.00 | $0.00 | $305.31 | $0.00 |
| 2025 | 1167 | FP - DNR Forest Fire Protection Assmt | $17.00 | $0.00 | $0.00 | $0.00 | $17.00 | $0.00 |
| 2025 | 1167 | FPLCA - DNR Landowner Contingency Assmt | $6.00 | $0.00 | $0.00 | $0.00 | $6.00 | $0.00 |
| 2025 | 1167 | OSS - On Site Septic | $43.00 | $0.00 | $0.00 | $0.00 | $43.00 | $0.00 |
| 2025 | 1167 | FP ADMIN - FP ADMIN | $0.50 | $0.00 | $0.00 | $0.00 | $0.50 | $0.00 |
| 2025 | 1167 | TOTAL: | $3767.91 | $0.00 | $0.00 | $0.00 | $3767.91 | $0.00 |
|
| 2025 | 1167 | $3767.91 | $0.00 | $0.00 | $0.00 | $3767.91 | $0.00 |
Statement Details |
| 2024 | 1169 | STATE - STATE LEVY (SCHOOL) | $192.11 | $192.11 | $0.00 | $0.00 | $384.22 | $0.00 |
| 2024 | 1169 | COUNTY - COUNTY LEVIES (CE, DD, VET, MH) | $126.32 | $126.29 | $0.00 | $0.00 | $252.61 | $0.00 |
| 2024 | 1169 | CONSERVE - CONSERVATION FUTURES | $3.79 | $3.78 | $0.00 | $0.00 | $7.57 | $0.00 |
| 2024 | 1169 | COROADS - COUNTY ROADS (ROADS, DIV TO CE) | $101.64 | $101.63 | $0.00 | $0.00 | $203.27 | $0.00 |
| 2024 | 1169 | PORTPT - PORT DISTRICT | $52.18 | $52.16 | $0.00 | $0.00 | $104.34 | $0.00 |
| 2024 | 1169 | PUD1 - PUD #1 | $8.30 | $8.29 | $0.00 | $0.00 | $16.59 | $0.00 |
| 2024 | 1169 | LIB1 - LIBRARY DIST #1 | $39.32 | $39.32 | $0.00 | $0.00 | $78.64 | $0.00 |
| 2024 | 1169 | HD2 - HOSP DIST #2 | $7.37 | $7.37 | $0.00 | $0.00 | $14.74 | $0.00 |
| 2024 | 1169 | SD50 - SCHOOL DIST #50 | $0.00 | $0.00 | $0.00 | $0.00 | $0.00 | $0.00 |
| 2024 | 1169 | FD1 - FIRE DISTRICT #1 | $167.01 | $167.00 | $0.00 | $0.00 | $334.01 | $0.00 |
| 2024 | 1169 | EMS1 - FIRE DIST #1 EMS | $63.79 | $63.79 | $0.00 | $0.00 | $127.58 | $0.00 |
| 2024 | 1169 | FP - DNR Forest Fire Protection Assmt | $8.50 | $8.50 | $0.00 | $0.00 | $17.00 | $0.00 |
| 2024 | 1169 | FPLCA - DNR Landowner Contingency Assmt | $3.00 | $3.00 | $0.00 | $0.00 | $6.00 | $0.00 |
| 2024 | 1169 | OSS - On Site Septic | $21.00 | $21.00 | $0.00 | $0.00 | $42.00 | $0.00 |
| 2024 | 1169 | FP ADMIN - FP ADMIN | $0.50 | $0.00 | $0.00 | $0.00 | $0.50 | $0.00 |
| 2024 | 1169 | TOTAL: | $794.83 | $794.24 | $0.00 | $0.00 | $1589.07 | $0.00 |
|
| 2024 | 1169 | $794.83 | $794.24 | $0.00 | $0.00 | $1589.07 | $0.00 |
Statement Details |
| 2023 | 1169 | STATE - STATE LEVY (SCHOOL) | $195.68 | $195.67 | $0.00 | $0.00 | $391.35 | $0.00 |
| 2023 | 1169 | COUNTY - COUNTY LEVIES (CE, DD, VET, MH) | $131.08 | $131.05 | $0.00 | $0.00 | $262.13 | $0.00 |
| 2023 | 1169 | CONSERVE - CONSERVATION FUTURES | $3.93 | $3.93 | $0.00 | $0.00 | $7.86 | $0.00 |
| 2023 | 1169 | COROADS - COUNTY ROADS (ROADS, DIV TO CE) | $106.05 | $106.03 | $0.00 | $0.00 | $212.08 | $0.00 |
| 2023 | 1169 | PORTPT - PORT DISTRICT | $55.22 | $55.20 | $0.00 | $0.00 | $110.42 | $0.00 |
| 2023 | 1169 | PUD1 - PUD #1 | $8.69 | $8.68 | $0.00 | $0.00 | $17.37 | $0.00 |
| 2023 | 1169 | LIB1 - LIBRARY DIST #1 | $41.03 | $41.02 | $0.00 | $0.00 | $82.05 | $0.00 |
| 2023 | 1169 | HD2 - HOSP DIST #2 | $7.66 | $7.64 | $0.00 | $0.00 | $15.30 | $0.00 |
| 2023 | 1169 | SD50 - SCHOOL DIST #50 | $0.00 | $0.00 | $0.00 | $0.00 | $0.00 | $0.00 |
| 2023 | 1169 | FD1 - FIRE DISTRICT #1 | $107.97 | $107.96 | $0.00 | $0.00 | $215.93 | $0.00 |
| 2023 | 1169 | EMS1 - FIRE DIST #1 EMS | $45.93 | $45.92 | $0.00 | $0.00 | $91.85 | $0.00 |
| 2023 | 1169 | FP - DNR Forest Fire Protection Assmt | $8.50 | $8.50 | $0.00 | $0.00 | $17.00 | $0.00 |
| 2023 | 1169 | FPLCA - DNR Landowner Contingency Assmt | $3.00 | $3.00 | $0.00 | $0.00 | $6.00 | $0.00 |
| 2023 | 1169 | JCCD - JC Conservation District | $2.65 | $2.65 | $0.00 | $0.00 | $5.30 | $0.00 |
| 2023 | 1169 | NWA - Noxious Weed Assessment | $2.45 | $2.45 | $0.00 | $0.00 | $4.90 | $0.00 |
| 2023 | 1169 | OSS - On Site Septic | $20.50 | $20.50 | $0.00 | $0.00 | $41.00 | $0.00 |
| 2023 | 1169 | WAT - Clean Water District | $12.00 | $12.00 | $0.00 | $0.00 | $24.00 | $0.00 |
| 2023 | 1169 | FP ADMIN - FP ADMIN | $0.50 | $0.00 | $0.00 | $0.00 | $0.50 | $0.00 |
| 2023 | 1169 | TOTAL: | $752.84 | $752.20 | $0.00 | $0.00 | $1505.04 | $0.00 |
|
| 2023 | 1169 | $752.84 | $752.20 | $0.00 | $0.00 | $1505.04 | $0.00 |
Values
| (+) Improvement Homesite Value: | + | $653,660 | |
| (+) Improvement Non-Homesite Value: | + | $0 | |
| (+) Land Homesite Value: | + | $122,056 | |
| (+) Land Non-Homesite Value: | + | $0 | |
| (+) Curr Use (HS): | + | $0 | $0 |
| (+) Curr Use (NHS): | + | $0 | $0 |
| | | -------------------------- | |
| (=) Market Value: | = | $775,716 | |
| (–) Productivity Loss: | – | $0 | |
| | | -------------------------- | |
| (=) Subtotal: | = | $775,716 | |
| (+) Senior Appraised Value: | + | $637,892 | |
| (+) Non-Senior Appraised Value: | + | $0 | |
| | | -------------------------- | |
| (=) Total Appraised Value: | = | $637,892 | |
| (–) Senior Exemption Loss: | – | $0 | |
| (–) Exemption Loss: | – | $0 | |
| | | -------------------------- | |
| (=) Taxable Value: | = | $637,892 | |
Taxing Jurisdiction
| Owner: | JEFFERY H NESSET | | |
| % Ownership: | 100.0000000000% | | |
| Total Value: | $775,716 | | |
| Tax Area: | 0111 - 1-50F1E1H2L1 |
| CE | COUNTY CURRENT EXPENSE | 0.9034619479 | $775,716 | $637,892 | $576.31 | | |
| CNTYDD | DEVELOPMENTAL DISABILITIES | 0.0052121823 | $775,716 | $637,892 | $3.32 | | |
| CNTYVET | VETERANS RELIEF | 0.0052777810 | $775,716 | $637,892 | $3.37 | | |
| MENTAL | MENTAL HEALTH | 0.0052121823 | $775,716 | $637,892 | $3.32 | | |
| ROADS | COUNTY ROADS | 0.7415066410 | $775,716 | $637,892 | $473.00 | | |
| ROADSCU | COUNTY ROADS TO CUR EXP | 0.0000000000 | $775,716 | $637,892 | $0.00 | | |
| HOSP2CASH | HOSP DIST #2 GENERAL | 0.0536075306 | $775,716 | $637,892 | $34.20 | | |
| SCH50BOND | SCHOOL DIST #50 BOND 2016 | 0.0000000000 | $775,716 | $0 | $0.00 | | |
| SCH50CP | SCHOOL DIST #50 CAP PROJ | 0.0000000000 | $775,716 | $0 | $0.00 | | |
| SCH50MO | SCHOOL DIST #50 EP & O | 0.0000000000 | $775,716 | $0 | $0.00 | | |
| CONSERVE | CONSERVATION FUTURES | 0.0275621078 | $775,716 | $637,892 | $17.58 | | |
| EMS1 | FIRE DIST #1 EMS | 0.4679948282 | $775,716 | $637,892 | $298.53 | | |
| FD1 | FIRE DIST #1 GENERAL | 1.2171942929 | $775,716 | $637,892 | $776.44 | | |
| LIB1 | LIBRARY DIST #1 GENERAL | 0.2868827388 | $775,716 | $637,892 | $183.00 | | |
| PORTPT | PORT OF PT GENERAL | 0.1134941229 | $775,716 | $637,892 | $72.40 | | |
| PORTPTIDD | PORT OF PT IDD 2019 | 0.2577346692 | $775,716 | $637,892 | $164.41 | | |
| PUD1 | PUD #1 GENERAL | 0.0597888892 | $775,716 | $637,892 | $38.14 | | |
| STATE | STATE SCHOOL PART 1 | 1.4940692947 | $775,716 | $637,892 | $953.05 | | |
| STATE2 | STATE SCHOOL PART 2 | 0.0000000000 | $775,716 | $0 | $0.00 | | |
| | Total Tax Rate: | 5.6389992088 | | | | | |
| | | | | Taxes w/Current Exemptions: | $3,597.07 | | |
| | | | | Taxes w/o Exemptions: | $6,411.58 | | |
Improvement / Building
| Improvement #1: | Residential Bldg | State Code: | 11 | 2676.0 sqft | Value: | $653,660 |
| Bathrooms (#): | 2 (FULL) | Bedrooms (#): | 1 | | Exterior Wall: | SI/ST | Floor Construction: | FRAME | | Foundation: | CONPR | Heating/Cooling: | ELBB | | Inside Verify: | NO | Roof Cover: | METAL |
|
| | Type | Description | Class CD | Sub Class CD | Year Built | Area |
| | MA | Main Area | 4 | 1S | 2012 | 2676.0 |
| | BSMTU | House basement unfinished | 4 | 1S | 2012 | 1418.0 |
| | GBLTIN | Builtin Garage | 4 | * | 2012 | 625.0 |
| | HDECK | House Deck | 3 | * | 2012 | 410.2 |
| | HWPOR | House Wood Porch | 3 | * | 2012 | 340.0 |
Sketch
Property Image
Land
| 1 | 5385-1385S | | 1.0000 | 43560.00 | 0.00 | 0.00 | 1.00 | $104,500 | $0 |
| 2 | 1575A | | 1.5200 | 66211.20 | 0.00 | 0.00 | 0.00 | $17,556 | $0 |
Roll Value History
| 2026 | N/A | N/A | N/A | N/A | N/A |
| 2025 | $653,660 | $122,056 | $0 | $775,716 | $637,892 |
| 2024 | $653,660 | $116,508 | $0 | $770,168 | $637,892 |
| 2023 | $592,715 | $105,200 | $0 | $697,915 | $255,157 |
| 2022 | $538,832 | $99,060 | $0 | $637,892 | $255,157 |
Deed and Sales History
| 1 | 10/26/2011 | QCD | Quit Claim Deed | NESSET, KATHY LYNN | NESSET, JEFFREY H | 0 | 0 | $0.00 | 116728 | 0 |
| 2 | 04/18/2008 | QCD | Quit Claim Deed | NESSET, JEFFERY H | NESSET, JEFFREY/OLGA | | | $0.00 | 111143 | 0 |
| 3 | 07/04/2003 | QCD | Quit Claim Deed | NESSET, KATHY LYNN | NESSET, JEFFREY H | 0 | 0 | $0.00 | 97858 | 0 |
| 4 | 07/04/2003 | QCD | Quit Claim Deed | NESSET, KATHY LYNN | NESSET, JEFFREY H | 0 | 0 | $0.00 | 105185 | 0 |
| 5 | 11/30/1995 | MH | Mobile Home | JUNCTION TRUST | NESSET, JEFFREY | 0 | 0 | $0.00 | 78328 | 0 |
Payout Agreement
| No payout information available.. |