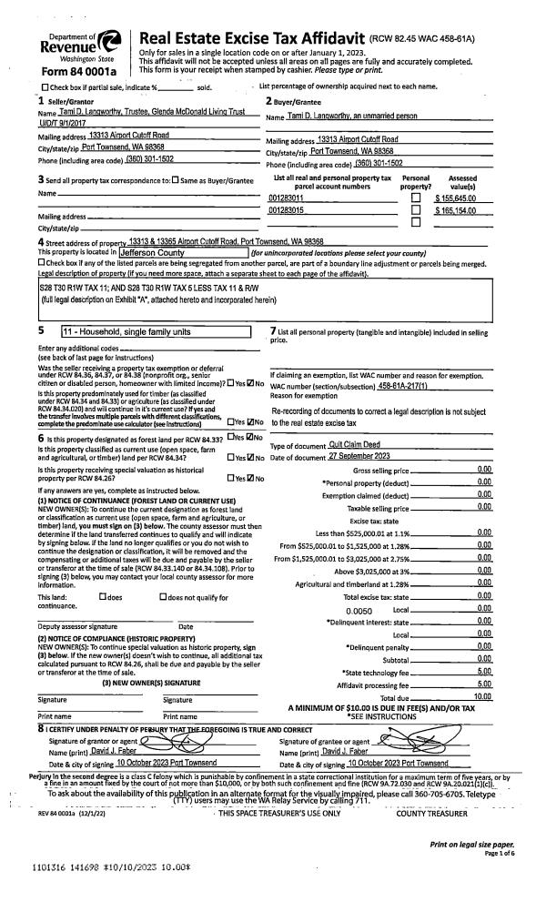
Property
Account |
| Property ID: | 11224 | Abbreviated Legal Description: | S28 T30 R1W TAX 11 |
| Parcel # / Geo ID: | 001283015 | Agent Code: | |
| Type: | Real | | |
| Tax Area: | 0111 - 1-50F1E1H2L1 | Land Use Code | 11 |
| Open Space: | N | DFL | N |
| Historic Property: | N | Remodel Property: | N |
| Multi-Family Redevelopment: | N | | |
| Township: | 30N | Section: | 28 |
| Range: | 1W |
Location |
| Address: | 13365 AIRPORT CUTOFF RD PORT TOWNSEND, WA 98368 | Mapsco: | 097/008 |
| Neighborhood: | S 27 & 28 T 30 R1W | Map ID: | |
| Neighborhood CD: | 5385 |
Owner |
| Name: | TAMI D LANGWORTHY | Owner ID: | 59913 |
| Mailing Address: | 13313 AIRPORT CUTOFF RD PORT TOWNSEND, WA 98368-9320 | % Ownership: | 100.0000000000% |
| | | Exemptions: | |
Pay Tax Due
Select the appropriate checkbox next to the year to be paid. Multiple years may be selected.
*Convenience Fee not included
Taxes and Assessment Details
Property Tax Information as of
03/10/2026
Click on "Statement Details" to expand or collapse a tax statement.
* Please enter a valid date ** Please enter a valid date *
Statement Details |
| 2026 | 1176 | STATE - STATE LEVY (SCHOOL) | $254.26 | $254.24 | $0.00 | $0.00 | $0.00 | $508.50 |
| 2026 | 1176 | COUNTY - COUNTY LEVIES (CE, DD, VET, MH) | $101.66 | $101.63 | $0.00 | $0.00 | $0.00 | $203.29 |
| 2026 | 1176 | CONSERVE - CONSERVATION FUTURES | $3.05 | $3.05 | $0.00 | $0.00 | $0.00 | $6.10 |
| 2026 | 1176 | COROADS - COUNTY ROADS (ROADS, DIV TO CE) | $82.00 | $82.00 | $0.00 | $0.00 | $0.00 | $164.00 |
| 2026 | 1176 | PORTPT - PORT DISTRICT | $41.05 | $41.05 | $0.00 | $0.00 | $0.00 | $82.10 |
| 2026 | 1176 | PUD1 - PUD #1 | $6.61 | $6.61 | $0.00 | $0.00 | $0.00 | $13.22 |
| 2026 | 1176 | LIB1 - LIBRARY DIST #1 | $31.73 | $31.72 | $0.00 | $0.00 | $0.00 | $63.45 |
| 2026 | 1176 | HD2 - HOSP DIST #2 | $5.93 | $5.93 | $0.00 | $0.00 | $0.00 | $11.86 |
| 2026 | 1176 | SD50 - SCHOOL DIST #50 | $201.43 | $201.41 | $0.00 | $0.00 | $0.00 | $402.84 |
| 2026 | 1176 | FD1 - FIRE DISTRICT #1 | $134.61 | $134.60 | $0.00 | $0.00 | $0.00 | $269.21 |
| 2026 | 1176 | EMS1 - FIRE DIST #1 EMS | $51.76 | $51.75 | $0.00 | $0.00 | $0.00 | $103.51 |
| 2026 | 1176 | FPLCA - DNR Landowner Contingency Assmt | $3.00 | $3.00 | $0.00 | $0.00 | $0.00 | $6.00 |
| 2026 | 1176 | JCCD - JC Conservation District | $2.80 | $2.80 | $0.00 | $0.00 | $0.00 | $5.60 |
| 2026 | 1176 | NWA - Noxious Weed Assessment | $4.10 | $4.10 | $0.00 | $0.00 | $0.00 | $8.20 |
| 2026 | 1176 | OSS - On Site Septic | $23.10 | $23.10 | $0.00 | $0.00 | $0.00 | $46.20 |
| 2026 | 1176 | WAT - Clean Water District | $13.00 | $13.00 | $0.00 | $0.00 | $0.00 | $26.00 |
| 2026 | 1176 | TOTAL: | $960.09 | $959.99 | $0.00 | $0.00 | $0.00 | $1920.08 |
|
| 2026 | 1176 | $960.09 | $959.99 | $0.00 | $0.00 | $0.00 | $1920.08 |
Statement Details |
| 2025 | 1181 | STATE - STATE LEVY (SCHOOL) | $257.46 | $257.44 | $0.00 | $0.00 | $514.90 | $0.00 |
| 2025 | 1181 | COUNTY - COUNTY LEVIES (CE, DD, VET, MH) | $101.26 | $101.23 | $0.00 | $0.00 | $202.49 | $0.00 |
| 2025 | 1181 | CONSERVE - CONSERVATION FUTURES | $3.04 | $3.03 | $0.00 | $0.00 | $6.07 | $0.00 |
| 2025 | 1181 | COROADS - COUNTY ROADS (ROADS, DIV TO CE) | $81.11 | $81.11 | $0.00 | $0.00 | $162.22 | $0.00 |
| 2025 | 1181 | PORTPT - PORT DISTRICT | $41.31 | $41.31 | $0.00 | $0.00 | $82.62 | $0.00 |
| 2025 | 1181 | PUD1 - PUD #1 | $6.63 | $6.62 | $0.00 | $0.00 | $13.25 | $0.00 |
| 2025 | 1181 | LIB1 - LIBRARY DIST #1 | $31.38 | $31.38 | $0.00 | $0.00 | $62.76 | $0.00 |
| 2025 | 1181 | HD2 - HOSP DIST #2 | $5.91 | $5.90 | $0.00 | $0.00 | $11.81 | $0.00 |
| 2025 | 1181 | SD50 - SCHOOL DIST #50 | $188.16 | $188.15 | $0.00 | $0.00 | $376.31 | $0.00 |
| 2025 | 1181 | FD1 - FIRE DISTRICT #1 | $133.60 | $133.60 | $0.00 | $0.00 | $267.20 | $0.00 |
| 2025 | 1181 | EMS1 - FIRE DIST #1 EMS | $51.39 | $51.38 | $0.00 | $0.00 | $102.77 | $0.00 |
| 2025 | 1181 | FPLCA - DNR Landowner Contingency Assmt | $3.00 | $3.00 | $0.00 | $0.00 | $6.00 | $0.00 |
| 2025 | 1181 | JCCD - JC Conservation District | $2.80 | $2.80 | $0.00 | $0.00 | $5.60 | $0.00 |
| 2025 | 1181 | NWA - Noxious Weed Assessment | $2.90 | $2.90 | $0.00 | $0.00 | $5.80 | $0.00 |
| 2025 | 1181 | OSS - On Site Septic | $21.50 | $21.50 | $0.00 | $0.00 | $43.00 | $0.00 |
| 2025 | 1181 | WAT - Clean Water District | $13.00 | $13.00 | $0.00 | $0.00 | $26.00 | $0.00 |
| 2025 | 1181 | TOTAL: | $944.45 | $944.35 | $0.00 | $0.00 | $1888.80 | $0.00 |
|
| 2025 | 1181 | $944.45 | $944.35 | $0.00 | $0.00 | $1888.80 | $0.00 |
Statement Details |
| 2024 | 1183 | STATE - STATE LEVY (SCHOOL) | $207.02 | $207.00 | $0.00 | $0.00 | $414.02 | $0.00 |
| 2024 | 1183 | COUNTY - COUNTY LEVIES (CE, DD, VET, MH) | $88.59 | $88.57 | $0.00 | $0.00 | $177.16 | $0.00 |
| 2024 | 1183 | CONSERVE - CONSERVATION FUTURES | $2.66 | $2.65 | $0.00 | $0.00 | $5.31 | $0.00 |
| 2024 | 1183 | COROADS - COUNTY ROADS (ROADS, DIV TO CE) | $71.28 | $71.28 | $0.00 | $0.00 | $142.56 | $0.00 |
| 2024 | 1183 | PORTPT - PORT DISTRICT | $36.59 | $36.59 | $0.00 | $0.00 | $73.18 | $0.00 |
| 2024 | 1183 | PUD1 - PUD #1 | $5.82 | $5.82 | $0.00 | $0.00 | $11.64 | $0.00 |
| 2024 | 1183 | LIB1 - LIBRARY DIST #1 | $27.58 | $27.58 | $0.00 | $0.00 | $55.16 | $0.00 |
| 2024 | 1183 | HD2 - HOSP DIST #2 | $5.17 | $5.17 | $0.00 | $0.00 | $10.34 | $0.00 |
| 2024 | 1183 | SD50 - SCHOOL DIST #50 | $167.49 | $167.48 | $0.00 | $0.00 | $334.97 | $0.00 |
| 2024 | 1183 | FD1 - FIRE DISTRICT #1 | $117.13 | $117.13 | $0.00 | $0.00 | $234.26 | $0.00 |
| 2024 | 1183 | EMS1 - FIRE DIST #1 EMS | $44.74 | $44.74 | $0.00 | $0.00 | $89.48 | $0.00 |
| 2024 | 1183 | FPLCA - DNR Landowner Contingency Assmt | $3.00 | $3.00 | $0.00 | $0.00 | $6.00 | $0.00 |
| 2024 | 1183 | JCCD - JC Conservation District | $2.80 | $2.80 | $0.00 | $0.00 | $5.60 | $0.00 |
| 2024 | 1183 | NWA - Noxious Weed Assessment | $2.90 | $2.90 | $0.00 | $0.00 | $5.80 | $0.00 |
| 2024 | 1183 | OSS - On Site Septic | $21.00 | $21.00 | $0.00 | $0.00 | $42.00 | $0.00 |
| 2024 | 1183 | WAT - Clean Water District | $12.50 | $12.50 | $0.00 | $0.00 | $25.00 | $0.00 |
| 2024 | 1183 | TOTAL: | $816.27 | $816.21 | $0.00 | $0.00 | $1632.48 | $0.00 |
|
| 2024 | 1183 | $816.27 | $816.21 | $0.00 | $0.00 | $1632.48 | $0.00 |
Statement Details |
| 2023 | 1183 | STATE - STATE LEVY (SCHOOL) | $194.41 | $194.39 | $0.00 | $0.00 | $388.80 | $0.00 |
| 2023 | 1183 | COUNTY - COUNTY LEVIES (CE, DD, VET, MH) | $84.83 | $84.83 | $0.00 | $0.00 | $169.66 | $0.00 |
| 2023 | 1183 | CONSERVE - CONSERVATION FUTURES | $2.55 | $2.54 | $0.00 | $0.00 | $5.09 | $0.00 |
| 2023 | 1183 | COROADS - COUNTY ROADS (ROADS, DIV TO CE) | $68.64 | $68.62 | $0.00 | $0.00 | $137.26 | $0.00 |
| 2023 | 1183 | PORTPT - PORT DISTRICT | $35.74 | $35.73 | $0.00 | $0.00 | $71.47 | $0.00 |
| 2023 | 1183 | PUD1 - PUD #1 | $5.63 | $5.62 | $0.00 | $0.00 | $11.25 | $0.00 |
| 2023 | 1183 | LIB1 - LIBRARY DIST #1 | $26.56 | $26.55 | $0.00 | $0.00 | $53.11 | $0.00 |
| 2023 | 1183 | HD2 - HOSP DIST #2 | $4.95 | $4.95 | $0.00 | $0.00 | $9.90 | $0.00 |
| 2023 | 1183 | SD50 - SCHOOL DIST #50 | $154.27 | $154.25 | $0.00 | $0.00 | $308.52 | $0.00 |
| 2023 | 1183 | FD1 - FIRE DISTRICT #1 | $69.89 | $69.88 | $0.00 | $0.00 | $139.77 | $0.00 |
| 2023 | 1183 | EMS1 - FIRE DIST #1 EMS | $29.73 | $29.72 | $0.00 | $0.00 | $59.45 | $0.00 |
| 2023 | 1183 | FP - DNR Forest Fire Protection Assmt | $8.50 | $8.50 | $0.00 | $0.00 | $17.00 | $0.00 |
| 2023 | 1183 | FPLCA - DNR Landowner Contingency Assmt | $3.00 | $3.00 | $0.00 | $0.00 | $6.00 | $0.00 |
| 2023 | 1183 | JCCD - JC Conservation District | $2.80 | $2.80 | $0.00 | $0.00 | $5.60 | $0.00 |
| 2023 | 1183 | NWA - Noxious Weed Assessment | $2.90 | $2.90 | $0.00 | $0.00 | $5.80 | $0.00 |
| 2023 | 1183 | OSS - On Site Septic | $20.50 | $20.50 | $0.00 | $0.00 | $41.00 | $0.00 |
| 2023 | 1183 | WAT - Clean Water District | $12.00 | $12.00 | $0.00 | $0.00 | $24.00 | $0.00 |
| 2023 | 1183 | FP ADMIN - FP ADMIN | $0.50 | $0.00 | $0.00 | $0.00 | $0.50 | $0.00 |
| 2023 | 1183 | TOTAL: | $727.40 | $726.78 | $0.00 | $0.00 | $1454.18 | $0.00 |
|
| 2023 | 1183 | $727.40 | $726.78 | $0.00 | $0.00 | $1454.18 | $0.00 |
Values
| (+) Improvement Homesite Value: | + | $0 | |
| (+) Improvement Non-Homesite Value: | + | $79,110 | |
| (+) Land Homesite Value: | + | $0 | |
| (+) Land Non-Homesite Value: | + | $142,065 | |
| (+) Curr Use (HS): | + | $0 | $0 |
| (+) Curr Use (NHS): | + | $0 | $0 |
| | | -------------------------- | |
| (=) Market Value: | = | $221,175 | |
| (–) Productivity Loss: | – | $0 | |
| | | -------------------------- | |
| (=) Subtotal: | = | $221,175 | |
| (+) Senior Appraised Value: | + | $0 | |
| (+) Non-Senior Appraised Value: | + | $221,175 | |
| | | -------------------------- | |
| (=) Total Appraised Value: | = | $221,175 | |
| (–) Senior Exemption Loss: | – | $0 | |
| (–) Exemption Loss: | – | $0 | |
| | | -------------------------- | |
| (=) Taxable Value: | = | $221,175 | |
Taxing Jurisdiction
| Owner: | TAMI D LANGWORTHY | | |
| % Ownership: | 100.0000000000% | | |
| Total Value: | $221,175 | | |
| Tax Area: | 0111 - 1-50F1E1H2L1 |
| CE | COUNTY CURRENT EXPENSE | 0.9034619479 | $221,175 | $221,175 | $199.82 | | |
| CNTYDD | DEVELOPMENTAL DISABILITIES | 0.0052121823 | $221,175 | $221,175 | $1.15 | | |
| CNTYVET | VETERANS RELIEF | 0.0052777810 | $221,175 | $221,175 | $1.17 | | |
| MENTAL | MENTAL HEALTH | 0.0052121823 | $221,175 | $221,175 | $1.15 | | |
| ROADS | COUNTY ROADS | 0.7415066410 | $221,175 | $221,175 | $164.00 | | |
| ROADSCU | COUNTY ROADS TO CUR EXP | 0.0000000000 | $221,175 | $221,175 | $0.00 | | |
| HOSP2CASH | HOSP DIST #2 GENERAL | 0.0536075306 | $221,175 | $221,175 | $11.86 | | |
| SCH50BOND | SCHOOL DIST #50 BOND 2016 | 0.5377451389 | $221,175 | $221,175 | $118.94 | | |
| SCH50CP | SCHOOL DIST #50 CAP PROJ | 0.4573475088 | $221,175 | $221,175 | $101.15 | | |
| SCH50MO | SCHOOL DIST #50 EP & O | 0.8262822886 | $221,175 | $221,175 | $182.75 | | |
| CONSERVE | CONSERVATION FUTURES | 0.0275621078 | $221,175 | $221,175 | $6.10 | | |
| EMS1 | FIRE DIST #1 EMS | 0.4679948282 | $221,175 | $221,175 | $103.51 | | |
| FD1 | FIRE DIST #1 GENERAL | 1.2171942929 | $221,175 | $221,175 | $269.21 | | |
| LIB1 | LIBRARY DIST #1 GENERAL | 0.2868827388 | $221,175 | $221,175 | $63.45 | | |
| PORTPT | PORT OF PT GENERAL | 0.1134941229 | $221,175 | $221,175 | $25.10 | | |
| PORTPTIDD | PORT OF PT IDD 2019 | 0.2577346692 | $221,175 | $221,175 | $57.00 | | |
| PUD1 | PUD #1 GENERAL | 0.0597888892 | $221,175 | $221,175 | $13.22 | | |
| STATE | STATE SCHOOL PART 1 | 1.4940692947 | $221,175 | $221,175 | $330.45 | | |
| STATE2 | STATE SCHOOL PART 2 | 0.8050170049 | $221,175 | $221,175 | $178.05 | | |
| | Total Tax Rate: | 8.2653911500 | | | | | |
| | | | | Taxes w/Current Exemptions: | $1,828.08 | | |
| | | | | Taxes w/o Exemptions: | $1,828.08 | | |
Improvement / Building
| Improvement #1: | Residential Bldg | State Code: | 11 | 864.0 sqft | Value: | $79,110 |
| Bathrooms (#): | 1 (FULL) | Bedrooms (#): | 2 | | Exterior Wall: | PL/T1 | Fireplace: | WD ST-GOOD | | Floor Construction: | FRAME | Foundation: | PO&BL | | Heating/Cooling: | WD/NO | Roof Cover: | COMP |
|
| | Type | Description | Class CD | Sub Class CD | Year Built | Area |
| | MA | Main Area | 2+ | 1S | 1970 | 864.0 |
| | HWPOR | House Wood Porch | 1 | * | 1970 | 114.0 |
| | HDECK | House Deck | 1 | * | 1970 | 220.0 |
| | CARPT | Carport (Table Not Dep) | 2 | * | 1970 | 864.0 |
| | OTHER | Other | * | * | 1970 | 0.0 |
| | HLOFT | House Loft | 2 | * | 1970 | 360.0 |
| | SHED | Shed (Table Not Dep) | 2 | * | 1970 | 0.0 |
Sketch
Property Image
Land
| 1 | 5385-1385S | | 1.0000 | 43560.00 | 0.00 | 0.00 | 1.00 | $86,625 | $0 |
| 2 | 1575A | | 4.8000 | 209088.00 | 0.00 | 0.00 | 0.00 | $55,440 | $0 |
Roll Value History
| 2026 | N/A | N/A | N/A | N/A | N/A |
| 2025 | $79,110 | $142,065 | $0 | $221,175 | $221,175 |
| 2024 | $79,110 | $135,608 | $0 | $214,718 | $214,718 |
| 2023 | $57,204 | $121,750 | $0 | $178,954 | $178,954 |
| 2022 | $52,004 | $113,150 | $0 | $165,154 | $165,154 |
Deed and Sales History
| 1 | 09/27/2023 | QCD | Quit Claim Deed | | TAMI D LANGWORTHY | | | | 141698 | |
| 2 | 09/27/2023 | QCD | Quit Claim Deed | GLENDA MCDONALD LIVING TRUST | TAMI D LANGWORTHY | | | | 141623 | |
| 3 | 09/01/2017 | QCD | Quit Claim Deed | GLENDA MCDONALD | GLENDA MCDONALD LIVING TRUST | | | | 141697 | SEE #141698 |
| 4 | 09/01/2017 | QCD | Quit Claim Deed | GLENDA MCDONALD | GLENDA MCDONALD LIVING TRUST | | | | 130152 | SEE #141698 |
Payout Agreement
| No payout information available.. |