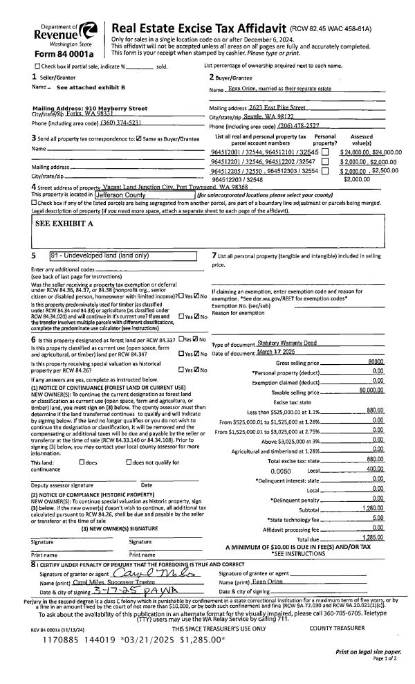
Property
Account |
| Property ID: | 11245 | Abbreviated Legal Description: | S28 T30N R1W COUNTY AIRPORT IMPS ONLY - 1 BAY HANGER #401"N" |
| Parcel # / Geo ID: | 001284013 | Agent Code: | |
| Type: | Real | | |
| Tax Area: | 0111 - 1-50F1E1H2L1 | Land Use Code | 43 |
| Open Space: | N | DFL | N |
| Historic Property: | N | Remodel Property: | N |
| Multi-Family Redevelopment: | N | | |
| Township: | 30N | Section: | 28 |
| Range: | 1W |
Location |
| Address: | | Mapsco: | 097/041 |
| Neighborhood: | AIRPORT CUTOFF COMMERCIAL AREA (INC AIRPORT) | Map ID: | |
| Neighborhood CD: | 5385C |
Owner |
| Name: | KIM L SELLICK | Owner ID: | 112260 |
| Mailing Address: | 28516 EINAR CARLSON LN NE KINGSTON, WA 98346-9654 | % Ownership: | 100.0000000000% |
| | | Exemptions: | |
Pay Tax Due
Select the appropriate checkbox next to the year to be paid. Multiple years may be selected.
*Convenience Fee not included
Taxes and Assessment Details
Property Tax Information as of
03/10/2026
Click on "Statement Details" to expand or collapse a tax statement.
* Please enter a valid date ** Please enter a valid date *
Statement Details |
| 2026 | 1197 | STATE - STATE LEVY (SCHOOL) | $23.22 | $23.20 | $0.00 | $0.00 | $0.00 | $46.42 |
| 2026 | 1197 | COUNTY - COUNTY LEVIES (CE, DD, VET, MH) | $9.30 | $9.27 | $0.00 | $0.00 | $0.00 | $18.57 |
| 2026 | 1197 | CONSERVE - CONSERVATION FUTURES | $0.28 | $0.28 | $0.00 | $0.00 | $0.00 | $0.56 |
| 2026 | 1197 | COROADS - COUNTY ROADS (ROADS, DIV TO CE) | $7.49 | $7.48 | $0.00 | $0.00 | $0.00 | $14.97 |
| 2026 | 1197 | PORTPT - PORT DISTRICT | $3.75 | $3.74 | $0.00 | $0.00 | $0.00 | $7.49 |
| 2026 | 1197 | PUD1 - PUD #1 | $0.61 | $0.60 | $0.00 | $0.00 | $0.00 | $1.21 |
| 2026 | 1197 | LIB1 - LIBRARY DIST #1 | $2.90 | $2.89 | $0.00 | $0.00 | $0.00 | $5.79 |
| 2026 | 1197 | HD2 - HOSP DIST #2 | $0.54 | $0.54 | $0.00 | $0.00 | $0.00 | $1.08 |
| 2026 | 1197 | SD50 - SCHOOL DIST #50 | $18.39 | $18.38 | $0.00 | $0.00 | $0.00 | $36.77 |
| 2026 | 1197 | FD1 - FIRE DISTRICT #1 | $12.29 | $12.29 | $0.00 | $0.00 | $0.00 | $24.58 |
| 2026 | 1197 | EMS1 - FIRE DIST #1 EMS | $4.73 | $4.72 | $0.00 | $0.00 | $0.00 | $9.45 |
| 2026 | 1197 | WAT - Clean Water District | $13.00 | $13.00 | $0.00 | $0.00 | $0.00 | $26.00 |
| 2026 | 1197 | TOTAL: | $96.50 | $96.39 | $0.00 | $0.00 | $0.00 | $192.89 |
|
| 2026 | 1197 | $96.50 | $96.39 | $0.00 | $0.00 | $0.00 | $192.89 |
Statement Details |
| 2025 | 1202 | STATE - STATE LEVY (SCHOOL) | $11.89 | $11.89 | $0.00 | $0.00 | $23.78 | $0.00 |
| 2025 | 1202 | COUNTY - COUNTY LEVIES (CE, DD, VET, MH) | $4.69 | $4.65 | $0.00 | $0.00 | $9.34 | $0.00 |
| 2025 | 1202 | CONSERVE - CONSERVATION FUTURES | $0.14 | $0.14 | $0.00 | $0.00 | $0.28 | $0.00 |
| 2025 | 1202 | COROADS - COUNTY ROADS (ROADS, DIV TO CE) | $3.75 | $3.75 | $0.00 | $0.00 | $7.50 | $0.00 |
| 2025 | 1202 | PORTPT - PORT DISTRICT | $1.91 | $1.90 | $0.00 | $0.00 | $3.81 | $0.00 |
| 2025 | 1202 | PUD1 - PUD #1 | $0.31 | $0.30 | $0.00 | $0.00 | $0.61 | $0.00 |
| 2025 | 1202 | LIB1 - LIBRARY DIST #1 | $1.45 | $1.45 | $0.00 | $0.00 | $2.90 | $0.00 |
| 2025 | 1202 | HD2 - HOSP DIST #2 | $0.28 | $0.27 | $0.00 | $0.00 | $0.55 | $0.00 |
| 2025 | 1202 | SD50 - SCHOOL DIST #50 | $8.70 | $8.68 | $0.00 | $0.00 | $17.38 | $0.00 |
| 2025 | 1202 | FD1 - FIRE DISTRICT #1 | $6.17 | $6.17 | $0.00 | $0.00 | $12.34 | $0.00 |
| 2025 | 1202 | EMS1 - FIRE DIST #1 EMS | $2.38 | $2.37 | $0.00 | $0.00 | $4.75 | $0.00 |
| 2025 | 1202 | WAT - Clean Water District | $13.00 | $13.00 | $0.00 | $0.00 | $26.00 | $0.00 |
| 2025 | 1202 | TOTAL: | $54.67 | $54.57 | $0.00 | $0.00 | $109.24 | $0.00 |
|
| 2025 | 1202 | $54.67 | $54.57 | $0.00 | $0.00 | $109.24 | $0.00 |
Statement Details |
| 2024 | 1204 | STATE - STATE LEVY (SCHOOL) | $13.20 | $13.18 | $0.00 | $0.00 | $26.38 | $0.00 |
| 2024 | 1204 | COUNTY - COUNTY LEVIES (CE, DD, VET, MH) | $5.64 | $5.64 | $0.00 | $0.00 | $11.28 | $0.00 |
| 2024 | 1204 | CONSERVE - CONSERVATION FUTURES | $0.17 | $0.17 | $0.00 | $0.00 | $0.34 | $0.00 |
| 2024 | 1204 | COROADS - COUNTY ROADS (ROADS, DIV TO CE) | $4.55 | $4.53 | $0.00 | $0.00 | $9.08 | $0.00 |
| 2024 | 1204 | PORTPT - PORT DISTRICT | $2.34 | $2.32 | $0.00 | $0.00 | $4.66 | $0.00 |
| 2024 | 1204 | PUD1 - PUD #1 | $0.37 | $0.37 | $0.00 | $0.00 | $0.74 | $0.00 |
| 2024 | 1204 | LIB1 - LIBRARY DIST #1 | $1.76 | $1.75 | $0.00 | $0.00 | $3.51 | $0.00 |
| 2024 | 1204 | HD2 - HOSP DIST #2 | $0.33 | $0.33 | $0.00 | $0.00 | $0.66 | $0.00 |
| 2024 | 1204 | SD50 - SCHOOL DIST #50 | $10.67 | $10.67 | $0.00 | $0.00 | $21.34 | $0.00 |
| 2024 | 1204 | FD1 - FIRE DISTRICT #1 | $7.46 | $7.46 | $0.00 | $0.00 | $14.92 | $0.00 |
| 2024 | 1204 | EMS1 - FIRE DIST #1 EMS | $2.85 | $2.85 | $0.00 | $0.00 | $5.70 | $0.00 |
| 2024 | 1204 | WAT - Clean Water District | $12.50 | $12.50 | $0.00 | $0.00 | $25.00 | $0.00 |
| 2024 | 1204 | TOTAL: | $61.84 | $61.77 | $0.00 | $0.00 | $123.61 | $0.00 |
|
| 2024 | 1204 | $61.84 | $61.77 | $0.00 | $0.00 | $123.61 | $0.00 |
Statement Details |
| 2023 | 1204 | STATE - STATE LEVY (SCHOOL) | $12.16 | $12.15 | $0.00 | $0.00 | $24.31 | $0.00 |
| 2023 | 1204 | COUNTY - COUNTY LEVIES (CE, DD, VET, MH) | $5.31 | $5.30 | $0.00 | $0.00 | $10.61 | $0.00 |
| 2023 | 1204 | CONSERVE - CONSERVATION FUTURES | $0.16 | $0.16 | $0.00 | $0.00 | $0.32 | $0.00 |
| 2023 | 1204 | COROADS - COUNTY ROADS (ROADS, DIV TO CE) | $4.30 | $4.29 | $0.00 | $0.00 | $8.59 | $0.00 |
| 2023 | 1204 | PORTPT - PORT DISTRICT | $2.24 | $2.23 | $0.00 | $0.00 | $4.47 | $0.00 |
| 2023 | 1204 | PUD1 - PUD #1 | $0.35 | $0.35 | $0.00 | $0.00 | $0.70 | $0.00 |
| 2023 | 1204 | LIB1 - LIBRARY DIST #1 | $1.66 | $1.66 | $0.00 | $0.00 | $3.32 | $0.00 |
| 2023 | 1204 | HD2 - HOSP DIST #2 | $0.32 | $0.30 | $0.00 | $0.00 | $0.62 | $0.00 |
| 2023 | 1204 | SD50 - SCHOOL DIST #50 | $9.65 | $9.64 | $0.00 | $0.00 | $19.29 | $0.00 |
| 2023 | 1204 | FD1 - FIRE DISTRICT #1 | $4.37 | $4.37 | $0.00 | $0.00 | $8.74 | $0.00 |
| 2023 | 1204 | EMS1 - FIRE DIST #1 EMS | $1.86 | $1.86 | $0.00 | $0.00 | $3.72 | $0.00 |
| 2023 | 1204 | WAT - Clean Water District | $12.00 | $12.00 | $0.00 | $0.00 | $24.00 | $0.00 |
| 2023 | 1204 | TOTAL: | $54.38 | $54.31 | $0.00 | $0.00 | $108.69 | $0.00 |
|
| 2023 | 1204 | $54.38 | $54.31 | $0.00 | $0.00 | $108.69 | $0.00 |
Values
| (+) Improvement Homesite Value: | + | $0 | |
| (+) Improvement Non-Homesite Value: | + | $20,190 | |
| (+) Land Homesite Value: | + | $0 | |
| (+) Land Non-Homesite Value: | + | $0 | |
| (+) Curr Use (HS): | + | $0 | $0 |
| (+) Curr Use (NHS): | + | $0 | $0 |
| | | -------------------------- | |
| (=) Market Value: | = | $20,190 | |
| (–) Productivity Loss: | – | $0 | |
| | | -------------------------- | |
| (=) Subtotal: | = | $20,190 | |
| (+) Senior Appraised Value: | + | $0 | |
| (+) Non-Senior Appraised Value: | + | $20,190 | |
| | | -------------------------- | |
| (=) Total Appraised Value: | = | $20,190 | |
| (–) Senior Exemption Loss: | – | $0 | |
| (–) Exemption Loss: | – | $0 | |
| | | -------------------------- | |
| (=) Taxable Value: | = | $20,190 | |
Taxing Jurisdiction
| Owner: | KIM L SELLICK | | |
| % Ownership: | 100.0000000000% | | |
| Total Value: | $20,190 | | |
| Tax Area: | 0111 - 1-50F1E1H2L1 |
| CE | COUNTY CURRENT EXPENSE | 0.9034619479 | $20,190 | $20,190 | $18.24 | | |
| CNTYDD | DEVELOPMENTAL DISABILITIES | 0.0052121823 | $20,190 | $20,190 | $0.11 | | |
| CNTYVET | VETERANS RELIEF | 0.0052777810 | $20,190 | $20,190 | $0.11 | | |
| MENTAL | MENTAL HEALTH | 0.0052121823 | $20,190 | $20,190 | $0.11 | | |
| ROADS | COUNTY ROADS | 0.7415066410 | $20,190 | $20,190 | $14.97 | | |
| ROADSCU | COUNTY ROADS TO CUR EXP | 0.0000000000 | $20,190 | $20,190 | $0.00 | | |
| HOSP2CASH | HOSP DIST #2 GENERAL | 0.0536075306 | $20,190 | $20,190 | $1.08 | | |
| SCH50BOND | SCHOOL DIST #50 BOND 2016 | 0.5377451389 | $20,190 | $20,190 | $10.86 | | |
| SCH50CP | SCHOOL DIST #50 CAP PROJ | 0.4573475088 | $20,190 | $20,190 | $9.23 | | |
| SCH50MO | SCHOOL DIST #50 EP & O | 0.8262822886 | $20,190 | $20,190 | $16.68 | | |
| CONSERVE | CONSERVATION FUTURES | 0.0275621078 | $20,190 | $20,190 | $0.56 | | |
| EMS1 | FIRE DIST #1 EMS | 0.4679948282 | $20,190 | $20,190 | $9.45 | | |
| FD1 | FIRE DIST #1 GENERAL | 1.2171942929 | $20,190 | $20,190 | $24.58 | | |
| LIB1 | LIBRARY DIST #1 GENERAL | 0.2868827388 | $20,190 | $20,190 | $5.79 | | |
| PORTPT | PORT OF PT GENERAL | 0.1134941229 | $20,190 | $20,190 | $2.29 | | |
| PORTPTIDD | PORT OF PT IDD 2019 | 0.2577346692 | $20,190 | $20,190 | $5.20 | | |
| PUD1 | PUD #1 GENERAL | 0.0597888892 | $20,190 | $20,190 | $1.21 | | |
| STATE | STATE SCHOOL PART 1 | 1.4940692947 | $20,190 | $20,190 | $30.17 | | |
| STATE2 | STATE SCHOOL PART 2 | 0.8050170049 | $20,190 | $20,190 | $16.25 | | |
| | Total Tax Rate: | 8.2653911500 | | | | | |
| | | | | Taxes w/Current Exemptions: | $166.89 | | |
| | | | | Taxes w/o Exemptions: | $166.89 | | |
Improvement / Building
| Improvement #1: | Commercial/Industrial/Government Bldg | State Code: | 43 | 673.0 sqft | Value: | $20,190 |
| Exterior Wall: | METAL | Foundation: | 01BASE | | Interior Finish: | UNFIN | Roof Cover: | METAL |
|
Sketch
Property Image
Land
No land segments exist for this property.
Roll Value History
| 2026 | N/A | N/A | N/A | N/A | N/A |
| 2025 | $20,190 | $0 | $0 | $20,190 | $20,190 |
| 2024 | $9,917 | $0 | $0 | $9,917 | $9,917 |
| 2023 | $11,401 | $0 | $0 | $11,401 | $11,401 |
| 2022 | $10,327 | $0 | $0 | $10,327 | $10,327 |
Deed and Sales History
| 1 | 03/18/2025 | SWD | Statutory Warranty Deed | DAVID S PRATT | KIM L SELLICK | | | $20,000.00 | 144006 | |
| 2 | 01/10/2018 | SWD | Statutory Warranty Deed | CHRIS B FRANSON | DAVID S PRATT | | | $10,000.00 | 129367 | |
Payout Agreement
| No payout information available.. |