Property
Account |
| Property ID: | 11333 | Abbreviated Legal Description: | S29 T30 R1W TAX 28 |
| Parcel # / Geo ID: | 001294010 | Agent Code: | |
| Type: | Real | | |
| Tax Area: | 0111 - 1-50F1E1H2L1 | Land Use Code | 11 |
| Open Space: | N | DFL | N |
| Historic Property: | N | Remodel Property: | N |
| Multi-Family Redevelopment: | N | | |
| Township: | 30N | Section: | 29 |
| Range: | 1W |
Location |
| Address: | 691 BLACK BEAR RD PORT TOWNSEND, WA 98368 | Mapsco: | 099/006 |
| Neighborhood: | S29 T30 R1W DEER RIDGE, DOE RUN, SNAGSTEAD WAY | Map ID: | |
| Neighborhood CD: | 5370 |
Owner |
| Name: | ERIC T PETERSON | Owner ID: | 96756 |
| Mailing Address: | 691 BLACK BEAR RD PORT TOWNSEND, WA 98368-9733 | % Ownership: | 100.0000000000% |
| | | Exemptions: | |
Pay Tax Due
Select the appropriate checkbox next to the year to be paid. Multiple years may be selected.
*Convenience Fee not included
Taxes and Assessment Details
Property Tax Information as of
03/10/2026
Click on "Statement Details" to expand or collapse a tax statement.
* Please enter a valid date ** Please enter a valid date *
Statement Details |
| 2026 | 1282 | STATE - STATE LEVY (SCHOOL) | $734.97 | $734.96 | $0.00 | $0.00 | $0.00 | $1469.93 |
| 2026 | 1282 | COUNTY - COUNTY LEVIES (CE, DD, VET, MH) | $293.85 | $293.81 | $0.00 | $0.00 | $0.00 | $587.66 |
| 2026 | 1282 | CONSERVE - CONSERVATION FUTURES | $8.81 | $8.81 | $0.00 | $0.00 | $0.00 | $17.62 |
| 2026 | 1282 | COROADS - COUNTY ROADS (ROADS, DIV TO CE) | $237.05 | $237.04 | $0.00 | $0.00 | $0.00 | $474.09 |
| 2026 | 1282 | PORTPT - PORT DISTRICT | $118.67 | $118.67 | $0.00 | $0.00 | $0.00 | $237.34 |
| 2026 | 1282 | PUD1 - PUD #1 | $19.12 | $19.11 | $0.00 | $0.00 | $0.00 | $38.23 |
| 2026 | 1282 | LIB1 - LIBRARY DIST #1 | $91.71 | $91.71 | $0.00 | $0.00 | $0.00 | $183.42 |
| 2026 | 1282 | HD2 - HOSP DIST #2 | $17.14 | $17.13 | $0.00 | $0.00 | $0.00 | $34.27 |
| 2026 | 1282 | SD50 - SCHOOL DIST #50 | $582.27 | $582.24 | $0.00 | $0.00 | $0.00 | $1164.51 |
| 2026 | 1282 | FD1 - FIRE DISTRICT #1 | $389.11 | $389.11 | $0.00 | $0.00 | $0.00 | $778.22 |
| 2026 | 1282 | EMS1 - FIRE DIST #1 EMS | $149.61 | $149.61 | $0.00 | $0.00 | $0.00 | $299.22 |
| 2026 | 1282 | FPLCA - DNR Landowner Contingency Assmt | $3.00 | $3.00 | $0.00 | $0.00 | $0.00 | $6.00 |
| 2026 | 1282 | JCCD - JC Conservation District | $2.75 | $2.75 | $0.00 | $0.00 | $0.00 | $5.50 |
| 2026 | 1282 | NWA - Noxious Weed Assessment | $3.88 | $3.87 | $0.00 | $0.00 | $0.00 | $7.75 |
| 2026 | 1282 | OSS - On Site Septic | $23.10 | $23.10 | $0.00 | $0.00 | $0.00 | $46.20 |
| 2026 | 1282 | WAT - Clean Water District | $13.00 | $13.00 | $0.00 | $0.00 | $0.00 | $26.00 |
| 2026 | 1282 | TOTAL: | $2688.04 | $2687.92 | $0.00 | $0.00 | $0.00 | $5375.96 |
|
| 2026 | 1282 | $2688.04 | $2687.92 | $0.00 | $0.00 | $0.00 | $5375.96 |
Statement Details |
| 2025 | 1287 | STATE - STATE LEVY (SCHOOL) | $732.76 | $732.74 | $0.00 | $0.00 | $1465.50 | $0.00 |
| 2025 | 1287 | COUNTY - COUNTY LEVIES (CE, DD, VET, MH) | $288.15 | $288.15 | $0.00 | $0.00 | $576.30 | $0.00 |
| 2025 | 1287 | CONSERVE - CONSERVATION FUTURES | $8.64 | $8.64 | $0.00 | $0.00 | $17.28 | $0.00 |
| 2025 | 1287 | COROADS - COUNTY ROADS (ROADS, DIV TO CE) | $230.86 | $230.85 | $0.00 | $0.00 | $461.71 | $0.00 |
| 2025 | 1287 | PORTPT - PORT DISTRICT | $117.58 | $117.58 | $0.00 | $0.00 | $235.16 | $0.00 |
| 2025 | 1287 | PUD1 - PUD #1 | $18.86 | $18.85 | $0.00 | $0.00 | $37.71 | $0.00 |
| 2025 | 1287 | LIB1 - LIBRARY DIST #1 | $89.32 | $89.31 | $0.00 | $0.00 | $178.63 | $0.00 |
| 2025 | 1287 | HD2 - HOSP DIST #2 | $16.81 | $16.81 | $0.00 | $0.00 | $33.62 | $0.00 |
| 2025 | 1287 | SD50 - SCHOOL DIST #50 | $535.52 | $535.52 | $0.00 | $0.00 | $1071.04 | $0.00 |
| 2025 | 1287 | FD1 - FIRE DISTRICT #1 | $380.25 | $380.24 | $0.00 | $0.00 | $760.49 | $0.00 |
| 2025 | 1287 | EMS1 - FIRE DIST #1 EMS | $146.25 | $146.25 | $0.00 | $0.00 | $292.50 | $0.00 |
| 2025 | 1287 | FPLCA - DNR Landowner Contingency Assmt | $3.00 | $3.00 | $0.00 | $0.00 | $6.00 | $0.00 |
| 2025 | 1287 | JCCD - JC Conservation District | $2.75 | $2.75 | $0.00 | $0.00 | $5.50 | $0.00 |
| 2025 | 1287 | NWA - Noxious Weed Assessment | $2.75 | $2.75 | $0.00 | $0.00 | $5.50 | $0.00 |
| 2025 | 1287 | OSS - On Site Septic | $21.50 | $21.50 | $0.00 | $0.00 | $43.00 | $0.00 |
| 2025 | 1287 | WAT - Clean Water District | $13.00 | $13.00 | $0.00 | $0.00 | $26.00 | $0.00 |
| 2025 | 1287 | TOTAL: | $2608.00 | $2607.94 | $0.00 | $0.00 | $5215.94 | $0.00 |
|
| 2025 | 1287 | $2608.00 | $2607.94 | $0.00 | $0.00 | $5215.94 | $0.00 |
Statement Details |
| 2024 | 1289 | STATE - STATE LEVY (SCHOOL) | $623.19 | $623.19 | $0.00 | $0.00 | $1246.38 | $0.00 |
| 2024 | 1289 | COUNTY - COUNTY LEVIES (CE, DD, VET, MH) | $266.69 | $266.65 | $0.00 | $0.00 | $533.34 | $0.00 |
| 2024 | 1289 | CONSERVE - CONSERVATION FUTURES | $8.00 | $7.99 | $0.00 | $0.00 | $15.99 | $0.00 |
| 2024 | 1289 | COROADS - COUNTY ROADS (ROADS, DIV TO CE) | $214.59 | $214.57 | $0.00 | $0.00 | $429.16 | $0.00 |
| 2024 | 1289 | PORTPT - PORT DISTRICT | $110.15 | $110.14 | $0.00 | $0.00 | $220.29 | $0.00 |
| 2024 | 1289 | PUD1 - PUD #1 | $17.52 | $17.51 | $0.00 | $0.00 | $35.03 | $0.00 |
| 2024 | 1289 | LIB1 - LIBRARY DIST #1 | $83.02 | $83.02 | $0.00 | $0.00 | $166.04 | $0.00 |
| 2024 | 1289 | HD2 - HOSP DIST #2 | $15.56 | $15.56 | $0.00 | $0.00 | $31.12 | $0.00 |
| 2024 | 1289 | SD50 - SCHOOL DIST #50 | $504.20 | $504.18 | $0.00 | $0.00 | $1008.38 | $0.00 |
| 2024 | 1289 | FD1 - FIRE DISTRICT #1 | $352.60 | $352.60 | $0.00 | $0.00 | $705.20 | $0.00 |
| 2024 | 1289 | EMS1 - FIRE DIST #1 EMS | $134.68 | $134.68 | $0.00 | $0.00 | $269.36 | $0.00 |
| 2024 | 1289 | FPLCA - DNR Landowner Contingency Assmt | $3.00 | $3.00 | $0.00 | $0.00 | $6.00 | $0.00 |
| 2024 | 1289 | JCCD - JC Conservation District | $2.75 | $2.75 | $0.00 | $0.00 | $5.50 | $0.00 |
| 2024 | 1289 | NWA - Noxious Weed Assessment | $2.75 | $2.75 | $0.00 | $0.00 | $5.50 | $0.00 |
| 2024 | 1289 | OSS - On Site Septic | $21.00 | $21.00 | $0.00 | $0.00 | $42.00 | $0.00 |
| 2024 | 1289 | WAT - Clean Water District | $12.50 | $12.50 | $0.00 | $0.00 | $25.00 | $0.00 |
| 2024 | 1289 | TOTAL: | $2372.20 | $2372.09 | $0.00 | $0.00 | $4744.29 | $0.00 |
|
| 2024 | 1289 | $2372.20 | $2372.09 | $0.00 | $0.00 | $4744.29 | $0.00 |
Statement Details |
| 2023 | 1289 | STATE - STATE LEVY (SCHOOL) | $619.20 | $619.19 | $0.00 | $0.00 | $1238.39 | $0.00 |
| 2023 | 1289 | COUNTY - COUNTY LEVIES (CE, DD, VET, MH) | $270.22 | $270.18 | $0.00 | $0.00 | $540.40 | $0.00 |
| 2023 | 1289 | CONSERVE - CONSERVATION FUTURES | $8.10 | $8.10 | $0.00 | $0.00 | $16.20 | $0.00 |
| 2023 | 1289 | COROADS - COUNTY ROADS (ROADS, DIV TO CE) | $218.62 | $218.60 | $0.00 | $0.00 | $437.22 | $0.00 |
| 2023 | 1289 | PORTPT - PORT DISTRICT | $113.83 | $113.82 | $0.00 | $0.00 | $227.65 | $0.00 |
| 2023 | 1289 | PUD1 - PUD #1 | $17.91 | $17.91 | $0.00 | $0.00 | $35.82 | $0.00 |
| 2023 | 1289 | LIB1 - LIBRARY DIST #1 | $84.58 | $84.58 | $0.00 | $0.00 | $169.16 | $0.00 |
| 2023 | 1289 | HD2 - HOSP DIST #2 | $15.77 | $15.76 | $0.00 | $0.00 | $31.53 | $0.00 |
| 2023 | 1289 | SD50 - SCHOOL DIST #50 | $491.36 | $491.33 | $0.00 | $0.00 | $982.69 | $0.00 |
| 2023 | 1289 | FD1 - FIRE DISTRICT #1 | $222.59 | $222.59 | $0.00 | $0.00 | $445.18 | $0.00 |
| 2023 | 1289 | EMS1 - FIRE DIST #1 EMS | $94.69 | $94.68 | $0.00 | $0.00 | $189.37 | $0.00 |
| 2023 | 1289 | FPLCA - DNR Landowner Contingency Assmt | $3.00 | $3.00 | $0.00 | $0.00 | $6.00 | $0.00 |
| 2023 | 1289 | JCCD - JC Conservation District | $2.75 | $2.75 | $0.00 | $0.00 | $5.50 | $0.00 |
| 2023 | 1289 | NWA - Noxious Weed Assessment | $2.75 | $2.75 | $0.00 | $0.00 | $5.50 | $0.00 |
| 2023 | 1289 | OSS - On Site Septic | $20.50 | $20.50 | $0.00 | $0.00 | $41.00 | $0.00 |
| 2023 | 1289 | WAT - Clean Water District | $12.00 | $12.00 | $0.00 | $0.00 | $24.00 | $0.00 |
| 2023 | 1289 | TOTAL: | $2197.87 | $2197.74 | $0.00 | $0.00 | $4395.61 | $0.00 |
|
| 2023 | 1289 | $2197.87 | $2197.74 | $0.00 | $0.00 | $4395.61 | $0.00 |
Values
| (+) Improvement Homesite Value: | + | $0 | |
| (+) Improvement Non-Homesite Value: | + | $421,776 | |
| (+) Land Homesite Value: | + | $0 | |
| (+) Land Non-Homesite Value: | + | $217,580 | |
| (+) Curr Use (HS): | + | $0 | $0 |
| (+) Curr Use (NHS): | + | $0 | $0 |
| | | -------------------------- | |
| (=) Market Value: | = | $639,356 | |
| (–) Productivity Loss: | – | $0 | |
| | | -------------------------- | |
| (=) Subtotal: | = | $639,356 | |
| (+) Senior Appraised Value: | + | $0 | |
| (+) Non-Senior Appraised Value: | + | $639,356 | |
| | | -------------------------- | |
| (=) Total Appraised Value: | = | $639,356 | |
| (–) Senior Exemption Loss: | – | $0 | |
| (–) Exemption Loss: | – | $0 | |
| | | -------------------------- | |
| (=) Taxable Value: | = | $639,356 | |
Taxing Jurisdiction
| Owner: | ERIC T PETERSON | | |
| % Ownership: | 100.0000000000% | | |
| Total Value: | $639,356 | | |
| Tax Area: | 0111 - 1-50F1E1H2L1 |
| CE | COUNTY CURRENT EXPENSE | 0.9034619479 | $639,356 | $639,356 | $577.63 | | |
| CNTYDD | DEVELOPMENTAL DISABILITIES | 0.0052121823 | $639,356 | $639,356 | $3.33 | | |
| CNTYVET | VETERANS RELIEF | 0.0052777810 | $639,356 | $639,356 | $3.37 | | |
| MENTAL | MENTAL HEALTH | 0.0052121823 | $639,356 | $639,356 | $3.33 | | |
| ROADS | COUNTY ROADS | 0.7415066410 | $639,356 | $639,356 | $474.09 | | |
| ROADSCU | COUNTY ROADS TO CUR EXP | 0.0000000000 | $639,356 | $639,356 | $0.00 | | |
| HOSP2CASH | HOSP DIST #2 GENERAL | 0.0536075306 | $639,356 | $639,356 | $34.27 | | |
| SCH50BOND | SCHOOL DIST #50 BOND 2016 | 0.5377451389 | $639,356 | $639,356 | $343.81 | | |
| SCH50CP | SCHOOL DIST #50 CAP PROJ | 0.4573475088 | $639,356 | $639,356 | $292.41 | | |
| SCH50MO | SCHOOL DIST #50 EP & O | 0.8262822886 | $639,356 | $639,356 | $528.29 | | |
| CONSERVE | CONSERVATION FUTURES | 0.0275621078 | $639,356 | $639,356 | $17.62 | | |
| EMS1 | FIRE DIST #1 EMS | 0.4679948282 | $639,356 | $639,356 | $299.22 | | |
| FD1 | FIRE DIST #1 GENERAL | 1.2171942929 | $639,356 | $639,356 | $778.22 | | |
| LIB1 | LIBRARY DIST #1 GENERAL | 0.2868827388 | $639,356 | $639,356 | $183.42 | | |
| PORTPT | PORT OF PT GENERAL | 0.1134941229 | $639,356 | $639,356 | $72.56 | | |
| PORTPTIDD | PORT OF PT IDD 2019 | 0.2577346692 | $639,356 | $639,356 | $164.78 | | |
| PUD1 | PUD #1 GENERAL | 0.0597888892 | $639,356 | $639,356 | $38.23 | | |
| STATE | STATE SCHOOL PART 1 | 1.4940692947 | $639,356 | $639,356 | $955.24 | | |
| STATE2 | STATE SCHOOL PART 2 | 0.8050170049 | $639,356 | $639,356 | $514.69 | | |
| | Total Tax Rate: | 8.2653911500 | | | | | |
| | | | | Taxes w/Current Exemptions: | $5,284.51 | | |
| | | | | Taxes w/o Exemptions: | $5,284.51 | | |
Improvement / Building
| Improvement #1: | Residential Bldg | State Code: | 11 | 1386.0 sqft | Value: | $421,776 |
| Bathrooms (#): | 1 (FULL) | Bedrooms (#): | 2 | | Exterior Wall: | PL/T1 | Fireplace: | WD ST-GOOD | | Floor Construction: | FRAME | Foundation: | CONPR | | Heating/Cooling: | HTWTR | Roof Cover: | COMP |
|
| | Type | Description | Class CD | Sub Class CD | Year Built | Area |
| | MA | Main Area | 4- | 2S | 1979 | 784.0 |
| | MA2 | Second Floor Main Area | 4- | 2S | 1979 | 602.0 |
| | HWPOR | House Wood Porch | 4 | 2S | 1979 | 81.0 |
| | HDECK | House Deck | 4 | 2S | 1979 | 280.0 |
| | GDET | Detached Garage | 4 | 2S | 1979 | 1200.0 |
| | BSMTF | House basement finished | 4 | 2S | 1979 | 808.0 |
Sketch
Property Image
Land
| 1 | 5370-1385S | | 1.0000 | 43560.00 | 0.00 | 0.00 | 1.00 | $133,100 | $0 |
| 2 | 1572A | | 3.8400 | 167270.40 | 0.00 | 0.00 | 0.00 | $84,480 | $0 |
Roll Value History
| 2026 | N/A | N/A | N/A | N/A | N/A |
| 2025 | $421,776 | $217,580 | $0 | $639,356 | $639,356 |
| 2024 | $403,438 | $207,690 | $0 | $611,128 | $611,128 |
| 2023 | $335,762 | $202,960 | $0 | $538,722 | $538,722 |
| 2022 | $335,762 | $190,280 | $0 | $526,042 | $526,042 |
Deed and Sales History
| 1 | 07/15/2022 | QCD | Quit Claim Deed | AMY C POTEETE | ERIC T PETERSON | | | | 139472 | |
| 2 | 01/20/2022 | QCD | Quit Claim Deed | RANDAL C KELLEY | ERIC T PETERSON | | | | 138409 | |
| 3 | 01/13/2022 | SWD | Statutory Warranty Deed | RANDAL C KELLEY | ERIC T PETERSON | | | $620,000.00 | 138408 | |
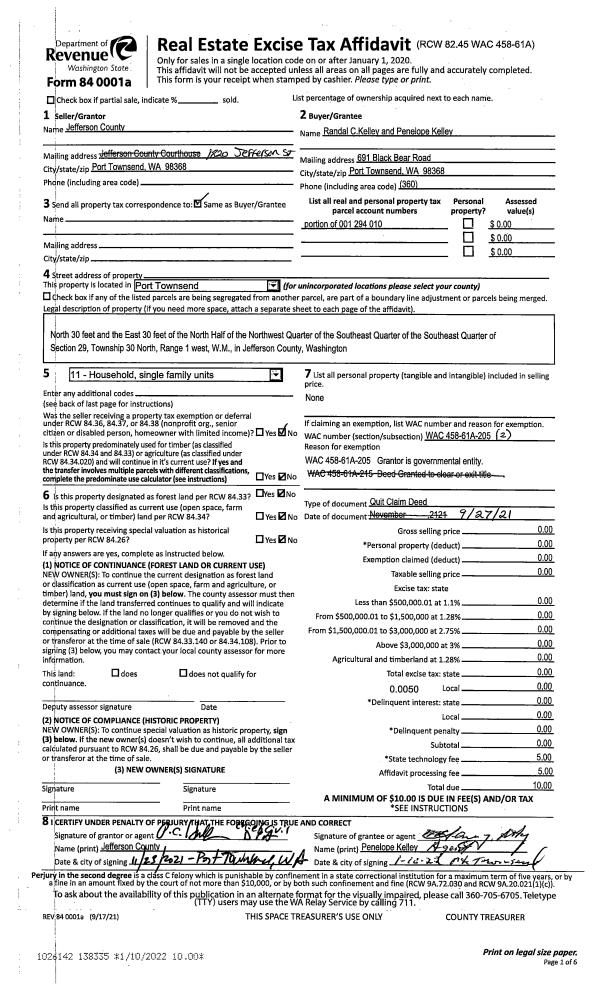
| 4 | 01/10/2022 | QCD | Quit Claim Deed | JEFFERSON COUNTY | RANDAL C KELLEY | | | | 138335 | |
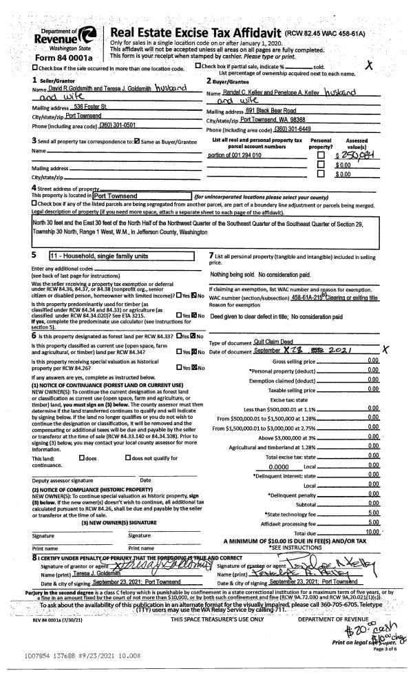
| 5 | 09/22/2021 | QCD | Quit Claim Deed | DAVID GOLDSMITH | RANDAL C KELLEY | | | | 137688 | |
| 6 | 08/21/1986 | SWD | Statutory Warranty Deed | DAVID GOLDSMITH | RANDAL C KELLEY | | | $77,000.00 | 53169 | |
Payout Agreement
| No payout information available.. |