Property
Account |
| Property ID: | 11339 | Abbreviated Legal Description: | S29 T30 R1W TAX 34(LESS TAX 60) |
| Parcel # / Geo ID: | 001294017 | Agent Code: | |
| Type: | Real | | |
| Tax Area: | 0111 - 1-50F1E1H2L1 | Land Use Code | 91 |
| Open Space: | N | DFL | N |
| Historic Property: | N | Remodel Property: | N |
| Multi-Family Redevelopment: | N | | |
| Township: | 30N | Section: | 29 |
| Range: | 1W |
Location |
| Address: | | Mapsco: | 099/012 |
| Neighborhood: | S29 T30 R1W DEER RIDGE, DOE RUN, SNAGSTEAD WAY | Map ID: | |
| Neighborhood CD: | 5370 |
Owner |
| Name: | MICHAEL REDDING | Owner ID: | 108370 |
| Mailing Address: | ANNA LOVE 5706 CHESTERFIELD AVE AUSTIN, TX 78752-4514 | % Ownership: | 100.0000000000% |
| | | Exemptions: | |
Pay Tax Due
Select the appropriate checkbox next to the year to be paid. Multiple years may be selected.
*Convenience Fee not included
Taxes and Assessment Details
Property Tax Information as of
03/10/2026
Click on "Statement Details" to expand or collapse a tax statement.
* Please enter a valid date ** Please enter a valid date *
Statement Details |
| 2026 | 1288 | STATE - STATE LEVY (SCHOOL) | $104.58 | $104.56 | $0.00 | $0.00 | $0.00 | $209.14 |
| 2026 | 1288 | COUNTY - COUNTY LEVIES (CE, DD, VET, MH) | $41.82 | $41.79 | $0.00 | $0.00 | $0.00 | $83.61 |
| 2026 | 1288 | CONSERVE - CONSERVATION FUTURES | $1.26 | $1.25 | $0.00 | $0.00 | $0.00 | $2.51 |
| 2026 | 1288 | COROADS - COUNTY ROADS (ROADS, DIV TO CE) | $33.73 | $33.72 | $0.00 | $0.00 | $0.00 | $67.45 |
| 2026 | 1288 | PORTPT - PORT DISTRICT | $16.89 | $16.88 | $0.00 | $0.00 | $0.00 | $33.77 |
| 2026 | 1288 | PUD1 - PUD #1 | $2.72 | $2.72 | $0.00 | $0.00 | $0.00 | $5.44 |
| 2026 | 1288 | LIB1 - LIBRARY DIST #1 | $13.05 | $13.05 | $0.00 | $0.00 | $0.00 | $26.10 |
| 2026 | 1288 | HD2 - HOSP DIST #2 | $2.44 | $2.44 | $0.00 | $0.00 | $0.00 | $4.88 |
| 2026 | 1288 | SD50 - SCHOOL DIST #50 | $82.85 | $82.84 | $0.00 | $0.00 | $0.00 | $165.69 |
| 2026 | 1288 | FD1 - FIRE DISTRICT #1 | $55.37 | $55.36 | $0.00 | $0.00 | $0.00 | $110.73 |
| 2026 | 1288 | EMS1 - FIRE DIST #1 EMS | $21.29 | $21.28 | $0.00 | $0.00 | $0.00 | $42.57 |
| 2026 | 1288 | FP - DNR Forest Fire Protection Assmt | $8.50 | $8.50 | $0.00 | $0.00 | $0.00 | $17.00 |
| 2026 | 1288 | FPLCA - DNR Landowner Contingency Assmt | $3.00 | $3.00 | $0.00 | $0.00 | $0.00 | $6.00 |
| 2026 | 1288 | JCCD - JC Conservation District | $2.65 | $2.65 | $0.00 | $0.00 | $0.00 | $5.30 |
| 2026 | 1288 | NWA - Noxious Weed Assessment | $3.65 | $3.65 | $0.00 | $0.00 | $0.00 | $7.30 |
| 2026 | 1288 | WAT - Clean Water District | $13.00 | $13.00 | $0.00 | $0.00 | $0.00 | $26.00 |
| 2026 | 1288 | FP ADMIN - FP ADMIN | $0.50 | $0.00 | $0.00 | $0.00 | $0.00 | $0.50 |
| 2026 | 1288 | TOTAL: | $407.30 | $406.69 | $0.00 | $0.00 | $0.00 | $813.99 |
|
| 2026 | 1288 | $407.30 | $406.69 | $0.00 | $0.00 | $0.00 | $813.99 |
Statement Details |
| 2025 | 1293 | STATE - STATE LEVY (SCHOOL) | $104.12 | $104.11 | $0.00 | $0.00 | $208.23 | $0.00 |
| 2025 | 1293 | COUNTY - COUNTY LEVIES (CE, DD, VET, MH) | $40.95 | $40.93 | $0.00 | $0.00 | $81.88 | $0.00 |
| 2025 | 1293 | CONSERVE - CONSERVATION FUTURES | $1.23 | $1.23 | $0.00 | $0.00 | $2.46 | $0.00 |
| 2025 | 1293 | COROADS - COUNTY ROADS (ROADS, DIV TO CE) | $32.81 | $32.80 | $0.00 | $0.00 | $65.61 | $0.00 |
| 2025 | 1293 | PORTPT - PORT DISTRICT | $16.71 | $16.70 | $0.00 | $0.00 | $33.41 | $0.00 |
| 2025 | 1293 | PUD1 - PUD #1 | $2.68 | $2.68 | $0.00 | $0.00 | $5.36 | $0.00 |
| 2025 | 1293 | LIB1 - LIBRARY DIST #1 | $12.69 | $12.69 | $0.00 | $0.00 | $25.38 | $0.00 |
| 2025 | 1293 | HD2 - HOSP DIST #2 | $2.39 | $2.39 | $0.00 | $0.00 | $4.78 | $0.00 |
| 2025 | 1293 | SD50 - SCHOOL DIST #50 | $76.09 | $76.08 | $0.00 | $0.00 | $152.17 | $0.00 |
| 2025 | 1293 | FD1 - FIRE DISTRICT #1 | $54.03 | $54.03 | $0.00 | $0.00 | $108.06 | $0.00 |
| 2025 | 1293 | EMS1 - FIRE DIST #1 EMS | $20.78 | $20.78 | $0.00 | $0.00 | $41.56 | $0.00 |
| 2025 | 1293 | FP - DNR Forest Fire Protection Assmt | $8.50 | $8.50 | $0.00 | $0.00 | $17.00 | $0.00 |
| 2025 | 1293 | FPLCA - DNR Landowner Contingency Assmt | $3.00 | $3.00 | $0.00 | $0.00 | $6.00 | $0.00 |
| 2025 | 1293 | JCCD - JC Conservation District | $2.65 | $2.65 | $0.00 | $0.00 | $5.30 | $0.00 |
| 2025 | 1293 | NWA - Noxious Weed Assessment | $2.60 | $2.60 | $0.00 | $0.00 | $5.20 | $0.00 |
| 2025 | 1293 | WAT - Clean Water District | $13.00 | $13.00 | $0.00 | $0.00 | $26.00 | $0.00 |
| 2025 | 1293 | FP ADMIN - FP ADMIN | $0.50 | $0.00 | $0.00 | $0.00 | $0.50 | $0.00 |
| 2025 | 1293 | TOTAL: | $394.73 | $394.17 | $0.00 | $0.00 | $788.90 | $0.00 |
|
| 2025 | 1293 | $394.73 | $394.17 | $0.00 | $0.00 | $788.90 | $0.00 |
Statement Details |
| 2024 | 1295 | STATE - STATE LEVY (SCHOOL) | $99.12 | $99.10 | $0.00 | $0.00 | $198.22 | $0.00 |
| 2024 | 1295 | COUNTY - COUNTY LEVIES (CE, DD, VET, MH) | $42.41 | $42.41 | $0.00 | $0.00 | $84.82 | $0.00 |
| 2024 | 1295 | CONSERVE - CONSERVATION FUTURES | $1.27 | $1.27 | $0.00 | $0.00 | $2.54 | $0.00 |
| 2024 | 1295 | COROADS - COUNTY ROADS (ROADS, DIV TO CE) | $34.13 | $34.12 | $0.00 | $0.00 | $68.25 | $0.00 |
| 2024 | 1295 | PORTPT - PORT DISTRICT | $17.52 | $17.51 | $0.00 | $0.00 | $35.03 | $0.00 |
| 2024 | 1295 | PUD1 - PUD #1 | $2.79 | $2.78 | $0.00 | $0.00 | $5.57 | $0.00 |
| 2024 | 1295 | LIB1 - LIBRARY DIST #1 | $13.21 | $13.20 | $0.00 | $0.00 | $26.41 | $0.00 |
| 2024 | 1295 | HD2 - HOSP DIST #2 | $2.48 | $2.47 | $0.00 | $0.00 | $4.95 | $0.00 |
| 2024 | 1295 | SD50 - SCHOOL DIST #50 | $80.20 | $80.17 | $0.00 | $0.00 | $160.37 | $0.00 |
| 2024 | 1295 | FD1 - FIRE DISTRICT #1 | $56.08 | $56.07 | $0.00 | $0.00 | $112.15 | $0.00 |
| 2024 | 1295 | EMS1 - FIRE DIST #1 EMS | $21.42 | $21.42 | $0.00 | $0.00 | $42.84 | $0.00 |
| 2024 | 1295 | FP - DNR Forest Fire Protection Assmt | $8.50 | $8.50 | $0.00 | $0.00 | $17.00 | $0.00 |
| 2024 | 1295 | FPLCA - DNR Landowner Contingency Assmt | $3.00 | $3.00 | $0.00 | $0.00 | $6.00 | $0.00 |
| 2024 | 1295 | JCCD - JC Conservation District | $2.65 | $2.65 | $0.00 | $0.00 | $5.30 | $0.00 |
| 2024 | 1295 | NWA - Noxious Weed Assessment | $2.60 | $2.60 | $0.00 | $0.00 | $5.20 | $0.00 |
| 2024 | 1295 | WAT - Clean Water District | $12.50 | $12.50 | $0.00 | $0.00 | $25.00 | $0.00 |
| 2024 | 1295 | FP ADMIN - FP ADMIN | $0.50 | $0.00 | $0.00 | $0.00 | $0.50 | $0.00 |
| 2024 | 1295 | TOTAL: | $400.38 | $399.77 | $0.00 | $0.00 | $800.15 | $0.00 |
|
| 2024 | 1295 | $400.38 | $399.77 | $0.00 | $0.00 | $800.15 | $0.00 |
Statement Details |
| 2023 | 1295 | STATE - STATE LEVY (SCHOOL) | $105.16 | $105.15 | $0.00 | $0.00 | $210.31 | $0.00 |
| 2023 | 1295 | COUNTY - COUNTY LEVIES (CE, DD, VET, MH) | $45.89 | $45.88 | $0.00 | $0.00 | $91.77 | $0.00 |
| 2023 | 1295 | CONSERVE - CONSERVATION FUTURES | $1.38 | $1.37 | $0.00 | $0.00 | $2.75 | $0.00 |
| 2023 | 1295 | COROADS - COUNTY ROADS (ROADS, DIV TO CE) | $37.13 | $37.12 | $0.00 | $0.00 | $74.25 | $0.00 |
| 2023 | 1295 | PORTPT - PORT DISTRICT | $19.34 | $19.32 | $0.00 | $0.00 | $38.66 | $0.00 |
| 2023 | 1295 | PUD1 - PUD #1 | $3.04 | $3.04 | $0.00 | $0.00 | $6.08 | $0.00 |
| 2023 | 1295 | LIB1 - LIBRARY DIST #1 | $14.37 | $14.36 | $0.00 | $0.00 | $28.73 | $0.00 |
| 2023 | 1295 | HD2 - HOSP DIST #2 | $2.68 | $2.67 | $0.00 | $0.00 | $5.35 | $0.00 |
| 2023 | 1295 | SD50 - SCHOOL DIST #50 | $83.45 | $83.44 | $0.00 | $0.00 | $166.89 | $0.00 |
| 2023 | 1295 | FD1 - FIRE DISTRICT #1 | $37.80 | $37.80 | $0.00 | $0.00 | $75.60 | $0.00 |
| 2023 | 1295 | EMS1 - FIRE DIST #1 EMS | $16.08 | $16.08 | $0.00 | $0.00 | $32.16 | $0.00 |
| 2023 | 1295 | FP - DNR Forest Fire Protection Assmt | $8.50 | $8.50 | $0.00 | $0.00 | $17.00 | $0.00 |
| 2023 | 1295 | FPLCA - DNR Landowner Contingency Assmt | $3.00 | $3.00 | $0.00 | $0.00 | $6.00 | $0.00 |
| 2023 | 1295 | JCCD - JC Conservation District | $2.65 | $2.65 | $0.00 | $0.00 | $5.30 | $0.00 |
| 2023 | 1295 | NWA - Noxious Weed Assessment | $2.60 | $2.60 | $0.00 | $0.00 | $5.20 | $0.00 |
| 2023 | 1295 | WAT - Clean Water District | $12.00 | $12.00 | $0.00 | $0.00 | $24.00 | $0.00 |
| 2023 | 1295 | FP ADMIN - FP ADMIN | $0.50 | $0.00 | $0.00 | $0.00 | $0.50 | $0.00 |
| 2023 | 1295 | TOTAL: | $395.57 | $394.98 | $0.00 | $0.00 | $790.55 | $0.00 |
|
| 2023 | 1295 | $395.57 | $394.98 | $0.00 | $0.00 | $790.55 | $0.00 |
Values
| (+) Improvement Homesite Value: | + | $0 | |
| (+) Improvement Non-Homesite Value: | + | $0 | |
| (+) Land Homesite Value: | + | $0 | |
| (+) Land Non-Homesite Value: | + | $90,968 | |
| (+) Curr Use (HS): | + | $0 | $0 |
| (+) Curr Use (NHS): | + | $0 | $0 |
| | | -------------------------- | |
| (=) Market Value: | = | $90,968 | |
| (–) Productivity Loss: | – | $0 | |
| | | -------------------------- | |
| (=) Subtotal: | = | $90,968 | |
| (+) Senior Appraised Value: | + | $0 | |
| (+) Non-Senior Appraised Value: | + | $90,968 | |
| | | -------------------------- | |
| (=) Total Appraised Value: | = | $90,968 | |
| (–) Senior Exemption Loss: | – | $0 | |
| (–) Exemption Loss: | – | $0 | |
| | | -------------------------- | |
| (=) Taxable Value: | = | $90,968 | |
Taxing Jurisdiction
| Owner: | MICHAEL REDDING | | |
| % Ownership: | 100.0000000000% | | |
| Total Value: | $90,968 | | |
| Tax Area: | 0111 - 1-50F1E1H2L1 |
| CE | COUNTY CURRENT EXPENSE | 0.9034619479 | $90,968 | $90,968 | $82.19 | | |
| CNTYDD | DEVELOPMENTAL DISABILITIES | 0.0052121823 | $90,968 | $90,968 | $0.47 | | |
| CNTYVET | VETERANS RELIEF | 0.0052777810 | $90,968 | $90,968 | $0.48 | | |
| MENTAL | MENTAL HEALTH | 0.0052121823 | $90,968 | $90,968 | $0.47 | | |
| ROADS | COUNTY ROADS | 0.7415066410 | $90,968 | $90,968 | $67.45 | | |
| ROADSCU | COUNTY ROADS TO CUR EXP | 0.0000000000 | $90,968 | $90,968 | $0.00 | | |
| HOSP2CASH | HOSP DIST #2 GENERAL | 0.0536075306 | $90,968 | $90,968 | $4.88 | | |
| SCH50BOND | SCHOOL DIST #50 BOND 2016 | 0.5377451389 | $90,968 | $90,968 | $48.92 | | |
| SCH50CP | SCHOOL DIST #50 CAP PROJ | 0.4573475088 | $90,968 | $90,968 | $41.60 | | |
| SCH50MO | SCHOOL DIST #50 EP & O | 0.8262822886 | $90,968 | $90,968 | $75.17 | | |
| CONSERVE | CONSERVATION FUTURES | 0.0275621078 | $90,968 | $90,968 | $2.51 | | |
| EMS1 | FIRE DIST #1 EMS | 0.4679948282 | $90,968 | $90,968 | $42.57 | | |
| FD1 | FIRE DIST #1 GENERAL | 1.2171942929 | $90,968 | $90,968 | $110.73 | | |
| LIB1 | LIBRARY DIST #1 GENERAL | 0.2868827388 | $90,968 | $90,968 | $26.10 | | |
| PORTPT | PORT OF PT GENERAL | 0.1134941229 | $90,968 | $90,968 | $10.32 | | |
| PORTPTIDD | PORT OF PT IDD 2019 | 0.2577346692 | $90,968 | $90,968 | $23.45 | | |
| PUD1 | PUD #1 GENERAL | 0.0597888892 | $90,968 | $90,968 | $5.44 | | |
| STATE | STATE SCHOOL PART 1 | 1.4940692947 | $90,968 | $90,968 | $135.91 | | |
| STATE2 | STATE SCHOOL PART 2 | 0.8050170049 | $90,968 | $90,968 | $73.23 | | |
| | Total Tax Rate: | 8.2653911500 | | | | | |
| | | | | Taxes w/Current Exemptions: | $751.89 | | |
| | | | | Taxes w/o Exemptions: | $751.89 | | |
Improvement / Building
Sketch
| No sketches available for this property. |
Property Image
Land
| 1 | 5370-1385S | | 1.0000 | 43560.00 | 0.00 | 0.00 | 1.00 | $73,150 | $0 |
| 2 | 1578A | | 2.0900 | 91040.40 | 0.00 | 0.00 | 0.00 | $17,818 | $0 |
Roll Value History
| 2026 | N/A | N/A | N/A | N/A | N/A |
| 2025 | $0 | $90,968 | $0 | $90,968 | $90,968 |
| 2024 | $0 | $86,833 | $0 | $86,833 | $86,833 |
| 2023 | $0 | $85,675 | $0 | $85,675 | $85,675 |
| 2022 | $0 | $89,333 | $0 | $89,333 | $89,333 |
Deed and Sales History
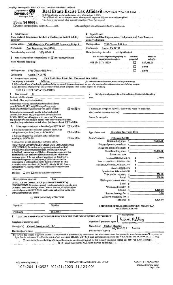
| 1 | 02/07/2023 | SWD | Statutory Warranty Deed | CADWELL INVESTMENTS 2 LLC | MICHAEL REDDING | | | $70,000.00 | 140527 | |
| 2 | 01/27/2010 | SWD | Statutory Warranty Deed | CADWELL, MARGUERITE L | CADWELL INVESTMENTS 2, LLC | | | $0.00 | 114324 | 0 |
| 3 | 01/27/2010 | SWD | Statutory Warranty Deed | CADWELL, MARGUERITE L | CADWELL INVESTMENTS 2, LLC, A | 0 | 0 | $0.00 | 113976 | 0 |
Payout Agreement
| No payout information available.. |