Property
Account |
| Property ID: | 11350 | Abbreviated Legal Description: | SNAGSTEAD WAY LOT 1 W/EASE |
| Parcel # / Geo ID: | 001295001 | Agent Code: | |
| Type: | Real | | |
| Tax Area: | 0111 - 1-50F1E1H2L1 | Land Use Code | 11 |
| Open Space: | N | DFL | N |
| Historic Property: | N | Remodel Property: | N |
| Multi-Family Redevelopment: | N | | |
| Township: | 30N | Section: | 29 |
| Range: | 1W |
Location |
| Address: | 900 SNAGSTEAD WAY PORT TOWNSEND, WA 98368 | Mapsco: | 145/040 |
| Neighborhood: | S29 T30 R1W DEER RIDGE, DOE RUN, SNAGSTEAD WAY | Map ID: | |
| Neighborhood CD: | 5370 |
Owner |
| Name: | KYLE M PERNSTEINER | Owner ID: | 107059 |
| Mailing Address: | PO BOX 1048 PORT HADLOCK, WA 98339-1048 | % Ownership: | 100.0000000000% |
| | | Exemptions: | |
Pay Tax Due
There is currently No Amount Due on this property.
Taxes and Assessment Details
Property Tax Information as of
03/12/2026
Click on "Statement Details" to expand or collapse a tax statement.
* Please enter a valid date ** Please enter a valid date *
Statement Details |
| | TOTAL: | $0.00 | $0.00 | $0.00 | $0.00 | $0.00 | $0.00 |
|
| | $0.00 | $0.00 | $0.00 | $0.00 | $0.00 | $0.00 |
Values
| (+) Improvement Homesite Value: | + | $0 | |
| (+) Improvement Non-Homesite Value: | + | $351,286 | |
| (+) Land Homesite Value: | + | $0 | |
| (+) Land Non-Homesite Value: | + | $156,200 | |
| (+) Curr Use (HS): | + | $0 | $0 |
| (+) Curr Use (NHS): | + | $0 | $0 |
| | | -------------------------- | |
| (=) Market Value: | = | $507,486 | |
| (–) Productivity Loss: | – | $0 | |
| | | -------------------------- | |
| (=) Subtotal: | = | $507,486 | |
| (+) Senior Appraised Value: | + | $0 | |
| (+) Non-Senior Appraised Value: | + | $507,486 | |
| | | -------------------------- | |
| (=) Total Appraised Value: | = | $507,486 | |
| (–) Senior Exemption Loss: | – | $0 | |
| (–) Exemption Loss: | – | $0 | |
| | | -------------------------- | |
| (=) Taxable Value: | = | $507,486 | |
Taxing Jurisdiction
| Owner: | KYLE M PERNSTEINER | | |
| % Ownership: | 100.0000000000% | | |
| Total Value: | $507,486 | | |
| Tax Area: | 0111 - 1-50F1E1H2L1 |
| CE | COUNTY CURRENT EXPENSE | 0.9034619479 | $507,486 | $507,486 | $458.49 | | |
| CNTYDD | DEVELOPMENTAL DISABILITIES | 0.0052121823 | $507,486 | $507,486 | $2.65 | | |
| CNTYVET | VETERANS RELIEF | 0.0052777810 | $507,486 | $507,486 | $2.68 | | |
| MENTAL | MENTAL HEALTH | 0.0052121823 | $507,486 | $507,486 | $2.65 | | |
| ROADS | COUNTY ROADS | 0.7415066410 | $507,486 | $507,486 | $376.30 | | |
| ROADSCU | COUNTY ROADS TO CUR EXP | 0.0000000000 | $507,486 | $507,486 | $0.00 | | |
| HOSP2CASH | HOSP DIST #2 GENERAL | 0.0536075306 | $507,486 | $507,486 | $27.21 | | |
| SCH50BOND | SCHOOL DIST #50 BOND 2016 | 0.5377451389 | $507,486 | $507,486 | $272.90 | | |
| SCH50CP | SCHOOL DIST #50 CAP PROJ | 0.4573475088 | $507,486 | $507,486 | $232.10 | | |
| SCH50MO | SCHOOL DIST #50 EP & O | 0.8262822886 | $507,486 | $507,486 | $419.33 | | |
| CONSERVE | CONSERVATION FUTURES | 0.0275621078 | $507,486 | $507,486 | $13.99 | | |
| EMS1 | FIRE DIST #1 EMS | 0.4679948282 | $507,486 | $507,486 | $237.50 | | |
| FD1 | FIRE DIST #1 GENERAL | 1.2171942929 | $507,486 | $507,486 | $617.71 | | |
| LIB1 | LIBRARY DIST #1 GENERAL | 0.2868827388 | $507,486 | $507,486 | $145.59 | | |
| PORTPT | PORT OF PT GENERAL | 0.1134941229 | $507,486 | $507,486 | $57.60 | | |
| PORTPTIDD | PORT OF PT IDD 2019 | 0.2577346692 | $507,486 | $507,486 | $130.80 | | |
| PUD1 | PUD #1 GENERAL | 0.0597888892 | $507,486 | $507,486 | $30.34 | | |
| STATE | STATE SCHOOL PART 1 | 1.4940692947 | $507,486 | $507,486 | $758.22 | | |
| STATE2 | STATE SCHOOL PART 2 | 0.8050170049 | $507,486 | $507,486 | $408.53 | | |
| | Total Tax Rate: | 8.2653911500 | | | | | |
| | | | | Taxes w/Current Exemptions: | $4,194.59 | | |
| | | | | Taxes w/o Exemptions: | $4,194.59 | | |
Improvement / Building
| Improvement #1: | Residential Bldg | State Code: | 11 | 1756.0 sqft | Value: | $351,286 |
| Bathrooms (#): | 2 (FULL) | Bathrooms (#): | 1 (HALF) | | Bedrooms (#): | 3 | Exterior Wall: | SI/ST | | Fireplace: | WD ST-GOOD | Floor Construction: | FRAME | | Foundation: | CONPR | Heating/Cooling: | ELBB | | Roof Cover: | COMP |   |   |
|
| | Type | Description | Class CD | Sub Class CD | Year Built | Area |
| | MA | Main Area | 4+ | 15SF | 1991 | 964.0 |
| | MA2 | Second Floor Main Area | 4+ | 15SF | 1991 | 792.0 |
| | PATIO | House Patio | 4 | 15SF | 1991 | 240.0 |
| | HCPOR | House Concrete Porch | 4 | 15SF | 1991 | 25.0 |
| | CARPTN | Carport W/O Floor | 3 | 15SF | 1991 | 220.0 |
| | GBLTIN | Builtin Garage | 4 | 15SF | 1991 | 576.0 |
| | SHED | Shed (Table Not Dep) | 4 | 15SF | 1991 | 80.0 |
Sketch
| No sketches available for this property. |
Property Image
Land
| 1 | 5370-1385S | No/Fair Terr View Sites Good Access 1+/- Acre | 1.0000 | 43560.00 | 0.00 | 0.00 | 1.00 | $110,000 | $0 |
| 2 | 1575A | Terr/Mtn/No View <6 Acres | 4.0000 | 174240.00 | 0.00 | 0.00 | 0.00 | $46,200 | $0 |
Roll Value History
| 2026 | N/A | N/A | N/A | N/A | N/A |
| 2025 | $351,286 | $156,200 | $0 | $507,486 | $507,486 |
| 2024 | $336,013 | $149,100 | $0 | $485,113 | $485,113 |
| 2023 | $307,283 | $135,000 | $0 | $442,283 | $442,283 |
| 2022 | $307,283 | $127,000 | $0 | $434,283 | $434,283 |
Deed and Sales History
| 1 | 05/31/2022 | SWD | Statutory Warranty Deed | ANDY PERNSTEINER PERSONAL REPRESENTATIVE OF | KYLE M PERNSTEINER | | | $340,000.00 | 139190 | |
| 2 | 05/31/2022 | QCD | Quit Claim Deed | NANCY & ROBERT BALE | ANDY PERNSTEINER PERSONAL REPRESENTATIVE OF | | | | 0 | |
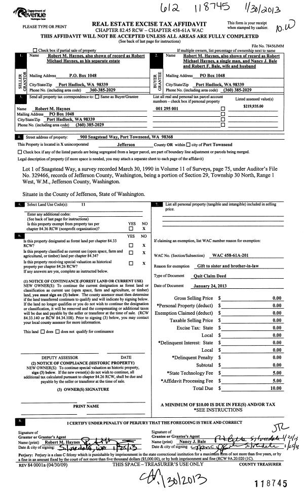
| 3 | 02/26/2013 | QCD | Quit Claim Deed | | | | | | 118745 | |
| 4 | 02/02/2011 | QCD | Quit Claim Deed | HAYNES, JESSICA A | HAYNES, ROBERT MICHAEL | 0 | 0 | $0.00 | 116722 | 0 |
Payout Agreement
| No payout information available.. |