Property
Account |
| Property ID: | 11395 | Abbreviated Legal Description: | S30 T30N R1W TAX 7 BND BY BLA #122783 |
| Parcel # / Geo ID: | 001302012 | Agent Code: | |
| Type: | Real | | |
| Tax Area: | 0111 - 1-50F1E1H2L1 | Land Use Code | 11 |
| Open Space: | N | DFL | N |
| Historic Property: | N | Remodel Property: | N |
| Multi-Family Redevelopment: | N | | |
| Township: | 30N | Section: | 30 |
| Range: | 1W |
Location |
| Address: | 409 LANE DE CHANTAL PORT TOWNSEND, WA 98368 | Mapsco: | 100/013 |
| Neighborhood: | S19,30&31T30NR1W,S25T30R2W,ARBUTUS,BAYVIEW CHEVY,DISCO RIDGE | Map ID: | |
| Neighborhood CD: | 5360 |
Owner |
| Name: | MICHAEL D SCARBROUGH | Owner ID: | 114010 |
| Mailing Address: | 409 LANE DE CHANTAL PORT TOWNSEND, WA 98368-8815 | % Ownership: | 100.0000000000% |
| | | Exemptions: | |
Pay Tax Due
Select the appropriate checkbox next to the year to be paid. Multiple years may be selected.
*Convenience Fee not included
Taxes and Assessment Details
Property Tax Information as of
03/14/2026
Click on "Statement Details" to expand or collapse a tax statement.
* Please enter a valid date ** Please enter a valid date *
Statement Details |
| 2026 | 1341 | STATE - STATE LEVY (SCHOOL) | $1521.24 | $1521.23 | $0.00 | $0.00 | $0.00 | $3042.47 |
| 2026 | 1341 | COUNTY - COUNTY LEVIES (CE, DD, VET, MH) | $608.18 | $608.18 | $0.00 | $0.00 | $0.00 | $1216.36 |
| 2026 | 1341 | CONSERVE - CONSERVATION FUTURES | $18.24 | $18.23 | $0.00 | $0.00 | $0.00 | $36.47 |
| 2026 | 1341 | COROADS - COUNTY ROADS (ROADS, DIV TO CE) | $490.63 | $490.63 | $0.00 | $0.00 | $0.00 | $981.26 |
| 2026 | 1341 | PORTPT - PORT DISTRICT | $245.64 | $245.62 | $0.00 | $0.00 | $0.00 | $491.26 |
| 2026 | 1341 | PUD1 - PUD #1 | $39.56 | $39.56 | $0.00 | $0.00 | $0.00 | $79.12 |
| 2026 | 1341 | LIB1 - LIBRARY DIST #1 | $189.82 | $189.82 | $0.00 | $0.00 | $0.00 | $379.64 |
| 2026 | 1341 | HD2 - HOSP DIST #2 | $35.47 | $35.47 | $0.00 | $0.00 | $0.00 | $70.94 |
| 2026 | 1341 | SD50 - SCHOOL DIST #50 | $1205.15 | $1205.14 | $0.00 | $0.00 | $0.00 | $2410.29 |
| 2026 | 1341 | FD1 - FIRE DISTRICT #1 | $805.38 | $805.38 | $0.00 | $0.00 | $0.00 | $1610.76 |
| 2026 | 1341 | EMS1 - FIRE DIST #1 EMS | $309.66 | $309.65 | $0.00 | $0.00 | $0.00 | $619.31 |
| 2026 | 1341 | FP - DNR Forest Fire Protection Assmt | $8.50 | $8.50 | $0.00 | $0.00 | $0.00 | $17.00 |
| 2026 | 1341 | FPLCA - DNR Landowner Contingency Assmt | $3.00 | $3.00 | $0.00 | $0.00 | $0.00 | $6.00 |
| 2026 | 1341 | JCCD - JC Conservation District | $2.80 | $2.80 | $0.00 | $0.00 | $0.00 | $5.60 |
| 2026 | 1341 | NWA - Noxious Weed Assessment | $4.10 | $4.10 | $0.00 | $0.00 | $0.00 | $8.20 |
| 2026 | 1341 | OSS - On Site Septic | $23.10 | $23.10 | $0.00 | $0.00 | $0.00 | $46.20 |
| 2026 | 1341 | WAT - Clean Water District | $13.00 | $13.00 | $0.00 | $0.00 | $0.00 | $26.00 |
| 2026 | 1341 | FP ADMIN - FP ADMIN | $0.50 | $0.00 | $0.00 | $0.00 | $0.00 | $0.50 |
| 2026 | 1341 | TOTAL: | $5523.97 | $5523.41 | $0.00 | $0.00 | $0.00 | $11047.38 |
|
| 2026 | 1341 | $5523.97 | $5523.41 | $0.00 | $0.00 | $0.00 | $11047.38 |
Statement Details |
| 2025 | 1346 | STATE - STATE LEVY (SCHOOL) | $1586.70 | $1586.69 | $0.00 | $0.00 | $3173.39 | $0.00 |
| 2025 | 1346 | COUNTY - COUNTY LEVIES (CE, DD, VET, MH) | $623.97 | $623.95 | $0.00 | $0.00 | $1247.92 | $0.00 |
| 2025 | 1346 | CONSERVE - CONSERVATION FUTURES | $18.71 | $18.71 | $0.00 | $0.00 | $37.42 | $0.00 |
| 2025 | 1346 | COROADS - COUNTY ROADS (ROADS, DIV TO CE) | $499.89 | $499.89 | $0.00 | $0.00 | $999.78 | $0.00 |
| 2025 | 1346 | PORTPT - PORT DISTRICT | $254.62 | $254.61 | $0.00 | $0.00 | $509.23 | $0.00 |
| 2025 | 1346 | PUD1 - PUD #1 | $40.83 | $40.83 | $0.00 | $0.00 | $81.66 | $0.00 |
| 2025 | 1346 | LIB1 - LIBRARY DIST #1 | $193.41 | $193.40 | $0.00 | $0.00 | $386.81 | $0.00 |
| 2025 | 1346 | HD2 - HOSP DIST #2 | $36.41 | $36.40 | $0.00 | $0.00 | $72.81 | $0.00 |
| 2025 | 1346 | SD50 - SCHOOL DIST #50 | $1159.62 | $1159.60 | $0.00 | $0.00 | $2319.22 | $0.00 |
| 2025 | 1346 | FD1 - FIRE DISTRICT #1 | $823.38 | $823.38 | $0.00 | $0.00 | $1646.76 | $0.00 |
| 2025 | 1346 | EMS1 - FIRE DIST #1 EMS | $316.70 | $316.69 | $0.00 | $0.00 | $633.39 | $0.00 |
| 2025 | 1346 | FP - DNR Forest Fire Protection Assmt | $8.50 | $8.50 | $0.00 | $0.00 | $17.00 | $0.00 |
| 2025 | 1346 | FPLCA - DNR Landowner Contingency Assmt | $3.00 | $3.00 | $0.00 | $0.00 | $6.00 | $0.00 |
| 2025 | 1346 | JCCD - JC Conservation District | $2.80 | $2.80 | $0.00 | $0.00 | $5.60 | $0.00 |
| 2025 | 1346 | NWA - Noxious Weed Assessment | $2.90 | $2.90 | $0.00 | $0.00 | $5.80 | $0.00 |
| 2025 | 1346 | OSS - On Site Septic | $21.50 | $21.50 | $0.00 | $0.00 | $43.00 | $0.00 |
| 2025 | 1346 | WAT - Clean Water District | $13.00 | $13.00 | $0.00 | $0.00 | $26.00 | $0.00 |
| 2025 | 1346 | FP ADMIN - FP ADMIN | $0.50 | $0.00 | $0.00 | $0.00 | $0.50 | $0.00 |
| 2025 | 1346 | TOTAL: | $5606.44 | $5605.85 | $0.00 | $0.00 | $11212.29 | $0.00 |
|
| 2025 | 1346 | $5606.44 | $5605.85 | $0.00 | $0.00 | $11212.29 | $0.00 |
Statement Details |
| 2024 | 1348 | STATE - STATE LEVY (SCHOOL) | $1427.54 | $1427.53 | $0.00 | $0.00 | $2855.07 | $0.00 |
| 2024 | 1348 | COUNTY - COUNTY LEVIES (CE, DD, VET, MH) | $610.86 | $610.85 | $0.00 | $0.00 | $1221.71 | $0.00 |
| 2024 | 1348 | CONSERVE - CONSERVATION FUTURES | $18.32 | $18.31 | $0.00 | $0.00 | $36.63 | $0.00 |
| 2024 | 1348 | COROADS - COUNTY ROADS (ROADS, DIV TO CE) | $491.54 | $491.54 | $0.00 | $0.00 | $983.08 | $0.00 |
| 2024 | 1348 | PORTPT - PORT DISTRICT | $252.32 | $252.30 | $0.00 | $0.00 | $504.62 | $0.00 |
| 2024 | 1348 | PUD1 - PUD #1 | $40.13 | $40.12 | $0.00 | $0.00 | $80.25 | $0.00 |
| 2024 | 1348 | LIB1 - LIBRARY DIST #1 | $190.17 | $190.17 | $0.00 | $0.00 | $380.34 | $0.00 |
| 2024 | 1348 | HD2 - HOSP DIST #2 | $35.64 | $35.64 | $0.00 | $0.00 | $71.28 | $0.00 |
| 2024 | 1348 | SD50 - SCHOOL DIST #50 | $1154.95 | $1154.94 | $0.00 | $0.00 | $2309.89 | $0.00 |
| 2024 | 1348 | FD1 - FIRE DISTRICT #1 | $807.70 | $807.69 | $0.00 | $0.00 | $1615.39 | $0.00 |
| 2024 | 1348 | EMS1 - FIRE DIST #1 EMS | $308.51 | $308.51 | $0.00 | $0.00 | $617.02 | $0.00 |
| 2024 | 1348 | FP - DNR Forest Fire Protection Assmt | $8.50 | $8.50 | $0.00 | $0.00 | $17.00 | $0.00 |
| 2024 | 1348 | FPLCA - DNR Landowner Contingency Assmt | $3.00 | $3.00 | $0.00 | $0.00 | $6.00 | $0.00 |
| 2024 | 1348 | JCCD - JC Conservation District | $2.80 | $2.80 | $0.00 | $0.00 | $5.60 | $0.00 |
| 2024 | 1348 | NWA - Noxious Weed Assessment | $2.90 | $2.90 | $0.00 | $0.00 | $5.80 | $0.00 |
| 2024 | 1348 | OSS - On Site Septic | $21.00 | $21.00 | $0.00 | $0.00 | $42.00 | $0.00 |
| 2024 | 1348 | WAT - Clean Water District | $12.50 | $12.50 | $0.00 | $0.00 | $25.00 | $0.00 |
| 2024 | 1348 | FP ADMIN - FP ADMIN | $0.50 | $0.00 | $0.00 | $0.00 | $0.50 | $0.00 |
| 2024 | 1348 | TOTAL: | $5388.88 | $5388.30 | $0.00 | $0.00 | $10777.18 | $0.00 |
|
| 2024 | 1348 | $5388.88 | $5388.30 | $0.00 | $0.00 | $10777.18 | $0.00 |
Statement Details |
| 2023 | 1348 | STATE - STATE LEVY (SCHOOL) | $1319.93 | $1319.92 | $0.00 | $0.00 | $2639.85 | $0.00 |
| 2023 | 1348 | COUNTY - COUNTY LEVIES (CE, DD, VET, MH) | $575.98 | $575.97 | $0.00 | $0.00 | $1151.95 | $0.00 |
| 2023 | 1348 | CONSERVE - CONSERVATION FUTURES | $17.27 | $17.27 | $0.00 | $0.00 | $34.54 | $0.00 |
| 2023 | 1348 | COROADS - COUNTY ROADS (ROADS, DIV TO CE) | $466.01 | $466.00 | $0.00 | $0.00 | $932.01 | $0.00 |
| 2023 | 1348 | PORTPT - PORT DISTRICT | $242.64 | $242.63 | $0.00 | $0.00 | $485.27 | $0.00 |
| 2023 | 1348 | PUD1 - PUD #1 | $38.18 | $38.18 | $0.00 | $0.00 | $76.36 | $0.00 |
| 2023 | 1348 | LIB1 - LIBRARY DIST #1 | $180.30 | $180.29 | $0.00 | $0.00 | $360.59 | $0.00 |
| 2023 | 1348 | HD2 - HOSP DIST #2 | $33.61 | $33.61 | $0.00 | $0.00 | $67.22 | $0.00 |
| 2023 | 1348 | SD50 - SCHOOL DIST #50 | $1047.39 | $1047.38 | $0.00 | $0.00 | $2094.77 | $0.00 |
| 2023 | 1348 | FD1 - FIRE DISTRICT #1 | $474.49 | $474.49 | $0.00 | $0.00 | $948.98 | $0.00 |
| 2023 | 1348 | EMS1 - FIRE DIST #1 EMS | $201.84 | $201.84 | $0.00 | $0.00 | $403.68 | $0.00 |
| 2023 | 1348 | FP - DNR Forest Fire Protection Assmt | $8.50 | $8.50 | $0.00 | $0.00 | $17.00 | $0.00 |
| 2023 | 1348 | FPLCA - DNR Landowner Contingency Assmt | $3.00 | $3.00 | $0.00 | $0.00 | $6.00 | $0.00 |
| 2023 | 1348 | JCCD - JC Conservation District | $2.80 | $2.80 | $0.00 | $0.00 | $5.60 | $0.00 |
| 2023 | 1348 | NWA - Noxious Weed Assessment | $2.90 | $2.90 | $0.00 | $0.00 | $5.80 | $0.00 |
| 2023 | 1348 | OSS - On Site Septic | $20.50 | $20.50 | $0.00 | $0.00 | $41.00 | $0.00 |
| 2023 | 1348 | WAT - Clean Water District | $12.00 | $12.00 | $0.00 | $0.00 | $24.00 | $0.00 |
| 2023 | 1348 | FP ADMIN - FP ADMIN | $0.50 | $0.00 | $0.00 | $0.00 | $0.50 | $0.00 |
| 2023 | 1348 | TOTAL: | $4647.84 | $4647.28 | $0.00 | $0.00 | $9295.12 | $0.00 |
|
| 2023 | 1348 | $4647.84 | $4647.28 | $0.00 | $0.00 | $9295.12 | $0.00 |
Values
| (+) Improvement Homesite Value: | + | $0 | |
| (+) Improvement Non-Homesite Value: | + | $955,875 | |
| (+) Land Homesite Value: | + | $0 | |
| (+) Land Non-Homesite Value: | + | $367,461 | |
| (+) Curr Use (HS): | + | $0 | $0 |
| (+) Curr Use (NHS): | + | $0 | $0 |
| | | -------------------------- | |
| (=) Market Value: | = | $1,323,336 | |
| (–) Productivity Loss: | – | $0 | |
| | | -------------------------- | |
| (=) Subtotal: | = | $1,323,336 | |
| (+) Senior Appraised Value: | + | $0 | |
| (+) Non-Senior Appraised Value: | + | $1,323,336 | |
| | | -------------------------- | |
| (=) Total Appraised Value: | = | $1,323,336 | |
| (–) Senior Exemption Loss: | – | $0 | |
| (–) Exemption Loss: | – | $0 | |
| | | -------------------------- | |
| (=) Taxable Value: | = | $1,323,336 | |
Taxing Jurisdiction
| Owner: | MICHAEL D SCARBROUGH | | |
| % Ownership: | 100.0000000000% | | |
| Total Value: | $1,323,336 | | |
| Tax Area: | 0111 - 1-50F1E1H2L1 |
| CE | COUNTY CURRENT EXPENSE | 0.9034619479 | $1,323,336 | $1,323,336 | $1,195.58 | | |
| CNTYDD | DEVELOPMENTAL DISABILITIES | 0.0052121823 | $1,323,336 | $1,323,336 | $6.90 | | |
| CNTYVET | VETERANS RELIEF | 0.0052777810 | $1,323,336 | $1,323,336 | $6.98 | | |
| MENTAL | MENTAL HEALTH | 0.0052121823 | $1,323,336 | $1,323,336 | $6.90 | | |
| ROADS | COUNTY ROADS | 0.7415066410 | $1,323,336 | $1,323,336 | $981.26 | | |
| ROADSCU | COUNTY ROADS TO CUR EXP | 0.0000000000 | $1,323,336 | $1,323,336 | $0.00 | | |
| HOSP2CASH | HOSP DIST #2 GENERAL | 0.0536075306 | $1,323,336 | $1,323,336 | $70.94 | | |
| SCH50BOND | SCHOOL DIST #50 BOND 2016 | 0.5377451389 | $1,323,336 | $1,323,336 | $711.62 | | |
| SCH50CP | SCHOOL DIST #50 CAP PROJ | 0.4573475088 | $1,323,336 | $1,323,336 | $605.22 | | |
| SCH50MO | SCHOOL DIST #50 EP & O | 0.8262822886 | $1,323,336 | $1,323,336 | $1,093.45 | | |
| CONSERVE | CONSERVATION FUTURES | 0.0275621078 | $1,323,336 | $1,323,336 | $36.47 | | |
| EMS1 | FIRE DIST #1 EMS | 0.4679948282 | $1,323,336 | $1,323,336 | $619.31 | | |
| FD1 | FIRE DIST #1 GENERAL | 1.2171942929 | $1,323,336 | $1,323,336 | $1,610.76 | | |
| LIB1 | LIBRARY DIST #1 GENERAL | 0.2868827388 | $1,323,336 | $1,323,336 | $379.64 | | |
| PORTPT | PORT OF PT GENERAL | 0.1134941229 | $1,323,336 | $1,323,336 | $150.19 | | |
| PORTPTIDD | PORT OF PT IDD 2019 | 0.2577346692 | $1,323,336 | $1,323,336 | $341.07 | | |
| PUD1 | PUD #1 GENERAL | 0.0597888892 | $1,323,336 | $1,323,336 | $79.12 | | |
| STATE | STATE SCHOOL PART 1 | 1.4940692947 | $1,323,336 | $1,323,336 | $1,977.16 | | |
| STATE2 | STATE SCHOOL PART 2 | 0.8050170049 | $1,323,336 | $1,323,336 | $1,065.31 | | |
| | Total Tax Rate: | 8.2653911500 | | | | | |
| | | | | Taxes w/Current Exemptions: | $10,937.88 | | |
| | | | | Taxes w/o Exemptions: | $10,937.88 | | |
Improvement / Building
| Improvement #1: | Residential Bldg | State Code: | 11 | 2504.0 sqft | Value: | $639,009 |
| Bathrooms (#): | 2 (FULL) | Bedrooms (#): | 2 | | Exterior Wall: | SI/ST | Fireplace: | WD ST-GOOD | | Floor Construction: | FRAME | Foundation: | CONPR | | Heating/Cooling: | HPUMP | Inside Verify: | NO | | Roof Cover: | METAL |   |   |
|
| | Type | Description | Class CD | Sub Class CD | Year Built | Area |
| | MA | Main Area | 5- | 15SF | 2011 | 1768.0 |
| | MA2 | Second Floor Main Area | 5- | 15SF | 2011 | 736.0 |
| | HCPOR | House Concrete Porch | 5 | 15SF | 2011 | 41.0 |
| | GBSMT | Basement Garage | 5 | 15SF | 2011 | 728.0 |
| | PATIO | House Patio | 5 | 15SF | 2011 | 416.0 |
| | SOLAR | Solar Panel | 4 | 15SF | 2011 | 0.0 |
| Improvement #2: | Commercial/Industrial/Government Bldg | State Code: | 20 | 2760.0 sqft | Value: | $316,866 |
Sketch
Property Image
Land
| 1 | 5360-1535F | | 0.0000 | 0.00 | 0.00 | 0.00 | 0.00 | $208,120 | $0 |
| 2 | 5360-1535F | | 0.0000 | 0.00 | 75.00 | 0.00 | 0.00 | $159,341 | $0 |
Roll Value History
| 2026 | N/A | N/A | N/A | N/A | N/A |
| 2025 | $955,875 | $367,461 | $0 | $1,323,336 | $1,323,336 |
| 2024 | $955,875 | $367,461 | $0 | $1,323,336 | $1,323,336 |
| 2023 | $899,032 | $335,008 | $0 | $1,234,040 | $1,234,040 |
| 2022 | $817,301 | $304,055 | $0 | $1,121,356 | $1,121,356 |
Deed and Sales History
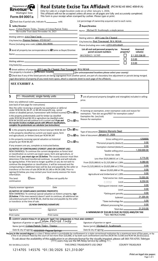
| 1 | 01/21/2026 | SWD | Statutory Warranty Deed | COLUM P TINLEY REVOCABLE TRUST | MICHAEL D SCARBROUGH | | | $1,250,000.00 | 145576 | |
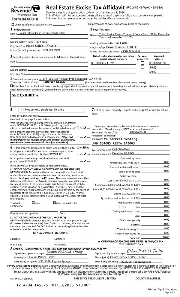
| 2 | 12/26/2023 | QCD | Quit Claim Deed | COLUM P TINLEY | COLUM P TINLEY REV TRUST | | | | 145575 | RERECORD |
| 3 | 12/26/2023 | QCD | Quit Claim Deed | COLUM P TINLEY | COLUM P TINLEY REVOCABLE TRUST | | | | 142063 | |
| 4 | 01/02/2001 | SWD | Statutory Warranty Deed | LEBENS, DEAN C/RAYMOND A | TINLEY, COLUM P | 0 | 0 | $310,000.00 | 91445 | 0 |
Payout Agreement
| No payout information available.. |