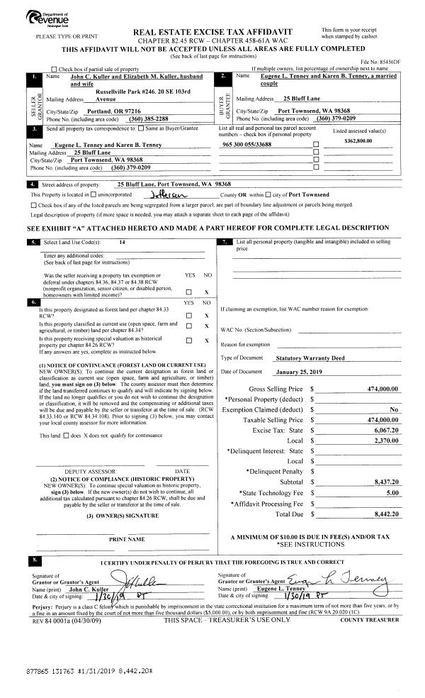
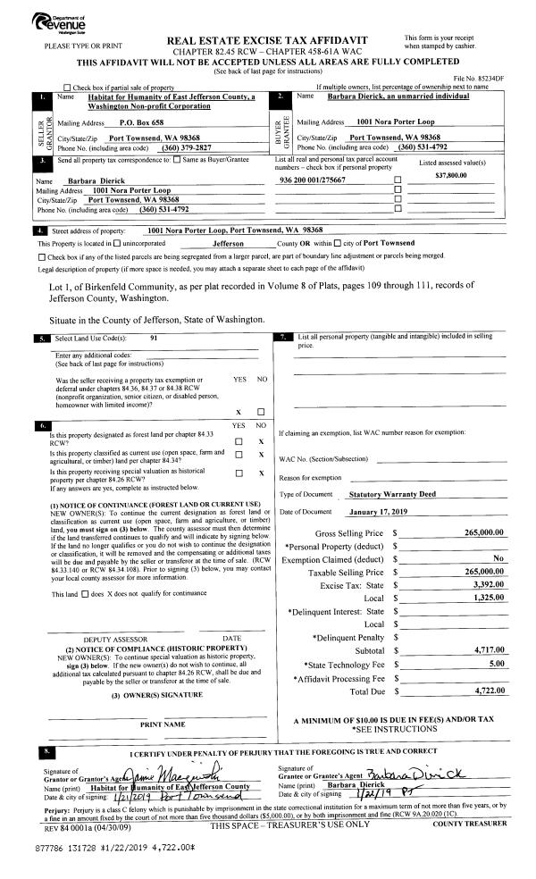
Property
Account |
| Property ID: | 11440 | Abbreviated Legal Description: | DISCOVERY BAY RIDGE DIV IV PARCEL 30 SUBJ TO EASE |
| Parcel # / Geo ID: | 001305030 | Agent Code: | |
| Type: | Real | | |
| Tax Area: | 0111 - 1-50F1E1H2L1 | Land Use Code | 11 |
| Open Space: | N | DFL | N |
| Historic Property: | N | Remodel Property: | N |
| Multi-Family Redevelopment: | N | | |
| Township: | 30N | Section: | 30 |
| Range: | 1W |
Location |
| Address: | 426 BLUE RIDGE RD PORT TOWNSEND, WA 98368 | Mapsco: | 142/030 |
| Neighborhood: | S19,30&31T30NR1W,S25T30R2W,ARBUTUS,BAYVIEW CHEVY,DISCO RIDGE | Map ID: | |
| Neighborhood CD: | 5360 |
Owner |
| Name: | CHARLES D WOOD | Owner ID: | 100491 |
| Mailing Address: | KATHLEEN R SCANLAN PO BOX 1316 PORT TOWNSEND, WA 98368 | % Ownership: | 100.0000000000% |
| | | Exemptions: | |
Pay Tax Due
Select the appropriate checkbox next to the year to be paid. Multiple years may be selected.
*Convenience Fee not included
Taxes and Assessment Details
Property Tax Information as of
03/09/2026
Click on "Statement Details" to expand or collapse a tax statement.
* Please enter a valid date ** Please enter a valid date *
Statement Details |
| 2026 | 1385 | STATE - STATE LEVY (SCHOOL) | $316.46 | $316.45 | $0.00 | $0.00 | $0.00 | $632.91 |
| 2026 | 1385 | COUNTY - COUNTY LEVIES (CE, DD, VET, MH) | $126.53 | $126.49 | $0.00 | $0.00 | $0.00 | $253.02 |
| 2026 | 1385 | CONSERVE - CONSERVATION FUTURES | $3.80 | $3.79 | $0.00 | $0.00 | $0.00 | $7.59 |
| 2026 | 1385 | COROADS - COUNTY ROADS (ROADS, DIV TO CE) | $102.07 | $102.06 | $0.00 | $0.00 | $0.00 | $204.13 |
| 2026 | 1385 | PORTPT - PORT DISTRICT | $51.10 | $51.09 | $0.00 | $0.00 | $0.00 | $102.19 |
| 2026 | 1385 | PUD1 - PUD #1 | $8.23 | $8.23 | $0.00 | $0.00 | $0.00 | $16.46 |
| 2026 | 1385 | LIB1 - LIBRARY DIST #1 | $39.49 | $39.49 | $0.00 | $0.00 | $0.00 | $78.98 |
| 2026 | 1385 | HD2 - HOSP DIST #2 | $7.38 | $7.38 | $0.00 | $0.00 | $0.00 | $14.76 |
| 2026 | 1385 | SD50 - SCHOOL DIST #50 | $250.71 | $250.70 | $0.00 | $0.00 | $0.00 | $501.41 |
| 2026 | 1385 | FD1 - FIRE DISTRICT #1 | $167.54 | $167.54 | $0.00 | $0.00 | $0.00 | $335.08 |
| 2026 | 1385 | EMS1 - FIRE DIST #1 EMS | $64.42 | $64.41 | $0.00 | $0.00 | $0.00 | $128.83 |
| 2026 | 1385 | FP - DNR Forest Fire Protection Assmt | $8.50 | $8.50 | $0.00 | $0.00 | $0.00 | $17.00 |
| 2026 | 1385 | FPLCA - DNR Landowner Contingency Assmt | $3.00 | $3.00 | $0.00 | $0.00 | $0.00 | $6.00 |
| 2026 | 1385 | JCCD - JC Conservation District | $2.80 | $2.80 | $0.00 | $0.00 | $0.00 | $5.60 |
| 2026 | 1385 | NWA - Noxious Weed Assessment | $4.10 | $4.10 | $0.00 | $0.00 | $0.00 | $8.20 |
| 2026 | 1385 | OSS - On Site Septic | $23.10 | $23.10 | $0.00 | $0.00 | $0.00 | $46.20 |
| 2026 | 1385 | WAT - Clean Water District | $13.00 | $13.00 | $0.00 | $0.00 | $0.00 | $26.00 |
| 2026 | 1385 | FP ADMIN - FP ADMIN | $0.50 | $0.00 | $0.00 | $0.00 | $0.00 | $0.50 |
| 2026 | 1385 | TOTAL: | $1192.73 | $1192.13 | $0.00 | $0.00 | $0.00 | $2384.86 |
|
| 2026 | 1385 | $1192.73 | $1192.13 | $0.00 | $0.00 | $0.00 | $2384.86 |
Statement Details |
| 2025 | 1390 | STATE - STATE LEVY (SCHOOL) | $330.08 | $330.07 | $0.00 | $0.00 | $660.15 | $0.00 |
| 2025 | 1390 | COUNTY - COUNTY LEVIES (CE, DD, VET, MH) | $129.82 | $129.79 | $0.00 | $0.00 | $259.61 | $0.00 |
| 2025 | 1390 | CONSERVE - CONSERVATION FUTURES | $3.89 | $3.89 | $0.00 | $0.00 | $7.78 | $0.00 |
| 2025 | 1390 | COROADS - COUNTY ROADS (ROADS, DIV TO CE) | $104.00 | $103.98 | $0.00 | $0.00 | $207.98 | $0.00 |
| 2025 | 1390 | PORTPT - PORT DISTRICT | $52.97 | $52.96 | $0.00 | $0.00 | $105.93 | $0.00 |
| 2025 | 1390 | PUD1 - PUD #1 | $8.50 | $8.49 | $0.00 | $0.00 | $16.99 | $0.00 |
| 2025 | 1390 | LIB1 - LIBRARY DIST #1 | $40.24 | $40.23 | $0.00 | $0.00 | $80.47 | $0.00 |
| 2025 | 1390 | HD2 - HOSP DIST #2 | $7.58 | $7.57 | $0.00 | $0.00 | $15.15 | $0.00 |
| 2025 | 1390 | SD50 - SCHOOL DIST #50 | $241.24 | $241.22 | $0.00 | $0.00 | $482.46 | $0.00 |
| 2025 | 1390 | FD1 - FIRE DISTRICT #1 | $171.29 | $171.28 | $0.00 | $0.00 | $342.57 | $0.00 |
| 2025 | 1390 | EMS1 - FIRE DIST #1 EMS | $65.88 | $65.88 | $0.00 | $0.00 | $131.76 | $0.00 |
| 2025 | 1390 | FP - DNR Forest Fire Protection Assmt | $8.50 | $8.50 | $0.00 | $0.00 | $17.00 | $0.00 |
| 2025 | 1390 | FPLCA - DNR Landowner Contingency Assmt | $3.00 | $3.00 | $0.00 | $0.00 | $6.00 | $0.00 |
| 2025 | 1390 | JCCD - JC Conservation District | $2.80 | $2.80 | $0.00 | $0.00 | $5.60 | $0.00 |
| 2025 | 1390 | NWA - Noxious Weed Assessment | $2.90 | $2.90 | $0.00 | $0.00 | $5.80 | $0.00 |
| 2025 | 1390 | OSS - On Site Septic | $21.50 | $21.50 | $0.00 | $0.00 | $43.00 | $0.00 |
| 2025 | 1390 | WAT - Clean Water District | $13.00 | $13.00 | $0.00 | $0.00 | $26.00 | $0.00 |
| 2025 | 1390 | FP ADMIN - FP ADMIN | $0.50 | $0.00 | $0.00 | $0.00 | $0.50 | $0.00 |
| 2025 | 1390 | TOTAL: | $1207.69 | $1207.06 | $0.00 | $0.00 | $2414.75 | $0.00 |
|
| 2025 | 1390 | $1207.69 | $1207.06 | $0.00 | $0.00 | $2414.75 | $0.00 |
Statement Details |
| 2024 | 1392 | STATE - STATE LEVY (SCHOOL) | $214.47 | $214.47 | $0.00 | $0.00 | $428.94 | $0.00 |
| 2024 | 1392 | COUNTY - COUNTY LEVIES (CE, DD, VET, MH) | $91.78 | $91.77 | $0.00 | $0.00 | $183.55 | $0.00 |
| 2024 | 1392 | CONSERVE - CONSERVATION FUTURES | $2.75 | $2.75 | $0.00 | $0.00 | $5.50 | $0.00 |
| 2024 | 1392 | COROADS - COUNTY ROADS (ROADS, DIV TO CE) | $73.85 | $73.84 | $0.00 | $0.00 | $147.69 | $0.00 |
| 2024 | 1392 | PORTPT - PORT DISTRICT | $37.91 | $37.90 | $0.00 | $0.00 | $75.81 | $0.00 |
| 2024 | 1392 | PUD1 - PUD #1 | $6.03 | $6.03 | $0.00 | $0.00 | $12.06 | $0.00 |
| 2024 | 1392 | LIB1 - LIBRARY DIST #1 | $28.57 | $28.57 | $0.00 | $0.00 | $57.14 | $0.00 |
| 2024 | 1392 | HD2 - HOSP DIST #2 | $5.36 | $5.35 | $0.00 | $0.00 | $10.71 | $0.00 |
| 2024 | 1392 | SD50 - SCHOOL DIST #50 | $173.52 | $173.51 | $0.00 | $0.00 | $347.03 | $0.00 |
| 2024 | 1392 | FD1 - FIRE DISTRICT #1 | $121.35 | $121.34 | $0.00 | $0.00 | $242.69 | $0.00 |
| 2024 | 1392 | EMS1 - FIRE DIST #1 EMS | $46.35 | $46.35 | $0.00 | $0.00 | $92.70 | $0.00 |
| 2024 | 1392 | FP - DNR Forest Fire Protection Assmt | $8.50 | $8.50 | $0.00 | $0.00 | $17.00 | $0.00 |
| 2024 | 1392 | FPLCA - DNR Landowner Contingency Assmt | $3.00 | $3.00 | $0.00 | $0.00 | $6.00 | $0.00 |
| 2024 | 1392 | JCCD - JC Conservation District | $2.73 | $2.73 | $0.00 | $0.00 | $5.46 | $0.00 |
| 2024 | 1392 | NWA - Noxious Weed Assessment | $2.90 | $2.90 | $0.00 | $0.00 | $5.80 | $0.00 |
| 2024 | 1392 | OSS - On Site Septic | $21.00 | $21.00 | $0.00 | $0.00 | $42.00 | $0.00 |
| 2024 | 1392 | WAT - Clean Water District | $12.50 | $12.50 | $0.00 | $0.00 | $25.00 | $0.00 |
| 2024 | 1392 | FP ADMIN - FP ADMIN | $0.50 | $0.00 | $0.00 | $0.00 | $0.50 | $0.00 |
| 2024 | 1392 | TOTAL: | $853.07 | $852.51 | $0.00 | $0.00 | $1705.58 | $0.00 |
|
| 2024 | 1392 | $853.07 | $852.51 | $0.00 | $0.00 | $1705.58 | $0.00 |
Statement Details |
| 2023 | 1392 | STATE - STATE LEVY (SCHOOL) | $198.35 | $198.35 | $0.00 | $0.00 | $396.70 | $0.00 |
| 2023 | 1392 | COUNTY - COUNTY LEVIES (CE, DD, VET, MH) | $86.56 | $86.55 | $0.00 | $0.00 | $173.11 | $0.00 |
| 2023 | 1392 | CONSERVE - CONSERVATION FUTURES | $2.60 | $2.59 | $0.00 | $0.00 | $5.19 | $0.00 |
| 2023 | 1392 | COROADS - COUNTY ROADS (ROADS, DIV TO CE) | $70.03 | $70.02 | $0.00 | $0.00 | $140.05 | $0.00 |
| 2023 | 1392 | PORTPT - PORT DISTRICT | $36.47 | $36.45 | $0.00 | $0.00 | $72.92 | $0.00 |
| 2023 | 1392 | PUD1 - PUD #1 | $5.74 | $5.73 | $0.00 | $0.00 | $11.47 | $0.00 |
| 2023 | 1392 | LIB1 - LIBRARY DIST #1 | $27.10 | $27.09 | $0.00 | $0.00 | $54.19 | $0.00 |
| 2023 | 1392 | HD2 - HOSP DIST #2 | $5.05 | $5.05 | $0.00 | $0.00 | $10.10 | $0.00 |
| 2023 | 1392 | SD50 - SCHOOL DIST #50 | $157.40 | $157.38 | $0.00 | $0.00 | $314.78 | $0.00 |
| 2023 | 1392 | FD1 - FIRE DISTRICT #1 | $71.31 | $71.30 | $0.00 | $0.00 | $142.61 | $0.00 |
| 2023 | 1392 | EMS1 - FIRE DIST #1 EMS | $30.33 | $30.33 | $0.00 | $0.00 | $60.66 | $0.00 |
| 2023 | 1392 | FP - DNR Forest Fire Protection Assmt | $8.50 | $8.50 | $0.00 | $0.00 | $17.00 | $0.00 |
| 2023 | 1392 | FPLCA - DNR Landowner Contingency Assmt | $3.00 | $3.00 | $0.00 | $0.00 | $6.00 | $0.00 |
| 2023 | 1392 | JCCD - JC Conservation District | $2.73 | $2.73 | $0.00 | $0.00 | $5.46 | $0.00 |
| 2023 | 1392 | NWA - Noxious Weed Assessment | $2.90 | $2.90 | $0.00 | $0.00 | $5.80 | $0.00 |
| 2023 | 1392 | OSS - On Site Septic | $20.50 | $20.50 | $0.00 | $0.00 | $41.00 | $0.00 |
| 2023 | 1392 | WAT - Clean Water District | $12.00 | $12.00 | $0.00 | $0.00 | $24.00 | $0.00 |
| 2023 | 1392 | FP ADMIN - FP ADMIN | $0.50 | $0.00 | $0.00 | $0.00 | $0.50 | $0.00 |
| 2023 | 1392 | TOTAL: | $741.07 | $740.47 | $0.00 | $0.00 | $1481.54 | $0.00 |
|
| 2023 | 1392 | $741.07 | $740.47 | $0.00 | $0.00 | $1481.54 | $0.00 |
Values
| (+) Improvement Homesite Value: | + | $0 | |
| (+) Improvement Non-Homesite Value: | + | $60,130 | |
| (+) Land Homesite Value: | + | $0 | |
| (+) Land Non-Homesite Value: | + | $215,160 | |
| (+) Curr Use (HS): | + | $0 | $0 |
| (+) Curr Use (NHS): | + | $0 | $0 |
| | | -------------------------- | |
| (=) Market Value: | = | $275,290 | |
| (–) Productivity Loss: | – | $0 | |
| | | -------------------------- | |
| (=) Subtotal: | = | $275,290 | |
| (+) Senior Appraised Value: | + | $0 | |
| (+) Non-Senior Appraised Value: | + | $275,290 | |
| | | -------------------------- | |
| (=) Total Appraised Value: | = | $275,290 | |
| (–) Senior Exemption Loss: | – | $0 | |
| (–) Exemption Loss: | – | $0 | |
| | | -------------------------- | |
| (=) Taxable Value: | = | $275,290 | |
Taxing Jurisdiction
| Owner: | CHARLES D WOOD | | |
| % Ownership: | 100.0000000000% | | |
| Total Value: | $275,290 | | |
| Tax Area: | 0111 - 1-50F1E1H2L1 |
| CE | COUNTY CURRENT EXPENSE | 0.9034619479 | $275,290 | $275,290 | $248.71 | | |
| CNTYDD | DEVELOPMENTAL DISABILITIES | 0.0052121823 | $275,290 | $275,290 | $1.43 | | |
| CNTYVET | VETERANS RELIEF | 0.0052777810 | $275,290 | $275,290 | $1.45 | | |
| MENTAL | MENTAL HEALTH | 0.0052121823 | $275,290 | $275,290 | $1.43 | | |
| ROADS | COUNTY ROADS | 0.7415066410 | $275,290 | $275,290 | $204.13 | | |
| ROADSCU | COUNTY ROADS TO CUR EXP | 0.0000000000 | $275,290 | $275,290 | $0.00 | | |
| HOSP2CASH | HOSP DIST #2 GENERAL | 0.0536075306 | $275,290 | $275,290 | $14.76 | | |
| SCH50BOND | SCHOOL DIST #50 BOND 2016 | 0.5377451389 | $275,290 | $275,290 | $148.04 | | |
| SCH50CP | SCHOOL DIST #50 CAP PROJ | 0.4573475088 | $275,290 | $275,290 | $125.90 | | |
| SCH50MO | SCHOOL DIST #50 EP & O | 0.8262822886 | $275,290 | $275,290 | $227.47 | | |
| CONSERVE | CONSERVATION FUTURES | 0.0275621078 | $275,290 | $275,290 | $7.59 | | |
| EMS1 | FIRE DIST #1 EMS | 0.4679948282 | $275,290 | $275,290 | $128.83 | | |
| FD1 | FIRE DIST #1 GENERAL | 1.2171942929 | $275,290 | $275,290 | $335.08 | | |
| LIB1 | LIBRARY DIST #1 GENERAL | 0.2868827388 | $275,290 | $275,290 | $78.98 | | |
| PORTPT | PORT OF PT GENERAL | 0.1134941229 | $275,290 | $275,290 | $31.24 | | |
| PORTPTIDD | PORT OF PT IDD 2019 | 0.2577346692 | $275,290 | $275,290 | $70.95 | | |
| PUD1 | PUD #1 GENERAL | 0.0597888892 | $275,290 | $275,290 | $16.46 | | |
| STATE | STATE SCHOOL PART 1 | 1.4940692947 | $275,290 | $275,290 | $411.30 | | |
| STATE2 | STATE SCHOOL PART 2 | 0.8050170049 | $275,290 | $275,290 | $221.61 | | |
| | Total Tax Rate: | 8.2653911500 | | | | | |
| | | | | Taxes w/Current Exemptions: | $2,275.36 | | |
| | | | | Taxes w/o Exemptions: | $2,275.36 | | |
Improvement / Building
| Improvement #1: | Residential Bldg | State Code: | 11 | 1269.8 sqft | Value: | $60,130 |
| Bathrooms (#): | 1 (FULL) | Bedrooms (#): | 1 | | Exterior Wall: | SI/ST | Foundation: | CONPR | | Heating/Cooling: | OTHER | Roof Cover: | COMP |
|
| | Type | Description | Class CD | Sub Class CD | Year Built | Area |
| | MA | Main Area | 4+ | 15SF | 2024 | 900.8 |
| | MA2 | Second Floor Main Area | 4+ | 15SF | 2024 | 369.0 |
Sketch
Property Image
Land
| 1 | 1572A | | 4.0300 | 175546.80 | 0.00 | 0.00 | 0.00 | $88,660 | $0 |
| 2 | 5360-1355S | | 1.0000 | 43560.00 | 0.00 | 0.00 | 1.00 | $126,500 | $0 |
Roll Value History
| 2026 | N/A | N/A | N/A | N/A | N/A |
| 2025 | $60,130 | $215,160 | $0 | $275,290 | $275,290 |
| 2024 | $60,130 | $215,160 | $0 | $275,290 | $275,290 |
| 2023 | $0 | $185,399 | $0 | $185,399 | $185,399 |
| 2022 | $0 | $168,510 | $0 | $168,510 | $168,510 |
Deed and Sales History
| 1 | 01/29/2019 | SWD | Statutory Warranty Deed | DOUG & SANDY HATHON | CHARLES D WOOD | | | $160,000.00 | 131773 | |
| 2 | 01/25/2019 | QCD | Quit Claim Deed | HATHON INC | DOUG & SANDY HATHON | | | | 131739 | |
| 3 | 09/16/2016 | SWD | Statutory Warranty Deed | TONY M REED | HATHON INC | | | $100,000.00 | 126313 | |
| 4 | 11/25/2003 | SWD | Statutory Warranty Deed | DISCOVERY RIDGE LLC | REED, TONY M/TAMARA S | 0 | 0 | $68,000.00 | 98955 | 0 |
Payout Agreement
| No payout information available.. |