Property
Account |
| Property ID: | 11479 | Abbreviated Legal Description: | S32 T30 R1W TAX 73 (LESS TAX 94) LESS R/W |
| Parcel # / Geo ID: | 001321028 | Agent Code: | |
| Type: | Real | | |
| Tax Area: | 0111 - 1-50F1E1H2L1 | Land Use Code | 11 |
| Open Space: | N | DFL | N |
| Historic Property: | N | Remodel Property: | N |
| Multi-Family Redevelopment: | N | | |
| Township: | 30N | Section: | 32 |
| Range: | 1W |
Location |
| Address: | 180 BLACK BEAR RD PORT TOWNSEND, WA 98368 | Mapsco: | 103/004 |
| Neighborhood: | S32 T30 R1W, ADELMA BCH, DISCO HEIGHTS | Map ID: | |
| Neighborhood CD: | 5375 |
Owner |
| Name: | JAY SACHS & MARY DEVOE | Owner ID: | 100267 |
| Mailing Address: | 1253 UMATILLA AVE PORT TOWNSEND, WA 98368-4843 | % Ownership: | 100.0000000000% |
| | | Exemptions: | |
Pay Tax Due
Select the appropriate checkbox next to the year to be paid. Multiple years may be selected.
*Convenience Fee not included
Taxes and Assessment Details
Property Tax Information as of
03/12/2026
Click on "Statement Details" to expand or collapse a tax statement.
* Please enter a valid date ** Please enter a valid date *
Statement Details |
| 2026 | 1423 | STATE - STATE LEVY (SCHOOL) | $921.87 | $921.87 | $0.00 | $0.00 | $0.00 | $1843.74 |
| 2026 | 1423 | COUNTY - COUNTY LEVIES (CE, DD, VET, MH) | $368.57 | $368.55 | $0.00 | $0.00 | $0.00 | $737.12 |
| 2026 | 1423 | CONSERVE - CONSERVATION FUTURES | $11.05 | $11.05 | $0.00 | $0.00 | $0.00 | $22.10 |
| 2026 | 1423 | COROADS - COUNTY ROADS (ROADS, DIV TO CE) | $297.33 | $297.32 | $0.00 | $0.00 | $0.00 | $594.65 |
| 2026 | 1423 | PORTPT - PORT DISTRICT | $148.86 | $148.85 | $0.00 | $0.00 | $0.00 | $297.71 |
| 2026 | 1423 | PUD1 - PUD #1 | $23.98 | $23.97 | $0.00 | $0.00 | $0.00 | $47.95 |
| 2026 | 1423 | LIB1 - LIBRARY DIST #1 | $115.03 | $115.03 | $0.00 | $0.00 | $0.00 | $230.06 |
| 2026 | 1423 | HD2 - HOSP DIST #2 | $21.50 | $21.49 | $0.00 | $0.00 | $0.00 | $42.99 |
| 2026 | 1423 | SD50 - SCHOOL DIST #50 | $730.33 | $730.31 | $0.00 | $0.00 | $0.00 | $1460.64 |
| 2026 | 1423 | FD1 - FIRE DISTRICT #1 | $488.07 | $488.06 | $0.00 | $0.00 | $0.00 | $976.13 |
| 2026 | 1423 | EMS1 - FIRE DIST #1 EMS | $187.66 | $187.65 | $0.00 | $0.00 | $0.00 | $375.31 |
| 2026 | 1423 | FP - DNR Forest Fire Protection Assmt | $8.50 | $8.50 | $0.00 | $0.00 | $0.00 | $17.00 |
| 2026 | 1423 | FPLCA - DNR Landowner Contingency Assmt | $3.00 | $3.00 | $0.00 | $0.00 | $0.00 | $6.00 |
| 2026 | 1423 | JCCD - JC Conservation District | $2.90 | $2.90 | $0.00 | $0.00 | $0.00 | $5.80 |
| 2026 | 1423 | NWA - Noxious Weed Assessment | $4.55 | $4.55 | $0.00 | $0.00 | $0.00 | $9.10 |
| 2026 | 1423 | OSS - On Site Septic | $23.10 | $23.10 | $0.00 | $0.00 | $0.00 | $46.20 |
| 2026 | 1423 | WAT - Clean Water District | $13.00 | $13.00 | $0.00 | $0.00 | $0.00 | $26.00 |
| 2026 | 1423 | FP ADMIN - FP ADMIN | $0.50 | $0.00 | $0.00 | $0.00 | $0.00 | $0.50 |
| 2026 | 1423 | TOTAL: | $3369.80 | $3369.20 | $0.00 | $0.00 | $0.00 | $6739.00 |
|
| 2026 | 1423 | $3369.80 | $3369.20 | $0.00 | $0.00 | $0.00 | $6739.00 |
Statement Details |
| 2025 | 1428 | STATE - STATE LEVY (SCHOOL) | $961.55 | $961.54 | $0.00 | $0.00 | $1923.09 | $0.00 |
| 2025 | 1428 | COUNTY - COUNTY LEVIES (CE, DD, VET, MH) | $378.13 | $378.11 | $0.00 | $0.00 | $756.24 | $0.00 |
| 2025 | 1428 | CONSERVE - CONSERVATION FUTURES | $11.34 | $11.34 | $0.00 | $0.00 | $22.68 | $0.00 |
| 2025 | 1428 | COROADS - COUNTY ROADS (ROADS, DIV TO CE) | $302.94 | $302.93 | $0.00 | $0.00 | $605.87 | $0.00 |
| 2025 | 1428 | PORTPT - PORT DISTRICT | $154.30 | $154.29 | $0.00 | $0.00 | $308.59 | $0.00 |
| 2025 | 1428 | PUD1 - PUD #1 | $24.74 | $24.74 | $0.00 | $0.00 | $49.48 | $0.00 |
| 2025 | 1428 | LIB1 - LIBRARY DIST #1 | $117.21 | $117.20 | $0.00 | $0.00 | $234.41 | $0.00 |
| 2025 | 1428 | HD2 - HOSP DIST #2 | $22.06 | $22.06 | $0.00 | $0.00 | $44.12 | $0.00 |
| 2025 | 1428 | SD50 - SCHOOL DIST #50 | $702.74 | $702.72 | $0.00 | $0.00 | $1405.46 | $0.00 |
| 2025 | 1428 | FD1 - FIRE DISTRICT #1 | $498.98 | $498.97 | $0.00 | $0.00 | $997.95 | $0.00 |
| 2025 | 1428 | EMS1 - FIRE DIST #1 EMS | $191.92 | $191.92 | $0.00 | $0.00 | $383.84 | $0.00 |
| 2025 | 1428 | FP - DNR Forest Fire Protection Assmt | $8.50 | $8.50 | $0.00 | $0.00 | $17.00 | $0.00 |
| 2025 | 1428 | FPLCA - DNR Landowner Contingency Assmt | $3.00 | $3.00 | $0.00 | $0.00 | $6.00 | $0.00 |
| 2025 | 1428 | JCCD - JC Conservation District | $2.90 | $2.90 | $0.00 | $0.00 | $5.80 | $0.00 |
| 2025 | 1428 | NWA - Noxious Weed Assessment | $3.20 | $3.20 | $0.00 | $0.00 | $6.40 | $0.00 |
| 2025 | 1428 | OSS - On Site Septic | $21.50 | $21.50 | $0.00 | $0.00 | $43.00 | $0.00 |
| 2025 | 1428 | WAT - Clean Water District | $13.00 | $13.00 | $0.00 | $0.00 | $26.00 | $0.00 |
| 2025 | 1428 | FP ADMIN - FP ADMIN | $0.50 | $0.00 | $0.00 | $0.00 | $0.50 | $0.00 |
| 2025 | 1428 | TOTAL: | $3418.51 | $3417.92 | $0.00 | $0.00 | $6836.43 | $0.00 |
|
| 2025 | 1428 | $3418.51 | $3417.92 | $0.00 | $0.00 | $6836.43 | $0.00 |
Statement Details |
| 2024 | 1430 | STATE - STATE LEVY (SCHOOL) | $906.50 | $906.49 | $0.00 | $0.00 | $1812.99 | $0.00 |
| 2024 | 1430 | COUNTY - COUNTY LEVIES (CE, DD, VET, MH) | $387.90 | $387.90 | $0.00 | $0.00 | $775.80 | $0.00 |
| 2024 | 1430 | CONSERVE - CONSERVATION FUTURES | $11.63 | $11.63 | $0.00 | $0.00 | $23.26 | $0.00 |
| 2024 | 1430 | COROADS - COUNTY ROADS (ROADS, DIV TO CE) | $312.13 | $312.13 | $0.00 | $0.00 | $624.26 | $0.00 |
| 2024 | 1430 | PORTPT - PORT DISTRICT | $160.22 | $160.21 | $0.00 | $0.00 | $320.43 | $0.00 |
| 2024 | 1430 | PUD1 - PUD #1 | $25.48 | $25.48 | $0.00 | $0.00 | $50.96 | $0.00 |
| 2024 | 1430 | LIB1 - LIBRARY DIST #1 | $120.76 | $120.76 | $0.00 | $0.00 | $241.52 | $0.00 |
| 2024 | 1430 | HD2 - HOSP DIST #2 | $22.64 | $22.63 | $0.00 | $0.00 | $45.27 | $0.00 |
| 2024 | 1430 | SD50 - SCHOOL DIST #50 | $733.40 | $733.39 | $0.00 | $0.00 | $1466.79 | $0.00 |
| 2024 | 1430 | FD1 - FIRE DISTRICT #1 | $512.89 | $512.89 | $0.00 | $0.00 | $1025.78 | $0.00 |
| 2024 | 1430 | EMS1 - FIRE DIST #1 EMS | $195.91 | $195.90 | $0.00 | $0.00 | $391.81 | $0.00 |
| 2024 | 1430 | FP - DNR Forest Fire Protection Assmt | $8.50 | $8.50 | $0.00 | $0.00 | $17.00 | $0.00 |
| 2024 | 1430 | FPLCA - DNR Landowner Contingency Assmt | $3.00 | $3.00 | $0.00 | $0.00 | $6.00 | $0.00 |
| 2024 | 1430 | JCCD - JC Conservation District | $2.90 | $2.90 | $0.00 | $0.00 | $5.80 | $0.00 |
| 2024 | 1430 | NWA - Noxious Weed Assessment | $3.20 | $3.20 | $0.00 | $0.00 | $6.40 | $0.00 |
| 2024 | 1430 | OSS - On Site Septic | $21.00 | $21.00 | $0.00 | $0.00 | $42.00 | $0.00 |
| 2024 | 1430 | WAT - Clean Water District | $12.50 | $12.50 | $0.00 | $0.00 | $25.00 | $0.00 |
| 2024 | 1430 | FP ADMIN - FP ADMIN | $0.50 | $0.00 | $0.00 | $0.00 | $0.50 | $0.00 |
| 2024 | 1430 | TOTAL: | $3441.06 | $3440.51 | $0.00 | $0.00 | $6881.57 | $0.00 |
|
| 2024 | 1430 | $3441.06 | $3440.51 | $0.00 | $0.00 | $6881.57 | $0.00 |
Statement Details |
| 2023 | 1430 | STATE - STATE LEVY (SCHOOL) | $827.29 | $827.28 | $0.00 | $0.00 | $1654.57 | $0.00 |
| 2023 | 1430 | COUNTY - COUNTY LEVIES (CE, DD, VET, MH) | $361.01 | $360.99 | $0.00 | $0.00 | $722.00 | $0.00 |
| 2023 | 1430 | CONSERVE - CONSERVATION FUTURES | $10.83 | $10.82 | $0.00 | $0.00 | $21.65 | $0.00 |
| 2023 | 1430 | COROADS - COUNTY ROADS (ROADS, DIV TO CE) | $292.08 | $292.07 | $0.00 | $0.00 | $584.15 | $0.00 |
| 2023 | 1430 | PORTPT - PORT DISTRICT | $152.08 | $152.07 | $0.00 | $0.00 | $304.15 | $0.00 |
| 2023 | 1430 | PUD1 - PUD #1 | $23.93 | $23.93 | $0.00 | $0.00 | $47.86 | $0.00 |
| 2023 | 1430 | LIB1 - LIBRARY DIST #1 | $113.00 | $113.00 | $0.00 | $0.00 | $226.00 | $0.00 |
| 2023 | 1430 | HD2 - HOSP DIST #2 | $21.07 | $21.06 | $0.00 | $0.00 | $42.13 | $0.00 |
| 2023 | 1430 | SD50 - SCHOOL DIST #50 | $656.48 | $656.45 | $0.00 | $0.00 | $1312.93 | $0.00 |
| 2023 | 1430 | FD1 - FIRE DISTRICT #1 | $297.40 | $297.39 | $0.00 | $0.00 | $594.79 | $0.00 |
| 2023 | 1430 | EMS1 - FIRE DIST #1 EMS | $126.51 | $126.50 | $0.00 | $0.00 | $253.01 | $0.00 |
| 2023 | 1430 | FP - DNR Forest Fire Protection Assmt | $8.50 | $8.50 | $0.00 | $0.00 | $17.00 | $0.00 |
| 2023 | 1430 | FPLCA - DNR Landowner Contingency Assmt | $3.00 | $3.00 | $0.00 | $0.00 | $6.00 | $0.00 |
| 2023 | 1430 | JCCD - JC Conservation District | $2.90 | $2.90 | $0.00 | $0.00 | $5.80 | $0.00 |
| 2023 | 1430 | NWA - Noxious Weed Assessment | $3.20 | $3.20 | $0.00 | $0.00 | $6.40 | $0.00 |
| 2023 | 1430 | OSS - On Site Septic | $20.50 | $20.50 | $0.00 | $0.00 | $41.00 | $0.00 |
| 2023 | 1430 | WAT - Clean Water District | $12.00 | $12.00 | $0.00 | $0.00 | $24.00 | $0.00 |
| 2023 | 1430 | FP ADMIN - FP ADMIN | $0.50 | $0.00 | $0.00 | $0.00 | $0.50 | $0.00 |
| 2023 | 1430 | TOTAL: | $2932.28 | $2931.66 | $0.00 | $0.00 | $5863.94 | $0.00 |
|
| 2023 | 1430 | $2932.28 | $2931.66 | $0.00 | $0.00 | $5863.94 | $0.00 |
Values
| (+) Improvement Homesite Value: | + | $0 | |
| (+) Improvement Non-Homesite Value: | + | $573,081 | |
| (+) Land Homesite Value: | + | $0 | |
| (+) Land Non-Homesite Value: | + | $228,866 | |
| (+) Curr Use (HS): | + | $0 | $0 |
| (+) Curr Use (NHS): | + | $0 | $0 |
| | | -------------------------- | |
| (=) Market Value: | = | $801,947 | |
| (–) Productivity Loss: | – | $0 | |
| | | -------------------------- | |
| (=) Subtotal: | = | $801,947 | |
| (+) Senior Appraised Value: | + | $0 | |
| (+) Non-Senior Appraised Value: | + | $801,947 | |
| | | -------------------------- | |
| (=) Total Appraised Value: | = | $801,947 | |
| (–) Senior Exemption Loss: | – | $0 | |
| (–) Exemption Loss: | – | $0 | |
| | | -------------------------- | |
| (=) Taxable Value: | = | $801,947 | |
Taxing Jurisdiction
| Owner: | JAY SACHS & MARY DEVOE | | |
| % Ownership: | 100.0000000000% | | |
| Total Value: | $801,947 | | |
| Tax Area: | 0111 - 1-50F1E1H2L1 |
| CE | COUNTY CURRENT EXPENSE | 0.9034619479 | $801,947 | $801,947 | $724.53 | | |
| CNTYDD | DEVELOPMENTAL DISABILITIES | 0.0052121823 | $801,947 | $801,947 | $4.18 | | |
| CNTYVET | VETERANS RELIEF | 0.0052777810 | $801,947 | $801,947 | $4.23 | | |
| MENTAL | MENTAL HEALTH | 0.0052121823 | $801,947 | $801,947 | $4.18 | | |
| ROADS | COUNTY ROADS | 0.7415066410 | $801,947 | $801,947 | $594.65 | | |
| ROADSCU | COUNTY ROADS TO CUR EXP | 0.0000000000 | $801,947 | $801,947 | $0.00 | | |
| HOSP2CASH | HOSP DIST #2 GENERAL | 0.0536075306 | $801,947 | $801,947 | $42.99 | | |
| SCH50BOND | SCHOOL DIST #50 BOND 2016 | 0.5377451389 | $801,947 | $801,947 | $431.24 | | |
| SCH50CP | SCHOOL DIST #50 CAP PROJ | 0.4573475088 | $801,947 | $801,947 | $366.77 | | |
| SCH50MO | SCHOOL DIST #50 EP & O | 0.8262822886 | $801,947 | $801,947 | $662.63 | | |
| CONSERVE | CONSERVATION FUTURES | 0.0275621078 | $801,947 | $801,947 | $22.10 | | |
| EMS1 | FIRE DIST #1 EMS | 0.4679948282 | $801,947 | $801,947 | $375.31 | | |
| FD1 | FIRE DIST #1 GENERAL | 1.2171942929 | $801,947 | $801,947 | $976.13 | | |
| LIB1 | LIBRARY DIST #1 GENERAL | 0.2868827388 | $801,947 | $801,947 | $230.06 | | |
| PORTPT | PORT OF PT GENERAL | 0.1134941229 | $801,947 | $801,947 | $91.02 | | |
| PORTPTIDD | PORT OF PT IDD 2019 | 0.2577346692 | $801,947 | $801,947 | $206.69 | | |
| PUD1 | PUD #1 GENERAL | 0.0597888892 | $801,947 | $801,947 | $47.95 | | |
| STATE | STATE SCHOOL PART 1 | 1.4940692947 | $801,947 | $801,947 | $1,198.16 | | |
| STATE2 | STATE SCHOOL PART 2 | 0.8050170049 | $801,947 | $801,947 | $645.58 | | |
| | Total Tax Rate: | 8.2653911500 | | | | | |
| | | | | Taxes w/Current Exemptions: | $6,628.40 | | |
| | | | | Taxes w/o Exemptions: | $6,628.40 | | |
Improvement / Building
| Improvement #1: | Residential Bldg | State Code: | 11 | 1806.0 sqft | Value: | $573,081 |
| Bathrooms (#): | 2 (FULL) | Bedrooms (#): | 3 | | Exterior Wall: | SI/ST | Fireplace: | SIN 1-GOOD | | Floor Construction: | FRAME | Foundation: | CONPR | | Heating/Cooling: | HPUMP | Inside Verify: | YES-FIX | | Roof Cover: | COMP |   |   |
|
| | Type | Description | Class CD | Sub Class CD | Year Built | Area |
| | MA | Main Area | 5 | 1S | 1983 | 1806.0 |
| | HDECK | House Deck | 5 | * | 1983 | 448.0 |
| | GATT | House Attached Garage | 5 | 1S | 1983 | 780.0 |
| | OTHER | Other | * | * | 1983 | 0.0 |
| | CONCD | Concrete Drive | 5 | * | 1983 | 400.0 |
Sketch
Property Image
Land
| 1 | 1671A | | 6.7400 | 293594.40 | 0.00 | 0.00 | 0.00 | $140,866 | $0 |
| 2 | 5375-1375S | | 1.0000 | 43560.00 | 0.00 | 0.00 | 1.00 | $88,000 | $0 |
Roll Value History
| 2026 | N/A | N/A | N/A | N/A | N/A |
| 2025 | $573,081 | $228,866 | $0 | $801,947 | $801,947 |
| 2024 | $573,081 | $228,866 | $0 | $801,947 | $801,947 |
| 2023 | $577,487 | $206,136 | $0 | $783,623 | $783,623 |
| 2022 | $524,988 | $177,840 | $0 | $702,828 | $702,828 |
Deed and Sales History
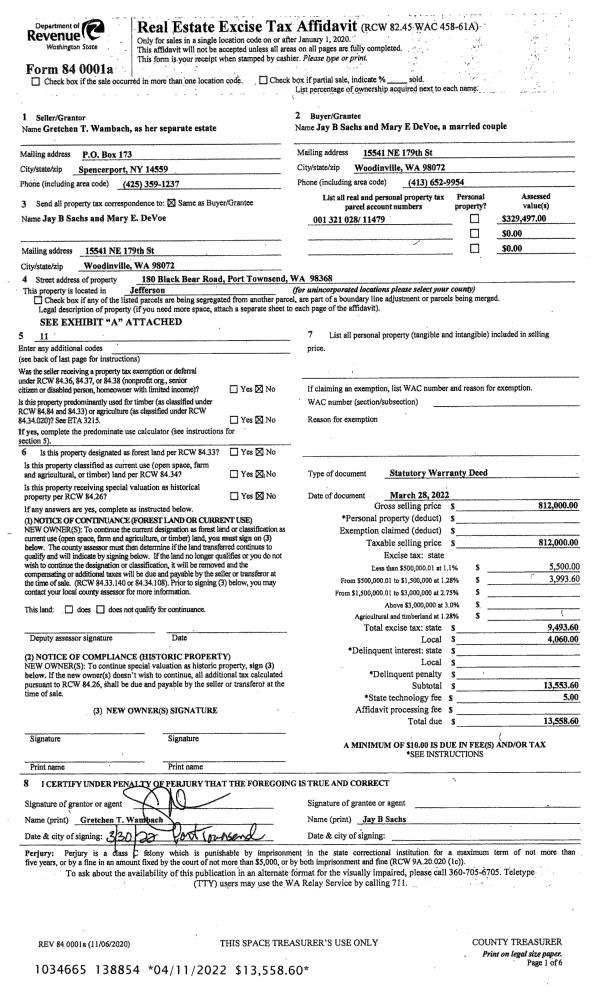
| 1 | 03/28/2022 | SWD | Statutory Warranty Deed | GRETCHEN WAMBACH | JAY SACHS & MARY DEVOE | | | $812,000.00 | 138854 | |
| 2 | 07/26/2004 | SWD | Statutory Warranty Deed | LECHTENBERG, RANDALL/LEA | WAMBACH, GRETCHEN | 0 | 0 | $277,000.00 | 100977 | 0 |
| 3 | 07/26/2004 | SWD | Statutory Warranty Deed | LECHTENBERG, RANDALL/LEA | WAMBACH, GRETCHEN | 0 | 0 | $0.00 | 101162 | 0 |
| 4 | 07/05/2002 | SWD | Statutory Warranty Deed | HARRY W/EVELYN M MINAKER | RANDALL J/LEA LECHTENBERG | 0 | 0 | $188,000.00 | 95087 | 0 |
| 5 | 07/05/2002 | SWD | Statutory Warranty Deed | MINAKER TRUST | LECHTENBERG, RANDALL J/LEA | 0 | 0 | $0.00 | 101161 | 0 |
| 6 | 01/05/2000 | QCD | Quit Claim Deed | MINAKER, HARRY W/EVELYN M | MINAKER, HARRY W & EVELYN/TR | 0 | 0 | $0.00 | 88777 | 0 |
| 7 | 01/05/2000 | QCD | Quit Claim Deed | MINAKER, HARRY W/EVELYN M | MINAKER, HARRY & EVELYN/TRUST | 0 | 0 | $0.00 | 90873 | 0 |
Payout Agreement
| No payout information available.. |