Property
Account |
| Property ID: | 11514 | Abbreviated Legal Description: | WERRION SHORT PLAT LOT 1 SUBJ TO EASE/OPEN SPACE |
| Parcel # / Geo ID: | 001321095 | Agent Code: | |
| Type: | Real | | |
| Tax Area: | 0111 - 1-50F1E1H2L1 | Land Use Code | 11 |
| Open Space: | N | DFL | N |
| Historic Property: | N | Remodel Property: | N |
| Multi-Family Redevelopment: | N | | |
| Township: | 30N | Section: | 32 |
| Range: | 1W |
Location |
| Address: | 111 BLACK BEAR RD PORT TOWNSEND, WA 98368 | Mapsco: | 139/015 |
| Neighborhood: | S32 T30 R1W, ADELMA BCH, DISCO HEIGHTS | Map ID: | |
| Neighborhood CD: | 5375 |
Owner |
| Name: | CARRIE E & PHILLIP BLAIR | Owner ID: | 101842 |
| Mailing Address: | 111 BLACK BEAR RD PORT TOWNSEND, WA 98368-9621 | % Ownership: | 100.0000000000% |
| | | Exemptions: | |
Pay Tax Due
Select the appropriate checkbox next to the year to be paid. Multiple years may be selected.
*Convenience Fee not included
Taxes and Assessment Details
Property Tax Information as of
03/11/2026
Click on "Statement Details" to expand or collapse a tax statement.
* Please enter a valid date ** Please enter a valid date *
Statement Details |
| 2026 | 1457 | STATE - STATE LEVY (SCHOOL) | $211.51 | $211.49 | $0.00 | $0.00 | $0.00 | $423.00 |
| 2026 | 1457 | COUNTY - COUNTY LEVIES (CE, DD, VET, MH) | $84.56 | $84.55 | $0.00 | $0.00 | $0.00 | $169.11 |
| 2026 | 1457 | CONSERVE - CONSERVATION FUTURES | $2.54 | $2.53 | $0.00 | $0.00 | $0.00 | $5.07 |
| 2026 | 1457 | COROADS - COUNTY ROADS (ROADS, DIV TO CE) | $68.22 | $68.21 | $0.00 | $0.00 | $0.00 | $136.43 |
| 2026 | 1457 | PORTPT - PORT DISTRICT | $34.15 | $34.15 | $0.00 | $0.00 | $0.00 | $68.30 |
| 2026 | 1457 | PUD1 - PUD #1 | $5.50 | $5.50 | $0.00 | $0.00 | $0.00 | $11.00 |
| 2026 | 1457 | LIB1 - LIBRARY DIST #1 | $26.39 | $26.39 | $0.00 | $0.00 | $0.00 | $52.78 |
| 2026 | 1457 | HD2 - HOSP DIST #2 | $4.93 | $4.93 | $0.00 | $0.00 | $0.00 | $9.86 |
| 2026 | 1457 | SD50 - SCHOOL DIST #50 | $167.56 | $167.55 | $0.00 | $0.00 | $0.00 | $335.11 |
| 2026 | 1457 | FD1 - FIRE DISTRICT #1 | $111.98 | $111.97 | $0.00 | $0.00 | $0.00 | $223.95 |
| 2026 | 1457 | EMS1 - FIRE DIST #1 EMS | $43.05 | $43.05 | $0.00 | $0.00 | $0.00 | $86.10 |
| 2026 | 1457 | FP - DNR Forest Fire Protection Assmt | $8.50 | $8.50 | $0.00 | $0.00 | $0.00 | $17.00 |
| 2026 | 1457 | FPLCA - DNR Landowner Contingency Assmt | $3.00 | $3.00 | $0.00 | $0.00 | $0.00 | $6.00 |
| 2026 | 1457 | JCCD - JC Conservation District | $2.65 | $2.65 | $0.00 | $0.00 | $0.00 | $5.30 |
| 2026 | 1457 | NWA - Noxious Weed Assessment | $3.43 | $3.42 | $0.00 | $0.00 | $0.00 | $6.85 |
| 2026 | 1457 | OSS - On Site Septic | $23.10 | $23.10 | $0.00 | $0.00 | $0.00 | $46.20 |
| 2026 | 1457 | WAT - Clean Water District | $13.00 | $13.00 | $0.00 | $0.00 | $0.00 | $26.00 |
| 2026 | 1457 | FP ADMIN - FP ADMIN | $0.50 | $0.00 | $0.00 | $0.00 | $0.00 | $0.50 |
| 2026 | 1457 | TOTAL: | $814.57 | $813.99 | $0.00 | $0.00 | $0.00 | $1628.56 |
|
| 2026 | 1457 | $814.57 | $813.99 | $0.00 | $0.00 | $0.00 | $1628.56 |
Statement Details |
| 2025 | 1462 | STATE - STATE LEVY (SCHOOL) | $220.60 | $220.60 | $0.00 | $0.00 | $441.20 | $0.00 |
| 2025 | 1462 | COUNTY - COUNTY LEVIES (CE, DD, VET, MH) | $86.75 | $86.74 | $0.00 | $0.00 | $173.49 | $0.00 |
| 2025 | 1462 | CONSERVE - CONSERVATION FUTURES | $2.60 | $2.60 | $0.00 | $0.00 | $5.20 | $0.00 |
| 2025 | 1462 | COROADS - COUNTY ROADS (ROADS, DIV TO CE) | $69.50 | $69.50 | $0.00 | $0.00 | $139.00 | $0.00 |
| 2025 | 1462 | PORTPT - PORT DISTRICT | $35.40 | $35.39 | $0.00 | $0.00 | $70.79 | $0.00 |
| 2025 | 1462 | PUD1 - PUD #1 | $5.68 | $5.67 | $0.00 | $0.00 | $11.35 | $0.00 |
| 2025 | 1462 | LIB1 - LIBRARY DIST #1 | $26.89 | $26.89 | $0.00 | $0.00 | $53.78 | $0.00 |
| 2025 | 1462 | HD2 - HOSP DIST #2 | $5.06 | $5.06 | $0.00 | $0.00 | $10.12 | $0.00 |
| 2025 | 1462 | SD50 - SCHOOL DIST #50 | $161.23 | $161.21 | $0.00 | $0.00 | $322.44 | $0.00 |
| 2025 | 1462 | FD1 - FIRE DISTRICT #1 | $114.48 | $114.47 | $0.00 | $0.00 | $228.95 | $0.00 |
| 2025 | 1462 | EMS1 - FIRE DIST #1 EMS | $44.03 | $44.03 | $0.00 | $0.00 | $88.06 | $0.00 |
| 2025 | 1462 | FP - DNR Forest Fire Protection Assmt | $8.50 | $8.50 | $0.00 | $0.00 | $17.00 | $0.00 |
| 2025 | 1462 | FPLCA - DNR Landowner Contingency Assmt | $3.00 | $3.00 | $0.00 | $0.00 | $6.00 | $0.00 |
| 2025 | 1462 | JCCD - JC Conservation District | $2.65 | $2.65 | $0.00 | $0.00 | $5.30 | $0.00 |
| 2025 | 1462 | NWA - Noxious Weed Assessment | $2.45 | $2.45 | $0.00 | $0.00 | $4.90 | $0.00 |
| 2025 | 1462 | OSS - On Site Septic | $21.50 | $21.50 | $0.00 | $0.00 | $43.00 | $0.00 |
| 2025 | 1462 | WAT - Clean Water District | $13.00 | $13.00 | $0.00 | $0.00 | $26.00 | $0.00 |
| 2025 | 1462 | FP ADMIN - FP ADMIN | $0.50 | $0.00 | $0.00 | $0.00 | $0.50 | $0.00 |
| 2025 | 1462 | TOTAL: | $823.82 | $823.26 | $0.00 | $0.00 | $1647.08 | $0.00 |
|
| 2025 | 1462 | $823.82 | $823.26 | $0.00 | $0.00 | $1647.08 | $0.00 |
Statement Details |
| 2024 | 1464 | STATE - STATE LEVY (SCHOOL) | $194.19 | $194.17 | $0.00 | $0.00 | $388.36 | $0.00 |
| 2024 | 1464 | COUNTY - COUNTY LEVIES (CE, DD, VET, MH) | $83.10 | $83.09 | $0.00 | $0.00 | $166.19 | $0.00 |
| 2024 | 1464 | CONSERVE - CONSERVATION FUTURES | $2.49 | $2.49 | $0.00 | $0.00 | $4.98 | $0.00 |
| 2024 | 1464 | COROADS - COUNTY ROADS (ROADS, DIV TO CE) | $66.87 | $66.86 | $0.00 | $0.00 | $133.73 | $0.00 |
| 2024 | 1464 | PORTPT - PORT DISTRICT | $34.32 | $34.32 | $0.00 | $0.00 | $68.64 | $0.00 |
| 2024 | 1464 | PUD1 - PUD #1 | $5.46 | $5.46 | $0.00 | $0.00 | $10.92 | $0.00 |
| 2024 | 1464 | LIB1 - LIBRARY DIST #1 | $25.87 | $25.87 | $0.00 | $0.00 | $51.74 | $0.00 |
| 2024 | 1464 | HD2 - HOSP DIST #2 | $4.85 | $4.85 | $0.00 | $0.00 | $9.70 | $0.00 |
| 2024 | 1464 | SD50 - SCHOOL DIST #50 | $157.12 | $157.09 | $0.00 | $0.00 | $314.21 | $0.00 |
| 2024 | 1464 | FD1 - FIRE DISTRICT #1 | $109.87 | $109.86 | $0.00 | $0.00 | $219.73 | $0.00 |
| 2024 | 1464 | EMS1 - FIRE DIST #1 EMS | $41.97 | $41.96 | $0.00 | $0.00 | $83.93 | $0.00 |
| 2024 | 1464 | FP - DNR Forest Fire Protection Assmt | $8.50 | $8.50 | $0.00 | $0.00 | $17.00 | $0.00 |
| 2024 | 1464 | FPLCA - DNR Landowner Contingency Assmt | $3.00 | $3.00 | $0.00 | $0.00 | $6.00 | $0.00 |
| 2024 | 1464 | JCCD - JC Conservation District | $2.65 | $2.65 | $0.00 | $0.00 | $5.30 | $0.00 |
| 2024 | 1464 | NWA - Noxious Weed Assessment | $2.45 | $2.45 | $0.00 | $0.00 | $4.90 | $0.00 |
| 2024 | 1464 | OSS - On Site Septic | $21.00 | $21.00 | $0.00 | $0.00 | $42.00 | $0.00 |
| 2024 | 1464 | WAT - Clean Water District | $12.50 | $12.50 | $0.00 | $0.00 | $25.00 | $0.00 |
| 2024 | 1464 | FP ADMIN - FP ADMIN | $0.50 | $0.00 | $0.00 | $0.00 | $0.50 | $0.00 |
| 2024 | 1464 | TOTAL: | $776.71 | $776.12 | $0.00 | $0.00 | $1552.83 | $0.00 |
|
| 2024 | 1464 | $776.71 | $776.12 | $0.00 | $0.00 | $1552.83 | $0.00 |
Statement Details |
| 2023 | 1464 | STATE - STATE LEVY (SCHOOL) | $176.65 | $176.63 | $0.00 | $0.00 | $353.28 | $0.00 |
| 2023 | 1464 | COUNTY - COUNTY LEVIES (CE, DD, VET, MH) | $77.09 | $77.08 | $0.00 | $0.00 | $154.17 | $0.00 |
| 2023 | 1464 | CONSERVE - CONSERVATION FUTURES | $2.31 | $2.31 | $0.00 | $0.00 | $4.62 | $0.00 |
| 2023 | 1464 | COROADS - COUNTY ROADS (ROADS, DIV TO CE) | $62.36 | $62.36 | $0.00 | $0.00 | $124.72 | $0.00 |
| 2023 | 1464 | PORTPT - PORT DISTRICT | $32.48 | $32.47 | $0.00 | $0.00 | $64.95 | $0.00 |
| 2023 | 1464 | PUD1 - PUD #1 | $5.11 | $5.11 | $0.00 | $0.00 | $10.22 | $0.00 |
| 2023 | 1464 | LIB1 - LIBRARY DIST #1 | $24.13 | $24.13 | $0.00 | $0.00 | $48.26 | $0.00 |
| 2023 | 1464 | HD2 - HOSP DIST #2 | $4.51 | $4.49 | $0.00 | $0.00 | $9.00 | $0.00 |
| 2023 | 1464 | SD50 - SCHOOL DIST #50 | $140.18 | $140.15 | $0.00 | $0.00 | $280.33 | $0.00 |
| 2023 | 1464 | FD1 - FIRE DISTRICT #1 | $63.50 | $63.50 | $0.00 | $0.00 | $127.00 | $0.00 |
| 2023 | 1464 | EMS1 - FIRE DIST #1 EMS | $27.01 | $27.01 | $0.00 | $0.00 | $54.02 | $0.00 |
| 2023 | 1464 | FP - DNR Forest Fire Protection Assmt | $8.50 | $8.50 | $0.00 | $0.00 | $17.00 | $0.00 |
| 2023 | 1464 | FPLCA - DNR Landowner Contingency Assmt | $3.00 | $3.00 | $0.00 | $0.00 | $6.00 | $0.00 |
| 2023 | 1464 | JCCD - JC Conservation District | $2.65 | $2.65 | $0.00 | $0.00 | $5.30 | $0.00 |
| 2023 | 1464 | NWA - Noxious Weed Assessment | $2.45 | $2.45 | $0.00 | $0.00 | $4.90 | $0.00 |
| 2023 | 1464 | OSS - On Site Septic | $20.50 | $20.50 | $0.00 | $0.00 | $41.00 | $0.00 |
| 2023 | 1464 | WAT - Clean Water District | $12.00 | $12.00 | $0.00 | $0.00 | $24.00 | $0.00 |
| 2023 | 1464 | FP ADMIN - FP ADMIN | $0.50 | $0.00 | $0.00 | $0.00 | $0.50 | $0.00 |
| 2023 | 1464 | TOTAL: | $664.93 | $664.34 | $0.00 | $0.00 | $1329.27 | $0.00 |
|
| 2023 | 1464 | $664.93 | $664.34 | $0.00 | $0.00 | $1329.27 | $0.00 |
Values
| (+) Improvement Homesite Value: | + | $0 | |
| (+) Improvement Non-Homesite Value: | + | $95,066 | |
| (+) Land Homesite Value: | + | $0 | |
| (+) Land Non-Homesite Value: | + | $88,919 | |
| (+) Curr Use (HS): | + | $0 | $0 |
| (+) Curr Use (NHS): | + | $0 | $0 |
| | | -------------------------- | |
| (=) Market Value: | = | $183,985 | |
| (–) Productivity Loss: | – | $0 | |
| | | -------------------------- | |
| (=) Subtotal: | = | $183,985 | |
| (+) Senior Appraised Value: | + | $0 | |
| (+) Non-Senior Appraised Value: | + | $183,985 | |
| | | -------------------------- | |
| (=) Total Appraised Value: | = | $183,985 | |
| (–) Senior Exemption Loss: | – | $0 | |
| (–) Exemption Loss: | – | $0 | |
| | | -------------------------- | |
| (=) Taxable Value: | = | $183,985 | |
Taxing Jurisdiction
| Owner: | CARRIE E & PHILLIP BLAIR | | |
| % Ownership: | 100.0000000000% | | |
| Total Value: | $183,985 | | |
| Tax Area: | 0111 - 1-50F1E1H2L1 |
| CE | COUNTY CURRENT EXPENSE | 0.9034619479 | $183,985 | $183,985 | $166.22 | | |
| CNTYDD | DEVELOPMENTAL DISABILITIES | 0.0052121823 | $183,985 | $183,985 | $0.96 | | |
| CNTYVET | VETERANS RELIEF | 0.0052777810 | $183,985 | $183,985 | $0.97 | | |
| MENTAL | MENTAL HEALTH | 0.0052121823 | $183,985 | $183,985 | $0.96 | | |
| ROADS | COUNTY ROADS | 0.7415066410 | $183,985 | $183,985 | $136.43 | | |
| ROADSCU | COUNTY ROADS TO CUR EXP | 0.0000000000 | $183,985 | $183,985 | $0.00 | | |
| HOSP2CASH | HOSP DIST #2 GENERAL | 0.0536075306 | $183,985 | $183,985 | $9.86 | | |
| SCH50BOND | SCHOOL DIST #50 BOND 2016 | 0.5377451389 | $183,985 | $183,985 | $98.94 | | |
| SCH50CP | SCHOOL DIST #50 CAP PROJ | 0.4573475088 | $183,985 | $183,985 | $84.15 | | |
| SCH50MO | SCHOOL DIST #50 EP & O | 0.8262822886 | $183,985 | $183,985 | $152.02 | | |
| CONSERVE | CONSERVATION FUTURES | 0.0275621078 | $183,985 | $183,985 | $5.07 | | |
| EMS1 | FIRE DIST #1 EMS | 0.4679948282 | $183,985 | $183,985 | $86.10 | | |
| FD1 | FIRE DIST #1 GENERAL | 1.2171942929 | $183,985 | $183,985 | $223.95 | | |
| LIB1 | LIBRARY DIST #1 GENERAL | 0.2868827388 | $183,985 | $183,985 | $52.78 | | |
| PORTPT | PORT OF PT GENERAL | 0.1134941229 | $183,985 | $183,985 | $20.88 | | |
| PORTPTIDD | PORT OF PT IDD 2019 | 0.2577346692 | $183,985 | $183,985 | $47.42 | | |
| PUD1 | PUD #1 GENERAL | 0.0597888892 | $183,985 | $183,985 | $11.00 | | |
| STATE | STATE SCHOOL PART 1 | 1.4940692947 | $183,985 | $183,985 | $274.89 | | |
| STATE2 | STATE SCHOOL PART 2 | 0.8050170049 | $183,985 | $183,985 | $148.11 | | |
| | Total Tax Rate: | 8.2653911500 | | | | | |
| | | | | Taxes w/Current Exemptions: | $1,520.71 | | |
| | | | | Taxes w/o Exemptions: | $1,520.71 | | |
Improvement / Building
| Improvement #1: | Manufactured Home | State Code: | 11 | 1848.0 sqft | Value: | $95,066 |
| Bathrooms (#): | 3 (FULL) | Bedrooms (#): | 4 | | Exterior Wall: | PL/T1 | Fireplace: | WD ST-GOOD | | Floor Construction: | FRAME | Foundation: | PO&BL | | Heating/Cooling: | F/A | Inside Verify: | YES-FIX | | Roof Cover: | COMP |   |   |
|
| | Type | Description | Class CD | Sub Class CD | Year Built | Area |
| | MA | Main Area | 3 | MDBL | 1996 | 1848.0 |
| | MWPOR | MH Wood Porch | 2 | * | 1996 | 231.0 |
| | SHED | Shed (Table Not Dep) | 2 | * | 1996 | 216.0 |
| | MSKIRT_WD | MH Skirting - Wood | 2 | * | 1996 | 188.0 |
Sketch
| No sketches available for this property. |
Property Image
Land
| 1 | 5375-1375S | | 1.0000 | 43560.00 | 0.00 | 0.00 | 1.00 | $74,250 | $0 |
| 2 | 1575A | | 1.2700 | 55321.20 | 0.00 | 0.00 | 0.00 | $14,669 | $0 |
Roll Value History
| 2026 | N/A | N/A | N/A | N/A | N/A |
| 2025 | $95,066 | $88,919 | $0 | $183,985 | $183,985 |
| 2024 | $95,066 | $88,919 | $0 | $183,985 | $183,985 |
| 2023 | $88,901 | $78,960 | $0 | $167,861 | $167,861 |
| 2022 | $80,819 | $69,248 | $0 | $150,067 | $150,067 |
Deed and Sales History
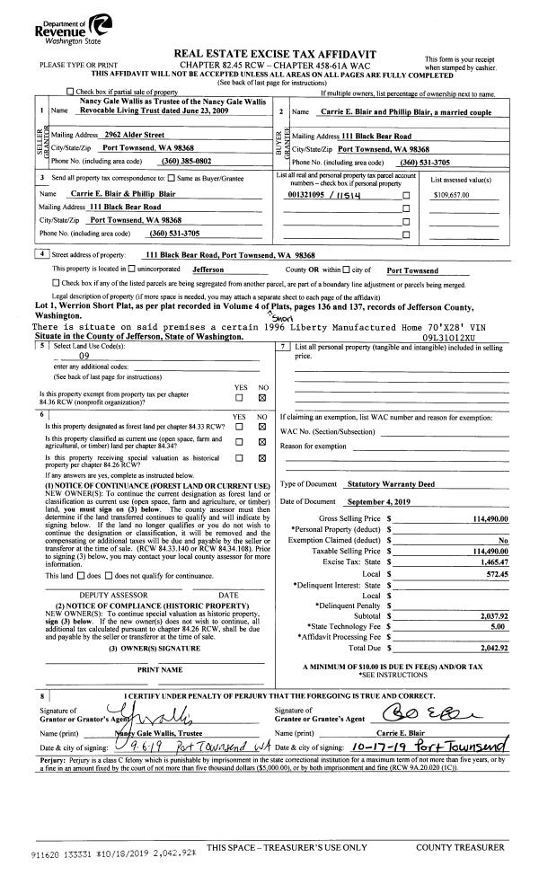
| 1 | 09/04/2019 | SWD | Statutory Warranty Deed | NANCY G WALLIS TRSTEE | CARRIE E & PHILLIP BLAIR | | | $114,490.00 | 133331 | |
| 2 | 10/01/2012 | QCD | Quit Claim Deed | WALLIS, NANCY GALE | WALLIS REVOCABLE LIVING TRUST | 0 | 0 | $0.00 | 118155 | 0 |
| 3 | 06/26/2012 | SWD | Statutory Warranty Deed | SECRETARY OF HOUSING URBA | WALLIS, NANCY GALE | 0 | 0 | $82,875.00 | 118090 | 0 |
| 4 | 04/24/2012 | SWD | Statutory Warranty Deed | BANK OF AMERICA | SECRETARY OF HUD | 0 | 0 | $0.00 | 117471 | 0 |
| 5 | 07/31/2009 | WD | Warranty Deed | FIRST AMERICAN TITLE INSU | BEAN TAYLOR & WHITAKER MORTAG | 0 | 0 | $200,722.00 | 113236 | 0 |
| 6 | 08/30/2001 | SWD | Statutory Warranty Deed | WERRION, MAURICE ALFRED A | GUTHERIE, LONN C/DONNA L | 0 | 0 | $42,000.00 | 93028 | 0 |
Payout Agreement
| No payout information available.. |