Property
Account |
| Property ID: | 11626 | Abbreviated Legal Description: | S32 T30 R1W TAX G-14(S110')TAX RR-12 (E OF CO RD) |
| Parcel # / Geo ID: | 001324081 | Agent Code: | |
| Type: | Real | | |
| Tax Area: | 0111 - 1-50F1E1H2L1 | Land Use Code | 11 |
| Open Space: | N | DFL | N |
| Historic Property: | N | Remodel Property: | N |
| Multi-Family Redevelopment: | N | | |
| Township: | 30N | Section: | 32 |
| Range: | 1W |
Location |
| Address: | 343 ADELMA BEACH RD PORT TOWNSEND, WA 98368 | Mapsco: | 104/037 |
| Neighborhood: | S32 T30 R1W, ADELMA BCH, DISCO HEIGHTS | Map ID: | |
| Neighborhood CD: | 5375 |
Owner |
| Name: | MICHAEL J & DEBRA A HORTON | Owner ID: | 110092 |
| Mailing Address: | 343 ADELMA BEACH RD PORT TOWNSEND, WA 98368-9279 | % Ownership: | 100.0000000000% |
| | | Exemptions: | |
Pay Tax Due
Select the appropriate checkbox next to the year to be paid. Multiple years may be selected.
*Convenience Fee not included
Taxes and Assessment Details
Property Tax Information as of
03/10/2026
Click on "Statement Details" to expand or collapse a tax statement.
* Please enter a valid date ** Please enter a valid date *
Statement Details |
| 2026 | 1564 | STATE - STATE LEVY (SCHOOL) | $860.90 | $860.89 | $0.00 | $0.00 | $0.00 | $1721.79 |
| 2026 | 1564 | COUNTY - COUNTY LEVIES (CE, DD, VET, MH) | $344.18 | $344.17 | $0.00 | $0.00 | $0.00 | $688.35 |
| 2026 | 1564 | CONSERVE - CONSERVATION FUTURES | $10.32 | $10.32 | $0.00 | $0.00 | $0.00 | $20.64 |
| 2026 | 1564 | COROADS - COUNTY ROADS (ROADS, DIV TO CE) | $277.66 | $277.66 | $0.00 | $0.00 | $0.00 | $555.32 |
| 2026 | 1564 | PORTPT - PORT DISTRICT | $139.01 | $139.01 | $0.00 | $0.00 | $0.00 | $278.02 |
| 2026 | 1564 | PUD1 - PUD #1 | $22.39 | $22.39 | $0.00 | $0.00 | $0.00 | $44.78 |
| 2026 | 1564 | LIB1 - LIBRARY DIST #1 | $107.43 | $107.42 | $0.00 | $0.00 | $0.00 | $214.85 |
| 2026 | 1564 | HD2 - HOSP DIST #2 | $20.08 | $20.07 | $0.00 | $0.00 | $0.00 | $40.15 |
| 2026 | 1564 | SD50 - SCHOOL DIST #50 | $682.02 | $682.01 | $0.00 | $0.00 | $0.00 | $1364.03 |
| 2026 | 1564 | FD1 - FIRE DISTRICT #1 | $455.78 | $455.78 | $0.00 | $0.00 | $0.00 | $911.56 |
| 2026 | 1564 | EMS1 - FIRE DIST #1 EMS | $175.24 | $175.24 | $0.00 | $0.00 | $0.00 | $350.48 |
| 2026 | 1564 | FP - DNR Forest Fire Protection Assmt | $8.50 | $8.50 | $0.00 | $0.00 | $0.00 | $17.00 |
| 2026 | 1564 | FPLCA - DNR Landowner Contingency Assmt | $3.00 | $3.00 | $0.00 | $0.00 | $0.00 | $6.00 |
| 2026 | 1564 | JCCD - JC Conservation District | $2.65 | $2.65 | $0.00 | $0.00 | $0.00 | $5.30 |
| 2026 | 1564 | NWA - Noxious Weed Assessment | $3.43 | $3.42 | $0.00 | $0.00 | $0.00 | $6.85 |
| 2026 | 1564 | OSS - On Site Septic | $23.10 | $23.10 | $0.00 | $0.00 | $0.00 | $46.20 |
| 2026 | 1564 | WAT - Clean Water District | $13.00 | $13.00 | $0.00 | $0.00 | $0.00 | $26.00 |
| 2026 | 1564 | FP ADMIN - FP ADMIN | $0.50 | $0.00 | $0.00 | $0.00 | $0.00 | $0.50 |
| 2026 | 1564 | TOTAL: | $3149.19 | $3148.63 | $0.00 | $0.00 | $0.00 | $6297.82 |
|
| 2026 | 1564 | $3149.19 | $3148.63 | $0.00 | $0.00 | $0.00 | $6297.82 |
Statement Details |
| 2025 | 1570 | STATE - STATE LEVY (SCHOOL) | $897.95 | $897.93 | $0.00 | $0.00 | $1795.88 | $0.00 |
| 2025 | 1570 | COUNTY - COUNTY LEVIES (CE, DD, VET, MH) | $353.12 | $353.11 | $0.00 | $0.00 | $706.23 | $0.00 |
| 2025 | 1570 | CONSERVE - CONSERVATION FUTURES | $10.59 | $10.59 | $0.00 | $0.00 | $21.18 | $0.00 |
| 2025 | 1570 | COROADS - COUNTY ROADS (ROADS, DIV TO CE) | $282.90 | $282.90 | $0.00 | $0.00 | $565.80 | $0.00 |
| 2025 | 1570 | PORTPT - PORT DISTRICT | $144.09 | $144.09 | $0.00 | $0.00 | $288.18 | $0.00 |
| 2025 | 1570 | PUD1 - PUD #1 | $23.11 | $23.10 | $0.00 | $0.00 | $46.21 | $0.00 |
| 2025 | 1570 | LIB1 - LIBRARY DIST #1 | $109.45 | $109.45 | $0.00 | $0.00 | $218.90 | $0.00 |
| 2025 | 1570 | HD2 - HOSP DIST #2 | $20.60 | $20.60 | $0.00 | $0.00 | $41.20 | $0.00 |
| 2025 | 1570 | SD50 - SCHOOL DIST #50 | $656.25 | $656.24 | $0.00 | $0.00 | $1312.49 | $0.00 |
| 2025 | 1570 | FD1 - FIRE DISTRICT #1 | $465.97 | $465.96 | $0.00 | $0.00 | $931.93 | $0.00 |
| 2025 | 1570 | EMS1 - FIRE DIST #1 EMS | $179.23 | $179.22 | $0.00 | $0.00 | $358.45 | $0.00 |
| 2025 | 1570 | FP - DNR Forest Fire Protection Assmt | $8.50 | $8.50 | $0.00 | $0.00 | $17.00 | $0.00 |
| 2025 | 1570 | FPLCA - DNR Landowner Contingency Assmt | $3.00 | $3.00 | $0.00 | $0.00 | $6.00 | $0.00 |
| 2025 | 1570 | JCCD - JC Conservation District | $2.65 | $2.65 | $0.00 | $0.00 | $5.30 | $0.00 |
| 2025 | 1570 | NWA - Noxious Weed Assessment | $2.45 | $2.45 | $0.00 | $0.00 | $4.90 | $0.00 |
| 2025 | 1570 | OSS - On Site Septic | $21.50 | $21.50 | $0.00 | $0.00 | $43.00 | $0.00 |
| 2025 | 1570 | WAT - Clean Water District | $13.00 | $13.00 | $0.00 | $0.00 | $26.00 | $0.00 |
| 2025 | 1570 | FP ADMIN - FP ADMIN | $0.50 | $0.00 | $0.00 | $0.00 | $0.50 | $0.00 |
| 2025 | 1570 | TOTAL: | $3194.86 | $3194.29 | $0.00 | $0.00 | $6389.15 | $0.00 |
|
| 2025 | 1570 | $3194.86 | $3194.29 | $0.00 | $0.00 | $6389.15 | $0.00 |
Statement Details |
| 2024 | 1574 | STATE - STATE LEVY (SCHOOL) | $794.20 | $794.18 | $0.00 | $0.00 | $1588.38 | $0.00 |
| 2024 | 1574 | COUNTY - COUNTY LEVIES (CE, DD, VET, MH) | $339.85 | $339.84 | $0.00 | $0.00 | $679.69 | $0.00 |
| 2024 | 1574 | CONSERVE - CONSERVATION FUTURES | $10.19 | $10.19 | $0.00 | $0.00 | $20.38 | $0.00 |
| 2024 | 1574 | COROADS - COUNTY ROADS (ROADS, DIV TO CE) | $273.47 | $273.45 | $0.00 | $0.00 | $546.92 | $0.00 |
| 2024 | 1574 | PORTPT - PORT DISTRICT | $140.37 | $140.36 | $0.00 | $0.00 | $280.73 | $0.00 |
| 2024 | 1574 | PUD1 - PUD #1 | $22.32 | $22.32 | $0.00 | $0.00 | $44.64 | $0.00 |
| 2024 | 1574 | LIB1 - LIBRARY DIST #1 | $105.80 | $105.80 | $0.00 | $0.00 | $211.60 | $0.00 |
| 2024 | 1574 | HD2 - HOSP DIST #2 | $19.83 | $19.83 | $0.00 | $0.00 | $39.66 | $0.00 |
| 2024 | 1574 | SD50 - SCHOOL DIST #50 | $642.55 | $642.52 | $0.00 | $0.00 | $1285.07 | $0.00 |
| 2024 | 1574 | FD1 - FIRE DISTRICT #1 | $449.35 | $449.35 | $0.00 | $0.00 | $898.70 | $0.00 |
| 2024 | 1574 | EMS1 - FIRE DIST #1 EMS | $171.64 | $171.63 | $0.00 | $0.00 | $343.27 | $0.00 |
| 2024 | 1574 | FP - DNR Forest Fire Protection Assmt | $8.50 | $8.50 | $0.00 | $0.00 | $17.00 | $0.00 |
| 2024 | 1574 | FPLCA - DNR Landowner Contingency Assmt | $3.00 | $3.00 | $0.00 | $0.00 | $6.00 | $0.00 |
| 2024 | 1574 | JCCD - JC Conservation District | $2.65 | $2.65 | $0.00 | $0.00 | $5.30 | $0.00 |
| 2024 | 1574 | NWA - Noxious Weed Assessment | $2.45 | $2.45 | $0.00 | $0.00 | $4.90 | $0.00 |
| 2024 | 1574 | OSS - On Site Septic | $21.00 | $21.00 | $0.00 | $0.00 | $42.00 | $0.00 |
| 2024 | 1574 | WAT - Clean Water District | $12.50 | $12.50 | $0.00 | $0.00 | $25.00 | $0.00 |
| 2024 | 1574 | FP ADMIN - FP ADMIN | $0.50 | $0.00 | $0.00 | $0.00 | $0.50 | $0.00 |
| 2024 | 1574 | TOTAL: | $3020.17 | $3019.57 | $0.00 | $0.00 | $6039.74 | $0.00 |
|
| 2024 | 1574 | $3020.17 | $3019.57 | $0.00 | $0.00 | $6039.74 | $0.00 |
Statement Details |
| 2023 | 1574 | STATE - STATE LEVY (SCHOOL) | $354.79 | $354.78 | $0.00 | $0.00 | $709.57 | $0.00 |
| 2023 | 1574 | COUNTY - COUNTY LEVIES (CE, DD, VET, MH) | $154.82 | $154.82 | $0.00 | $0.00 | $309.64 | $0.00 |
| 2023 | 1574 | CONSERVE - CONSERVATION FUTURES | $4.64 | $4.64 | $0.00 | $0.00 | $9.28 | $0.00 |
| 2023 | 1574 | COROADS - COUNTY ROADS (ROADS, DIV TO CE) | $125.26 | $125.26 | $0.00 | $0.00 | $250.52 | $0.00 |
| 2023 | 1574 | PORTPT - PORT DISTRICT | $65.22 | $65.21 | $0.00 | $0.00 | $130.43 | $0.00 |
| 2023 | 1574 | PUD1 - PUD #1 | $10.26 | $10.26 | $0.00 | $0.00 | $20.52 | $0.00 |
| 2023 | 1574 | LIB1 - LIBRARY DIST #1 | $48.46 | $48.46 | $0.00 | $0.00 | $96.92 | $0.00 |
| 2023 | 1574 | HD2 - HOSP DIST #2 | $9.04 | $9.03 | $0.00 | $0.00 | $18.07 | $0.00 |
| 2023 | 1574 | SD50 - SCHOOL DIST #50 | $281.54 | $281.52 | $0.00 | $0.00 | $563.06 | $0.00 |
| 2023 | 1574 | FD1 - FIRE DISTRICT #1 | $127.54 | $127.54 | $0.00 | $0.00 | $255.08 | $0.00 |
| 2023 | 1574 | EMS1 - FIRE DIST #1 EMS | $54.26 | $54.25 | $0.00 | $0.00 | $108.51 | $0.00 |
| 2023 | 1574 | FP - DNR Forest Fire Protection Assmt | $8.50 | $8.50 | $0.00 | $0.00 | $17.00 | $0.00 |
| 2023 | 1574 | FPLCA - DNR Landowner Contingency Assmt | $3.00 | $3.00 | $0.00 | $0.00 | $6.00 | $0.00 |
| 2023 | 1574 | JCCD - JC Conservation District | $2.65 | $2.65 | $0.00 | $0.00 | $5.30 | $0.00 |
| 2023 | 1574 | NWA - Noxious Weed Assessment | $2.45 | $2.45 | $0.00 | $0.00 | $4.90 | $0.00 |
| 2023 | 1574 | OSS - On Site Septic | $20.50 | $20.50 | $0.00 | $0.00 | $41.00 | $0.00 |
| 2023 | 1574 | WAT - Clean Water District | $12.00 | $12.00 | $0.00 | $0.00 | $24.00 | $0.00 |
| 2023 | 1574 | FP ADMIN - FP ADMIN | $0.50 | $0.00 | $0.00 | $0.00 | $0.50 | $0.00 |
| 2023 | 1574 | TOTAL: | $1285.43 | $1284.87 | $0.00 | $0.00 | $2570.30 | $0.00 |
|
| 2023 | 1574 | $1285.43 | $1284.87 | $0.00 | $0.00 | $2570.30 | $0.00 |
Values
| (+) Improvement Homesite Value: | + | $0 | |
| (+) Improvement Non-Homesite Value: | + | $555,339 | |
| (+) Land Homesite Value: | + | $0 | |
| (+) Land Non-Homesite Value: | + | $193,562 | |
| (+) Curr Use (HS): | + | $0 | $0 |
| (+) Curr Use (NHS): | + | $0 | $0 |
| | | -------------------------- | |
| (=) Market Value: | = | $748,901 | |
| (–) Productivity Loss: | – | $0 | |
| | | -------------------------- | |
| (=) Subtotal: | = | $748,901 | |
| (+) Senior Appraised Value: | + | $0 | |
| (+) Non-Senior Appraised Value: | + | $748,901 | |
| | | -------------------------- | |
| (=) Total Appraised Value: | = | $748,901 | |
| (–) Senior Exemption Loss: | – | $0 | |
| (–) Exemption Loss: | – | $0 | |
| | | -------------------------- | |
| (=) Taxable Value: | = | $748,901 | |
Taxing Jurisdiction
| Owner: | MICHAEL J & DEBRA A HORTON | | |
| % Ownership: | 100.0000000000% | | |
| Total Value: | $748,901 | | |
| Tax Area: | 0111 - 1-50F1E1H2L1 |
| CE | COUNTY CURRENT EXPENSE | 0.9034619479 | $748,901 | $748,901 | $676.60 | | |
| CNTYDD | DEVELOPMENTAL DISABILITIES | 0.0052121823 | $748,901 | $748,901 | $3.90 | | |
| CNTYVET | VETERANS RELIEF | 0.0052777810 | $748,901 | $748,901 | $3.95 | | |
| MENTAL | MENTAL HEALTH | 0.0052121823 | $748,901 | $748,901 | $3.90 | | |
| ROADS | COUNTY ROADS | 0.7415066410 | $748,901 | $748,901 | $555.32 | | |
| ROADSCU | COUNTY ROADS TO CUR EXP | 0.0000000000 | $748,901 | $748,901 | $0.00 | | |
| HOSP2CASH | HOSP DIST #2 GENERAL | 0.0536075306 | $748,901 | $748,901 | $40.15 | | |
| SCH50BOND | SCHOOL DIST #50 BOND 2016 | 0.5377451389 | $748,901 | $748,901 | $402.72 | | |
| SCH50CP | SCHOOL DIST #50 CAP PROJ | 0.4573475088 | $748,901 | $748,901 | $342.51 | | |
| SCH50MO | SCHOOL DIST #50 EP & O | 0.8262822886 | $748,901 | $748,901 | $618.80 | | |
| CONSERVE | CONSERVATION FUTURES | 0.0275621078 | $748,901 | $748,901 | $20.64 | | |
| EMS1 | FIRE DIST #1 EMS | 0.4679948282 | $748,901 | $748,901 | $350.48 | | |
| FD1 | FIRE DIST #1 GENERAL | 1.2171942929 | $748,901 | $748,901 | $911.56 | | |
| LIB1 | LIBRARY DIST #1 GENERAL | 0.2868827388 | $748,901 | $748,901 | $214.85 | | |
| PORTPT | PORT OF PT GENERAL | 0.1134941229 | $748,901 | $748,901 | $85.00 | | |
| PORTPTIDD | PORT OF PT IDD 2019 | 0.2577346692 | $748,901 | $748,901 | $193.02 | | |
| PUD1 | PUD #1 GENERAL | 0.0597888892 | $748,901 | $748,901 | $44.78 | | |
| STATE | STATE SCHOOL PART 1 | 1.4940692947 | $748,901 | $748,901 | $1,118.91 | | |
| STATE2 | STATE SCHOOL PART 2 | 0.8050170049 | $748,901 | $748,901 | $602.88 | | |
| | Total Tax Rate: | 8.2653911500 | | | | | |
| | | | | Taxes w/Current Exemptions: | $6,189.97 | | |
| | | | | Taxes w/o Exemptions: | $6,189.97 | | |
Improvement / Building
| Improvement #1: | Residential Bldg | State Code: | 11 | 201.0 sqft | Value: | $177,038 |
| Bathrooms (#): | 1 (FULL) | Bedrooms (#): | 1 | | Exterior Wall: | SI/ST | Floor Construction: | CONCR | | Foundation: | CONPR | Heating/Cooling: | HTWTR | | Roof Cover: | METAL |   |   |
|
| | Type | Description | Class CD | Sub Class CD | Year Built | Area |
| | MA | Main Area | 4+ | 1S | 2008 | 201.0 |
| | HBAL | House Balcony | 4 | * | 2008 | 12.0 |
| | GBLTIN | Builtin Garage | 4 | 1S | 2008 | 863.0 |
| | HLOFT | House Loft | 4 | * | 2008 | 684.0 |
| | SHED | Shed (Table Not Dep) | 4 | 15SF | 2021 | 140.0 |
| Improvement #2: | Residential Bldg | State Code: | 11 | 1332.0 sqft | Value: | $378,301 |
| Bathrooms (#): | 2 (FULL) | Bedrooms (#): | 2 | | Exterior Wall: | SI/ST | Foundation: | CONPR | | Heating/Cooling: | HPUMP | Roof Cover: | METAL |
|
| | Type | Description | Class CD | Sub Class CD | Year Built | Area |
| | MA | Main Area | 4+ | 1S | 2023 | 1332.0 |
| | HCPOR | House Concrete Porch | 3 | * | 2023 | 72.0 |
| | HDECK | House Deck | 3 | * | 2023 | 768.0 |
Sketch
Property Image
Land
| 1 | 5375-1345S | | 1.0000 | 43560.00 | 0.00 | 0.00 | 1.00 | $178,200 | $0 |
| 2 | 1575A | | 1.3300 | 57934.80 | 0.00 | 0.00 | 0.00 | $15,362 | $0 |
Roll Value History
| 2026 | N/A | N/A | N/A | N/A | N/A |
| 2025 | $555,339 | $193,562 | $0 | $748,901 | $748,901 |
| 2024 | $555,339 | $193,562 | $0 | $748,901 | $748,901 |
| 2023 | $507,727 | $178,815 | $0 | $686,542 | $686,542 |
| 2022 | $137,108 | $164,303 | $0 | $301,411 | $301,411 |
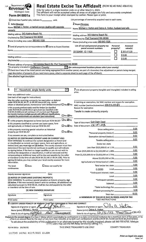
Deed and Sales History
| 1 | 12/05/2023 | QCD | Quit Claim Deed | MICHAEL J HORTON | MICHAEL J & DEBRA A HORTON | | | | 141961 | |
Payout Agreement
| No payout information available.. |