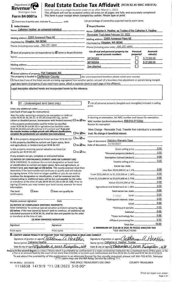
Property
Account |
| Property ID: | 11695 | Abbreviated Legal Description: | S33 T30 R1W NESW(LS N/HWY&E255' S/HWY) LS PTN TX 2,3,18,26 |
| Parcel # / Geo ID: | 001333037 | Agent Code: | |
| Type: | Real | | |
| Tax Area: | 0111 - 1-50F1E1H2L1 | Land Use Code | 01 |
| Open Space: | N | DFL | N |
| Historic Property: | N | Remodel Property: | N |
| Multi-Family Redevelopment: | N | | |
| Township: | 30N | Section: | 33 |
| Range: | 1W |
Location |
| Address: | 310 FOUR CORNER RD PORT TOWNSEND, WA 98368 | Mapsco: | 105/042 |
| Neighborhood: | FOUR CORNERS COMMERCIAL AREA | Map ID: | |
| Neighborhood CD: | 5380C |
Owner |
| Name: | JEFFERSON COUNTY PUD #1 | Owner ID: | 19003 |
| Mailing Address: | 310 4 CORNERS RD PORT TOWNSEND, WA 98368-9368 | % Ownership: | 100.0000000000% |
| | | Exemptions: | EX |
Pay Tax Due
Select the appropriate checkbox next to the year to be paid. Multiple years may be selected.
*Convenience Fee not included
Taxes and Assessment Details
Property Tax Information as of
03/10/2026
Click on "Statement Details" to expand or collapse a tax statement.
* Please enter a valid date ** Please enter a valid date *
Statement Details |
| 2026 | 1633 | STATE - STATE LEVY (SCHOOL) | $0.00 | $0.00 | $0.00 | $0.00 | $0.00 | $0.00 |
| 2026 | 1633 | COUNTY - COUNTY LEVIES (CE, DD, VET, MH) | $0.00 | $0.00 | $0.00 | $0.00 | $0.00 | $0.00 |
| 2026 | 1633 | CONSERVE - CONSERVATION FUTURES | $0.00 | $0.00 | $0.00 | $0.00 | $0.00 | $0.00 |
| 2026 | 1633 | COROADS - COUNTY ROADS (ROADS, DIV TO CE) | $0.00 | $0.00 | $0.00 | $0.00 | $0.00 | $0.00 |
| 2026 | 1633 | PORTPT - PORT DISTRICT | $0.00 | $0.00 | $0.00 | $0.00 | $0.00 | $0.00 |
| 2026 | 1633 | PUD1 - PUD #1 | $0.00 | $0.00 | $0.00 | $0.00 | $0.00 | $0.00 |
| 2026 | 1633 | LIB1 - LIBRARY DIST #1 | $0.00 | $0.00 | $0.00 | $0.00 | $0.00 | $0.00 |
| 2026 | 1633 | HD2 - HOSP DIST #2 | $0.00 | $0.00 | $0.00 | $0.00 | $0.00 | $0.00 |
| 2026 | 1633 | SD50 - SCHOOL DIST #50 | $0.00 | $0.00 | $0.00 | $0.00 | $0.00 | $0.00 |
| 2026 | 1633 | FD1 - FIRE DISTRICT #1 | $0.00 | $0.00 | $0.00 | $0.00 | $0.00 | $0.00 |
| 2026 | 1633 | EMS1 - FIRE DIST #1 EMS | $0.00 | $0.00 | $0.00 | $0.00 | $0.00 | $0.00 |
| 2026 | 1633 | FP - DNR Forest Fire Protection Assmt | $10.00 | $10.00 | $0.00 | $0.00 | $0.00 | $20.00 |
| 2026 | 1633 | FPLCA - DNR Landowner Contingency Assmt | $3.00 | $3.00 | $0.00 | $0.00 | $0.00 | $6.00 |
| 2026 | 1633 | OSS - On Site Septic | $23.10 | $23.10 | $0.00 | $0.00 | $0.00 | $46.20 |
| 2026 | 1633 | FP ADMIN - FP ADMIN | $0.50 | $0.00 | $0.00 | $0.00 | $0.00 | $0.50 |
| 2026 | 1633 | TOTAL: | $36.60 | $36.10 | $0.00 | $0.00 | $0.00 | $72.70 |
|
| 2026 | 1633 | $36.60 | $36.10 | $0.00 | $0.00 | $0.00 | $72.70 |
Statement Details |
| 2025 | 1639 | STATE - STATE LEVY (SCHOOL) | $0.00 | $0.00 | $0.00 | $0.00 | $0.00 | $0.00 |
| 2025 | 1639 | COUNTY - COUNTY LEVIES (CE, DD, VET, MH) | $0.00 | $0.00 | $0.00 | $0.00 | $0.00 | $0.00 |
| 2025 | 1639 | CONSERVE - CONSERVATION FUTURES | $0.00 | $0.00 | $0.00 | $0.00 | $0.00 | $0.00 |
| 2025 | 1639 | COROADS - COUNTY ROADS (ROADS, DIV TO CE) | $0.00 | $0.00 | $0.00 | $0.00 | $0.00 | $0.00 |
| 2025 | 1639 | PORTPT - PORT DISTRICT | $0.00 | $0.00 | $0.00 | $0.00 | $0.00 | $0.00 |
| 2025 | 1639 | PUD1 - PUD #1 | $0.00 | $0.00 | $0.00 | $0.00 | $0.00 | $0.00 |
| 2025 | 1639 | LIB1 - LIBRARY DIST #1 | $0.00 | $0.00 | $0.00 | $0.00 | $0.00 | $0.00 |
| 2025 | 1639 | HD2 - HOSP DIST #2 | $0.00 | $0.00 | $0.00 | $0.00 | $0.00 | $0.00 |
| 2025 | 1639 | SD50 - SCHOOL DIST #50 | $0.00 | $0.00 | $0.00 | $0.00 | $0.00 | $0.00 |
| 2025 | 1639 | FD1 - FIRE DISTRICT #1 | $0.00 | $0.00 | $0.00 | $0.00 | $0.00 | $0.00 |
| 2025 | 1639 | EMS1 - FIRE DIST #1 EMS | $0.00 | $0.00 | $0.00 | $0.00 | $0.00 | $0.00 |
| 2025 | 1639 | FP - DNR Forest Fire Protection Assmt | $10.00 | $10.00 | $0.00 | $0.00 | $20.00 | $0.00 |
| 2025 | 1639 | FPLCA - DNR Landowner Contingency Assmt | $3.00 | $3.00 | $0.00 | $0.00 | $6.00 | $0.00 |
| 2025 | 1639 | OSS - On Site Septic | $21.50 | $21.50 | $0.00 | $0.00 | $43.00 | $0.00 |
| 2025 | 1639 | FP ADMIN - FP ADMIN | $0.50 | $0.00 | $0.00 | $0.00 | $0.50 | $0.00 |
| 2025 | 1639 | TOTAL: | $35.00 | $34.50 | $0.00 | $0.00 | $69.50 | $0.00 |
|
| 2025 | 1639 | $35.00 | $34.50 | $0.00 | $0.00 | $69.50 | $0.00 |
Statement Details |
| 2024 | 1643 | STATE - STATE LEVY (SCHOOL) | $0.00 | $0.00 | $0.00 | $0.00 | $0.00 | $0.00 |
| 2024 | 1643 | COUNTY - COUNTY LEVIES (CE, DD, VET, MH) | $0.00 | $0.00 | $0.00 | $0.00 | $0.00 | $0.00 |
| 2024 | 1643 | CONSERVE - CONSERVATION FUTURES | $0.00 | $0.00 | $0.00 | $0.00 | $0.00 | $0.00 |
| 2024 | 1643 | COROADS - COUNTY ROADS (ROADS, DIV TO CE) | $0.00 | $0.00 | $0.00 | $0.00 | $0.00 | $0.00 |
| 2024 | 1643 | PORTPT - PORT DISTRICT | $0.00 | $0.00 | $0.00 | $0.00 | $0.00 | $0.00 |
| 2024 | 1643 | PUD1 - PUD #1 | $0.00 | $0.00 | $0.00 | $0.00 | $0.00 | $0.00 |
| 2024 | 1643 | LIB1 - LIBRARY DIST #1 | $0.00 | $0.00 | $0.00 | $0.00 | $0.00 | $0.00 |
| 2024 | 1643 | HD2 - HOSP DIST #2 | $0.00 | $0.00 | $0.00 | $0.00 | $0.00 | $0.00 |
| 2024 | 1643 | SD50 - SCHOOL DIST #50 | $0.00 | $0.00 | $0.00 | $0.00 | $0.00 | $0.00 |
| 2024 | 1643 | FD1 - FIRE DISTRICT #1 | $0.00 | $0.00 | $0.00 | $0.00 | $0.00 | $0.00 |
| 2024 | 1643 | EMS1 - FIRE DIST #1 EMS | $0.00 | $0.00 | $0.00 | $0.00 | $0.00 | $0.00 |
| 2024 | 1643 | FP - DNR Forest Fire Protection Assmt | $8.50 | $8.50 | $0.00 | $0.00 | $17.00 | $0.00 |
| 2024 | 1643 | FPLCA - DNR Landowner Contingency Assmt | $3.00 | $3.00 | $0.00 | $0.00 | $6.00 | $0.00 |
| 2024 | 1643 | OSS - On Site Septic | $21.00 | $21.00 | $0.00 | $0.00 | $42.00 | $0.00 |
| 2024 | 1643 | FP ADMIN - FP ADMIN | $0.50 | $0.00 | $0.00 | $0.00 | $0.50 | $0.00 |
| 2024 | 1643 | TOTAL: | $33.00 | $32.50 | $0.00 | $0.00 | $65.50 | $0.00 |
|
| 2024 | 1643 | $33.00 | $32.50 | $0.00 | $0.00 | $65.50 | $0.00 |
Statement Details |
| 2023 | 1643 | STATE - STATE LEVY (SCHOOL) | $0.00 | $0.00 | $0.00 | $0.00 | $0.00 | $0.00 |
| 2023 | 1643 | COUNTY - COUNTY LEVIES (CE, DD, VET, MH) | $0.00 | $0.00 | $0.00 | $0.00 | $0.00 | $0.00 |
| 2023 | 1643 | CONSERVE - CONSERVATION FUTURES | $0.00 | $0.00 | $0.00 | $0.00 | $0.00 | $0.00 |
| 2023 | 1643 | COROADS - COUNTY ROADS (ROADS, DIV TO CE) | $0.00 | $0.00 | $0.00 | $0.00 | $0.00 | $0.00 |
| 2023 | 1643 | PORTPT - PORT DISTRICT | $0.00 | $0.00 | $0.00 | $0.00 | $0.00 | $0.00 |
| 2023 | 1643 | PUD1 - PUD #1 | $0.00 | $0.00 | $0.00 | $0.00 | $0.00 | $0.00 |
| 2023 | 1643 | LIB1 - LIBRARY DIST #1 | $0.00 | $0.00 | $0.00 | $0.00 | $0.00 | $0.00 |
| 2023 | 1643 | HD2 - HOSP DIST #2 | $0.00 | $0.00 | $0.00 | $0.00 | $0.00 | $0.00 |
| 2023 | 1643 | SD50 - SCHOOL DIST #50 | $0.00 | $0.00 | $0.00 | $0.00 | $0.00 | $0.00 |
| 2023 | 1643 | FD1 - FIRE DISTRICT #1 | $0.00 | $0.00 | $0.00 | $0.00 | $0.00 | $0.00 |
| 2023 | 1643 | EMS1 - FIRE DIST #1 EMS | $0.00 | $0.00 | $0.00 | $0.00 | $0.00 | $0.00 |
| 2023 | 1643 | FP - DNR Forest Fire Protection Assmt | $8.50 | $8.50 | $0.00 | $0.00 | $17.00 | $0.00 |
| 2023 | 1643 | FPLCA - DNR Landowner Contingency Assmt | $3.00 | $3.00 | $0.00 | $0.00 | $6.00 | $0.00 |
| 2023 | 1643 | OSS - On Site Septic | $20.50 | $20.50 | $0.00 | $0.00 | $41.00 | $0.00 |
| 2023 | 1643 | FP ADMIN - FP ADMIN | $0.50 | $0.00 | $0.00 | $0.00 | $0.50 | $0.00 |
| 2023 | 1643 | TOTAL: | $32.50 | $32.00 | $0.00 | $0.00 | $64.50 | $0.00 |
|
| 2023 | 1643 | $32.50 | $32.00 | $0.00 | $0.00 | $64.50 | $0.00 |
Values
| (+) Improvement Homesite Value: | + | $0 | |
| (+) Improvement Non-Homesite Value: | + | $2,515,980 | |
| (+) Land Homesite Value: | + | $0 | |
| (+) Land Non-Homesite Value: | + | $1,053,015 | |
| (+) Curr Use (HS): | + | $0 | $0 |
| (+) Curr Use (NHS): | + | $0 | $0 |
| | | -------------------------- | |
| (=) Market Value: | = | $3,568,995 | |
| (–) Productivity Loss: | – | $0 | |
| | | -------------------------- | |
| (=) Subtotal: | = | $3,568,995 | |
| (+) Senior Appraised Value: | + | $0 | |
| (+) Non-Senior Appraised Value: | + | $3,568,995 | |
| | | -------------------------- | |
| (=) Total Appraised Value: | = | $3,568,995 | |
| (–) Senior Exemption Loss: | – | $0 | |
| (–) Exemption Loss: | – | $3,568,995 | |
| | | -------------------------- | |
| (=) Taxable Value: | = | $0 | |
Taxing Jurisdiction
| Owner: | JEFFERSON COUNTY PUD #1 | | |
| % Ownership: | 100.0000000000% | | |
| Total Value: | $3,568,995 | | |
| Tax Area: | 0111 - 1-50F1E1H2L1 |
| CE | COUNTY CURRENT EXPENSE | 0.9034619479 | $3,568,995 | $0 | $0.00 | | |
| CNTYDD | DEVELOPMENTAL DISABILITIES | 0.0052121823 | $3,568,995 | $0 | $0.00 | | |
| CNTYVET | VETERANS RELIEF | 0.0052777810 | $3,568,995 | $0 | $0.00 | | |
| MENTAL | MENTAL HEALTH | 0.0052121823 | $3,568,995 | $0 | $0.00 | | |
| ROADS | COUNTY ROADS | 0.7415066410 | $3,568,995 | $0 | $0.00 | | |
| ROADSCU | COUNTY ROADS TO CUR EXP | 0.0000000000 | $3,568,995 | $0 | $0.00 | | |
| HOSP2CASH | HOSP DIST #2 GENERAL | 0.0536075306 | $3,568,995 | $0 | $0.00 | | |
| SCH50BOND | SCHOOL DIST #50 BOND 2016 | 0.5377451389 | $3,568,995 | $0 | $0.00 | | |
| SCH50CP | SCHOOL DIST #50 CAP PROJ | 0.4573475088 | $3,568,995 | $0 | $0.00 | | |
| SCH50MO | SCHOOL DIST #50 EP & O | 0.8262822886 | $3,568,995 | $0 | $0.00 | | |
| CONSERVE | CONSERVATION FUTURES | 0.0275621078 | $3,568,995 | $0 | $0.00 | | |
| EMS1 | FIRE DIST #1 EMS | 0.4679948282 | $3,568,995 | $0 | $0.00 | | |
| FD1 | FIRE DIST #1 GENERAL | 1.2171942929 | $3,568,995 | $0 | $0.00 | | |
| LIB1 | LIBRARY DIST #1 GENERAL | 0.2868827388 | $3,568,995 | $0 | $0.00 | | |
| PORTPT | PORT OF PT GENERAL | 0.1134941229 | $3,568,995 | $0 | $0.00 | | |
| PORTPTIDD | PORT OF PT IDD 2019 | 0.2577346692 | $3,568,995 | $0 | $0.00 | | |
| PUD1 | PUD #1 GENERAL | 0.0597888892 | $3,568,995 | $0 | $0.00 | | |
| STATE | STATE SCHOOL PART 1 | 1.4940692947 | $3,568,995 | $0 | $0.00 | | |
| STATE2 | STATE SCHOOL PART 2 | 0.8050170049 | $3,568,995 | $0 | $0.00 | | |
| | Total Tax Rate: | 8.2653911500 | | | | | |
| | | | | Taxes w/Current Exemptions: | $0.00 | | |
| | | | | Taxes w/o Exemptions: | $29,499.14 | | |
Improvement / Building
| Improvement #1: | Commercial/Industrial/Government Bldg | State Code: | 48 | 13055.0 sqft | Value: | $2,284,625 |
| Improvement #2: | Commercial/Industrial/Government Bldg | State Code: | 11M | 2160.0 sqft | Value: | $131,355 |
| Exterior Wall: | PL/T1 | Foundation: | PO&BL | | Roof Cover: | COMP |   |   |
|
| Improvement #3: | Commercial/Industrial/Government Bldg | State Code: | 48 | 0.0 sqft | Value: | $100,000 |
Sketch
| No sketches available for this property. |
Property Image
Land
| 1 | 5380-6277Q | | 21.0208 | 915665.00 | 0.00 | 0.00 | 0.00 | $1,053,015 | $0 |
Roll Value History
| 2026 | N/A | N/A | N/A | N/A | N/A |
| 2025 | $2,515,980 | $1,053,015 | $0 | $3,568,995 | $0 |
| 2024 | $2,515,980 | $1,053,015 | $0 | $3,568,995 | $0 |
| 2023 | $0 | $0 | $0 | $0 | $0 |
| 2022 | $0 | $0 | $0 | $0 | $0 |
Deed and Sales History
| 1 | 03/29/2013 | QCD | Quit Claim Deed | | | | | | 120057 | |
| 2 | 03/29/2013 | QCD | Quit Claim Deed | PUGET SOUND ENERGY / ELECTRIC | JEFFERSON COUNTY PUD #1 | | | $2,682,000.00 | 119031 | |
|   | |
Payout Agreement
| No payout information available.. |