Property
Account |
| Property ID: | 11707 | Abbreviated Legal Description: | S33 T30 R1W TAX 38 |
| Parcel # / Geo ID: | 001334006 | Agent Code: | |
| Type: | Real | | |
| Tax Area: | 0211 - 1-49F1E1H2L1 | Land Use Code | 18 |
| Open Space: | N | DFL | N |
| Historic Property: | N | Remodel Property: | N |
| Multi-Family Redevelopment: | N | | |
| Township: | 30N | Section: | 33 |
| Range: | 1W |
Location |
| Address: | | Mapsco: | 223/058 |
| Neighborhood: | S33 (E1/2) & S34 T30N R1W; MARVIN GARDENS LLSD; SULIVAN'S SP | Map ID: | |
| Neighborhood CD: | 4110 |
Owner |
| Name: | RICHARD W SMITH | Owner ID: | 93116 |
| Mailing Address: | 452 FOUR CORNER RD PORT TOWNSEND, WA 98368-9369 | % Ownership: | 100.0000000000% |
| | | Exemptions: | |
Pay Tax Due
There is currently No Amount Due on this property.
Taxes and Assessment Details
Property Tax Information as of
03/12/2026
Click on "Statement Details" to expand or collapse a tax statement.
* Please enter a valid date ** Please enter a valid date *
Statement Details |
| | TOTAL: | $0.00 | $0.00 | $0.00 | $0.00 | $0.00 | $0.00 |
|
| | $0.00 | $0.00 | $0.00 | $0.00 | $0.00 | $0.00 |
Values
| (+) Improvement Homesite Value: | + | $0 | |
| (+) Improvement Non-Homesite Value: | + | $0 | |
| (+) Land Homesite Value: | + | $0 | |
| (+) Land Non-Homesite Value: | + | $94,868 | |
| (+) Curr Use (HS): | + | $0 | $0 |
| (+) Curr Use (NHS): | + | $0 | $0 |
| | | -------------------------- | |
| (=) Market Value: | = | $94,868 | |
| (–) Productivity Loss: | – | $0 | |
| | | -------------------------- | |
| (=) Subtotal: | = | $94,868 | |
| (+) Senior Appraised Value: | + | $0 | |
| (+) Non-Senior Appraised Value: | + | $94,868 | |
| | | -------------------------- | |
| (=) Total Appraised Value: | = | $94,868 | |
| (–) Senior Exemption Loss: | – | $0 | |
| (–) Exemption Loss: | – | $0 | |
| | | -------------------------- | |
| (=) Taxable Value: | = | $94,868 | |
Taxing Jurisdiction
| Owner: | RICHARD W SMITH | | |
| % Ownership: | 100.0000000000% | | |
| Total Value: | N/A | | |
| Tax Area: | 0211 - 1-49F1E1H2L1 |
| CE | COUNTY CURRENT EXPENSE | N/A | N/A | N/A | N/A | | |
| CNTYDD | DEVELOPMENTAL DISABILITIES | N/A | N/A | N/A | N/A | | |
| CNTYVET | VETERANS RELIEF | N/A | N/A | N/A | N/A | | |
| MENTAL | MENTAL HEALTH | N/A | N/A | N/A | N/A | | |
| ROADS | COUNTY ROADS | N/A | N/A | N/A | N/A | | |
| HOSP2CASH | HOSP DIST #2 GENERAL | N/A | N/A | N/A | N/A | | |
| SCH49CP | SCHOOL DIST #49 CAP PROJ | N/A | N/A | N/A | N/A | | |
| SCH49MO | SCHOOL DIST #49 EP & O | N/A | N/A | N/A | N/A | | |
| CONSERVE | CONSERVATION FUTURES | N/A | N/A | N/A | N/A | | |
| EMS1 | FIRE DIST #1 EMS | N/A | N/A | N/A | N/A | | |
| FD1 | FIRE DIST #1 GENERAL | N/A | N/A | N/A | N/A | | |
| LIB1 | LIBRARY DIST #1 GENERAL | N/A | N/A | N/A | N/A | | |
| PORTPT | PORT OF PT GENERAL | N/A | N/A | N/A | N/A | | |
| PORTPTIDD | PORT OF PT IDD 2019 | N/A | N/A | N/A | N/A | | |
| PUD1 | PUD #1 GENERAL | N/A | N/A | N/A | N/A | | |
| STATE | STATE SCHOOL PART 1 | N/A | N/A | N/A | N/A | | |
| STATE2 | STATE SCHOOL PART 2 | N/A | N/A | N/A | N/A | | |
| | Total Tax Rate: | N/A | | | | | |
| | | | | Taxes w/Current Exemptions: | N/A | | |
| | | | | Taxes w/o Exemptions: | N/A | | |
Improvement / Building
| Improvement #1: | Residential Bldg | State Code: | 91 | 0.0 sqft | Value: | $0 |
Sketch
| No sketches available for this property. |
Property Image
Land
| 1 | 4110-1375S | Territorial View Sites 1+/- Acre | 1.0000 | 43560.00 | 0.00 | 0.00 | 1.00 | $73,500 | $0 |
| 2 | 1574A | Terr/Mtn/No View <6 Acres | 1.8500 | 80586.00 | 0.00 | 0.00 | 0.00 | $21,368 | $0 |
Roll Value History
| 2026 | N/A | N/A | N/A | N/A | N/A |
| 2025 | $0 | $94,868 | $0 | $94,868 | $94,868 |
| 2024 | $0 | $90,350 | $0 | $90,350 | $90,350 |
| 2023 | $0 | $89,425 | $0 | $89,425 | $89,425 |
| 2022 | $0 | $77,575 | $0 | $77,575 | $77,575 |
Deed and Sales History
| 1 | 01/09/2015 | SWD | Statutory Warranty Deed | JACK L HENSEL | RICHARD W SMITH | | | $195,000.00 | 122643 | |
|   | |
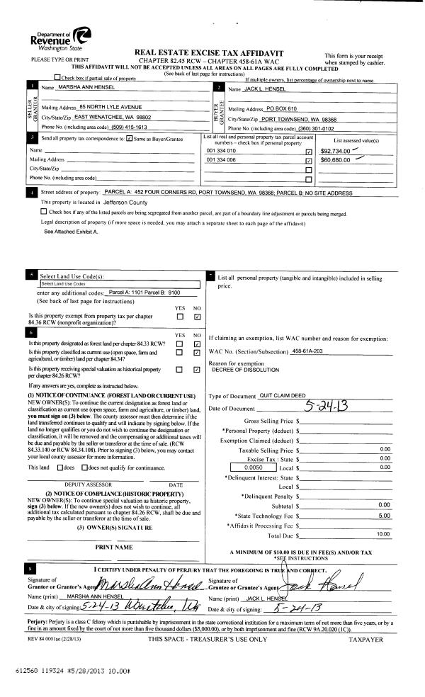
| 2 | 05/24/2013 | QCD | Quit Claim Deed | | JACK L HENSEL | | | | 119324 | |
| 3 | 05/24/2013 | QCD | Quit Claim Deed | | JACK L HENSEL | | | | 119372 | |
| 4 | 05/23/2013 | DILF | Deed in Lieu of Foreclosure | OLD GRAVEL PIT LLC | JACK L HENSEL | | | | 119309 | |
| 5 | 03/01/2013 | QCD | Quit Claim Deed | OLD GRAVEL PIT LLC | JACK L HENSEL | | | | 119373 | |
| 6 | 04/10/2012 | QCD | Quit Claim Deed | HOGAN, JOHN C | OLD GRAVEL PIT LLC | 0 | 0 | $0.00 | 117379 | 0 |
| 7 | 06/06/2008 | SWD | Statutory Warranty Deed | SETON, GLADYS | HOGAN, JOHN C | | | $200,000.00 | 111380 | 0 |
Payout Agreement
| No payout information available.. |