Property
Account |
| Property ID: | 11762 | Abbreviated Legal Description: | WE & MJ SETON SHORT PLAT LOT 4 SUBJ/EASE |
| Parcel # / Geo ID: | 001342024 | Agent Code: | |
| Type: | Real | | |
| Tax Area: | 0211 - 1-49F1E1H2L1 | Land Use Code | 11 |
| Open Space: | N | DFL | N |
| Historic Property: | N | Remodel Property: | N |
| Multi-Family Redevelopment: | N | | |
| Township: | 30N | Section: | 34 |
| Range: | 1W |
Location |
| Address: | 54 CREEK VIEW LN PORT TOWNSEND, WA 98368 | Mapsco: | 242/044 |
| Neighborhood: | S33 (E1/2) & S34 T30N R1W; MARVIN GARDENS LLSD; SULIVAN'S SP | Map ID: | |
| Neighborhood CD: | 4110 |
Owner |
| Name: | SHENOA & KAILEY SNYDER | Owner ID: | 111335 |
| Mailing Address: | 54 CREEKVIEW LN PORT TOWNSEND, WA 98368-2536 | % Ownership: | 100.0000000000% |
| | | Exemptions: | |
Pay Tax Due
Select the appropriate checkbox next to the year to be paid. Multiple years may be selected.
*Convenience Fee not included
Taxes and Assessment Details
Property Tax Information as of
03/12/2026
Click on "Statement Details" to expand or collapse a tax statement.
* Please enter a valid date ** Please enter a valid date *
Statement Details |
| 2026 | 1698 | STATE - STATE LEVY (SCHOOL) | $482.69 | $482.68 | $0.00 | $0.00 | $0.00 | $965.37 |
| 2026 | 1698 | COUNTY - COUNTY LEVIES (CE, DD, VET, MH) | $192.99 | $192.97 | $0.00 | $0.00 | $0.00 | $385.96 |
| 2026 | 1698 | CONSERVE - CONSERVATION FUTURES | $5.79 | $5.78 | $0.00 | $0.00 | $0.00 | $11.57 |
| 2026 | 1698 | COROADS - COUNTY ROADS (ROADS, DIV TO CE) | $155.68 | $155.67 | $0.00 | $0.00 | $0.00 | $311.35 |
| 2026 | 1698 | PORTPT - PORT DISTRICT | $77.94 | $77.94 | $0.00 | $0.00 | $0.00 | $155.88 |
| 2026 | 1698 | PUD1 - PUD #1 | $12.55 | $12.55 | $0.00 | $0.00 | $0.00 | $25.10 |
| 2026 | 1698 | LIB1 - LIBRARY DIST #1 | $60.23 | $60.23 | $0.00 | $0.00 | $0.00 | $120.46 |
| 2026 | 1698 | HD2 - HOSP DIST #2 | $11.26 | $11.25 | $0.00 | $0.00 | $0.00 | $22.51 |
| 2026 | 1698 | SD49 - SCHOOL DIST #49 | $265.70 | $265.70 | $0.00 | $0.00 | $0.00 | $531.40 |
| 2026 | 1698 | FD1 - FIRE DISTRICT #1 | $255.55 | $255.54 | $0.00 | $0.00 | $0.00 | $511.09 |
| 2026 | 1698 | EMS1 - FIRE DIST #1 EMS | $98.26 | $98.25 | $0.00 | $0.00 | $0.00 | $196.51 |
| 2026 | 1698 | FP - DNR Forest Fire Protection Assmt | $8.50 | $8.50 | $0.00 | $0.00 | $0.00 | $17.00 |
| 2026 | 1698 | FPLCA - DNR Landowner Contingency Assmt | $3.00 | $3.00 | $0.00 | $0.00 | $0.00 | $6.00 |
| 2026 | 1698 | JCCD - JC Conservation District | $2.80 | $2.80 | $0.00 | $0.00 | $0.00 | $5.60 |
| 2026 | 1698 | NWA - Noxious Weed Assessment | $4.10 | $4.10 | $0.00 | $0.00 | $0.00 | $8.20 |
| 2026 | 1698 | OSS - On Site Septic | $23.10 | $23.10 | $0.00 | $0.00 | $0.00 | $46.20 |
| 2026 | 1698 | WAT - Clean Water District | $13.00 | $13.00 | $0.00 | $0.00 | $0.00 | $26.00 |
| 2026 | 1698 | FP ADMIN - FP ADMIN | $0.50 | $0.00 | $0.00 | $0.00 | $0.00 | $0.50 |
| 2026 | 1698 | TOTAL: | $1673.64 | $1673.06 | $0.00 | $0.00 | $0.00 | $3346.70 |
|
| 2026 | 1698 | $1673.64 | $1673.06 | $0.00 | $0.00 | $0.00 | $3346.70 |
Statement Details |
| 2025 | 1704 | STATE - STATE LEVY (SCHOOL) | $480.13 | $480.12 | $0.00 | $0.00 | $960.25 | $0.00 |
| 2025 | 1704 | COUNTY - COUNTY LEVIES (CE, DD, VET, MH) | $188.81 | $188.80 | $0.00 | $0.00 | $377.61 | $0.00 |
| 2025 | 1704 | CONSERVE - CONSERVATION FUTURES | $5.66 | $5.66 | $0.00 | $0.00 | $11.32 | $0.00 |
| 2025 | 1704 | COROADS - COUNTY ROADS (ROADS, DIV TO CE) | $151.27 | $151.26 | $0.00 | $0.00 | $302.53 | $0.00 |
| 2025 | 1704 | PORTPT - PORT DISTRICT | $77.05 | $77.04 | $0.00 | $0.00 | $154.09 | $0.00 |
| 2025 | 1704 | PUD1 - PUD #1 | $12.36 | $12.35 | $0.00 | $0.00 | $24.71 | $0.00 |
| 2025 | 1704 | LIB1 - LIBRARY DIST #1 | $58.52 | $58.52 | $0.00 | $0.00 | $117.04 | $0.00 |
| 2025 | 1704 | HD2 - HOSP DIST #2 | $11.02 | $11.01 | $0.00 | $0.00 | $22.03 | $0.00 |
| 2025 | 1704 | SD49 - SCHOOL DIST #49 | $257.32 | $257.32 | $0.00 | $0.00 | $514.64 | $0.00 |
| 2025 | 1704 | FD1 - FIRE DISTRICT #1 | $249.15 | $249.15 | $0.00 | $0.00 | $498.30 | $0.00 |
| 2025 | 1704 | EMS1 - FIRE DIST #1 EMS | $95.83 | $95.83 | $0.00 | $0.00 | $191.66 | $0.00 |
| 2025 | 1704 | FP - DNR Forest Fire Protection Assmt | $8.50 | $8.50 | $0.00 | $0.00 | $17.00 | $0.00 |
| 2025 | 1704 | FPLCA - DNR Landowner Contingency Assmt | $3.00 | $3.00 | $0.00 | $0.00 | $6.00 | $0.00 |
| 2025 | 1704 | JCCD - JC Conservation District | $2.80 | $2.80 | $0.00 | $0.00 | $5.60 | $0.00 |
| 2025 | 1704 | NWA - Noxious Weed Assessment | $2.90 | $2.90 | $0.00 | $0.00 | $5.80 | $0.00 |
| 2025 | 1704 | OSS - On Site Septic | $21.50 | $21.50 | $0.00 | $0.00 | $43.00 | $0.00 |
| 2025 | 1704 | WAT - Clean Water District | $13.00 | $13.00 | $0.00 | $0.00 | $26.00 | $0.00 |
| 2025 | 1704 | FP ADMIN - FP ADMIN | $0.50 | $0.00 | $0.00 | $0.00 | $0.50 | $0.00 |
| 2025 | 1704 | TOTAL: | $1639.32 | $1638.76 | $0.00 | $0.00 | $3278.08 | $0.00 |
|
| 2025 | 1704 | $1639.32 | $1638.76 | $0.00 | $0.00 | $3278.08 | $0.00 |
Statement Details |
| 2024 | 1709 | STATE - STATE LEVY (SCHOOL) | $336.76 | $336.75 | $0.00 | $0.00 | $673.51 | $0.00 |
| 2024 | 1709 | COUNTY - COUNTY LEVIES (CE, DD, VET, MH) | $144.12 | $144.09 | $0.00 | $0.00 | $288.21 | $0.00 |
| 2024 | 1709 | CONSERVE - CONSERVATION FUTURES | $4.32 | $4.32 | $0.00 | $0.00 | $8.64 | $0.00 |
| 2024 | 1709 | COROADS - COUNTY ROADS (ROADS, DIV TO CE) | $115.96 | $115.95 | $0.00 | $0.00 | $231.91 | $0.00 |
| 2024 | 1709 | PORTPT - PORT DISTRICT | $59.53 | $59.51 | $0.00 | $0.00 | $119.04 | $0.00 |
| 2024 | 1709 | PUD1 - PUD #1 | $9.47 | $9.46 | $0.00 | $0.00 | $18.93 | $0.00 |
| 2024 | 1709 | LIB1 - LIBRARY DIST #1 | $44.86 | $44.86 | $0.00 | $0.00 | $89.72 | $0.00 |
| 2024 | 1709 | HD2 - HOSP DIST #2 | $8.41 | $8.41 | $0.00 | $0.00 | $16.82 | $0.00 |
| 2024 | 1709 | SD49 - SCHOOL DIST #49 | $150.38 | $150.37 | $0.00 | $0.00 | $300.75 | $0.00 |
| 2024 | 1709 | FD1 - FIRE DISTRICT #1 | $190.54 | $190.53 | $0.00 | $0.00 | $381.07 | $0.00 |
| 2024 | 1709 | EMS1 - FIRE DIST #1 EMS | $72.78 | $72.77 | $0.00 | $0.00 | $145.55 | $0.00 |
| 2024 | 1709 | JCCD - JC Conservation District | $2.80 | $2.80 | $0.00 | $0.00 | $5.60 | $0.00 |
| 2024 | 1709 | NWA - Noxious Weed Assessment | $2.90 | $2.90 | $0.00 | $0.00 | $5.80 | $0.00 |
| 2024 | 1709 | OSS - On Site Septic | $21.00 | $21.00 | $0.00 | $0.00 | $42.00 | $0.00 |
| 2024 | 1709 | WAT - Clean Water District | $12.50 | $12.50 | $0.00 | $0.00 | $25.00 | $0.00 |
| 2024 | 1709 | TOTAL: | $1176.33 | $1176.22 | $0.00 | $0.00 | $2352.55 | $0.00 |
|
| 2024 | 1709 | $1176.33 | $1176.22 | $0.00 | $0.00 | $2352.55 | $0.00 |
Statement Details |
| 2023 | 1709 | STATE - STATE LEVY (SCHOOL) | $296.35 | $296.34 | $0.00 | $0.00 | $592.69 | $0.00 |
| 2023 | 1709 | COUNTY - COUNTY LEVIES (CE, DD, VET, MH) | $129.34 | $129.30 | $0.00 | $0.00 | $258.64 | $0.00 |
| 2023 | 1709 | CONSERVE - CONSERVATION FUTURES | $3.88 | $3.88 | $0.00 | $0.00 | $7.76 | $0.00 |
| 2023 | 1709 | COROADS - COUNTY ROADS (ROADS, DIV TO CE) | $104.63 | $104.62 | $0.00 | $0.00 | $209.25 | $0.00 |
| 2023 | 1709 | PORTPT - PORT DISTRICT | $54.48 | $54.46 | $0.00 | $0.00 | $108.94 | $0.00 |
| 2023 | 1709 | PUD1 - PUD #1 | $8.57 | $8.57 | $0.00 | $0.00 | $17.14 | $0.00 |
| 2023 | 1709 | LIB1 - LIBRARY DIST #1 | $40.48 | $40.48 | $0.00 | $0.00 | $80.96 | $0.00 |
| 2023 | 1709 | HD2 - HOSP DIST #2 | $7.55 | $7.54 | $0.00 | $0.00 | $15.09 | $0.00 |
| 2023 | 1709 | SD49 - SCHOOL DIST #49 | $138.53 | $138.52 | $0.00 | $0.00 | $277.05 | $0.00 |
| 2023 | 1709 | FD1 - FIRE DISTRICT #1 | $106.53 | $106.53 | $0.00 | $0.00 | $213.06 | $0.00 |
| 2023 | 1709 | EMS1 - FIRE DIST #1 EMS | $45.32 | $45.31 | $0.00 | $0.00 | $90.63 | $0.00 |
| 2023 | 1709 | JCCD - JC Conservation District | $2.80 | $2.80 | $0.00 | $0.00 | $5.60 | $0.00 |
| 2023 | 1709 | NWA - Noxious Weed Assessment | $2.90 | $2.90 | $0.00 | $0.00 | $5.80 | $0.00 |
| 2023 | 1709 | OSS - On Site Septic | $20.50 | $20.50 | $0.00 | $0.00 | $41.00 | $0.00 |
| 2023 | 1709 | WAT - Clean Water District | $12.00 | $12.00 | $0.00 | $0.00 | $24.00 | $0.00 |
| 2023 | 1709 | TOTAL: | $973.86 | $973.75 | $0.00 | $0.00 | $1947.61 | $0.00 |
|
| 2023 | 1709 | $973.86 | $973.75 | $0.00 | $0.00 | $1947.61 | $0.00 |
Values
| (+) Improvement Homesite Value: | + | $0 | |
| (+) Improvement Non-Homesite Value: | + | $246,539 | |
| (+) Land Homesite Value: | + | $0 | |
| (+) Land Non-Homesite Value: | + | $173,355 | |
| (+) Curr Use (HS): | + | $0 | $0 |
| (+) Curr Use (NHS): | + | $0 | $0 |
| | | -------------------------- | |
| (=) Market Value: | = | $419,894 | |
| (–) Productivity Loss: | – | $0 | |
| | | -------------------------- | |
| (=) Subtotal: | = | $419,894 | |
| (+) Senior Appraised Value: | + | $0 | |
| (+) Non-Senior Appraised Value: | + | $419,894 | |
| | | -------------------------- | |
| (=) Total Appraised Value: | = | $419,894 | |
| (–) Senior Exemption Loss: | – | $0 | |
| (–) Exemption Loss: | – | $0 | |
| | | -------------------------- | |
| (=) Taxable Value: | = | $419,894 | |
Taxing Jurisdiction
| Owner: | SHENOA & KAILEY SNYDER | | |
| % Ownership: | 100.0000000000% | | |
| Total Value: | $419,894 | | |
| Tax Area: | 0211 - 1-49F1E1H2L1 |
| CE | COUNTY CURRENT EXPENSE | 0.9034619479 | $419,894 | $419,894 | $379.36 | | |
| CNTYDD | DEVELOPMENTAL DISABILITIES | 0.0052121823 | $419,894 | $419,894 | $2.19 | | |
| CNTYVET | VETERANS RELIEF | 0.0052777810 | $419,894 | $419,894 | $2.22 | | |
| MENTAL | MENTAL HEALTH | 0.0052121823 | $419,894 | $419,894 | $2.19 | | |
| ROADS | COUNTY ROADS | 0.7415066410 | $419,894 | $419,894 | $311.35 | | |
| ROADSCU | COUNTY ROADS TO CUR EXP | 0.0000000000 | $419,894 | $419,894 | $0.00 | | |
| HOSP2CASH | HOSP DIST #2 GENERAL | 0.0536075306 | $419,894 | $419,894 | $22.51 | | |
| SCH49CP | SCHOOL DIST #49 CAP PROJ | 0.6279093905 | $419,894 | $419,894 | $263.66 | | |
| SCH49MO | SCHOOL DIST #49 EP & O | 0.6376483602 | $419,894 | $419,894 | $267.74 | | |
| CONSERVE | CONSERVATION FUTURES | 0.0275621078 | $419,894 | $419,894 | $11.57 | | |
| EMS1 | FIRE DIST #1 EMS | 0.4679948282 | $419,894 | $419,894 | $196.51 | | |
| FD1 | FIRE DIST #1 GENERAL | 1.2171942929 | $419,894 | $419,894 | $511.09 | | |
| LIB1 | LIBRARY DIST #1 GENERAL | 0.2868827388 | $419,894 | $419,894 | $120.46 | | |
| PORTPT | PORT OF PT GENERAL | 0.1134941229 | $419,894 | $419,894 | $47.66 | | |
| PORTPTIDD | PORT OF PT IDD 2019 | 0.2577346692 | $419,894 | $419,894 | $108.22 | | |
| PUD1 | PUD #1 GENERAL | 0.0597888892 | $419,894 | $419,894 | $25.10 | | |
| STATE | STATE SCHOOL PART 1 | 1.4940692947 | $419,894 | $419,894 | $627.35 | | |
| STATE2 | STATE SCHOOL PART 2 | 0.8050170049 | $419,894 | $419,894 | $338.02 | | |
| | Total Tax Rate: | 7.7095739644 | | | | | |
| | | | | Taxes w/Current Exemptions: | $3,237.20 | | |
| | | | | Taxes w/o Exemptions: | $3,237.20 | | |
Improvement / Building
| Improvement #1: | Manufactured Home | State Code: | 11 | 1782.0 sqft | Value: | $246,539 |
| Bathrooms (#): | 2 (FULL) | Bedrooms (#): | 4 | | Exterior Wall: | PL/T1 | Foundation: | CONPR | | Heating/Cooling: | F/A | Inside Verify: | YES-FIX | | Roof Cover: | COMP |   |   |
|
| | Type | Description | Class CD | Sub Class CD | Year Built | Area |
| | MA | Main Area | 4- | MFH | 1999 | 1782.0 |
| | MPATIO | MH Patio | 3 | * | 1999 | 360.0 |
| | OTHER | Other | * | * | 1999 | 0.0 |
Sketch
| No sketches available for this property. |
Property Image
Land
| 1 | 4110-1375S | | 1.0000 | 43560.00 | 0.00 | 0.00 | 1.00 | $105,000 | $0 |
| 2 | 4110-1565A | | 4.3400 | 189050.40 | 0.00 | 0.00 | 0.00 | $68,355 | $0 |
Roll Value History
| 2026 | N/A | N/A | N/A | N/A | N/A |
| 2025 | $246,539 | $173,355 | $0 | $419,894 | $419,894 |
| 2024 | $235,332 | $165,100 | $0 | $400,432 | $400,432 |
| 2023 | $166,007 | $125,100 | $0 | $291,107 | $291,107 |
| 2022 | $143,172 | $108,590 | $0 | $251,762 | $251,762 |
Deed and Sales History
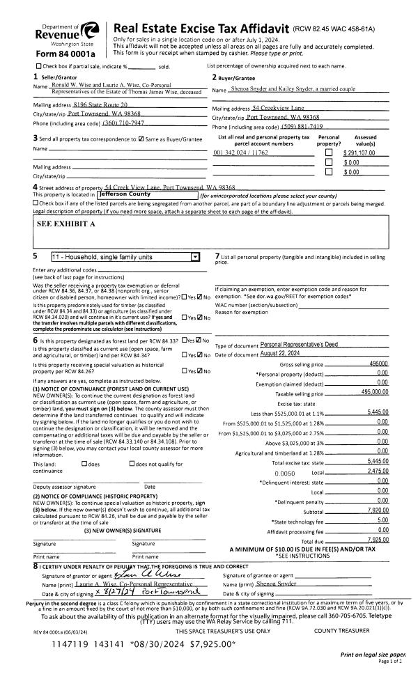
| 1 | 08/22/2024 | PRD | Personal Representatives Deed | THOMAS J WISE | SHENOA & KAILEY SNYDER | | | $495,000.00 | 143141 | |
| 2 | 05/05/2000 | SWD | Statutory Warranty Deed | SETON, W E/MARILYN J | WISE, THOMAS J | 0 | 0 | $43,000.00 | 89526 | 0 |
Payout Agreement
| No payout information available.. |