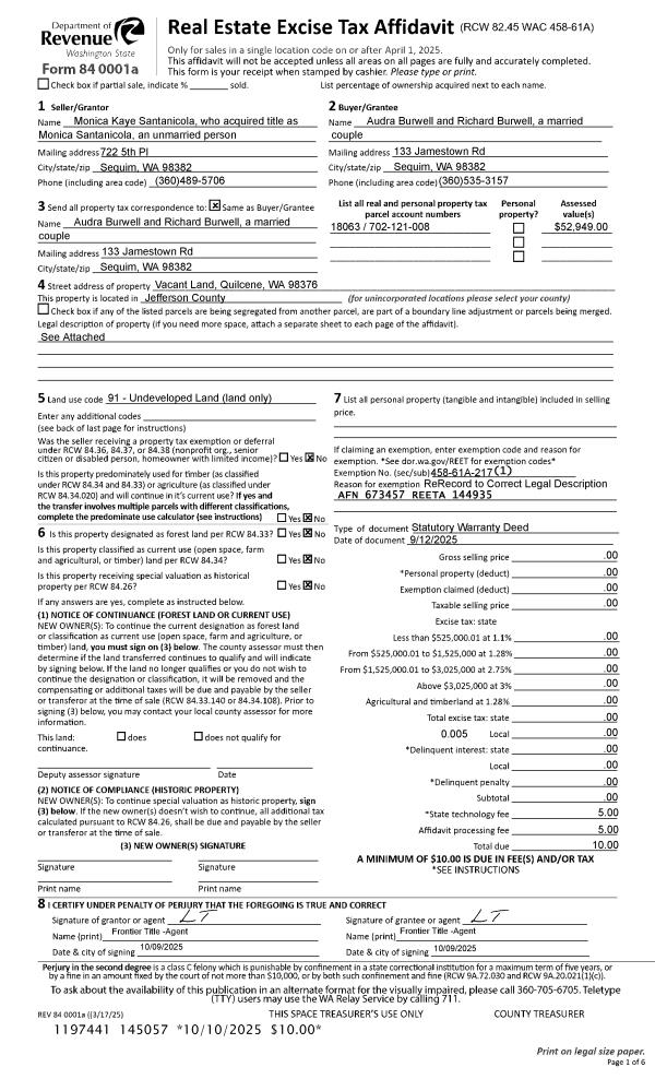
Property
Account |
| Property ID: | 11767 | Abbreviated Legal Description: | KALA SQUARE BINDING SITE PLAN LOT 5 AMENDED V1 P82 SUBJ TO EASE/REST OF RECORD |
| Parcel # / Geo ID: | 001342035 | Agent Code: | |
| Type: | Real | | |
| Tax Area: | 0211 - 1-49F1E1H2L1 | Land Use Code | 63 |
| Open Space: | N | DFL | N |
| Historic Property: | N | Remodel Property: | N |
| Multi-Family Redevelopment: | N | | |
| Township: | 30N | Section: | 34 |
| Range: | 1W |
Location |
| Address: | | Mapsco: | 235/005 |
| Neighborhood: | PROSPECT AVE / AIRPORT COMMERCIAL AREA | Map ID: | |
| Neighborhood CD: | 4110C |
Owner |
| Name: | COHESION LLC | Owner ID: | 113537 |
| Mailing Address: | PO BOX 3416 SEQUIM, WA 98382-5027 | % Ownership: | 100.0000000000% |
| | | Exemptions: | |
Pay Tax Due
Select the appropriate checkbox next to the year to be paid. Multiple years may be selected.
*Convenience Fee not included
Taxes and Assessment Details
Property Tax Information as of
03/10/2026
Click on "Statement Details" to expand or collapse a tax statement.
* Please enter a valid date ** Please enter a valid date *
Statement Details |
| 2026 | 1703 | STATE - STATE LEVY (SCHOOL) | $378.32 | $378.30 | $0.00 | $0.00 | $0.00 | $756.62 |
| 2026 | 1703 | COUNTY - COUNTY LEVIES (CE, DD, VET, MH) | $151.26 | $151.25 | $0.00 | $0.00 | $0.00 | $302.51 |
| 2026 | 1703 | CONSERVE - CONSERVATION FUTURES | $4.54 | $4.53 | $0.00 | $0.00 | $0.00 | $9.07 |
| 2026 | 1703 | COROADS - COUNTY ROADS (ROADS, DIV TO CE) | $122.02 | $122.01 | $0.00 | $0.00 | $0.00 | $244.03 |
| 2026 | 1703 | PORTPT - PORT DISTRICT | $61.09 | $61.08 | $0.00 | $0.00 | $0.00 | $122.17 |
| 2026 | 1703 | PUD1 - PUD #1 | $9.84 | $9.84 | $0.00 | $0.00 | $0.00 | $19.68 |
| 2026 | 1703 | LIB1 - LIBRARY DIST #1 | $47.21 | $47.20 | $0.00 | $0.00 | $0.00 | $94.41 |
| 2026 | 1703 | HD2 - HOSP DIST #2 | $8.82 | $8.82 | $0.00 | $0.00 | $0.00 | $17.64 |
| 2026 | 1703 | SD49 - SCHOOL DIST #49 | $208.25 | $208.24 | $0.00 | $0.00 | $0.00 | $416.49 |
| 2026 | 1703 | FD1 - FIRE DISTRICT #1 | $200.29 | $200.28 | $0.00 | $0.00 | $0.00 | $400.57 |
| 2026 | 1703 | EMS1 - FIRE DIST #1 EMS | $77.01 | $77.01 | $0.00 | $0.00 | $0.00 | $154.02 |
| 2026 | 1703 | FPLCA - DNR Landowner Contingency Assmt | $3.00 | $3.00 | $0.00 | $0.00 | $0.00 | $6.00 |
| 2026 | 1703 | JCCD - JC Conservation District | $2.53 | $2.53 | $0.00 | $0.00 | $0.00 | $5.06 |
| 2026 | 1703 | NWA - Noxious Weed Assessment | $2.98 | $2.97 | $0.00 | $0.00 | $0.00 | $5.95 |
| 2026 | 1703 | OSS - On Site Septic | $23.10 | $23.10 | $0.00 | $0.00 | $0.00 | $46.20 |
| 2026 | 1703 | WAT - Clean Water District | $13.00 | $13.00 | $0.00 | $0.00 | $0.00 | $26.00 |
| 2026 | 1703 | TOTAL: | $1313.26 | $1313.16 | $0.00 | $0.00 | $0.00 | $2626.42 |
|
| 2026 | 1703 | $1313.26 | $1313.16 | $0.00 | $0.00 | $0.00 | $2626.42 |
Statement Details |
| 2025 | 1709 | STATE - STATE LEVY (SCHOOL) | $394.59 | $394.59 | $0.00 | $0.00 | $789.18 | $0.00 |
| 2025 | 1709 | COUNTY - COUNTY LEVIES (CE, DD, VET, MH) | $155.18 | $155.17 | $0.00 | $0.00 | $310.35 | $0.00 |
| 2025 | 1709 | CONSERVE - CONSERVATION FUTURES | $4.66 | $4.65 | $0.00 | $0.00 | $9.31 | $0.00 |
| 2025 | 1709 | COROADS - COUNTY ROADS (ROADS, DIV TO CE) | $124.32 | $124.31 | $0.00 | $0.00 | $248.63 | $0.00 |
| 2025 | 1709 | PORTPT - PORT DISTRICT | $63.32 | $63.32 | $0.00 | $0.00 | $126.64 | $0.00 |
| 2025 | 1709 | PUD1 - PUD #1 | $10.16 | $10.15 | $0.00 | $0.00 | $20.31 | $0.00 |
| 2025 | 1709 | LIB1 - LIBRARY DIST #1 | $48.10 | $48.09 | $0.00 | $0.00 | $96.19 | $0.00 |
| 2025 | 1709 | HD2 - HOSP DIST #2 | $9.06 | $9.05 | $0.00 | $0.00 | $18.11 | $0.00 |
| 2025 | 1709 | SD49 - SCHOOL DIST #49 | $211.48 | $211.47 | $0.00 | $0.00 | $422.95 | $0.00 |
| 2025 | 1709 | FD1 - FIRE DISTRICT #1 | $204.77 | $204.76 | $0.00 | $0.00 | $409.53 | $0.00 |
| 2025 | 1709 | EMS1 - FIRE DIST #1 EMS | $78.76 | $78.76 | $0.00 | $0.00 | $157.52 | $0.00 |
| 2025 | 1709 | FPLCA - DNR Landowner Contingency Assmt | $3.00 | $3.00 | $0.00 | $0.00 | $6.00 | $0.00 |
| 2025 | 1709 | JCCD - JC Conservation District | $2.53 | $2.53 | $0.00 | $0.00 | $5.06 | $0.00 |
| 2025 | 1709 | NWA - Noxious Weed Assessment | $2.15 | $2.15 | $0.00 | $0.00 | $4.30 | $0.00 |
| 2025 | 1709 | OSS - On Site Septic | $21.50 | $21.50 | $0.00 | $0.00 | $43.00 | $0.00 |
| 2025 | 1709 | WAT - Clean Water District | $13.00 | $13.00 | $0.00 | $0.00 | $26.00 | $0.00 |
| 2025 | 1709 | TOTAL: | $1346.58 | $1346.50 | $0.00 | $0.00 | $2693.08 | $0.00 |
|
| 2025 | 1709 | $1346.58 | $1346.50 | $0.00 | $0.00 | $2693.08 | $0.00 |
Statement Details |
| 2024 | 1714 | STATE - STATE LEVY (SCHOOL) | $374.92 | $374.91 | $0.00 | $0.00 | $749.83 | $0.00 |
| 2024 | 1714 | COUNTY - COUNTY LEVIES (CE, DD, VET, MH) | $160.44 | $160.41 | $0.00 | $0.00 | $320.85 | $0.00 |
| 2024 | 1714 | CONSERVE - CONSERVATION FUTURES | $4.81 | $4.81 | $0.00 | $0.00 | $9.62 | $0.00 |
| 2024 | 1714 | COROADS - COUNTY ROADS (ROADS, DIV TO CE) | $129.09 | $129.09 | $0.00 | $0.00 | $258.18 | $0.00 |
| 2024 | 1714 | PORTPT - PORT DISTRICT | $66.27 | $66.26 | $0.00 | $0.00 | $132.53 | $0.00 |
| 2024 | 1714 | PUD1 - PUD #1 | $10.54 | $10.54 | $0.00 | $0.00 | $21.08 | $0.00 |
| 2024 | 1714 | LIB1 - LIBRARY DIST #1 | $49.95 | $49.94 | $0.00 | $0.00 | $99.89 | $0.00 |
| 2024 | 1714 | HD2 - HOSP DIST #2 | $9.36 | $9.36 | $0.00 | $0.00 | $18.72 | $0.00 |
| 2024 | 1714 | SD49 - SCHOOL DIST #49 | $167.43 | $167.41 | $0.00 | $0.00 | $334.84 | $0.00 |
| 2024 | 1714 | FD1 - FIRE DISTRICT #1 | $212.13 | $212.12 | $0.00 | $0.00 | $424.25 | $0.00 |
| 2024 | 1714 | EMS1 - FIRE DIST #1 EMS | $81.03 | $81.02 | $0.00 | $0.00 | $162.05 | $0.00 |
| 2024 | 1714 | FPLCA - DNR Landowner Contingency Assmt | $3.00 | $3.00 | $0.00 | $0.00 | $6.00 | $0.00 |
| 2024 | 1714 | JCCD - JC Conservation District | $2.53 | $2.53 | $0.00 | $0.00 | $5.06 | $0.00 |
| 2024 | 1714 | NWA - Noxious Weed Assessment | $2.15 | $2.15 | $0.00 | $0.00 | $4.30 | $0.00 |
| 2024 | 1714 | OSS - On Site Septic | $21.00 | $21.00 | $0.00 | $0.00 | $42.00 | $0.00 |
| 2024 | 1714 | WAT - Clean Water District | $12.50 | $12.50 | $0.00 | $0.00 | $25.00 | $0.00 |
| 2024 | 1714 | TOTAL: | $1307.15 | $1307.05 | $0.00 | $0.00 | $2614.20 | $0.00 |
|
| 2024 | 1714 | $1307.15 | $1307.05 | $0.00 | $0.00 | $2614.20 | $0.00 |
Statement Details |
| 2023 | 1714 | STATE - STATE LEVY (SCHOOL) | $358.08 | $358.07 | $0.00 | $0.00 | $716.15 | $0.00 |
| 2023 | 1714 | COUNTY - COUNTY LEVIES (CE, DD, VET, MH) | $156.26 | $156.24 | $0.00 | $0.00 | $312.50 | $0.00 |
| 2023 | 1714 | CONSERVE - CONSERVATION FUTURES | $4.69 | $4.68 | $0.00 | $0.00 | $9.37 | $0.00 |
| 2023 | 1714 | COROADS - COUNTY ROADS (ROADS, DIV TO CE) | $126.43 | $126.41 | $0.00 | $0.00 | $252.84 | $0.00 |
| 2023 | 1714 | PORTPT - PORT DISTRICT | $65.83 | $65.82 | $0.00 | $0.00 | $131.65 | $0.00 |
| 2023 | 1714 | PUD1 - PUD #1 | $10.36 | $10.35 | $0.00 | $0.00 | $20.71 | $0.00 |
| 2023 | 1714 | LIB1 - LIBRARY DIST #1 | $48.91 | $48.91 | $0.00 | $0.00 | $97.82 | $0.00 |
| 2023 | 1714 | HD2 - HOSP DIST #2 | $9.12 | $9.12 | $0.00 | $0.00 | $18.24 | $0.00 |
| 2023 | 1714 | SD49 - SCHOOL DIST #49 | $167.39 | $167.37 | $0.00 | $0.00 | $334.76 | $0.00 |
| 2023 | 1714 | FD1 - FIRE DISTRICT #1 | $128.72 | $128.72 | $0.00 | $0.00 | $257.44 | $0.00 |
| 2023 | 1714 | EMS1 - FIRE DIST #1 EMS | $54.76 | $54.75 | $0.00 | $0.00 | $109.51 | $0.00 |
| 2023 | 1714 | FPLCA - DNR Landowner Contingency Assmt | $3.00 | $3.00 | $0.00 | $0.00 | $6.00 | $0.00 |
| 2023 | 1714 | JCCD - JC Conservation District | $2.53 | $2.53 | $0.00 | $0.00 | $5.06 | $0.00 |
| 2023 | 1714 | NWA - Noxious Weed Assessment | $2.15 | $2.15 | $0.00 | $0.00 | $4.30 | $0.00 |
| 2023 | 1714 | OSS - On Site Septic | $20.50 | $20.50 | $0.00 | $0.00 | $41.00 | $0.00 |
| 2023 | 1714 | WAT - Clean Water District | $12.00 | $12.00 | $0.00 | $0.00 | $24.00 | $0.00 |
| 2023 | 1714 | TOTAL: | $1170.73 | $1170.62 | $0.00 | $0.00 | $2341.35 | $0.00 |
|
| 2023 | 1714 | $1170.73 | $1170.62 | $0.00 | $0.00 | $2341.35 | $0.00 |
Values
| (+) Improvement Homesite Value: | + | $0 | |
| (+) Improvement Non-Homesite Value: | + | $209,165 | |
| (+) Land Homesite Value: | + | $0 | |
| (+) Land Non-Homesite Value: | + | $119,932 | |
| (+) Curr Use (HS): | + | $0 | $0 |
| (+) Curr Use (NHS): | + | $0 | $0 |
| | | -------------------------- | |
| (=) Market Value: | = | $329,097 | |
| (–) Productivity Loss: | – | $0 | |
| | | -------------------------- | |
| (=) Subtotal: | = | $329,097 | |
| (+) Senior Appraised Value: | + | $0 | |
| (+) Non-Senior Appraised Value: | + | $329,097 | |
| | | -------------------------- | |
| (=) Total Appraised Value: | = | $329,097 | |
| (–) Senior Exemption Loss: | – | $0 | |
| (–) Exemption Loss: | – | $0 | |
| | | -------------------------- | |
| (=) Taxable Value: | = | $329,097 | |
Taxing Jurisdiction
| Owner: | COHESION LLC | | |
| % Ownership: | 100.0000000000% | | |
| Total Value: | $329,097 | | |
| Tax Area: | 0211 - 1-49F1E1H2L1 |
| CE | COUNTY CURRENT EXPENSE | 0.9034619479 | $329,097 | $329,097 | $297.33 | | |
| CNTYDD | DEVELOPMENTAL DISABILITIES | 0.0052121823 | $329,097 | $329,097 | $1.72 | | |
| CNTYVET | VETERANS RELIEF | 0.0052777810 | $329,097 | $329,097 | $1.74 | | |
| MENTAL | MENTAL HEALTH | 0.0052121823 | $329,097 | $329,097 | $1.72 | | |
| ROADS | COUNTY ROADS | 0.7415066410 | $329,097 | $329,097 | $244.03 | | |
| ROADSCU | COUNTY ROADS TO CUR EXP | 0.0000000000 | $329,097 | $329,097 | $0.00 | | |
| HOSP2CASH | HOSP DIST #2 GENERAL | 0.0536075306 | $329,097 | $329,097 | $17.64 | | |
| SCH49CP | SCHOOL DIST #49 CAP PROJ | 0.6279093905 | $329,097 | $329,097 | $206.64 | | |
| SCH49MO | SCHOOL DIST #49 EP & O | 0.6376483602 | $329,097 | $329,097 | $209.85 | | |
| CONSERVE | CONSERVATION FUTURES | 0.0275621078 | $329,097 | $329,097 | $9.07 | | |
| EMS1 | FIRE DIST #1 EMS | 0.4679948282 | $329,097 | $329,097 | $154.02 | | |
| FD1 | FIRE DIST #1 GENERAL | 1.2171942929 | $329,097 | $329,097 | $400.57 | | |
| LIB1 | LIBRARY DIST #1 GENERAL | 0.2868827388 | $329,097 | $329,097 | $94.41 | | |
| PORTPT | PORT OF PT GENERAL | 0.1134941229 | $329,097 | $329,097 | $37.35 | | |
| PORTPTIDD | PORT OF PT IDD 2019 | 0.2577346692 | $329,097 | $329,097 | $84.82 | | |
| PUD1 | PUD #1 GENERAL | 0.0597888892 | $329,097 | $329,097 | $19.68 | | |
| STATE | STATE SCHOOL PART 1 | 1.4940692947 | $329,097 | $329,097 | $491.69 | | |
| STATE2 | STATE SCHOOL PART 2 | 0.8050170049 | $329,097 | $329,097 | $264.93 | | |
| | Total Tax Rate: | 7.7095739644 | | | | | |
| | | | | Taxes w/Current Exemptions: | $2,537.21 | | |
| | | | | Taxes w/o Exemptions: | $2,537.21 | | |
Improvement / Building
| Improvement #1: | Commercial/Industrial/Government Bldg | State Code: | 63 | 2660.0 sqft | Value: | $209,165 |
Sketch
Property Image
Land
| 1 | 4110-6277Q | | 0.5735 | 24981.00 | 0.00 | 0.00 | 0.00 | $119,932 | $0 |
Roll Value History
| 2026 | N/A | N/A | N/A | N/A | N/A |
| 2025 | $209,165 | $119,932 | $0 | $329,097 | $329,097 |
| 2024 | $209,165 | $119,932 | $0 | $329,097 | $329,097 |
| 2023 | $209,165 | $114,932 | $0 | $324,097 | $324,097 |
| 2022 | $203,018 | $101,188 | $0 | $304,206 | $304,206 |
Deed and Sales History
| 1 | 09/25/2025 | QCD | Quit Claim Deed | MKP CONSTRUCTION LLC | COHESION LLC | | | | 145090 | |
| 2 | 06/26/2023 | SWD | Statutory Warranty Deed | NW CENTRAL CONSTRUCTION INC | MKP CONSTRUCTION LLC | | | $579,691.00 | 141161 | |
|   | |
| 3 | 07/11/2005 | SWD | Statutory Warranty Deed | KALA SQUARE PARTNERS | NORTHWEST CENTRAL CONSTRUCTION | 0 | 0 | $0.00 | 104360 | 0 |
| 4 | 07/11/2005 | SWD | Statutory Warranty Deed | KALA SQUARE PARTNERS | NW CENTRAL CONSTRUCTION, INC | 0 | 0 | $0.00 | 115527 | 0 |
Payout Agreement
| No payout information available.. |