Property
Account |
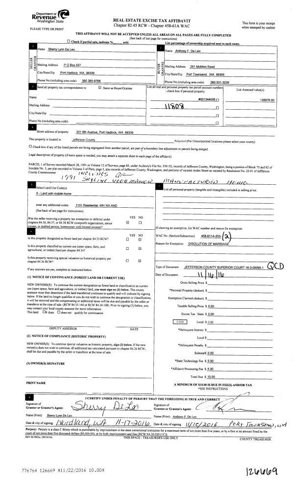
| Property ID: | 11808 | Abbreviated Legal Description: | S34 T30N R1W TAX 41-PARCEL 1 SURVEY V12/PG 83 SUBJ/JLT CONSERV EASE V332/P37 |
| Parcel # / Geo ID: | 001344005 | Agent Code: | |
| Type: | Real | | |
| Tax Area: | 0211 - 1-49F1E1H2L1 | Land Use Code | 11 |
| Open Space: | N | DFL | N |
| Historic Property: | N | Remodel Property: | N |
| Multi-Family Redevelopment: | N | | |
| Township: | 30N | Section: | 34 |
| Range: | 1W |
Location |
| Address: | 221 9TH AVE PORT HADLOCK, WA 98339 | Mapsco: | 224/070 |
| Neighborhood: | IRONDALE BLOCKS 48 - 92 | Map ID: | |
| Neighborhood CD: | 4125 |
Owner |
| Name: | LINDSEY HOFFMANN | Owner ID: | 97900 |
| Mailing Address: | ALEXA HELBLING PO BOX 821 PORT HADLOCK, WA 98339-0821 | % Ownership: | 100.0000000000% |
| | | Exemptions: | |
Pay Tax Due
Select the appropriate checkbox next to the year to be paid. Multiple years may be selected.
*Convenience Fee not included
Taxes and Assessment Details
Property Tax Information as of
03/13/2026
Click on "Statement Details" to expand or collapse a tax statement.
* Please enter a valid date ** Please enter a valid date *
Statement Details |
| 2026 | 1742 | STATE - STATE LEVY (SCHOOL) | $326.43 | $326.41 | $0.00 | $0.00 | $0.00 | $652.84 |
| 2026 | 1742 | COUNTY - COUNTY LEVIES (CE, DD, VET, MH) | $130.51 | $130.50 | $0.00 | $0.00 | $0.00 | $261.01 |
| 2026 | 1742 | CONSERVE - CONSERVATION FUTURES | $3.92 | $3.91 | $0.00 | $0.00 | $0.00 | $7.83 |
| 2026 | 1742 | COROADS - COUNTY ROADS (ROADS, DIV TO CE) | $105.28 | $105.28 | $0.00 | $0.00 | $0.00 | $210.56 |
| 2026 | 1742 | PORTPT - PORT DISTRICT | $52.72 | $52.70 | $0.00 | $0.00 | $0.00 | $105.42 |
| 2026 | 1742 | PUD1 - PUD #1 | $8.49 | $8.49 | $0.00 | $0.00 | $0.00 | $16.98 |
| 2026 | 1742 | LIB1 - LIBRARY DIST #1 | $40.73 | $40.73 | $0.00 | $0.00 | $0.00 | $81.46 |
| 2026 | 1742 | HD2 - HOSP DIST #2 | $7.61 | $7.61 | $0.00 | $0.00 | $0.00 | $15.22 |
| 2026 | 1742 | SD49 - SCHOOL DIST #49 | $179.69 | $179.68 | $0.00 | $0.00 | $0.00 | $359.37 |
| 2026 | 1742 | FD1 - FIRE DISTRICT #1 | $172.82 | $172.81 | $0.00 | $0.00 | $0.00 | $345.63 |
| 2026 | 1742 | EMS1 - FIRE DIST #1 EMS | $66.45 | $66.44 | $0.00 | $0.00 | $0.00 | $132.89 |
| 2026 | 1742 | FP - DNR Forest Fire Protection Assmt | $8.50 | $8.50 | $0.00 | $0.00 | $0.00 | $17.00 |
| 2026 | 1742 | FPLCA - DNR Landowner Contingency Assmt | $3.00 | $3.00 | $0.00 | $0.00 | $0.00 | $6.00 |
| 2026 | 1742 | JCCD - JC Conservation District | $2.60 | $2.60 | $0.00 | $0.00 | $0.00 | $5.20 |
| 2026 | 1742 | NWA - Noxious Weed Assessment | $3.20 | $3.20 | $0.00 | $0.00 | $0.00 | $6.40 |
| 2026 | 1742 | OSS - On Site Septic | $23.10 | $23.10 | $0.00 | $0.00 | $0.00 | $46.20 |
| 2026 | 1742 | WAT - Clean Water District | $13.00 | $13.00 | $0.00 | $0.00 | $0.00 | $26.00 |
| 2026 | 1742 | FP ADMIN - FP ADMIN | $0.50 | $0.00 | $0.00 | $0.00 | $0.00 | $0.50 |
| 2026 | 1742 | TOTAL: | $1148.55 | $1147.96 | $0.00 | $0.00 | $0.00 | $2296.51 |
|
| 2026 | 1742 | $1148.55 | $1147.96 | $0.00 | $0.00 | $0.00 | $2296.51 |
Statement Details |
| 2025 | 1748 | STATE - STATE LEVY (SCHOOL) | $332.60 | $332.60 | $0.00 | $0.00 | $665.20 | $0.00 |
| 2025 | 1748 | COUNTY - COUNTY LEVIES (CE, DD, VET, MH) | $130.80 | $130.79 | $0.00 | $0.00 | $261.59 | $0.00 |
| 2025 | 1748 | CONSERVE - CONSERVATION FUTURES | $3.92 | $3.92 | $0.00 | $0.00 | $7.84 | $0.00 |
| 2025 | 1748 | COROADS - COUNTY ROADS (ROADS, DIV TO CE) | $104.79 | $104.78 | $0.00 | $0.00 | $209.57 | $0.00 |
| 2025 | 1748 | PORTPT - PORT DISTRICT | $53.37 | $53.37 | $0.00 | $0.00 | $106.74 | $0.00 |
| 2025 | 1748 | PUD1 - PUD #1 | $8.56 | $8.56 | $0.00 | $0.00 | $17.12 | $0.00 |
| 2025 | 1748 | LIB1 - LIBRARY DIST #1 | $40.54 | $40.54 | $0.00 | $0.00 | $81.08 | $0.00 |
| 2025 | 1748 | HD2 - HOSP DIST #2 | $7.63 | $7.63 | $0.00 | $0.00 | $15.26 | $0.00 |
| 2025 | 1748 | SD49 - SCHOOL DIST #49 | $178.26 | $178.25 | $0.00 | $0.00 | $356.51 | $0.00 |
| 2025 | 1748 | FD1 - FIRE DISTRICT #1 | $172.60 | $172.59 | $0.00 | $0.00 | $345.19 | $0.00 |
| 2025 | 1748 | EMS1 - FIRE DIST #1 EMS | $66.39 | $66.38 | $0.00 | $0.00 | $132.77 | $0.00 |
| 2025 | 1748 | FP - DNR Forest Fire Protection Assmt | $8.50 | $8.50 | $0.00 | $0.00 | $17.00 | $0.00 |
| 2025 | 1748 | FPLCA - DNR Landowner Contingency Assmt | $3.00 | $3.00 | $0.00 | $0.00 | $6.00 | $0.00 |
| 2025 | 1748 | JCCD - JC Conservation District | $2.60 | $2.60 | $0.00 | $0.00 | $5.20 | $0.00 |
| 2025 | 1748 | NWA - Noxious Weed Assessment | $2.30 | $2.30 | $0.00 | $0.00 | $4.60 | $0.00 |
| 2025 | 1748 | OSS - On Site Septic | $21.50 | $21.50 | $0.00 | $0.00 | $43.00 | $0.00 |
| 2025 | 1748 | WAT - Clean Water District | $13.00 | $13.00 | $0.00 | $0.00 | $26.00 | $0.00 |
| 2025 | 1748 | FP ADMIN - FP ADMIN | $0.50 | $0.00 | $0.00 | $0.00 | $0.50 | $0.00 |
| 2025 | 1748 | TOTAL: | $1150.86 | $1150.31 | $0.00 | $0.00 | $2301.17 | $0.00 |
|
| 2025 | 1748 | $1150.86 | $1150.31 | $0.00 | $0.00 | $2301.17 | $0.00 |
Statement Details |
| 2024 | 1753 | STATE - STATE LEVY (SCHOOL) | $300.20 | $300.19 | $0.00 | $0.00 | $600.39 | $0.00 |
| 2024 | 1753 | COUNTY - COUNTY LEVIES (CE, DD, VET, MH) | $128.47 | $128.44 | $0.00 | $0.00 | $256.91 | $0.00 |
| 2024 | 1753 | CONSERVE - CONSERVATION FUTURES | $3.85 | $3.85 | $0.00 | $0.00 | $7.70 | $0.00 |
| 2024 | 1753 | COROADS - COUNTY ROADS (ROADS, DIV TO CE) | $103.37 | $103.36 | $0.00 | $0.00 | $206.73 | $0.00 |
| 2024 | 1753 | PORTPT - PORT DISTRICT | $53.06 | $53.05 | $0.00 | $0.00 | $106.11 | $0.00 |
| 2024 | 1753 | PUD1 - PUD #1 | $8.44 | $8.44 | $0.00 | $0.00 | $16.88 | $0.00 |
| 2024 | 1753 | LIB1 - LIBRARY DIST #1 | $39.99 | $39.99 | $0.00 | $0.00 | $79.98 | $0.00 |
| 2024 | 1753 | HD2 - HOSP DIST #2 | $7.50 | $7.49 | $0.00 | $0.00 | $14.99 | $0.00 |
| 2024 | 1753 | SD49 - SCHOOL DIST #49 | $134.06 | $134.05 | $0.00 | $0.00 | $268.11 | $0.00 |
| 2024 | 1753 | FD1 - FIRE DISTRICT #1 | $169.85 | $169.85 | $0.00 | $0.00 | $339.70 | $0.00 |
| 2024 | 1753 | EMS1 - FIRE DIST #1 EMS | $64.88 | $64.87 | $0.00 | $0.00 | $129.75 | $0.00 |
| 2024 | 1753 | FP - DNR Forest Fire Protection Assmt | $8.50 | $8.50 | $0.00 | $0.00 | $17.00 | $0.00 |
| 2024 | 1753 | FPLCA - DNR Landowner Contingency Assmt | $3.00 | $3.00 | $0.00 | $0.00 | $6.00 | $0.00 |
| 2024 | 1753 | JCCD - JC Conservation District | $2.60 | $2.60 | $0.00 | $0.00 | $5.20 | $0.00 |
| 2024 | 1753 | NWA - Noxious Weed Assessment | $2.30 | $2.30 | $0.00 | $0.00 | $4.60 | $0.00 |
| 2024 | 1753 | OSS - On Site Septic | $21.00 | $21.00 | $0.00 | $0.00 | $42.00 | $0.00 |
| 2024 | 1753 | WAT - Clean Water District | $12.50 | $12.50 | $0.00 | $0.00 | $25.00 | $0.00 |
| 2024 | 1753 | FP ADMIN - FP ADMIN | $0.50 | $0.00 | $0.00 | $0.00 | $0.50 | $0.00 |
| 2024 | 1753 | TOTAL: | $1064.07 | $1063.48 | $0.00 | $0.00 | $2127.55 | $0.00 |
|
| 2024 | 1753 | $1064.07 | $1063.48 | $0.00 | $0.00 | $2127.55 | $0.00 |
Statement Details |
| 2023 | 1753 | STATE - STATE LEVY (SCHOOL) | $257.92 | $257.92 | $0.00 | $0.00 | $515.84 | $0.00 |
| 2023 | 1753 | COUNTY - COUNTY LEVIES (CE, DD, VET, MH) | $112.56 | $112.54 | $0.00 | $0.00 | $225.10 | $0.00 |
| 2023 | 1753 | CONSERVE - CONSERVATION FUTURES | $3.38 | $3.37 | $0.00 | $0.00 | $6.75 | $0.00 |
| 2023 | 1753 | COROADS - COUNTY ROADS (ROADS, DIV TO CE) | $91.07 | $91.05 | $0.00 | $0.00 | $182.12 | $0.00 |
| 2023 | 1753 | PORTPT - PORT DISTRICT | $47.42 | $47.40 | $0.00 | $0.00 | $94.82 | $0.00 |
| 2023 | 1753 | PUD1 - PUD #1 | $7.46 | $7.46 | $0.00 | $0.00 | $14.92 | $0.00 |
| 2023 | 1753 | LIB1 - LIBRARY DIST #1 | $35.23 | $35.23 | $0.00 | $0.00 | $70.46 | $0.00 |
| 2023 | 1753 | HD2 - HOSP DIST #2 | $6.57 | $6.57 | $0.00 | $0.00 | $13.14 | $0.00 |
| 2023 | 1753 | SD49 - SCHOOL DIST #49 | $120.57 | $120.55 | $0.00 | $0.00 | $241.12 | $0.00 |
| 2023 | 1753 | FD1 - FIRE DISTRICT #1 | $92.72 | $92.71 | $0.00 | $0.00 | $185.43 | $0.00 |
| 2023 | 1753 | EMS1 - FIRE DIST #1 EMS | $39.44 | $39.44 | $0.00 | $0.00 | $78.88 | $0.00 |
| 2023 | 1753 | FP - DNR Forest Fire Protection Assmt | $8.50 | $8.50 | $0.00 | $0.00 | $17.00 | $0.00 |
| 2023 | 1753 | FPLCA - DNR Landowner Contingency Assmt | $3.00 | $3.00 | $0.00 | $0.00 | $6.00 | $0.00 |
| 2023 | 1753 | JCCD - JC Conservation District | $2.60 | $2.60 | $0.00 | $0.00 | $5.20 | $0.00 |
| 2023 | 1753 | NWA - Noxious Weed Assessment | $2.30 | $2.30 | $0.00 | $0.00 | $4.60 | $0.00 |
| 2023 | 1753 | OSS - On Site Septic | $20.50 | $20.50 | $0.00 | $0.00 | $41.00 | $0.00 |
| 2023 | 1753 | WAT - Clean Water District | $12.00 | $12.00 | $0.00 | $0.00 | $24.00 | $0.00 |
| 2023 | 1753 | FP ADMIN - FP ADMIN | $0.50 | $0.00 | $0.00 | $0.00 | $0.50 | $0.00 |
| 2023 | 1753 | TOTAL: | $863.74 | $863.14 | $0.00 | $0.00 | $1726.88 | $0.00 |
|
| 2023 | 1753 | $863.74 | $863.14 | $0.00 | $0.00 | $1726.88 | $0.00 |
Values
| (+) Improvement Homesite Value: | + | $147,458 | |
| (+) Improvement Non-Homesite Value: | + | $0 | |
| (+) Land Homesite Value: | + | $136,500 | |
| (+) Land Non-Homesite Value: | + | $0 | |
| (+) Curr Use (HS): | + | $0 | $0 |
| (+) Curr Use (NHS): | + | $0 | $0 |
| | | -------------------------- | |
| (=) Market Value: | = | $283,958 | |
| (–) Productivity Loss: | – | $0 | |
| | | -------------------------- | |
| (=) Subtotal: | = | $283,958 | |
| (+) Senior Appraised Value: | + | $0 | |
| (+) Non-Senior Appraised Value: | + | $283,958 | |
| | | -------------------------- | |
| (=) Total Appraised Value: | = | $283,958 | |
| (–) Senior Exemption Loss: | – | $0 | |
| (–) Exemption Loss: | – | $0 | |
| | | -------------------------- | |
| (=) Taxable Value: | = | $283,958 | |
Taxing Jurisdiction
| Owner: | LINDSEY HOFFMANN | | |
| % Ownership: | 100.0000000000% | | |
| Total Value: | $283,958 | | |
| Tax Area: | 0211 - 1-49F1E1H2L1 |
| CE | COUNTY CURRENT EXPENSE | 0.9034619479 | $283,958 | $283,958 | $256.55 | | |
| CNTYDD | DEVELOPMENTAL DISABILITIES | 0.0052121823 | $283,958 | $283,958 | $1.48 | | |
| CNTYVET | VETERANS RELIEF | 0.0052777810 | $283,958 | $283,958 | $1.50 | | |
| MENTAL | MENTAL HEALTH | 0.0052121823 | $283,958 | $283,958 | $1.48 | | |
| ROADS | COUNTY ROADS | 0.7415066410 | $283,958 | $283,958 | $210.56 | | |
| ROADSCU | COUNTY ROADS TO CUR EXP | 0.0000000000 | $283,958 | $283,958 | $0.00 | | |
| HOSP2CASH | HOSP DIST #2 GENERAL | 0.0536075306 | $283,958 | $283,958 | $15.22 | | |
| SCH49CP | SCHOOL DIST #49 CAP PROJ | 0.6279093905 | $283,958 | $283,958 | $178.30 | | |
| SCH49MO | SCHOOL DIST #49 EP & O | 0.6376483602 | $283,958 | $283,958 | $181.07 | | |
| CONSERVE | CONSERVATION FUTURES | 0.0275621078 | $283,958 | $283,958 | $7.83 | | |
| EMS1 | FIRE DIST #1 EMS | 0.4679948282 | $283,958 | $283,958 | $132.89 | | |
| FD1 | FIRE DIST #1 GENERAL | 1.2171942929 | $283,958 | $283,958 | $345.63 | | |
| LIB1 | LIBRARY DIST #1 GENERAL | 0.2868827388 | $283,958 | $283,958 | $81.46 | | |
| PORTPT | PORT OF PT GENERAL | 0.1134941229 | $283,958 | $283,958 | $32.23 | | |
| PORTPTIDD | PORT OF PT IDD 2019 | 0.2577346692 | $283,958 | $283,958 | $73.19 | | |
| PUD1 | PUD #1 GENERAL | 0.0597888892 | $283,958 | $283,958 | $16.98 | | |
| STATE | STATE SCHOOL PART 1 | 1.4940692947 | $283,958 | $283,958 | $424.25 | | |
| STATE2 | STATE SCHOOL PART 2 | 0.8050170049 | $283,958 | $283,958 | $228.59 | | |
| | Total Tax Rate: | 7.7095739644 | | | | | |
| | | | | Taxes w/Current Exemptions: | $2,189.21 | | |
| | | | | Taxes w/o Exemptions: | $2,189.21 | | |
Improvement / Building
| Improvement #1: | Manufactured Home | State Code: | 11 | 960.0 sqft | Value: | $147,458 |
| Bathrooms (#): | 2 (FULL) | Bedrooms (#): | 3 | | Exterior Wall: | PL/T1 | Fireplace: | WD ST-AVG | | Foundation: | PO&BL | Heating/Cooling: | F/A | | Inside Verify: | YES-FIX | Roof Cover: | COMP |
|
| | Type | Description | Class CD | Sub Class CD | Year Built | Area |
| | MA | Main Area | 4- | MFH | 1991 | 960.0 |
| | MDECK | MH Deck | 3 | * | 1991 | 48.0 |
| | MDET | MH Detached Garage | 3 | MFH | 1991 | 576.0 |
| | GARAG | Garage (Table Not Dep) | 3 | * | 1991 | 864.0 |
Sketch
Property Image
Land
| 1 | 4125-1285S | | 1.0000 | 43560.00 | 0.00 | 0.00 | 1.00 | $84,000 | $0 |
| 2 | 4125-1187L | | 0.0000 | 0.00 | 0.00 | 0.00 | 25.00 | $52,500 | $0 |
Roll Value History
| 2026 | N/A | N/A | N/A | N/A | N/A |
| 2025 | $147,458 | $136,500 | $0 | $283,958 | $283,958 |
| 2024 | $147,458 | $129,938 | $0 | $277,396 | $277,396 |
| 2023 | $140,756 | $118,750 | $0 | $259,506 | $259,506 |
| 2022 | $131,617 | $87,500 | $0 | $219,117 | $219,117 |
Deed and Sales History
| 1 | 09/05/2017 | SWD | Statutory Warranty Deed | ANTHONY F DE LEO | LINDSEY HOFFMANN | | | $170,000.00 | 128515 | |
| 2 | 11/16/2016 | QCD | Quit Claim Deed | | | | | | 126669 | |
| 3 | 01/27/2009 | QCD | Quit Claim Deed | DE LEO, ANTHONY F | DE LEO, ANTHONY F/SHERRY L | 0 | 0 | $0.00 | 112438 | 0 |
| 4 | 12/11/1998 | SWD | Statutory Warranty Deed | EDWARDS, GATLIN/II & ELIZ | DELEO, ANTHONY F | 0 | 0 | $81,500.00 | 85914 | 0 |
Payout Agreement
| No payout information available.. |