Property
Account |
| Property ID: | 11885 | Abbreviated Legal Description: | S12 T30 R2W TAX 16 |
| Parcel # / Geo ID: | 002124011 | Agent Code: | |
| Type: | Real | | |
| Tax Area: | 0111 - 1-50F1E1H2L1 | Land Use Code | 11 |
| Open Space: | N | DFL | N |
| Historic Property: | N | Remodel Property: | N |
| Multi-Family Redevelopment: | N | | |
| Township: | 30N | Section: | 12 |
| Range: | 2W |
Location |
| Address: | 2333 CAPE GEORGE RD PORT TOWNSEND, WA 98368 | Mapsco: | 118/007 |
| Neighborhood: | S1 & 12 T30 R2W, MARIAH HEIGHTS;J HOWARD,CAINE,GAZEBO,HILDEB | Map ID: | |
| Neighborhood CD: | 5510 |
Owner |
| Name: | PATRICIA M HOLMES | Owner ID: | 102502 |
| Mailing Address: | 2333 CAPE GEORGE RD PORT TOWNSEND, WA 98368-9404 | % Ownership: | 100.0000000000% |
| | | Exemptions: | |
Pay Tax Due
Select the appropriate checkbox next to the year to be paid. Multiple years may be selected.
*Convenience Fee not included
Taxes and Assessment Details
Property Tax Information as of
03/11/2026
Click on "Statement Details" to expand or collapse a tax statement.
* Please enter a valid date ** Please enter a valid date *
Statement Details |
| 2026 | 1815 | STATE - STATE LEVY (SCHOOL) | $450.97 | $450.96 | $0.00 | $0.00 | $0.00 | $901.93 |
| 2026 | 1815 | COUNTY - COUNTY LEVIES (CE, DD, VET, MH) | $180.30 | $180.28 | $0.00 | $0.00 | $0.00 | $360.58 |
| 2026 | 1815 | CONSERVE - CONSERVATION FUTURES | $5.41 | $5.40 | $0.00 | $0.00 | $0.00 | $10.81 |
| 2026 | 1815 | COROADS - COUNTY ROADS (ROADS, DIV TO CE) | $145.45 | $145.44 | $0.00 | $0.00 | $0.00 | $290.89 |
| 2026 | 1815 | PORTPT - PORT DISTRICT | $72.82 | $72.81 | $0.00 | $0.00 | $0.00 | $145.63 |
| 2026 | 1815 | PUD1 - PUD #1 | $11.73 | $11.73 | $0.00 | $0.00 | $0.00 | $23.46 |
| 2026 | 1815 | LIB1 - LIBRARY DIST #1 | $56.27 | $56.27 | $0.00 | $0.00 | $0.00 | $112.54 |
| 2026 | 1815 | HD2 - HOSP DIST #2 | $10.52 | $10.51 | $0.00 | $0.00 | $0.00 | $21.03 |
| 2026 | 1815 | SD50 - SCHOOL DIST #50 | $357.27 | $357.26 | $0.00 | $0.00 | $0.00 | $714.53 |
| 2026 | 1815 | FD1 - FIRE DISTRICT #1 | $238.75 | $238.75 | $0.00 | $0.00 | $0.00 | $477.50 |
| 2026 | 1815 | EMS1 - FIRE DIST #1 EMS | $91.80 | $91.79 | $0.00 | $0.00 | $0.00 | $183.59 |
| 2026 | 1815 | FP - DNR Forest Fire Protection Assmt | $8.50 | $8.50 | $0.00 | $0.00 | $0.00 | $17.00 |
| 2026 | 1815 | FPLCA - DNR Landowner Contingency Assmt | $3.00 | $3.00 | $0.00 | $0.00 | $0.00 | $6.00 |
| 2026 | 1815 | JCCD - JC Conservation District | $2.85 | $2.85 | $0.00 | $0.00 | $0.00 | $5.70 |
| 2026 | 1815 | NWA - Noxious Weed Assessment | $4.33 | $4.32 | $0.00 | $0.00 | $0.00 | $8.65 |
| 2026 | 1815 | OSS - On Site Septic | $23.10 | $23.10 | $0.00 | $0.00 | $0.00 | $46.20 |
| 2026 | 1815 | WAT - Clean Water District | $13.00 | $13.00 | $0.00 | $0.00 | $0.00 | $26.00 |
| 2026 | 1815 | FP ADMIN - FP ADMIN | $0.50 | $0.00 | $0.00 | $0.00 | $0.00 | $0.50 |
| 2026 | 1815 | TOTAL: | $1676.57 | $1675.97 | $0.00 | $0.00 | $0.00 | $3352.54 |
|
| 2026 | 1815 | $1676.57 | $1675.97 | $0.00 | $0.00 | $0.00 | $3352.54 |
Statement Details |
| 2025 | 1821 | STATE - STATE LEVY (SCHOOL) | $470.38 | $470.36 | $0.00 | $0.00 | $940.74 | $0.00 |
| 2025 | 1821 | COUNTY - COUNTY LEVIES (CE, DD, VET, MH) | $184.98 | $184.95 | $0.00 | $0.00 | $369.93 | $0.00 |
| 2025 | 1821 | CONSERVE - CONSERVATION FUTURES | $5.55 | $5.54 | $0.00 | $0.00 | $11.09 | $0.00 |
| 2025 | 1821 | COROADS - COUNTY ROADS (ROADS, DIV TO CE) | $148.20 | $148.18 | $0.00 | $0.00 | $296.38 | $0.00 |
| 2025 | 1821 | PORTPT - PORT DISTRICT | $75.48 | $75.48 | $0.00 | $0.00 | $150.96 | $0.00 |
| 2025 | 1821 | PUD1 - PUD #1 | $12.11 | $12.10 | $0.00 | $0.00 | $24.21 | $0.00 |
| 2025 | 1821 | LIB1 - LIBRARY DIST #1 | $57.34 | $57.33 | $0.00 | $0.00 | $114.67 | $0.00 |
| 2025 | 1821 | HD2 - HOSP DIST #2 | $10.79 | $10.79 | $0.00 | $0.00 | $21.58 | $0.00 |
| 2025 | 1821 | SD50 - SCHOOL DIST #50 | $343.77 | $343.76 | $0.00 | $0.00 | $687.53 | $0.00 |
| 2025 | 1821 | FD1 - FIRE DISTRICT #1 | $244.09 | $244.09 | $0.00 | $0.00 | $488.18 | $0.00 |
| 2025 | 1821 | EMS1 - FIRE DIST #1 EMS | $93.89 | $93.88 | $0.00 | $0.00 | $187.77 | $0.00 |
| 2025 | 1821 | FP - DNR Forest Fire Protection Assmt | $8.50 | $8.50 | $0.00 | $0.00 | $17.00 | $0.00 |
| 2025 | 1821 | FPLCA - DNR Landowner Contingency Assmt | $3.00 | $3.00 | $0.00 | $0.00 | $6.00 | $0.00 |
| 2025 | 1821 | JCCD - JC Conservation District | $2.85 | $2.85 | $0.00 | $0.00 | $5.70 | $0.00 |
| 2025 | 1821 | NWA - Noxious Weed Assessment | $3.05 | $3.05 | $0.00 | $0.00 | $6.10 | $0.00 |
| 2025 | 1821 | OSS - On Site Septic | $21.50 | $21.50 | $0.00 | $0.00 | $43.00 | $0.00 |
| 2025 | 1821 | WAT - Clean Water District | $13.00 | $13.00 | $0.00 | $0.00 | $26.00 | $0.00 |
| 2025 | 1821 | FP ADMIN - FP ADMIN | $0.50 | $0.00 | $0.00 | $0.00 | $0.50 | $0.00 |
| 2025 | 1821 | TOTAL: | $1698.98 | $1698.36 | $0.00 | $0.00 | $3397.34 | $0.00 |
|
| 2025 | 1821 | $1698.98 | $1698.36 | $0.00 | $0.00 | $3397.34 | $0.00 |
Statement Details |
| 2024 | 1827 | STATE - STATE LEVY (SCHOOL) | $405.48 | $405.48 | $0.00 | $0.00 | $810.96 | $0.00 |
| 2024 | 1827 | COUNTY - COUNTY LEVIES (CE, DD, VET, MH) | $173.51 | $173.51 | $0.00 | $0.00 | $347.02 | $0.00 |
| 2024 | 1827 | CONSERVE - CONSERVATION FUTURES | $5.21 | $5.20 | $0.00 | $0.00 | $10.41 | $0.00 |
| 2024 | 1827 | COROADS - COUNTY ROADS (ROADS, DIV TO CE) | $139.63 | $139.61 | $0.00 | $0.00 | $279.24 | $0.00 |
| 2024 | 1827 | PORTPT - PORT DISTRICT | $71.68 | $71.66 | $0.00 | $0.00 | $143.34 | $0.00 |
| 2024 | 1827 | PUD1 - PUD #1 | $11.40 | $11.39 | $0.00 | $0.00 | $22.79 | $0.00 |
| 2024 | 1827 | LIB1 - LIBRARY DIST #1 | $54.02 | $54.01 | $0.00 | $0.00 | $108.03 | $0.00 |
| 2024 | 1827 | HD2 - HOSP DIST #2 | $10.13 | $10.12 | $0.00 | $0.00 | $20.25 | $0.00 |
| 2024 | 1827 | SD50 - SCHOOL DIST #50 | $328.05 | $328.05 | $0.00 | $0.00 | $656.10 | $0.00 |
| 2024 | 1827 | FD1 - FIRE DISTRICT #1 | $229.42 | $229.42 | $0.00 | $0.00 | $458.84 | $0.00 |
| 2024 | 1827 | EMS1 - FIRE DIST #1 EMS | $87.63 | $87.63 | $0.00 | $0.00 | $175.26 | $0.00 |
| 2024 | 1827 | FP - DNR Forest Fire Protection Assmt | $8.50 | $8.50 | $0.00 | $0.00 | $17.00 | $0.00 |
| 2024 | 1827 | FPLCA - DNR Landowner Contingency Assmt | $3.00 | $3.00 | $0.00 | $0.00 | $6.00 | $0.00 |
| 2024 | 1827 | JCCD - JC Conservation District | $2.85 | $2.85 | $0.00 | $0.00 | $5.70 | $0.00 |
| 2024 | 1827 | NWA - Noxious Weed Assessment | $3.05 | $3.05 | $0.00 | $0.00 | $6.10 | $0.00 |
| 2024 | 1827 | OSS - On Site Septic | $21.00 | $21.00 | $0.00 | $0.00 | $42.00 | $0.00 |
| 2024 | 1827 | WAT - Clean Water District | $12.50 | $12.50 | $0.00 | $0.00 | $25.00 | $0.00 |
| 2024 | 1827 | FP ADMIN - FP ADMIN | $0.50 | $0.00 | $0.00 | $0.00 | $0.50 | $0.00 |
| 2024 | 1827 | TOTAL: | $1567.56 | $1566.98 | $0.00 | $0.00 | $3134.54 | $0.00 |
|
| 2024 | 1827 | $1567.56 | $1566.98 | $0.00 | $0.00 | $3134.54 | $0.00 |
Statement Details |
| 2023 | 1828 | STATE - STATE LEVY (SCHOOL) | $367.36 | $367.34 | $0.00 | $0.00 | $734.70 | $0.00 |
| 2023 | 1828 | COUNTY - COUNTY LEVIES (CE, DD, VET, MH) | $160.30 | $160.30 | $0.00 | $0.00 | $320.60 | $0.00 |
| 2023 | 1828 | CONSERVE - CONSERVATION FUTURES | $4.81 | $4.80 | $0.00 | $0.00 | $9.61 | $0.00 |
| 2023 | 1828 | COROADS - COUNTY ROADS (ROADS, DIV TO CE) | $129.70 | $129.68 | $0.00 | $0.00 | $259.38 | $0.00 |
| 2023 | 1828 | PORTPT - PORT DISTRICT | $67.54 | $67.52 | $0.00 | $0.00 | $135.06 | $0.00 |
| 2023 | 1828 | PUD1 - PUD #1 | $10.63 | $10.62 | $0.00 | $0.00 | $21.25 | $0.00 |
| 2023 | 1828 | LIB1 - LIBRARY DIST #1 | $50.18 | $50.17 | $0.00 | $0.00 | $100.35 | $0.00 |
| 2023 | 1828 | HD2 - HOSP DIST #2 | $9.36 | $9.35 | $0.00 | $0.00 | $18.71 | $0.00 |
| 2023 | 1828 | SD50 - SCHOOL DIST #50 | $291.51 | $291.49 | $0.00 | $0.00 | $583.00 | $0.00 |
| 2023 | 1828 | FD1 - FIRE DISTRICT #1 | $132.06 | $132.05 | $0.00 | $0.00 | $264.11 | $0.00 |
| 2023 | 1828 | EMS1 - FIRE DIST #1 EMS | $56.18 | $56.17 | $0.00 | $0.00 | $112.35 | $0.00 |
| 2023 | 1828 | FP - DNR Forest Fire Protection Assmt | $8.50 | $8.50 | $0.00 | $0.00 | $17.00 | $0.00 |
| 2023 | 1828 | FPLCA - DNR Landowner Contingency Assmt | $3.00 | $3.00 | $0.00 | $0.00 | $6.00 | $0.00 |
| 2023 | 1828 | JCCD - JC Conservation District | $2.85 | $2.85 | $0.00 | $0.00 | $5.70 | $0.00 |
| 2023 | 1828 | NWA - Noxious Weed Assessment | $3.05 | $3.05 | $0.00 | $0.00 | $6.10 | $0.00 |
| 2023 | 1828 | OSS - On Site Septic | $20.50 | $20.50 | $0.00 | $0.00 | $41.00 | $0.00 |
| 2023 | 1828 | WAT - Clean Water District | $12.00 | $12.00 | $0.00 | $0.00 | $24.00 | $0.00 |
| 2023 | 1828 | FP ADMIN - FP ADMIN | $0.50 | $0.00 | $0.00 | $0.00 | $0.50 | $0.00 |
| 2023 | 1828 | TOTAL: | $1330.03 | $1329.39 | $0.00 | $0.00 | $2659.42 | $0.00 |
|
| 2023 | 1828 | $1330.03 | $1329.39 | $0.00 | $0.00 | $2659.42 | $0.00 |
Values
| (+) Improvement Homesite Value: | + | $185,602 | |
| (+) Improvement Non-Homesite Value: | + | $0 | |
| (+) Land Homesite Value: | + | $183,480 | |
| (+) Land Non-Homesite Value: | + | $23,216 | |
| (+) Curr Use (HS): | + | $0 | $0 |
| (+) Curr Use (NHS): | + | $0 | $0 |
| | | -------------------------- | |
| (=) Market Value: | = | $392,298 | |
| (–) Productivity Loss: | – | $0 | |
| | | -------------------------- | |
| (=) Subtotal: | = | $392,298 | |
| (+) Senior Appraised Value: | + | $0 | |
| (+) Non-Senior Appraised Value: | + | $392,298 | |
| | | -------------------------- | |
| (=) Total Appraised Value: | = | $392,298 | |
| (–) Senior Exemption Loss: | – | $0 | |
| (–) Exemption Loss: | – | $0 | |
| | | -------------------------- | |
| (=) Taxable Value: | = | $392,298 | |
Taxing Jurisdiction
| Owner: | PATRICIA M HOLMES | | |
| % Ownership: | 100.0000000000% | | |
| Total Value: | $392,298 | | |
| Tax Area: | 0111 - 1-50F1E1H2L1 |
| CE | COUNTY CURRENT EXPENSE | 0.9034619479 | $392,298 | $392,298 | $354.43 | | |
| CNTYDD | DEVELOPMENTAL DISABILITIES | 0.0052121823 | $392,298 | $392,298 | $2.04 | | |
| CNTYVET | VETERANS RELIEF | 0.0052777810 | $392,298 | $392,298 | $2.07 | | |
| MENTAL | MENTAL HEALTH | 0.0052121823 | $392,298 | $392,298 | $2.04 | | |
| ROADS | COUNTY ROADS | 0.7415066410 | $392,298 | $392,298 | $290.89 | | |
| ROADSCU | COUNTY ROADS TO CUR EXP | 0.0000000000 | $392,298 | $392,298 | $0.00 | | |
| HOSP2CASH | HOSP DIST #2 GENERAL | 0.0536075306 | $392,298 | $392,298 | $21.03 | | |
| SCH50BOND | SCHOOL DIST #50 BOND 2016 | 0.5377451389 | $392,298 | $392,298 | $210.96 | | |
| SCH50CP | SCHOOL DIST #50 CAP PROJ | 0.4573475088 | $392,298 | $392,298 | $179.42 | | |
| SCH50MO | SCHOOL DIST #50 EP & O | 0.8262822886 | $392,298 | $392,298 | $324.15 | | |
| CONSERVE | CONSERVATION FUTURES | 0.0275621078 | $392,298 | $392,298 | $10.81 | | |
| EMS1 | FIRE DIST #1 EMS | 0.4679948282 | $392,298 | $392,298 | $183.59 | | |
| FD1 | FIRE DIST #1 GENERAL | 1.2171942929 | $392,298 | $392,298 | $477.50 | | |
| LIB1 | LIBRARY DIST #1 GENERAL | 0.2868827388 | $392,298 | $392,298 | $112.54 | | |
| PORTPT | PORT OF PT GENERAL | 0.1134941229 | $392,298 | $392,298 | $44.52 | | |
| PORTPTIDD | PORT OF PT IDD 2019 | 0.2577346692 | $392,298 | $392,298 | $101.11 | | |
| PUD1 | PUD #1 GENERAL | 0.0597888892 | $392,298 | $392,298 | $23.46 | | |
| STATE | STATE SCHOOL PART 1 | 1.4940692947 | $392,298 | $392,298 | $586.12 | | |
| STATE2 | STATE SCHOOL PART 2 | 0.8050170049 | $392,298 | $392,298 | $315.81 | | |
| | Total Tax Rate: | 8.2653911500 | | | | | |
| | | | | Taxes w/Current Exemptions: | $3,242.49 | | |
| | | | | Taxes w/o Exemptions: | $3,242.49 | | |
Improvement / Building
| Improvement #1: | Manufactured Home | State Code: | 11 | 1512.0 sqft | Value: | $185,602 |
| Bathrooms (#): | 2 (FULL) | Bedrooms (#): | 3 | | Exterior Wall: | PL/T1 | Fireplace: | WD ST-AVG | | Foundation: | CONBL | Heating/Cooling: | F/A | | Roof Cover: | COMP |   |   |
|
| | Type | Description | Class CD | Sub Class CD | Year Built | Area |
| | MA | Main Area | 4 | MDBL | 2000 | 1512.0 |
| | MDECK | MH Deck | 4 | * | 2000 | 12.0 |
| | SHED | Shed (Table Not Dep) | 3 | * | 2000 | 96.0 |
| | SHED | Shed (Table Not Dep) | 3 | * | 2000 | 96.0 |
| | SHED | Shed (Table Not Dep) | 3 | * | 2000 | 96.0 |
| | SHED | Shed (Table Not Dep) | 3 | * | 2000 | 96.0 |
| | BARN | Barn (Table Not Dep) | 1 | * | 2000 | 1200.0 |
Sketch
Property Image
Land
| 1 | 1573A | | 4.0000 | 174240.00 | 0.00 | 0.00 | 0.00 | $66,330 | $0 |
| 2 | 1573A | | 1.4000 | 60984.00 | 0.00 | 0.00 | 0.00 | $23,216 | $0 |
| 3 | 5510-1375S | | 1.0000 | 43560.00 | 0.00 | 0.00 | 1.00 | $117,150 | $0 |
Roll Value History
| 2026 | N/A | N/A | N/A | N/A | N/A |
| 2025 | $185,602 | $206,696 | $0 | $392,298 | $392,298 |
| 2024 | $185,602 | $206,696 | $0 | $392,298 | $392,298 |
| 2023 | $162,298 | $188,223 | $0 | $350,521 | $350,521 |
| 2022 | $147,544 | $164,540 | $0 | $312,084 | $312,084 |
Deed and Sales History
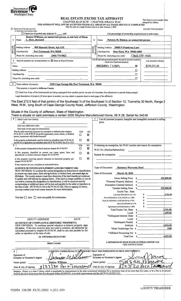
| 1 | 03/18/2020 | SWD | Statutory Warranty Deed | DIANA L DYER | PATRICIA M HOLMES | | | $251,000.00 | 134158 | |
| 2 | 12/08/2003 | QCD | Quit Claim Deed | JOHNSON, DIANA L DYER- | DYER, DIANA L | 0 | 0 | $0.00 | 98992 | 0 |
| 3 | 09/04/2003 | QCD | Quit Claim Deed | JOHNSON, DAVID E | JOHNSON, DIANA DYER | 0 | 0 | $0.00 | 98450 | 0 |
| 4 | 08/08/1995 | SWD | Statutory Warranty Deed | KOENIG, VICTOR H/DIANA J | JOHNSON, DAVID E/DIANA L DYER | 0 | 0 | $65,000.00 | 77606 | 0 |
Payout Agreement
| No payout information available.. |