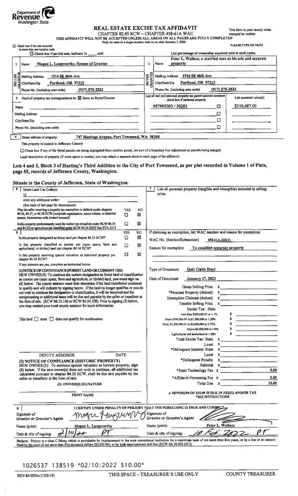
Property
Account |
| Property ID: | 11976 | Abbreviated Legal Description: | MARCH SHORT PLAT LOT 1 W/1/34TH INT IN COMM TRACT |
| Parcel # / Geo ID: | 002242026 | Agent Code: | |
| Type: | Real | | |
| Tax Area: | 0111 - 1-50F1E1H2L1 | Land Use Code | 11 |
| Open Space: | N | DFL | N |
| Historic Property: | N | Remodel Property: | N |
| Multi-Family Redevelopment: | N | | |
| Township: | 30N | Section: | 24 |
| Range: | 2W |
Location |
| Address: | 4914 CAPE GEORGE RD PORT TOWNSEND, WA 98368 | Mapsco: | 133/015 |
| Neighborhood: | S13(S1/2), 23 & 24 T30 R2W | Map ID: | |
| Neighborhood CD: | 5540 |
Owner |
| Name: | WILLIAM GRUBER | Owner ID: | 109381 |
| Mailing Address: | ERICA WESTERLUND 4914 CAPE GEORGE RD PORT TOWNSEND, WA 98368 | % Ownership: | 100.0000000000% |
| | | Exemptions: | |
Pay Tax Due
Select the appropriate checkbox next to the year to be paid. Multiple years may be selected.
*Convenience Fee not included
Taxes and Assessment Details
Property Tax Information as of
03/11/2026
Click on "Statement Details" to expand or collapse a tax statement.
* Please enter a valid date ** Please enter a valid date *
Statement Details |
| 2026 | 1902 | STATE - STATE LEVY (SCHOOL) | $2041.37 | $2041.37 | $0.00 | $0.00 | $0.00 | $4082.74 |
| 2026 | 1902 | COUNTY - COUNTY LEVIES (CE, DD, VET, MH) | $816.14 | $816.13 | $0.00 | $0.00 | $0.00 | $1632.27 |
| 2026 | 1902 | CONSERVE - CONSERVATION FUTURES | $24.48 | $24.47 | $0.00 | $0.00 | $0.00 | $48.95 |
| 2026 | 1902 | COROADS - COUNTY ROADS (ROADS, DIV TO CE) | $658.39 | $658.39 | $0.00 | $0.00 | $0.00 | $1316.78 |
| 2026 | 1902 | PORTPT - PORT DISTRICT | $329.62 | $329.61 | $0.00 | $0.00 | $0.00 | $659.23 |
| 2026 | 1902 | PUD1 - PUD #1 | $53.09 | $53.08 | $0.00 | $0.00 | $0.00 | $106.17 |
| 2026 | 1902 | LIB1 - LIBRARY DIST #1 | $254.73 | $254.72 | $0.00 | $0.00 | $0.00 | $509.45 |
| 2026 | 1902 | HD2 - HOSP DIST #2 | $47.60 | $47.60 | $0.00 | $0.00 | $0.00 | $95.20 |
| 2026 | 1902 | SD50 - SCHOOL DIST #50 | $1617.21 | $1617.20 | $0.00 | $0.00 | $0.00 | $3234.41 |
| 2026 | 1902 | FD1 - FIRE DISTRICT #1 | $1080.76 | $1080.75 | $0.00 | $0.00 | $0.00 | $2161.51 |
| 2026 | 1902 | EMS1 - FIRE DIST #1 EMS | $415.54 | $415.53 | $0.00 | $0.00 | $0.00 | $831.07 |
| 2026 | 1902 | FP - DNR Forest Fire Protection Assmt | $8.50 | $8.50 | $0.00 | $0.00 | $0.00 | $17.00 |
| 2026 | 1902 | FPLCA - DNR Landowner Contingency Assmt | $3.00 | $3.00 | $0.00 | $0.00 | $0.00 | $6.00 |
| 2026 | 1902 | JCCD - JC Conservation District | $2.65 | $2.65 | $0.00 | $0.00 | $0.00 | $5.30 |
| 2026 | 1902 | NWA - Noxious Weed Assessment | $3.43 | $3.42 | $0.00 | $0.00 | $0.00 | $6.85 |
| 2026 | 1902 | OSS - On Site Septic | $23.10 | $23.10 | $0.00 | $0.00 | $0.00 | $46.20 |
| 2026 | 1902 | WAT - Clean Water District | $13.00 | $13.00 | $0.00 | $0.00 | $0.00 | $26.00 |
| 2026 | 1902 | FP ADMIN - FP ADMIN | $0.50 | $0.00 | $0.00 | $0.00 | $0.00 | $0.50 |
| 2026 | 1902 | TOTAL: | $7393.11 | $7392.52 | $0.00 | $0.00 | $0.00 | $14785.63 |
|
| 2026 | 1902 | $7393.11 | $7392.52 | $0.00 | $0.00 | $0.00 | $14785.63 |
Statement Details |
| 2025 | 1908 | STATE - STATE LEVY (SCHOOL) | $2129.22 | $2129.22 | $0.00 | $0.00 | $4258.44 | $0.00 |
| 2025 | 1908 | COUNTY - COUNTY LEVIES (CE, DD, VET, MH) | $837.31 | $837.28 | $0.00 | $0.00 | $1674.59 | $0.00 |
| 2025 | 1908 | CONSERVE - CONSERVATION FUTURES | $25.11 | $25.10 | $0.00 | $0.00 | $50.21 | $0.00 |
| 2025 | 1908 | COROADS - COUNTY ROADS (ROADS, DIV TO CE) | $670.82 | $670.80 | $0.00 | $0.00 | $1341.62 | $0.00 |
| 2025 | 1908 | PORTPT - PORT DISTRICT | $341.67 | $341.66 | $0.00 | $0.00 | $683.33 | $0.00 |
| 2025 | 1908 | PUD1 - PUD #1 | $54.79 | $54.79 | $0.00 | $0.00 | $109.58 | $0.00 |
| 2025 | 1908 | LIB1 - LIBRARY DIST #1 | $259.53 | $259.53 | $0.00 | $0.00 | $519.06 | $0.00 |
| 2025 | 1908 | HD2 - HOSP DIST #2 | $48.85 | $48.85 | $0.00 | $0.00 | $97.70 | $0.00 |
| 2025 | 1908 | SD50 - SCHOOL DIST #50 | $1556.12 | $1556.09 | $0.00 | $0.00 | $3112.21 | $0.00 |
| 2025 | 1908 | FD1 - FIRE DISTRICT #1 | $1104.91 | $1104.91 | $0.00 | $0.00 | $2209.82 | $0.00 |
| 2025 | 1908 | EMS1 - FIRE DIST #1 EMS | $424.98 | $424.98 | $0.00 | $0.00 | $849.96 | $0.00 |
| 2025 | 1908 | FP - DNR Forest Fire Protection Assmt | $8.50 | $8.50 | $0.00 | $0.00 | $17.00 | $0.00 |
| 2025 | 1908 | FPLCA - DNR Landowner Contingency Assmt | $3.00 | $3.00 | $0.00 | $0.00 | $6.00 | $0.00 |
| 2025 | 1908 | JCCD - JC Conservation District | $2.65 | $2.65 | $0.00 | $0.00 | $5.30 | $0.00 |
| 2025 | 1908 | NWA - Noxious Weed Assessment | $2.45 | $2.45 | $0.00 | $0.00 | $4.90 | $0.00 |
| 2025 | 1908 | OSS - On Site Septic | $21.50 | $21.50 | $0.00 | $0.00 | $43.00 | $0.00 |
| 2025 | 1908 | WAT - Clean Water District | $13.00 | $13.00 | $0.00 | $0.00 | $26.00 | $0.00 |
| 2025 | 1908 | FP ADMIN - FP ADMIN | $0.50 | $0.00 | $0.00 | $0.00 | $0.50 | $0.00 |
| 2025 | 1908 | TOTAL: | $7504.91 | $7504.31 | $0.00 | $0.00 | $15009.22 | $0.00 |
|
| 2025 | 1908 | $7504.91 | $7504.31 | $0.00 | $0.00 | $15009.22 | $0.00 |
Statement Details |
| 2024 | 1915 | STATE - STATE LEVY (SCHOOL) | $2012.37 | $2012.37 | $0.00 | $0.00 | $4024.74 | $0.00 |
| 2024 | 1915 | COUNTY - COUNTY LEVIES (CE, DD, VET, MH) | $861.12 | $861.10 | $0.00 | $0.00 | $1722.22 | $0.00 |
| 2024 | 1915 | CONSERVE - CONSERVATION FUTURES | $25.82 | $25.82 | $0.00 | $0.00 | $51.64 | $0.00 |
| 2024 | 1915 | COROADS - COUNTY ROADS (ROADS, DIV TO CE) | $692.92 | $692.90 | $0.00 | $0.00 | $1385.82 | $0.00 |
| 2024 | 1915 | PORTPT - PORT DISTRICT | $355.68 | $355.67 | $0.00 | $0.00 | $711.35 | $0.00 |
| 2024 | 1915 | PUD1 - PUD #1 | $56.56 | $56.56 | $0.00 | $0.00 | $113.12 | $0.00 |
| 2024 | 1915 | LIB1 - LIBRARY DIST #1 | $268.08 | $268.08 | $0.00 | $0.00 | $536.16 | $0.00 |
| 2024 | 1915 | HD2 - HOSP DIST #2 | $50.25 | $50.24 | $0.00 | $0.00 | $100.49 | $0.00 |
| 2024 | 1915 | SD50 - SCHOOL DIST #50 | $1628.11 | $1628.09 | $0.00 | $0.00 | $3256.20 | $0.00 |
| 2024 | 1915 | FD1 - FIRE DISTRICT #1 | $1138.60 | $1138.59 | $0.00 | $0.00 | $2277.19 | $0.00 |
| 2024 | 1915 | EMS1 - FIRE DIST #1 EMS | $434.90 | $434.90 | $0.00 | $0.00 | $869.80 | $0.00 |
| 2024 | 1915 | FP - DNR Forest Fire Protection Assmt | $8.50 | $8.50 | $0.00 | $0.00 | $17.00 | $0.00 |
| 2024 | 1915 | FPLCA - DNR Landowner Contingency Assmt | $3.00 | $3.00 | $0.00 | $0.00 | $6.00 | $0.00 |
| 2024 | 1915 | JCCD - JC Conservation District | $2.65 | $2.65 | $0.00 | $0.00 | $5.30 | $0.00 |
| 2024 | 1915 | NWA - Noxious Weed Assessment | $2.45 | $2.45 | $0.00 | $0.00 | $4.90 | $0.00 |
| 2024 | 1915 | OSS - On Site Septic | $21.00 | $21.00 | $0.00 | $0.00 | $42.00 | $0.00 |
| 2024 | 1915 | WAT - Clean Water District | $12.50 | $12.50 | $0.00 | $0.00 | $25.00 | $0.00 |
| 2024 | 1915 | FP ADMIN - FP ADMIN | $0.50 | $0.00 | $0.00 | $0.00 | $0.50 | $0.00 |
| 2024 | 1915 | TOTAL: | $7575.01 | $7574.42 | $0.00 | $0.00 | $15149.43 | $0.00 |
|
| 2024 | 1915 | $7575.01 | $7574.42 | $0.00 | $0.00 | $15149.43 | $0.00 |
Statement Details |
| 2023 | 1916 | STATE - STATE LEVY (SCHOOL) | $1875.90 | $1875.89 | $0.00 | $0.00 | $3751.79 | $0.00 |
| 2023 | 1916 | COUNTY - COUNTY LEVIES (CE, DD, VET, MH) | $818.59 | $818.56 | $0.00 | $0.00 | $1637.15 | $0.00 |
| 2023 | 1916 | CONSERVE - CONSERVATION FUTURES | $24.55 | $24.54 | $0.00 | $0.00 | $49.09 | $0.00 |
| 2023 | 1916 | COROADS - COUNTY ROADS (ROADS, DIV TO CE) | $662.29 | $662.29 | $0.00 | $0.00 | $1324.58 | $0.00 |
| 2023 | 1916 | PORTPT - PORT DISTRICT | $344.84 | $344.82 | $0.00 | $0.00 | $689.66 | $0.00 |
| 2023 | 1916 | PUD1 - PUD #1 | $54.26 | $54.26 | $0.00 | $0.00 | $108.52 | $0.00 |
| 2023 | 1916 | LIB1 - LIBRARY DIST #1 | $256.24 | $256.23 | $0.00 | $0.00 | $512.47 | $0.00 |
| 2023 | 1916 | HD2 - HOSP DIST #2 | $47.77 | $47.77 | $0.00 | $0.00 | $95.54 | $0.00 |
| 2023 | 1916 | SD50 - SCHOOL DIST #50 | $1488.57 | $1488.54 | $0.00 | $0.00 | $2977.11 | $0.00 |
| 2023 | 1916 | FD1 - FIRE DISTRICT #1 | $674.35 | $674.35 | $0.00 | $0.00 | $1348.70 | $0.00 |
| 2023 | 1916 | EMS1 - FIRE DIST #1 EMS | $286.86 | $286.85 | $0.00 | $0.00 | $573.71 | $0.00 |
| 2023 | 1916 | FP - DNR Forest Fire Protection Assmt | $8.50 | $8.50 | $0.00 | $0.00 | $17.00 | $0.00 |
| 2023 | 1916 | FPLCA - DNR Landowner Contingency Assmt | $3.00 | $3.00 | $0.00 | $0.00 | $6.00 | $0.00 |
| 2023 | 1916 | JCCD - JC Conservation District | $2.65 | $2.65 | $0.00 | $0.00 | $5.30 | $0.00 |
| 2023 | 1916 | NWA - Noxious Weed Assessment | $2.45 | $2.45 | $0.00 | $0.00 | $4.90 | $0.00 |
| 2023 | 1916 | OSS - On Site Septic | $20.50 | $20.50 | $0.00 | $0.00 | $41.00 | $0.00 |
| 2023 | 1916 | WAT - Clean Water District | $12.00 | $12.00 | $0.00 | $0.00 | $24.00 | $0.00 |
| 2023 | 1916 | FP ADMIN - FP ADMIN | $0.50 | $0.00 | $0.00 | $0.00 | $0.50 | $0.00 |
| 2023 | 1916 | TOTAL: | $6583.82 | $6583.20 | $0.00 | $0.00 | $13167.02 | $0.00 |
|
| 2023 | 1916 | $6583.82 | $6583.20 | $0.00 | $0.00 | $13167.02 | $0.00 |
Values
| (+) Improvement Homesite Value: | + | $0 | |
| (+) Improvement Non-Homesite Value: | + | $1,372,658 | |
| (+) Land Homesite Value: | + | $0 | |
| (+) Land Non-Homesite Value: | + | $403,153 | |
| (+) Curr Use (HS): | + | $0 | $0 |
| (+) Curr Use (NHS): | + | $0 | $0 |
| | | -------------------------- | |
| (=) Market Value: | = | $1,775,811 | |
| (–) Productivity Loss: | – | $0 | |
| | | -------------------------- | |
| (=) Subtotal: | = | $1,775,811 | |
| (+) Senior Appraised Value: | + | $0 | |
| (+) Non-Senior Appraised Value: | + | $1,775,811 | |
| | | -------------------------- | |
| (=) Total Appraised Value: | = | $1,775,811 | |
| (–) Senior Exemption Loss: | – | $0 | |
| (–) Exemption Loss: | – | $0 | |
| | | -------------------------- | |
| (=) Taxable Value: | = | $1,775,811 | |
Taxing Jurisdiction
| Owner: | WILLIAM GRUBER | | |
| % Ownership: | 100.0000000000% | | |
| Total Value: | $1,775,811 | | |
| Tax Area: | 0111 - 1-50F1E1H2L1 |
| CE | COUNTY CURRENT EXPENSE | 0.9034619479 | $1,775,811 | $1,775,811 | $1,604.38 | | |
| CNTYDD | DEVELOPMENTAL DISABILITIES | 0.0052121823 | $1,775,811 | $1,775,811 | $9.26 | | |
| CNTYVET | VETERANS RELIEF | 0.0052777810 | $1,775,811 | $1,775,811 | $9.37 | | |
| MENTAL | MENTAL HEALTH | 0.0052121823 | $1,775,811 | $1,775,811 | $9.26 | | |
| ROADS | COUNTY ROADS | 0.7415066410 | $1,775,811 | $1,775,811 | $1,316.78 | | |
| ROADSCU | COUNTY ROADS TO CUR EXP | 0.0000000000 | $1,775,811 | $1,775,811 | $0.00 | | |
| HOSP2CASH | HOSP DIST #2 GENERAL | 0.0536075306 | $1,775,811 | $1,775,811 | $95.20 | | |
| SCH50BOND | SCHOOL DIST #50 BOND 2016 | 0.5377451389 | $1,775,811 | $1,775,811 | $954.93 | | |
| SCH50CP | SCHOOL DIST #50 CAP PROJ | 0.4573475088 | $1,775,811 | $1,775,811 | $812.16 | | |
| SCH50MO | SCHOOL DIST #50 EP & O | 0.8262822886 | $1,775,811 | $1,775,811 | $1,467.32 | | |
| CONSERVE | CONSERVATION FUTURES | 0.0275621078 | $1,775,811 | $1,775,811 | $48.95 | | |
| EMS1 | FIRE DIST #1 EMS | 0.4679948282 | $1,775,811 | $1,775,811 | $831.07 | | |
| FD1 | FIRE DIST #1 GENERAL | 1.2171942929 | $1,775,811 | $1,775,811 | $2,161.51 | | |
| LIB1 | LIBRARY DIST #1 GENERAL | 0.2868827388 | $1,775,811 | $1,775,811 | $509.45 | | |
| PORTPT | PORT OF PT GENERAL | 0.1134941229 | $1,775,811 | $1,775,811 | $201.54 | | |
| PORTPTIDD | PORT OF PT IDD 2019 | 0.2577346692 | $1,775,811 | $1,775,811 | $457.69 | | |
| PUD1 | PUD #1 GENERAL | 0.0597888892 | $1,775,811 | $1,775,811 | $106.17 | | |
| STATE | STATE SCHOOL PART 1 | 1.4940692947 | $1,775,811 | $1,775,811 | $2,653.18 | | |
| STATE2 | STATE SCHOOL PART 2 | 0.8050170049 | $1,775,811 | $1,775,811 | $1,429.56 | | |
| | Total Tax Rate: | 8.2653911500 | | | | | |
| | | | | Taxes w/Current Exemptions: | $14,677.78 | | |
| | | | | Taxes w/o Exemptions: | $14,677.78 | | |
Improvement / Building
| Improvement #1: | Residential Bldg | State Code: | 11 | 2866.0 sqft | Value: | $1,372,658 |
| Bathrooms (#): | 2 (FULL) | Bathrooms (#): | 1 (HALF) | | Bedrooms (#): | 3 | Exterior Wall: | SI/ST | | Fireplace: | SIN 1-GOOD | Floor Construction: | FRAME | | Foundation: | CONPR | Heating/Cooling: | HTWTR | | Roof Cover: | COMP |   |   |
|
| | Type | Description | Class CD | Sub Class CD | Year Built | Area |
| | MA | Main Area | 6+ | 15SF | 1997 | 1819.0 |
| | MA2 | Second Floor Main Area | 6+ | 15SF | 1997 | 1047.0 |
| | HCPOR | House Concrete Porch | 6 | * | 1997 | 514.0 |
| | HDECK | House Deck | 6 | * | 1997 | 754.0 |
| | GATT | House Attached Garage | 6 | 15SF | 1997 | 624.0 |
| | SHED | Shed (Table Not Dep) | 6 | * | 1997 | 192.0 |
| | BSMTF | House basement finished | 6 | * | 1997 | 1620.0 |
| | ASPHD | Asphalt Drive | 6 | * | 2017 | 6000.0 |
| | HWPOR | House Wood Porch | 6 | * | 1997 | 103.5 |
Sketch
Property Image
Land
| 1 | 5540-1535F | | 0.0000 | 0.00 | 0.00 | 0.00 | 0.00 | $307,125 | $0 |
| 2 | 5540-1535F | | 0.0000 | 0.00 | 0.00 | 0.00 | 0.00 | $96,028 | $0 |
Roll Value History
| 2026 | N/A | N/A | N/A | N/A | N/A |
| 2025 | $1,372,658 | $403,153 | $0 | $1,775,811 | $1,775,811 |
| 2024 | $1,372,658 | $403,153 | $0 | $1,775,811 | $1,775,811 |
| 2023 | $1,341,701 | $397,903 | $0 | $1,739,604 | $1,739,604 |
| 2022 | $1,219,728 | $373,955 | $0 | $1,593,683 | $1,593,683 |
Deed and Sales History
| 1 | 07/18/2023 | SWD | Statutory Warranty Deed | JEFFREY & REBECCA KRIDA LIVING TRUST | WILLIAM GRUBER | | | $1,825,000.00 | 141314 | |
| 2 | 04/10/2018 | QCD | Quit Claim Deed | | | | | | 129932 | |
| 3 | 06/22/2017 | QCD | Quit Claim Deed | JEFFREY D & REBECCA KRIDA | JEFFREY & REBECCA KRIDA LIVING TRUST | | | | 128043 | |
| 4 | 12/28/2015 | SWD | Statutory Warranty Deed | RICK D ZAJICEK | JEFFREY D & REBECCA KRIDA | | | $1,100,000.00 | 124693 | |
| 5 | 02/03/2000 | QCD | Quit Claim Deed | ZAJICEK, RICK D/DEBORAH C | ZAJICEK, RICK D/DEBORAH C | 0 | 0 | $0.00 | 88950 | 0 |
| 6 | 12/20/1994 | SWD | Statutory Warranty Deed | MARCH, ROYER B/MARY M | ZAJICEK, RICK D/DEBORAH C | 0 | 0 | $125,000.00 | 75962 | 0 |
| 7 | 12/20/1994 | SWD | Statutory Warranty Deed | MARCH, ROYER B/MARY M | ZAJICEK, RICK D/DEBORAH C | 0 | 0 | $0.00 | 76823 | 0 |
Payout Agreement
| No payout information available.. |