Property
Account |
| Property ID: | 11980 | Abbreviated Legal Description: | S24 T30N R2W GOV LOT 5(W265') W/EASE |
| Parcel # / Geo ID: | 002244003 | Agent Code: | |
| Type: | Real | | |
| Tax Area: | 0111 - 1-50F1E1H2L1 | Land Use Code | 11 |
| Open Space: | N | DFL | N |
| Historic Property: | N | Remodel Property: | N |
| Multi-Family Redevelopment: | N | | |
| Township: | 30N | Section: | 24 |
| Range: | 2W |
Location |
| Address: | 31 COMBS PL PORT TOWNSEND, WA 98368 | Mapsco: | 120/005 |
| Neighborhood: | S13(S1/2), 23 & 24 T30 R2W | Map ID: | |
| Neighborhood CD: | 5540 |
Owner |
| Name: | DEWITT FAMILY TRUST | Owner ID: | 109756 |
| Mailing Address: | JAMES H & LYNNE E DEWITT TRUSTEES 1240 W SIMS WAY #14 PORT TOWNSEND, WA 98368 | % Ownership: | 100.0000000000% |
| | | Exemptions: | |
Pay Tax Due
Select the appropriate checkbox next to the year to be paid. Multiple years may be selected.
*Convenience Fee not included
Taxes and Assessment Details
Property Tax Information as of
03/11/2026
Click on "Statement Details" to expand or collapse a tax statement.
* Please enter a valid date ** Please enter a valid date *
Statement Details |
| 2026 | 1906 | STATE - STATE LEVY (SCHOOL) | $1638.80 | $1638.78 | $0.00 | $0.00 | $0.00 | $3277.58 |
| 2026 | 1906 | COUNTY - COUNTY LEVIES (CE, DD, VET, MH) | $655.19 | $655.17 | $0.00 | $0.00 | $0.00 | $1310.36 |
| 2026 | 1906 | CONSERVE - CONSERVATION FUTURES | $19.65 | $19.64 | $0.00 | $0.00 | $0.00 | $39.29 |
| 2026 | 1906 | COROADS - COUNTY ROADS (ROADS, DIV TO CE) | $528.55 | $528.54 | $0.00 | $0.00 | $0.00 | $1057.09 |
| 2026 | 1906 | PORTPT - PORT DISTRICT | $264.62 | $264.61 | $0.00 | $0.00 | $0.00 | $529.23 |
| 2026 | 1906 | PUD1 - PUD #1 | $42.62 | $42.62 | $0.00 | $0.00 | $0.00 | $85.24 |
| 2026 | 1906 | LIB1 - LIBRARY DIST #1 | $204.49 | $204.49 | $0.00 | $0.00 | $0.00 | $408.98 |
| 2026 | 1906 | HD2 - HOSP DIST #2 | $38.21 | $38.21 | $0.00 | $0.00 | $0.00 | $76.42 |
| 2026 | 1906 | SD50 - SCHOOL DIST #50 | $1298.29 | $1298.27 | $0.00 | $0.00 | $0.00 | $2596.56 |
| 2026 | 1906 | FD1 - FIRE DISTRICT #1 | $867.62 | $867.61 | $0.00 | $0.00 | $0.00 | $1735.23 |
| 2026 | 1906 | EMS1 - FIRE DIST #1 EMS | $333.59 | $333.58 | $0.00 | $0.00 | $0.00 | $667.17 |
| 2026 | 1906 | FP - DNR Forest Fire Protection Assmt | $8.50 | $8.50 | $0.00 | $0.00 | $0.00 | $17.00 |
| 2026 | 1906 | FPLCA - DNR Landowner Contingency Assmt | $3.00 | $3.00 | $0.00 | $0.00 | $0.00 | $6.00 |
| 2026 | 1906 | JCCD - JC Conservation District | $2.75 | $2.75 | $0.00 | $0.00 | $0.00 | $5.50 |
| 2026 | 1906 | NWA - Noxious Weed Assessment | $3.88 | $3.87 | $0.00 | $0.00 | $0.00 | $7.75 |
| 2026 | 1906 | OSS - On Site Septic | $23.10 | $23.10 | $0.00 | $0.00 | $0.00 | $46.20 |
| 2026 | 1906 | WAT - Clean Water District | $13.00 | $13.00 | $0.00 | $0.00 | $0.00 | $26.00 |
| 2026 | 1906 | FP ADMIN - FP ADMIN | $0.50 | $0.00 | $0.00 | $0.00 | $0.00 | $0.50 |
| 2026 | 1906 | TOTAL: | $5946.36 | $5945.74 | $0.00 | $0.00 | $0.00 | $11892.10 |
|
| 2026 | 1906 | $5946.36 | $5945.74 | $0.00 | $0.00 | $0.00 | $11892.10 |
Statement Details |
| 2025 | 1912 | STATE - STATE LEVY (SCHOOL) | $1709.32 | $1709.31 | $0.00 | $0.00 | $3418.63 | $0.00 |
| 2025 | 1912 | COUNTY - COUNTY LEVIES (CE, DD, VET, MH) | $672.19 | $672.17 | $0.00 | $0.00 | $1344.36 | $0.00 |
| 2025 | 1912 | CONSERVE - CONSERVATION FUTURES | $20.16 | $20.15 | $0.00 | $0.00 | $40.31 | $0.00 |
| 2025 | 1912 | COROADS - COUNTY ROADS (ROADS, DIV TO CE) | $538.53 | $538.51 | $0.00 | $0.00 | $1077.04 | $0.00 |
| 2025 | 1912 | PORTPT - PORT DISTRICT | $274.29 | $274.28 | $0.00 | $0.00 | $548.57 | $0.00 |
| 2025 | 1912 | PUD1 - PUD #1 | $43.99 | $43.98 | $0.00 | $0.00 | $87.97 | $0.00 |
| 2025 | 1912 | LIB1 - LIBRARY DIST #1 | $208.35 | $208.35 | $0.00 | $0.00 | $416.70 | $0.00 |
| 2025 | 1912 | HD2 - HOSP DIST #2 | $39.22 | $39.21 | $0.00 | $0.00 | $78.43 | $0.00 |
| 2025 | 1912 | SD50 - SCHOOL DIST #50 | $1249.24 | $1249.21 | $0.00 | $0.00 | $2498.45 | $0.00 |
| 2025 | 1912 | FD1 - FIRE DISTRICT #1 | $887.01 | $887.01 | $0.00 | $0.00 | $1774.02 | $0.00 |
| 2025 | 1912 | EMS1 - FIRE DIST #1 EMS | $341.17 | $341.17 | $0.00 | $0.00 | $682.34 | $0.00 |
| 2025 | 1912 | FP - DNR Forest Fire Protection Assmt | $8.50 | $8.50 | $0.00 | $0.00 | $17.00 | $0.00 |
| 2025 | 1912 | FPLCA - DNR Landowner Contingency Assmt | $3.00 | $3.00 | $0.00 | $0.00 | $6.00 | $0.00 |
| 2025 | 1912 | JCCD - JC Conservation District | $2.75 | $2.75 | $0.00 | $0.00 | $5.50 | $0.00 |
| 2025 | 1912 | NWA - Noxious Weed Assessment | $2.75 | $2.75 | $0.00 | $0.00 | $5.50 | $0.00 |
| 2025 | 1912 | OSS - On Site Septic | $21.50 | $21.50 | $0.00 | $0.00 | $43.00 | $0.00 |
| 2025 | 1912 | WAT - Clean Water District | $13.00 | $13.00 | $0.00 | $0.00 | $26.00 | $0.00 |
| 2025 | 1912 | FP ADMIN - FP ADMIN | $0.50 | $0.00 | $0.00 | $0.00 | $0.50 | $0.00 |
| 2025 | 1912 | TOTAL: | $6035.47 | $6034.85 | $0.00 | $0.00 | $12070.32 | $0.00 |
|
| 2025 | 1912 | $6035.47 | $6034.85 | $0.00 | $0.00 | $12070.32 | $0.00 |
Statement Details |
| 2024 | 1919 | STATE - STATE LEVY (SCHOOL) | $1471.69 | $1471.68 | $0.00 | $0.00 | $2943.37 | $0.00 |
| 2024 | 1919 | COUNTY - COUNTY LEVIES (CE, DD, VET, MH) | $629.76 | $629.73 | $0.00 | $0.00 | $1259.49 | $0.00 |
| 2024 | 1919 | CONSERVE - CONSERVATION FUTURES | $18.89 | $18.88 | $0.00 | $0.00 | $37.77 | $0.00 |
| 2024 | 1919 | COROADS - COUNTY ROADS (ROADS, DIV TO CE) | $506.74 | $506.73 | $0.00 | $0.00 | $1013.47 | $0.00 |
| 2024 | 1919 | PORTPT - PORT DISTRICT | $260.12 | $260.11 | $0.00 | $0.00 | $520.23 | $0.00 |
| 2024 | 1919 | PUD1 - PUD #1 | $41.37 | $41.36 | $0.00 | $0.00 | $82.73 | $0.00 |
| 2024 | 1919 | LIB1 - LIBRARY DIST #1 | $196.05 | $196.05 | $0.00 | $0.00 | $392.10 | $0.00 |
| 2024 | 1919 | HD2 - HOSP DIST #2 | $36.75 | $36.74 | $0.00 | $0.00 | $73.49 | $0.00 |
| 2024 | 1919 | SD50 - SCHOOL DIST #50 | $1190.67 | $1190.65 | $0.00 | $0.00 | $2381.32 | $0.00 |
| 2024 | 1919 | FD1 - FIRE DISTRICT #1 | $832.68 | $832.67 | $0.00 | $0.00 | $1665.35 | $0.00 |
| 2024 | 1919 | EMS1 - FIRE DIST #1 EMS | $318.05 | $318.05 | $0.00 | $0.00 | $636.10 | $0.00 |
| 2024 | 1919 | FP - DNR Forest Fire Protection Assmt | $8.50 | $8.50 | $0.00 | $0.00 | $17.00 | $0.00 |
| 2024 | 1919 | FPLCA - DNR Landowner Contingency Assmt | $3.00 | $3.00 | $0.00 | $0.00 | $6.00 | $0.00 |
| 2024 | 1919 | JCCD - JC Conservation District | $2.75 | $2.75 | $0.00 | $0.00 | $5.50 | $0.00 |
| 2024 | 1919 | NWA - Noxious Weed Assessment | $2.75 | $2.75 | $0.00 | $0.00 | $5.50 | $0.00 |
| 2024 | 1919 | OSS - On Site Septic | $21.00 | $21.00 | $0.00 | $0.00 | $42.00 | $0.00 |
| 2024 | 1919 | WAT - Clean Water District | $12.50 | $12.50 | $0.00 | $0.00 | $25.00 | $0.00 |
| 2024 | 1919 | FP ADMIN - FP ADMIN | $0.50 | $0.00 | $0.00 | $0.00 | $0.50 | $0.00 |
| 2024 | 1919 | TOTAL: | $5553.77 | $5553.15 | $0.00 | $0.00 | $11106.92 | $0.00 |
|
| 2024 | 1919 | $5553.77 | $5553.15 | $0.00 | $0.00 | $11106.92 | $0.00 |
Statement Details |
| 2023 | 1920 | STATE - STATE LEVY (SCHOOL) | $1377.10 | $1377.09 | $0.00 | $0.00 | $2754.19 | $0.00 |
| 2023 | 1920 | COUNTY - COUNTY LEVIES (CE, DD, VET, MH) | $600.93 | $600.91 | $0.00 | $0.00 | $1201.84 | $0.00 |
| 2023 | 1920 | CONSERVE - CONSERVATION FUTURES | $18.02 | $18.02 | $0.00 | $0.00 | $36.04 | $0.00 |
| 2023 | 1920 | COROADS - COUNTY ROADS (ROADS, DIV TO CE) | $486.19 | $486.18 | $0.00 | $0.00 | $972.37 | $0.00 |
| 2023 | 1920 | PORTPT - PORT DISTRICT | $253.14 | $253.14 | $0.00 | $0.00 | $506.28 | $0.00 |
| 2023 | 1920 | PUD1 - PUD #1 | $39.84 | $39.83 | $0.00 | $0.00 | $79.67 | $0.00 |
| 2023 | 1920 | LIB1 - LIBRARY DIST #1 | $188.10 | $188.10 | $0.00 | $0.00 | $376.20 | $0.00 |
| 2023 | 1920 | HD2 - HOSP DIST #2 | $35.07 | $35.06 | $0.00 | $0.00 | $70.13 | $0.00 |
| 2023 | 1920 | SD50 - SCHOOL DIST #50 | $1092.76 | $1092.74 | $0.00 | $0.00 | $2185.50 | $0.00 |
| 2023 | 1920 | FD1 - FIRE DISTRICT #1 | $495.04 | $495.04 | $0.00 | $0.00 | $990.08 | $0.00 |
| 2023 | 1920 | EMS1 - FIRE DIST #1 EMS | $210.58 | $210.58 | $0.00 | $0.00 | $421.16 | $0.00 |
| 2023 | 1920 | FP - DNR Forest Fire Protection Assmt | $8.50 | $8.50 | $0.00 | $0.00 | $17.00 | $0.00 |
| 2023 | 1920 | FPLCA - DNR Landowner Contingency Assmt | $3.00 | $3.00 | $0.00 | $0.00 | $6.00 | $0.00 |
| 2023 | 1920 | JCCD - JC Conservation District | $2.75 | $2.75 | $0.00 | $0.00 | $5.50 | $0.00 |
| 2023 | 1920 | NWA - Noxious Weed Assessment | $2.75 | $2.75 | $0.00 | $0.00 | $5.50 | $0.00 |
| 2023 | 1920 | OSS - On Site Septic | $20.50 | $20.50 | $0.00 | $0.00 | $41.00 | $0.00 |
| 2023 | 1920 | WAT - Clean Water District | $12.00 | $12.00 | $0.00 | $0.00 | $24.00 | $0.00 |
| 2023 | 1920 | FP ADMIN - FP ADMIN | $0.50 | $0.00 | $0.00 | $0.00 | $0.50 | $0.00 |
| 2023 | 1920 | TOTAL: | $4846.77 | $4846.19 | $0.00 | $0.00 | $9692.96 | $0.00 |
|
| 2023 | 1920 | $4846.77 | $4846.19 | $0.00 | $0.00 | $9692.96 | $0.00 |
Values
| (+) Improvement Homesite Value: | + | $0 | |
| (+) Improvement Non-Homesite Value: | + | $951,669 | |
| (+) Land Homesite Value: | + | $0 | |
| (+) Land Non-Homesite Value: | + | $473,933 | |
| (+) Curr Use (HS): | + | $0 | $0 |
| (+) Curr Use (NHS): | + | $0 | $0 |
| | | -------------------------- | |
| (=) Market Value: | = | $1,425,602 | |
| (–) Productivity Loss: | – | $0 | |
| | | -------------------------- | |
| (=) Subtotal: | = | $1,425,602 | |
| (+) Senior Appraised Value: | + | $0 | |
| (+) Non-Senior Appraised Value: | + | $1,425,602 | |
| | | -------------------------- | |
| (=) Total Appraised Value: | = | $1,425,602 | |
| (–) Senior Exemption Loss: | – | $0 | |
| (–) Exemption Loss: | – | $0 | |
| | | -------------------------- | |
| (=) Taxable Value: | = | $1,425,602 | |
Taxing Jurisdiction
| Owner: | DEWITT FAMILY TRUST | | |
| % Ownership: | 100.0000000000% | | |
| Total Value: | N/A | | |
| Tax Area: | 0111 - 1-50F1E1H2L1 |
| CE | COUNTY CURRENT EXPENSE | N/A | N/A | N/A | N/A | | |
| CNTYDD | DEVELOPMENTAL DISABILITIES | N/A | N/A | N/A | N/A | | |
| CNTYVET | VETERANS RELIEF | N/A | N/A | N/A | N/A | | |
| MENTAL | MENTAL HEALTH | N/A | N/A | N/A | N/A | | |
| ROADS | COUNTY ROADS | N/A | N/A | N/A | N/A | | |
| HOSP2CASH | HOSP DIST #2 GENERAL | N/A | N/A | N/A | N/A | | |
| SCH50BOND | SCHOOL DIST #50 BOND 2016 | N/A | N/A | N/A | N/A | | |
| SCH50CP | SCHOOL DIST #50 CAP PROJ | N/A | N/A | N/A | N/A | | |
| SCH50MO | SCHOOL DIST #50 EP & O | N/A | N/A | N/A | N/A | | |
| CONSERVE | CONSERVATION FUTURES | N/A | N/A | N/A | N/A | | |
| EMS1 | FIRE DIST #1 EMS | N/A | N/A | N/A | N/A | | |
| FD1 | FIRE DIST #1 GENERAL | N/A | N/A | N/A | N/A | | |
| LIB1 | LIBRARY DIST #1 GENERAL | N/A | N/A | N/A | N/A | | |
| PORTPT | PORT OF PT GENERAL | N/A | N/A | N/A | N/A | | |
| PORTPTIDD | PORT OF PT IDD 2019 | N/A | N/A | N/A | N/A | | |
| PUD1 | PUD #1 GENERAL | N/A | N/A | N/A | N/A | | |
| STATE | STATE SCHOOL PART 1 | N/A | N/A | N/A | N/A | | |
| STATE2 | STATE SCHOOL PART 2 | N/A | N/A | N/A | N/A | | |
| | Total Tax Rate: | N/A | | | | | |
| | | | | Taxes w/Current Exemptions: | N/A | | |
| | | | | Taxes w/o Exemptions: | N/A | | |
Improvement / Building
| Improvement #1: | Residential Bldg | State Code: | 11 | 2994.0 sqft | Value: | $951,669 |
| Bathrooms (#): | 3 (FULL) | Bedrooms (#): | 3 | | Exterior Wall: | SI/ST | Fireplace: | SIN 1-GOOD | | Fireplace: | WD ST-GOOD | Floor Construction: | FRAME | | Foundation: | CONPR | Heating/Cooling: | HTWTR | | Roof Cover: | SHAKE |   |   |
|
| | Type | Description | Class CD | Sub Class CD | Year Built | Area |
| | MA | Main Area | 5+ | 2S | 1990 | 1659.0 |
| | MA2 | Second Floor Main Area | 5+ | 2S | 1990 | 1335.0 |
| | HCPOR | House Concrete Porch | 5 | * | 1990 | 54.0 |
| | HDECK | House Deck | 5 | * | 1990 | 733.0 |
| | GATT | House Attached Garage | 5 | 2S | 1990 | 864.0 |
| | BSMTF | House basement finished | 5 | * | 1990 | 560.0 |
| | CONCD | Concrete Drive | 5 | * | 1990 | 2000.0 |
| | PATIO | House Patio | 5 | * | 2017 | 99.0 |
| | HRPO | House Roof Patio | 5 | * | 2017 | 15.0 |
Sketch
Property Image
Land
| 1 | 5540-1535F | | 0.0000 | 0.00 | 0.00 | 0.00 | 0.00 | $252,000 | $0 |
| 2 | 5540-1535F | | 0.0000 | 0.00 | 0.00 | 0.00 | 0.00 | $221,933 | $0 |
Roll Value History
| 2026 | N/A | N/A | N/A | N/A | N/A |
| 2025 | $951,669 | $473,933 | $0 | $1,425,602 | $1,425,602 |
| 2024 | $951,669 | $473,933 | $0 | $1,425,602 | $1,425,602 |
| 2023 | $847,763 | $424,440 | $0 | $1,272,203 | $1,272,203 |
| 2022 | $770,694 | $399,229 | $0 | $1,169,923 | $1,169,923 |
Deed and Sales History
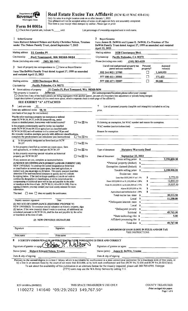
| 1 | 09/22/2023 | SWD | Statutory Warranty Deed | NELSON FAMILY TRUST | DEWITT FAMILY TRUST | | | $2,250,000.00 | 141640 | |
|   | |
| 2 | 09/07/2015 | QCD | Quit Claim Deed | | | | | | 127689 | |
| 3 | 09/07/2015 | QCD | Quit Claim Deed | | | | | | 123922 | |
Payout Agreement
| No payout information available.. |