Property
Account |
| Property ID: | 11989 | Abbreviated Legal Description: | S27 T30 R2W TAX 25-BND BY BLA#134144 PARCEL B V38/P326-8 |
| Parcel # / Geo ID: | 002273005 | Agent Code: | |
| Type: | Real | | |
| Tax Area: | 0781 - 1-323F8E8H2C3L1 | Land Use Code | 91 |
| Open Space: | N | DFL | N |
| Historic Property: | N | Remodel Property: | N |
| Multi-Family Redevelopment: | N | | |
| Township: | 30N | Section: | 27 |
| Range: | 2W |
Location |
| Address: | 358 DAISEY KING RD SEQUIM, WA 98382 | Mapsco: | 121/018B |
| Neighborhood: | S27 & 28 T30 R2W, RONDELAY MEADOWS | Map ID: | |
| Neighborhood CD: | 2670 |
Owner |
| Name: | THOMPSON R & PATRICIA L WALTON | Owner ID: | 113359 |
| Mailing Address: | 3333 56TH AVE SW SEATTLE, WA 98116-3103 | % Ownership: | 100.0000000000% |
| | | Exemptions: | |
Pay Tax Due
There is currently No Amount Due on this property.
Taxes and Assessment Details
Property Tax Information as of
03/12/2026
Click on "Statement Details" to expand or collapse a tax statement.
* Please enter a valid date ** Please enter a valid date *
Statement Details |
| 2026 | 1915 | STATE - STATE LEVY (SCHOOL) | $366.56 | $366.56 | $0.00 | $0.00 | $733.12 | $0.00 |
| 2026 | 1915 | COUNTY - COUNTY LEVIES (CE, DD, VET, MH) | $146.55 | $146.54 | $0.00 | $0.00 | $293.09 | $0.00 |
| 2026 | 1915 | CONSERVE - CONSERVATION FUTURES | $4.40 | $4.39 | $0.00 | $0.00 | $8.79 | $0.00 |
| 2026 | 1915 | COROADS - COUNTY ROADS (ROADS, DIV TO CE) | $118.23 | $118.22 | $0.00 | $0.00 | $236.45 | $0.00 |
| 2026 | 1915 | PORTPT - PORT DISTRICT | $59.19 | $59.18 | $0.00 | $0.00 | $118.37 | $0.00 |
| 2026 | 1915 | PUD1 - PUD #1 | $9.54 | $9.53 | $0.00 | $0.00 | $19.07 | $0.00 |
| 2026 | 1915 | LIB1 - LIBRARY DIST #1 | $45.74 | $45.74 | $0.00 | $0.00 | $91.48 | $0.00 |
| 2026 | 1915 | HD2 - HOSP DIST #2 | $8.55 | $8.54 | $0.00 | $0.00 | $17.09 | $0.00 |
| 2026 | 1915 | SD323 - SCHOOL DIST #323 | $294.22 | $294.20 | $0.00 | $0.00 | $588.42 | $0.00 |
| 2026 | 1915 | FD8 - FIRE DISTRICT #8 | $239.16 | $239.15 | $0.00 | $0.00 | $478.31 | $0.00 |
| 2026 | 1915 | EMS8 - FIRE DIST #8 EMS | $54.75 | $54.75 | $0.00 | $0.00 | $109.50 | $0.00 |
| 2026 | 1915 | CEM3 - CEMETERY DIST #3 | $3.99 | $3.98 | $0.00 | $0.00 | $7.97 | $0.00 |
| 2026 | 1915 | FPLCA - DNR Landowner Contingency Assmt | $3.00 | $3.00 | $0.00 | $0.00 | $6.00 | $0.00 |
| 2026 | 1915 | JCCD - JC Conservation District | $2.61 | $2.61 | $0.00 | $0.00 | $5.22 | $0.00 |
| 2026 | 1915 | NWA - Noxious Weed Assessment | $3.43 | $3.42 | $0.00 | $0.00 | $6.85 | $0.00 |
| 2026 | 1915 | WAT - Clean Water District | $13.00 | $13.00 | $0.00 | $0.00 | $26.00 | $0.00 |
| 2026 | 1915 | TOTAL: | $1372.92 | $1372.81 | $0.00 | $0.00 | $2745.73 | $0.00 |
|
| 2026 | 1915 | $1372.92 | $1372.81 | $0.00 | $0.00 | $2745.73 | $0.00 |
Statement Details |
| 2025 | 1921 | STATE - STATE LEVY (SCHOOL) | $392.10 | $392.08 | $0.00 | $0.00 | $784.18 | $0.00 |
| 2025 | 1921 | COUNTY - COUNTY LEVIES (CE, DD, VET, MH) | $154.19 | $154.18 | $0.00 | $0.00 | $308.37 | $0.00 |
| 2025 | 1921 | CONSERVE - CONSERVATION FUTURES | $4.63 | $4.62 | $0.00 | $0.00 | $9.25 | $0.00 |
| 2025 | 1921 | COROADS - COUNTY ROADS (ROADS, DIV TO CE) | $123.53 | $123.52 | $0.00 | $0.00 | $247.05 | $0.00 |
| 2025 | 1921 | PORTPT - PORT DISTRICT | $62.92 | $62.92 | $0.00 | $0.00 | $125.84 | $0.00 |
| 2025 | 1921 | PUD1 - PUD #1 | $10.09 | $10.09 | $0.00 | $0.00 | $20.18 | $0.00 |
| 2025 | 1921 | LIB1 - LIBRARY DIST #1 | $47.79 | $47.79 | $0.00 | $0.00 | $95.58 | $0.00 |
| 2025 | 1921 | HD2 - HOSP DIST #2 | $9.00 | $8.99 | $0.00 | $0.00 | $17.99 | $0.00 |
| 2025 | 1921 | SD323 - SCHOOL DIST #323 | $212.34 | $212.33 | $0.00 | $0.00 | $424.67 | $0.00 |
| 2025 | 1921 | FD8 - FIRE DISTRICT #8 | $181.94 | $181.93 | $0.00 | $0.00 | $363.87 | $0.00 |
| 2025 | 1921 | EMS8 - FIRE DIST #8 EMS | $57.52 | $57.52 | $0.00 | $0.00 | $115.04 | $0.00 |
| 2025 | 1921 | CEM3 - CEMETERY DIST #3 | $4.33 | $4.33 | $0.00 | $0.00 | $8.66 | $0.00 |
| 2025 | 1921 | FP - DNR Forest Fire Protection Assmt | $8.50 | $8.50 | $0.00 | $0.00 | $17.00 | $0.00 |
| 2025 | 1921 | FPLCA - DNR Landowner Contingency Assmt | $3.00 | $3.00 | $0.00 | $0.00 | $6.00 | $0.00 |
| 2025 | 1921 | JCCD - JC Conservation District | $2.61 | $2.61 | $0.00 | $0.00 | $5.22 | $0.00 |
| 2025 | 1921 | NWA - Noxious Weed Assessment | $2.45 | $2.45 | $0.00 | $0.00 | $4.90 | $0.00 |
| 2025 | 1921 | WAT - Clean Water District | $13.00 | $13.00 | $0.00 | $0.00 | $26.00 | $0.00 |
| 2025 | 1921 | FP ADMIN - FP ADMIN | $0.50 | $0.00 | $0.00 | $0.00 | $0.50 | $0.00 |
| 2025 | 1921 | TOTAL: | $1290.44 | $1289.86 | $0.00 | $0.00 | $2580.30 | $0.00 |
|
| 2025 | 1921 | $1290.44 | $1289.86 | $0.00 | $0.00 | $2580.30 | $0.00 |
Statement Details |
| 2024 | 1928 | STATE - STATE LEVY (SCHOOL) | $361.09 | $361.08 | $0.00 | $0.00 | $722.17 | $0.00 |
| 2024 | 1928 | COUNTY - COUNTY LEVIES (CE, DD, VET, MH) | $154.52 | $154.50 | $0.00 | $0.00 | $309.02 | $0.00 |
| 2024 | 1928 | CONSERVE - CONSERVATION FUTURES | $4.64 | $4.63 | $0.00 | $0.00 | $9.27 | $0.00 |
| 2024 | 1928 | COROADS - COUNTY ROADS (ROADS, DIV TO CE) | $124.33 | $124.33 | $0.00 | $0.00 | $248.66 | $0.00 |
| 2024 | 1928 | PORTPT - PORT DISTRICT | $63.82 | $63.82 | $0.00 | $0.00 | $127.64 | $0.00 |
| 2024 | 1928 | PUD1 - PUD #1 | $10.15 | $10.15 | $0.00 | $0.00 | $20.30 | $0.00 |
| 2024 | 1928 | LIB1 - LIBRARY DIST #1 | $48.11 | $48.10 | $0.00 | $0.00 | $96.21 | $0.00 |
| 2024 | 1928 | HD2 - HOSP DIST #2 | $9.02 | $9.01 | $0.00 | $0.00 | $18.03 | $0.00 |
| 2024 | 1928 | SD323 - SCHOOL DIST #323 | $203.12 | $203.11 | $0.00 | $0.00 | $406.23 | $0.00 |
| 2024 | 1928 | FD8 - FIRE DISTRICT #8 | $174.81 | $174.80 | $0.00 | $0.00 | $349.61 | $0.00 |
| 2024 | 1928 | EMS8 - FIRE DIST #8 EMS | $55.28 | $55.28 | $0.00 | $0.00 | $110.56 | $0.00 |
| 2024 | 1928 | CEM3 - CEMETERY DIST #3 | $4.45 | $4.44 | $0.00 | $0.00 | $8.89 | $0.00 |
| 2024 | 1928 | FP - DNR Forest Fire Protection Assmt | $8.50 | $8.50 | $0.00 | $0.00 | $17.00 | $0.00 |
| 2024 | 1928 | FPLCA - DNR Landowner Contingency Assmt | $3.00 | $3.00 | $0.00 | $0.00 | $6.00 | $0.00 |
| 2024 | 1928 | JCCD - JC Conservation District | $2.61 | $2.61 | $0.00 | $0.00 | $5.22 | $0.00 |
| 2024 | 1928 | NWA - Noxious Weed Assessment | $2.45 | $2.45 | $0.00 | $0.00 | $4.90 | $0.00 |
| 2024 | 1928 | WAT - Clean Water District | $12.50 | $12.50 | $0.00 | $0.00 | $25.00 | $0.00 |
| 2024 | 1928 | FP ADMIN - FP ADMIN | $0.50 | $0.00 | $0.00 | $0.00 | $0.50 | $0.00 |
| 2024 | 1928 | TOTAL: | $1242.90 | $1242.31 | $0.00 | $0.00 | $2485.21 | $0.00 |
|
| 2024 | 1928 | $1242.90 | $1242.31 | $0.00 | $0.00 | $2485.21 | $0.00 |
Statement Details |
| 2023 | 1929 | STATE - STATE LEVY (SCHOOL) | $349.92 | $349.92 | $0.00 | $0.00 | $699.84 | $0.00 |
| 2023 | 1929 | COUNTY - COUNTY LEVIES (CE, DD, VET, MH) | $152.71 | $152.68 | $0.00 | $0.00 | $305.39 | $0.00 |
| 2023 | 1929 | CONSERVE - CONSERVATION FUTURES | $4.58 | $4.58 | $0.00 | $0.00 | $9.16 | $0.00 |
| 2023 | 1929 | COROADS - COUNTY ROADS (ROADS, DIV TO CE) | $123.55 | $123.53 | $0.00 | $0.00 | $247.08 | $0.00 |
| 2023 | 1929 | PORTPT - PORT DISTRICT | $64.33 | $64.32 | $0.00 | $0.00 | $128.65 | $0.00 |
| 2023 | 1929 | PUD1 - PUD #1 | $10.12 | $10.12 | $0.00 | $0.00 | $20.24 | $0.00 |
| 2023 | 1929 | LIB1 - LIBRARY DIST #1 | $47.80 | $47.79 | $0.00 | $0.00 | $95.59 | $0.00 |
| 2023 | 1929 | HD2 - HOSP DIST #2 | $8.91 | $8.91 | $0.00 | $0.00 | $17.82 | $0.00 |
| 2023 | 1929 | SD323 - SCHOOL DIST #323 | $201.85 | $201.84 | $0.00 | $0.00 | $403.69 | $0.00 |
| 2023 | 1929 | FD8 - FIRE DISTRICT #8 | $168.25 | $168.24 | $0.00 | $0.00 | $336.49 | $0.00 |
| 2023 | 1929 | EMS8 - FIRE DIST #8 EMS | $55.02 | $55.01 | $0.00 | $0.00 | $110.03 | $0.00 |
| 2023 | 1929 | CEM3 - CEMETERY DIST #3 | $4.79 | $4.78 | $0.00 | $0.00 | $9.57 | $0.00 |
| 2023 | 1929 | FP - DNR Forest Fire Protection Assmt | $8.50 | $8.50 | $0.00 | $0.00 | $17.00 | $0.00 |
| 2023 | 1929 | FPLCA - DNR Landowner Contingency Assmt | $3.00 | $3.00 | $0.00 | $0.00 | $6.00 | $0.00 |
| 2023 | 1929 | JCCD - JC Conservation District | $2.61 | $2.61 | $0.00 | $0.00 | $5.22 | $0.00 |
| 2023 | 1929 | NWA - Noxious Weed Assessment | $2.45 | $2.45 | $0.00 | $0.00 | $4.90 | $0.00 |
| 2023 | 1929 | WAT - Clean Water District | $12.00 | $12.00 | $0.00 | $0.00 | $24.00 | $0.00 |
| 2023 | 1929 | FP ADMIN - FP ADMIN | $0.50 | $0.00 | $0.00 | $0.00 | $0.50 | $0.00 |
| 2023 | 1929 | TOTAL: | $1220.89 | $1220.28 | $0.00 | $0.00 | $2441.17 | $0.00 |
|
| 2023 | 1929 | $1220.89 | $1220.28 | $0.00 | $0.00 | $2441.17 | $0.00 |
Values
| (+) Improvement Homesite Value: | + | $0 | |
| (+) Improvement Non-Homesite Value: | + | $0 | |
| (+) Land Homesite Value: | + | $0 | |
| (+) Land Non-Homesite Value: | + | $318,872 | |
| (+) Curr Use (HS): | + | $0 | $0 |
| (+) Curr Use (NHS): | + | $0 | $0 |
| | | -------------------------- | |
| (=) Market Value: | = | $318,872 | |
| (–) Productivity Loss: | – | $0 | |
| | | -------------------------- | |
| (=) Subtotal: | = | $318,872 | |
| (+) Senior Appraised Value: | + | $0 | |
| (+) Non-Senior Appraised Value: | + | $318,872 | |
| | | -------------------------- | |
| (=) Total Appraised Value: | = | $318,872 | |
| (–) Senior Exemption Loss: | – | $0 | |
| (–) Exemption Loss: | – | $0 | |
| | | -------------------------- | |
| (=) Taxable Value: | = | $318,872 | |
Taxing Jurisdiction
| Owner: | THOMPSON R & PATRICIA L WALTON | | |
| % Ownership: | 100.0000000000% | | |
| Total Value: | N/A | | |
| Tax Area: | 0781 - 1-323F8E8H2C3L1 |
| CE | COUNTY CURRENT EXPENSE | N/A | N/A | N/A | N/A | | |
| CNTYDD | DEVELOPMENTAL DISABILITIES | N/A | N/A | N/A | N/A | | |
| CNTYVET | VETERANS RELIEF | N/A | N/A | N/A | N/A | | |
| MENTAL | MENTAL HEALTH | N/A | N/A | N/A | N/A | | |
| ROADS | COUNTY ROADS | N/A | N/A | N/A | N/A | | |
| HOSP2CASH | HOSP DIST #2 GENERAL | N/A | N/A | N/A | N/A | | |
| SCH323BOND | SCHOOL DIST #323 BOND | N/A | N/A | N/A | N/A | | |
| SCH323CP | SCHOOL DIST #323 CAP PROJ | N/A | N/A | N/A | N/A | | |
| SCH323MO | SCHOOL DIST #323 EP & O | N/A | N/A | N/A | N/A | | |
| CEM3 | CEMETERY DIST #3 GENERAL | N/A | N/A | N/A | N/A | | |
| CONSERVE | CONSERVATION FUTURES | N/A | N/A | N/A | N/A | | |
| EMS8 | FIRE DIST #8 EMS | N/A | N/A | N/A | N/A | | |
| FD8 | FIRE DIST #8 GENERAL | N/A | N/A | N/A | N/A | | |
| LIB1 | LIBRARY DIST #1 GENERAL | N/A | N/A | N/A | N/A | | |
| PORTPT | PORT OF PT GENERAL | N/A | N/A | N/A | N/A | | |
| PORTPTIDD | PORT OF PT IDD 2019 | N/A | N/A | N/A | N/A | | |
| PUD1 | PUD #1 GENERAL | N/A | N/A | N/A | N/A | | |
| STATE | STATE SCHOOL PART 1 | N/A | N/A | N/A | N/A | | |
| STATE2 | STATE SCHOOL PART 2 | N/A | N/A | N/A | N/A | | |
| | Total Tax Rate: | N/A | | | | | |
| | | | | Taxes w/Current Exemptions: | N/A | | |
| | | | | Taxes w/o Exemptions: | N/A | | |
Improvement / Building
Sketch
| No sketches available for this property. |
Property Image
Land
| 1 | 2670-1535F | | 1.5800 | 68824.80 | 100.00 | 0.00 | 0.00 | $230,000 | $0 |
| 2 | 2670-1535F | | 2.0000 | 87120.00 | 28.00 | 0.00 | 0.00 | $88,872 | $0 |
Roll Value History
| 2026 | N/A | N/A | N/A | N/A | N/A |
| 2025 | $0 | $318,872 | $0 | $318,872 | $318,872 |
| 2024 | $0 | $327,008 | $0 | $327,008 | $327,008 |
| 2023 | $0 | $312,144 | $0 | $312,144 | $312,144 |
| 2022 | $0 | $297,280 | $0 | $297,280 | $297,280 |
Deed and Sales History
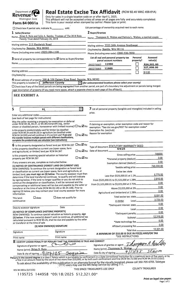
| 1 | 09/09/2025 | SWD | Statutory Warranty Deed | 2018 REIN FAMILY TRUST | THOMPSON R & PATRICIA L WALTON | | | $745,000.00 | 144958 | |
|   | |
| 2 | 05/10/2021 | SWD | Statutory Warranty Deed | GAB INC | 2018 REIN FAMILY TRUST | | | $300,000.00 | 136740 | |
| 3 | 03/23/2020 | BLA | Boundary Line Adjustment | GAB INC | GAB INC | | | | 134144 | |
| 4 | 12/07/2011 | QCD | Quit Claim Deed | G W BANDY INC A CALIFORNI | GAB INC A CALIFORNIA CORPORATI | 0 | 0 | $0.00 | 117066 | 0 |
Payout Agreement
| No payout information available.. |