Property
Account |
| Property ID: | 12001 | Abbreviated Legal Description: | S27 T30 R2W TAX 18(LESS TAX 22) |
| Parcel # / Geo ID: | 002273026 | Agent Code: | |
| Type: | Real | | |
| Tax Area: | 0781 - 1-323F8E8H2C3L1 | Land Use Code | 91 |
| Open Space: | N | DFL | N |
| Historic Property: | N | Remodel Property: | N |
| Multi-Family Redevelopment: | N | | |
| Township: | 30N | Section: | 27 |
| Range: | 2W |
Location |
| Address: | | Mapsco: | 121/015 |
| Neighborhood: | S27 & 28 T30 R2W, RONDELAY MEADOWS | Map ID: | |
| Neighborhood CD: | 2670 |
Owner |
| Name: | JAMESTOWN S'KLALLAM TRIBE | Owner ID: | 18952 |
| Mailing Address: | 1033 OLD BLYN HWY SEQUIM, WA 98382-7670 | % Ownership: | 100.0000000000% |
| | | Exemptions: | |
Pay Tax Due
Select the appropriate checkbox next to the year to be paid. Multiple years may be selected.
*Convenience Fee not included
Taxes and Assessment Details
Property Tax Information as of
03/12/2026
Click on "Statement Details" to expand or collapse a tax statement.
* Please enter a valid date ** Please enter a valid date *
Statement Details |
| 2026 | 1927 | STATE - STATE LEVY (SCHOOL) | $5.77 | $5.77 | $0.00 | $0.00 | $0.00 | $11.54 |
| 2026 | 1927 | COUNTY - COUNTY LEVIES (CE, DD, VET, MH) | $2.33 | $2.30 | $0.00 | $0.00 | $0.00 | $4.63 |
| 2026 | 1927 | CONSERVE - CONSERVATION FUTURES | $0.07 | $0.07 | $0.00 | $0.00 | $0.00 | $0.14 |
| 2026 | 1927 | COROADS - COUNTY ROADS (ROADS, DIV TO CE) | $1.86 | $1.86 | $0.00 | $0.00 | $0.00 | $3.72 |
| 2026 | 1927 | PORTPT - PORT DISTRICT | $0.94 | $0.92 | $0.00 | $0.00 | $0.00 | $1.86 |
| 2026 | 1927 | PUD1 - PUD #1 | $0.15 | $0.15 | $0.00 | $0.00 | $0.00 | $0.30 |
| 2026 | 1927 | LIB1 - LIBRARY DIST #1 | $0.72 | $0.72 | $0.00 | $0.00 | $0.00 | $1.44 |
| 2026 | 1927 | HD2 - HOSP DIST #2 | $0.14 | $0.13 | $0.00 | $0.00 | $0.00 | $0.27 |
| 2026 | 1927 | SD323 - SCHOOL DIST #323 | $4.63 | $4.63 | $0.00 | $0.00 | $0.00 | $9.26 |
| 2026 | 1927 | FD8 - FIRE DISTRICT #8 | $3.77 | $3.76 | $0.00 | $0.00 | $0.00 | $7.53 |
| 2026 | 1927 | EMS8 - FIRE DIST #8 EMS | $0.86 | $0.86 | $0.00 | $0.00 | $0.00 | $1.72 |
| 2026 | 1927 | CEM3 - CEMETERY DIST #3 | $0.07 | $0.06 | $0.00 | $0.00 | $0.00 | $0.13 |
| 2026 | 1927 | JCCD - JC Conservation District | $2.49 | $2.49 | $0.00 | $0.00 | $0.00 | $4.98 |
| 2026 | 1927 | NWA - Noxious Weed Assessment | $2.75 | $2.75 | $0.00 | $0.00 | $0.00 | $5.50 |
| 2026 | 1927 | WAT - Clean Water District | $13.00 | $13.00 | $0.00 | $0.00 | $0.00 | $26.00 |
| 2026 | 1927 | TOTAL: | $39.55 | $39.47 | $0.00 | $0.00 | $0.00 | $79.02 |
|
| 2026 | 1927 | $39.55 | $39.47 | $0.00 | $0.00 | $0.00 | $79.02 |
Statement Details |
| 2025 | 1933 | STATE - STATE LEVY (SCHOOL) | $5.77 | $5.75 | $0.00 | $0.00 | $11.52 | $0.00 |
| 2025 | 1933 | COUNTY - COUNTY LEVIES (CE, DD, VET, MH) | $2.29 | $2.25 | $0.00 | $0.00 | $4.54 | $0.00 |
| 2025 | 1933 | CONSERVE - CONSERVATION FUTURES | $0.07 | $0.07 | $0.00 | $0.00 | $0.14 | $0.00 |
| 2025 | 1933 | COROADS - COUNTY ROADS (ROADS, DIV TO CE) | $1.82 | $1.81 | $0.00 | $0.00 | $3.63 | $0.00 |
| 2025 | 1933 | PORTPT - PORT DISTRICT | $0.93 | $0.92 | $0.00 | $0.00 | $1.85 | $0.00 |
| 2025 | 1933 | PUD1 - PUD #1 | $0.15 | $0.15 | $0.00 | $0.00 | $0.30 | $0.00 |
| 2025 | 1933 | LIB1 - LIBRARY DIST #1 | $0.70 | $0.70 | $0.00 | $0.00 | $1.40 | $0.00 |
| 2025 | 1933 | HD2 - HOSP DIST #2 | $0.13 | $0.13 | $0.00 | $0.00 | $0.26 | $0.00 |
| 2025 | 1933 | SD323 - SCHOOL DIST #323 | $3.12 | $3.12 | $0.00 | $0.00 | $6.24 | $0.00 |
| 2025 | 1933 | FD8 - FIRE DISTRICT #8 | $2.67 | $2.67 | $0.00 | $0.00 | $5.34 | $0.00 |
| 2025 | 1933 | EMS8 - FIRE DIST #8 EMS | $0.85 | $0.84 | $0.00 | $0.00 | $1.69 | $0.00 |
| 2025 | 1933 | CEM3 - CEMETERY DIST #3 | $0.07 | $0.06 | $0.00 | $0.00 | $0.13 | $0.00 |
| 2025 | 1933 | WAT - Clean Water District | $13.00 | $13.00 | $0.00 | $0.00 | $26.00 | $0.00 |
| 2025 | 1933 | TOTAL: | $31.57 | $31.47 | $0.00 | $0.00 | $63.04 | $0.00 |
|
| 2025 | 1933 | $31.57 | $31.47 | $0.00 | $0.00 | $63.04 | $0.00 |
Statement Details |
| 2024 | 1940 | STATE - STATE LEVY (SCHOOL) | $5.30 | $5.30 | $0.00 | $0.00 | $10.60 | $0.00 |
| 2024 | 1940 | COUNTY - COUNTY LEVIES (CE, DD, VET, MH) | $2.29 | $2.26 | $0.00 | $0.00 | $4.55 | $0.00 |
| 2024 | 1940 | CONSERVE - CONSERVATION FUTURES | $0.07 | $0.07 | $0.00 | $0.00 | $0.14 | $0.00 |
| 2024 | 1940 | COROADS - COUNTY ROADS (ROADS, DIV TO CE) | $1.84 | $1.82 | $0.00 | $0.00 | $3.66 | $0.00 |
| 2024 | 1940 | PORTPT - PORT DISTRICT | $0.94 | $0.93 | $0.00 | $0.00 | $1.87 | $0.00 |
| 2024 | 1940 | PUD1 - PUD #1 | $0.15 | $0.15 | $0.00 | $0.00 | $0.30 | $0.00 |
| 2024 | 1940 | LIB1 - LIBRARY DIST #1 | $0.71 | $0.70 | $0.00 | $0.00 | $1.41 | $0.00 |
| 2024 | 1940 | HD2 - HOSP DIST #2 | $0.13 | $0.13 | $0.00 | $0.00 | $0.26 | $0.00 |
| 2024 | 1940 | SD323 - SCHOOL DIST #323 | $2.99 | $2.97 | $0.00 | $0.00 | $5.96 | $0.00 |
| 2024 | 1940 | FD8 - FIRE DISTRICT #8 | $2.57 | $2.56 | $0.00 | $0.00 | $5.13 | $0.00 |
| 2024 | 1940 | EMS8 - FIRE DIST #8 EMS | $0.81 | $0.81 | $0.00 | $0.00 | $1.62 | $0.00 |
| 2024 | 1940 | CEM3 - CEMETERY DIST #3 | $0.07 | $0.06 | $0.00 | $0.00 | $0.13 | $0.00 |
| 2024 | 1940 | WAT - Clean Water District | $12.50 | $12.50 | $0.00 | $0.00 | $25.00 | $0.00 |
| 2024 | 1940 | TOTAL: | $30.37 | $30.26 | $0.00 | $0.00 | $60.63 | $0.00 |
|
| 2024 | 1940 | $30.37 | $30.26 | $0.00 | $0.00 | $60.63 | $0.00 |
Statement Details |
| 2023 | 1941 | STATE - STATE LEVY (SCHOOL) | $5.14 | $5.13 | $0.00 | $0.00 | $10.27 | $0.00 |
| 2023 | 1941 | COUNTY - COUNTY LEVIES (CE, DD, VET, MH) | $2.27 | $2.23 | $0.00 | $0.00 | $4.50 | $0.00 |
| 2023 | 1941 | CONSERVE - CONSERVATION FUTURES | $0.07 | $0.06 | $0.00 | $0.00 | $0.13 | $0.00 |
| 2023 | 1941 | COROADS - COUNTY ROADS (ROADS, DIV TO CE) | $1.82 | $1.80 | $0.00 | $0.00 | $3.62 | $0.00 |
| 2023 | 1941 | PORTPT - PORT DISTRICT | $0.95 | $0.94 | $0.00 | $0.00 | $1.89 | $0.00 |
| 2023 | 1941 | PUD1 - PUD #1 | $0.15 | $0.15 | $0.00 | $0.00 | $0.30 | $0.00 |
| 2023 | 1941 | LIB1 - LIBRARY DIST #1 | $0.70 | $0.70 | $0.00 | $0.00 | $1.40 | $0.00 |
| 2023 | 1941 | HD2 - HOSP DIST #2 | $0.14 | $0.12 | $0.00 | $0.00 | $0.26 | $0.00 |
| 2023 | 1941 | SD323 - SCHOOL DIST #323 | $2.97 | $2.96 | $0.00 | $0.00 | $5.93 | $0.00 |
| 2023 | 1941 | FD8 - FIRE DISTRICT #8 | $2.47 | $2.47 | $0.00 | $0.00 | $4.94 | $0.00 |
| 2023 | 1941 | EMS8 - FIRE DIST #8 EMS | $0.81 | $0.81 | $0.00 | $0.00 | $1.62 | $0.00 |
| 2023 | 1941 | CEM3 - CEMETERY DIST #3 | $0.07 | $0.07 | $0.00 | $0.00 | $0.14 | $0.00 |
| 2023 | 1941 | WAT - Clean Water District | $12.00 | $12.00 | $0.00 | $0.00 | $24.00 | $0.00 |
| 2023 | 1941 | TOTAL: | $29.56 | $29.44 | $0.00 | $0.00 | $59.00 | $0.00 |
|
| 2023 | 1941 | $29.56 | $29.44 | $0.00 | $0.00 | $59.00 | $0.00 |
Values
| (+) Improvement Homesite Value: | + | $0 | |
| (+) Improvement Non-Homesite Value: | + | $0 | |
| (+) Land Homesite Value: | + | $0 | |
| (+) Land Non-Homesite Value: | + | $5,020 | |
| (+) Curr Use (HS): | + | $0 | $0 |
| (+) Curr Use (NHS): | + | $0 | $0 |
| | | -------------------------- | |
| (=) Market Value: | = | $5,020 | |
| (–) Productivity Loss: | – | $0 | |
| | | -------------------------- | |
| (=) Subtotal: | = | $5,020 | |
| (+) Senior Appraised Value: | + | $0 | |
| (+) Non-Senior Appraised Value: | + | $5,020 | |
| | | -------------------------- | |
| (=) Total Appraised Value: | = | $5,020 | |
| (–) Senior Exemption Loss: | – | $0 | |
| (–) Exemption Loss: | – | $0 | |
| | | -------------------------- | |
| (=) Taxable Value: | = | $5,020 | |
Taxing Jurisdiction
| Owner: | JAMESTOWN S'KLALLAM TRIBE | | |
| % Ownership: | 100.0000000000% | | |
| Total Value: | $5,020 | | |
| Tax Area: | 0781 - 1-323F8E8H2C3L1 |
| CE | COUNTY CURRENT EXPENSE | 0.9034619479 | $5,020 | $5,020 | $4.54 | | |
| CNTYDD | DEVELOPMENTAL DISABILITIES | 0.0052121823 | $5,020 | $5,020 | $0.03 | | |
| CNTYVET | VETERANS RELIEF | 0.0052777810 | $5,020 | $5,020 | $0.03 | | |
| MENTAL | MENTAL HEALTH | 0.0052121823 | $5,020 | $5,020 | $0.03 | | |
| ROADS | COUNTY ROADS | 0.7415066410 | $5,020 | $5,020 | $3.72 | | |
| ROADSCU | COUNTY ROADS TO CUR EXP | 0.0000000000 | $5,020 | $5,020 | $0.00 | | |
| HOSP2CASH | HOSP DIST #2 GENERAL | 0.0536075306 | $5,020 | $5,020 | $0.27 | | |
| SCH323BOND | SCHOOL DIST #323 BOND | 0.9080943643 | $5,020 | $5,020 | $4.56 | | |
| SCH323CP | SCHOOL DIST #323 CAP PROJ | 0.0000000000 | $5,020 | $5,020 | $0.00 | | |
| SCH323MO | SCHOOL DIST #323 EP & O | 0.9372055494 | $5,020 | $5,020 | $4.70 | | |
| CEM3 | CEMETERY DIST #3 GENERAL | 0.0249992283 | $5,020 | $5,020 | $0.13 | | |
| CONSERVE | CONSERVATION FUTURES | 0.0275621078 | $5,020 | $5,020 | $0.14 | | |
| EMS8 | FIRE DIST #8 EMS | 0.3434101125 | $5,020 | $5,020 | $1.72 | | |
| FD8 | FIRE DIST #8 GENERAL | 1.5000000000 | $5,020 | $5,020 | $7.53 | | |
| LIB1 | LIBRARY DIST #1 GENERAL | 0.2868827388 | $5,020 | $5,020 | $1.44 | | |
| PORTPT | PORT OF PT GENERAL | 0.1134941229 | $5,020 | $5,020 | $0.57 | | |
| PORTPTIDD | PORT OF PT IDD 2019 | 0.2577346692 | $5,020 | $5,020 | $1.29 | | |
| PUD1 | PUD #1 GENERAL | 0.0597888892 | $5,020 | $5,020 | $0.30 | | |
| STATE | STATE SCHOOL PART 1 | 1.4940692947 | $5,020 | $5,020 | $7.50 | | |
| STATE2 | STATE SCHOOL PART 2 | 0.8050170049 | $5,020 | $5,020 | $4.04 | | |
| | Total Tax Rate: | 8.4725363471 | | | | | |
| | | | | Taxes w/Current Exemptions: | $42.54 | | |
| | | | | Taxes w/o Exemptions: | $42.54 | | |
Improvement / Building
Sketch
| No sketches available for this property. |
Property Image
Land
| 1 | 9301F | | 0.0000 | 0.00 | 0.00 | 0.00 | 0.00 | $5,020 | $0 |
Roll Value History
| 2026 | N/A | N/A | N/A | N/A | N/A |
| 2025 | $0 | $5,020 | $0 | $5,020 | $5,020 |
| 2024 | $0 | $4,802 | $0 | $4,802 | $4,802 |
| 2023 | $0 | $4,583 | $0 | $4,583 | $4,583 |
| 2022 | $0 | $4,365 | $0 | $4,365 | $4,365 |
Deed and Sales History
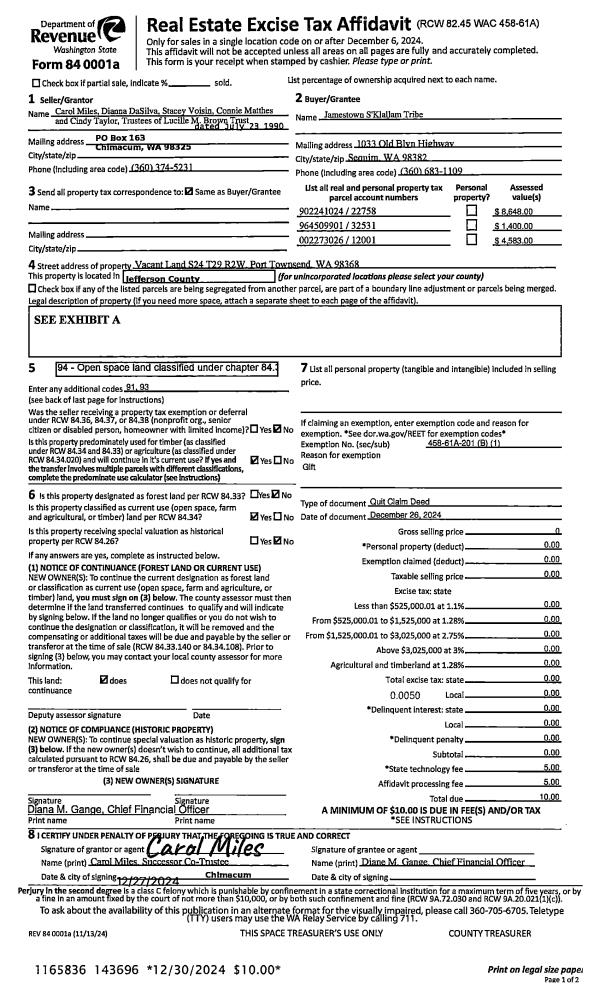
| 1 | 12/26/2024 | QCD | Quit Claim Deed | LUCILLE M BROWN TRUST | JAMESTOWN S'KLALLAM TRIBE | | | | 143696 | |
| 2 | 09/23/1991 | PRD | Personal Representatives Deed | STILLMAN BROWN ESTATE | LUCILLE M BROWN TRUST | | | | 66657 | |
Payout Agreement
| No payout information available.. |