Property
Account |
| Property ID: | 12029 | Abbreviated Legal Description: | S28 T30 R2W TAX 19 (LESS S 30') |
| Parcel # / Geo ID: | 002283019 | Agent Code: | |
| Type: | Real | | |
| Tax Area: | 0781 - 1-323F8E8H2C3L1 | Land Use Code | 11 |
| Open Space: | N | DFL | N |
| Historic Property: | N | Remodel Property: | N |
| Multi-Family Redevelopment: | N | | |
| Township: | 30N | Section: | 28 |
| Range: | 2W |
Location |
| Address: | 143 EAGLE CREEK RD SEQUIM, WA 98382 | Mapsco: | 121/046 |
| Neighborhood: | S27 & 28 T30 R2W, RONDELAY MEADOWS | Map ID: | |
| Neighborhood CD: | 2670 |
Owner |
| Name: | MICHAEL D & ROBERTA S PARIS | Owner ID: | 109960 |
| Mailing Address: | 143 EAGLE CREEK RD SEQUIM, WA 98382-8714 | % Ownership: | 100.0000000000% |
| | | Exemptions: | |
Pay Tax Due
Select the appropriate checkbox next to the year to be paid. Multiple years may be selected.
*Convenience Fee not included
Taxes and Assessment Details
Property Tax Information as of
03/10/2026
Click on "Statement Details" to expand or collapse a tax statement.
* Please enter a valid date ** Please enter a valid date *
Statement Details |
| 2026 | 1954 | STATE - STATE LEVY (SCHOOL) | $745.58 | $745.57 | $0.00 | $0.00 | $0.00 | $1491.15 |
| 2026 | 1954 | COUNTY - COUNTY LEVIES (CE, DD, VET, MH) | $298.08 | $298.07 | $0.00 | $0.00 | $0.00 | $596.15 |
| 2026 | 1954 | CONSERVE - CONSERVATION FUTURES | $8.94 | $8.94 | $0.00 | $0.00 | $0.00 | $17.88 |
| 2026 | 1954 | COROADS - COUNTY ROADS (ROADS, DIV TO CE) | $240.47 | $240.46 | $0.00 | $0.00 | $0.00 | $480.93 |
| 2026 | 1954 | PORTPT - PORT DISTRICT | $120.39 | $120.38 | $0.00 | $0.00 | $0.00 | $240.77 |
| 2026 | 1954 | PUD1 - PUD #1 | $19.39 | $19.39 | $0.00 | $0.00 | $0.00 | $38.78 |
| 2026 | 1954 | LIB1 - LIBRARY DIST #1 | $93.04 | $93.03 | $0.00 | $0.00 | $0.00 | $186.07 |
| 2026 | 1954 | HD2 - HOSP DIST #2 | $17.39 | $17.38 | $0.00 | $0.00 | $0.00 | $34.77 |
| 2026 | 1954 | SD323 - SCHOOL DIST #323 | $598.42 | $598.42 | $0.00 | $0.00 | $0.00 | $1196.84 |
| 2026 | 1954 | FD8 - FIRE DISTRICT #8 | $486.44 | $486.44 | $0.00 | $0.00 | $0.00 | $972.88 |
| 2026 | 1954 | EMS8 - FIRE DIST #8 EMS | $111.37 | $111.36 | $0.00 | $0.00 | $0.00 | $222.73 |
| 2026 | 1954 | CEM3 - CEMETERY DIST #3 | $8.11 | $8.10 | $0.00 | $0.00 | $0.00 | $16.21 |
| 2026 | 1954 | FP - DNR Forest Fire Protection Assmt | $8.50 | $8.50 | $0.00 | $0.00 | $0.00 | $17.00 |
| 2026 | 1954 | FPLCA - DNR Landowner Contingency Assmt | $3.00 | $3.00 | $0.00 | $0.00 | $0.00 | $6.00 |
| 2026 | 1954 | JCCD - JC Conservation District | $2.65 | $2.65 | $0.00 | $0.00 | $0.00 | $5.30 |
| 2026 | 1954 | NWA - Noxious Weed Assessment | $3.43 | $3.42 | $0.00 | $0.00 | $0.00 | $6.85 |
| 2026 | 1954 | OSS - On Site Septic | $23.10 | $23.10 | $0.00 | $0.00 | $0.00 | $46.20 |
| 2026 | 1954 | WAT - Clean Water District | $13.00 | $13.00 | $0.00 | $0.00 | $0.00 | $26.00 |
| 2026 | 1954 | FP ADMIN - FP ADMIN | $0.50 | $0.00 | $0.00 | $0.00 | $0.00 | $0.50 |
| 2026 | 1954 | TOTAL: | $2801.80 | $2801.21 | $0.00 | $0.00 | $0.00 | $5603.01 |
|
| 2026 | 1954 | $2801.80 | $2801.21 | $0.00 | $0.00 | $0.00 | $5603.01 |
Statement Details |
| 2025 | 1960 | STATE - STATE LEVY (SCHOOL) | $744.90 | $744.89 | $0.00 | $0.00 | $1489.79 | $0.00 |
| 2025 | 1960 | COUNTY - COUNTY LEVIES (CE, DD, VET, MH) | $292.93 | $292.91 | $0.00 | $0.00 | $585.84 | $0.00 |
| 2025 | 1960 | CONSERVE - CONSERVATION FUTURES | $8.79 | $8.78 | $0.00 | $0.00 | $17.57 | $0.00 |
| 2025 | 1960 | COROADS - COUNTY ROADS (ROADS, DIV TO CE) | $234.69 | $234.67 | $0.00 | $0.00 | $469.36 | $0.00 |
| 2025 | 1960 | PORTPT - PORT DISTRICT | $119.53 | $119.53 | $0.00 | $0.00 | $239.06 | $0.00 |
| 2025 | 1960 | PUD1 - PUD #1 | $19.17 | $19.16 | $0.00 | $0.00 | $38.33 | $0.00 |
| 2025 | 1960 | LIB1 - LIBRARY DIST #1 | $90.80 | $90.79 | $0.00 | $0.00 | $181.59 | $0.00 |
| 2025 | 1960 | HD2 - HOSP DIST #2 | $17.09 | $17.09 | $0.00 | $0.00 | $34.18 | $0.00 |
| 2025 | 1960 | SD323 - SCHOOL DIST #323 | $403.40 | $403.39 | $0.00 | $0.00 | $806.79 | $0.00 |
| 2025 | 1960 | FD8 - FIRE DISTRICT #8 | $345.65 | $345.65 | $0.00 | $0.00 | $691.30 | $0.00 |
| 2025 | 1960 | EMS8 - FIRE DIST #8 EMS | $109.28 | $109.28 | $0.00 | $0.00 | $218.56 | $0.00 |
| 2025 | 1960 | CEM3 - CEMETERY DIST #3 | $8.23 | $8.23 | $0.00 | $0.00 | $16.46 | $0.00 |
| 2025 | 1960 | FP - DNR Forest Fire Protection Assmt | $8.50 | $8.50 | $0.00 | $0.00 | $17.00 | $0.00 |
| 2025 | 1960 | FPLCA - DNR Landowner Contingency Assmt | $3.00 | $3.00 | $0.00 | $0.00 | $6.00 | $0.00 |
| 2025 | 1960 | JCCD - JC Conservation District | $2.65 | $2.65 | $0.00 | $0.00 | $5.30 | $0.00 |
| 2025 | 1960 | NWA - Noxious Weed Assessment | $2.45 | $2.45 | $0.00 | $0.00 | $4.90 | $0.00 |
| 2025 | 1960 | OSS - On Site Septic | $21.50 | $21.50 | $0.00 | $0.00 | $43.00 | $0.00 |
| 2025 | 1960 | WAT - Clean Water District | $13.00 | $13.00 | $0.00 | $0.00 | $26.00 | $0.00 |
| 2025 | 1960 | FP ADMIN - FP ADMIN | $0.50 | $0.00 | $0.00 | $0.00 | $0.50 | $0.00 |
| 2025 | 1960 | TOTAL: | $2446.06 | $2445.47 | $0.00 | $0.00 | $4891.53 | $0.00 |
|
| 2025 | 1960 | $2446.06 | $2445.47 | $0.00 | $0.00 | $4891.53 | $0.00 |
Statement Details |
| 2024 | 1967 | STATE - STATE LEVY (SCHOOL) | $748.95 | $748.93 | $0.00 | $0.00 | $1497.88 | $0.00 |
| 2024 | 1967 | COUNTY - COUNTY LEVIES (CE, DD, VET, MH) | $320.48 | $320.48 | $0.00 | $0.00 | $640.96 | $0.00 |
| 2024 | 1967 | CONSERVE - CONSERVATION FUTURES | $9.61 | $9.61 | $0.00 | $0.00 | $19.22 | $0.00 |
| 2024 | 1967 | COROADS - COUNTY ROADS (ROADS, DIV TO CE) | $257.89 | $257.87 | $0.00 | $0.00 | $515.76 | $0.00 |
| 2024 | 1967 | PORTPT - PORT DISTRICT | $132.37 | $132.37 | $0.00 | $0.00 | $264.74 | $0.00 |
| 2024 | 1967 | PUD1 - PUD #1 | $21.05 | $21.05 | $0.00 | $0.00 | $42.10 | $0.00 |
| 2024 | 1967 | LIB1 - LIBRARY DIST #1 | $99.77 | $99.77 | $0.00 | $0.00 | $199.54 | $0.00 |
| 2024 | 1967 | HD2 - HOSP DIST #2 | $18.70 | $18.70 | $0.00 | $0.00 | $37.40 | $0.00 |
| 2024 | 1967 | SD323 - SCHOOL DIST #323 | $421.30 | $421.29 | $0.00 | $0.00 | $842.59 | $0.00 |
| 2024 | 1967 | FD8 - FIRE DISTRICT #8 | $362.57 | $362.56 | $0.00 | $0.00 | $725.13 | $0.00 |
| 2024 | 1967 | EMS8 - FIRE DIST #8 EMS | $114.66 | $114.65 | $0.00 | $0.00 | $229.31 | $0.00 |
| 2024 | 1967 | CEM3 - CEMETERY DIST #3 | $9.22 | $9.21 | $0.00 | $0.00 | $18.43 | $0.00 |
| 2024 | 1967 | FP - DNR Forest Fire Protection Assmt | $8.50 | $8.50 | $0.00 | $0.00 | $17.00 | $0.00 |
| 2024 | 1967 | FPLCA - DNR Landowner Contingency Assmt | $3.00 | $3.00 | $0.00 | $0.00 | $6.00 | $0.00 |
| 2024 | 1967 | JCCD - JC Conservation District | $2.65 | $2.65 | $0.00 | $0.00 | $5.30 | $0.00 |
| 2024 | 1967 | NWA - Noxious Weed Assessment | $2.45 | $2.45 | $0.00 | $0.00 | $4.90 | $0.00 |
| 2024 | 1967 | OSS - On Site Septic | $21.00 | $21.00 | $0.00 | $0.00 | $42.00 | $0.00 |
| 2024 | 1967 | WAT - Clean Water District | $12.50 | $12.50 | $0.00 | $0.00 | $25.00 | $0.00 |
| 2024 | 1967 | FP ADMIN - FP ADMIN | $0.50 | $0.00 | $0.00 | $0.00 | $0.50 | $0.00 |
| 2024 | 1967 | TOTAL: | $2567.17 | $2566.59 | $0.00 | $0.00 | $5133.76 | $0.00 |
|
| 2024 | 1967 | $2567.17 | $2566.59 | $0.00 | $0.00 | $5133.76 | $0.00 |
Statement Details |
| 2023 | 1968 | STATE - STATE LEVY (SCHOOL) | $687.57 | $687.55 | $0.00 | $0.00 | $1375.12 | $0.00 |
| 2023 | 1968 | COUNTY - COUNTY LEVIES (CE, DD, VET, MH) | $300.05 | $300.02 | $0.00 | $0.00 | $600.07 | $0.00 |
| 2023 | 1968 | CONSERVE - CONSERVATION FUTURES | $9.00 | $8.99 | $0.00 | $0.00 | $17.99 | $0.00 |
| 2023 | 1968 | COROADS - COUNTY ROADS (ROADS, DIV TO CE) | $242.75 | $242.74 | $0.00 | $0.00 | $485.49 | $0.00 |
| 2023 | 1968 | PORTPT - PORT DISTRICT | $126.40 | $126.38 | $0.00 | $0.00 | $252.78 | $0.00 |
| 2023 | 1968 | PUD1 - PUD #1 | $19.89 | $19.89 | $0.00 | $0.00 | $39.78 | $0.00 |
| 2023 | 1968 | LIB1 - LIBRARY DIST #1 | $93.92 | $93.91 | $0.00 | $0.00 | $187.83 | $0.00 |
| 2023 | 1968 | HD2 - HOSP DIST #2 | $17.52 | $17.50 | $0.00 | $0.00 | $35.02 | $0.00 |
| 2023 | 1968 | SD323 - SCHOOL DIST #323 | $396.61 | $396.61 | $0.00 | $0.00 | $793.22 | $0.00 |
| 2023 | 1968 | FD8 - FIRE DISTRICT #8 | $330.58 | $330.58 | $0.00 | $0.00 | $661.16 | $0.00 |
| 2023 | 1968 | EMS8 - FIRE DIST #8 EMS | $108.10 | $108.09 | $0.00 | $0.00 | $216.19 | $0.00 |
| 2023 | 1968 | CEM3 - CEMETERY DIST #3 | $9.41 | $9.40 | $0.00 | $0.00 | $18.81 | $0.00 |
| 2023 | 1968 | FP - DNR Forest Fire Protection Assmt | $8.50 | $8.50 | $0.00 | $0.00 | $17.00 | $0.00 |
| 2023 | 1968 | FPLCA - DNR Landowner Contingency Assmt | $3.00 | $3.00 | $0.00 | $0.00 | $6.00 | $0.00 |
| 2023 | 1968 | JCCD - JC Conservation District | $2.65 | $2.65 | $0.00 | $0.00 | $5.30 | $0.00 |
| 2023 | 1968 | NWA - Noxious Weed Assessment | $2.45 | $2.45 | $0.00 | $0.00 | $4.90 | $0.00 |
| 2023 | 1968 | OSS - On Site Septic | $20.50 | $20.50 | $0.00 | $0.00 | $41.00 | $0.00 |
| 2023 | 1968 | WAT - Clean Water District | $12.00 | $12.00 | $0.00 | $0.00 | $24.00 | $0.00 |
| 2023 | 1968 | FP ADMIN - FP ADMIN | $0.50 | $0.00 | $0.00 | $0.00 | $0.50 | $0.00 |
| 2023 | 1968 | TOTAL: | $2391.40 | $2390.76 | $0.00 | $0.00 | $4782.16 | $0.00 |
|
| 2023 | 1968 | $2391.40 | $2390.76 | $0.00 | $0.00 | $4782.16 | $0.00 |
Values
| (+) Improvement Homesite Value: | + | $479,910 | |
| (+) Improvement Non-Homesite Value: | + | $0 | |
| (+) Land Homesite Value: | + | $168,676 | |
| (+) Land Non-Homesite Value: | + | $0 | |
| (+) Curr Use (HS): | + | $0 | $0 |
| (+) Curr Use (NHS): | + | $0 | $0 |
| | | -------------------------- | |
| (=) Market Value: | = | $648,586 | |
| (–) Productivity Loss: | – | $0 | |
| | | -------------------------- | |
| (=) Subtotal: | = | $648,586 | |
| (+) Senior Appraised Value: | + | $0 | |
| (+) Non-Senior Appraised Value: | + | $648,586 | |
| | | -------------------------- | |
| (=) Total Appraised Value: | = | $648,586 | |
| (–) Senior Exemption Loss: | – | $0 | |
| (–) Exemption Loss: | – | $0 | |
| | | -------------------------- | |
| (=) Taxable Value: | = | $648,586 | |
Taxing Jurisdiction
| Owner: | MICHAEL D & ROBERTA S PARIS | | |
| % Ownership: | 100.0000000000% | | |
| Total Value: | $648,586 | | |
| Tax Area: | 0781 - 1-323F8E8H2C3L1 |
| CE | COUNTY CURRENT EXPENSE | 0.9034619479 | $648,586 | $648,586 | $585.97 | | |
| CNTYDD | DEVELOPMENTAL DISABILITIES | 0.0052121823 | $648,586 | $648,586 | $3.38 | | |
| CNTYVET | VETERANS RELIEF | 0.0052777810 | $648,586 | $648,586 | $3.42 | | |
| MENTAL | MENTAL HEALTH | 0.0052121823 | $648,586 | $648,586 | $3.38 | | |
| ROADS | COUNTY ROADS | 0.7415066410 | $648,586 | $648,586 | $480.93 | | |
| ROADSCU | COUNTY ROADS TO CUR EXP | 0.0000000000 | $648,586 | $648,586 | $0.00 | | |
| HOSP2CASH | HOSP DIST #2 GENERAL | 0.0536075306 | $648,586 | $648,586 | $34.77 | | |
| SCH323BOND | SCHOOL DIST #323 BOND | 0.9080943643 | $648,586 | $648,586 | $588.98 | | |
| SCH323CP | SCHOOL DIST #323 CAP PROJ | 0.0000000000 | $648,586 | $648,586 | $0.00 | | |
| SCH323MO | SCHOOL DIST #323 EP & O | 0.9372055494 | $648,586 | $648,586 | $607.86 | | |
| CEM3 | CEMETERY DIST #3 GENERAL | 0.0249992283 | $648,586 | $648,586 | $16.21 | | |
| CONSERVE | CONSERVATION FUTURES | 0.0275621078 | $648,586 | $648,586 | $17.88 | | |
| EMS8 | FIRE DIST #8 EMS | 0.3434101125 | $648,586 | $648,586 | $222.73 | | |
| FD8 | FIRE DIST #8 GENERAL | 1.5000000000 | $648,586 | $648,586 | $972.88 | | |
| LIB1 | LIBRARY DIST #1 GENERAL | 0.2868827388 | $648,586 | $648,586 | $186.07 | | |
| PORTPT | PORT OF PT GENERAL | 0.1134941229 | $648,586 | $648,586 | $73.61 | | |
| PORTPTIDD | PORT OF PT IDD 2019 | 0.2577346692 | $648,586 | $648,586 | $167.16 | | |
| PUD1 | PUD #1 GENERAL | 0.0597888892 | $648,586 | $648,586 | $38.78 | | |
| STATE | STATE SCHOOL PART 1 | 1.4940692947 | $648,586 | $648,586 | $969.03 | | |
| STATE2 | STATE SCHOOL PART 2 | 0.8050170049 | $648,586 | $648,586 | $522.12 | | |
| | Total Tax Rate: | 8.4725363471 | | | | | |
| | | | | Taxes w/Current Exemptions: | $5,495.16 | | |
| | | | | Taxes w/o Exemptions: | $5,495.16 | | |
Improvement / Building
| Improvement #1: | Residential Bldg | State Code: | 11 | 1496.0 sqft | Value: | $479,910 |
| Bathrooms (#): | 2 (FULL) | Bedrooms (#): | 2 | | Exterior Wall: | SI/ST | Fireplace: | WD ST-GOOD | | Floor Construction: | FRAME | Foundation: | CONPR | | Heating/Cooling: | ELBB | Roof Cover: | METAL |
|
| | Type | Description | Class CD | Sub Class CD | Year Built | Area |
| | MA | Main Area | 4+ | 1S | 2003 | 1496.0 |
| | HDECK | House Deck | 4 | * | 2003 | 120.0 |
| | HWPOR | House Wood Porch | 4 | * | 2003 | 80.0 |
| | GDET | Detached Garage | 4 | 1S | 2003 | 1080.0 |
| | SHED | Shed (Table Not Dep) | 4 | * | 2003 | 224.0 |
| | HENCL | House Enclosure | 5 | 1S | 2020 | 90.0 |
| | HWPOR | House Wood Porch | 1 | * | 2003 | 32.0 |
Sketch
Property Image
Land
| 1 | 2670-1372S | | 1.0000 | 43560.00 | 0.00 | 0.00 | 1.00 | $138,000 | $0 |
| 2 | 1572A | | 1.9400 | 84506.40 | 0.00 | 0.00 | 0.00 | $30,676 | $0 |
Roll Value History
| 2026 | N/A | N/A | N/A | N/A | N/A |
| 2025 | $479,910 | $168,676 | $0 | $648,586 | $648,586 |
| 2024 | $459,914 | $161,343 | $0 | $621,257 | $621,257 |
| 2023 | $500,196 | $147,231 | $0 | $647,427 | $647,427 |
| 2022 | $454,724 | $129,400 | $0 | $584,124 | $584,124 |
Deed and Sales History
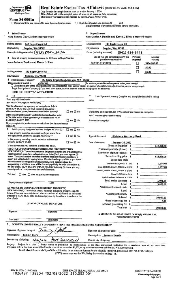
| 1 | 10/26/2023 | SWD | Statutory Warranty Deed | JANICE A DUNKIN & KAREN L RIESS | MICHAEL D & ROBERTA S PARIS | | | $620,000.00 | 141818 | |
| 2 | 01/26/2022 | SWD | Statutory Warranty Deed | TAMMY CLARK | JANICE A DUNKIN & KAREN L RIESS | | | $615,000.00 | 138504 | |
| 3 | 12/15/2015 | QCD | Quit Claim Deed | | | | | | 124561 | |
| 4 | 11/06/2014 | SWD | Statutory Warranty Deed | ORION & KHRISTA JONES | ALLEN & TAMMY CLARK | | | $245,000.00 | 122222 | |
| 5 | 07/09/2014 | SWD | Statutory Warranty Deed | KENNETH L HILLS | ORION & KHRISTA JONES | | | $221,375.00 | 121573 | |
| 6 | 01/16/2002 | SWD | Statutory Warranty Deed | NELSON, HARRY | HILLS, KENNETH L | 0 | 0 | $34,000.00 | 93925 | 0 |
Payout Agreement
| No payout information available.. |