Property
Account |
| Property ID: | 12059 | Abbreviated Legal Description: | HANLON SHORT PLAT LOT 2 SUBJ/OPEN SPACE TRACT |
| Parcel # / Geo ID: | 002284021 | Agent Code: | |
| Type: | Real | | |
| Tax Area: | 0781 - 1-323F8E8H2C3L1 | Land Use Code | 11 |
| Open Space: | N | DFL | N |
| Historic Property: | N | Remodel Property: | N |
| Multi-Family Redevelopment: | N | | |
| Township: | 30N | Section: | 28 |
| Range: | 2W |
Location |
| Address: | 1368 GARDINER BEACH RD SEQUIM, WA 98382 | Mapsco: | 131/002 |
| Neighborhood: | S27 & 28 T30 R2W, RONDELAY MEADOWS | Map ID: | |
| Neighborhood CD: | 2670 |
Owner |
| Name: | MORFORD COLLINS LIVING TRUST | Owner ID: | 103408 |
| Mailing Address: | WAYNE A MORFORD TRUSTEE CHERYL S COLLINS TRUSTEE 1368 GARDINER BEACH RD SEQUIM, WA 98382-8770 | % Ownership: | 100.0000000000% |
| | | Exemptions: | |
Pay Tax Due
There is currently No Amount Due on this property.
Taxes and Assessment Details
Property Tax Information as of
03/09/2026
Click on "Statement Details" to expand or collapse a tax statement.
* Please enter a valid date ** Please enter a valid date *
Statement Details |
| | TOTAL: | $0.00 | $0.00 | $0.00 | $0.00 | $0.00 | $0.00 |
|
| | $0.00 | $0.00 | $0.00 | $0.00 | $0.00 | $0.00 |
Values
| (+) Improvement Homesite Value: | + | $0 | |
| (+) Improvement Non-Homesite Value: | + | $592,187 | |
| (+) Land Homesite Value: | + | $0 | |
| (+) Land Non-Homesite Value: | + | $256,594 | |
| (+) Curr Use (HS): | + | $0 | $0 |
| (+) Curr Use (NHS): | + | $0 | $0 |
| | | -------------------------- | |
| (=) Market Value: | = | $848,781 | |
| (–) Productivity Loss: | – | $0 | |
| | | -------------------------- | |
| (=) Subtotal: | = | $848,781 | |
| (+) Senior Appraised Value: | + | $0 | |
| (+) Non-Senior Appraised Value: | + | $848,781 | |
| | | -------------------------- | |
| (=) Total Appraised Value: | = | $848,781 | |
| (–) Senior Exemption Loss: | – | $0 | |
| (–) Exemption Loss: | – | $0 | |
| | | -------------------------- | |
| (=) Taxable Value: | = | $848,781 | |
Taxing Jurisdiction
| Owner: | MORFORD COLLINS LIVING TRUST | | |
| % Ownership: | 100.0000000000% | | |
| Total Value: | $848,781 | | |
| Tax Area: | 0781 - 1-323F8E8H2C3L1 |
| CE | COUNTY CURRENT EXPENSE | 0.9034619479 | $848,781 | $848,781 | $766.84 | | |
| CNTYDD | DEVELOPMENTAL DISABILITIES | 0.0052121823 | $848,781 | $848,781 | $4.42 | | |
| CNTYVET | VETERANS RELIEF | 0.0052777810 | $848,781 | $848,781 | $4.48 | | |
| MENTAL | MENTAL HEALTH | 0.0052121823 | $848,781 | $848,781 | $4.42 | | |
| ROADS | COUNTY ROADS | 0.7415066410 | $848,781 | $848,781 | $629.38 | | |
| ROADSCU | COUNTY ROADS TO CUR EXP | 0.0000000000 | $848,781 | $848,781 | $0.00 | | |
| HOSP2CASH | HOSP DIST #2 GENERAL | 0.0536075306 | $848,781 | $848,781 | $45.50 | | |
| SCH323BOND | SCHOOL DIST #323 BOND | 0.9080943643 | $848,781 | $848,781 | $770.77 | | |
| SCH323CP | SCHOOL DIST #323 CAP PROJ | 0.0000000000 | $848,781 | $848,781 | $0.00 | | |
| SCH323MO | SCHOOL DIST #323 EP & O | 0.9372055494 | $848,781 | $848,781 | $795.48 | | |
| CEM3 | CEMETERY DIST #3 GENERAL | 0.0249992283 | $848,781 | $848,781 | $21.22 | | |
| CONSERVE | CONSERVATION FUTURES | 0.0275621078 | $848,781 | $848,781 | $23.39 | | |
| EMS8 | FIRE DIST #8 EMS | 0.3434101125 | $848,781 | $848,781 | $291.48 | | |
| FD8 | FIRE DIST #8 GENERAL | 1.5000000000 | $848,781 | $848,781 | $1,273.17 | | |
| LIB1 | LIBRARY DIST #1 GENERAL | 0.2868827388 | $848,781 | $848,781 | $243.50 | | |
| PORTPT | PORT OF PT GENERAL | 0.1134941229 | $848,781 | $848,781 | $96.33 | | |
| PORTPTIDD | PORT OF PT IDD 2019 | 0.2577346692 | $848,781 | $848,781 | $218.76 | | |
| PUD1 | PUD #1 GENERAL | 0.0597888892 | $848,781 | $848,781 | $50.75 | | |
| STATE | STATE SCHOOL PART 1 | 1.4940692947 | $848,781 | $848,781 | $1,268.14 | | |
| STATE2 | STATE SCHOOL PART 2 | 0.8050170049 | $848,781 | $848,781 | $683.28 | | |
| | Total Tax Rate: | 8.4725363471 | | | | | |
| | | | | Taxes w/Current Exemptions: | $7,191.31 | | |
| | | | | Taxes w/o Exemptions: | $7,191.31 | | |
Improvement / Building
| Improvement #1: | Residential Bldg | State Code: | 11 | 1363.0 sqft | Value: | $592,187 |
| Bathrooms (#): | 2 (FULL) | Bedrooms (#): | 2 | | Exterior Wall: | SI/ST | Foundation: | CONPR | | Heating/Cooling: | ELBB | Roof Cover: | METAL |
|
| | Type | Description | Class CD | Sub Class CD | Year Built | Area |
| | MA | Main Area | 6- | 15SF | 2020 | 1363.0 |
| | HLOFT | House Loft | 6 | 15SF | 2020 | 220.0 |
| | HWPOR | House Wood Porch | 5 | * | 2020 | 48.0 |
| | PATIO | House Patio | 5 | * | 2020 | 356.0 |
| | GATT | House Attached Garage | 5 | * | 2020 | 550.0 |
| | CARPTN | Carport W/O Floor | 5 | * | 2020 | 300.0 |
| | SHED | Shed (Table Not Dep) | 4 | * | 2020 | 80.0 |
Sketch
Property Image
Land
| 1 | 2670-1371S | V Good Wtr/Mtn View Sites 1+/- Acre | 1.0000 | 43560.00 | 0.00 | 0.00 | 1.00 | $172,500 | $0 |
| 2 | 1571A | Terr/Mtn/No View <6 Acres | 4.5000 | 196020.00 | 0.00 | 0.00 | 0.00 | $84,094 | $0 |
Roll Value History
| 2026 | N/A | N/A | N/A | N/A | N/A |
| 2025 | $592,187 | $256,594 | $0 | $848,781 | $848,781 |
| 2024 | $567,512 | $245,438 | $0 | $812,950 | $812,950 |
| 2023 | $542,838 | $225,488 | $0 | $768,326 | $768,326 |
| 2022 | $493,489 | $203,000 | $0 | $696,489 | $696,489 |
Deed and Sales History
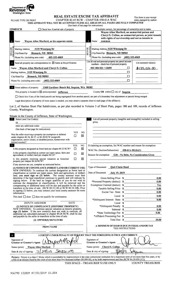
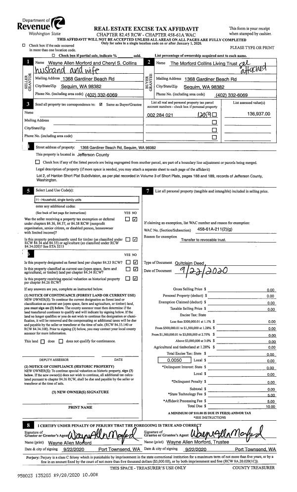
| 1 | 09/22/2020 | QCD | Quit Claim Deed | WAYNE A MORFORD | MORFORD COLLINS LIVING TRUST | | | | 135203 | |
| 2 | 07/19/2019 | QCD | Quit Claim Deed | WAYNE A MORFORD | WAYNE A MORFORD | | | | 132809 | |
| 3 | 10/07/2017 | SWD | Statutory Warranty Deed | DONALD & TOMMY MOFFETT | WAYNE A MORFORD | | | $155,000.00 | 128755 | |
| 4 | 08/24/2017 | QCD | Quit Claim Deed | DONALD MOFFETT | DONALD & TOMMY MOFFETT | | | | 128376 | |
| 5 | 08/24/2017 | LOP | Lack of Probate | | | | | | 128375 | |
| 6 | 04/25/2001 | SWD | Statutory Warranty Deed | WOOD, THOMAS E/SANDRA S | MOFFETT, DONALD OWEN/PATRICIA | 0 | 0 | $87,000.00 | 92061 | 0 |
| 7 | 10/01/1996 | SWD | Statutory Warranty Deed | HANLON, CARL/NANCY | WOOD, THOMAS E/SANDRA S | 0 | 0 | $49,000.00 | 80551 | 0 |
Payout Agreement
| No payout information available.. |