Property
Account |
| Property ID: | 12127 | Abbreviated Legal Description: | WILKERSON SHORT PLAT LOT 4 |
| Parcel # / Geo ID: | 002332031 | Agent Code: | |
| Type: | Real | | |
| Tax Area: | 0781 - 1-323F8E8H2C3L1 | Land Use Code | 11 |
| Open Space: | N | DFL | N |
| Historic Property: | N | Remodel Property: | N |
| Multi-Family Redevelopment: | N | | |
| Township: | 30N | Section: | 33 |
| Range: | 2W |
Location |
| Address: | 201 OLD GARDINER RD SEQUIM, WA 98382 | Mapsco: | 139/039 |
| Neighborhood: | S33 T30N R2W | Map ID: | |
| Neighborhood CD: | 2675 |
Owner |
| Name: | DANIEL & MELISSA CLEMONS | Owner ID: | 102141 |
| Mailing Address: | 201 OLD GARDINER RD SEQUIM, WA 98382-8742 | % Ownership: | 100.0000000000% |
| | | Exemptions: | |
Pay Tax Due
There is currently No Amount Due on this property.
Taxes and Assessment Details
Property Tax Information as of
03/12/2026
Click on "Statement Details" to expand or collapse a tax statement.
* Please enter a valid date ** Please enter a valid date *
Statement Details |
| | TOTAL: | $0.00 | $0.00 | $0.00 | $0.00 | $0.00 | $0.00 |
|
| | $0.00 | $0.00 | $0.00 | $0.00 | $0.00 | $0.00 |
Values
| (+) Improvement Homesite Value: | + | $0 | |
| (+) Improvement Non-Homesite Value: | + | $24,740 | |
| (+) Land Homesite Value: | + | $0 | |
| (+) Land Non-Homesite Value: | + | $129,231 | |
| (+) Curr Use (HS): | + | $0 | $0 |
| (+) Curr Use (NHS): | + | $0 | $0 |
| | | -------------------------- | |
| (=) Market Value: | = | $153,971 | |
| (–) Productivity Loss: | – | $0 | |
| | | -------------------------- | |
| (=) Subtotal: | = | $153,971 | |
| (+) Senior Appraised Value: | + | $0 | |
| (+) Non-Senior Appraised Value: | + | $153,971 | |
| | | -------------------------- | |
| (=) Total Appraised Value: | = | $153,971 | |
| (–) Senior Exemption Loss: | – | $0 | |
| (–) Exemption Loss: | – | $0 | |
| | | -------------------------- | |
| (=) Taxable Value: | = | $153,971 | |
Taxing Jurisdiction
| Owner: | DANIEL & MELISSA CLEMONS | | |
| % Ownership: | 100.0000000000% | | |
| Total Value: | $153,971 | | |
| Tax Area: | 0781 - 1-323F8E8H2C3L1 |
| CE | COUNTY CURRENT EXPENSE | 0.9034619479 | $153,971 | $153,971 | $139.11 | | |
| CNTYDD | DEVELOPMENTAL DISABILITIES | 0.0052121823 | $153,971 | $153,971 | $0.80 | | |
| CNTYVET | VETERANS RELIEF | 0.0052777810 | $153,971 | $153,971 | $0.81 | | |
| MENTAL | MENTAL HEALTH | 0.0052121823 | $153,971 | $153,971 | $0.80 | | |
| ROADS | COUNTY ROADS | 0.7415066410 | $153,971 | $153,971 | $114.17 | | |
| ROADSCU | COUNTY ROADS TO CUR EXP | 0.0000000000 | $153,971 | $153,971 | $0.00 | | |
| HOSP2CASH | HOSP DIST #2 GENERAL | 0.0536075306 | $153,971 | $153,971 | $8.25 | | |
| SCH323BOND | SCHOOL DIST #323 BOND | 0.9080943643 | $153,971 | $153,971 | $139.82 | | |
| SCH323CP | SCHOOL DIST #323 CAP PROJ | 0.0000000000 | $153,971 | $153,971 | $0.00 | | |
| SCH323MO | SCHOOL DIST #323 EP & O | 0.9372055494 | $153,971 | $153,971 | $144.30 | | |
| CEM3 | CEMETERY DIST #3 GENERAL | 0.0249992283 | $153,971 | $153,971 | $3.85 | | |
| CONSERVE | CONSERVATION FUTURES | 0.0275621078 | $153,971 | $153,971 | $4.24 | | |
| EMS8 | FIRE DIST #8 EMS | 0.3434101125 | $153,971 | $153,971 | $52.88 | | |
| FD8 | FIRE DIST #8 GENERAL | 1.5000000000 | $153,971 | $153,971 | $230.96 | | |
| LIB1 | LIBRARY DIST #1 GENERAL | 0.2868827388 | $153,971 | $153,971 | $44.17 | | |
| PORTPT | PORT OF PT GENERAL | 0.1134941229 | $153,971 | $153,971 | $17.47 | | |
| PORTPTIDD | PORT OF PT IDD 2019 | 0.2577346692 | $153,971 | $153,971 | $39.68 | | |
| PUD1 | PUD #1 GENERAL | 0.0597888892 | $153,971 | $153,971 | $9.21 | | |
| STATE | STATE SCHOOL PART 1 | 1.4940692947 | $153,971 | $153,971 | $230.04 | | |
| STATE2 | STATE SCHOOL PART 2 | 0.8050170049 | $153,971 | $153,971 | $123.95 | | |
| | Total Tax Rate: | 8.4725363471 | | | | | |
| | | | | Taxes w/Current Exemptions: | $1,304.51 | | |
| | | | | Taxes w/o Exemptions: | $1,304.51 | | |
Improvement / Building
| Improvement #1: | Residential Bldg | State Code: | 11 | 1424.0 sqft | Value: | $24,740 |
| Bathrooms (#): | 1 (FULL) | Bedrooms (#): | 2 | | Exterior Wall: | PL/T1 | Floor Construction: | FRAME | | Foundation: | PO&BL | Heating/Cooling: | WD/NO | | Interior Finish: | FIN | Roof Cover: | ROLL |
|
| | Type | Description | Class CD | Sub Class CD | Year Built | Area |
| | MA | Main Area | 2 | C15U | 1987 | 976.0 |
| | MA2 | Second Floor Main Area | 2 | C15U | 1987 | 448.0 |
| | CDECK | Cabin Deck | 2 | * | 1987 | 194.0 |
Sketch
Property Image
Land
| 1 | 2675-1372S | V Good Terr View Sites 1+ Acre | 1.0000 | 43560.00 | 0.00 | 0.00 | 1.00 | $127,650 | $0 |
| 2 | 1572A | Terr/Mtn/No View <6 Acres | 0.1000 | 4356.00 | 0.00 | 0.00 | 0.00 | $1,581 | $0 |
Roll Value History
| 2026 | N/A | N/A | N/A | N/A | N/A |
| 2025 | $24,740 | $129,231 | $0 | $153,971 | $153,971 |
| 2024 | $23,710 | $123,613 | $0 | $147,323 | $147,323 |
| 2023 | $22,679 | $112,665 | $0 | $135,344 | $135,344 |
| 2022 | $15,346 | $85,475 | $0 | $100,821 | $100,821 |
Deed and Sales History
| 1 | 01/30/2023 | REC | Real Estate Contract | JEREMY PANTER | DANIEL & MELISSA CLEMONS | | | $159,120.00 | 140551 | |
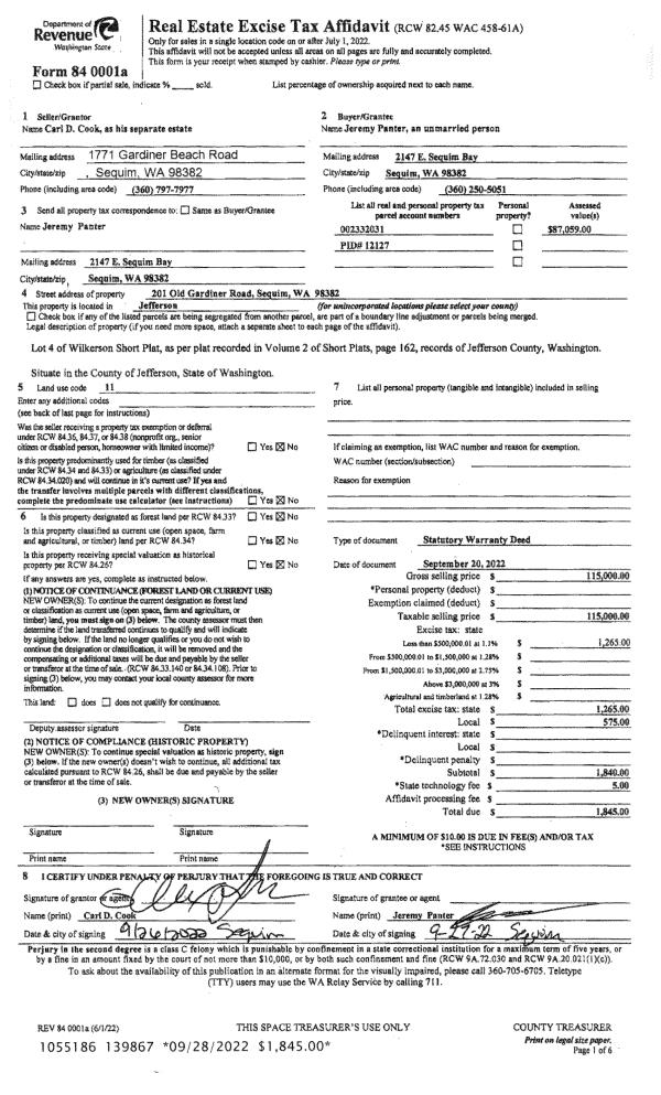
| 2 | 09/20/2022 | SWD | Statutory Warranty Deed | CARL COOK | JEREMY PANTER | | | $115,000.00 | 139867 | |
| 3 | 04/30/1991 | QCD | Quit Claim Deed | WILKERSON, WILLIAM E/MARS | COOK, DEBRA A/CARL D | 0 | 0 | $0.00 | 72795 | 0 |
Payout Agreement
| No payout information available.. |