Property
Account |
| Property ID: | 12227 | Abbreviated Legal Description: | S34 T30N R2W TAX 27(ENLG)LESS N25') |
| Parcel # / Geo ID: | 002342032 | Agent Code: | |
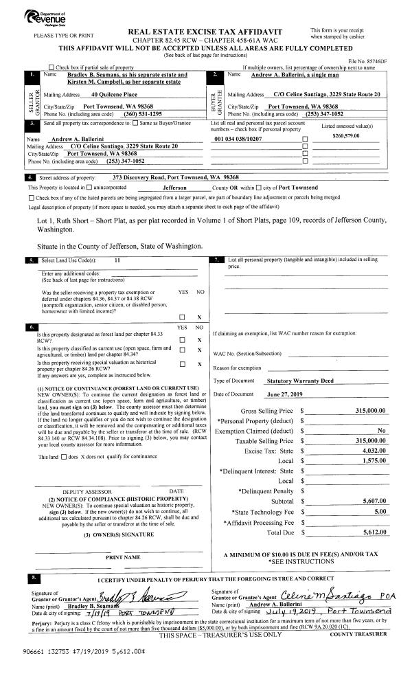
| Type: | Real | | |
| Tax Area: | 0781 - 1-323F8E8H2C3L1 | Land Use Code | 11 |
| Open Space: | N | DFL | N |
| Historic Property: | N | Remodel Property: | N |
| Multi-Family Redevelopment: | N | | |
| Township: | 30N | Section: | 34 |
| Range: | 2W |
Location |
| Address: | 781 GARDINER BEACH RD SEQUIM, WA 98382 | Mapsco: | 124/039 |
| Neighborhood: | S34 T30 R2W | Map ID: | |
| Neighborhood CD: | 2680 |
Owner |
| Name: | ANNE M SLINN | Owner ID: | 105226 |
| Mailing Address: | ANTHONY G SLINN GEORGE SLINN FAMILY TRUST G SLINN TRSTEE 385 GARDINER BEACH RD SEQUIM, WA 98382-8725 | % Ownership: | 100.0000000000% |
| | | Exemptions: | |
Pay Tax Due
Select the appropriate checkbox next to the year to be paid. Multiple years may be selected.
*Convenience Fee not included
Taxes and Assessment Details
Property Tax Information as of
03/10/2026
Click on "Statement Details" to expand or collapse a tax statement.
* Please enter a valid date ** Please enter a valid date *
Statement Details |
| 2026 | 2146 | STATE - STATE LEVY (SCHOOL) | $283.77 | $283.76 | $0.00 | $0.00 | $0.00 | $567.53 |
| 2026 | 2146 | COUNTY - COUNTY LEVIES (CE, DD, VET, MH) | $113.46 | $113.44 | $0.00 | $0.00 | $0.00 | $226.90 |
| 2026 | 2146 | CONSERVE - CONSERVATION FUTURES | $3.40 | $3.40 | $0.00 | $0.00 | $0.00 | $6.80 |
| 2026 | 2146 | COROADS - COUNTY ROADS (ROADS, DIV TO CE) | $91.52 | $91.52 | $0.00 | $0.00 | $0.00 | $183.04 |
| 2026 | 2146 | PORTPT - PORT DISTRICT | $45.82 | $45.82 | $0.00 | $0.00 | $0.00 | $91.64 |
| 2026 | 2146 | PUD1 - PUD #1 | $7.38 | $7.38 | $0.00 | $0.00 | $0.00 | $14.76 |
| 2026 | 2146 | LIB1 - LIBRARY DIST #1 | $35.41 | $35.41 | $0.00 | $0.00 | $0.00 | $70.82 |
| 2026 | 2146 | HD2 - HOSP DIST #2 | $6.62 | $6.61 | $0.00 | $0.00 | $0.00 | $13.23 |
| 2026 | 2146 | SD323 - SCHOOL DIST #323 | $227.76 | $227.75 | $0.00 | $0.00 | $0.00 | $455.51 |
| 2026 | 2146 | FD8 - FIRE DISTRICT #8 | $185.14 | $185.13 | $0.00 | $0.00 | $0.00 | $370.27 |
| 2026 | 2146 | EMS8 - FIRE DIST #8 EMS | $42.39 | $42.38 | $0.00 | $0.00 | $0.00 | $84.77 |
| 2026 | 2146 | CEM3 - CEMETERY DIST #3 | $3.09 | $3.08 | $0.00 | $0.00 | $0.00 | $6.17 |
| 2026 | 2146 | FPLCA - DNR Landowner Contingency Assmt | $3.00 | $3.00 | $0.00 | $0.00 | $0.00 | $6.00 |
| 2026 | 2146 | JCCD - JC Conservation District | $2.55 | $2.55 | $0.00 | $0.00 | $0.00 | $5.10 |
| 2026 | 2146 | NWA - Noxious Weed Assessment | $2.98 | $2.97 | $0.00 | $0.00 | $0.00 | $5.95 |
| 2026 | 2146 | OSS - On Site Septic | $23.10 | $23.10 | $0.00 | $0.00 | $0.00 | $46.20 |
| 2026 | 2146 | WAT - Clean Water District | $13.00 | $13.00 | $0.00 | $0.00 | $0.00 | $26.00 |
| 2026 | 2146 | TOTAL: | $1090.39 | $1090.30 | $0.00 | $0.00 | $0.00 | $2180.69 |
|
| 2026 | 2146 | $1090.39 | $1090.30 | $0.00 | $0.00 | $0.00 | $2180.69 |
Statement Details |
| 2025 | 2153 | STATE - STATE LEVY (SCHOOL) | $283.39 | $283.39 | $0.00 | $0.00 | $566.78 | $0.00 |
| 2025 | 2153 | COUNTY - COUNTY LEVIES (CE, DD, VET, MH) | $111.45 | $111.44 | $0.00 | $0.00 | $222.89 | $0.00 |
| 2025 | 2153 | CONSERVE - CONSERVATION FUTURES | $3.34 | $3.34 | $0.00 | $0.00 | $6.68 | $0.00 |
| 2025 | 2153 | COROADS - COUNTY ROADS (ROADS, DIV TO CE) | $89.29 | $89.28 | $0.00 | $0.00 | $178.57 | $0.00 |
| 2025 | 2153 | PORTPT - PORT DISTRICT | $45.48 | $45.47 | $0.00 | $0.00 | $90.95 | $0.00 |
| 2025 | 2153 | PUD1 - PUD #1 | $7.29 | $7.29 | $0.00 | $0.00 | $14.58 | $0.00 |
| 2025 | 2153 | LIB1 - LIBRARY DIST #1 | $34.55 | $34.54 | $0.00 | $0.00 | $69.09 | $0.00 |
| 2025 | 2153 | HD2 - HOSP DIST #2 | $6.50 | $6.50 | $0.00 | $0.00 | $13.00 | $0.00 |
| 2025 | 2153 | SD323 - SCHOOL DIST #323 | $153.48 | $153.47 | $0.00 | $0.00 | $306.95 | $0.00 |
| 2025 | 2153 | FD8 - FIRE DISTRICT #8 | $131.50 | $131.50 | $0.00 | $0.00 | $263.00 | $0.00 |
| 2025 | 2153 | EMS8 - FIRE DIST #8 EMS | $41.58 | $41.57 | $0.00 | $0.00 | $83.15 | $0.00 |
| 2025 | 2153 | CEM3 - CEMETERY DIST #3 | $3.13 | $3.13 | $0.00 | $0.00 | $6.26 | $0.00 |
| 2025 | 2153 | FPLCA - DNR Landowner Contingency Assmt | $3.00 | $3.00 | $0.00 | $0.00 | $6.00 | $0.00 |
| 2025 | 2153 | JCCD - JC Conservation District | $2.55 | $2.55 | $0.00 | $0.00 | $5.10 | $0.00 |
| 2025 | 2153 | NWA - Noxious Weed Assessment | $2.15 | $2.15 | $0.00 | $0.00 | $4.30 | $0.00 |
| 2025 | 2153 | OSS - On Site Septic | $21.50 | $21.50 | $0.00 | $0.00 | $43.00 | $0.00 |
| 2025 | 2153 | WAT - Clean Water District | $13.00 | $13.00 | $0.00 | $0.00 | $26.00 | $0.00 |
| 2025 | 2153 | TOTAL: | $953.18 | $953.12 | $0.00 | $0.00 | $1906.30 | $0.00 |
|
| 2025 | 2153 | $953.18 | $953.12 | $0.00 | $0.00 | $1906.30 | $0.00 |
Statement Details |
| 2024 | 2160 | STATE - STATE LEVY (SCHOOL) | $255.20 | $255.20 | $0.00 | $0.00 | $510.40 | $0.00 |
| 2024 | 2160 | COUNTY - COUNTY LEVIES (CE, DD, VET, MH) | $109.22 | $109.18 | $0.00 | $0.00 | $218.40 | $0.00 |
| 2024 | 2160 | CONSERVE - CONSERVATION FUTURES | $3.28 | $3.27 | $0.00 | $0.00 | $6.55 | $0.00 |
| 2024 | 2160 | COROADS - COUNTY ROADS (ROADS, DIV TO CE) | $87.88 | $87.86 | $0.00 | $0.00 | $175.74 | $0.00 |
| 2024 | 2160 | PORTPT - PORT DISTRICT | $45.11 | $45.10 | $0.00 | $0.00 | $90.21 | $0.00 |
| 2024 | 2160 | PUD1 - PUD #1 | $7.18 | $7.17 | $0.00 | $0.00 | $14.35 | $0.00 |
| 2024 | 2160 | LIB1 - LIBRARY DIST #1 | $34.00 | $33.99 | $0.00 | $0.00 | $67.99 | $0.00 |
| 2024 | 2160 | HD2 - HOSP DIST #2 | $6.37 | $6.37 | $0.00 | $0.00 | $12.74 | $0.00 |
| 2024 | 2160 | SD323 - SCHOOL DIST #323 | $143.56 | $143.55 | $0.00 | $0.00 | $287.11 | $0.00 |
| 2024 | 2160 | FD8 - FIRE DISTRICT #8 | $123.55 | $123.54 | $0.00 | $0.00 | $247.09 | $0.00 |
| 2024 | 2160 | EMS8 - FIRE DIST #8 EMS | $39.07 | $39.07 | $0.00 | $0.00 | $78.14 | $0.00 |
| 2024 | 2160 | CEM3 - CEMETERY DIST #3 | $3.14 | $3.14 | $0.00 | $0.00 | $6.28 | $0.00 |
| 2024 | 2160 | FPLCA - DNR Landowner Contingency Assmt | $3.00 | $3.00 | $0.00 | $0.00 | $6.00 | $0.00 |
| 2024 | 2160 | JCCD - JC Conservation District | $2.55 | $2.55 | $0.00 | $0.00 | $5.10 | $0.00 |
| 2024 | 2160 | NWA - Noxious Weed Assessment | $2.15 | $2.15 | $0.00 | $0.00 | $4.30 | $0.00 |
| 2024 | 2160 | OSS - On Site Septic | $21.00 | $21.00 | $0.00 | $0.00 | $42.00 | $0.00 |
| 2024 | 2160 | WAT - Clean Water District | $12.50 | $12.50 | $0.00 | $0.00 | $25.00 | $0.00 |
| 2024 | 2160 | TOTAL: | $898.76 | $898.64 | $0.00 | $0.00 | $1797.40 | $0.00 |
|
| 2024 | 2160 | $898.76 | $898.64 | $0.00 | $0.00 | $1797.40 | $0.00 |
Statement Details |
| 2023 | 2162 | STATE - STATE LEVY (SCHOOL) | $235.27 | $235.26 | $0.00 | $0.00 | $470.53 | $0.00 |
| 2023 | 2162 | COUNTY - COUNTY LEVIES (CE, DD, VET, MH) | $102.68 | $102.66 | $0.00 | $0.00 | $205.34 | $0.00 |
| 2023 | 2162 | CONSERVE - CONSERVATION FUTURES | $3.08 | $3.08 | $0.00 | $0.00 | $6.16 | $0.00 |
| 2023 | 2162 | COROADS - COUNTY ROADS (ROADS, DIV TO CE) | $83.07 | $83.05 | $0.00 | $0.00 | $166.12 | $0.00 |
| 2023 | 2162 | PORTPT - PORT DISTRICT | $43.25 | $43.24 | $0.00 | $0.00 | $86.49 | $0.00 |
| 2023 | 2162 | PUD1 - PUD #1 | $6.81 | $6.80 | $0.00 | $0.00 | $13.61 | $0.00 |
| 2023 | 2162 | LIB1 - LIBRARY DIST #1 | $32.14 | $32.13 | $0.00 | $0.00 | $64.27 | $0.00 |
| 2023 | 2162 | HD2 - HOSP DIST #2 | $6.00 | $5.99 | $0.00 | $0.00 | $11.99 | $0.00 |
| 2023 | 2162 | SD323 - SCHOOL DIST #323 | $135.72 | $135.71 | $0.00 | $0.00 | $271.43 | $0.00 |
| 2023 | 2162 | FD8 - FIRE DISTRICT #8 | $113.12 | $113.11 | $0.00 | $0.00 | $226.23 | $0.00 |
| 2023 | 2162 | EMS8 - FIRE DIST #8 EMS | $36.99 | $36.99 | $0.00 | $0.00 | $73.98 | $0.00 |
| 2023 | 2162 | CEM3 - CEMETERY DIST #3 | $3.22 | $3.22 | $0.00 | $0.00 | $6.44 | $0.00 |
| 2023 | 2162 | FPLCA - DNR Landowner Contingency Assmt | $3.00 | $3.00 | $0.00 | $0.00 | $6.00 | $0.00 |
| 2023 | 2162 | JCCD - JC Conservation District | $2.55 | $2.55 | $0.00 | $0.00 | $5.10 | $0.00 |
| 2023 | 2162 | NWA - Noxious Weed Assessment | $2.15 | $2.15 | $0.00 | $0.00 | $4.30 | $0.00 |
| 2023 | 2162 | OSS - On Site Septic | $20.50 | $20.50 | $0.00 | $0.00 | $41.00 | $0.00 |
| 2023 | 2162 | WAT - Clean Water District | $12.00 | $12.00 | $0.00 | $0.00 | $24.00 | $0.00 |
| 2023 | 2162 | TOTAL: | $841.55 | $841.44 | $0.00 | $0.00 | $1682.99 | $0.00 |
|
| 2023 | 2162 | $841.55 | $841.44 | $0.00 | $0.00 | $1682.99 | $0.00 |
Values
| (+) Improvement Homesite Value: | + | $131,849 | |
| (+) Improvement Non-Homesite Value: | + | $0 | |
| (+) Land Homesite Value: | + | $115,000 | |
| (+) Land Non-Homesite Value: | + | $0 | |
| (+) Curr Use (HS): | + | $0 | $0 |
| (+) Curr Use (NHS): | + | $0 | $0 |
| | | -------------------------- | |
| (=) Market Value: | = | $246,849 | |
| (–) Productivity Loss: | – | $0 | |
| | | -------------------------- | |
| (=) Subtotal: | = | $246,849 | |
| (+) Senior Appraised Value: | + | $0 | |
| (+) Non-Senior Appraised Value: | + | $246,849 | |
| | | -------------------------- | |
| (=) Total Appraised Value: | = | $246,849 | |
| (–) Senior Exemption Loss: | – | $0 | |
| (–) Exemption Loss: | – | $0 | |
| | | -------------------------- | |
| (=) Taxable Value: | = | $246,849 | |
Taxing Jurisdiction
| Owner: | ANNE M SLINN | | |
| % Ownership: | 100.0000000000% | | |
| Total Value: | $246,849 | | |
| Tax Area: | 0781 - 1-323F8E8H2C3L1 |
| CE | COUNTY CURRENT EXPENSE | 0.9034619479 | $246,849 | $246,849 | $223.02 | | |
| CNTYDD | DEVELOPMENTAL DISABILITIES | 0.0052121823 | $246,849 | $246,849 | $1.29 | | |
| CNTYVET | VETERANS RELIEF | 0.0052777810 | $246,849 | $246,849 | $1.30 | | |
| MENTAL | MENTAL HEALTH | 0.0052121823 | $246,849 | $246,849 | $1.29 | | |
| ROADS | COUNTY ROADS | 0.7415066410 | $246,849 | $246,849 | $183.04 | | |
| ROADSCU | COUNTY ROADS TO CUR EXP | 0.0000000000 | $246,849 | $246,849 | $0.00 | | |
| HOSP2CASH | HOSP DIST #2 GENERAL | 0.0536075306 | $246,849 | $246,849 | $13.23 | | |
| SCH323BOND | SCHOOL DIST #323 BOND | 0.9080943643 | $246,849 | $246,849 | $224.16 | | |
| SCH323CP | SCHOOL DIST #323 CAP PROJ | 0.0000000000 | $246,849 | $246,849 | $0.00 | | |
| SCH323MO | SCHOOL DIST #323 EP & O | 0.9372055494 | $246,849 | $246,849 | $231.35 | | |
| CEM3 | CEMETERY DIST #3 GENERAL | 0.0249992283 | $246,849 | $246,849 | $6.17 | | |
| CONSERVE | CONSERVATION FUTURES | 0.0275621078 | $246,849 | $246,849 | $6.80 | | |
| EMS8 | FIRE DIST #8 EMS | 0.3434101125 | $246,849 | $246,849 | $84.77 | | |
| FD8 | FIRE DIST #8 GENERAL | 1.5000000000 | $246,849 | $246,849 | $370.27 | | |
| LIB1 | LIBRARY DIST #1 GENERAL | 0.2868827388 | $246,849 | $246,849 | $70.82 | | |
| PORTPT | PORT OF PT GENERAL | 0.1134941229 | $246,849 | $246,849 | $28.02 | | |
| PORTPTIDD | PORT OF PT IDD 2019 | 0.2577346692 | $246,849 | $246,849 | $63.62 | | |
| PUD1 | PUD #1 GENERAL | 0.0597888892 | $246,849 | $246,849 | $14.76 | | |
| STATE | STATE SCHOOL PART 1 | 1.4940692947 | $246,849 | $246,849 | $368.81 | | |
| STATE2 | STATE SCHOOL PART 2 | 0.8050170049 | $246,849 | $246,849 | $198.72 | | |
| | Total Tax Rate: | 8.4725363471 | | | | | |
| | | | | Taxes w/Current Exemptions: | $2,091.44 | | |
| | | | | Taxes w/o Exemptions: | $2,091.44 | | |
Improvement / Building
| Improvement #1: | Residential Bldg | State Code: | 11 | 1122.0 sqft | Value: | $131,849 |
| Bathrooms (#): | 1 (FULL) | Bedrooms (#): | 2 | | Exterior Wall: | PL/T1 | Fireplace: | WD ST-FAIR | | Floor Construction: | FRAME | Foundation: | PO&BL | | Heating/Cooling: | OTHER | Roof Cover: | COMP |
|
| | Type | Description | Class CD | Sub Class CD | Year Built | Area |
| | MA | Main Area | 3 | 1S | 1940 | 1122.0 |
| | HENCL | House Enclosure | 3 | * | 1940 | 100.0 |
| | GATT | House Attached Garage | 3 | 1S | 1940 | 360.0 |
| | HDECK | House Deck | 3 | * | 1940 | 425.0 |
Sketch
Property Image
Land
| 1 | 2680-1355S | | 0.0000 | 0.00 | 0.00 | 0.00 | 1.00 | $115,000 | $0 |
Roll Value History
| 2026 | N/A | N/A | N/A | N/A | N/A |
| 2025 | $131,849 | $115,000 | $0 | $246,849 | $246,849 |
| 2024 | $126,355 | $110,000 | $0 | $236,355 | $236,355 |
| 2023 | $120,861 | $99,750 | $0 | $220,611 | $220,611 |
| 2022 | $109,874 | $90,000 | $0 | $199,874 | $199,874 |
Deed and Sales History
| 1 | 07/23/2021 | SWD | Statutory Warranty Deed | | | | | | 137484 | |
| 2 | 07/23/2021 | SWD | Statutory Warranty Deed | KIRSTEN TRATNICK | ANNE M SLINN | | | $344,000.00 | 137250 | |
|   | |
| 3 | 02/18/2021 | PRD | Personal Representatives Deed | RONALD D KLOPFENSTEIN | KIRSTEN TRATNICK | | | | 136160 | |
| 4 | 04/17/2019 | LOP | Lack of Probate | KATHLEEN M KING | RONALD D KLOPFENSTEIN | | | | 132168 | |
| 5 | 04/17/2019 | LOP | Lack of Probate | | | | | | 132798 | |
| 6 | 05/30/1996 | SWD | Statutory Warranty Deed | | | | | | 132800 | |
| 7 | 11/10/1999 | SWD | Statutory Warranty Deed | KING, WAYNE & PEGGY | KING, KATHLEEN | 0 | 0 | $0.00 | 88526 | 0 |
Payout Agreement
| No payout information available.. |