Property
Account |
| Property ID: | 12396 | Abbreviated Legal Description: | S20 T30 R1E TAX 40 (TRACT 18) |
| Parcel # / Geo ID: | 021202026 | Agent Code: | |
| Type: | Real | | |
| Tax Area: | 0211 - 1-49F1E1H2L1 | Land Use Code | 91 |
| Open Space: | N | DFL | N |
| Historic Property: | N | Remodel Property: | N |
| Multi-Family Redevelopment: | N | | |
| Township: | 30N | Section: | 20 |
| Range: | 1E |
Location |
| Address: | | Mapsco: | 183/004 |
| Neighborhood: | S17-20 T30 R1E & MISC SP LS PLATTED & INDIAN IS | Map ID: | |
| Neighborhood CD: | 4520 |
Owner |
| Name: | ALEX RATE & JENNY HARBINE | Owner ID: | 105380 |
| Mailing Address: | 713 LOCH LEVEN DR LIVINGSTON, MT 59047-3805 | % Ownership: | 100.0000000000% |
| | | Exemptions: | |
Pay Tax Due
Select the appropriate checkbox next to the year to be paid. Multiple years may be selected.
*Convenience Fee not included
Taxes and Assessment Details
Property Tax Information as of
02/13/2026
Click on "Statement Details" to expand or collapse a tax statement.
* Please enter a valid date ** Please enter a valid date *
Statement Details |
| 2026 | 2314 | STATE - STATE LEVY (SCHOOL) | $75.88 | $75.86 | $0.00 | $0.00 | $0.00 | $151.74 |
| 2026 | 2314 | COUNTY - COUNTY LEVIES (CE, DD, VET, MH) | $30.34 | $30.32 | $0.00 | $0.00 | $0.00 | $60.66 |
| 2026 | 2314 | CONSERVE - CONSERVATION FUTURES | $0.91 | $0.91 | $0.00 | $0.00 | $0.00 | $1.82 |
| 2026 | 2314 | COROADS - COUNTY ROADS (ROADS, DIV TO CE) | $24.47 | $24.47 | $0.00 | $0.00 | $0.00 | $48.94 |
| 2026 | 2314 | PORTPT - PORT DISTRICT | $12.26 | $12.24 | $0.00 | $0.00 | $0.00 | $24.50 |
| 2026 | 2314 | PUD1 - PUD #1 | $1.98 | $1.97 | $0.00 | $0.00 | $0.00 | $3.95 |
| 2026 | 2314 | LIB1 - LIBRARY DIST #1 | $9.47 | $9.46 | $0.00 | $0.00 | $0.00 | $18.93 |
| 2026 | 2314 | HD2 - HOSP DIST #2 | $1.77 | $1.77 | $0.00 | $0.00 | $0.00 | $3.54 |
| 2026 | 2314 | SD49 - SCHOOL DIST #49 | $41.76 | $41.76 | $0.00 | $0.00 | $0.00 | $83.52 |
| 2026 | 2314 | FD1 - FIRE DISTRICT #1 | $40.17 | $40.16 | $0.00 | $0.00 | $0.00 | $80.33 |
| 2026 | 2314 | EMS1 - FIRE DIST #1 EMS | $15.45 | $15.44 | $0.00 | $0.00 | $0.00 | $30.89 |
| 2026 | 2314 | JCCD - JC Conservation District | $2.53 | $2.53 | $0.00 | $0.00 | $0.00 | $5.06 |
| 2026 | 2314 | NWA - Noxious Weed Assessment | $2.98 | $2.97 | $0.00 | $0.00 | $0.00 | $5.95 |
| 2026 | 2314 | WAT - Clean Water District | $13.00 | $13.00 | $0.00 | $0.00 | $0.00 | $26.00 |
| 2026 | 2314 | TOTAL: | $272.97 | $272.86 | $0.00 | $0.00 | $0.00 | $545.83 |
|
| 2026 | 2314 | $272.97 | $272.86 | $0.00 | $0.00 | $0.00 | $545.83 |
Statement Details |
| 2025 | 2321 | STATE - STATE LEVY (SCHOOL) | $75.54 | $75.53 | $0.00 | $0.00 | $151.07 | $0.00 |
| 2025 | 2321 | COUNTY - COUNTY LEVIES (CE, DD, VET, MH) | $29.71 | $29.71 | $0.00 | $0.00 | $59.42 | $0.00 |
| 2025 | 2321 | CONSERVE - CONSERVATION FUTURES | $0.89 | $0.89 | $0.00 | $0.00 | $1.78 | $0.00 |
| 2025 | 2321 | COROADS - COUNTY ROADS (ROADS, DIV TO CE) | $23.80 | $23.80 | $0.00 | $0.00 | $47.60 | $0.00 |
| 2025 | 2321 | PORTPT - PORT DISTRICT | $12.13 | $12.12 | $0.00 | $0.00 | $24.25 | $0.00 |
| 2025 | 2321 | PUD1 - PUD #1 | $1.95 | $1.94 | $0.00 | $0.00 | $3.89 | $0.00 |
| 2025 | 2321 | LIB1 - LIBRARY DIST #1 | $9.21 | $9.20 | $0.00 | $0.00 | $18.41 | $0.00 |
| 2025 | 2321 | HD2 - HOSP DIST #2 | $1.74 | $1.73 | $0.00 | $0.00 | $3.47 | $0.00 |
| 2025 | 2321 | SD49 - SCHOOL DIST #49 | $40.49 | $40.48 | $0.00 | $0.00 | $80.97 | $0.00 |
| 2025 | 2321 | FD1 - FIRE DISTRICT #1 | $39.20 | $39.20 | $0.00 | $0.00 | $78.40 | $0.00 |
| 2025 | 2321 | EMS1 - FIRE DIST #1 EMS | $15.08 | $15.07 | $0.00 | $0.00 | $30.15 | $0.00 |
| 2025 | 2321 | JCCD - JC Conservation District | $2.53 | $2.53 | $0.00 | $0.00 | $5.06 | $0.00 |
| 2025 | 2321 | NWA - Noxious Weed Assessment | $2.15 | $2.15 | $0.00 | $0.00 | $4.30 | $0.00 |
| 2025 | 2321 | WAT - Clean Water District | $13.00 | $13.00 | $0.00 | $0.00 | $26.00 | $0.00 |
| 2025 | 2321 | TOTAL: | $267.42 | $267.35 | $0.00 | $0.00 | $534.77 | $0.00 |
|
| 2025 | 2321 | $267.42 | $267.35 | $0.00 | $0.00 | $534.77 | $0.00 |
Statement Details |
| 2024 | 2328 | STATE - STATE LEVY (SCHOOL) | $69.42 | $69.40 | $0.00 | $0.00 | $138.82 | $0.00 |
| 2024 | 2328 | COUNTY - COUNTY LEVIES (CE, DD, VET, MH) | $29.71 | $29.70 | $0.00 | $0.00 | $59.41 | $0.00 |
| 2024 | 2328 | CONSERVE - CONSERVATION FUTURES | $0.89 | $0.89 | $0.00 | $0.00 | $1.78 | $0.00 |
| 2024 | 2328 | COROADS - COUNTY ROADS (ROADS, DIV TO CE) | $23.91 | $23.89 | $0.00 | $0.00 | $47.80 | $0.00 |
| 2024 | 2328 | PORTPT - PORT DISTRICT | $12.27 | $12.26 | $0.00 | $0.00 | $24.53 | $0.00 |
| 2024 | 2328 | PUD1 - PUD #1 | $1.95 | $1.95 | $0.00 | $0.00 | $3.90 | $0.00 |
| 2024 | 2328 | LIB1 - LIBRARY DIST #1 | $9.25 | $9.24 | $0.00 | $0.00 | $18.49 | $0.00 |
| 2024 | 2328 | HD2 - HOSP DIST #2 | $1.74 | $1.73 | $0.00 | $0.00 | $3.47 | $0.00 |
| 2024 | 2328 | SD49 - SCHOOL DIST #49 | $31.00 | $30.99 | $0.00 | $0.00 | $61.99 | $0.00 |
| 2024 | 2328 | FD1 - FIRE DISTRICT #1 | $39.27 | $39.27 | $0.00 | $0.00 | $78.54 | $0.00 |
| 2024 | 2328 | EMS1 - FIRE DIST #1 EMS | $15.00 | $15.00 | $0.00 | $0.00 | $30.00 | $0.00 |
| 2024 | 2328 | JCCD - JC Conservation District | $2.53 | $2.53 | $0.00 | $0.00 | $5.06 | $0.00 |
| 2024 | 2328 | NWA - Noxious Weed Assessment | $2.15 | $2.15 | $0.00 | $0.00 | $4.30 | $0.00 |
| 2024 | 2328 | WAT - Clean Water District | $12.50 | $12.50 | $0.00 | $0.00 | $25.00 | $0.00 |
| 2024 | 2328 | TOTAL: | $251.59 | $251.50 | $0.00 | $0.00 | $503.09 | $0.00 |
|
| 2024 | 2328 | $251.59 | $251.50 | $0.00 | $0.00 | $503.09 | $0.00 |
Statement Details |
| 2023 | 2330 | STATE - STATE LEVY (SCHOOL) | $52.97 | $52.97 | $0.00 | $0.00 | $105.94 | $0.00 |
| 2023 | 2330 | COUNTY - COUNTY LEVIES (CE, DD, VET, MH) | $23.12 | $23.11 | $0.00 | $0.00 | $46.23 | $0.00 |
| 2023 | 2330 | CONSERVE - CONSERVATION FUTURES | $0.70 | $0.69 | $0.00 | $0.00 | $1.39 | $0.00 |
| 2023 | 2330 | COROADS - COUNTY ROADS (ROADS, DIV TO CE) | $18.71 | $18.70 | $0.00 | $0.00 | $37.41 | $0.00 |
| 2023 | 2330 | PORTPT - PORT DISTRICT | $9.75 | $9.73 | $0.00 | $0.00 | $19.48 | $0.00 |
| 2023 | 2330 | PUD1 - PUD #1 | $1.53 | $1.53 | $0.00 | $0.00 | $3.06 | $0.00 |
| 2023 | 2330 | LIB1 - LIBRARY DIST #1 | $7.24 | $7.23 | $0.00 | $0.00 | $14.47 | $0.00 |
| 2023 | 2330 | HD2 - HOSP DIST #2 | $1.36 | $1.34 | $0.00 | $0.00 | $2.70 | $0.00 |
| 2023 | 2330 | SD49 - SCHOOL DIST #49 | $24.77 | $24.75 | $0.00 | $0.00 | $49.52 | $0.00 |
| 2023 | 2330 | FD1 - FIRE DISTRICT #1 | $19.04 | $19.04 | $0.00 | $0.00 | $38.08 | $0.00 |
| 2023 | 2330 | EMS1 - FIRE DIST #1 EMS | $8.10 | $8.10 | $0.00 | $0.00 | $16.20 | $0.00 |
| 2023 | 2330 | JCCD - JC Conservation District | $2.53 | $2.53 | $0.00 | $0.00 | $5.06 | $0.00 |
| 2023 | 2330 | NWA - Noxious Weed Assessment | $2.15 | $2.15 | $0.00 | $0.00 | $4.30 | $0.00 |
| 2023 | 2330 | WAT - Clean Water District | $12.00 | $12.00 | $0.00 | $0.00 | $24.00 | $0.00 |
| 2023 | 2330 | TOTAL: | $183.97 | $183.87 | $0.00 | $0.00 | $367.84 | $0.00 |
|
| 2023 | 2330 | $183.97 | $183.87 | $0.00 | $0.00 | $367.84 | $0.00 |
Values
| (+) Improvement Homesite Value: | + | $0 | |
| (+) Improvement Non-Homesite Value: | + | $0 | |
| (+) Land Homesite Value: | + | $0 | |
| (+) Land Non-Homesite Value: | + | $66,000 | |
| (+) Curr Use (HS): | + | $0 | $0 |
| (+) Curr Use (NHS): | + | $0 | $0 |
| | | -------------------------- | |
| (=) Market Value: | = | $66,000 | |
| (–) Productivity Loss: | – | $0 | |
| | | -------------------------- | |
| (=) Subtotal: | = | $66,000 | |
| (+) Senior Appraised Value: | + | $0 | |
| (+) Non-Senior Appraised Value: | + | $66,000 | |
| | | -------------------------- | |
| (=) Total Appraised Value: | = | $66,000 | |
| (–) Senior Exemption Loss: | – | $0 | |
| (–) Exemption Loss: | – | $0 | |
| | | -------------------------- | |
| (=) Taxable Value: | = | $66,000 | |
Taxing Jurisdiction
| Owner: | ALEX RATE & JENNY HARBINE | | |
| % Ownership: | 100.0000000000% | | |
| Total Value: | $66,000 | | |
| Tax Area: | 0211 - 1-49F1E1H2L1 |
| CE | COUNTY CURRENT EXPENSE | 0.9034619479 | $66,000 | $66,000 | $59.63 | | |
| CNTYDD | DEVELOPMENTAL DISABILITIES | 0.0052121823 | $66,000 | $66,000 | $0.34 | | |
| CNTYVET | VETERANS RELIEF | 0.0052777810 | $66,000 | $66,000 | $0.35 | | |
| MENTAL | MENTAL HEALTH | 0.0052121823 | $66,000 | $66,000 | $0.34 | | |
| ROADS | COUNTY ROADS | 0.7415066410 | $66,000 | $66,000 | $48.94 | | |
| ROADSCU | COUNTY ROADS TO CUR EXP | 0.0000000000 | $66,000 | $66,000 | $0.00 | | |
| HOSP2CASH | HOSP DIST #2 GENERAL | 0.0536075306 | $66,000 | $66,000 | $3.54 | | |
| SCH49CP | SCHOOL DIST #49 CAP PROJ | 0.6279093905 | $66,000 | $66,000 | $41.44 | | |
| SCH49MO | SCHOOL DIST #49 EP & O | 0.6376483602 | $66,000 | $66,000 | $42.08 | | |
| CONSERVE | CONSERVATION FUTURES | 0.0275621078 | $66,000 | $66,000 | $1.82 | | |
| EMS1 | FIRE DIST #1 EMS | 0.4679948282 | $66,000 | $66,000 | $30.89 | | |
| FD1 | FIRE DIST #1 GENERAL | 1.2171942929 | $66,000 | $66,000 | $80.33 | | |
| LIB1 | LIBRARY DIST #1 GENERAL | 0.2868827388 | $66,000 | $66,000 | $18.93 | | |
| PORTPT | PORT OF PT GENERAL | 0.1134941229 | $66,000 | $66,000 | $7.49 | | |
| PORTPTIDD | PORT OF PT IDD 2019 | 0.2577346692 | $66,000 | $66,000 | $17.01 | | |
| PUD1 | PUD #1 GENERAL | 0.0597888892 | $66,000 | $66,000 | $3.95 | | |
| STATE | STATE SCHOOL PART 1 | 1.4940692947 | $66,000 | $66,000 | $98.61 | | |
| STATE2 | STATE SCHOOL PART 2 | 0.8050170049 | $66,000 | $66,000 | $53.13 | | |
| | Total Tax Rate: | 7.7095739644 | | | | | |
| | | | | Taxes w/Current Exemptions: | $508.82 | | |
| | | | | Taxes w/o Exemptions: | $508.82 | | |
Improvement / Building
Sketch
| No sketches available for this property. |
Property Image
Land
| 1 | 4520-1175S | | 0.0000 | 0.00 | 0.00 | 0.00 | 1.00 | $66,000 | $0 |
Roll Value History
| 2026 | N/A | N/A | N/A | N/A | N/A |
| 2025 | $0 | $66,000 | $0 | $66,000 | $66,000 |
| 2024 | $0 | $63,000 | $0 | $63,000 | $63,000 |
| 2023 | $0 | $60,000 | $0 | $60,000 | $60,000 |
| 2022 | $0 | $45,000 | $0 | $45,000 | $45,000 |
Deed and Sales History
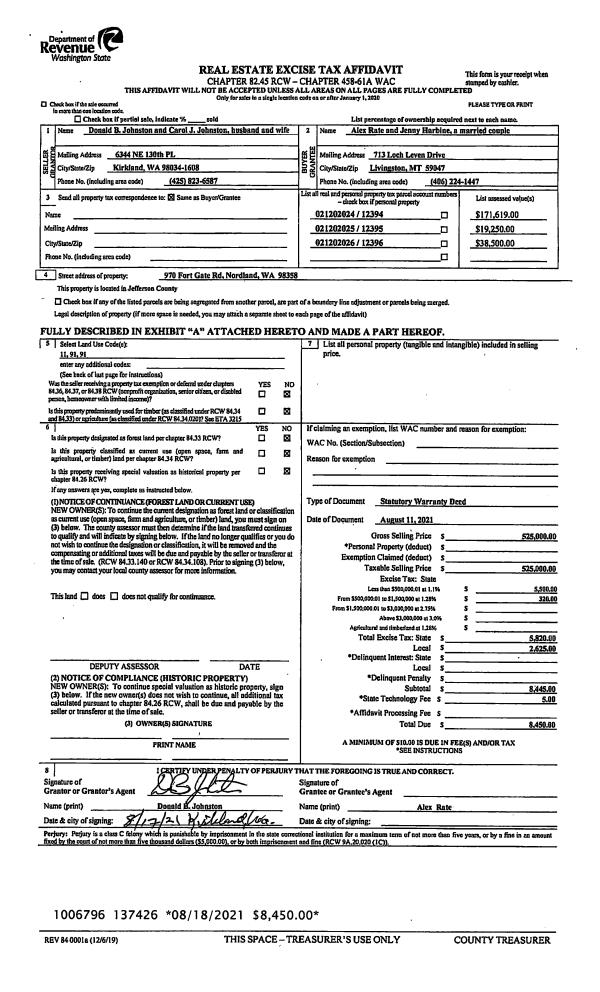
| 1 | 08/11/2021 | SWD | Statutory Warranty Deed | DONALD B JOHNSTON | ALEX RATE & JENNY HARBINE | | | $525,000.00 | 137426 | |
|   | |
Payout Agreement
| No payout information available.. |